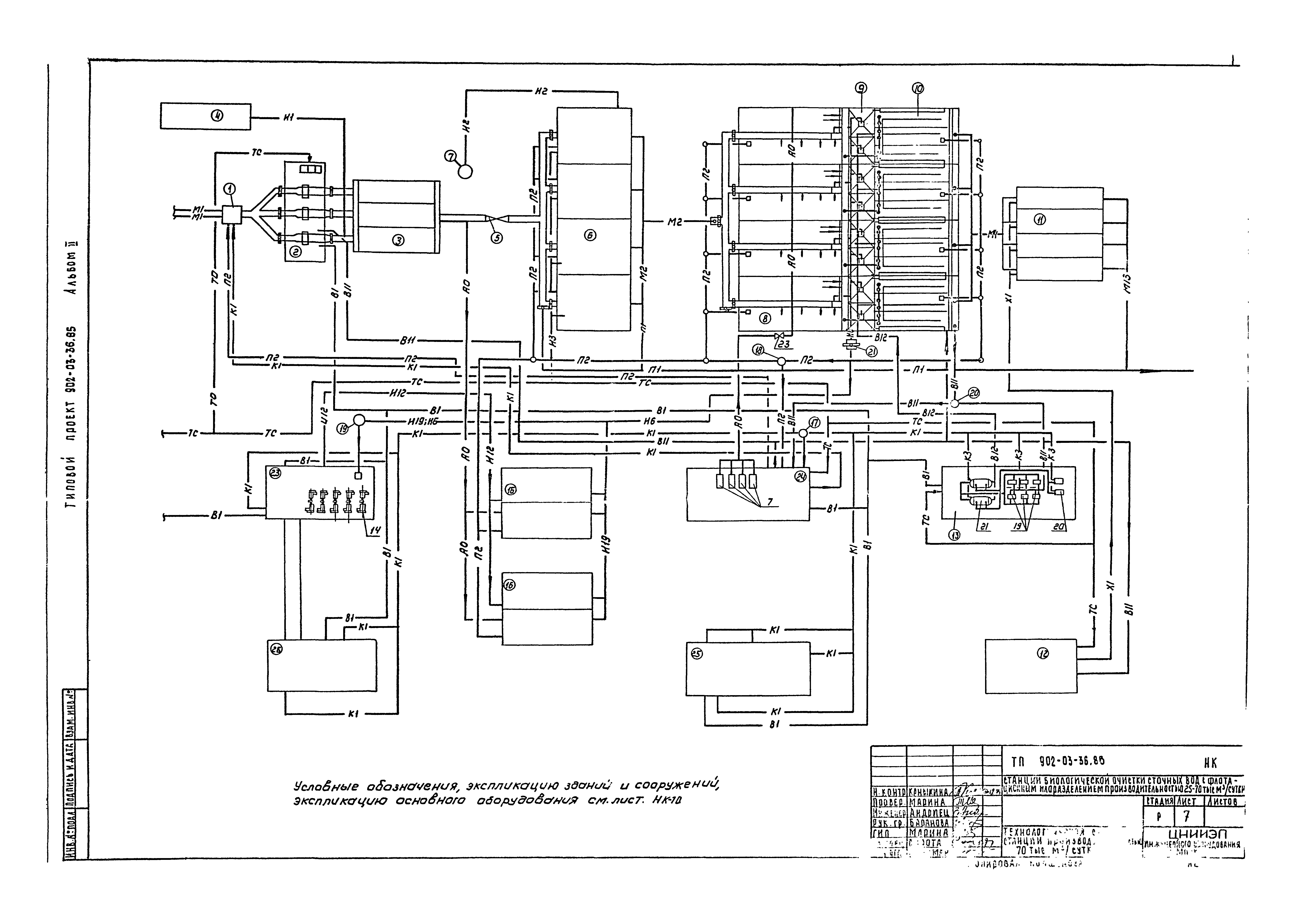
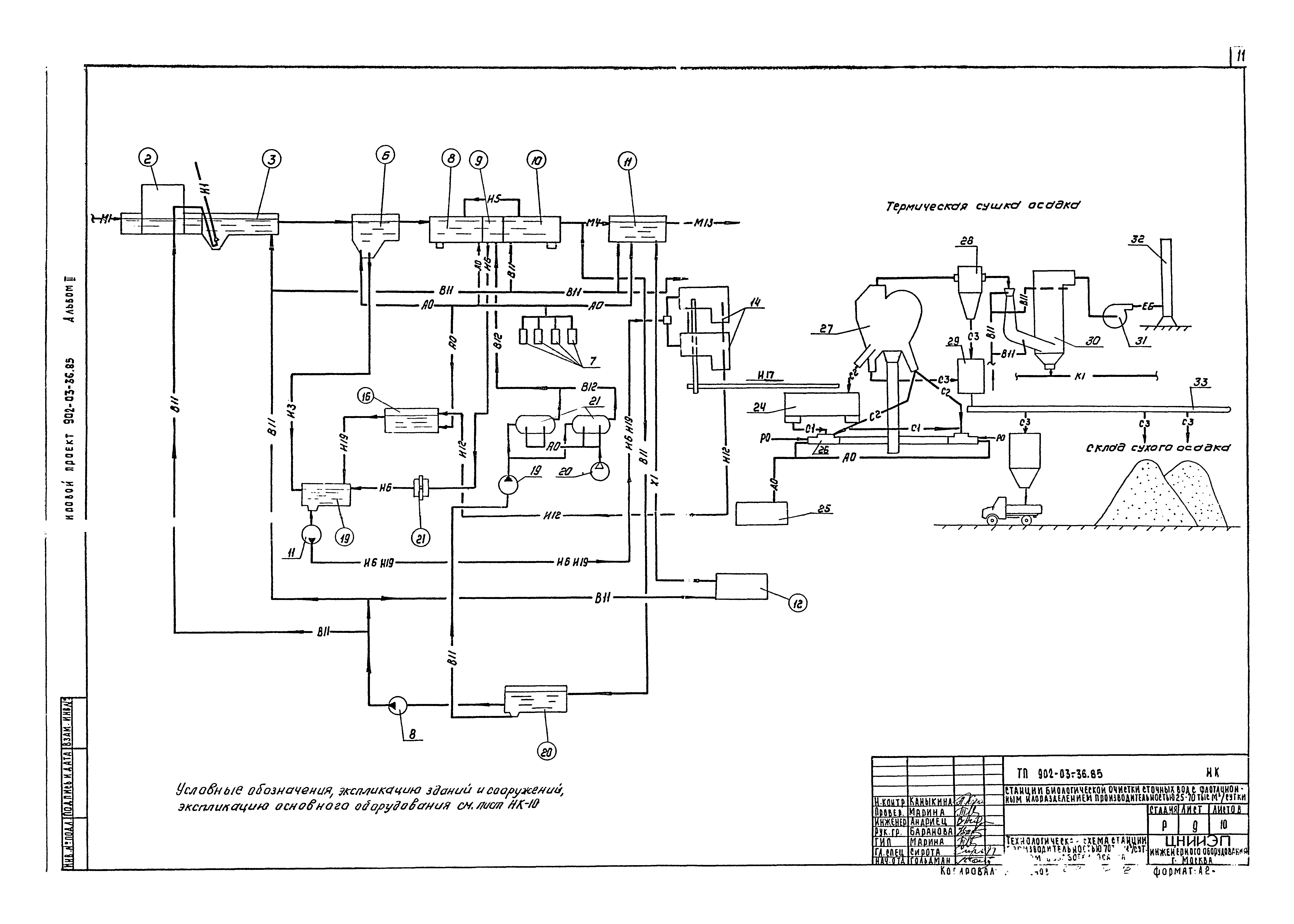
Скачать Типовой проект 902-03-36.85 Альбом II. ЧертежиДата актуализации: 01.01.2021
|
| Обозначение: | Типовой проект 902-03-36.85 |
| Обозначение англ: | 902-03-36.85 |
| Статус: | не определен законодательством |
| Название рус.: | Альбом II. Чертежи |
| Дата добавления в базу: | 01.02.2017 |
| Дата актуализации: | 01.01.2021 |
| Дата введения: | 27.12.1984 |
| Дата окончания срока действия: | 30.06.2003 |
| Разработан: | ЦНИИЭП |
| Утверждён: | 19.08.1982 ЦНИИЭП инженерного оборудования (TsNIIEP of Building Service Equipment 224) |
| Издан: | ЦИТП Госстроя СССР (CITP, Gosstroy (USSR) 1986 г. ) |













