Скачать Типовой проект 503-4-40.86 Альбом I. Общая пояснительная записка. Технология производства. Технологические коммуникации. Общественное питание. Проект организации строительства

Дата актуализации: 01.01.2021

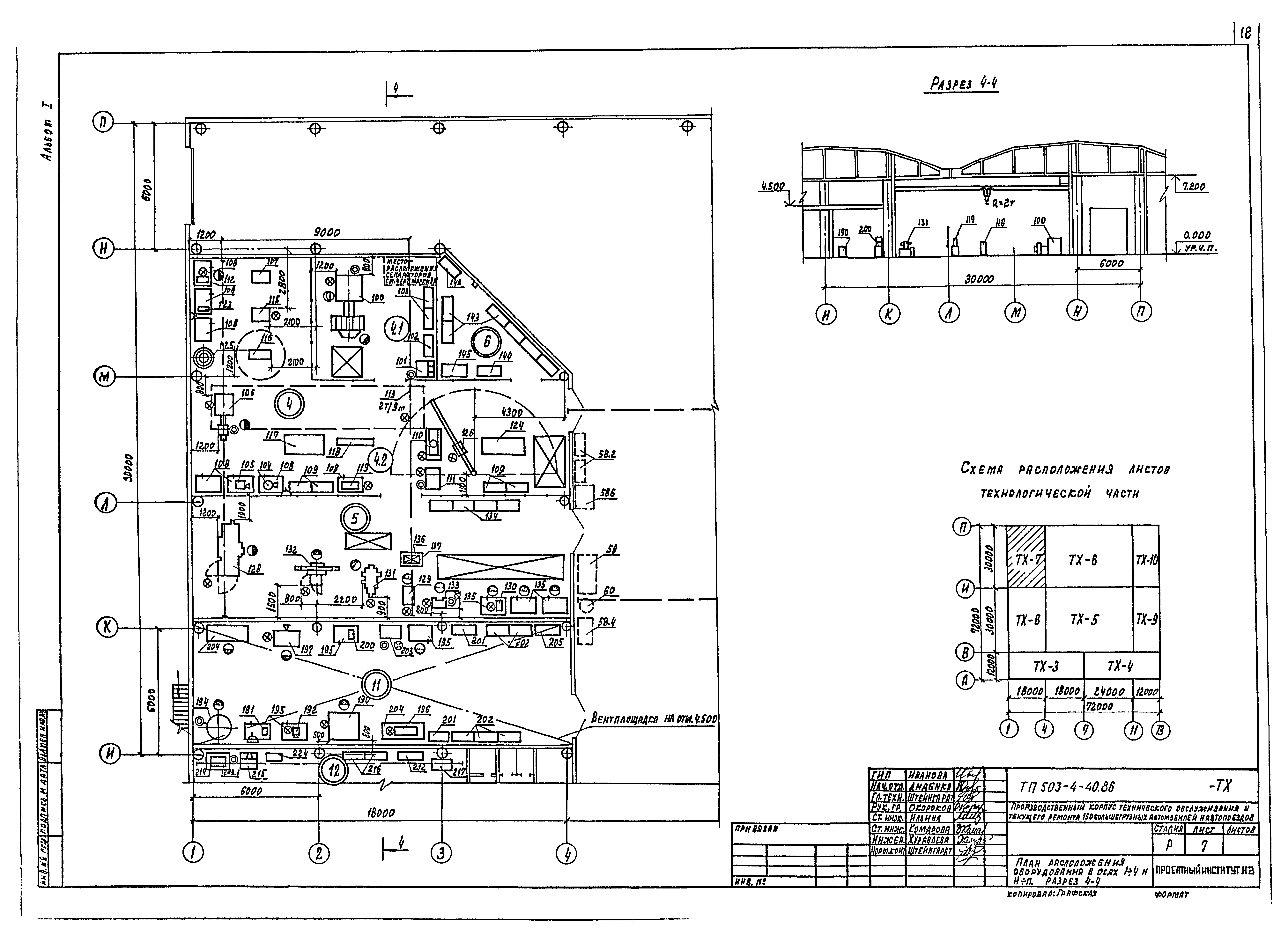
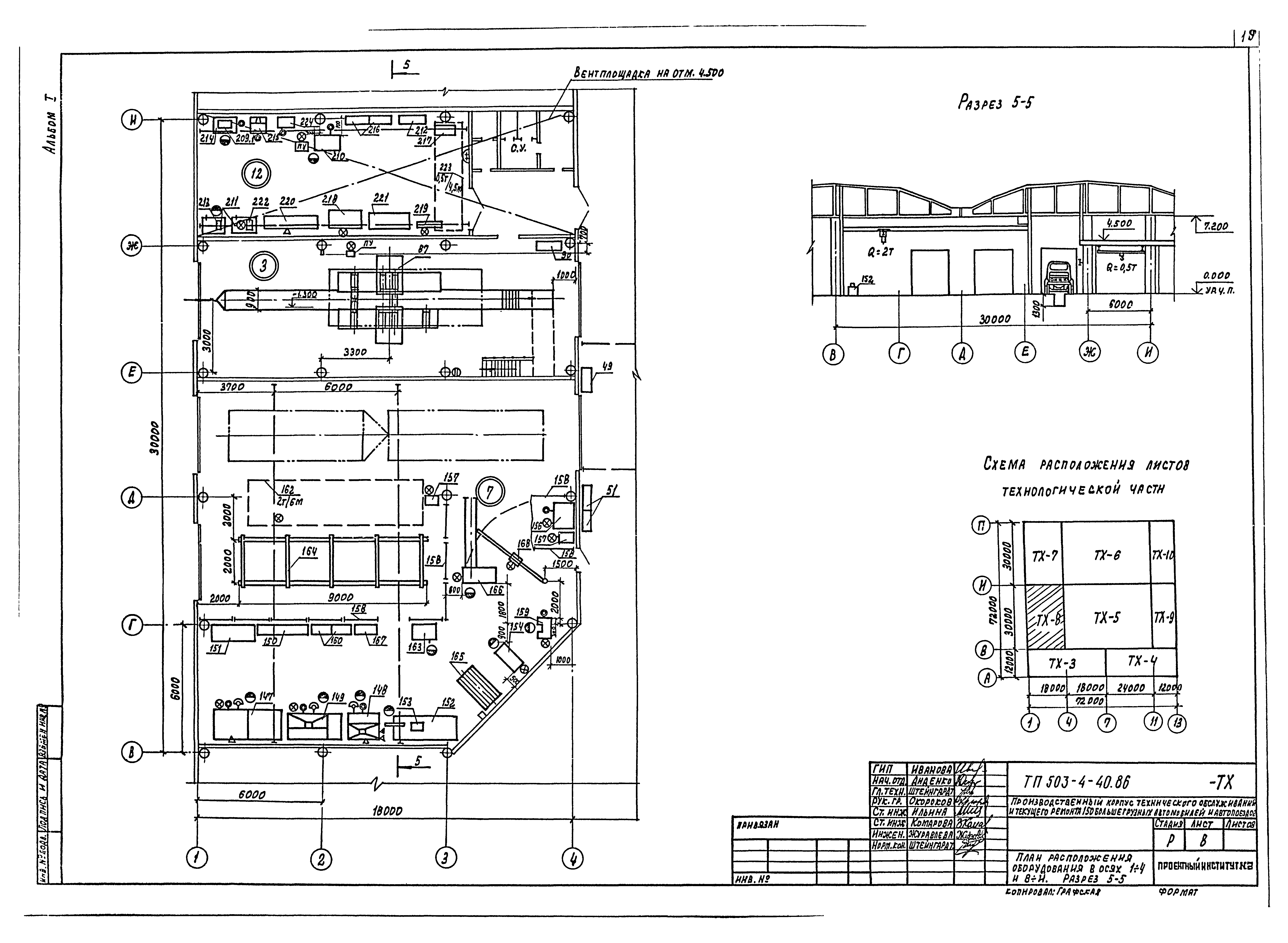
Типовой проект 503-4-40.86

Альбом I. Общая пояснительная записка. Технология производства. Технологические коммуникации. Общественное питание. Проект организации строительства

Обозначение: Типовой проект 503-4-40.86
Обозначение англ: 503-4-40.86
Статус:не определен законодательством
Название рус.:Альбом I. Общая пояснительная записка. Технология производства. Технологические коммуникации. Общественное питание. Проект организации строительства
Дата добавления в базу:01.02.2017
Дата актуализации:01.01.2021
Дата введения:23.01.1986
Дата окончания срока действия:30.06.2003
Разработан: Проектный институт №2
Утверждён:15.01.1986 Госстрой СССР (АЧ-1)
Издан: ЦИТП Госстроя СССР (CITP, Gosstroy (USSR) 1987 г. )
Типовой проект 503-4-40.86Типовой проект 503-4-40.86Типовой проект 503-4-40.86Типовой проект 503-4-40.86Типовой проект 503-4-40.86Типовой проект 503-4-40.86Типовой проект 503-4-40.86Типовой проект 503-4-40.86Типовой проект 503-4-40.86Типовой проект 503-4-40.86Типовой проект 503-4-40.86Типовой проект 503-4-40.86Типовой проект 503-4-40.86Типовой проект 503-4-40.86Типовой проект 503-4-40.86Типовой проект 503-4-40.86Типовой проект 503-4-40.86Типовой проект 503-4-40.86Типовой проект 503-4-40.86Типовой проект 503-4-40.86Типовой проект 503-4-40.86Типовой проект 503-4-40.86Типовой проект 503-4-40.86Типовой проект 503-4-40.86Типовой проект 503-4-40.86Типовой проект 503-4-40.86Типовой проект 503-4-40.86Типовой проект 503-4-40.86Типовой проект 503-4-40.86Типовой проект 503-4-40.86Типовой проект 503-4-40.86Типовой проект 503-4-40.86