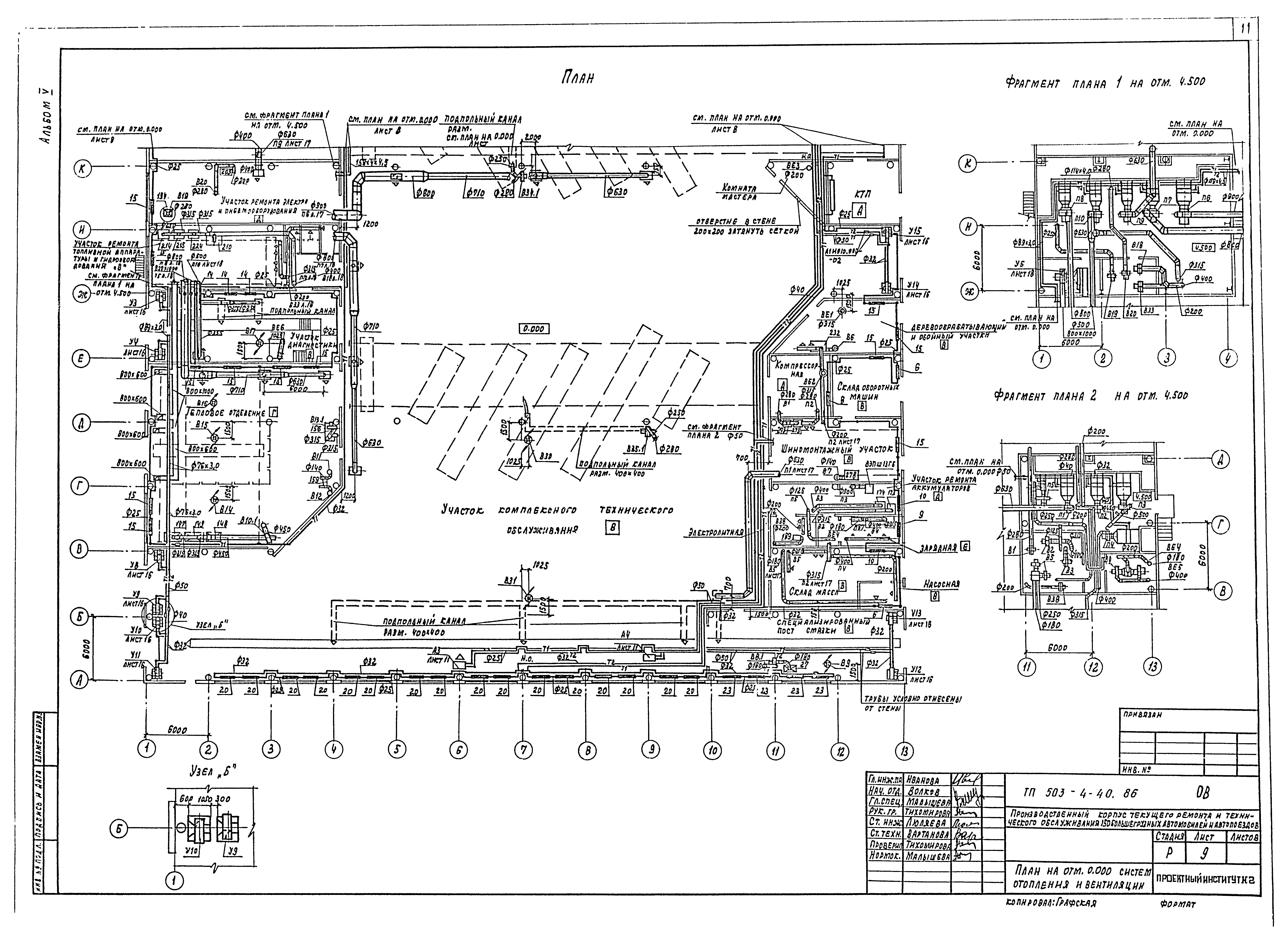
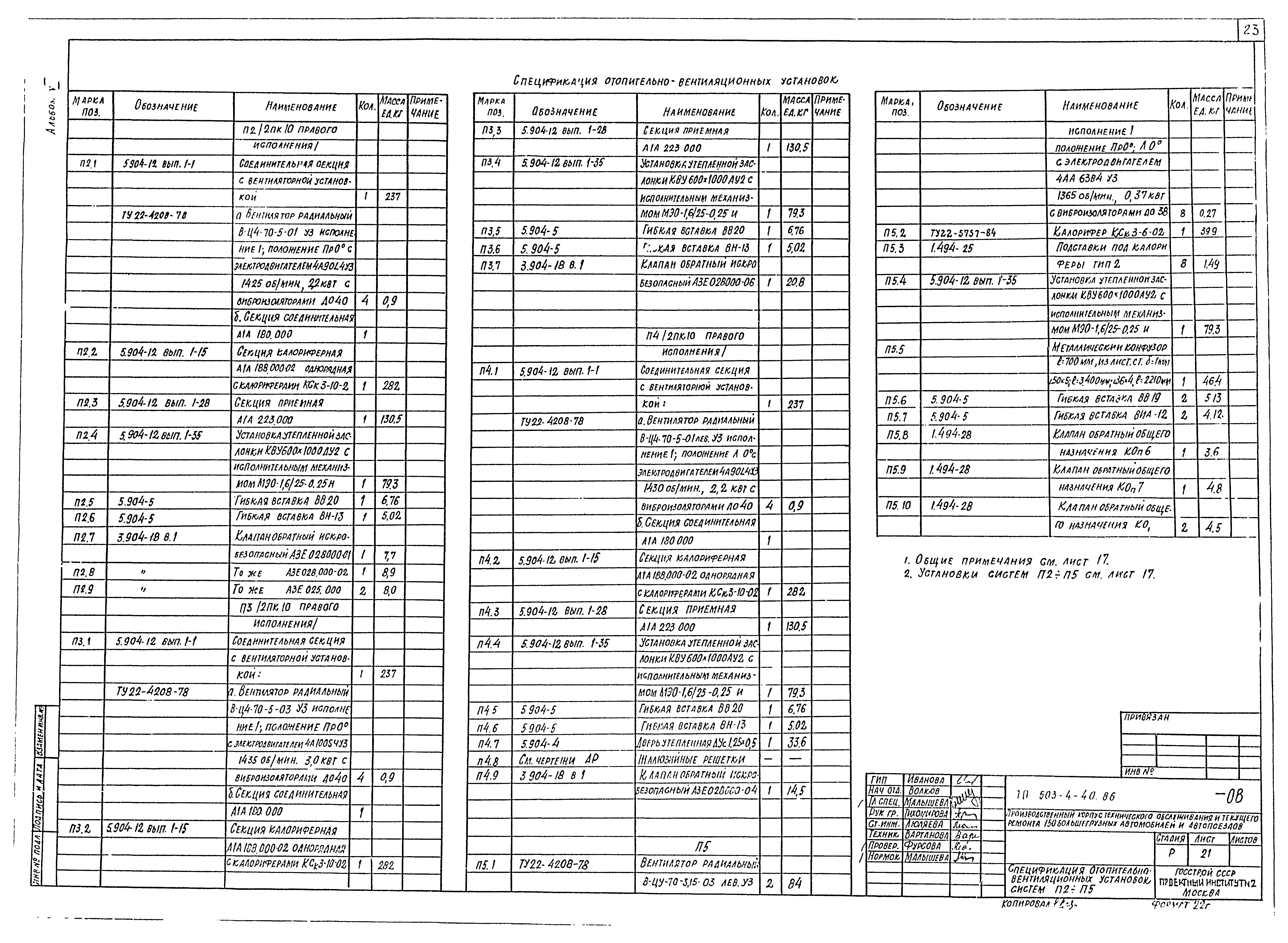
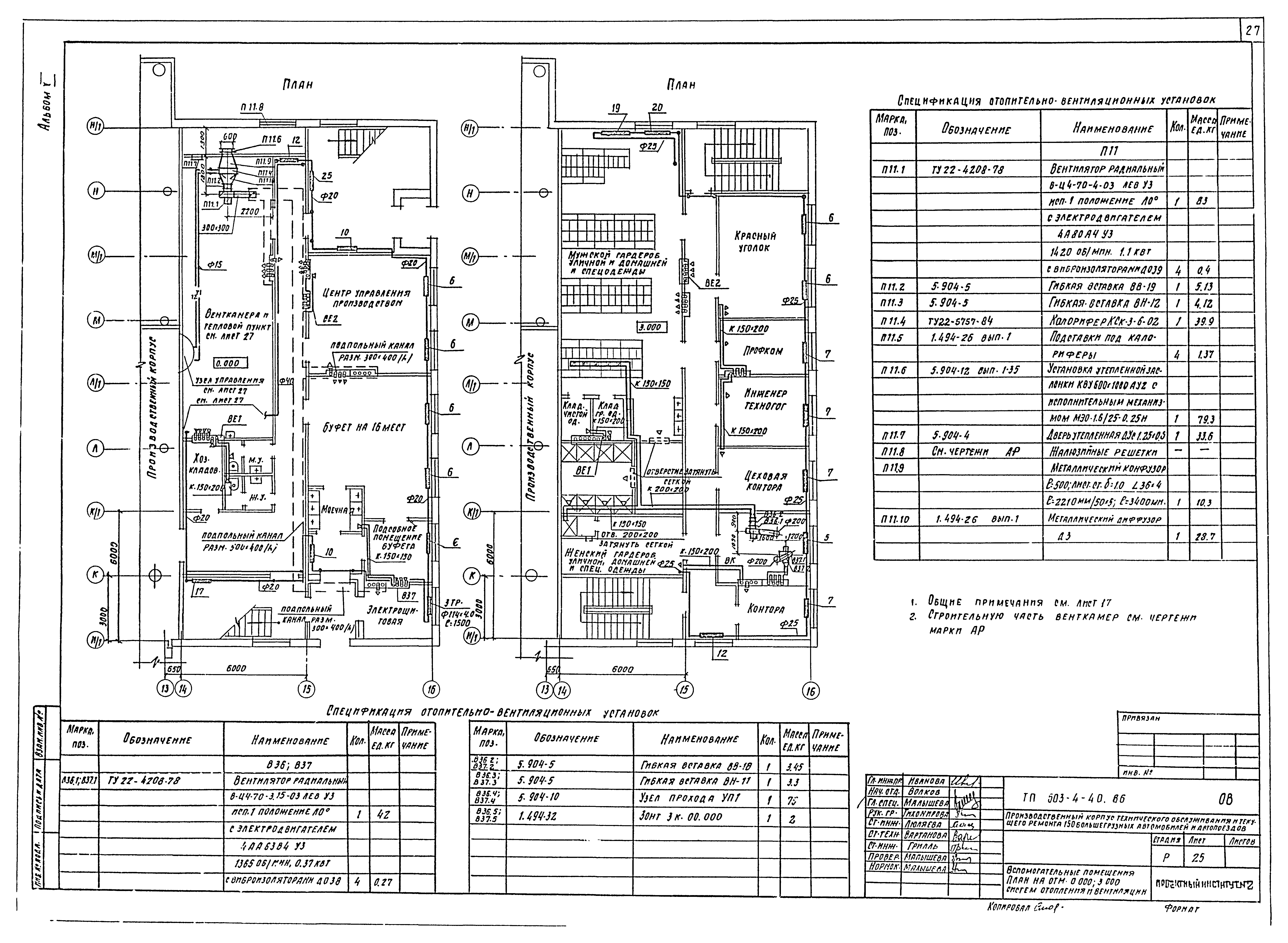
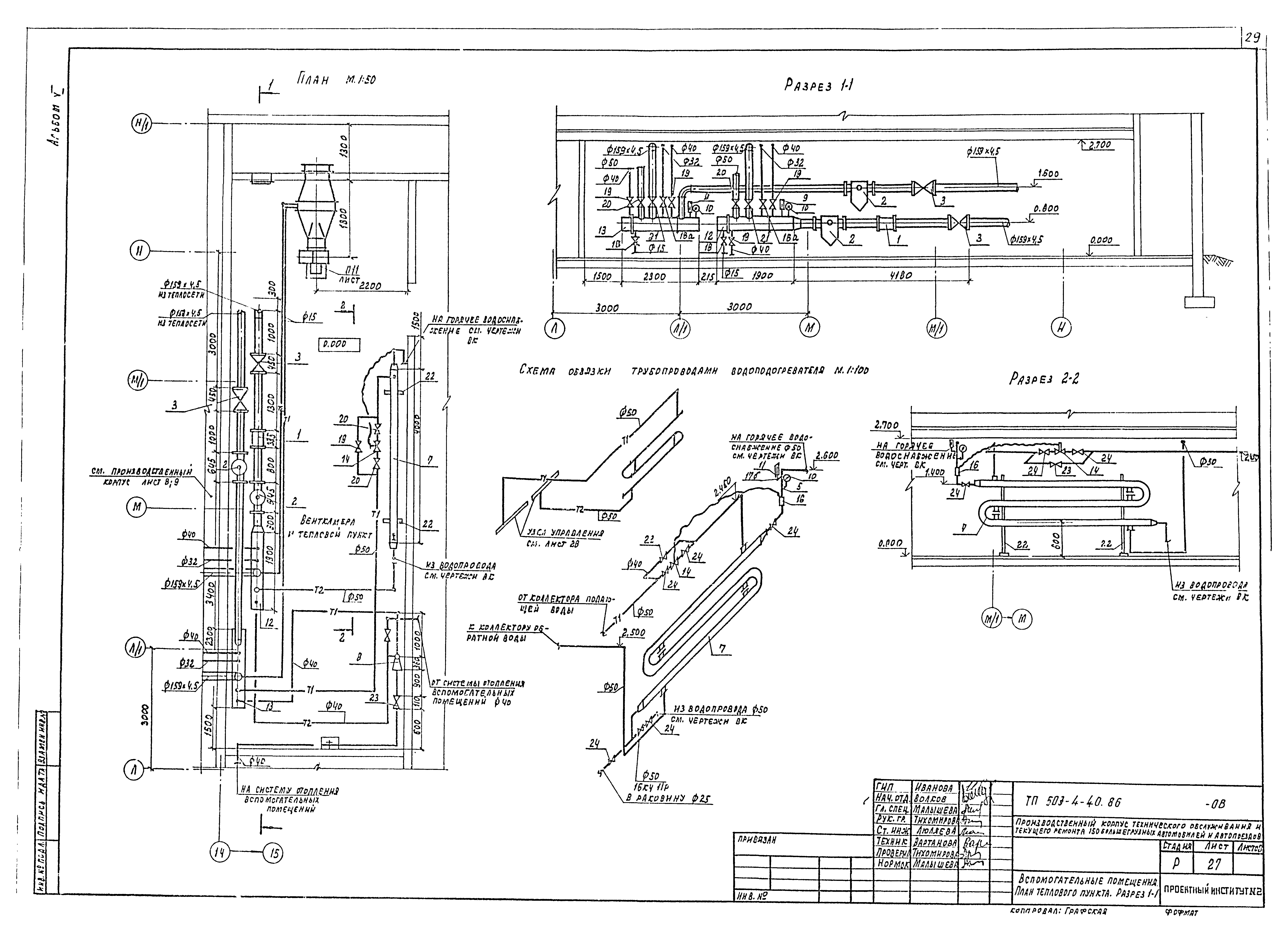
Скачать Типовой проект 503-4-40.86 Альбом V. Отопление и вентиляция. Внутренние водопровод и канализацияДата актуализации: 01.01.2021
|
| Обозначение: | Типовой проект 503-4-40.86 |
| Обозначение англ: | 503-4-40.86 |
| Статус: | не определен законодательством |
| Название рус.: | Альбом V. Отопление и вентиляция. Внутренние водопровод и канализация |
| Дата добавления в базу: | 01.02.2017 |
| Дата актуализации: | 01.01.2021 |
| Дата введения: | 23.01.1986 |
| Дата окончания срока действия: | 30.06.2003 |
| Разработан: | Проектный институт №2 |
| Утверждён: | 15.01.1986 Госстрой СССР (АЧ-1) |
| Издан: | ЦИТП Госстроя СССР (CITP, Gosstroy (USSR) 1987 г. ) |













































