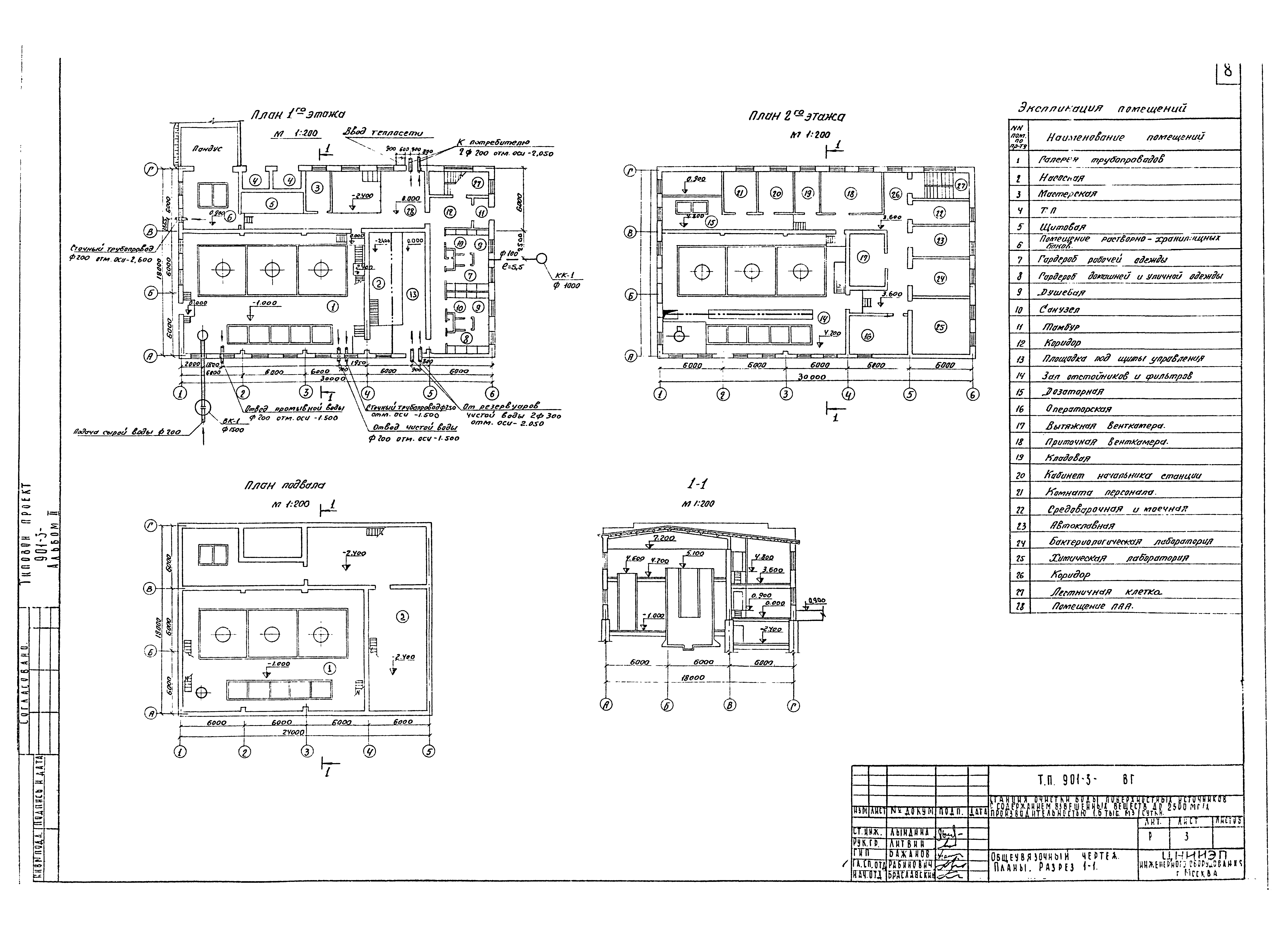
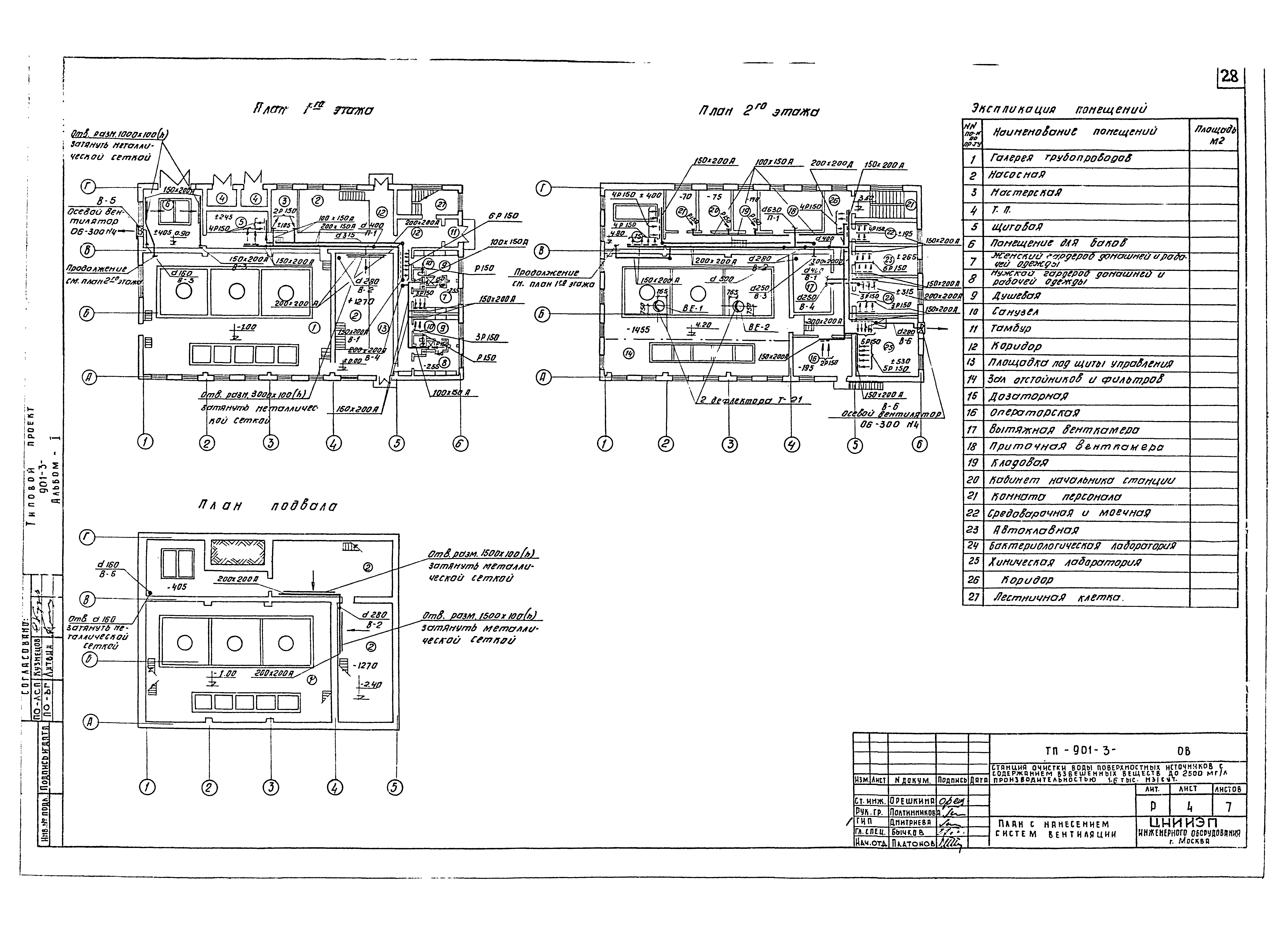
Скачать Типовой проект 901-3-91 Альбом II. Технологическая и санитарно-техническая частиДата актуализации: 01.01.2021
|
| Обозначение: | Типовой проект 901-3-91 |
| Обозначение англ: | 901-3-91 |
| Статус: | не определен законодательством |
| Название рус.: | Альбом II. Технологическая и санитарно-техническая части |
| Дата добавления в базу: | 01.02.2017 |
| Дата актуализации: | 01.01.2021 |
| Дата введения: | 30.08.1976 |
| Дата окончания срока действия: | 30.06.2003 |
| Разработан: | ЦНИИЭП инженерного оборудования |
| Утверждён: | 31.07.1975 Госгражданстрой (Gosgrazhdanstroy 163) |
| Издан: | ЦИТП Госстроя СССР (CITP, Gosstroy (USSR) 1977 г. ) |
| Заменяет собой: |
|































