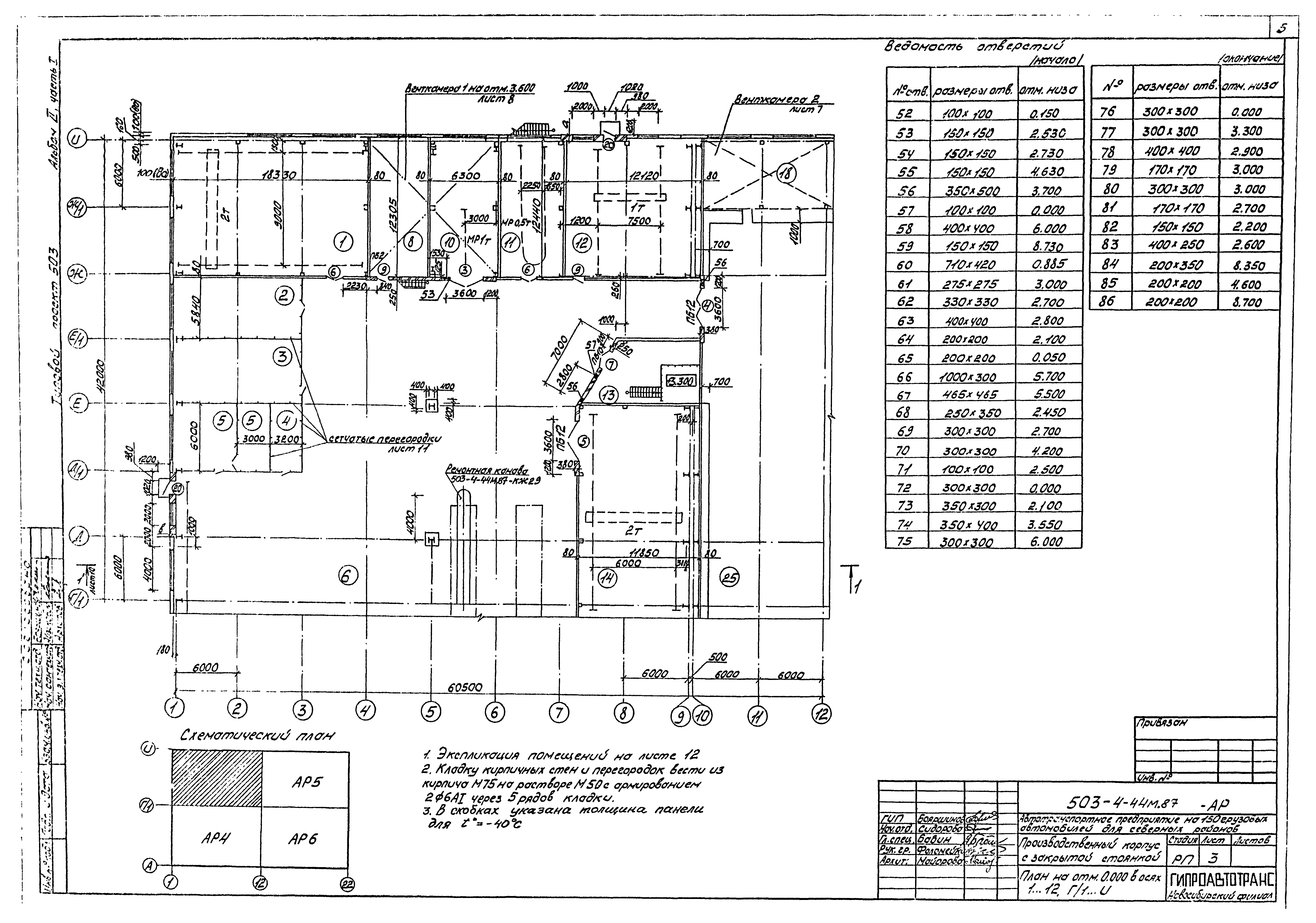
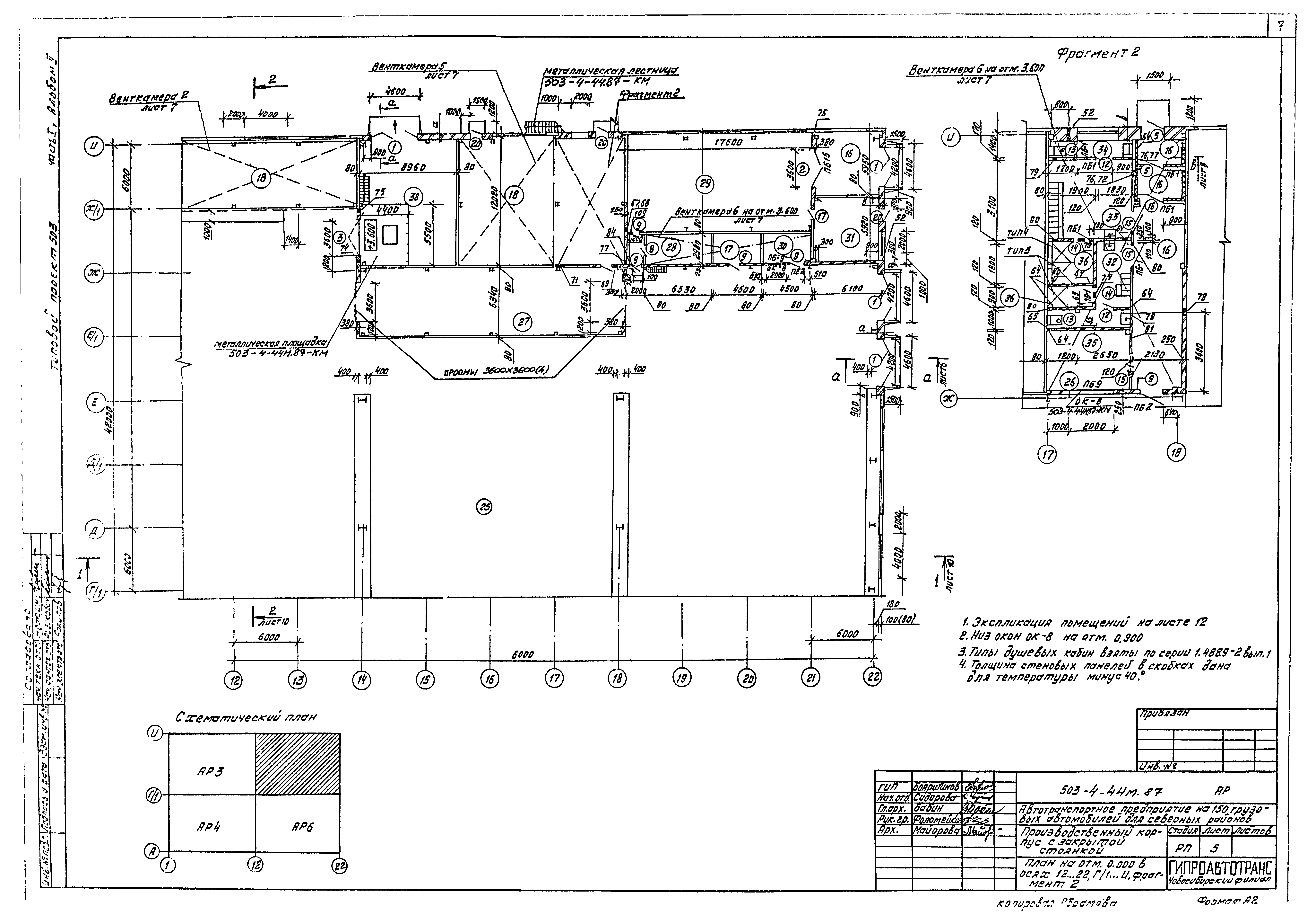
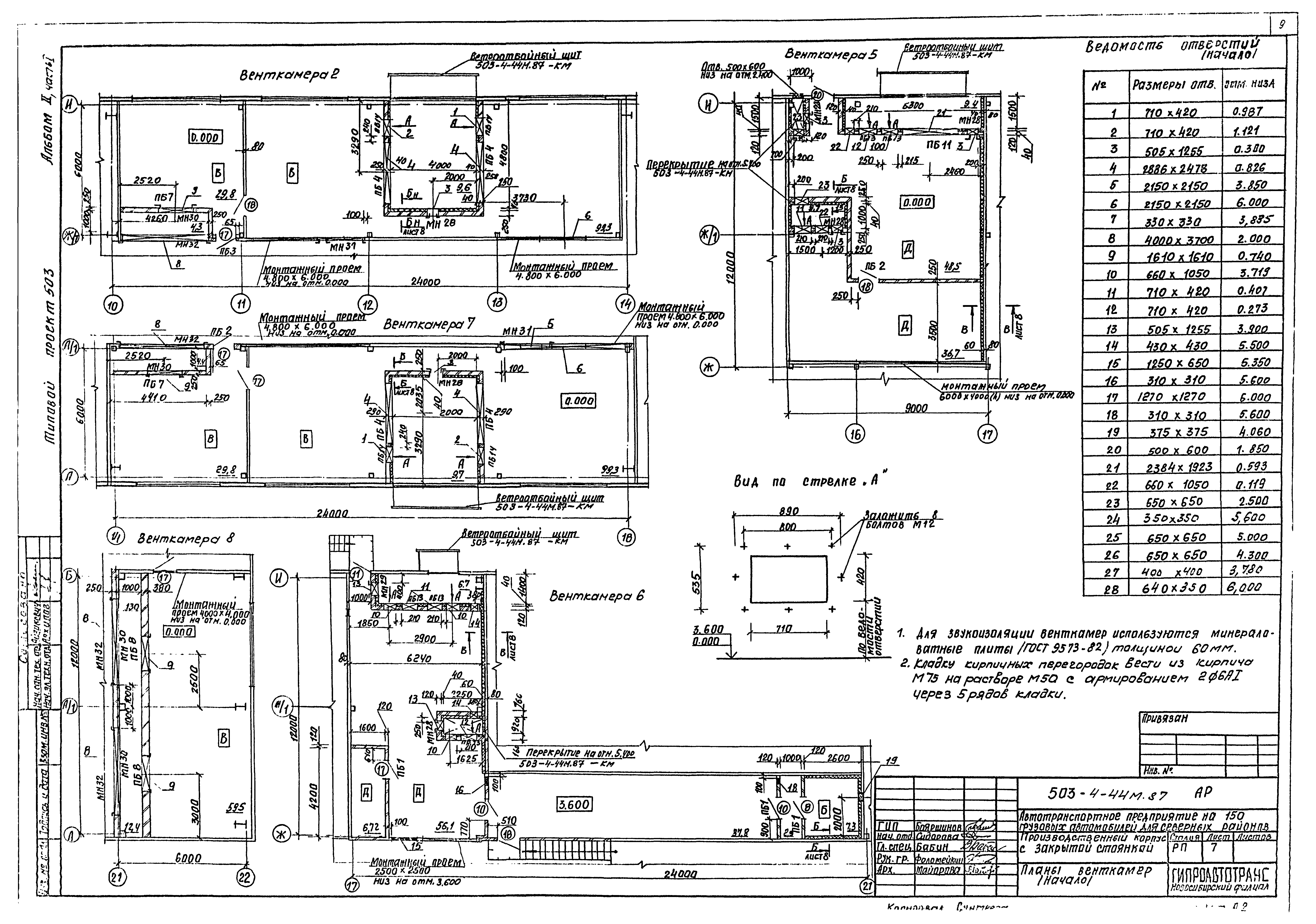
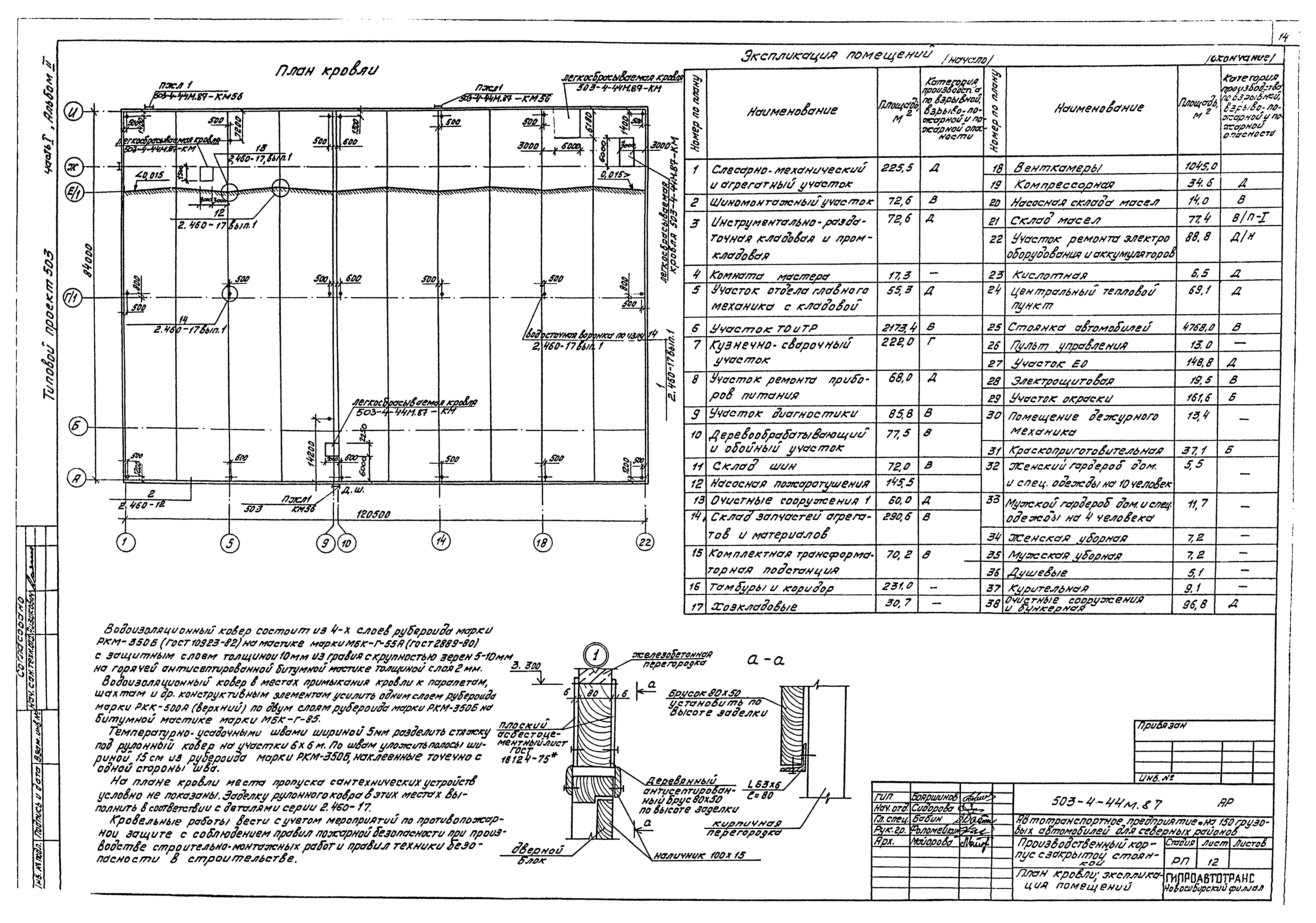
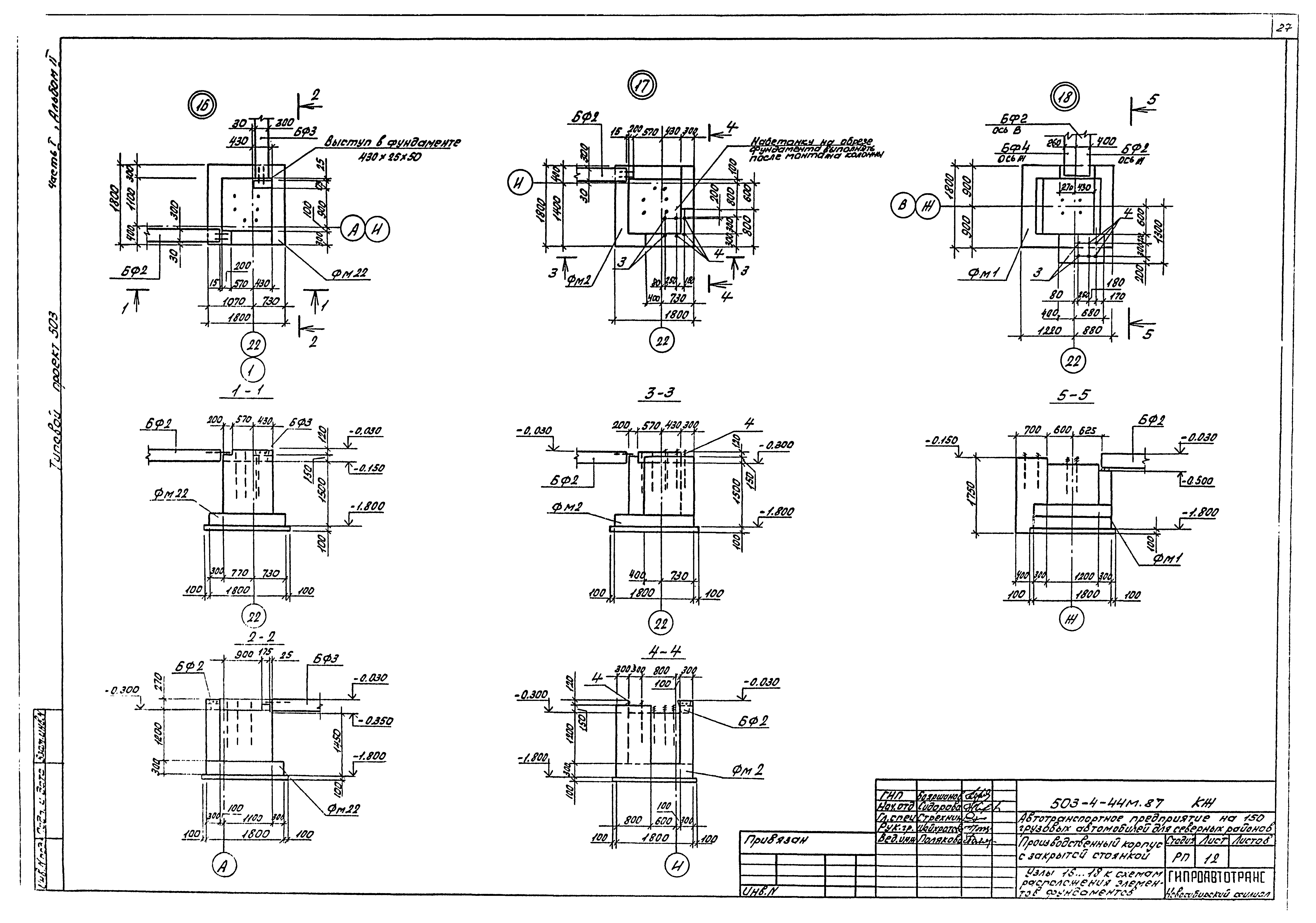
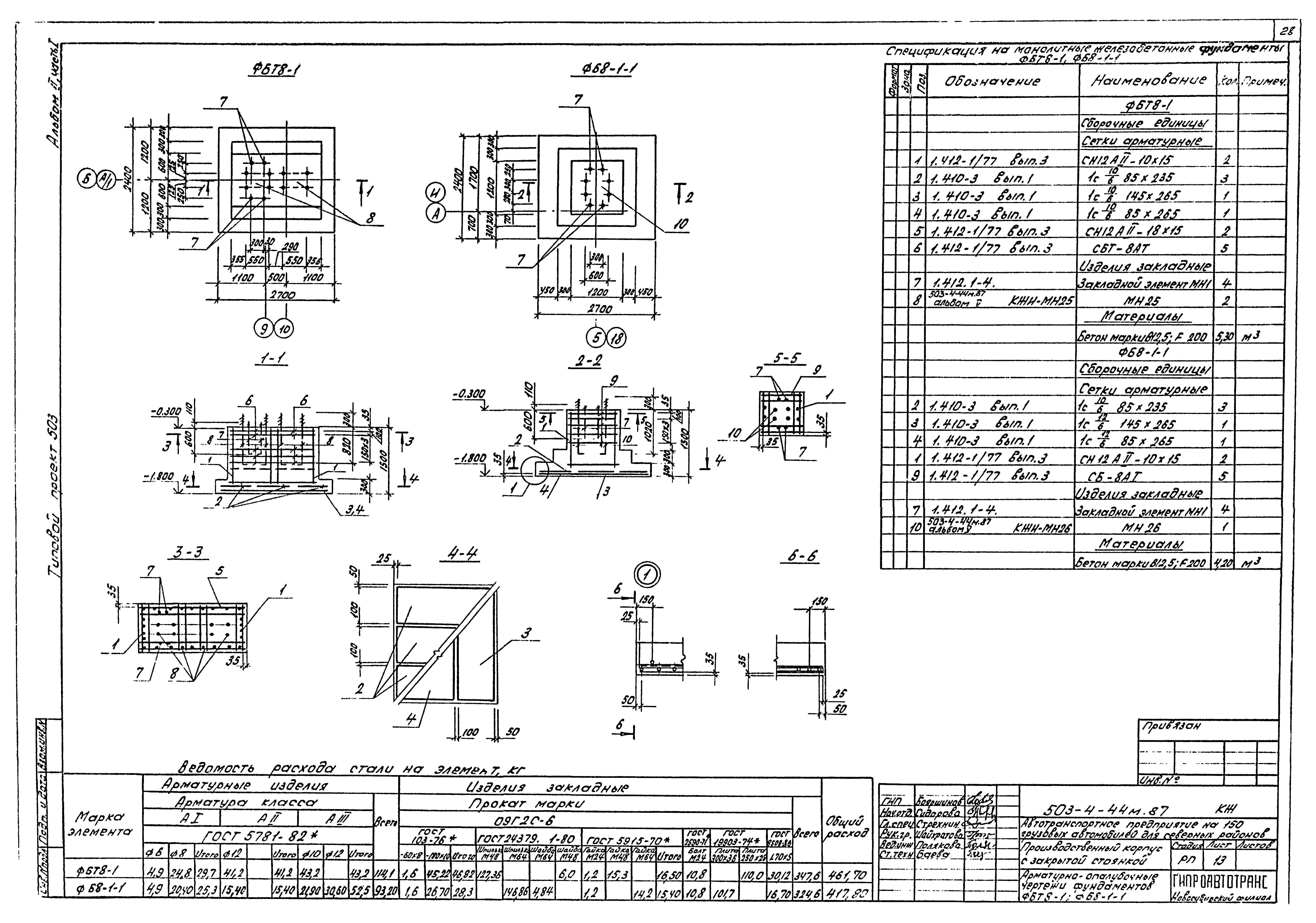
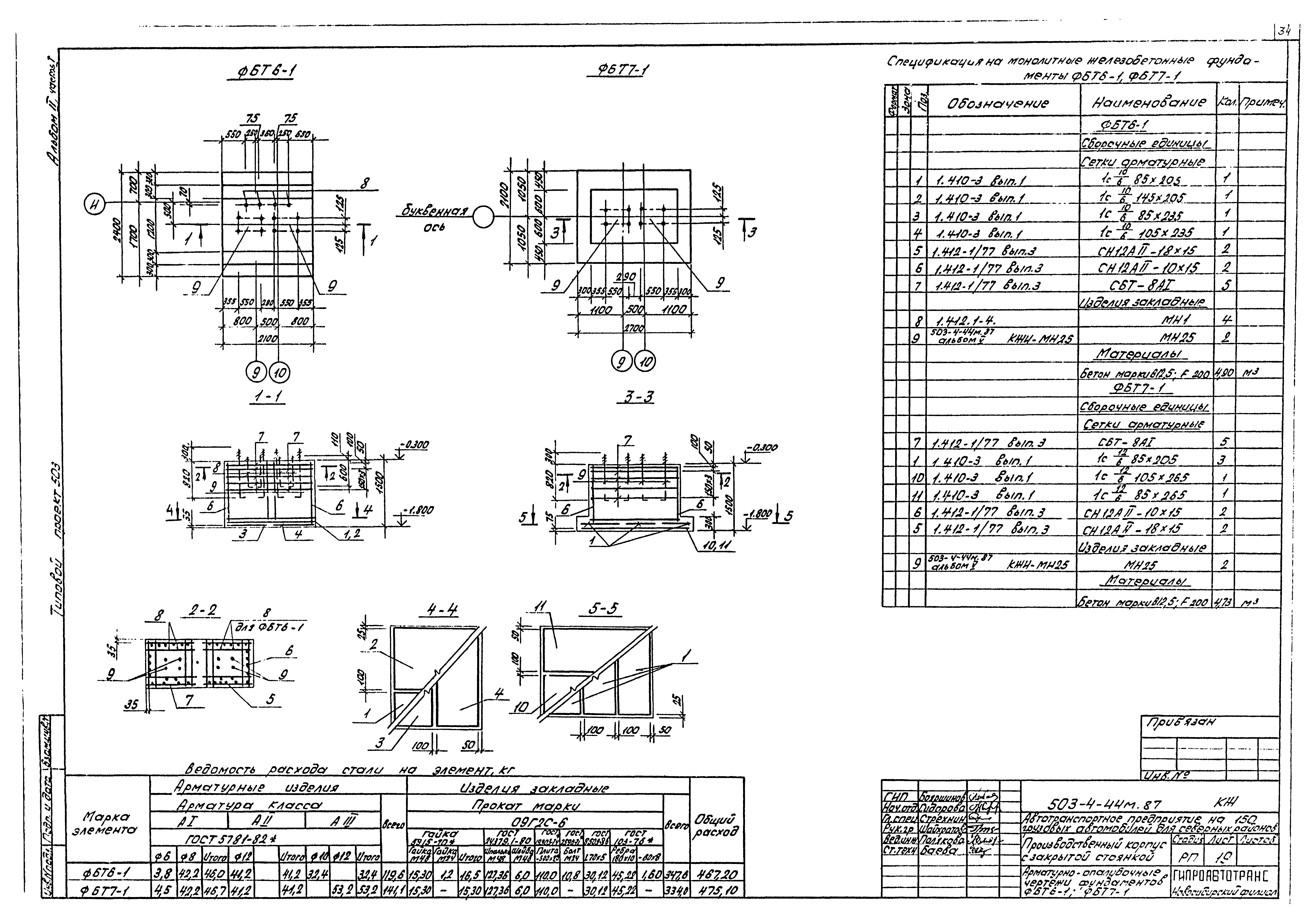
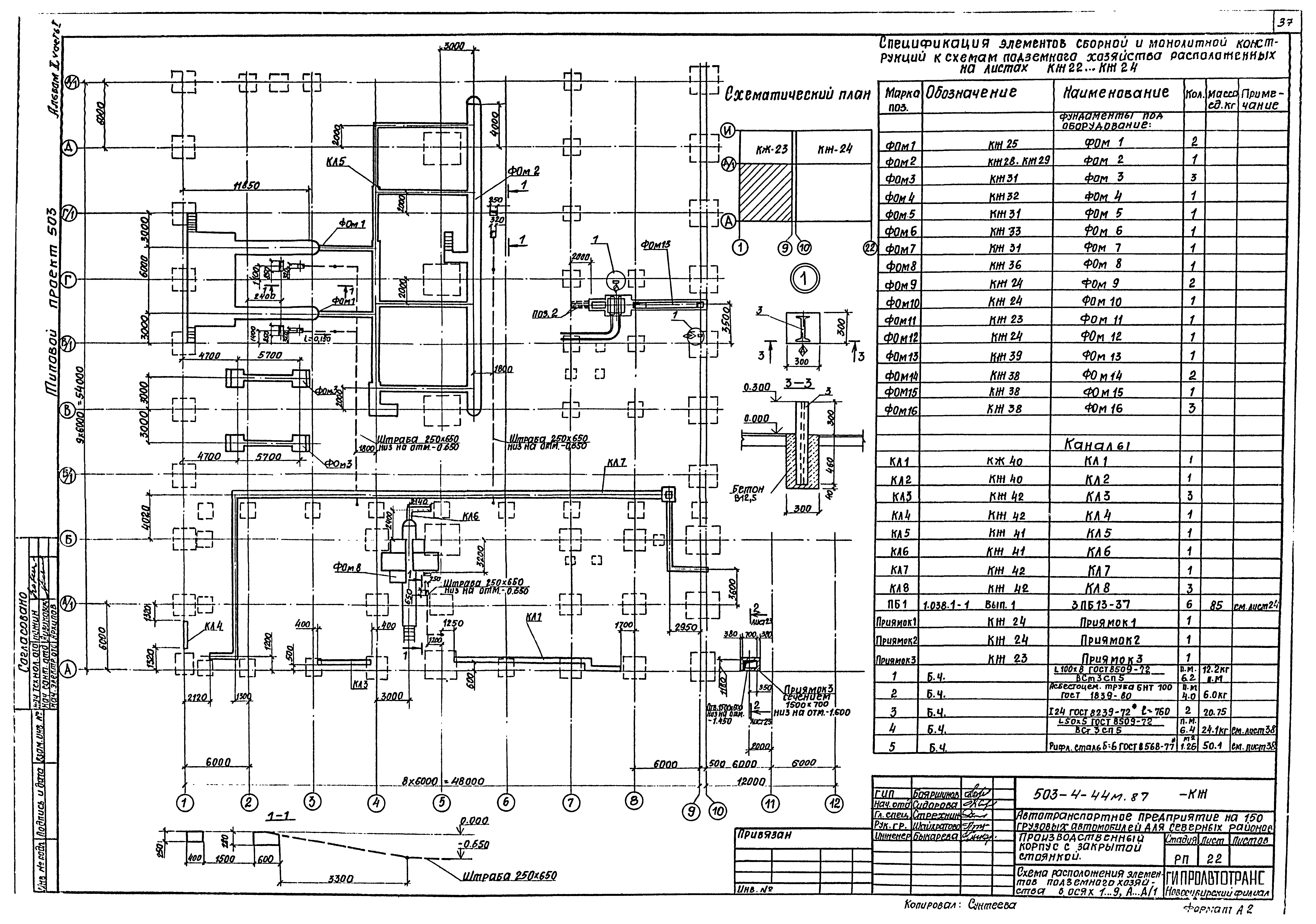
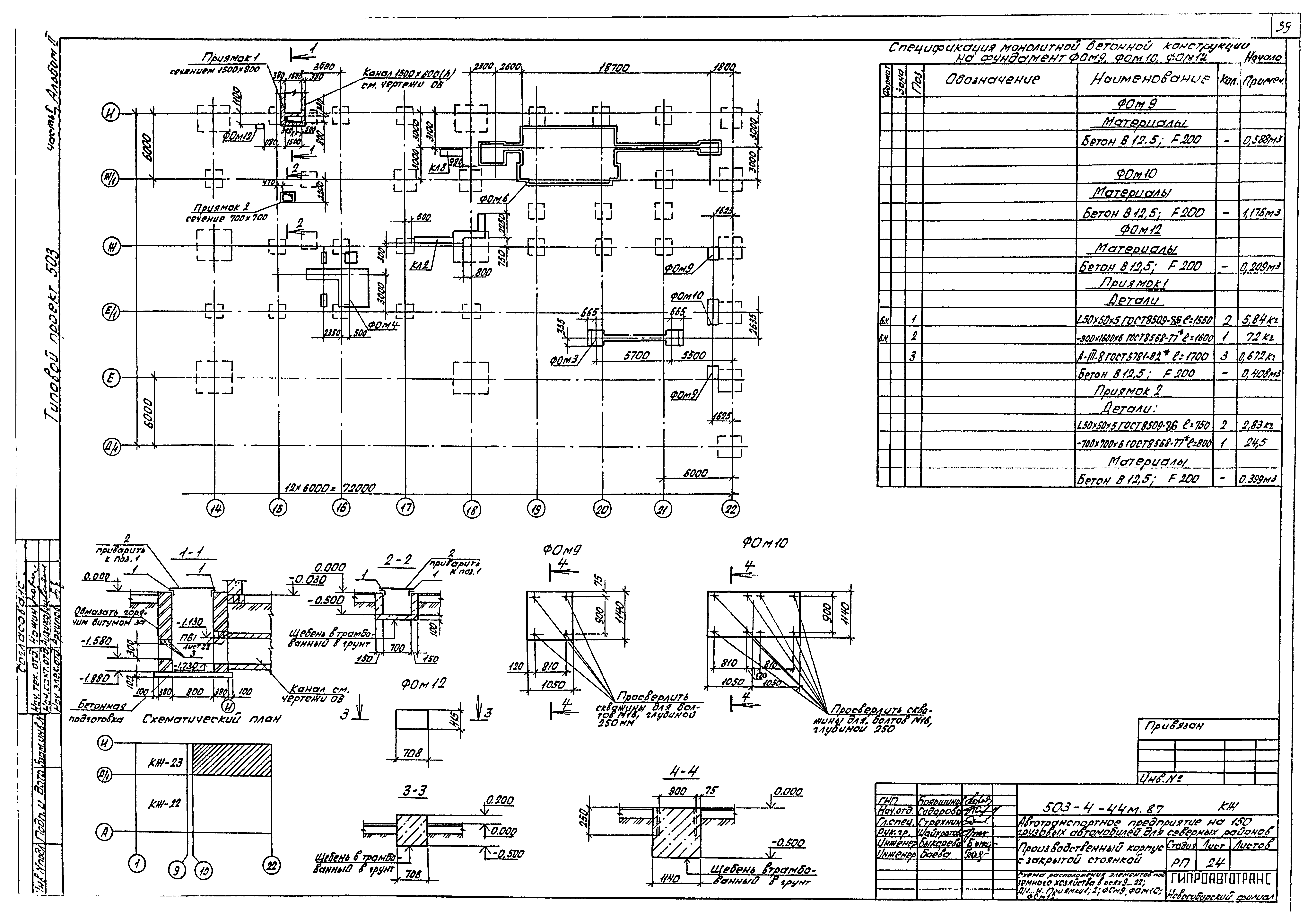
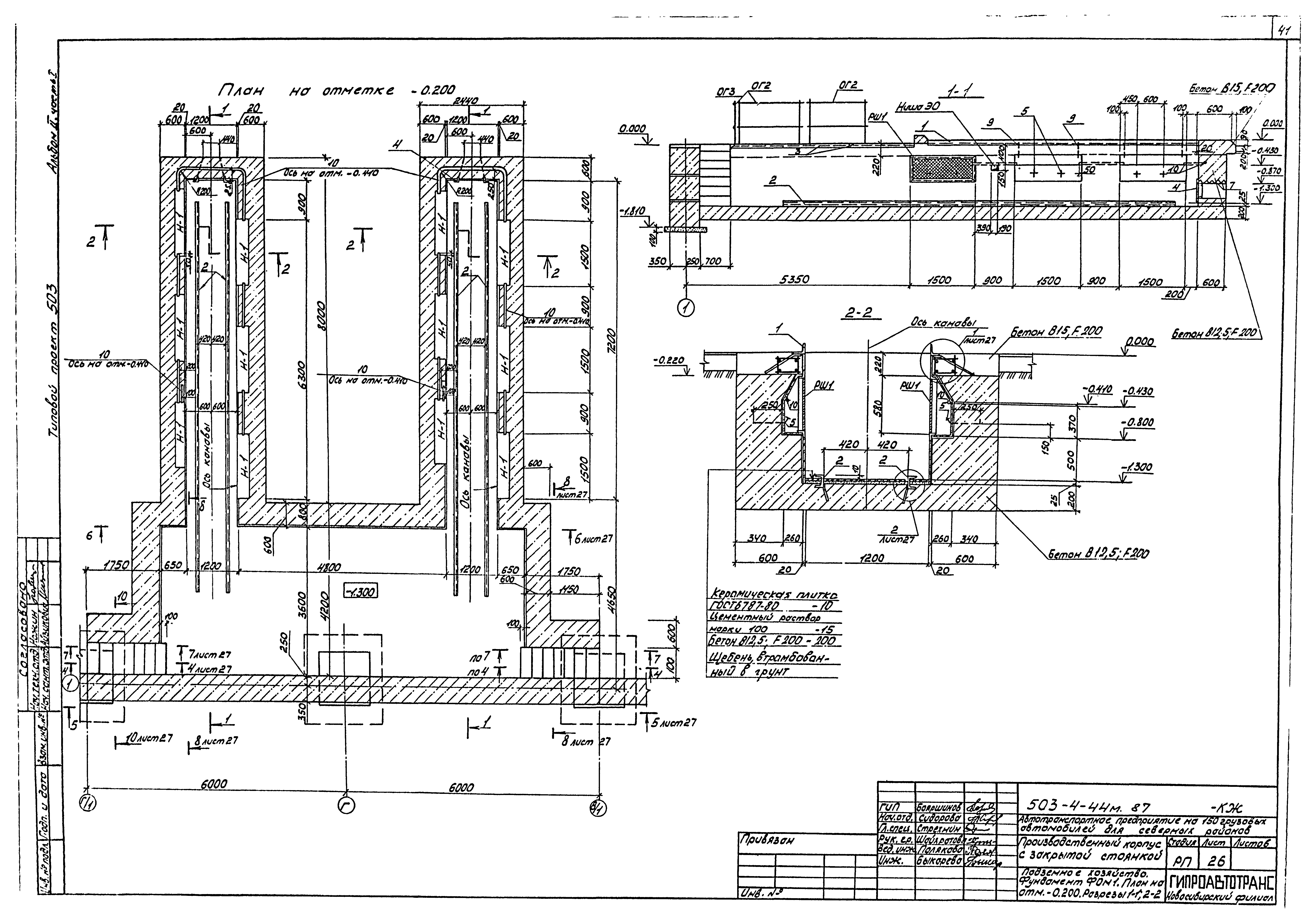
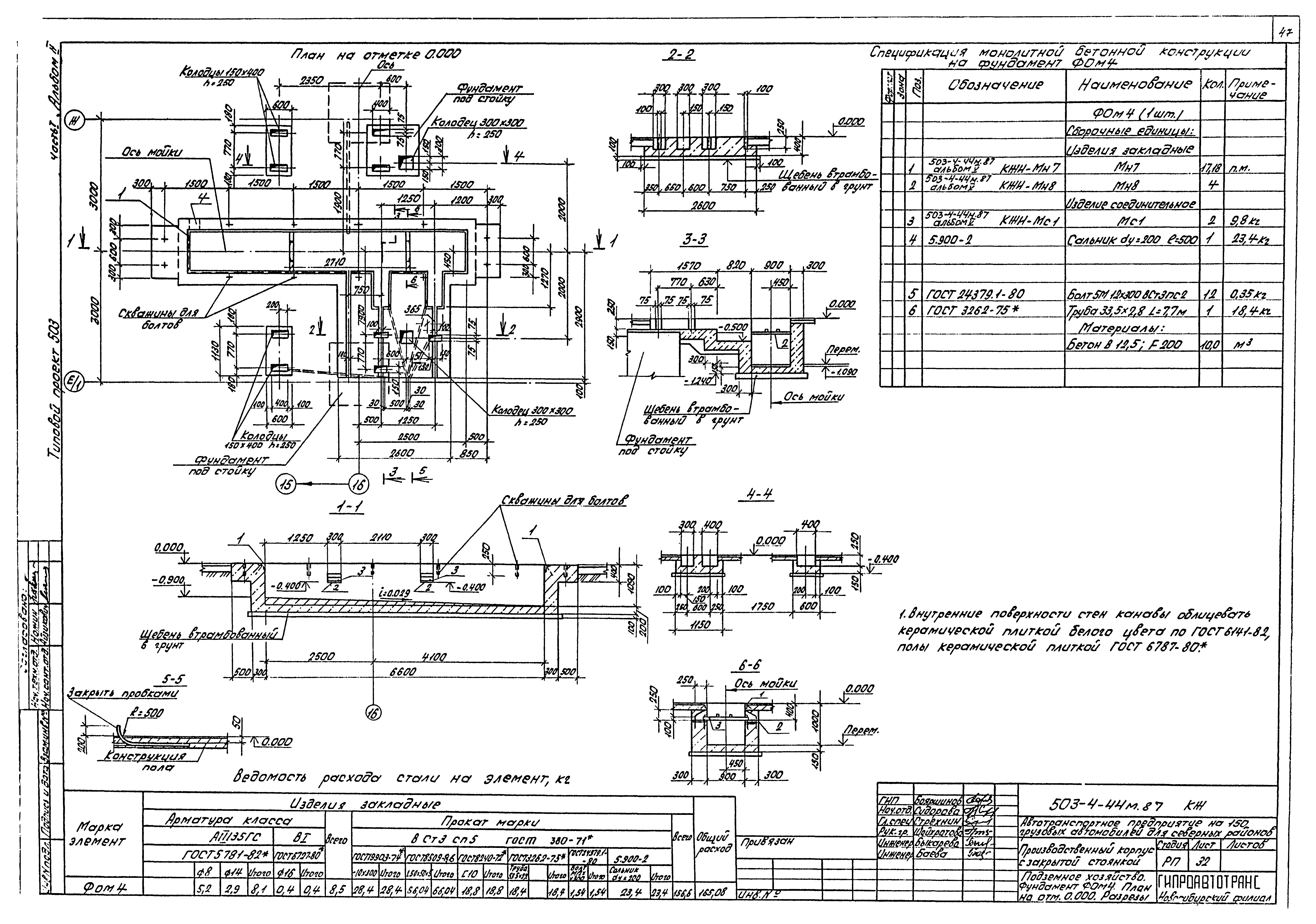
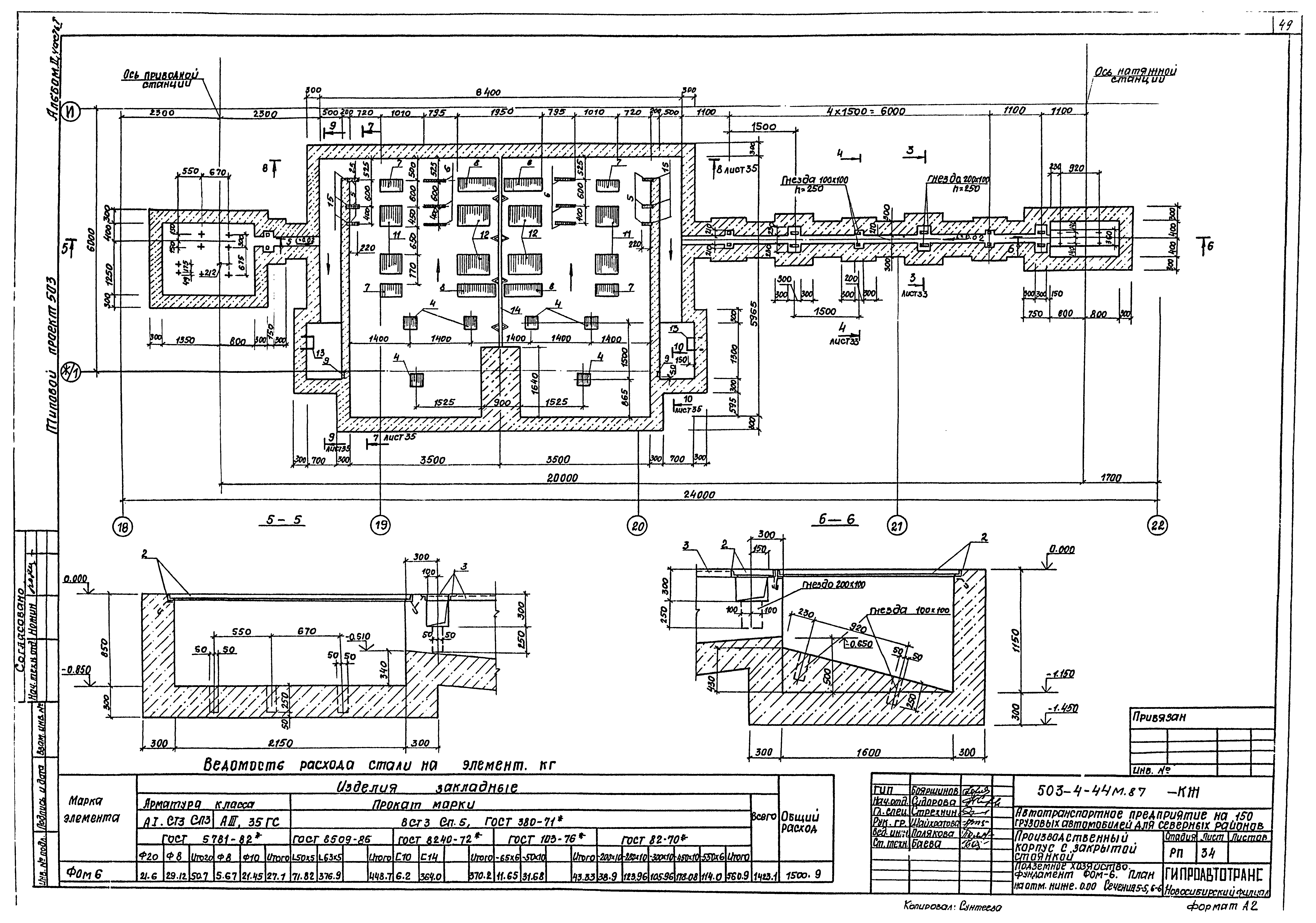
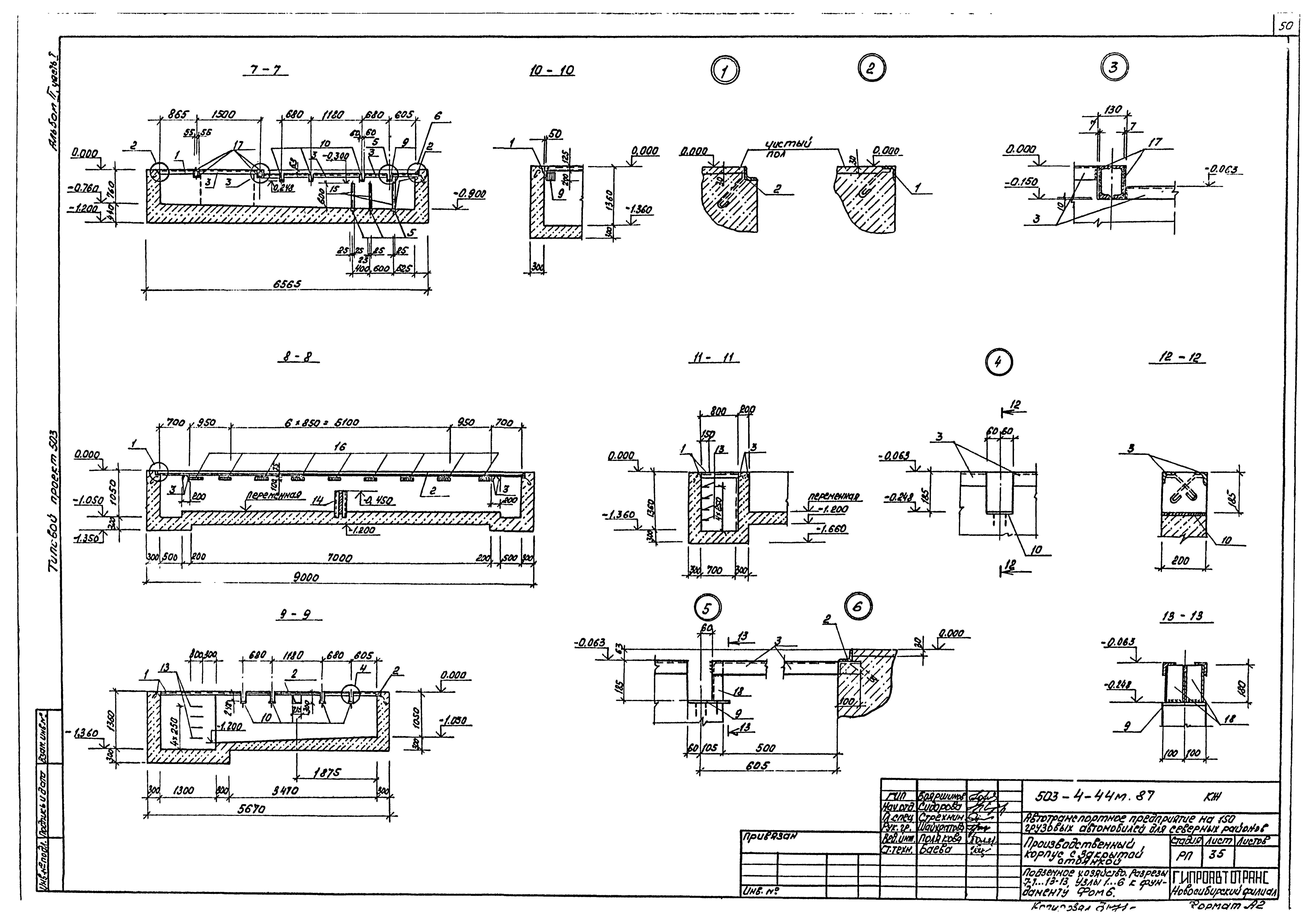
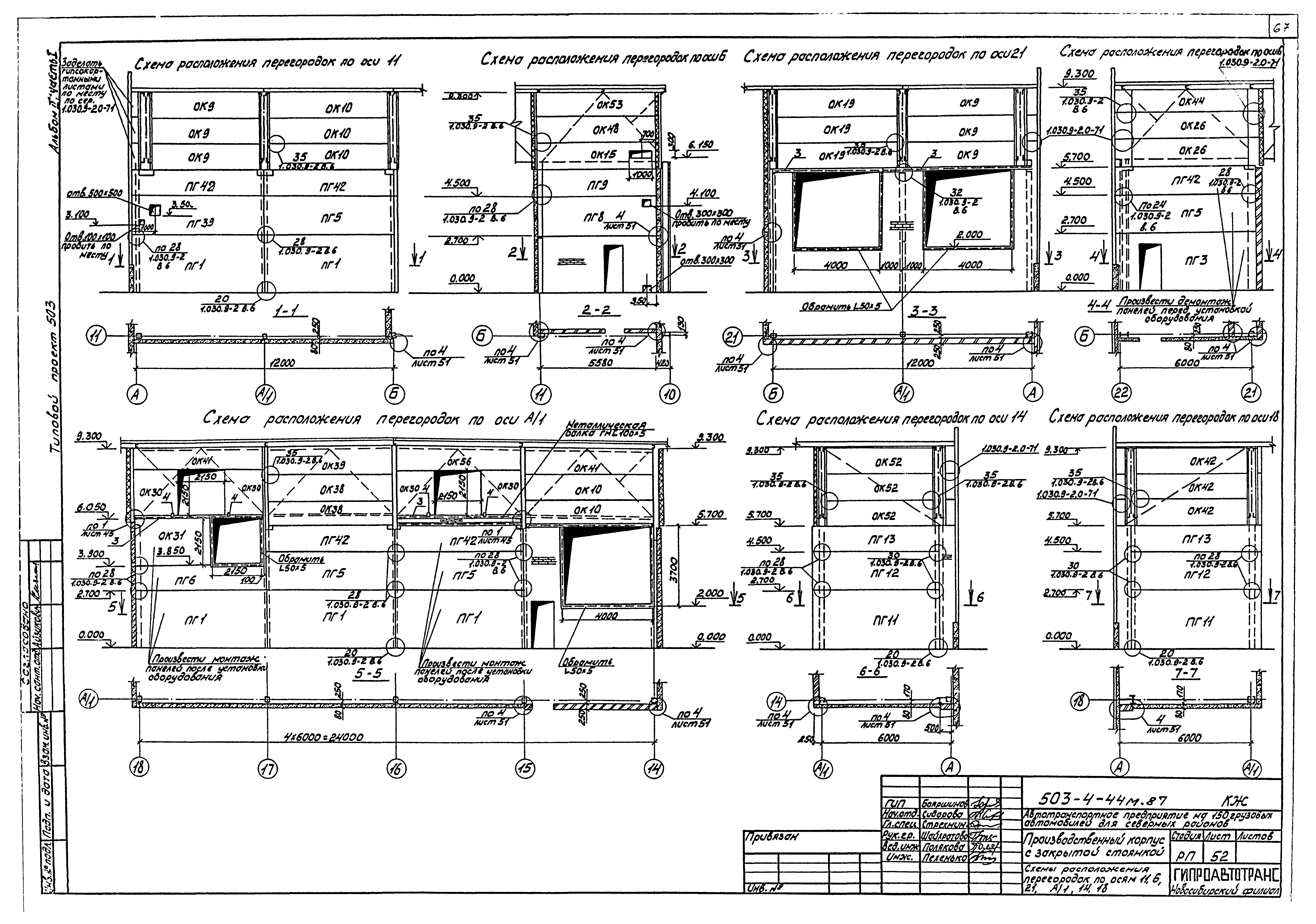
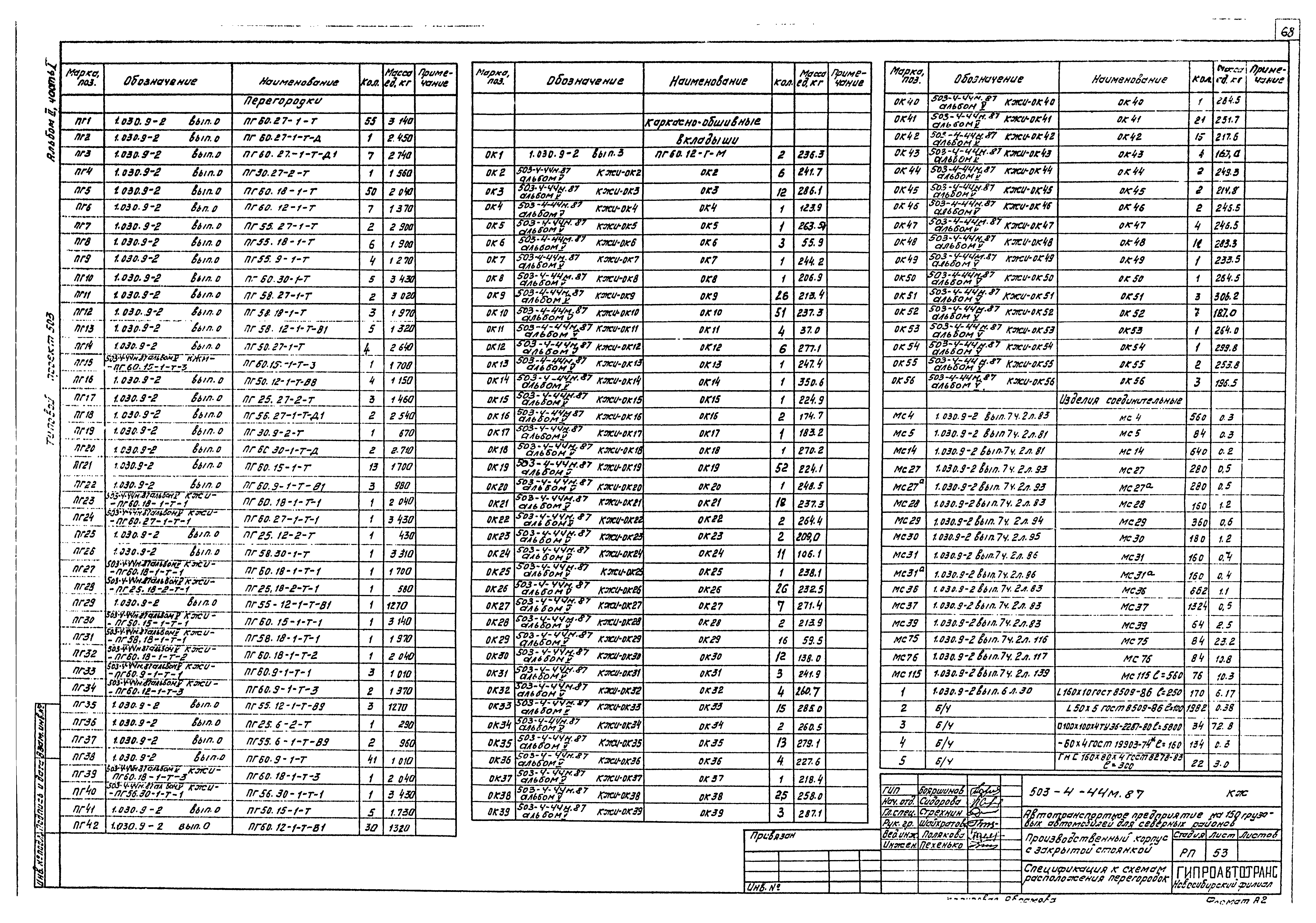
Скачать Типовой проект 503-4-44м.87 Альбом II. Часть I. Архитектурные решения, конструкции железобетонныеДата актуализации: 01.01.2021
|
| Обозначение: | Типовой проект 503-4-44м.87 |
| Обозначение англ: | 503-4-44м.87 |
| Статус: | не определен законодательством |
| Название рус.: | Альбом II. Часть I. Архитектурные решения, конструкции железобетонные |
| Дата добавления в базу: | 01.02.2017 |
| Дата актуализации: | 01.01.2021 |
| Дата введения: | 30.12.1986 |
| Дата окончания срока действия: | 30.06.2003 |
| Разработан: | Новосибирский филиал Гипроавтотранса |
| Утверждён: | 30.12.1986 Минавтотранс РСФСР (Russian Federation Minavtotrans 24) |
| Издан: | ЦИТП Госстроя СССР (CITP, Gosstroy (USSR) 1988 г. ) |








































































