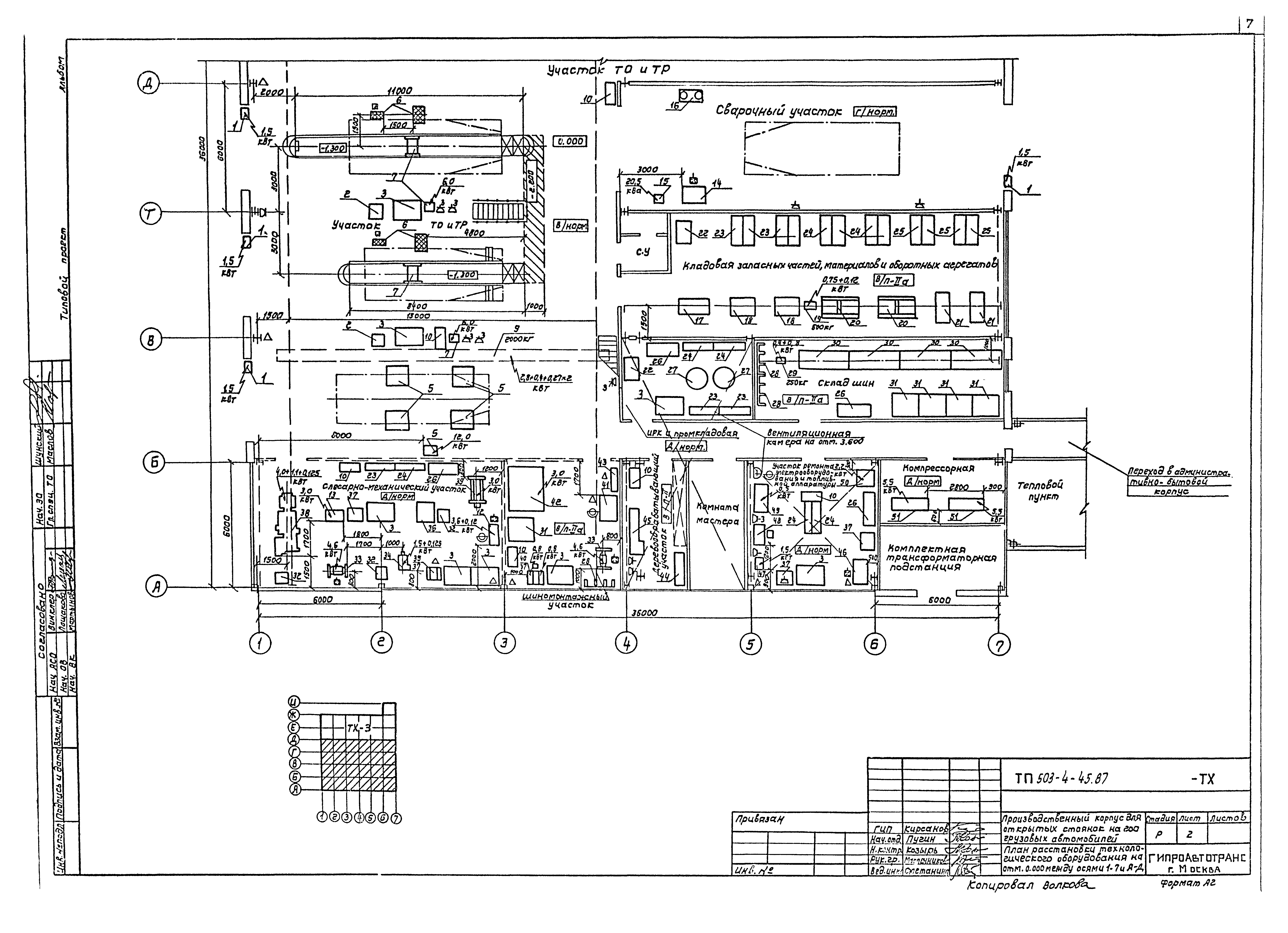
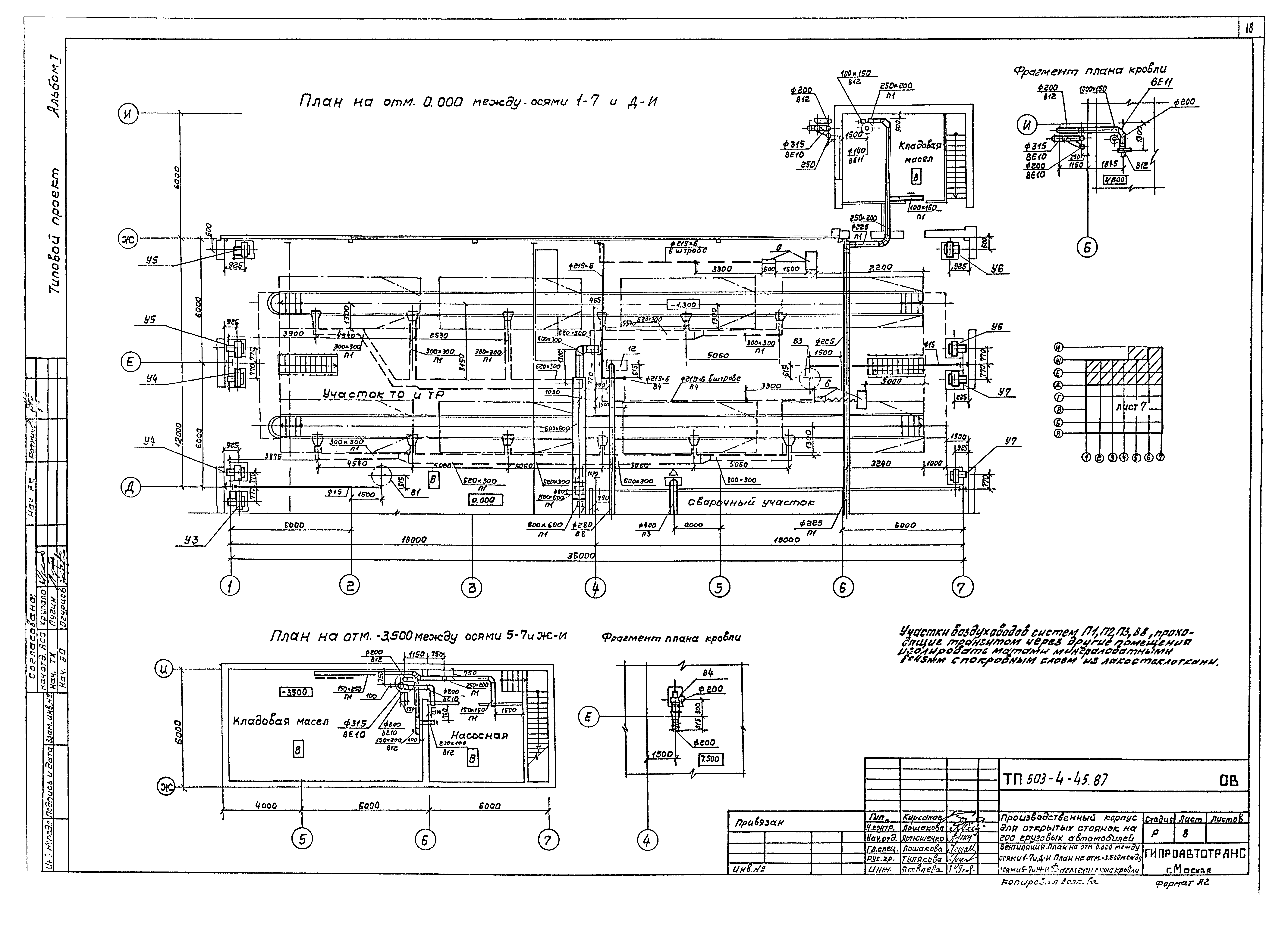
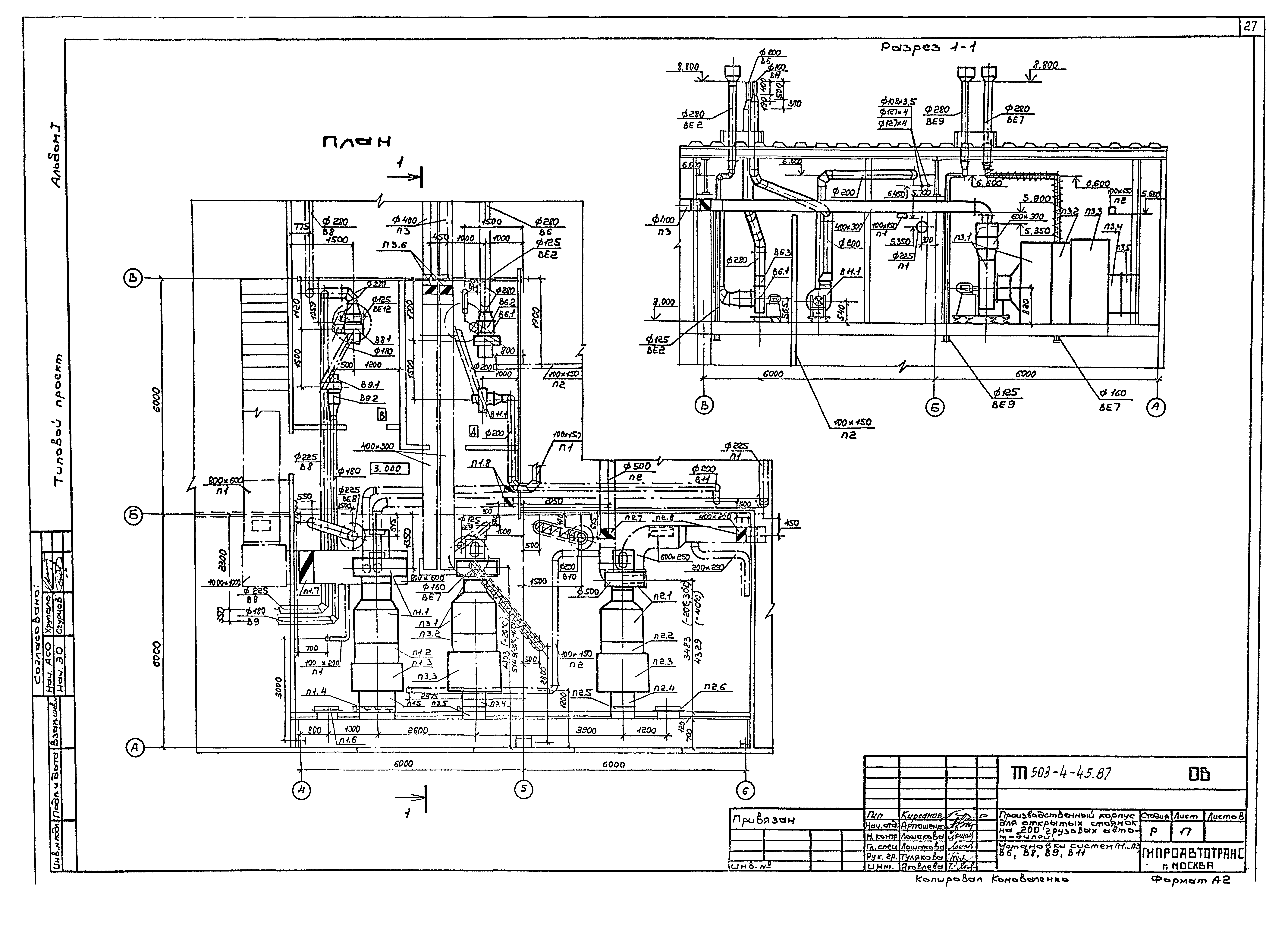
Скачать Типовой проект 503-4-45.87 Альбом I. Технология производства. Отопление и вентиляция. Внутренний водопровод и канализацияДата актуализации: 01.01.2021
|
| Обозначение: | Типовой проект 503-4-45.87 |
| Обозначение англ: | 503-4-45.87 |
| Статус: | не определен законодательством |
| Название рус.: | Альбом I. Технология производства. Отопление и вентиляция. Внутренний водопровод и канализация |
| Дата добавления в базу: | 01.02.2017 |
| Дата актуализации: | 01.01.2021 |
| Дата введения: | 04.10.1985 |
| Дата окончания срока действия: | 30.06.2003 |
| Разработан: | Гипроавтотранс |
| Утверждён: | 04.10.1985 Госкомсельхозтехника СССР (46-85) |
| Издан: | ЦИТП Госстроя СССР (CITP, Gosstroy (USSR) 1988 г. ) |
| Нормативные ссылки: |








































