Скачать Типовой проект 503-4-46.87 Альбом I. Пояснительная записка, технология производства, силовое электрооборудование, электрическое освещение, автоматизация санитарно-технических систем, связь и сигнализация, архитектурные решенияДата актуализации: 01.01.2021 Типовой проект 503-4-46.87
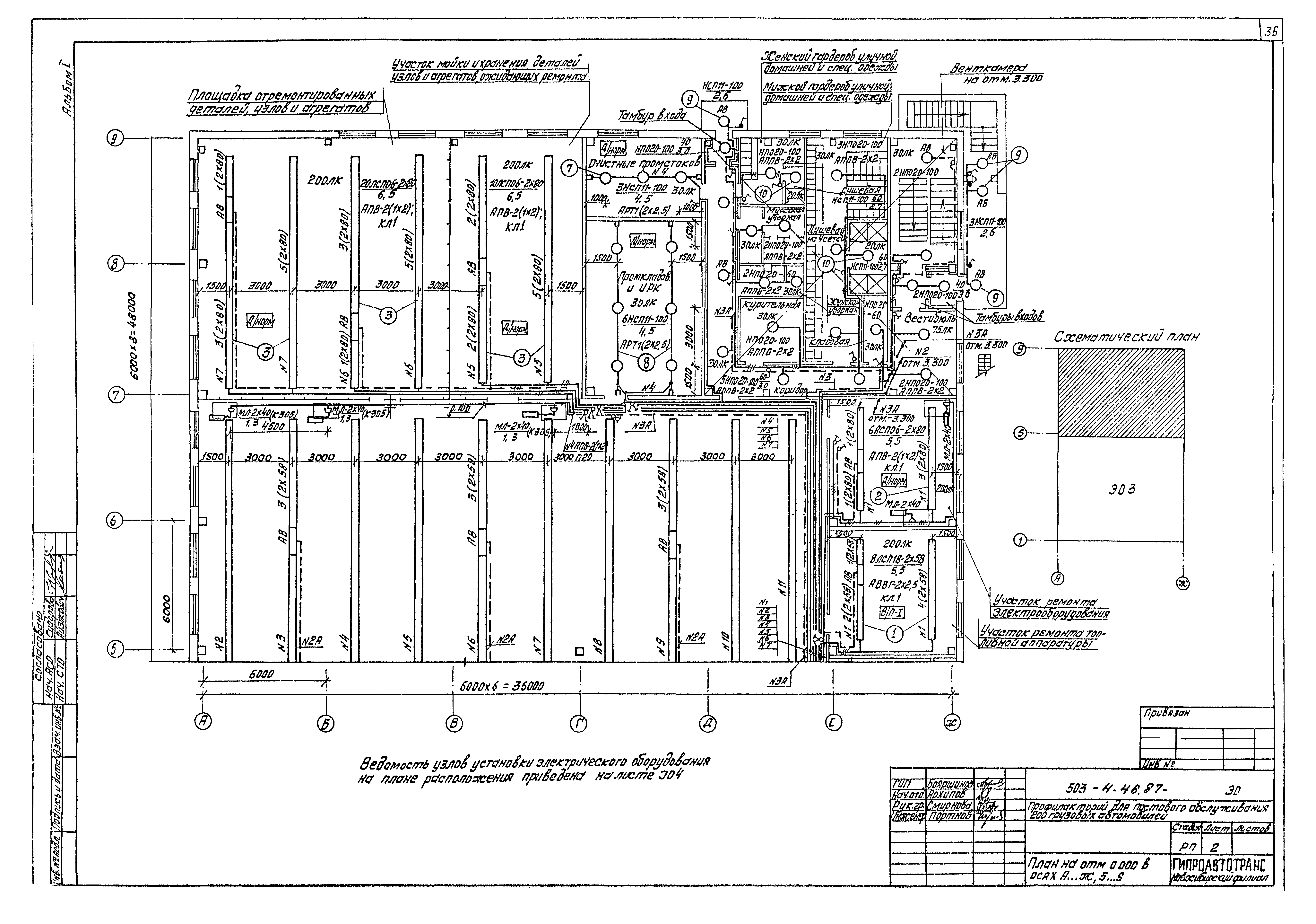
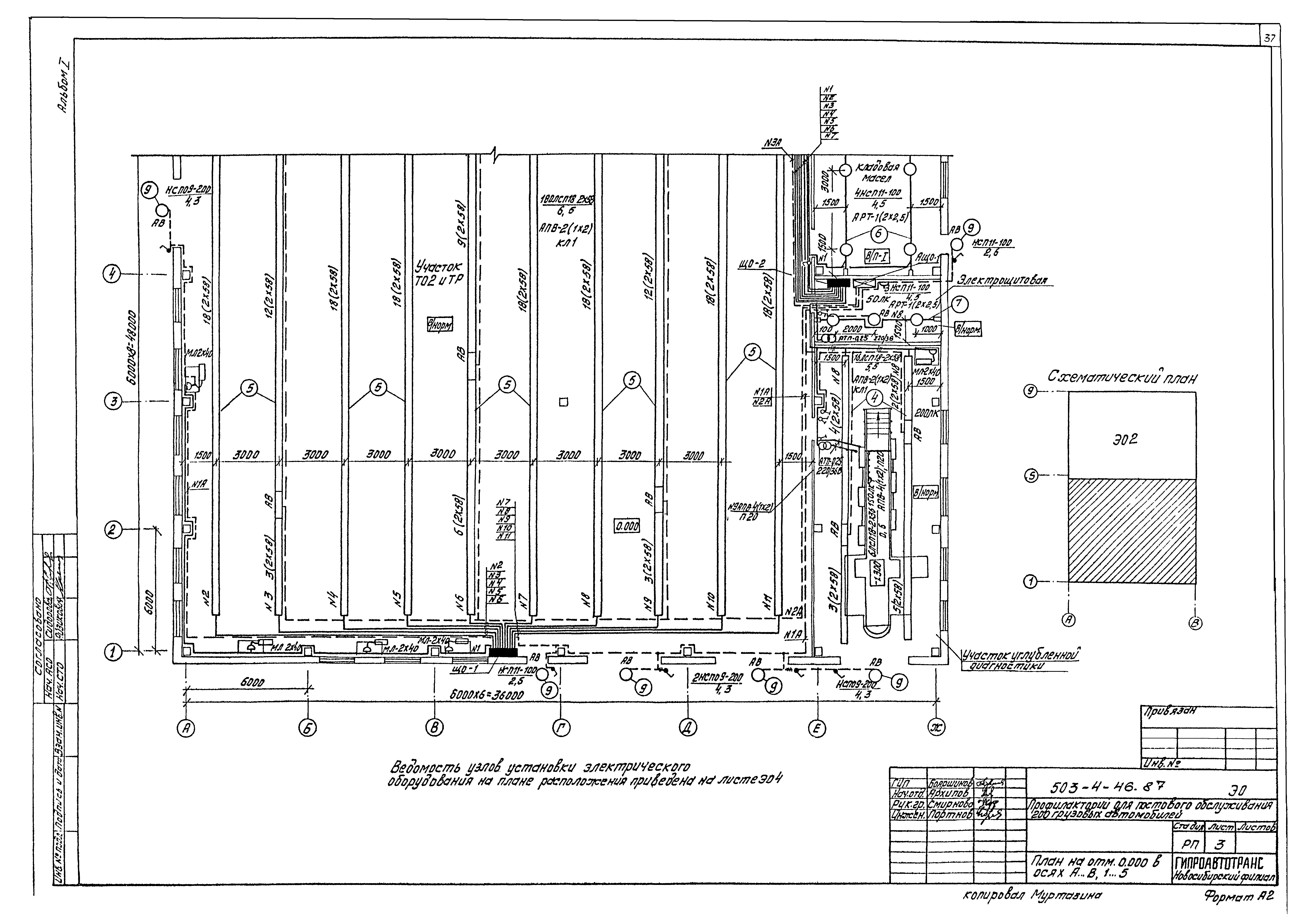
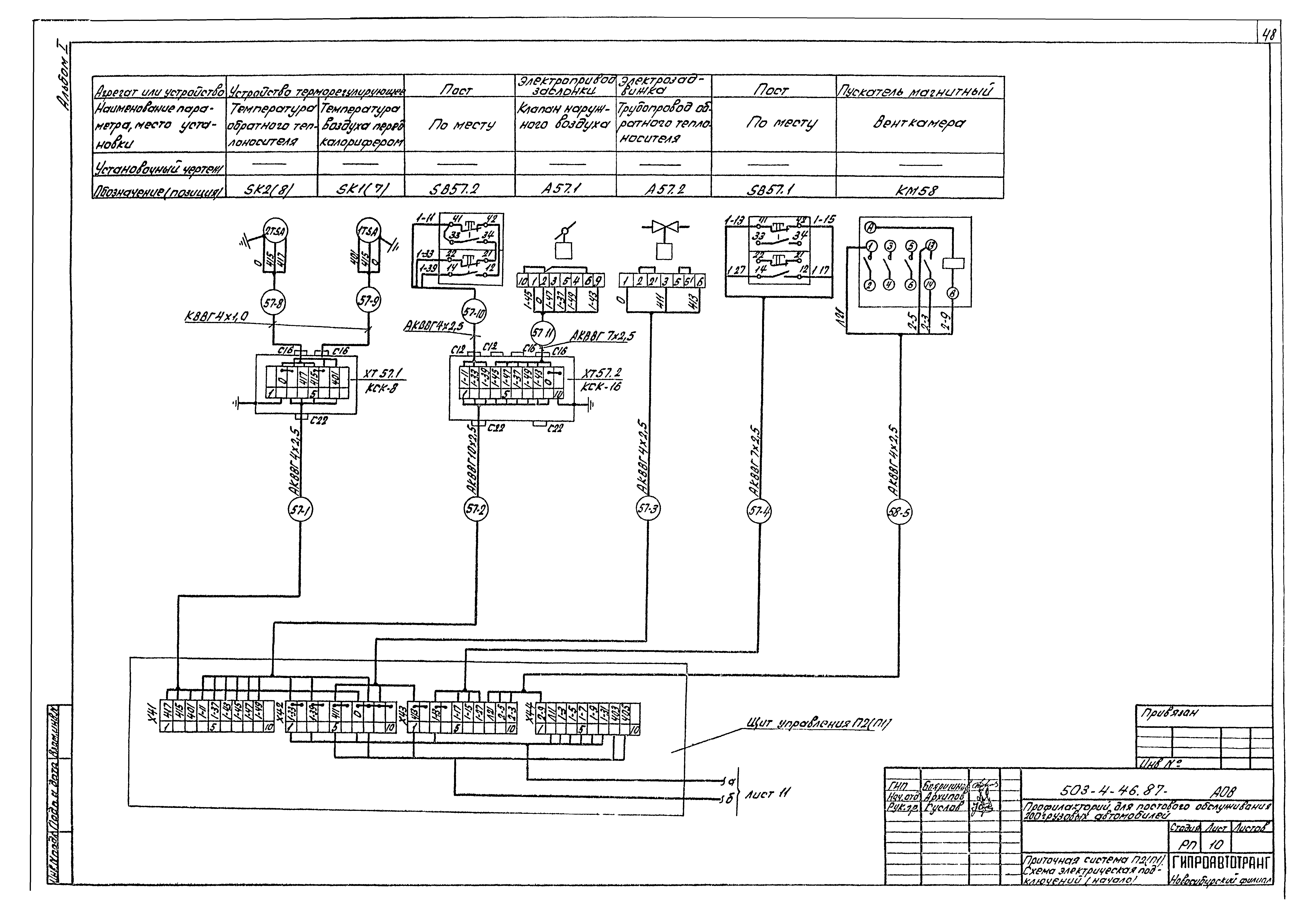
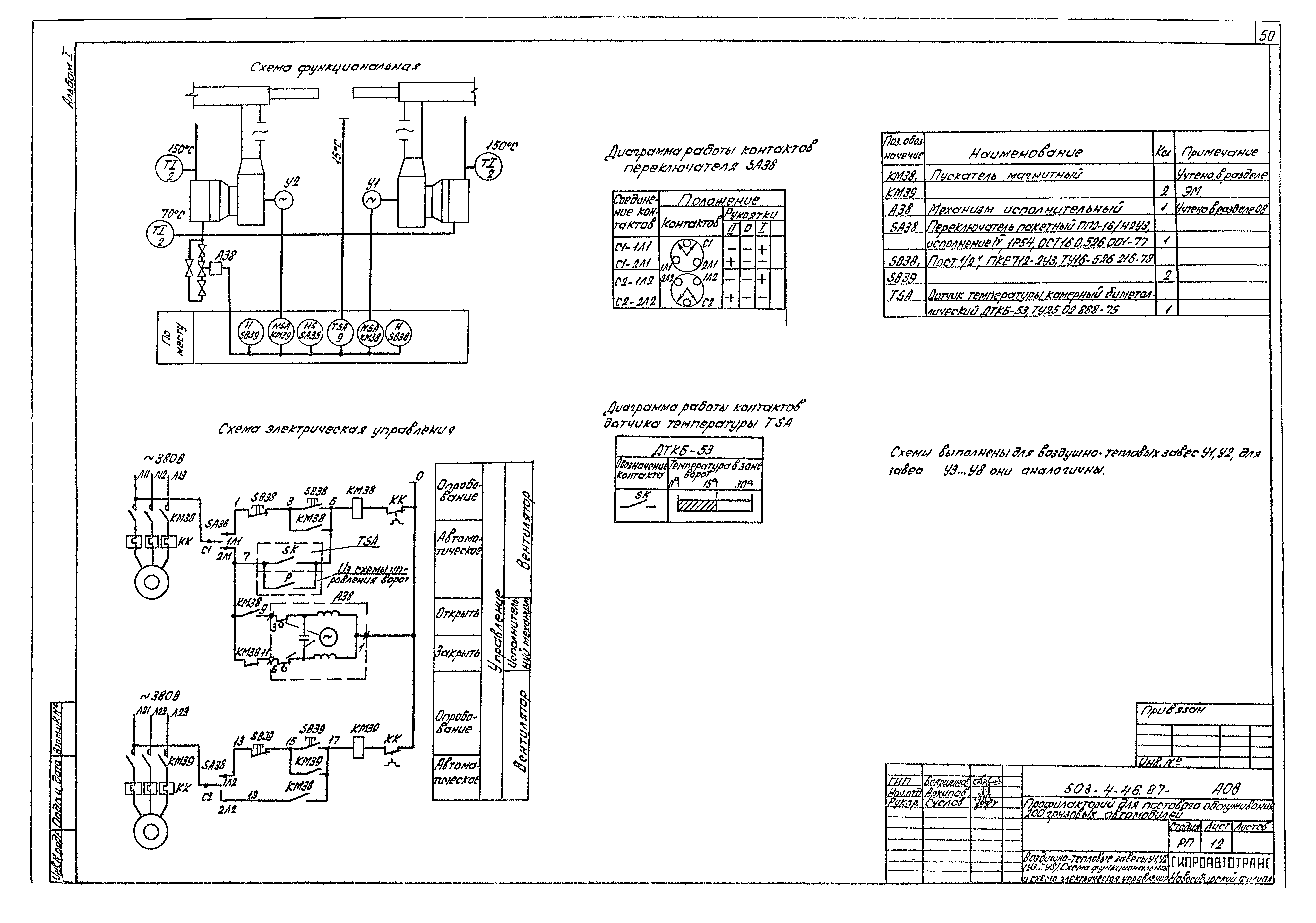
Альбом I. Пояснительная записка, технология производства, силовое электрооборудование, электрическое освещение, автоматизация санитарно-технических систем, связь и сигнализация, архитектурные решения| Обозначение: | Типовой проект 503-4-46.87 | | Обозначение англ: | 503-4-46.87 | | Статус: | не определен законодательством | | Название рус.: | Альбом I. Пояснительная записка, технология производства, силовое электрооборудование, электрическое освещение, автоматизация санитарно-технических систем, связь и сигнализация, архитектурные решения | | Дата добавления в базу: | 01.02.2017 | | Дата актуализации: | 01.01.2021 | | Дата введения: | 15.09.1987 | | Дата окончания срока действия: | 30.06.2003 | | Разработан: | Новосибирский филиал Гипроавтотранса
| | Утверждён: | 15.09.1987 Минавтотранс РСФСР (Russian Federation Minavtotrans 13)
| | Издан: | ЦИТП Госстроя СССР (CITP, Gosstroy (USSR) 1988 г. )
| | Заменяет собой: | |
                                                                                   
|