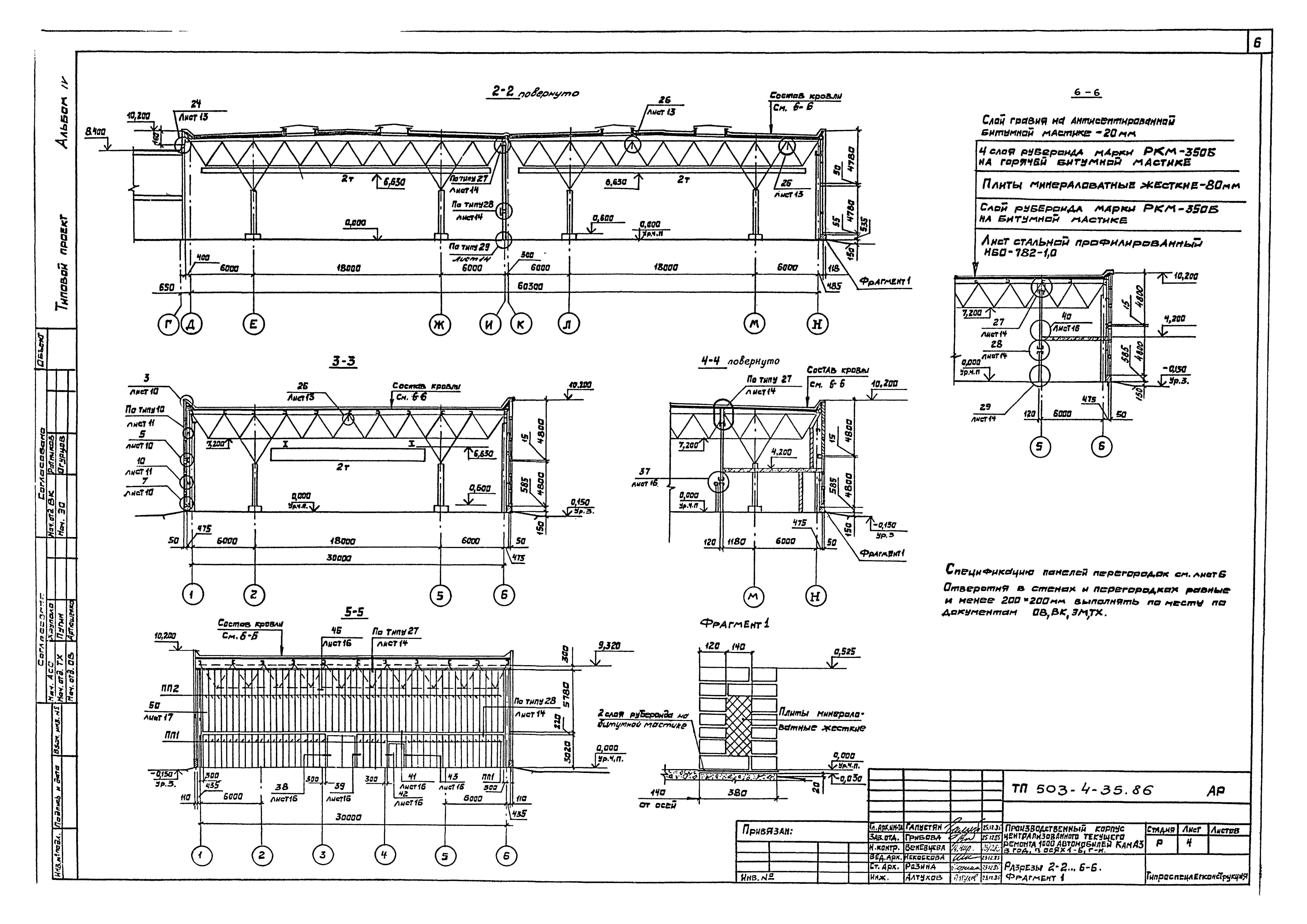
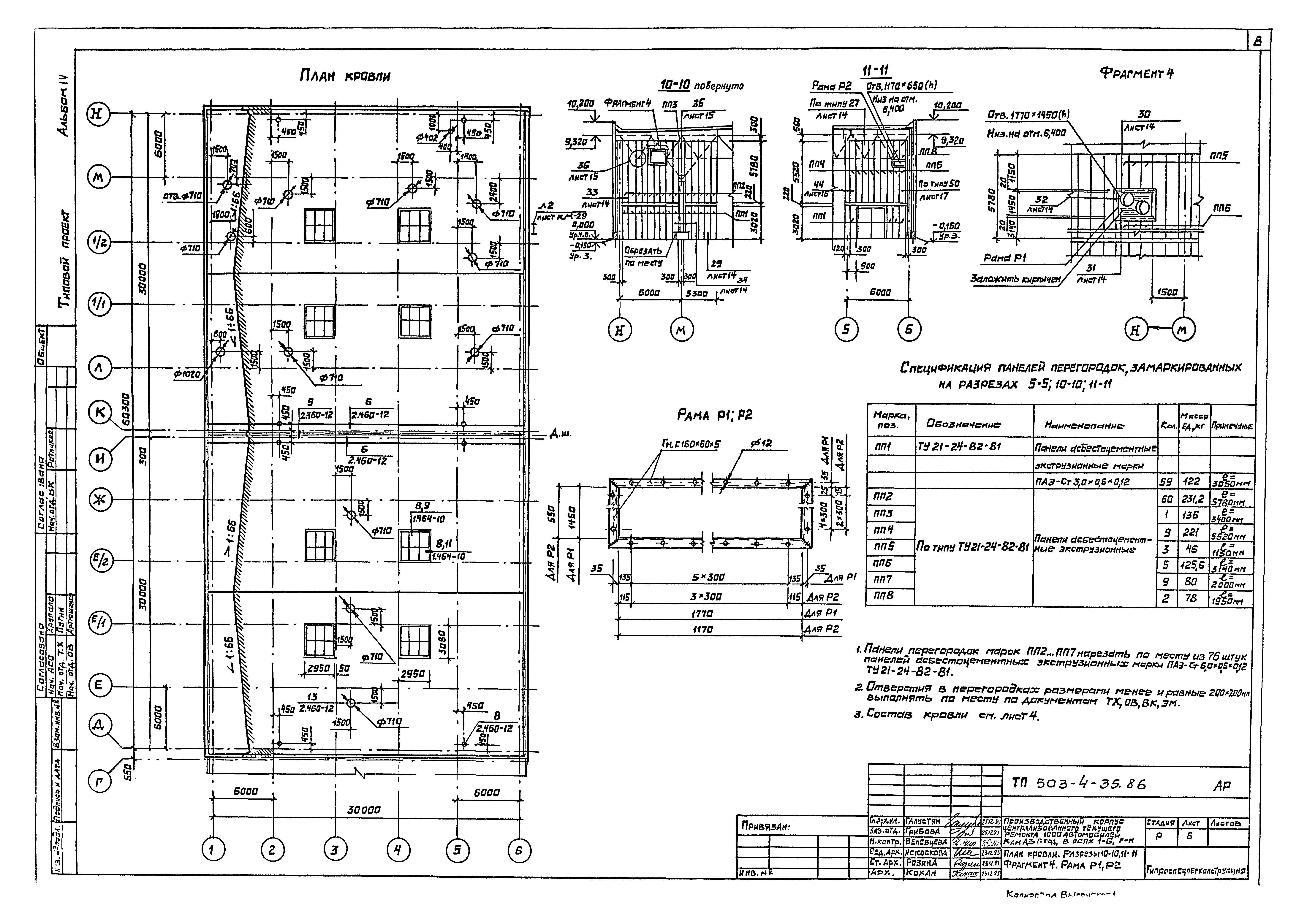
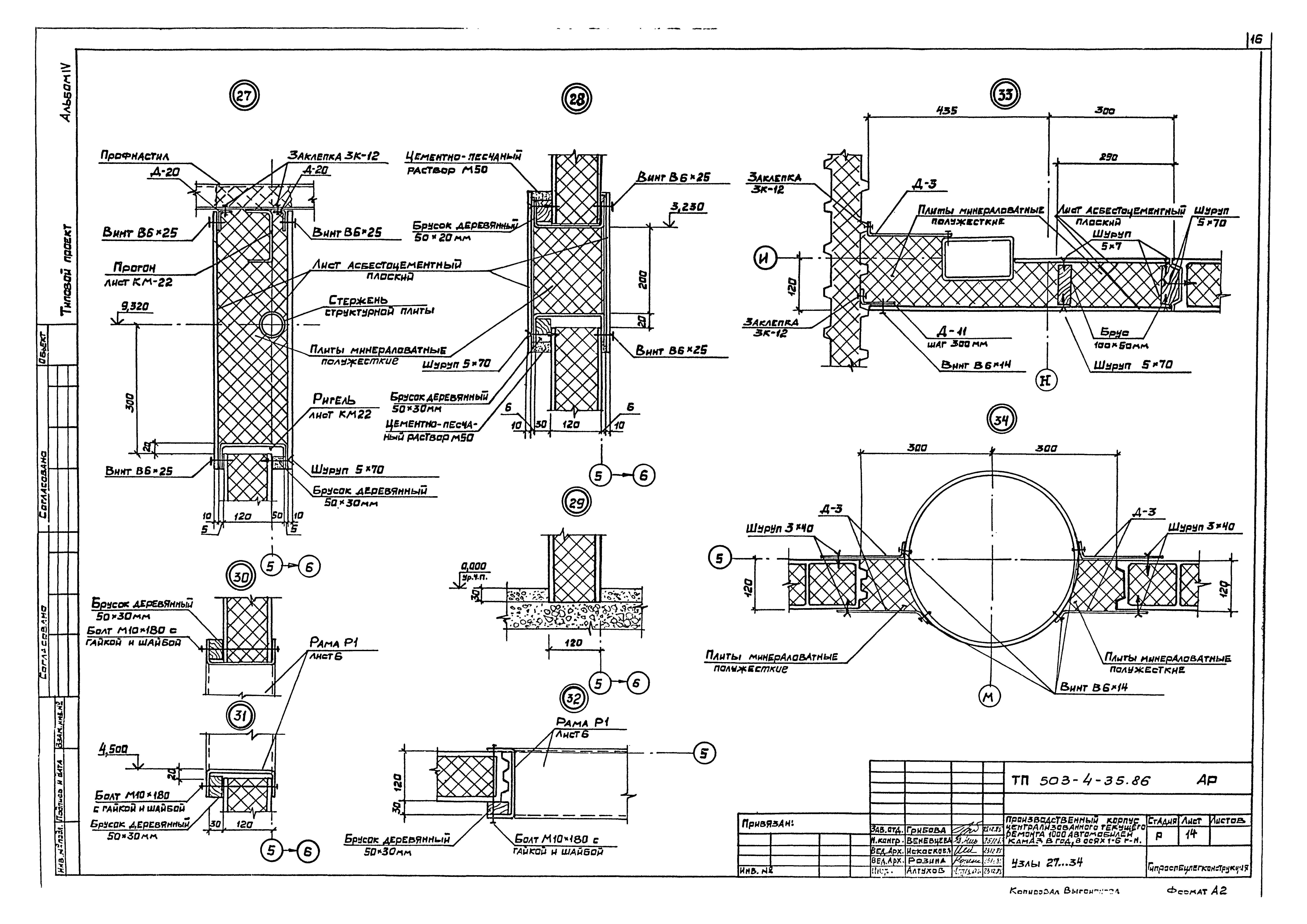
Скачать Типовой проект 503-4-35.86 Альбом IV. Архитектурные решения в осях 1 - 6; Г - Н. Конструкции металлическиеДата актуализации: 01.01.2021
|
| Обозначение: | Типовой проект 503-4-35.86 |
| Обозначение англ: | 503-4-35.86 |
| Статус: | не определен законодательством |
| Название рус.: | Альбом IV. Архитектурные решения в осях 1 - 6; Г - Н. Конструкции металлические |
| Дата добавления в базу: | 01.02.2017 |
| Дата актуализации: | 01.01.2021 |
| Дата введения: | 27.03.1985 |
| Дата окончания срока действия: | 30.06.2003 |
| Разработан: | Гипроавтотранс |
| Утверждён: | 27.03.1985 Минавтотранс РСФСР (Russian Federation Minavtotrans 57) |
| Издан: | ЦИТП Госстроя СССР (CITP, Gosstroy (USSR) 1987 г. ) |
































































