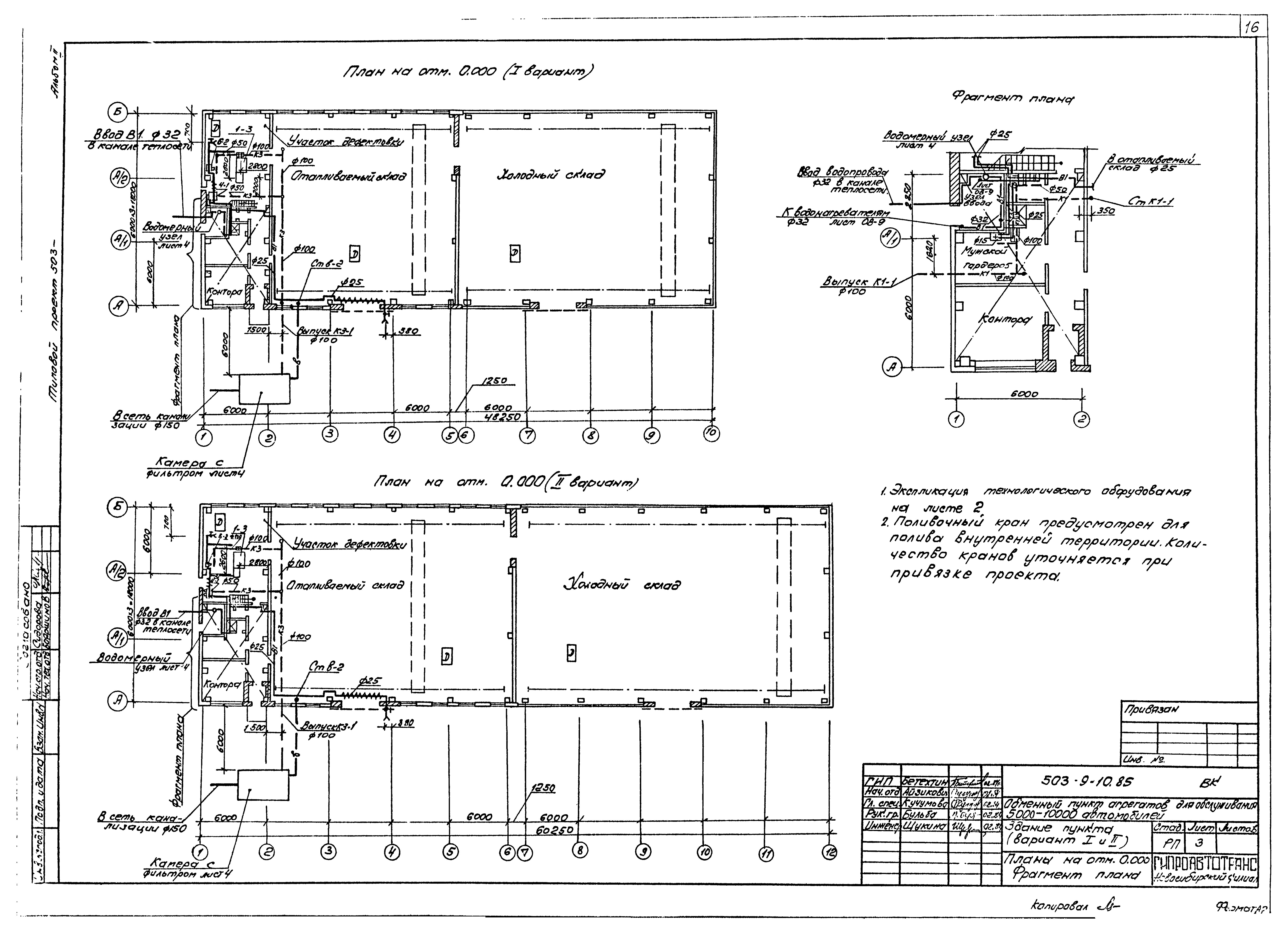
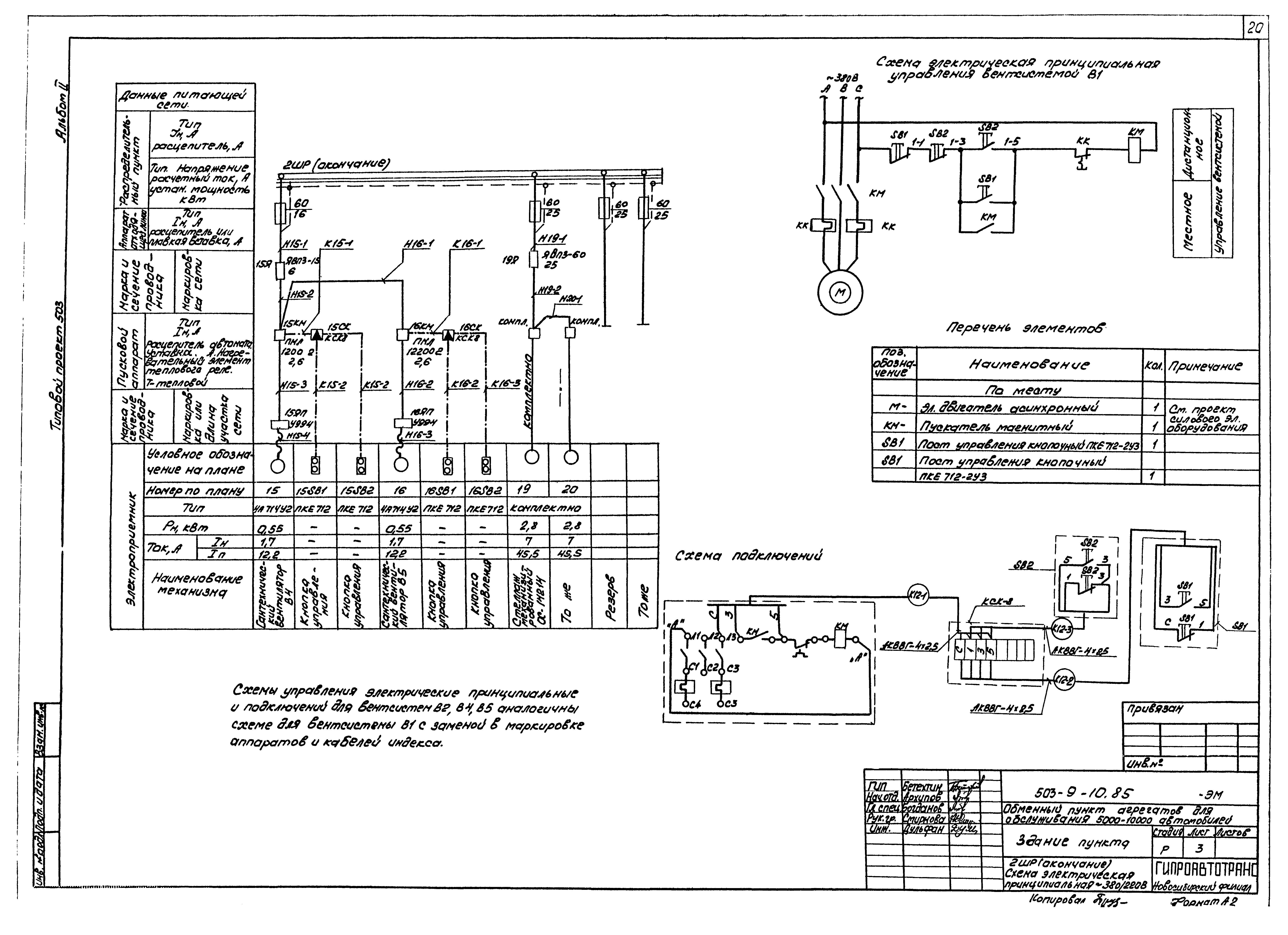
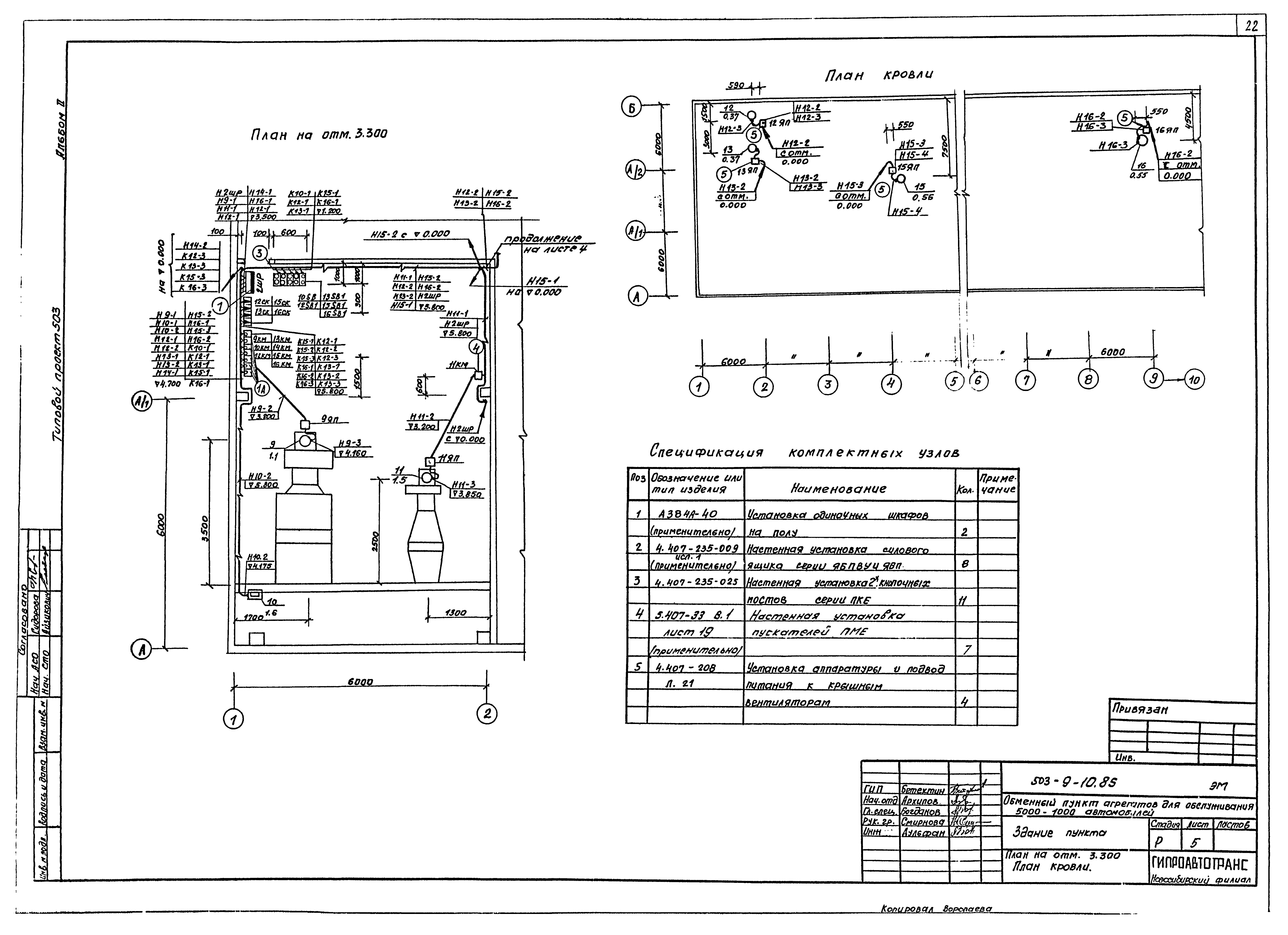
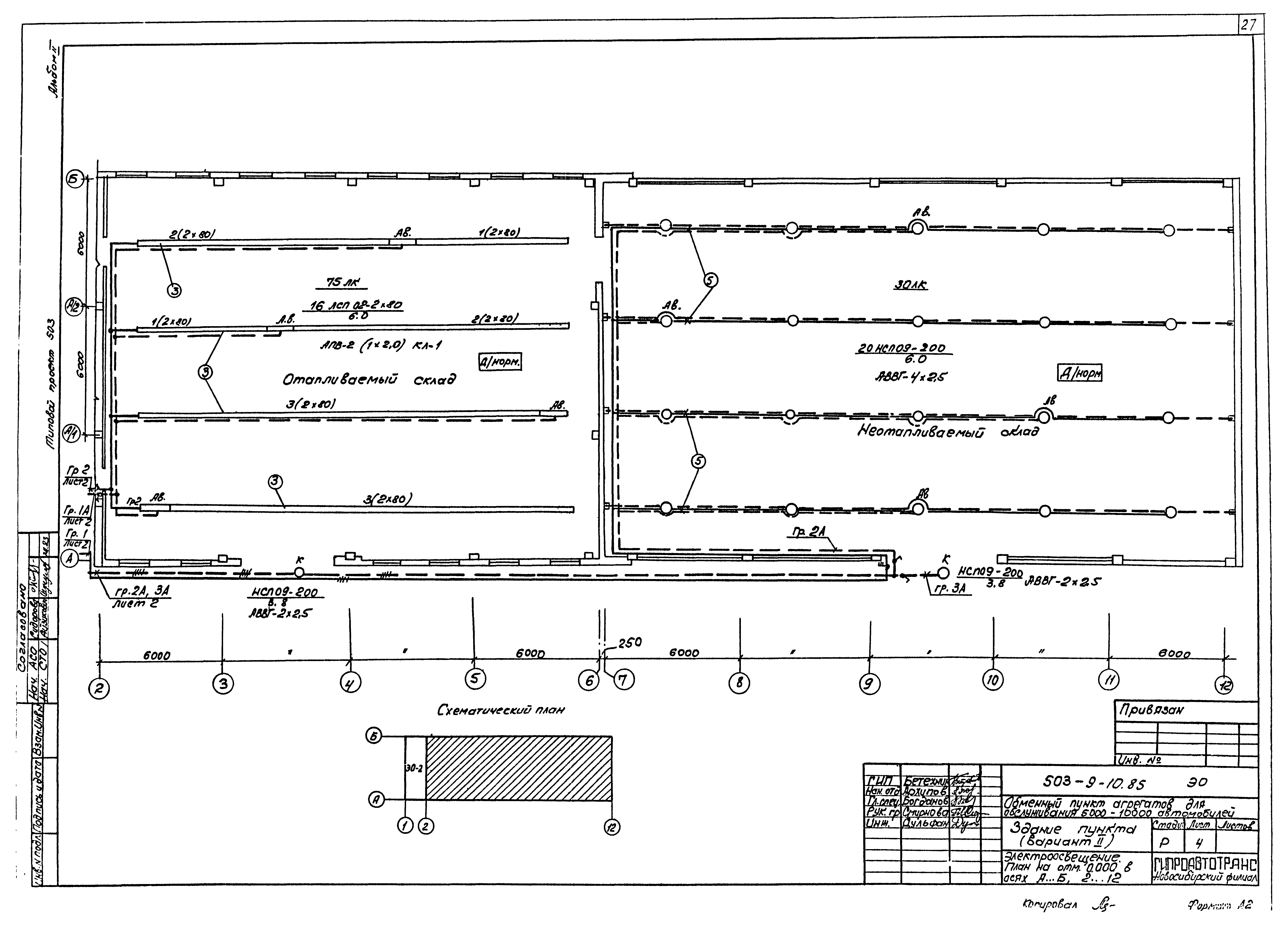
Скачать Типовой проект 503-9-10.85 Альбом II. Санитарно-технические и электротехнические решенияДата актуализации: 01.01.2021
|
| Обозначение: | Типовой проект 503-9-10.85 |
| Обозначение англ: | 503-9-10.85 |
| Статус: | не определен законодательством |
| Название рус.: | Альбом II. Санитарно-технические и электротехнические решения |
| Дата добавления в базу: | 01.02.2017 |
| Дата актуализации: | 01.01.2021 |
| Дата введения: | 19.07.1984 |
| Дата окончания срока действия: | 30.06.2003 |
| Разработан: | Новосибирский филиал Гипроавтотранса |
| Утверждён: | 19.07.1984 Минавтотранс РСФСР (Russian Federation Minavtotrans 50) |
| Издан: | ЦИТП Госстроя СССР (CITP, Gosstroy (USSR) 1987 г. ) |



























































