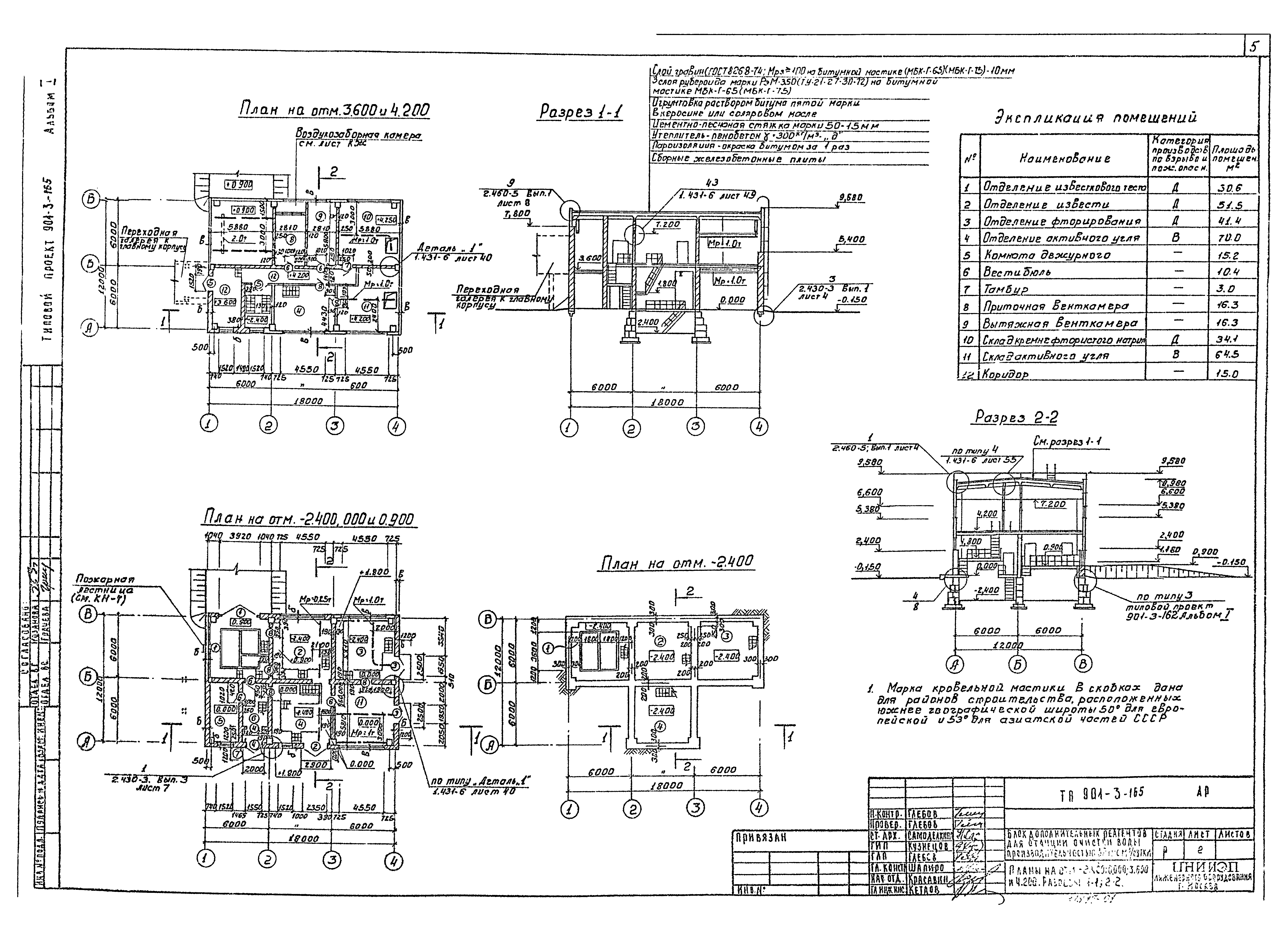
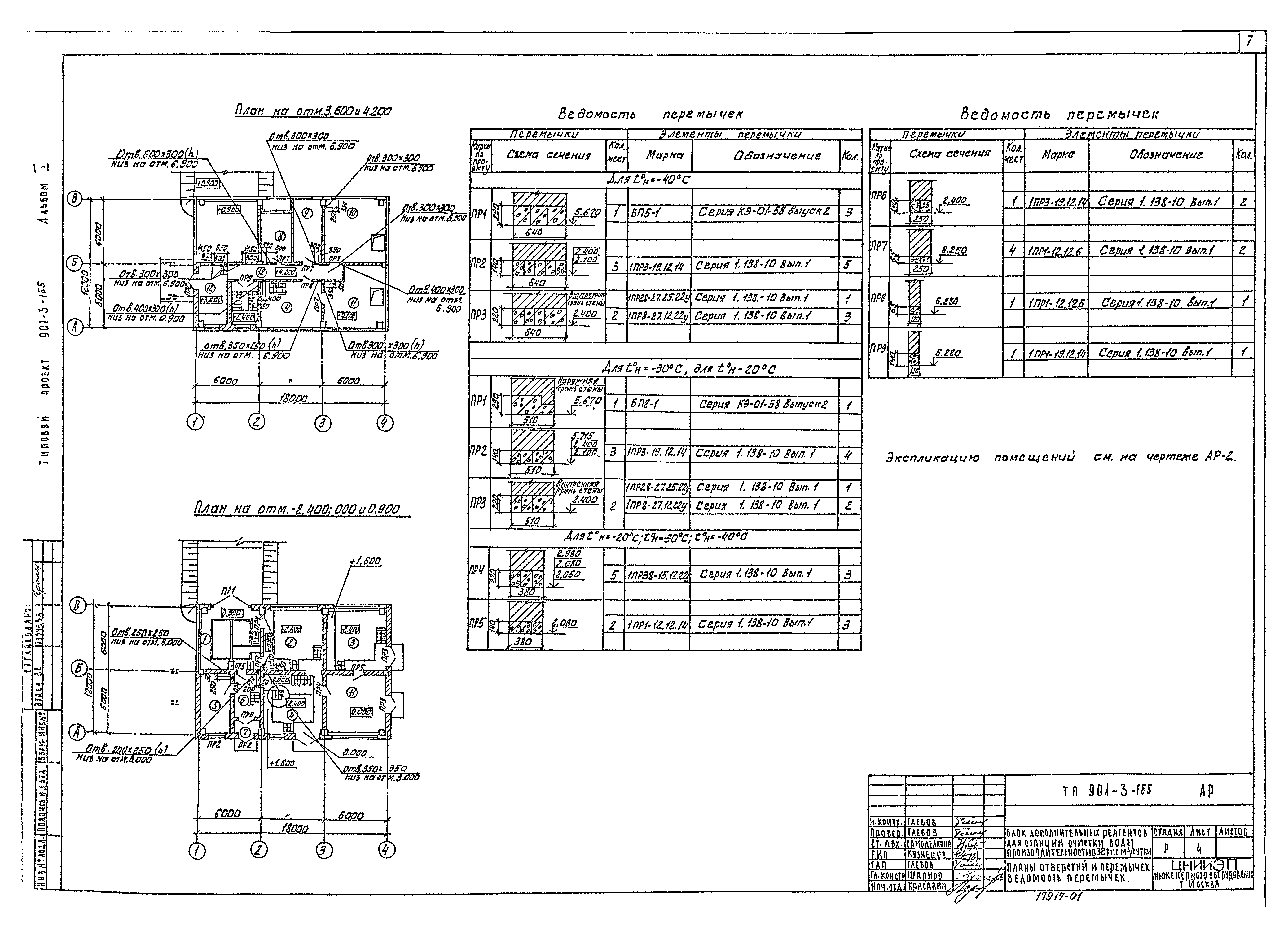
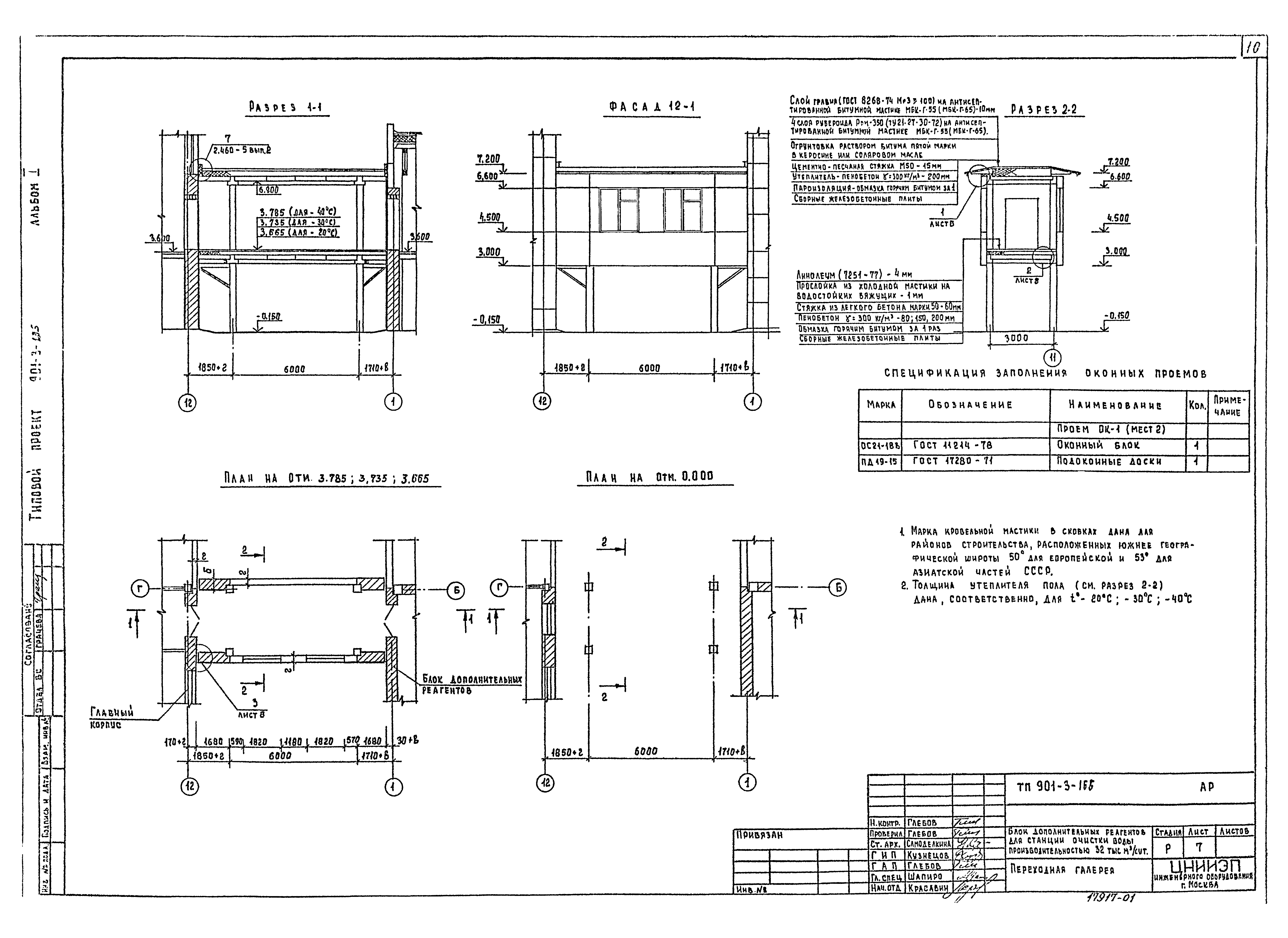
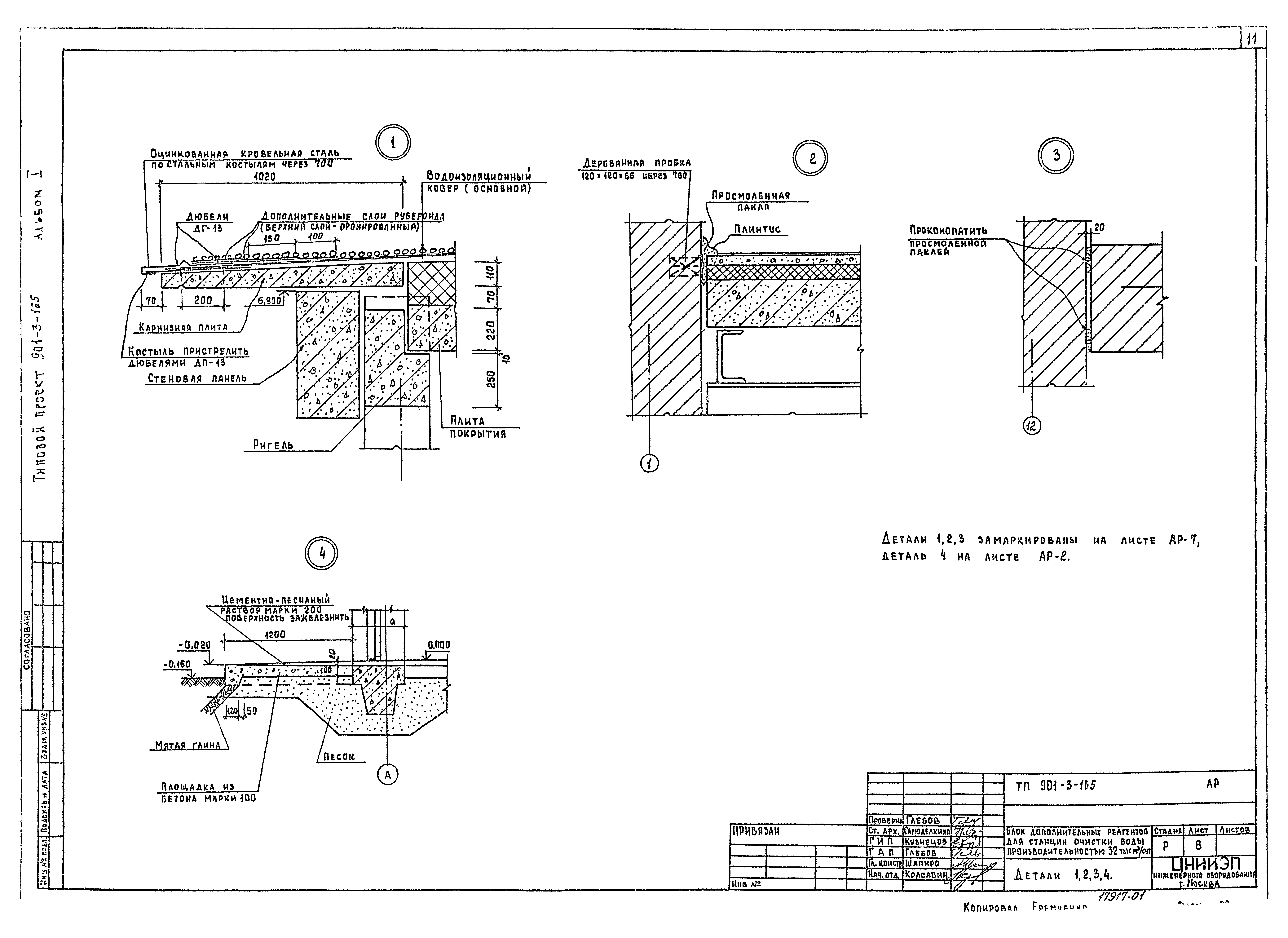
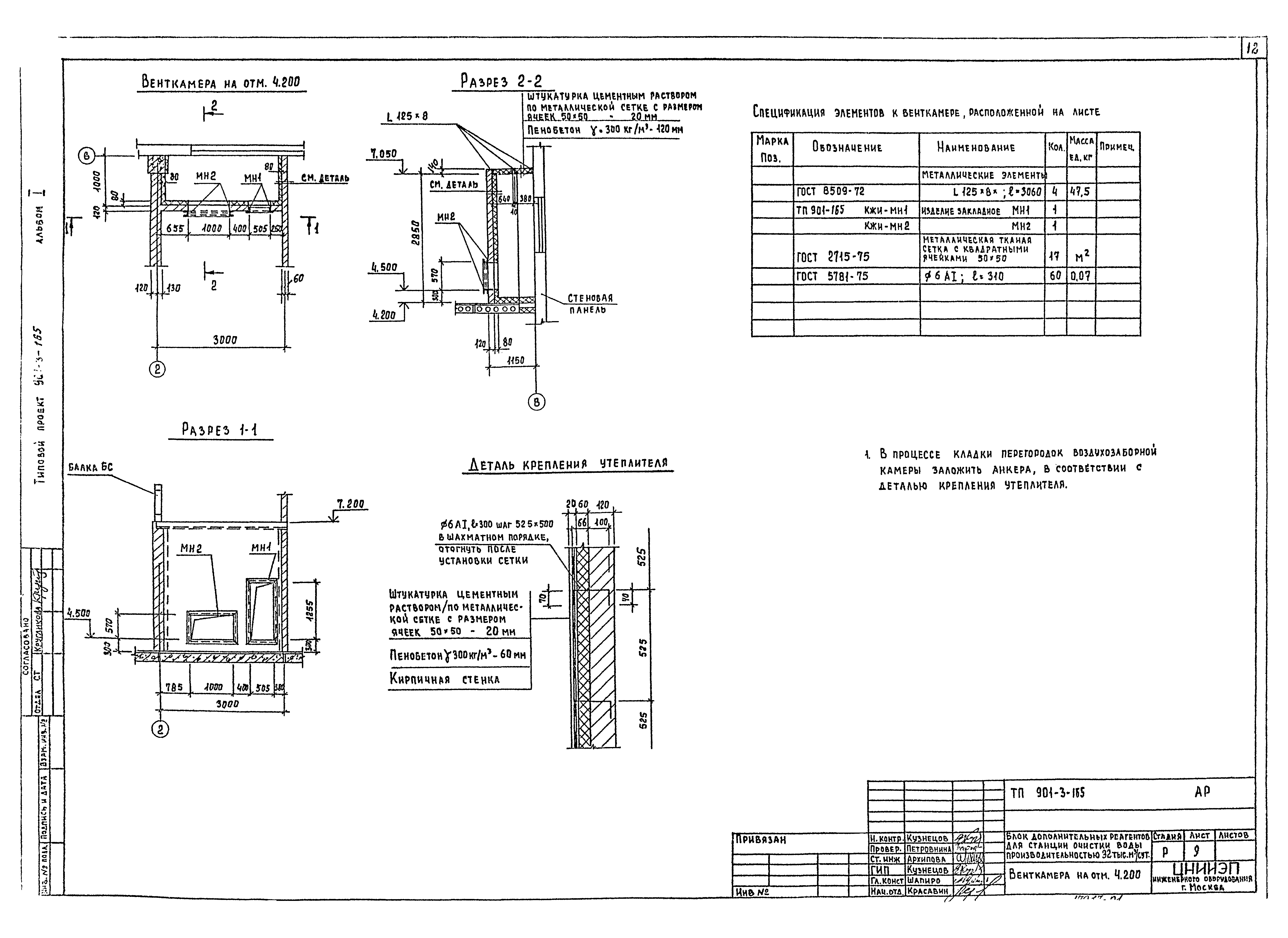
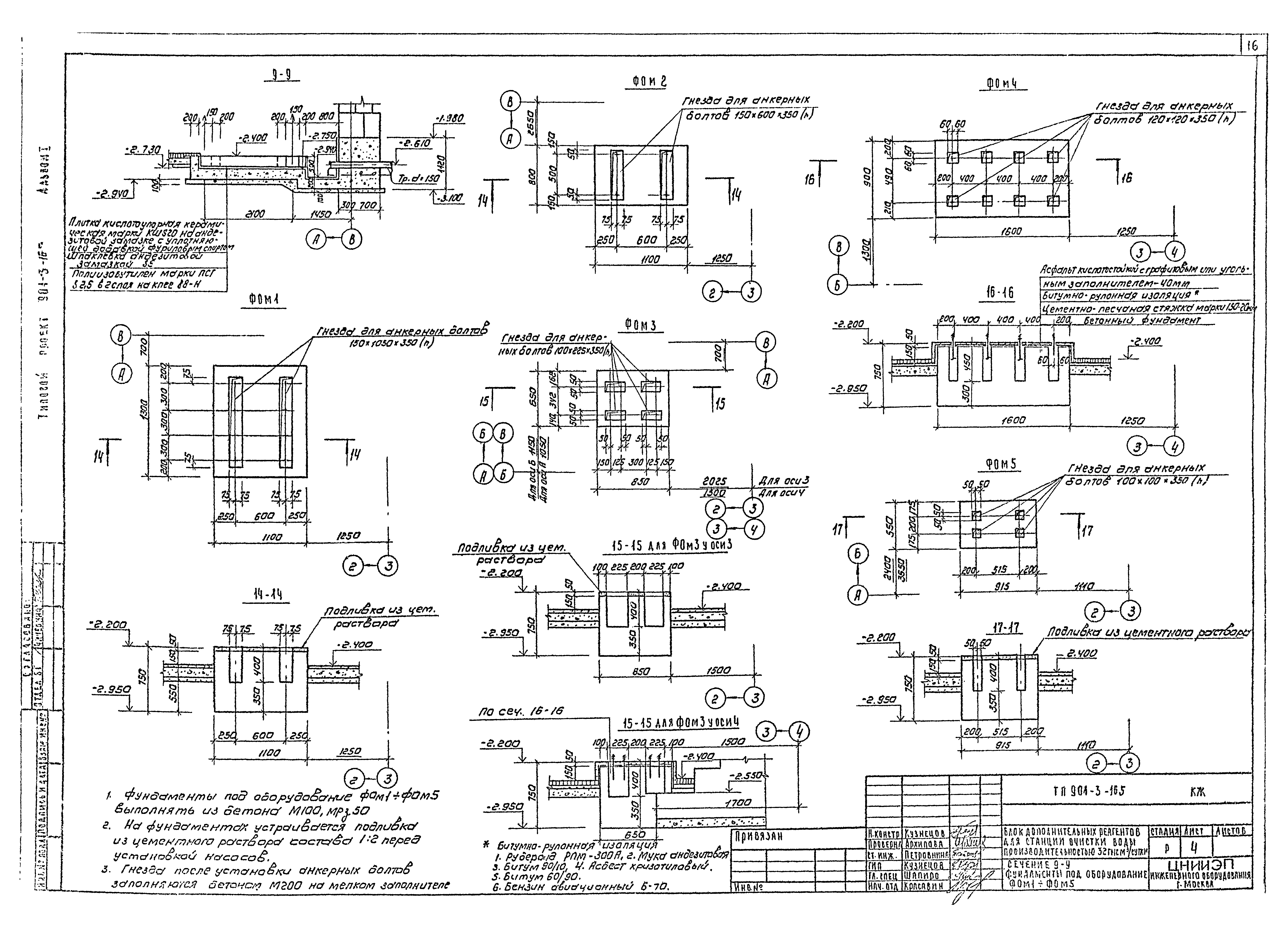
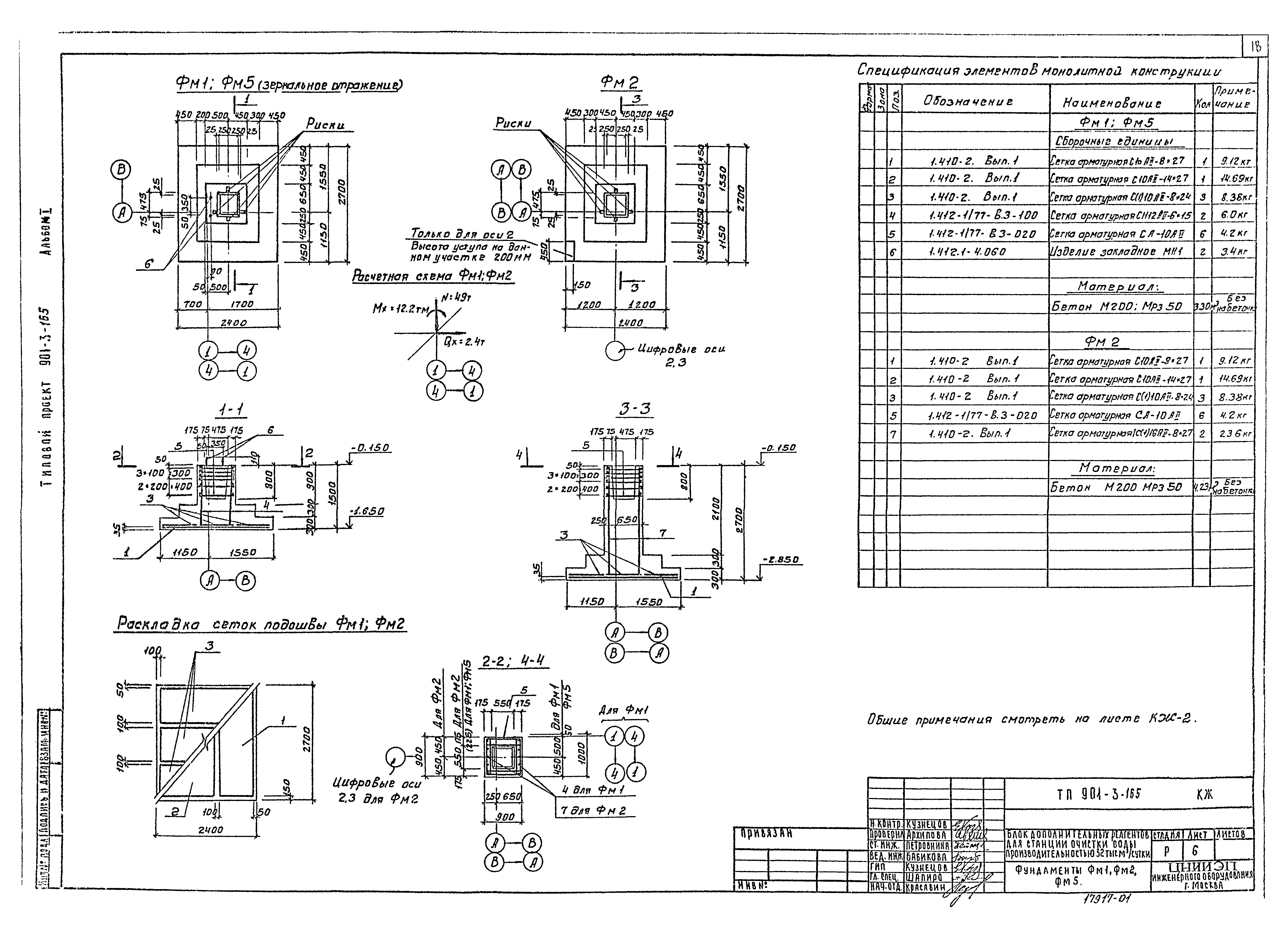
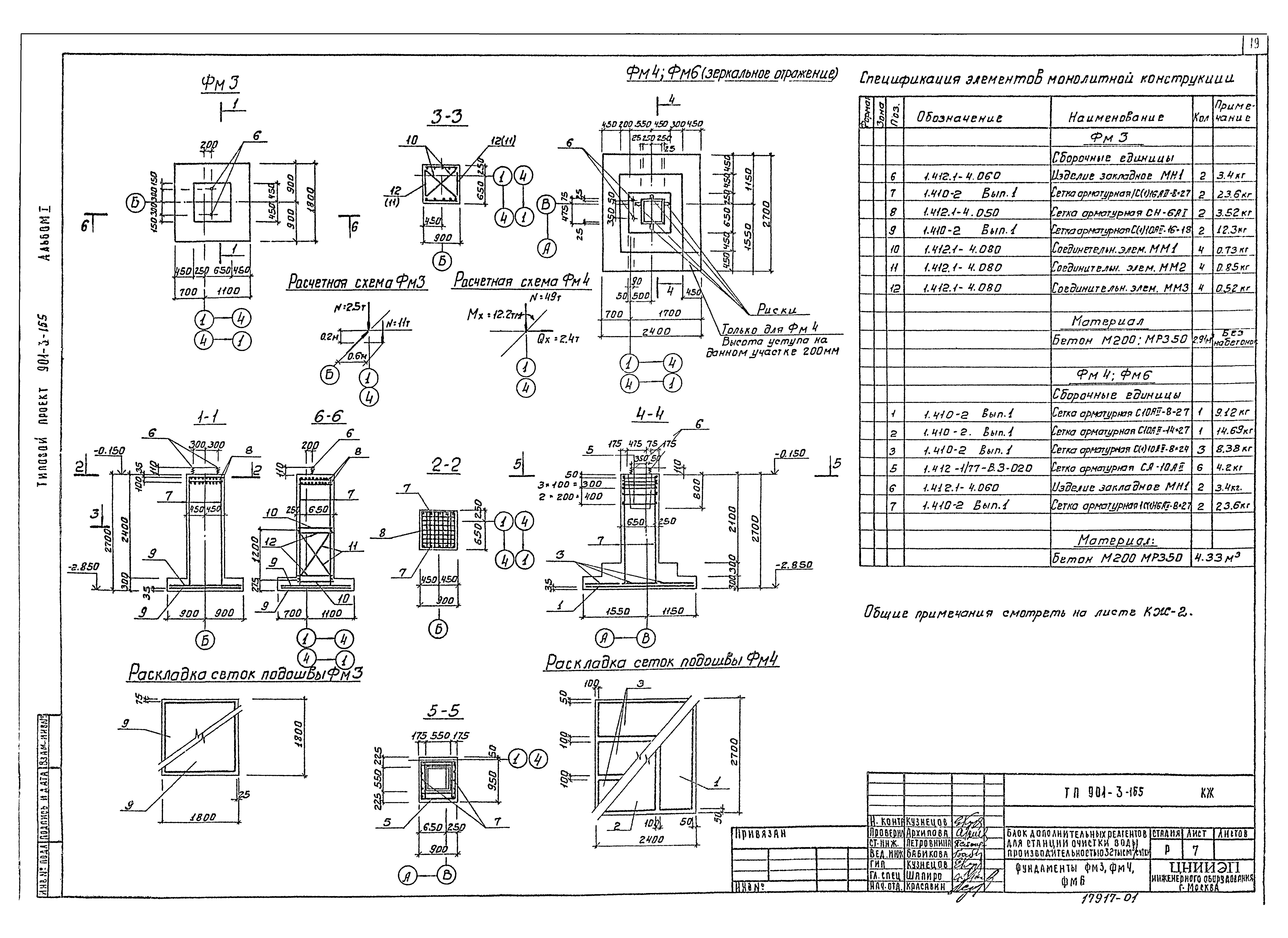
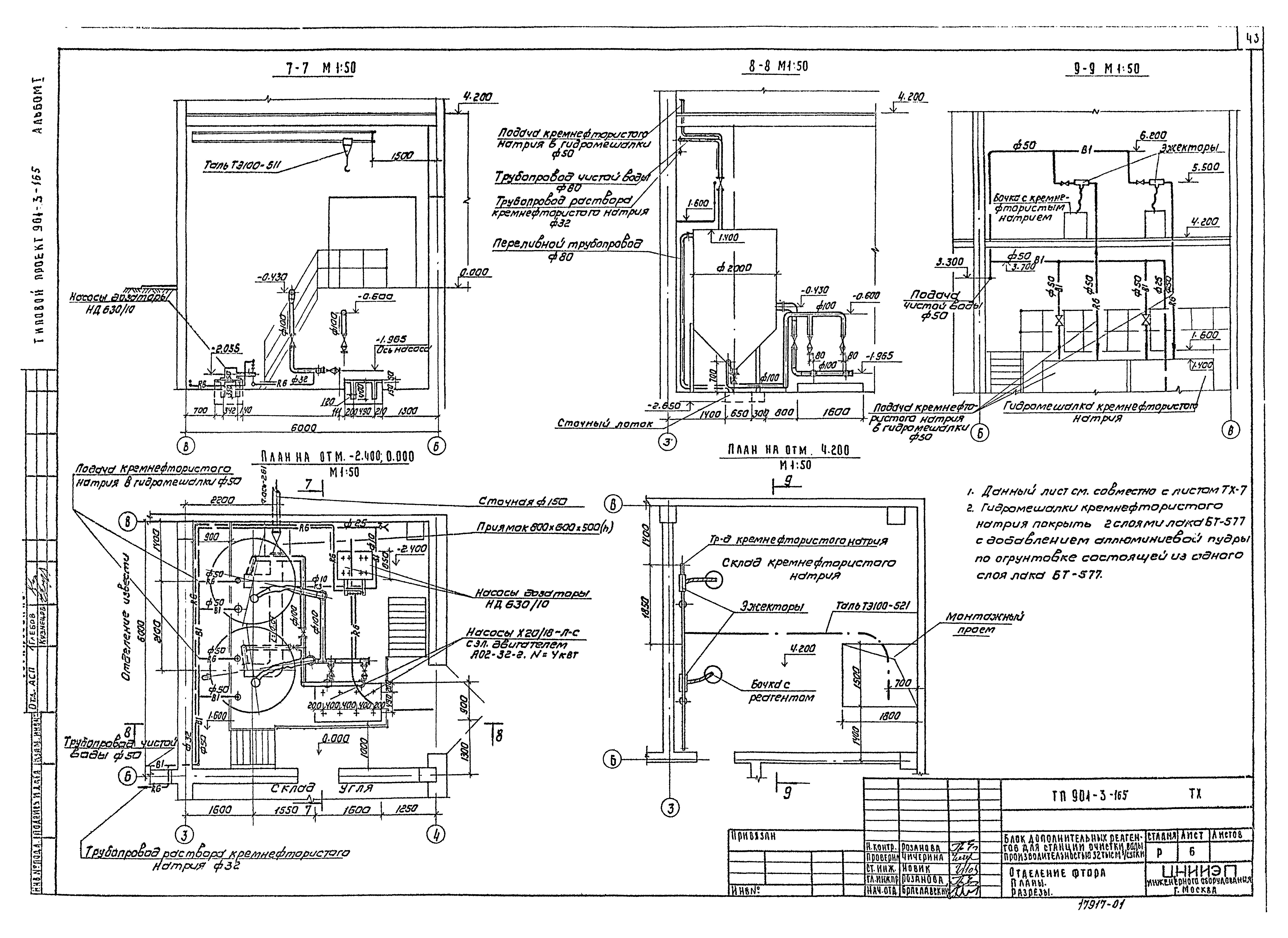
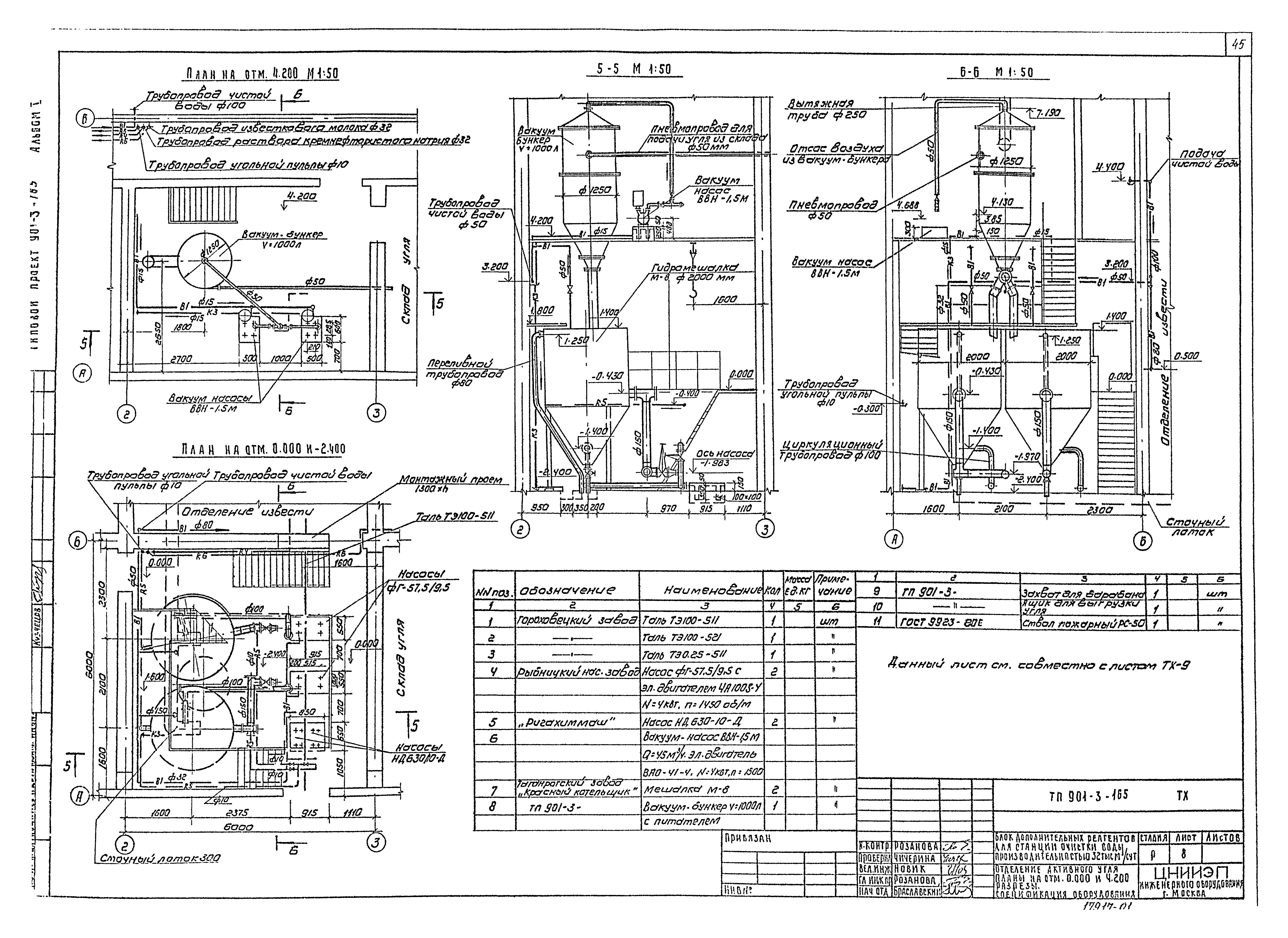
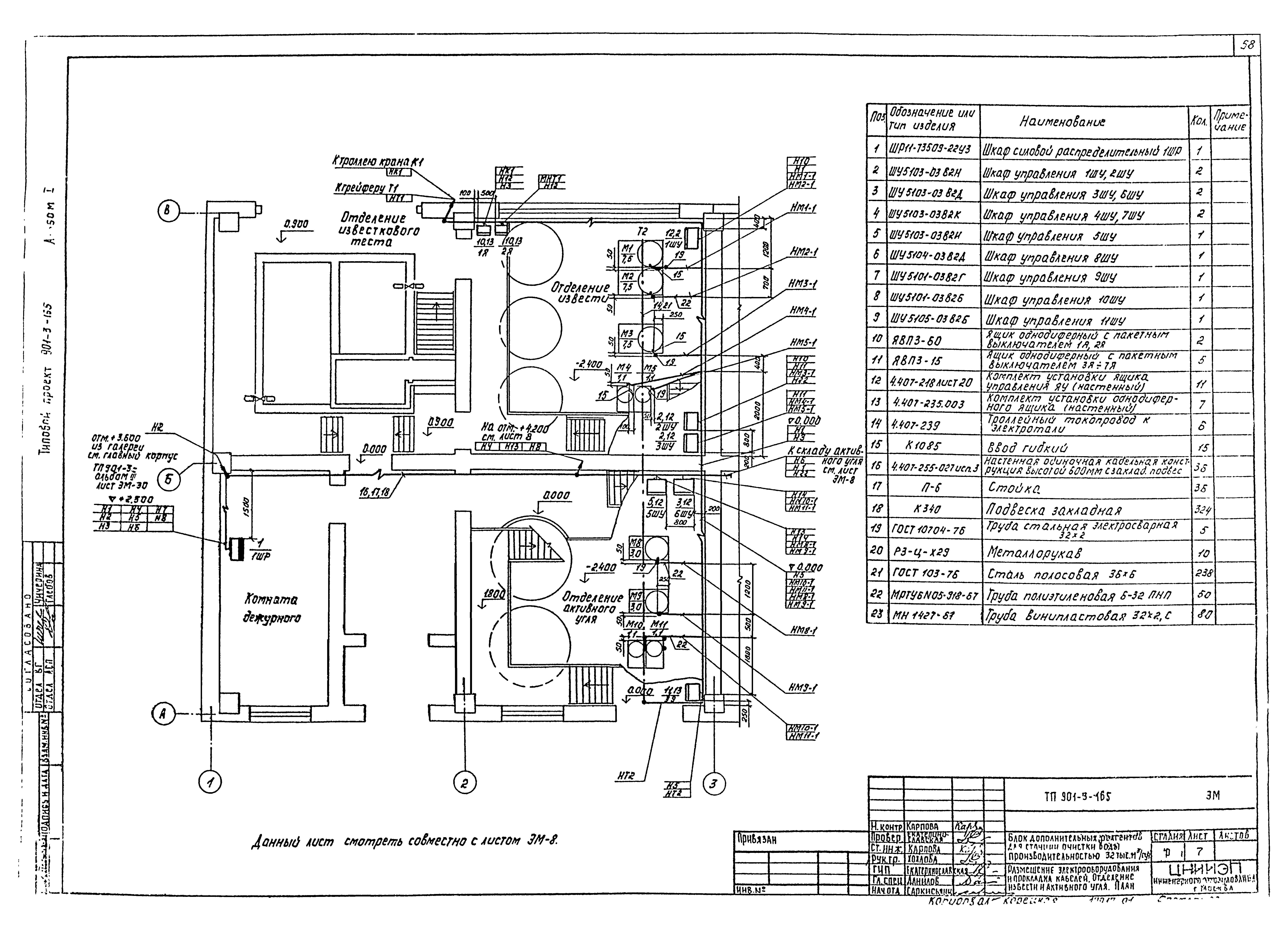
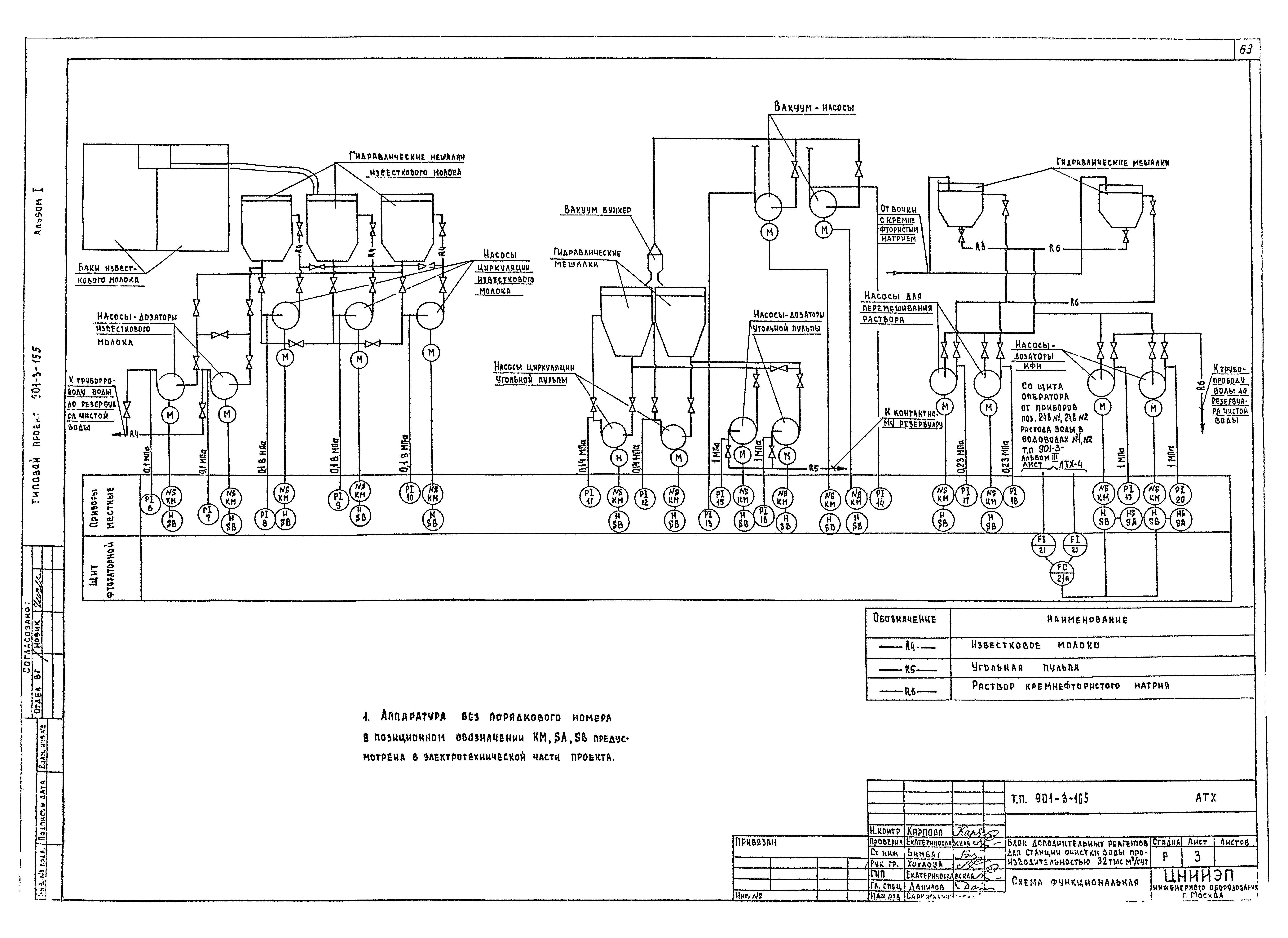
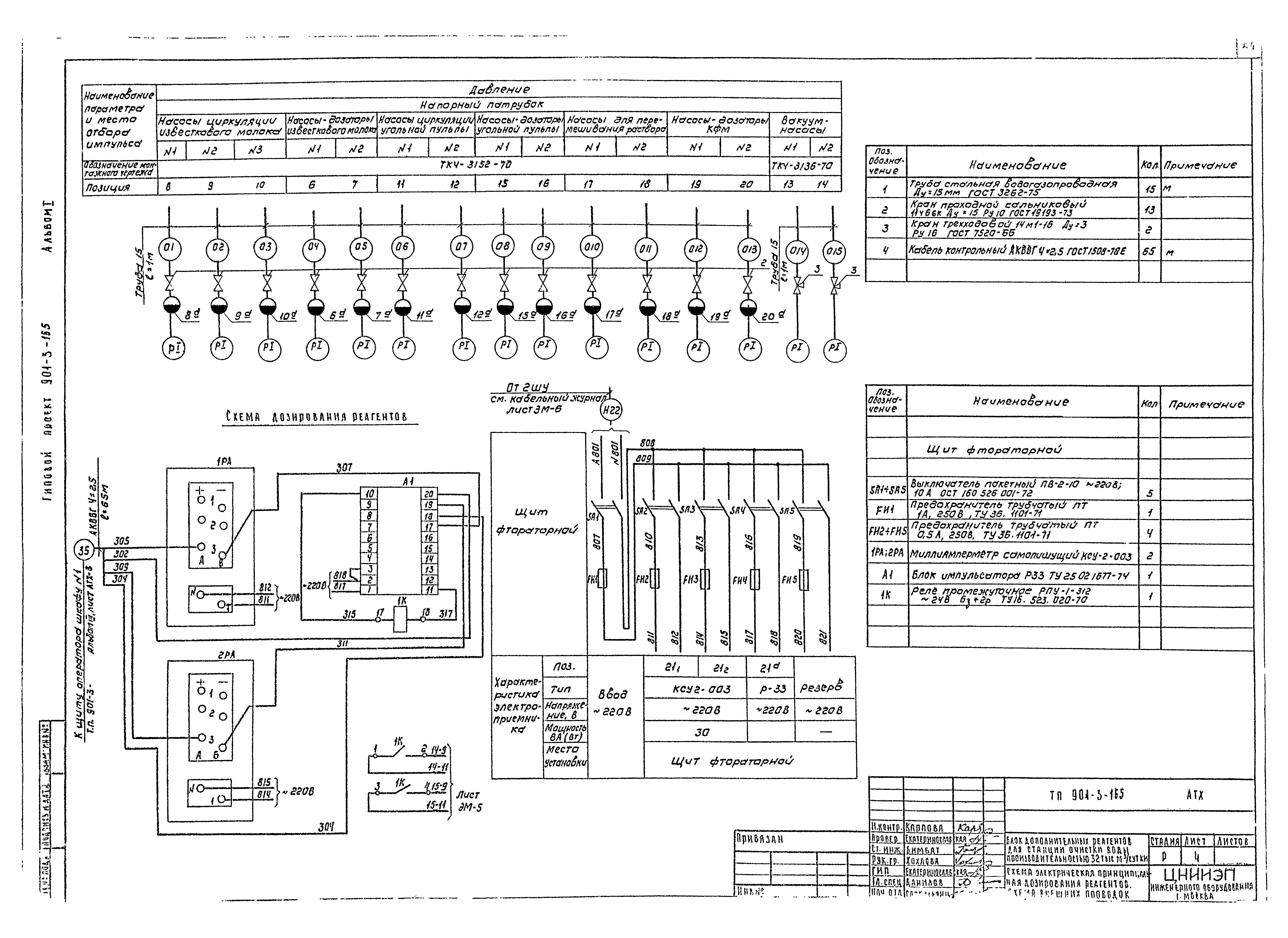
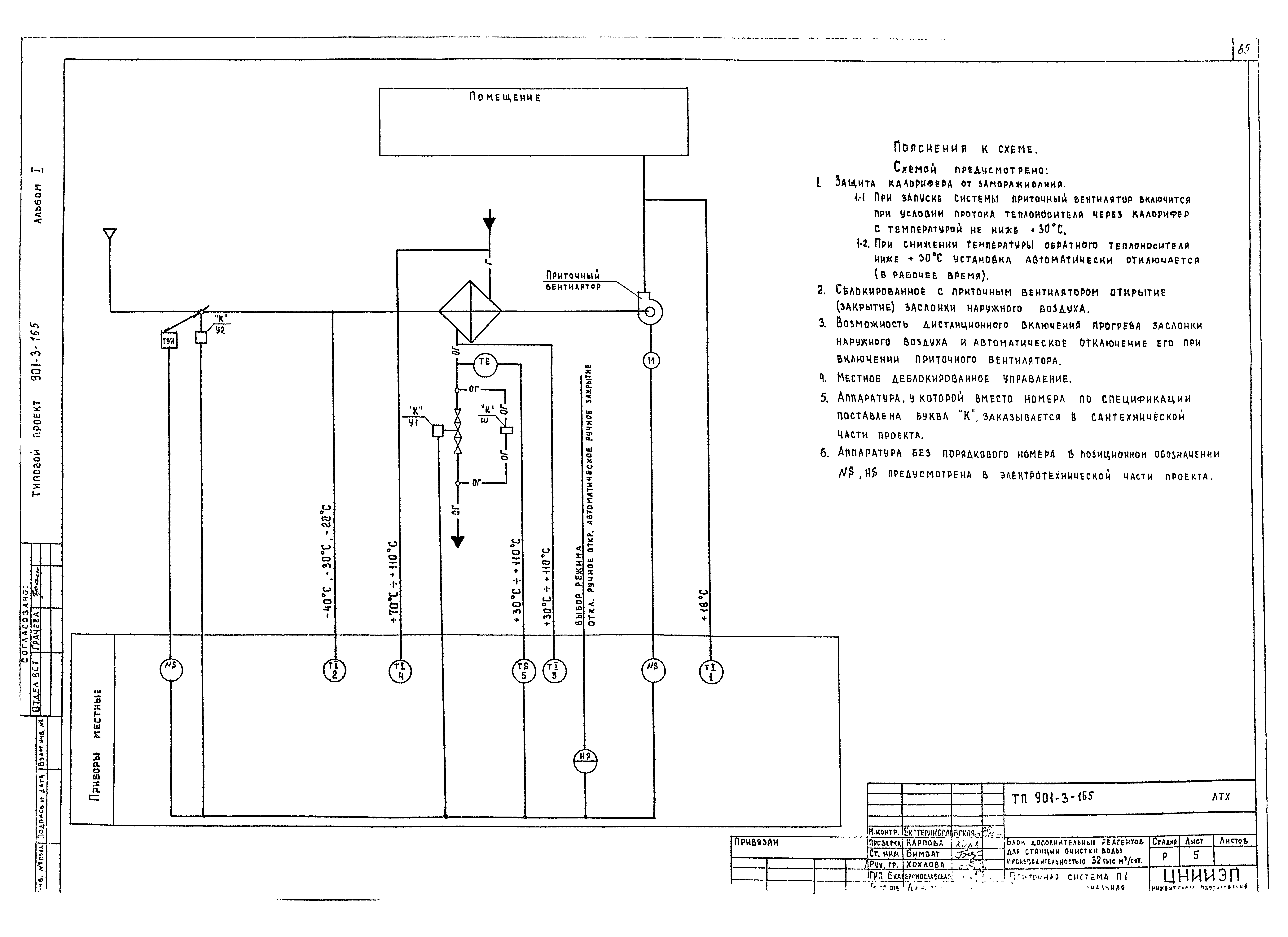
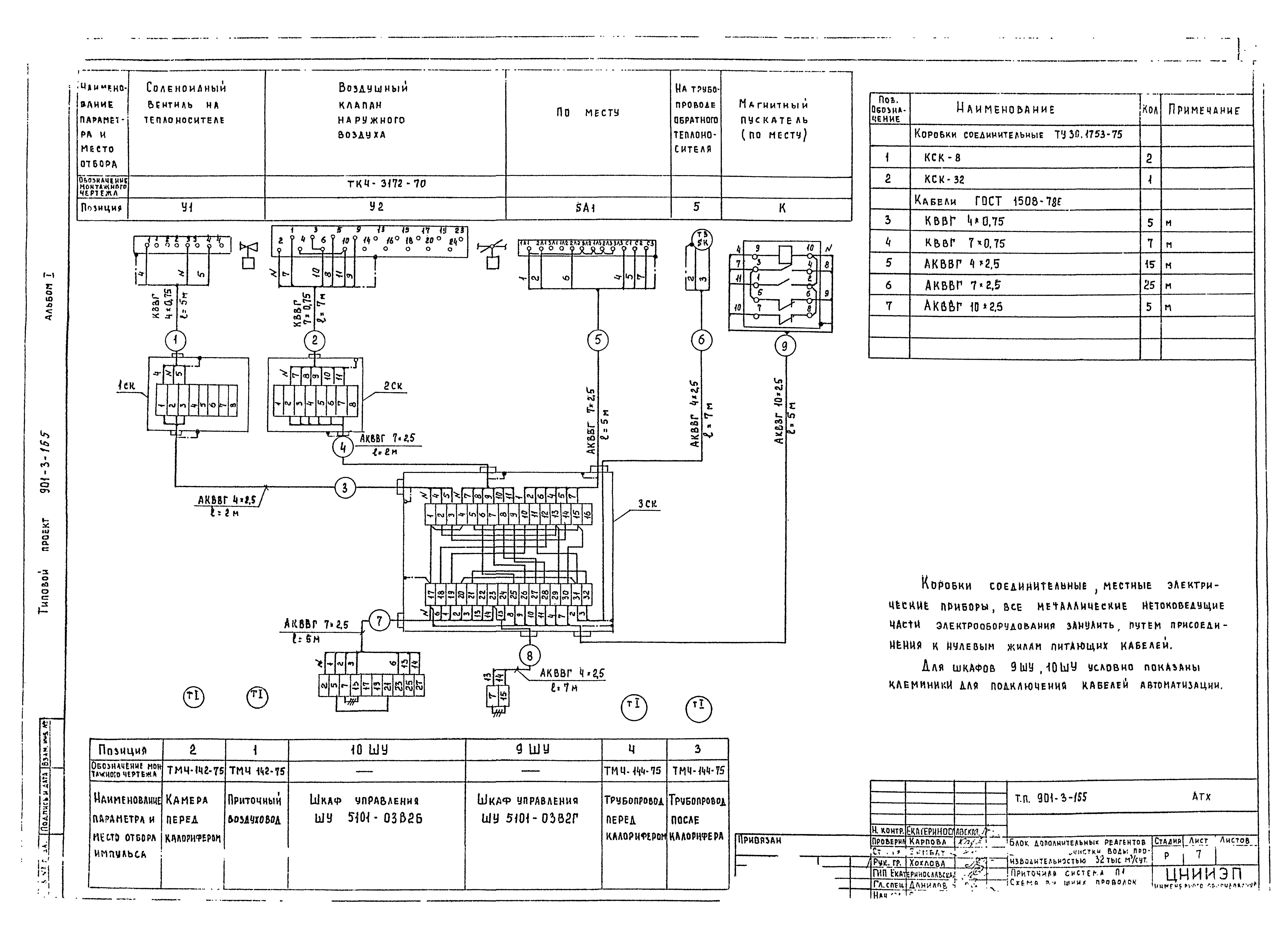
Скачать Типовой проект 901-3-165 Альбом I. Архитектурно-строительная, технологическая, санитарно-техническая, электротехническая части. АвтоматизацияДата актуализации: 01.01.2021 Типовой проект 901-3-165
Альбом I. Архитектурно-строительная, технологическая, санитарно-техническая, электротехническая части. Автоматизация| Обозначение: | Типовой проект 901-3-165 | | Обозначение англ: | 901-3-165 | | Статус: | заменен | | Название рус.: | Альбом I. Архитектурно-строительная, технологическая, санитарно-техническая, электротехническая части. Автоматизация | | Дата добавления в базу: | 01.02.2017 | | Дата актуализации: | 01.01.2021 | | Дата введения: | 23.12.1981 | | Дата окончания срока действия: | 01.03.1990 | | Разработан: | ЦНИИЭП инженерного оборудования
| | Утверждён: | 31.10.1980 Госгражданстрой (Gosgrazhdanstroy 297)
| | Издан: | ЦИТП Госстроя СССР (CITP, Gosstroy (USSR) 1982 г. )
| | Чем заменён: | |
                                                                   
|