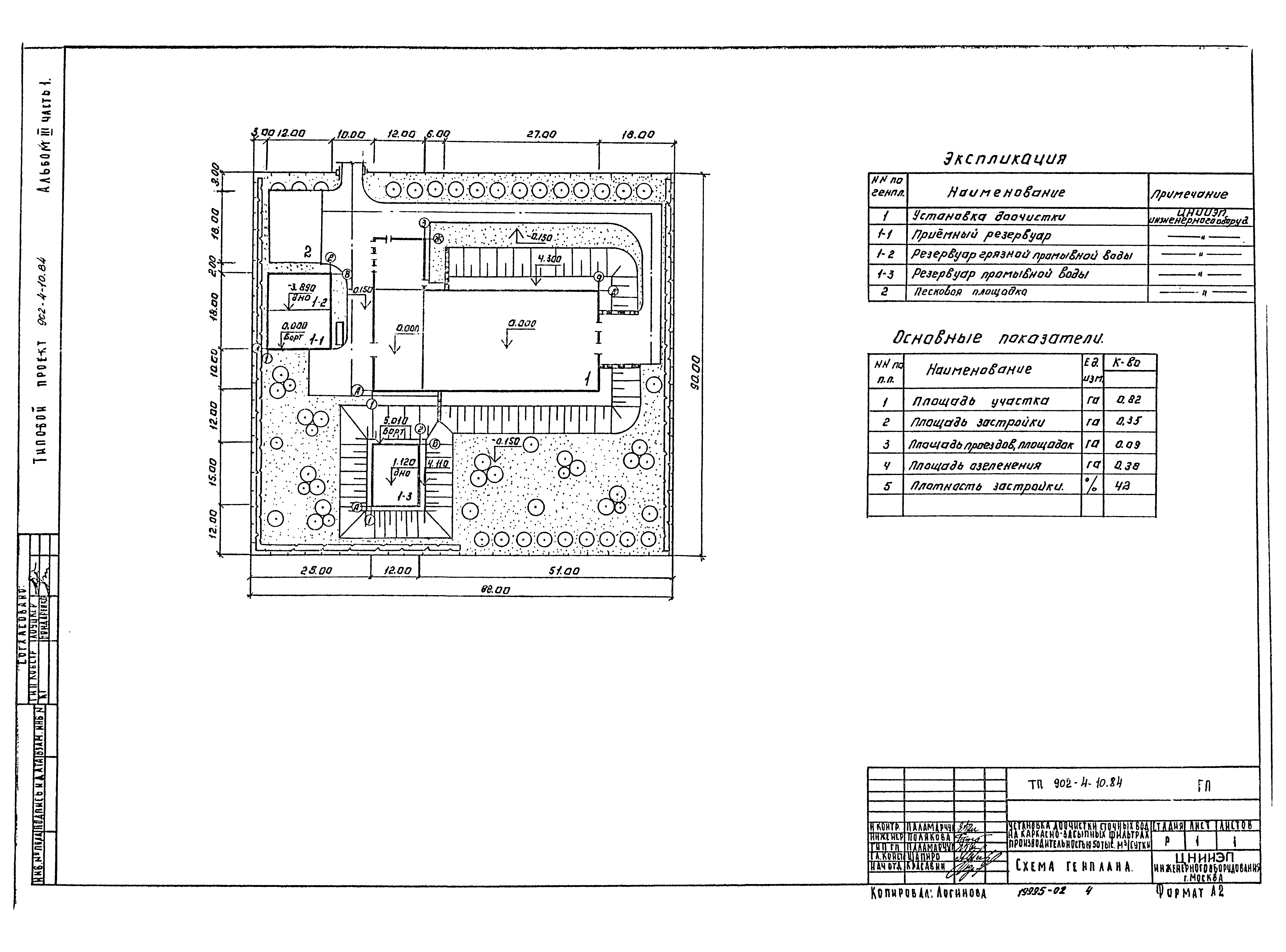
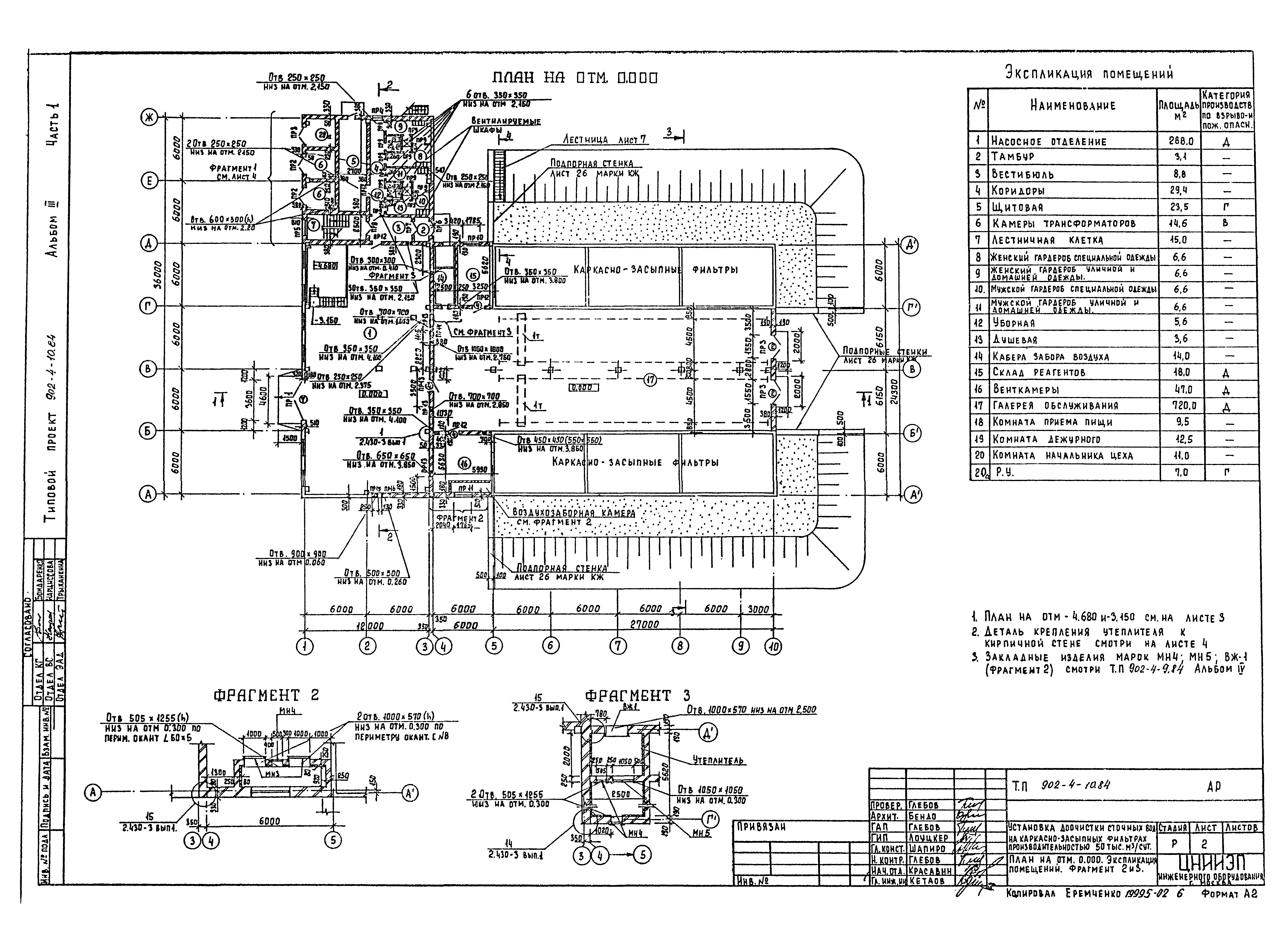
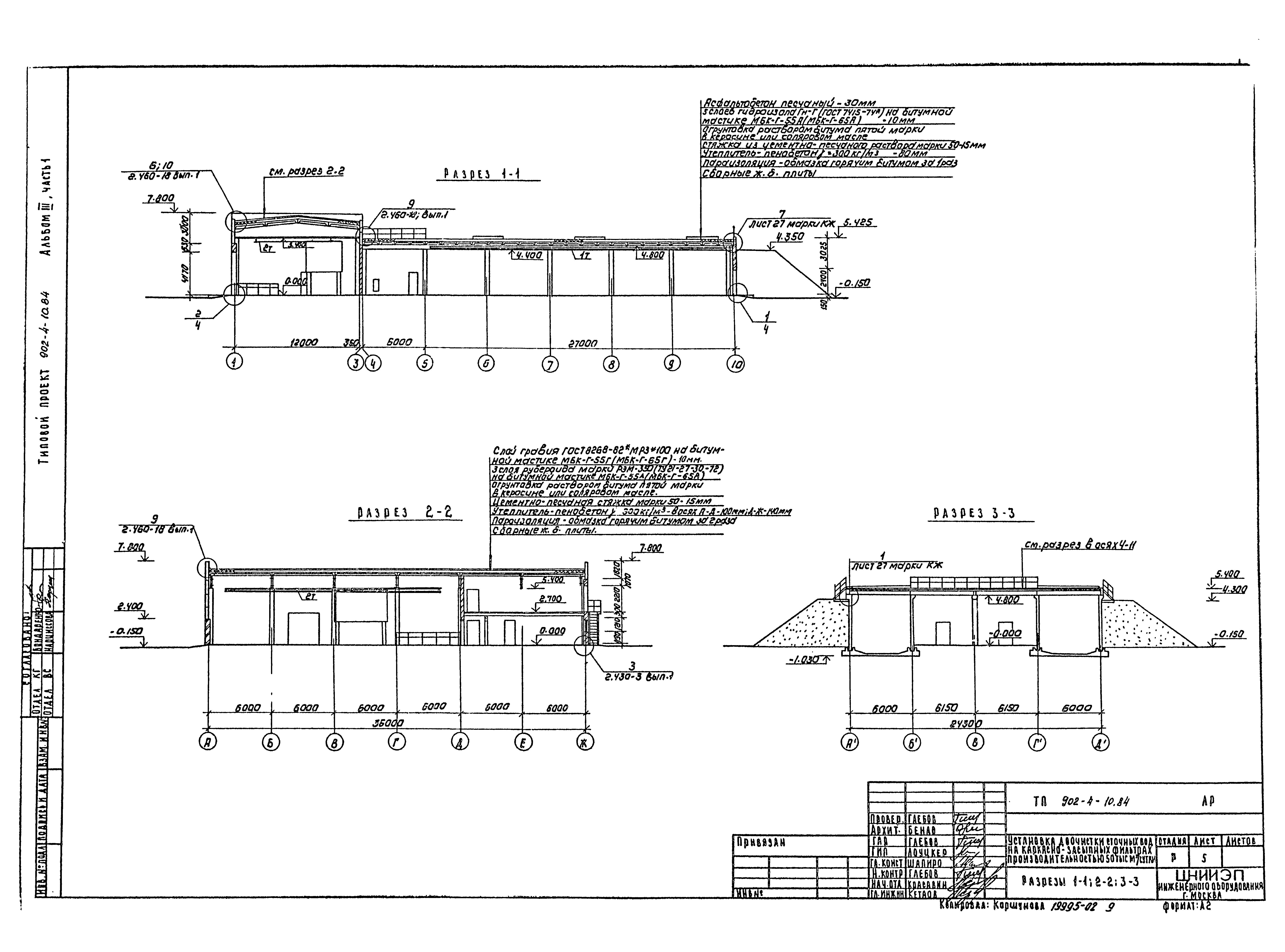
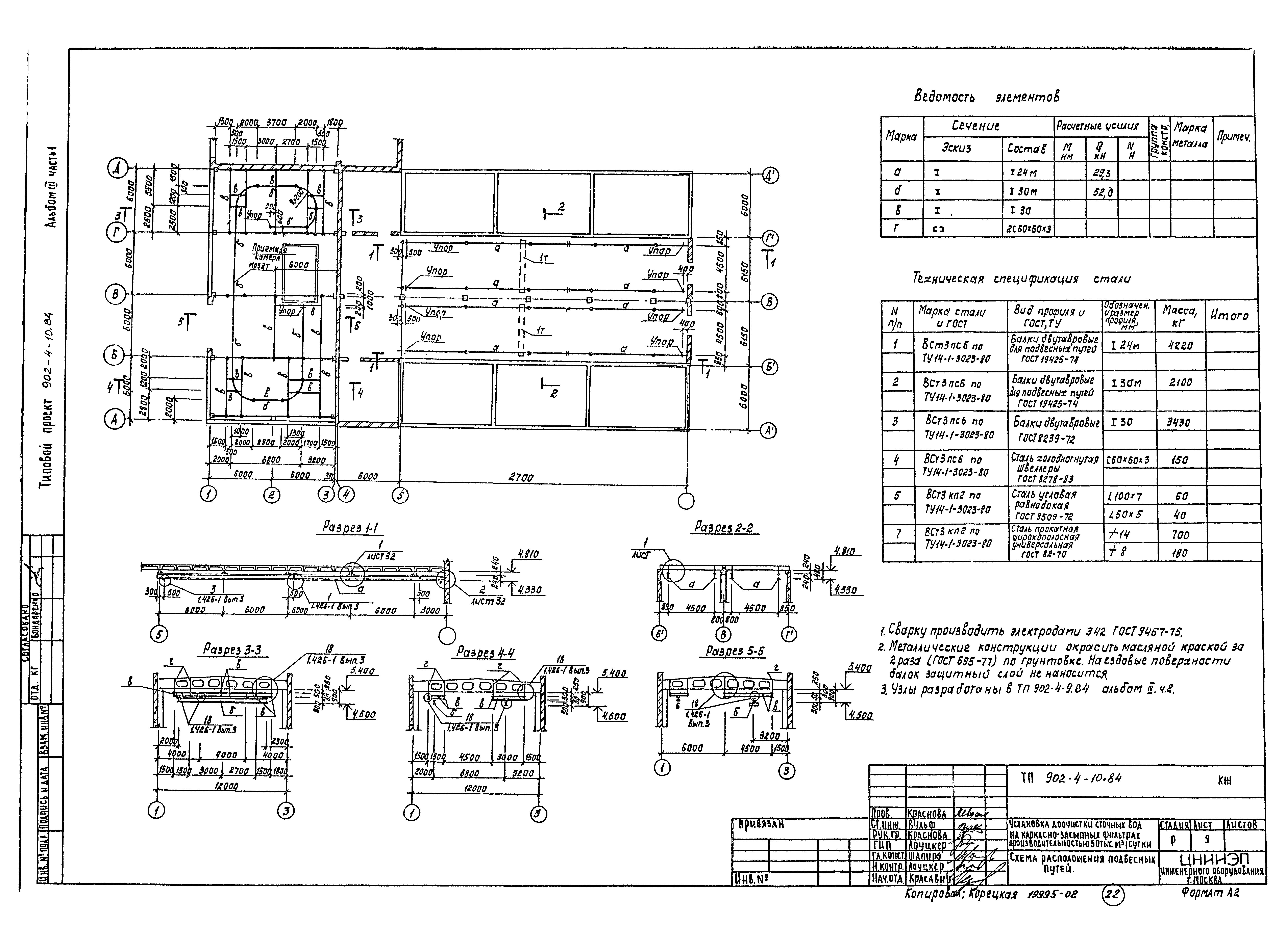
Скачать Типовой проект 902-4-10.84 Альбом III. Часть 1. Строительные решения. Архитектурные решения. Конструкции железобетонные за осью 4Дата актуализации: 01.01.2021
|
| Обозначение: | Типовой проект 902-4-10.84 |
| Обозначение англ: | 902-4-10.84 |
| Статус: | не определен законодательством |
| Название рус.: | Альбом III. Часть 1. Строительные решения. Архитектурные решения. Конструкции железобетонные за осью "4" |
| Дата добавления в базу: | 01.02.2017 |
| Дата актуализации: | 01.01.2021 |
| Дата введения: | 28.06.1984 |
| Дата окончания срока действия: | 30.06.2003 |
| Разработан: | ЦНИИЭП |
| Утверждён: | 05.05.1984 Госгражданстрой (Gosgrazhdanstroy 133) |
| Издан: | ЦИТП Госстроя СССР (CITP, Gosstroy (USSR) 1985 г. ) |






















