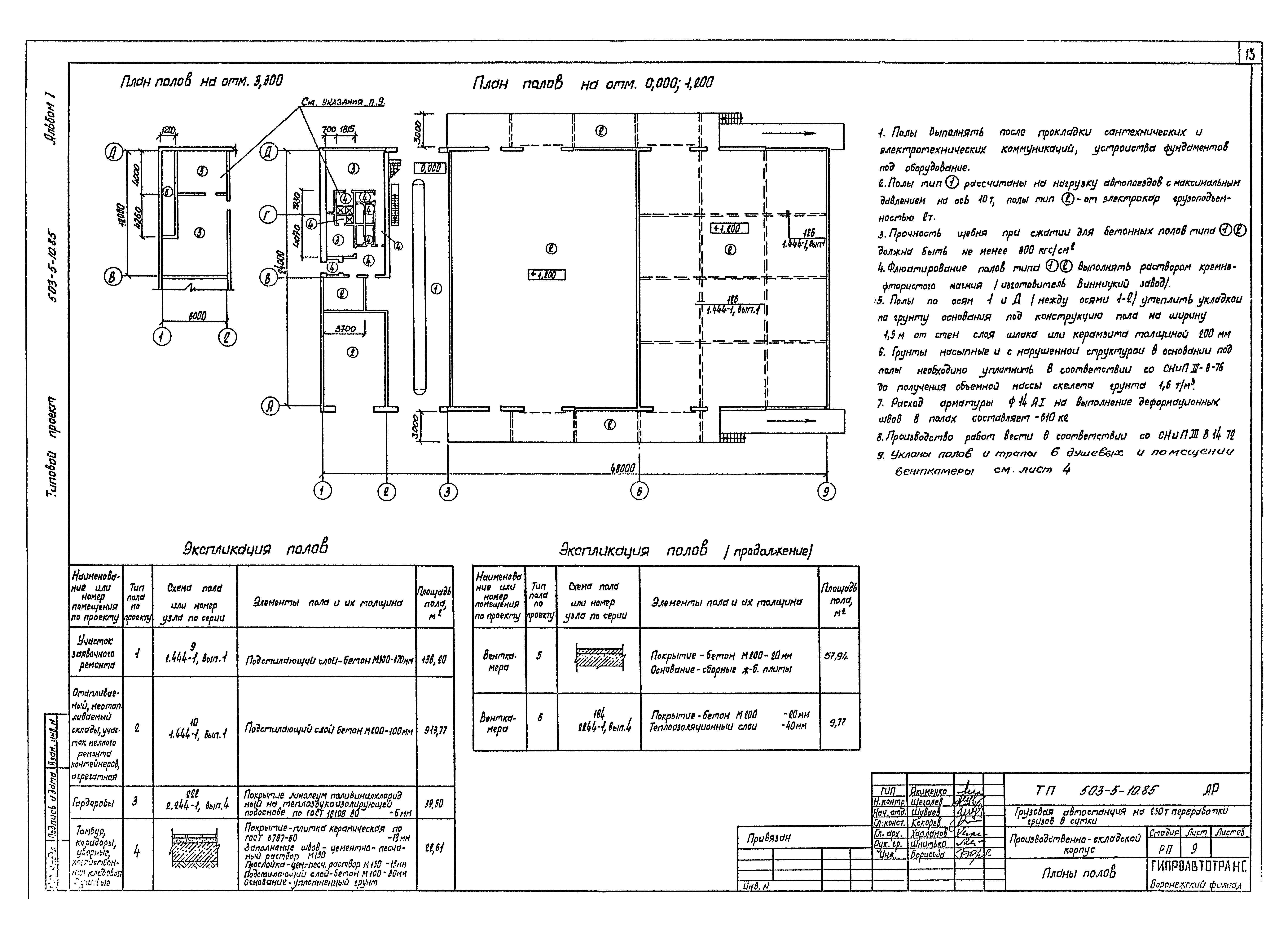
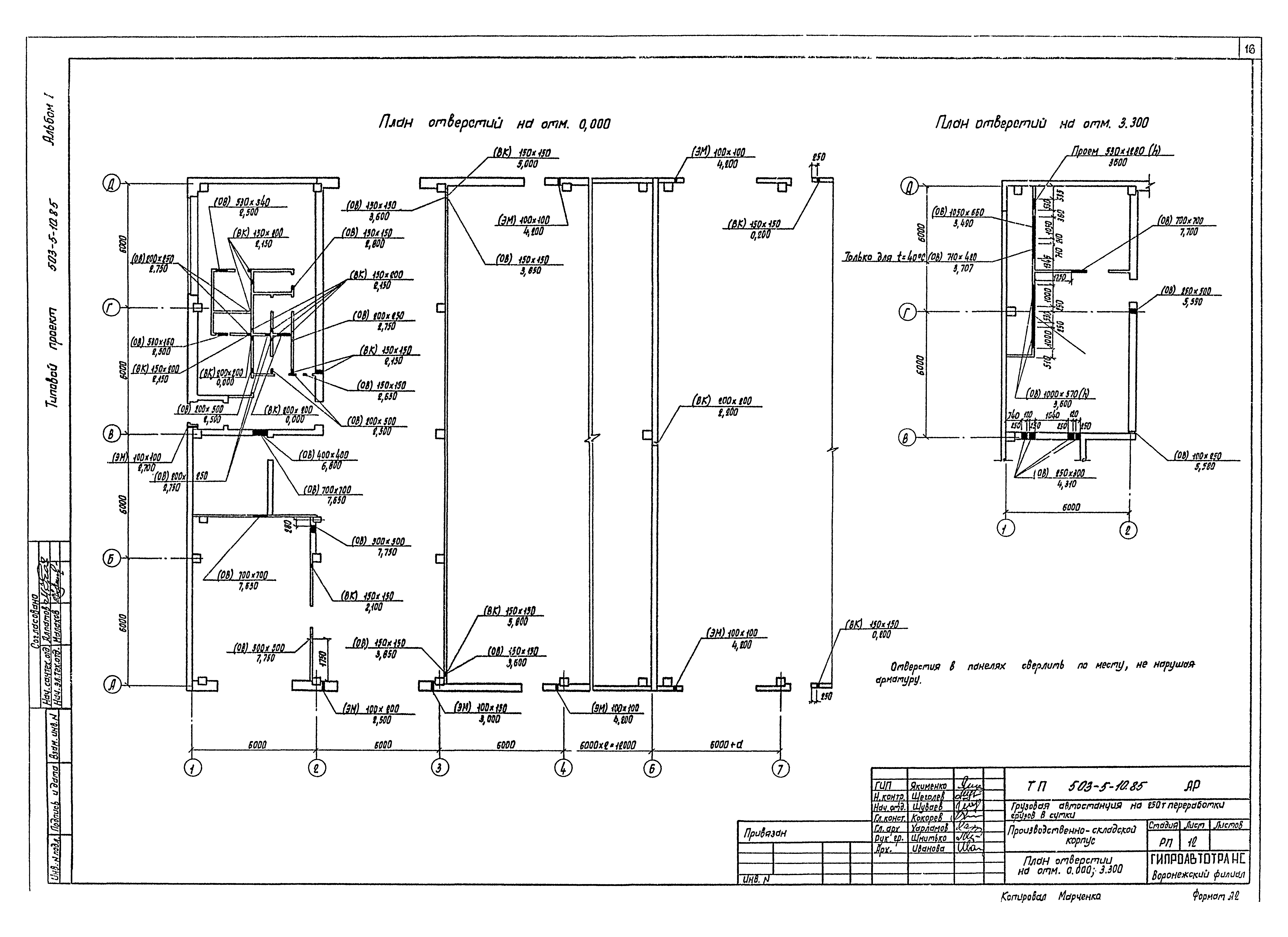
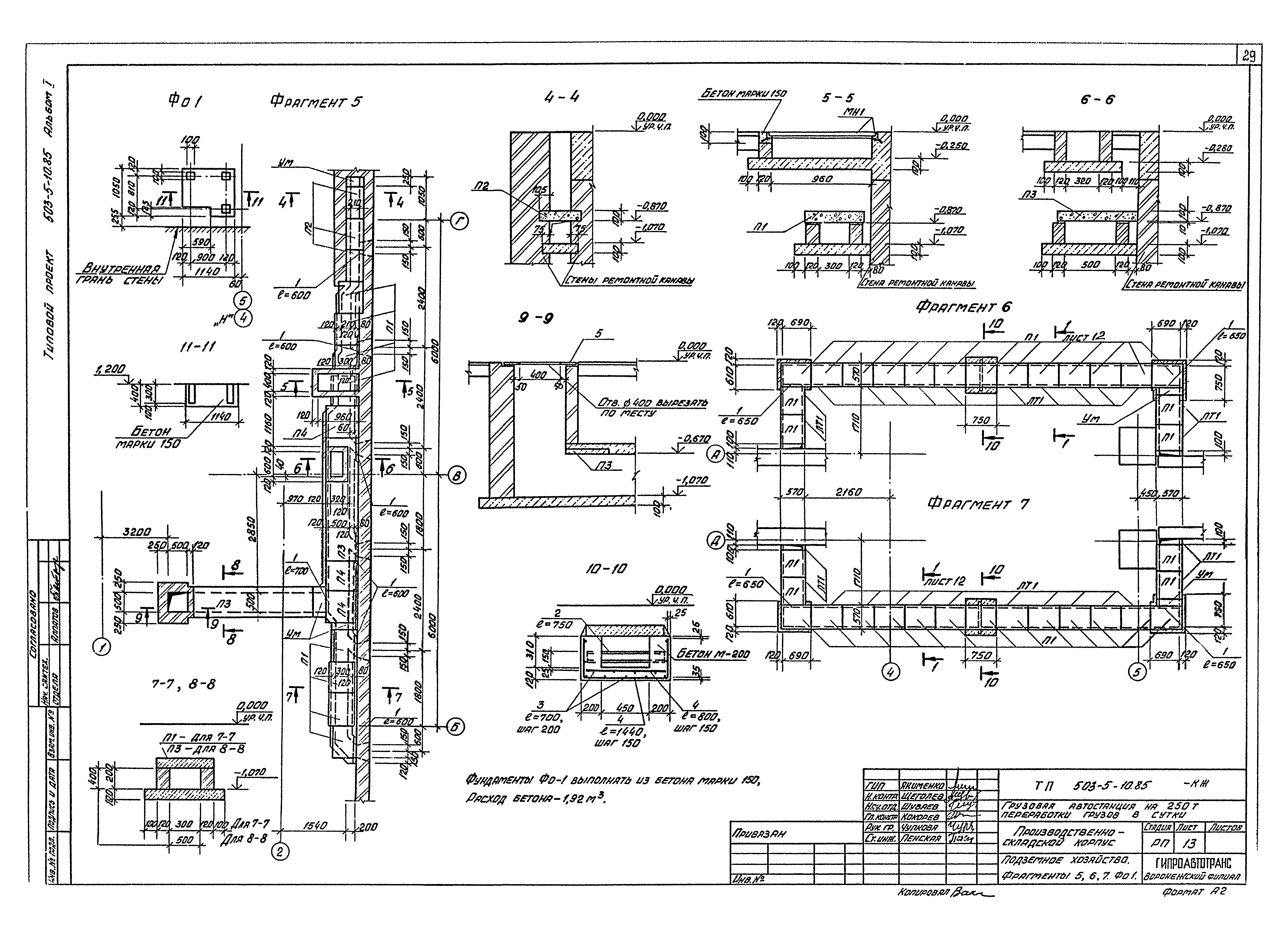
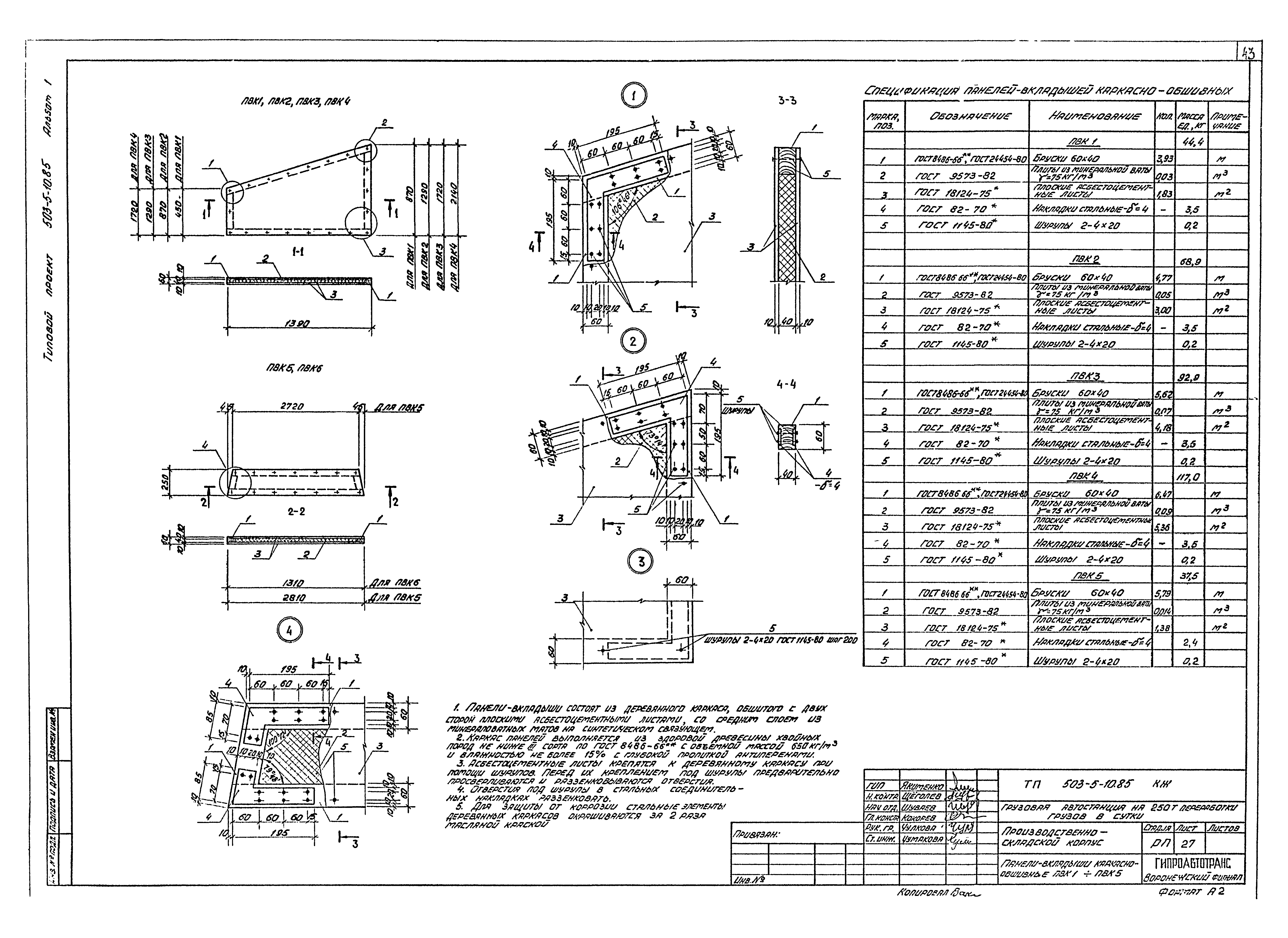
Скачать Типовой проект 503-5-10.85 Альбом I. Технологические чертежи. Архитектурные решения. Конструкции железобетонные и металлические. Отопление и вентиляция, внутренний водопровод и канализацияДата актуализации: 01.01.2021 Типовой проект 503-5-10.85
Альбом I. Технологические чертежи. Архитектурные решения. Конструкции железобетонные и металлические. Отопление и вентиляция, внутренний водопровод и канализация| Обозначение: | Типовой проект 503-5-10.85 | | Обозначение англ: | 503-5-10.85 | | Статус: | действует | | Название рус.: | Альбом I. Технологические чертежи. Архитектурные решения. Конструкции железобетонные и металлические. Отопление и вентиляция, внутренний водопровод и канализация | | Дата добавления в базу: | 01.02.2017 | | Дата актуализации: | 01.01.2021 | | Дата введения: | 15.05.1984 | | Разработан: | Воронежский филиал Гипроавтотранс
| | Утверждён: | 15.05.1984 Минавтотранс РСФСР (Russian Federation Minavtotrans 27)
| | Издан: | ЦИТП Госстроя СССР (CITP, Gosstroy (USSR) 1986 г. )
|
                                                                 
|