Скачать Технологические схемы очистных и подготовительных работ на угольных шахтах производственного объединения по добыче угля Северовостокуголь

Дата актуализации: 01.01.2021

Технологические схемы очистных и подготовительных работ на угольных шахтах производственного объединения по добыче угля "Северовостокуголь"

Статус:справочные материалы, мп, тпр
Название рус.:Технологические схемы очистных и подготовительных работ на угольных шахтах производственного объединения по добыче угля "Северовостокуголь"
Дата добавления в базу:01.02.2017
Дата актуализации:01.01.2021
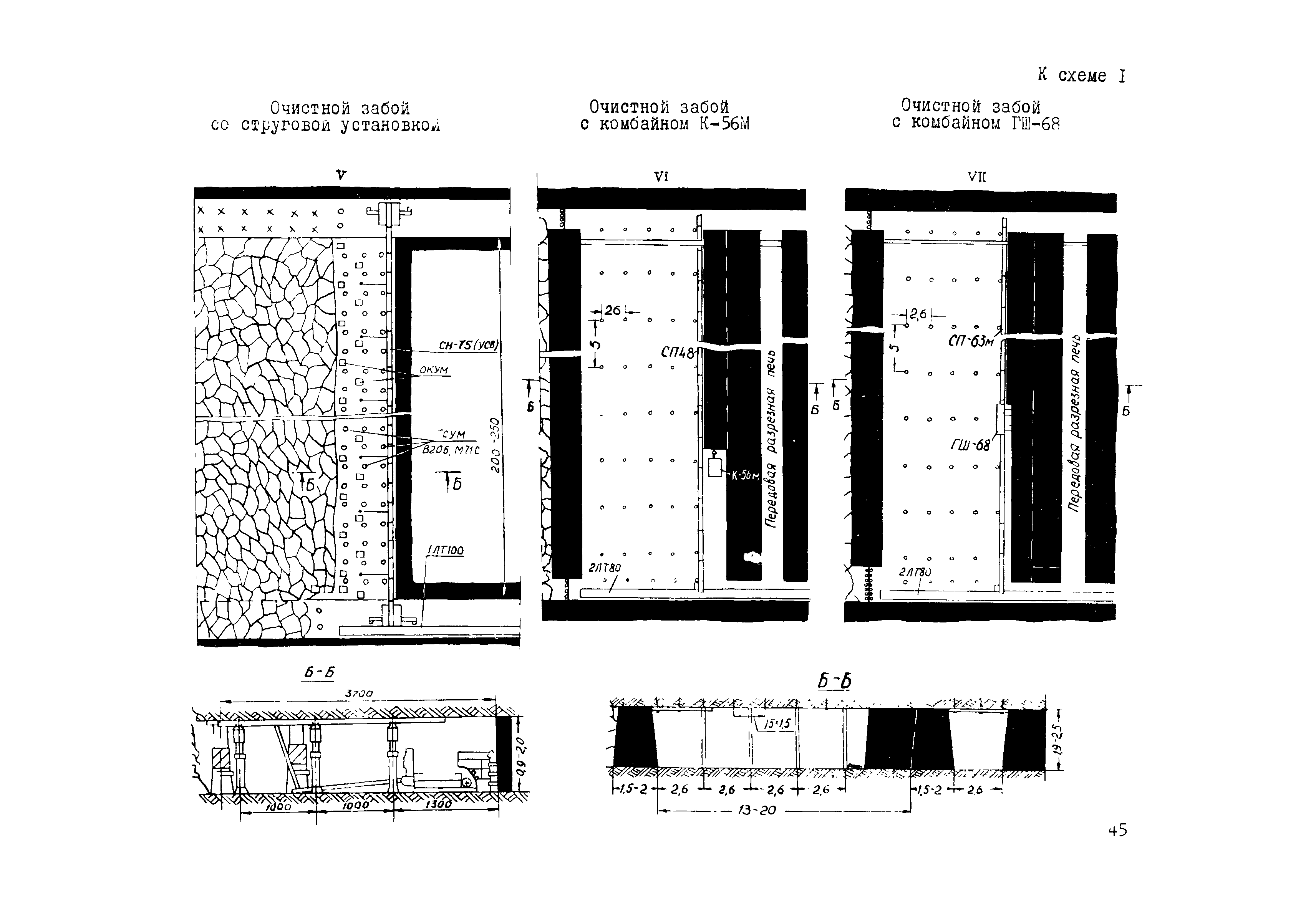
Область применения:В документе даются методики расчета конструктивных элементов технологии очистных работ, параметров систем регулирования теплового режима при различных вариантах локального подогрева воздуха в очистки выработках, выбора средств механизации выемки углей по сопротивляемости многолетнемерзлых углей резанию и т.д. Представлены технологические схемы очистных работ, технико-экономические данные каждой схемы, технология проведения подготовительных выработок, схемы и последовательностью подготовки очистного фронта. Схемы рекомендуются для применения на шахтах производственного объединения "Северовостокуголь".
Оглавление:1 Горно-геологические и горно-технические условия разработки угольных месторождений северо-восточных районов СССР
2 Очистные работы
3 Проведение подготовительных выработок
4 Тепловой режим шахт, работающих в зоне многолетней мерзлоты
5 Способы и средства комплексного обеспыливания шахт
6 Защита горных выработок от воды
7 Технологические схемы
Схема 1. Технология очистных работ при системе разработки длинными столбами по простиранию с обрушением кровли
Схема 2. Технология очистных работ при системе разработки длинными столбами по простиранию с обрушением кровли на целики угля
Схема 3. Технология очистных работ при камерной системе разработки с поддержанием кровли на целиках угля
Разработан: ИГД им. А.А. Скочинского
Утверждён:26.01.1977 Министерство угольной промышленности СССР (USSR Ministry of the Coal Industry )