Скачать Технологические схемы разработки пластов, опасных по внезапным выбросам угля и газаДата актуализации: 01.01.2021
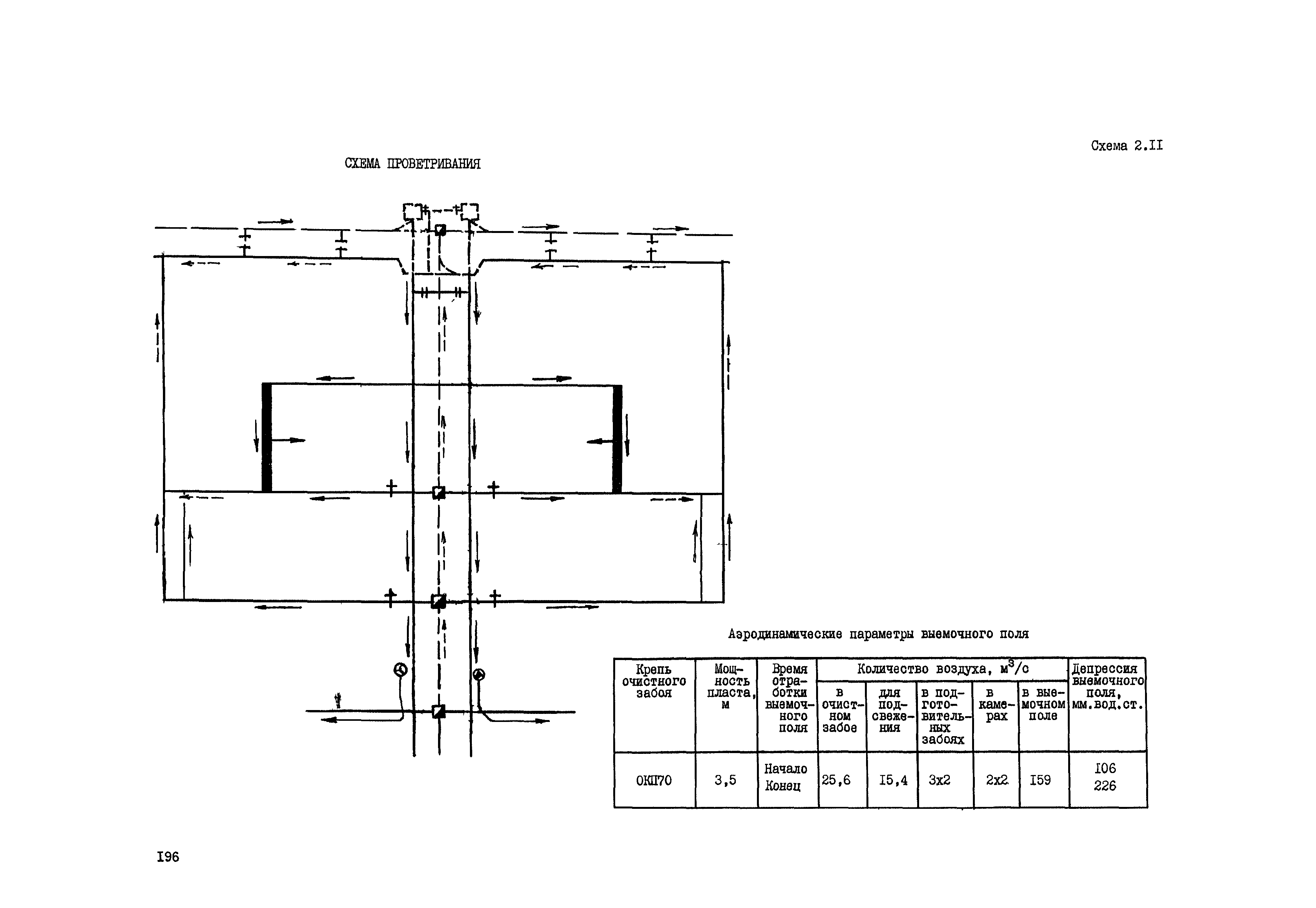
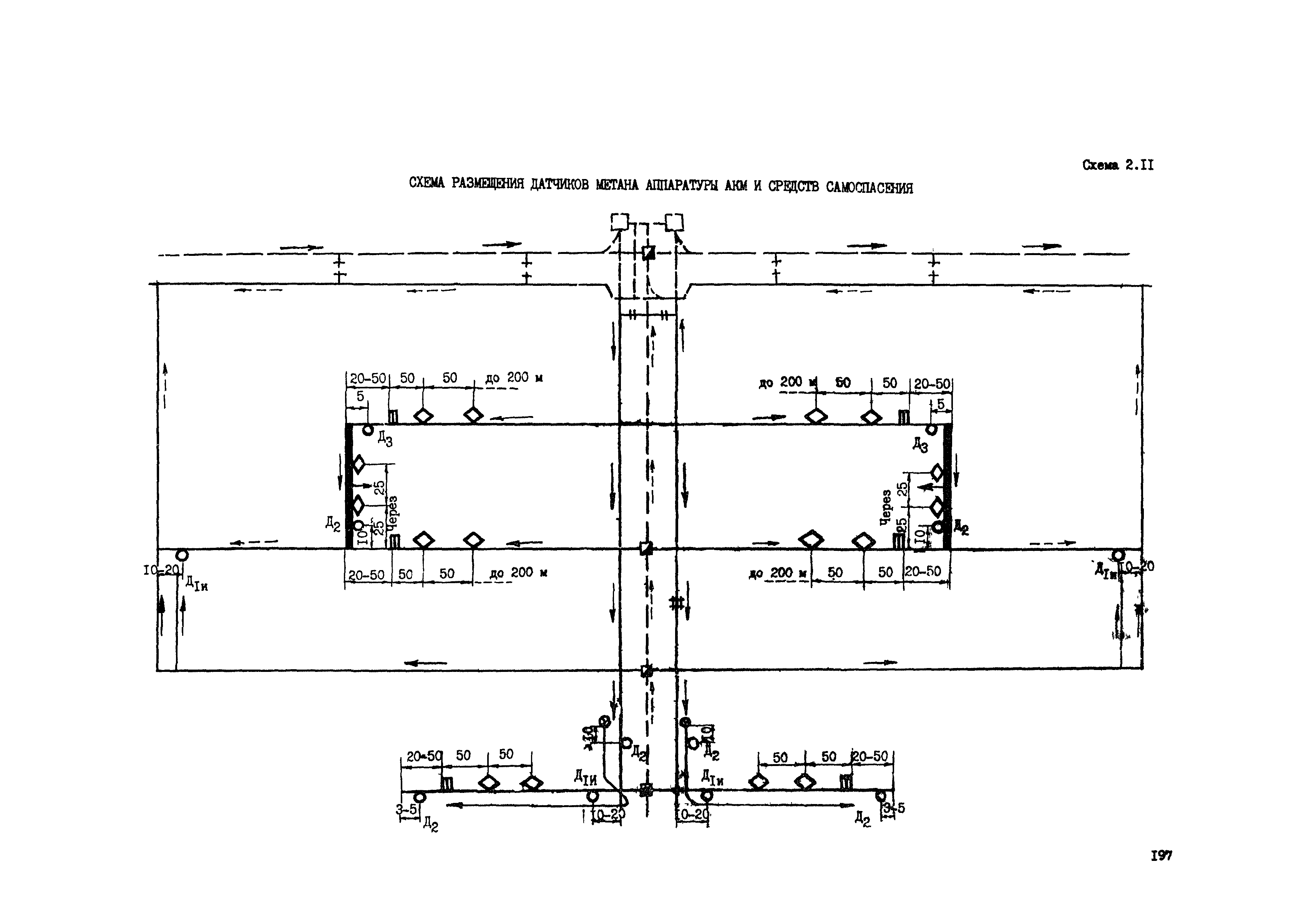
Технологические схемы разработки пластов, опасных по внезапным выбросам угля и газа| Статус: | справочные материалы, мп, тпр | | Название рус.: | Технологические схемы разработки пластов, опасных по внезапным выбросам угля и газа | | Дата добавления в базу: | 01.02.2017 | | Дата актуализации: | 01.01.2021 | | Область применения: | Документ предназначен для административно-технических руководителей и других должностных лиц действующих и строящихся шахт, а также для работников проектных, научно-исследовательских и других институтов и организаций | | Оглавление: | Условные обозначения 1 Технологические схемы вскрытия угольных пластов вертикальными стволами и квершлагами и проведения выработок по выбросоопасным породам 2 Технологические схемы очистных и подготовительных работ в выемочном участке 3 Технологические схемы перехода полостей выбросов 4 Пояснительная записка 4.1. Общие положения и основные принципы разработки технологических схем 4.2. Основные горно—геологические условия залегания угольных пластов, опасных по внезапным выбросам угля и газа 4.3. Вскрытие угольных пластов стволами и квершлагами 4.4. Подготовка шахтного поля 4.5. Проведение подготовительных выработок по выбросоопасным породам 4.6. Проведение подготовительных выработок по выбросоопасным угольным пластам 4.7. Системы разработки 4.8. Параметры способов подготовки и систем разработки 4.9. Охрана и крепление горных выработок 4.10. Механизация очистных работ 4.11. Управление вмещающими породами 4.12 Проветривание выемочных участков 4.13. Способы предотвращения внезапных выбросов угля и газа 4.14. Режим и организация работ в очистных забоях 4.15. Определение нагрузки на очистной забой 4.16. Особенности ведения горных работ в зонах геологических нарушений 4.17. Особенности разработки выбросоопасных пластов, являющихся защитными для других пластов свиты 4.18. Общие меры защиты горнорабочих от выбросов угля и газа 4.19. Технология перехода полостей выбросов | | Разработан: | ИГД им. А.А. Скочинского Минуглепрома СССР
| | Утверждён: | 12.08.1982 Министерство угольной промышленности СССР (USSR Ministry of the Coal Industry 384)
|
                                                                                                                                                                                                                                                               
|