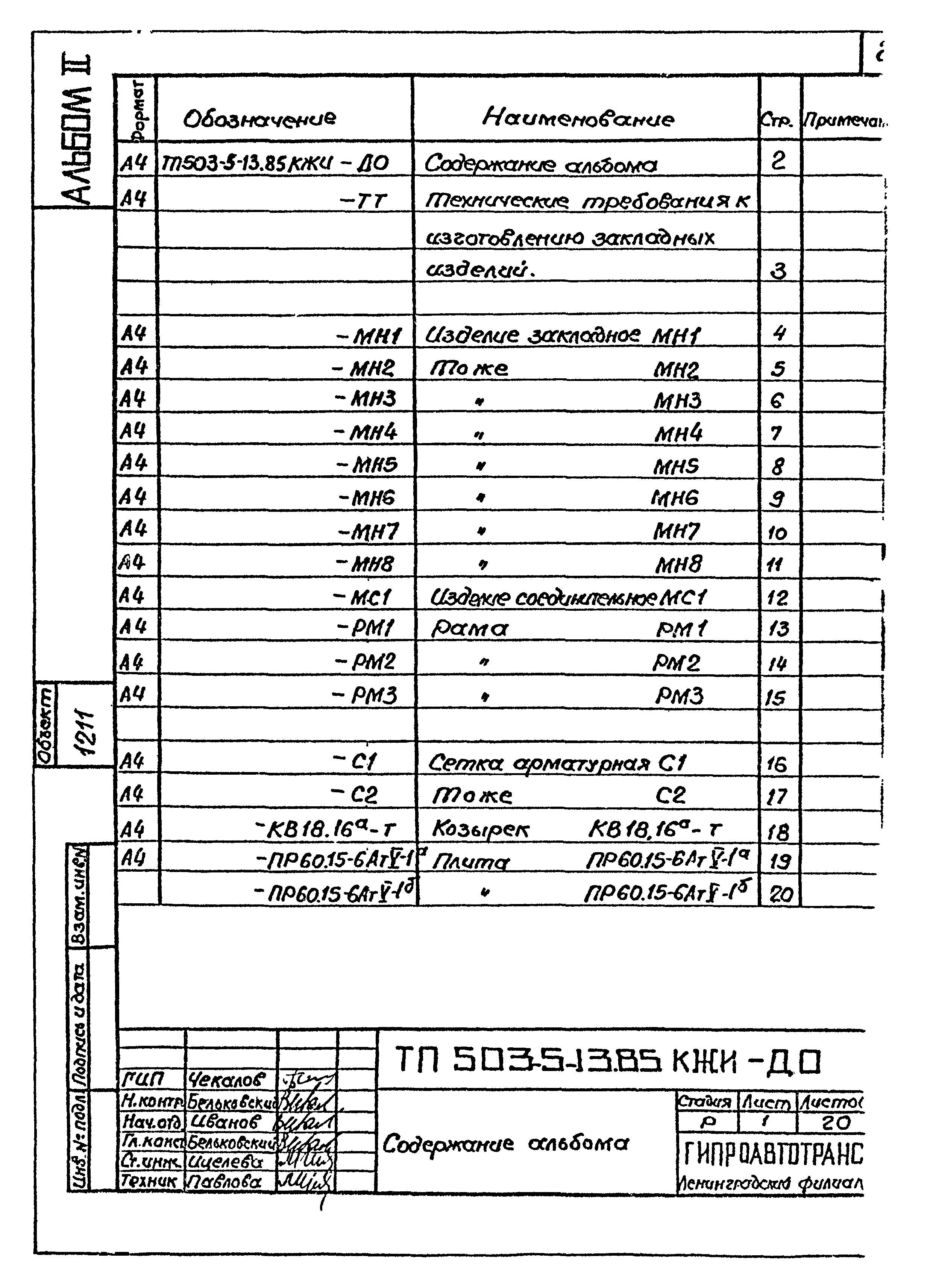
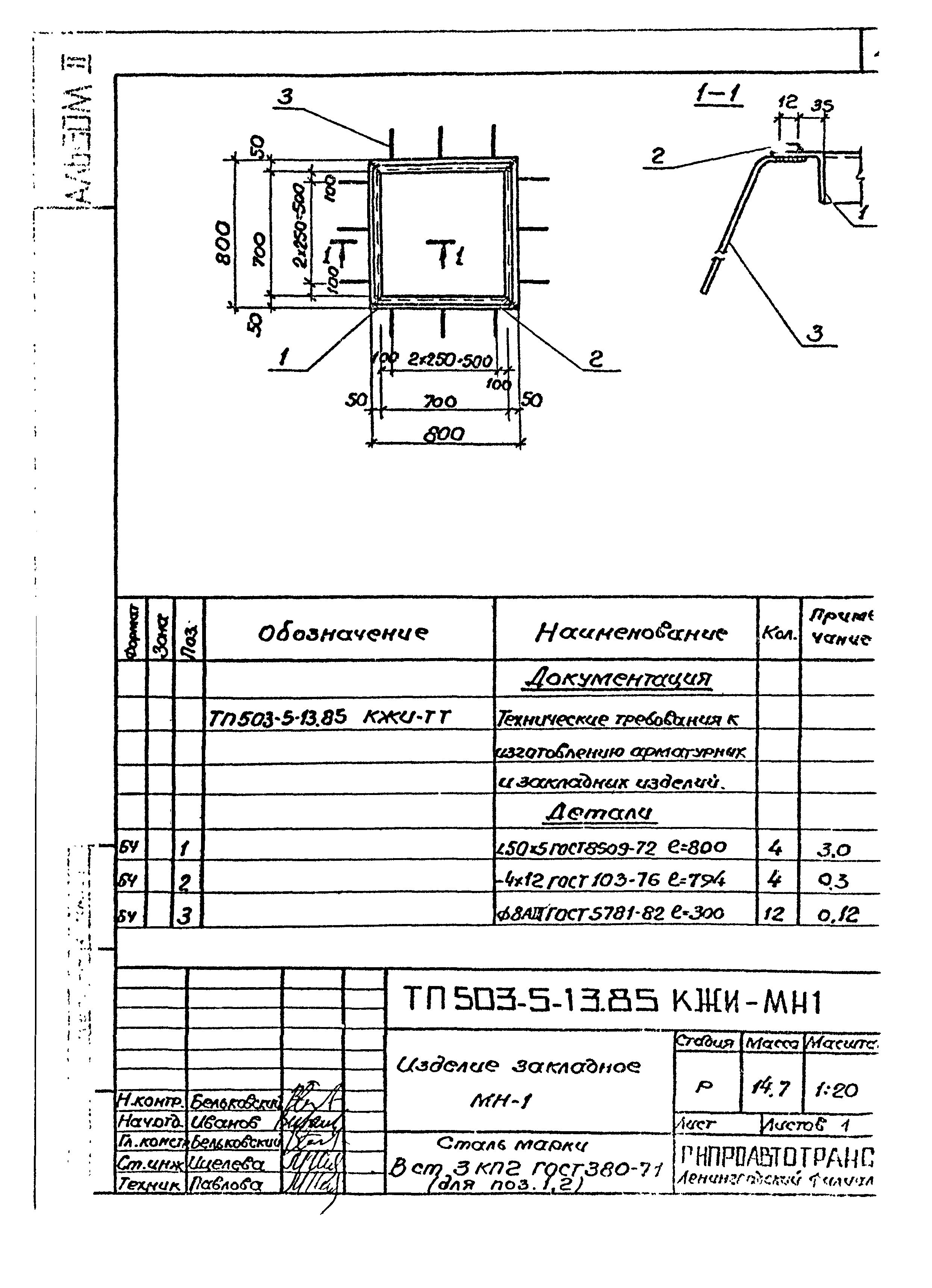
Скачать Типовой проект 503-5-13.85 Альбом II. Стальные закладные и арматурные изделия. Сборные железобетонные изделияДата актуализации: 01.01.2021
|
| Обозначение: | Типовой проект 503-5-13.85 |
| Обозначение англ: | 503-5-13.85 |
| Статус: | действует |
| Название рус.: | Альбом II. Стальные закладные и арматурные изделия. Сборные железобетонные изделия |
| Дата добавления в базу: | 01.02.2017 |
| Дата актуализации: | 01.01.2021 |
| Дата введения: | 05.07.1985 |
| Разработан: | Гипроавтотранс |
| Утверждён: | 05.07.1985 Минавтотранс РСФСР (Russian Federation Minavtotrans 22) |
| Издан: | ЦИТП Госстроя СССР (CITP, Gosstroy (USSR) 1986 г. ) |
| Заменяет собой: |
|
| Нормативные ссылки: |





















