Скачать НД 2-020101-095 Часть IV. ОстойчивостьДата актуализации: 01.01.2021
|
| Обозначение: | НД 2-020101-095 |
| Обозначение англ: | ND 2-020101-095 |
| Статус: | заменен |
| Название рус.: | Часть IV. Остойчивость |
| Дата добавления в базу: | 01.02.2017 |
| Дата актуализации: | 01.01.2021 |
| Дата введения: | 01.01.2017 |
| Дата окончания срока действия: | 01.01.2018 |
| Область применения: | Требования части распространяются на закрытые (палубные) суда, плавающие в водоизмещающем состоянии. На парусные суда при плавании под парусами требования настоящей части распространяются в той мере, в какой это целесообразно и осуществимо. |
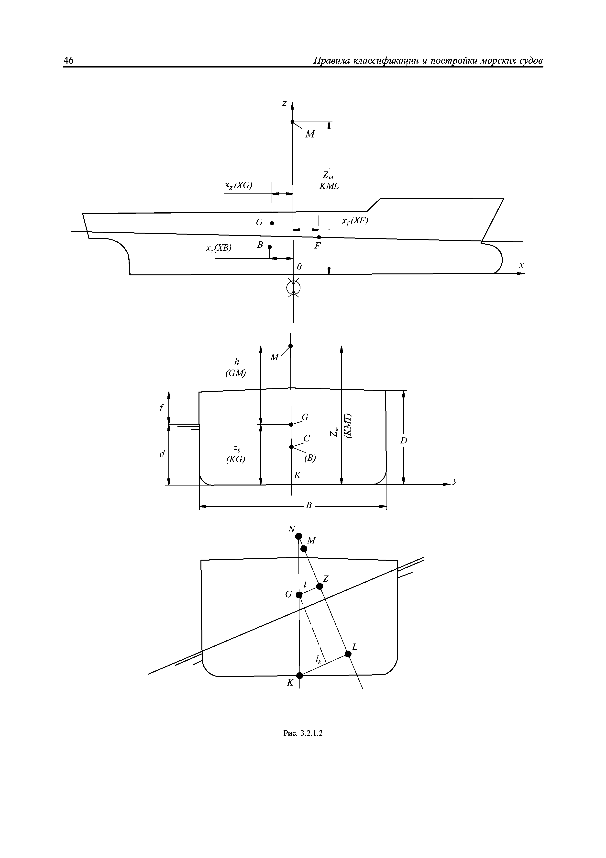
| Оглавление: | 1 Общие положения 1.1 Область распространения 1.2 Определения и пояснения 1.3 Объем освидетельствований 1.4 Общие технические требования 1.5 Опыты кренования и взвешивания 1.6 Отступления от Правил 1.7 Условия достаточной остойчивости 1.8 Перегон судов 2 Общие требования к остойчивости 2.1 Критерий погоды 2.2 Диаграмма статической остойчивости 2.3 Метацентрическая высота 2.4 Учет обледенения 3 Дополнительные требования к остойчивости 3.1Пассажирские суда 3.2 Сухогрузные суда 3.3 Лесовозы 3.4 Наливные суда 3.5 Рыболовные суда 3.6 Суда специального назначения 3.7 Буксиры 3.8 Дноуглубительные суда 3.9 Суда длиной менее 24м 3.10 Контейнеровозы 3.11 Суда обеспечения 3.12 Суда смешанного (река-море) плавания 4 Требования к остойчивости плавучих кранов, крановых судов, транспортных понтонов, доков и стоечных судов 4.1 Плавучие краны и крановые суда 4.2 Транспортные понтоны 4.3 Плавучие доки 4.4 Стоечные суда Приложение 1. Инструктивные указания по составлению Информации об остойчивости Приложение 2. Определение опрокидывающего момента для плавучего крана Таблица обозначений величин, принятых в части IV "Остойчивость" |
| Разработан: | Российский морской регистр судоходства |
| Утверждён: | 30.09.2016 Российский морской регистр судоходства |
| Издан: | Российский морской регистр судоходства (2017 г. ) |
| Список изменений: | |
| Заменяет собой: |






























































Текстовое изменение 314-14-999ц от 27.03.2017

