Скачать Временная инструкция по наладке, ремонту и эксплуатации автоматических систем противодымной защиты в жилых зданиях повышенной этажности

Дата актуализации: 01.01.2021

Временная инструкция по наладке, ремонту и эксплуатации автоматических систем противодымной защиты в жилых зданиях повышенной этажности

Статус:справочные материалы, мп, тпр
Название рус.:Временная инструкция по наладке, ремонту и эксплуатации автоматических систем противодымной защиты в жилых зданиях повышенной этажности
Дата добавления в базу:05.05.2017
Дата актуализации:01.01.2021
Область применения:Временная инструкция предназначена для жилищных эксплуатационных организаций, осуществляющих эксплуатацию зданий повышенной этажности.
Оглавление:1. Общие положения
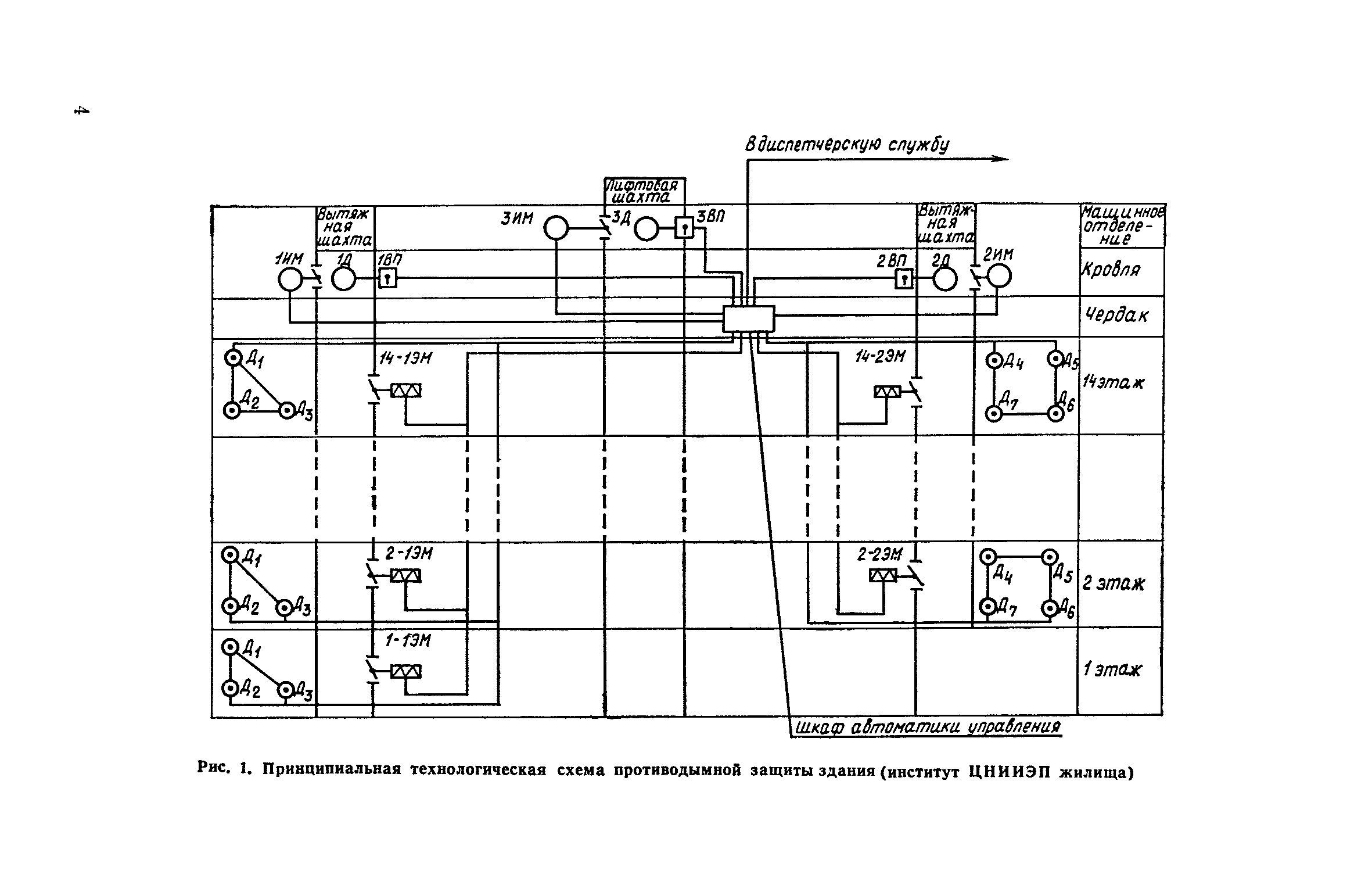
2. Устройство систем противодымной защиты
3. Правила приемки противодымной защиты к наладке
4. Наладка систем противодымной защиты
5. Правила приемки систем противодымной защиты к эксплуатации. Эксплуатация и техническое обслуживание
6. Указания по технике безопасности и пожарной безопасности
Приложение 1. Акт первичного обследования установки противодымной защиты жилых зданий
Приложение 2. Журнал регистрации работ по техническому обслуживанию, текущему ремонту и периодической наладке систем противодымной защиты жилых зданий
Разработан: Министерство жилищно-коммунального хозяйства РСФСР
Ленинградский научно-исследовательский институт ордена Трудового Красного Знамени Академии коммунального хозяйства им. К.Д. Памфилова
Управление пожарной охраны УВД Леноблгорисполкомов
Утверждён:06.10.1975 Министр жилищно-коммунального хозяйства РСФСР (421)
Принят: ГУПО МВД СССР (GUPO, USSR Ministry of Internal Affairs )
Издан: Стройиздат (1977 г. )