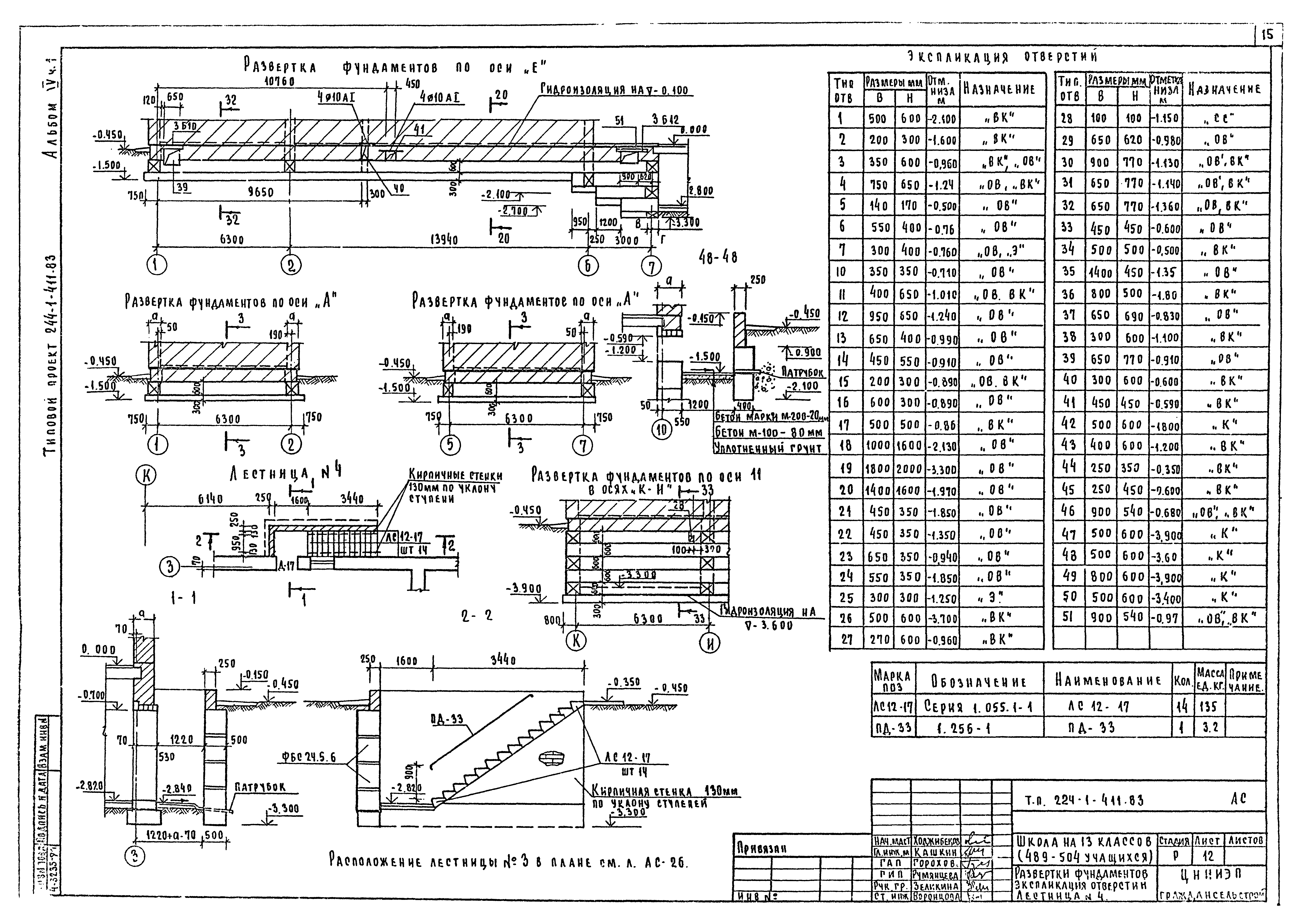
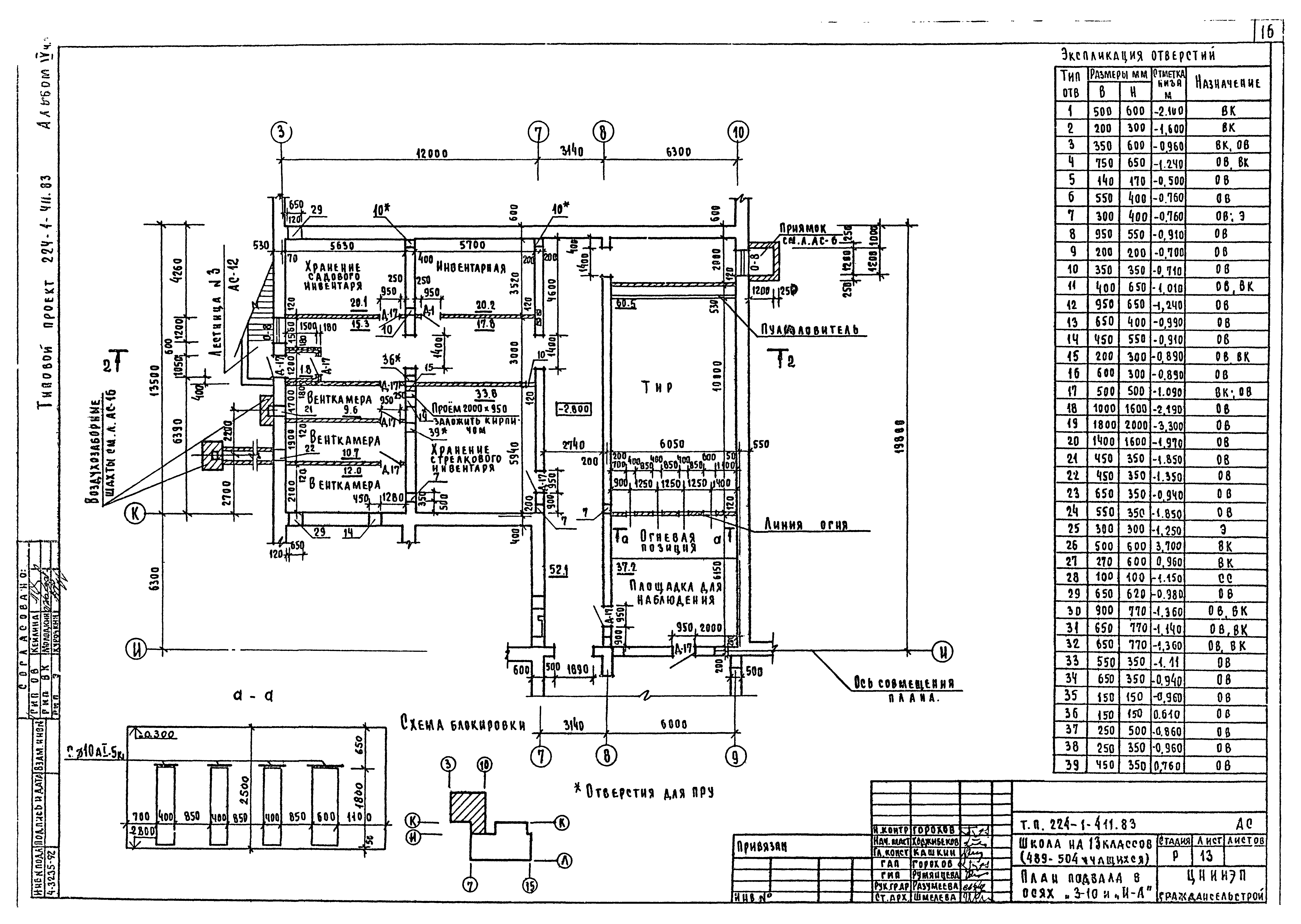
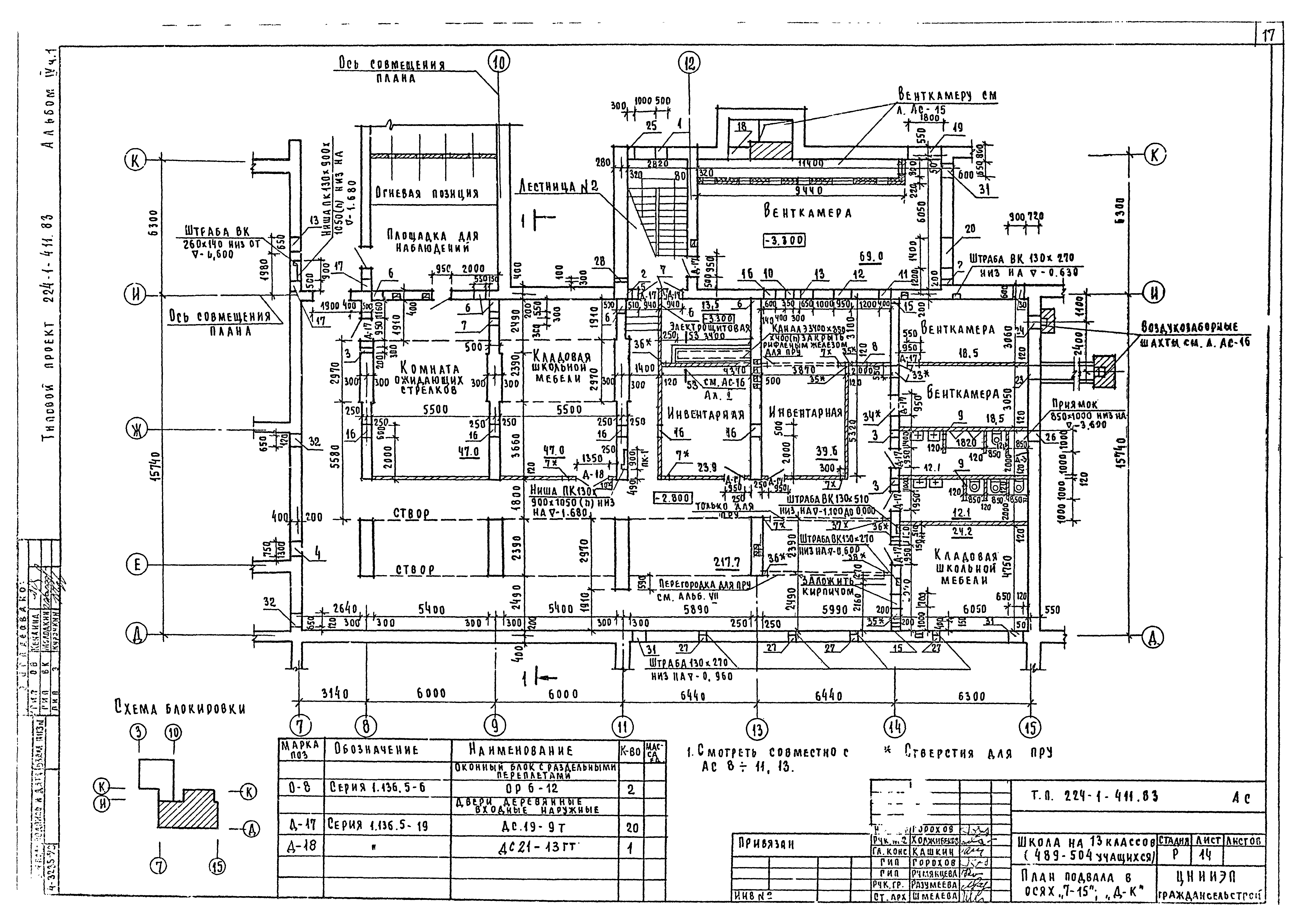
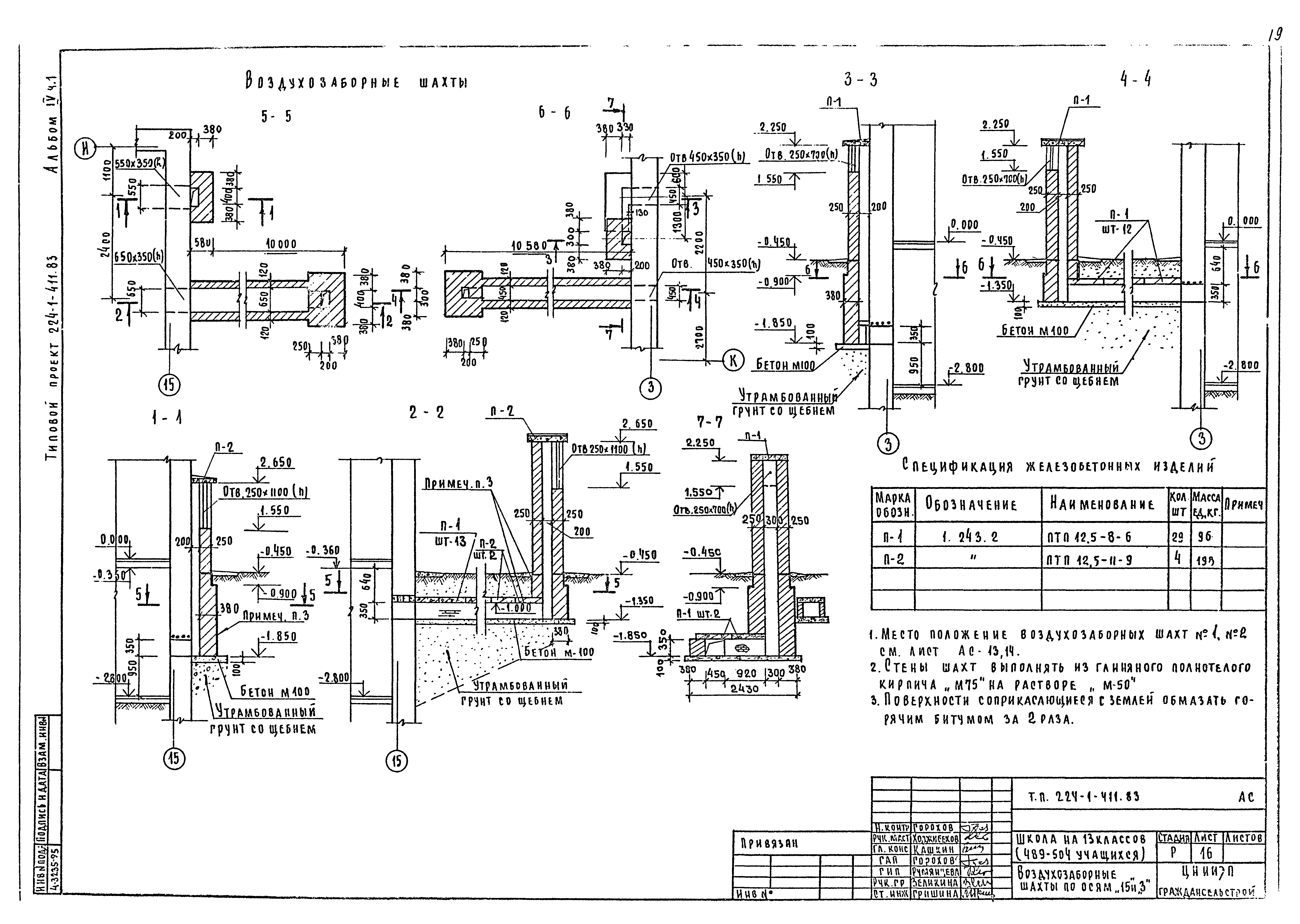
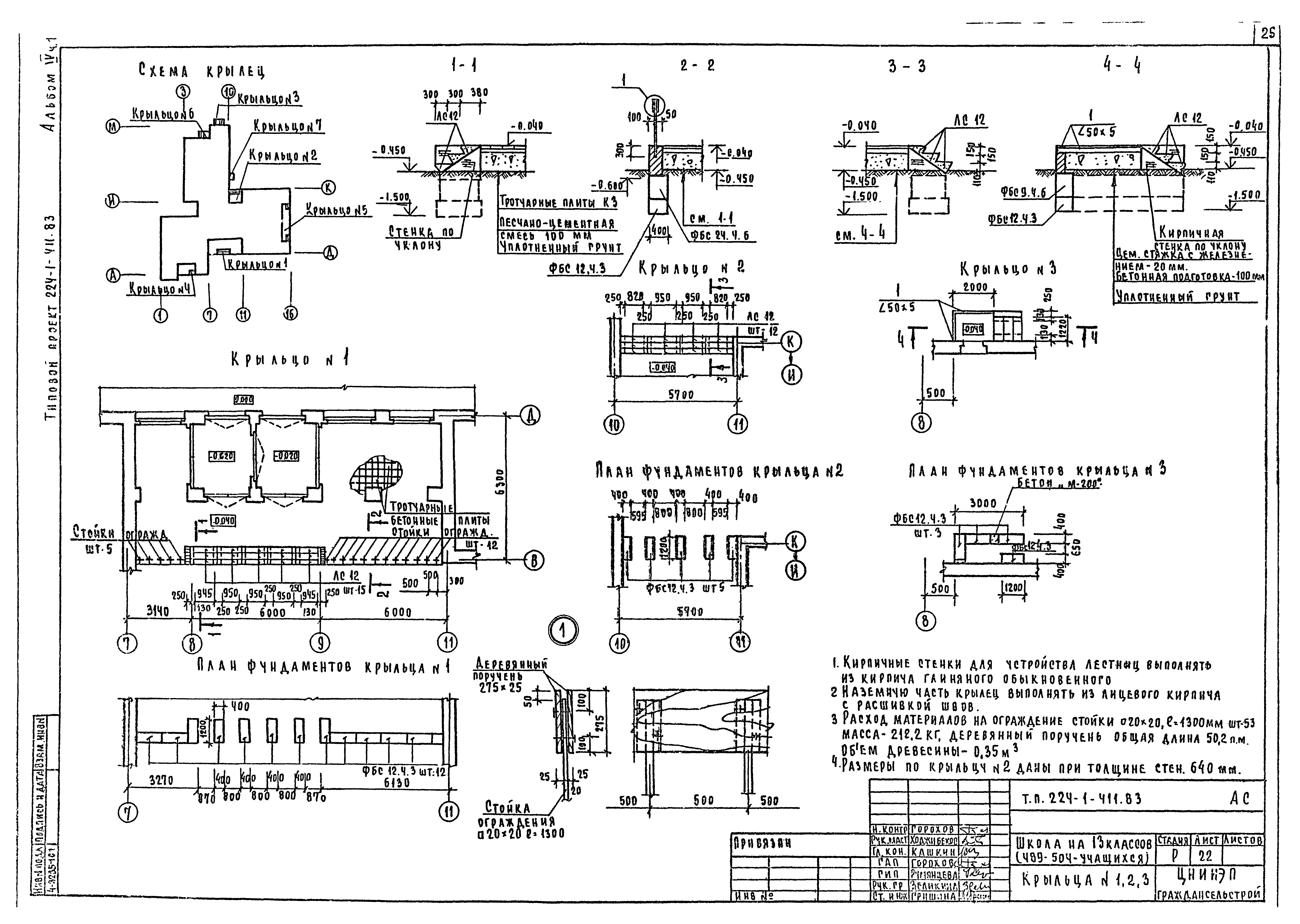
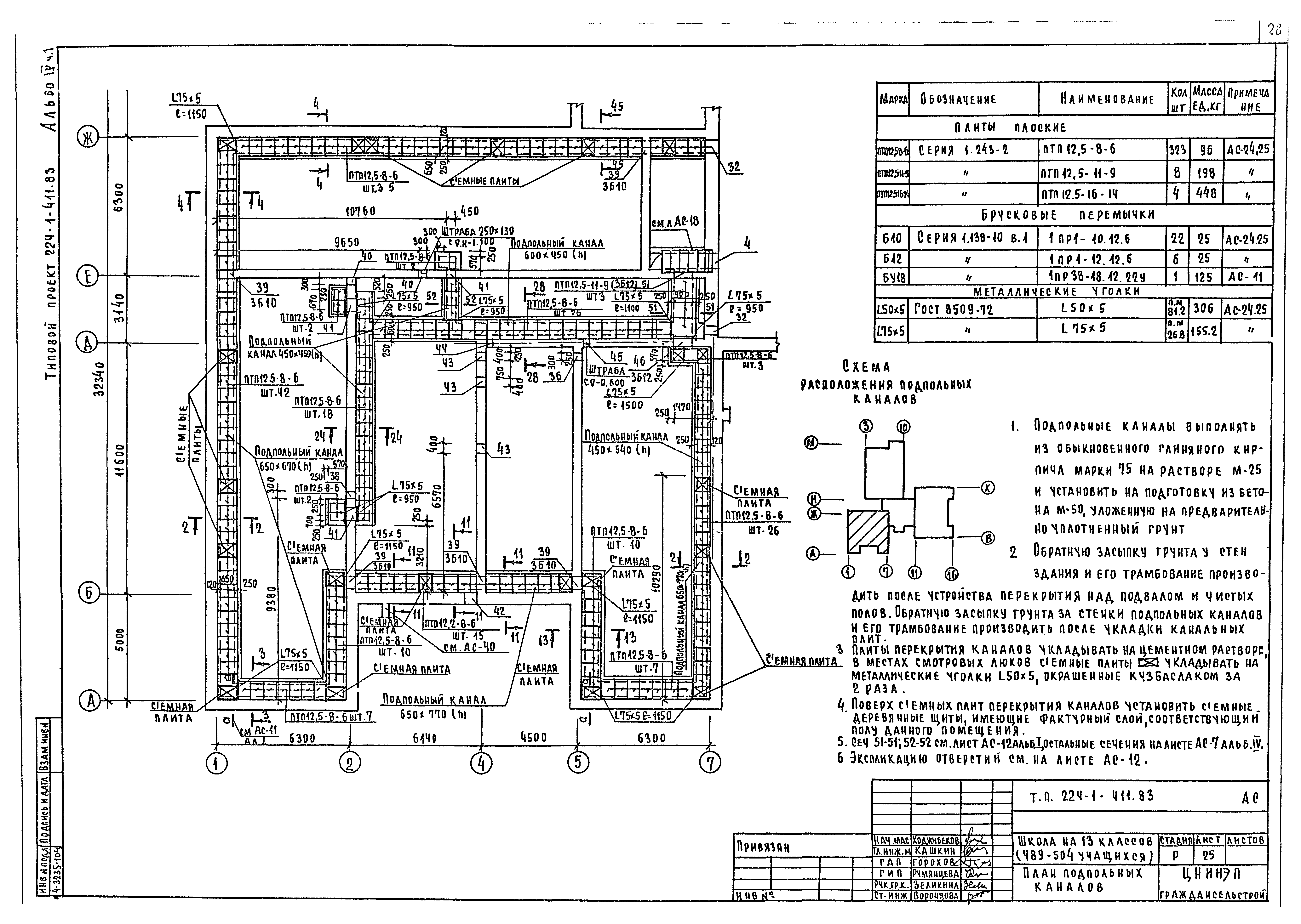
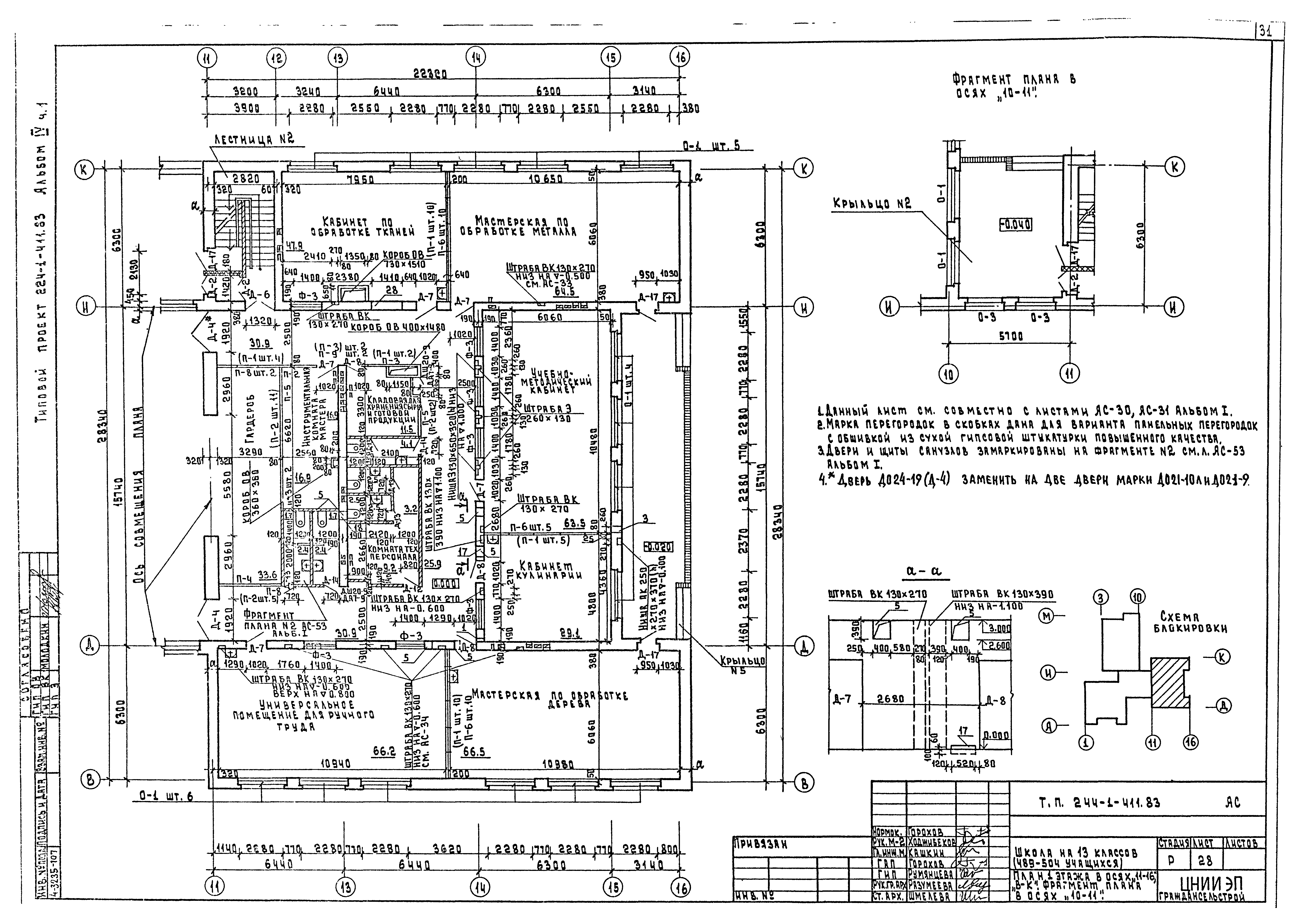
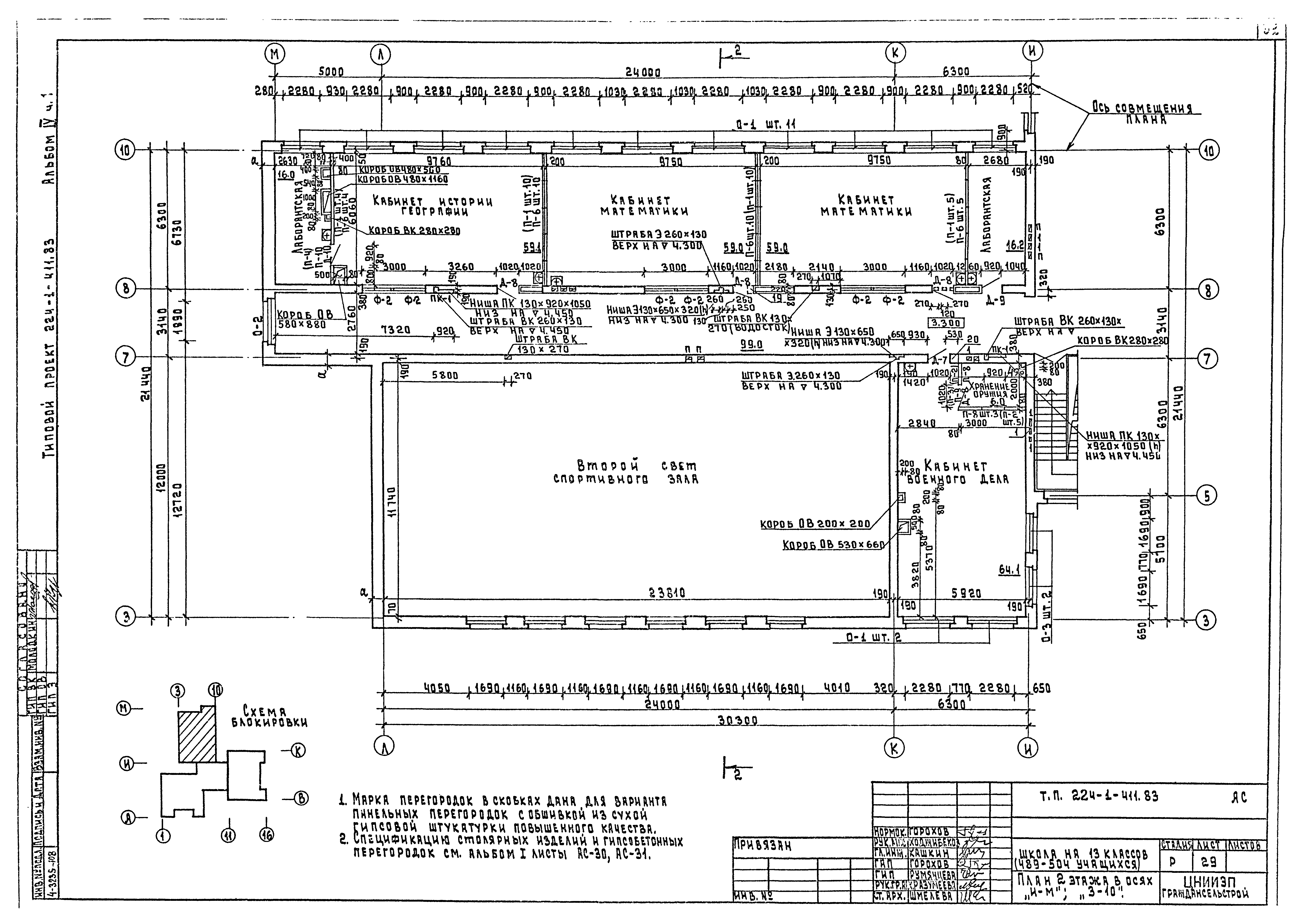
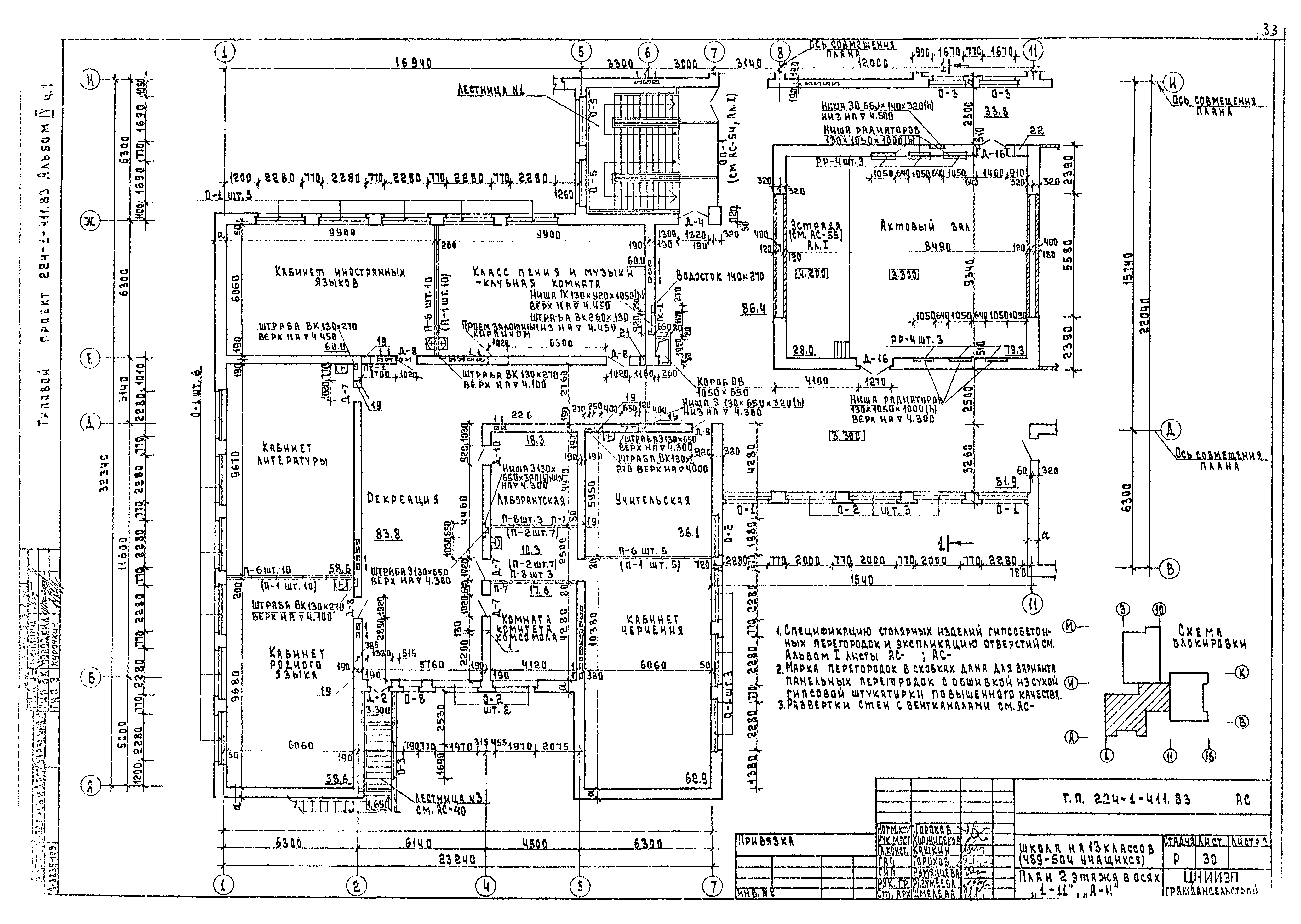
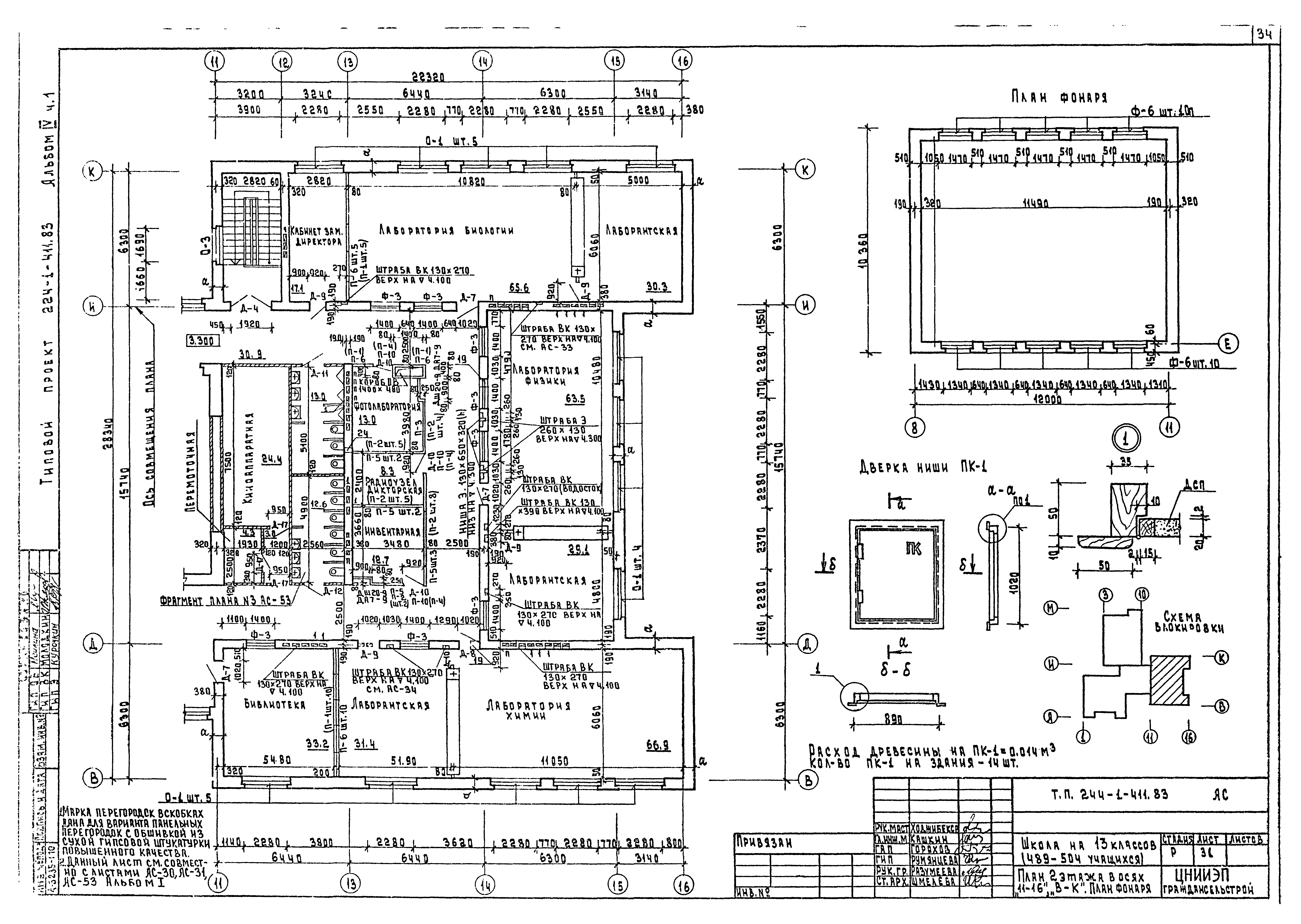
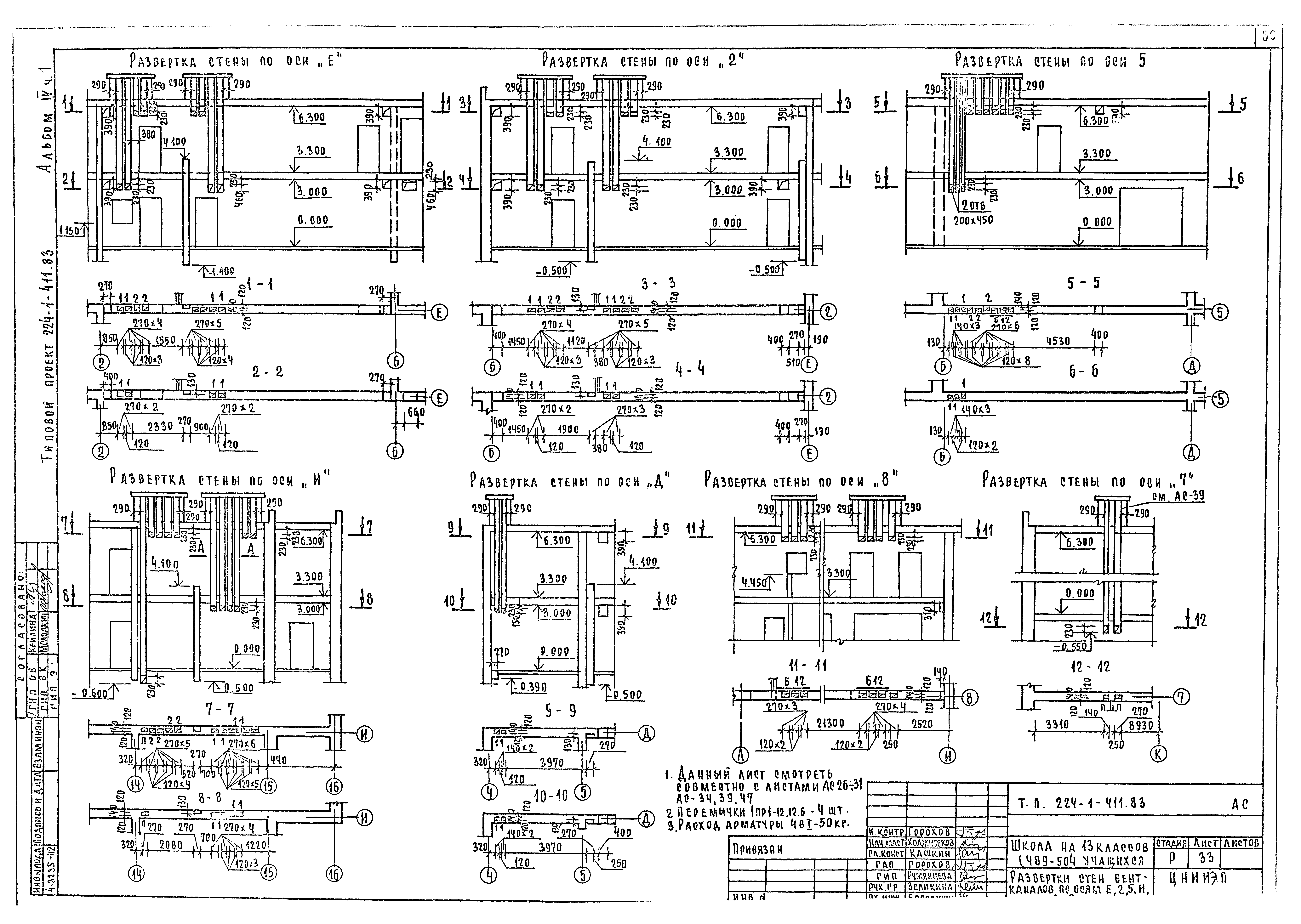
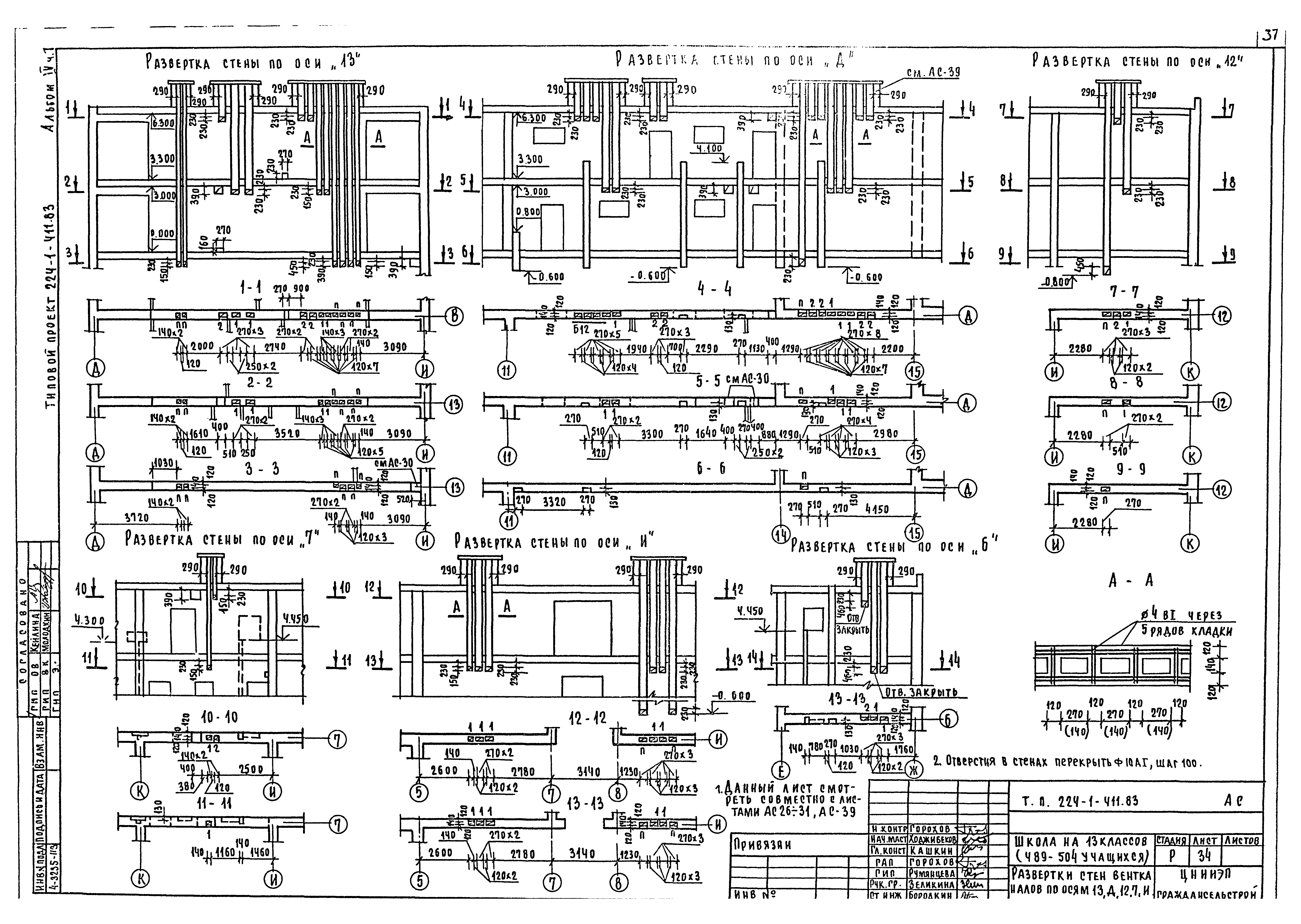
Скачать Типовой проект 224-1-411.83 Альбом IV. Часть 1. Дополнительные чертежи для варианта с хозяйственно-бытовыми помещениями в подвалеДата актуализации: 01.01.2021
|
| Обозначение: | Типовой проект 224-1-411.83 |
| Обозначение англ: | 224-1-411.83 |
| Статус: | не определен законодательством |
| Название рус.: | Альбом IV. Часть 1. Дополнительные чертежи для варианта с хозяйственно-бытовыми помещениями в подвале |
| Дата добавления в базу: | 01.02.2017 |
| Дата актуализации: | 01.01.2021 |
| Дата введения: | 18.02.1985 |
| Дата окончания срока действия: | 30.06.2003 |
| Разработан: | ЦНИИЭП граждансельстрой |
| Утверждён: | 27.05.1983 Госгражданстрой (Gosgrazhdanstroy 164) |
| Издан: | ЦИТП Госстроя СССР (CITP, Gosstroy (USSR) 1987 г. ) |












































