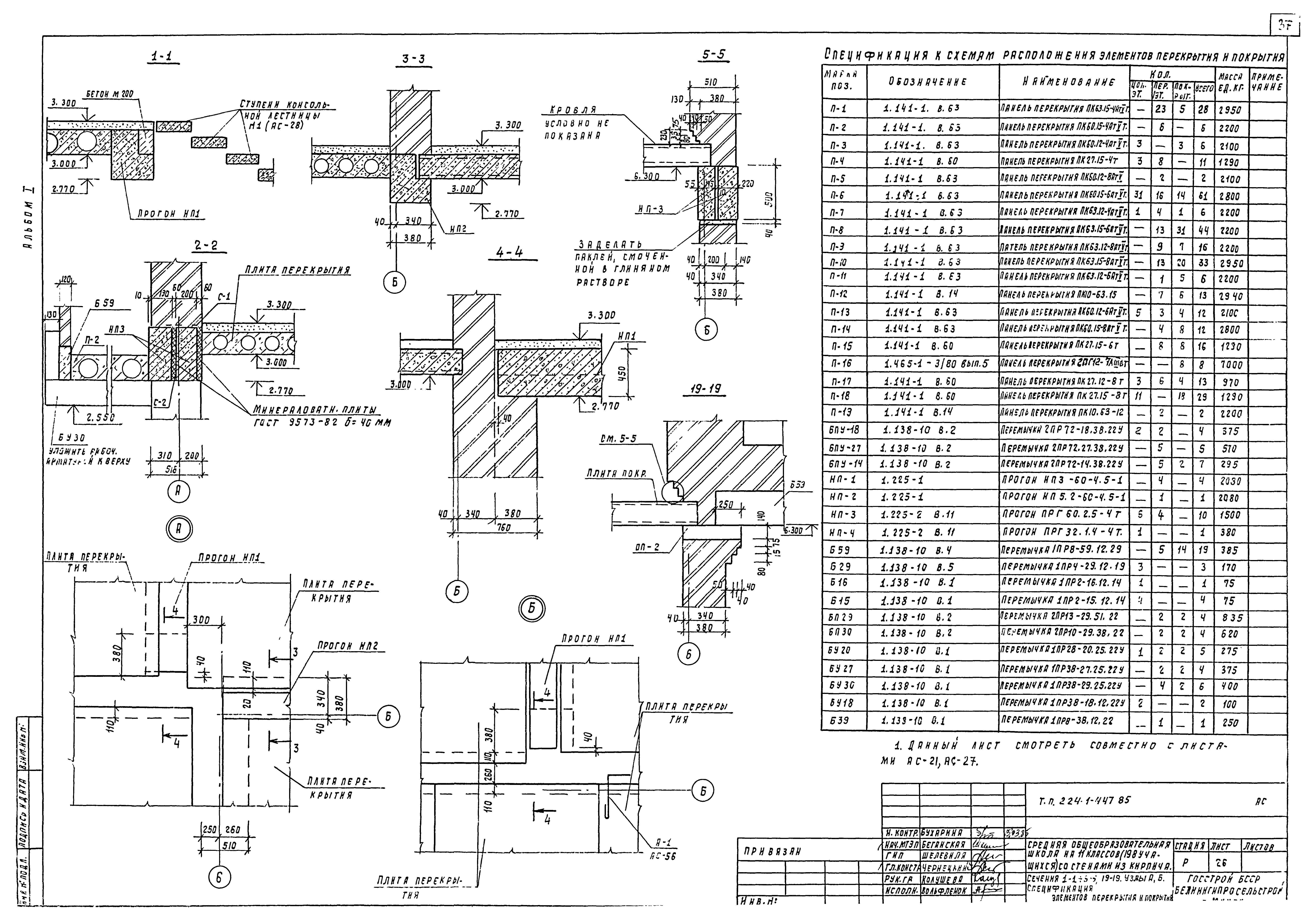
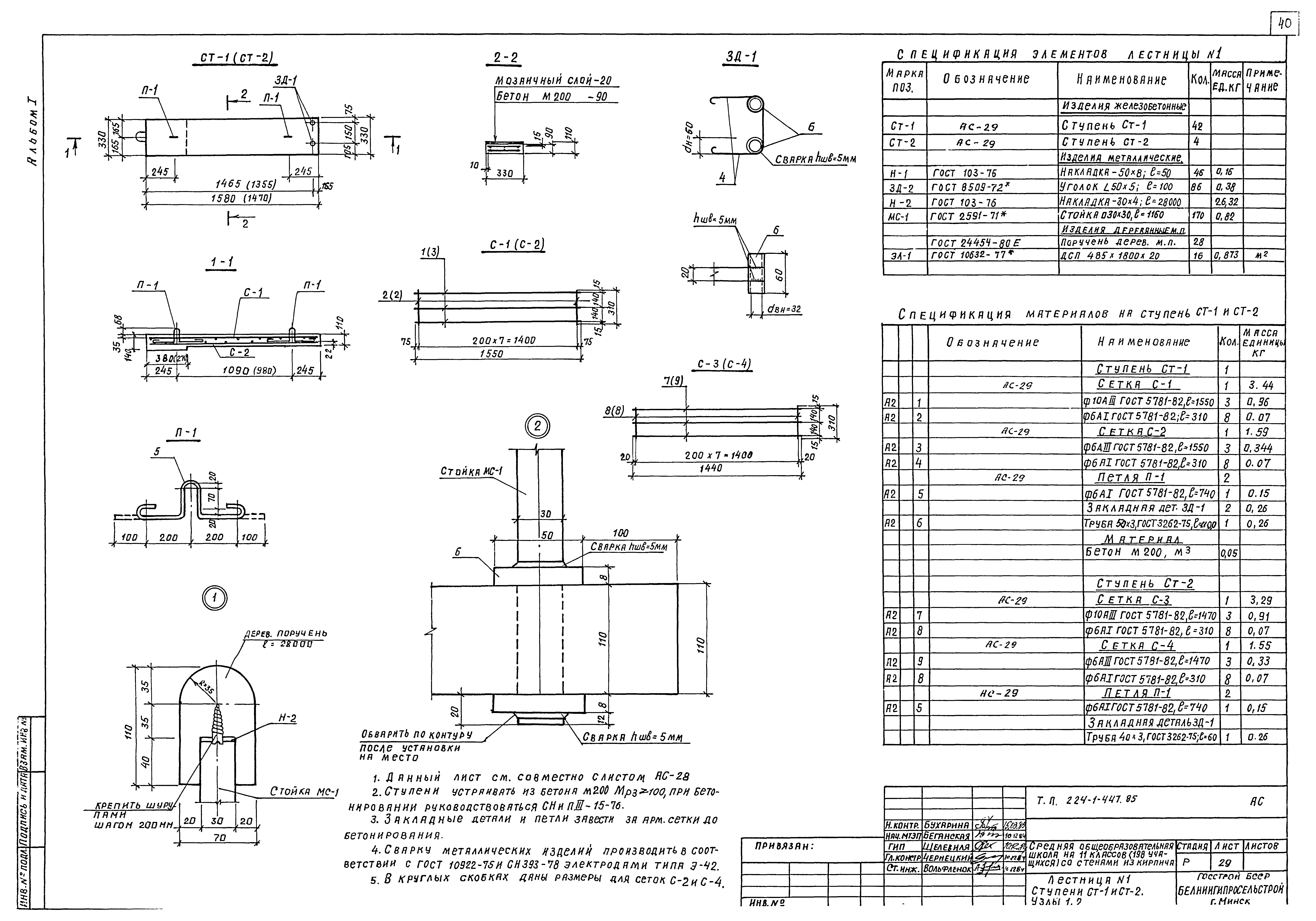
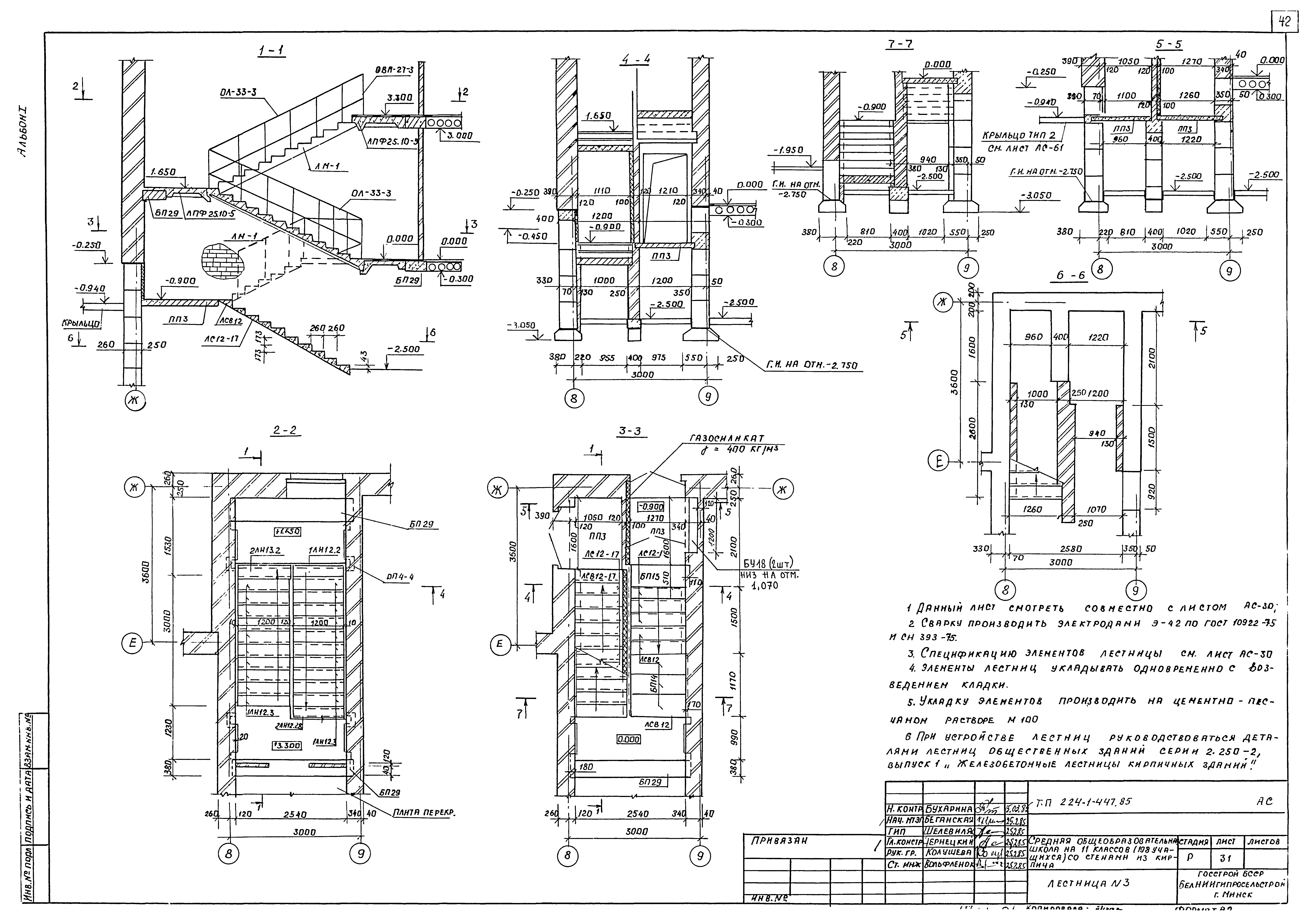
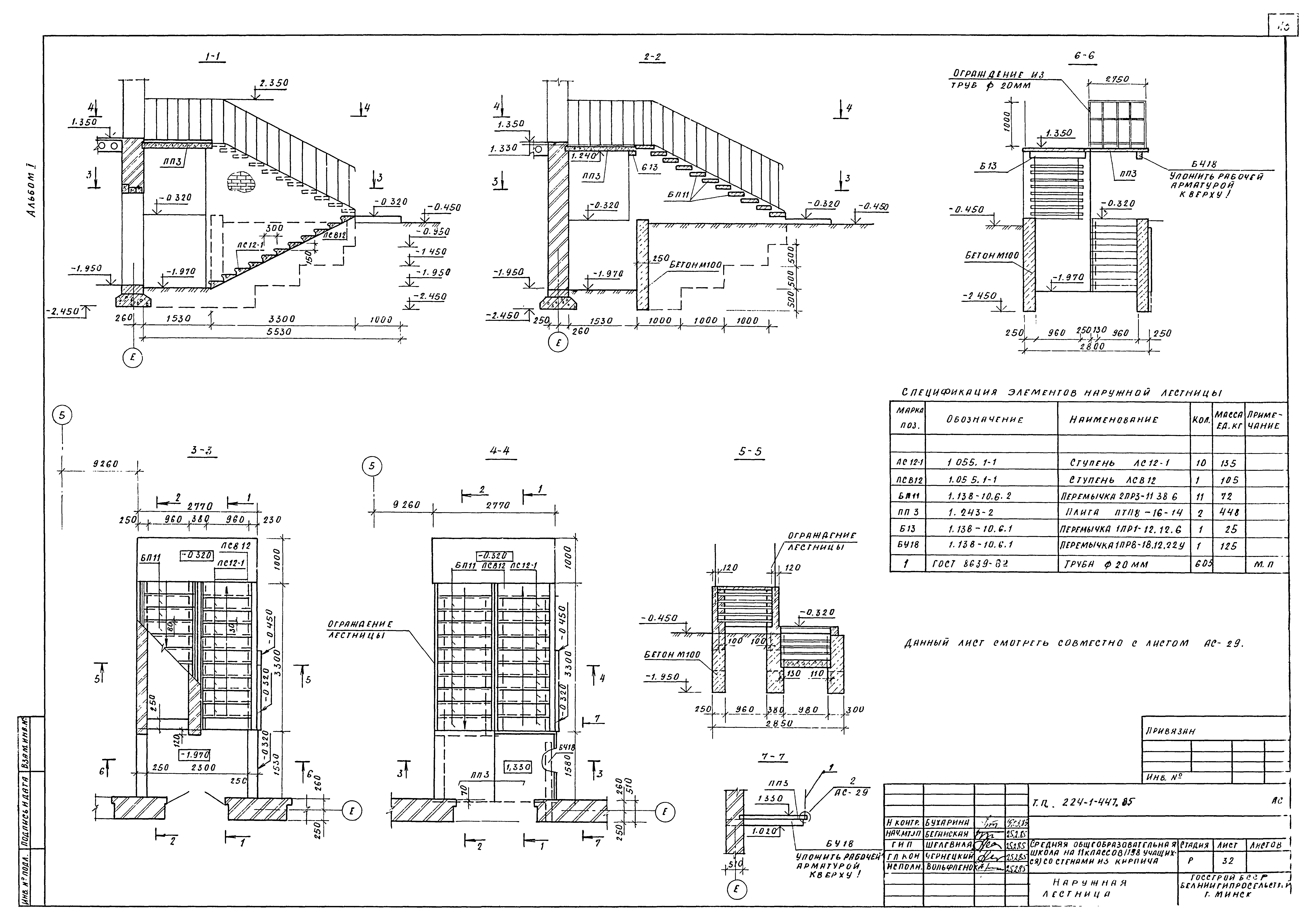
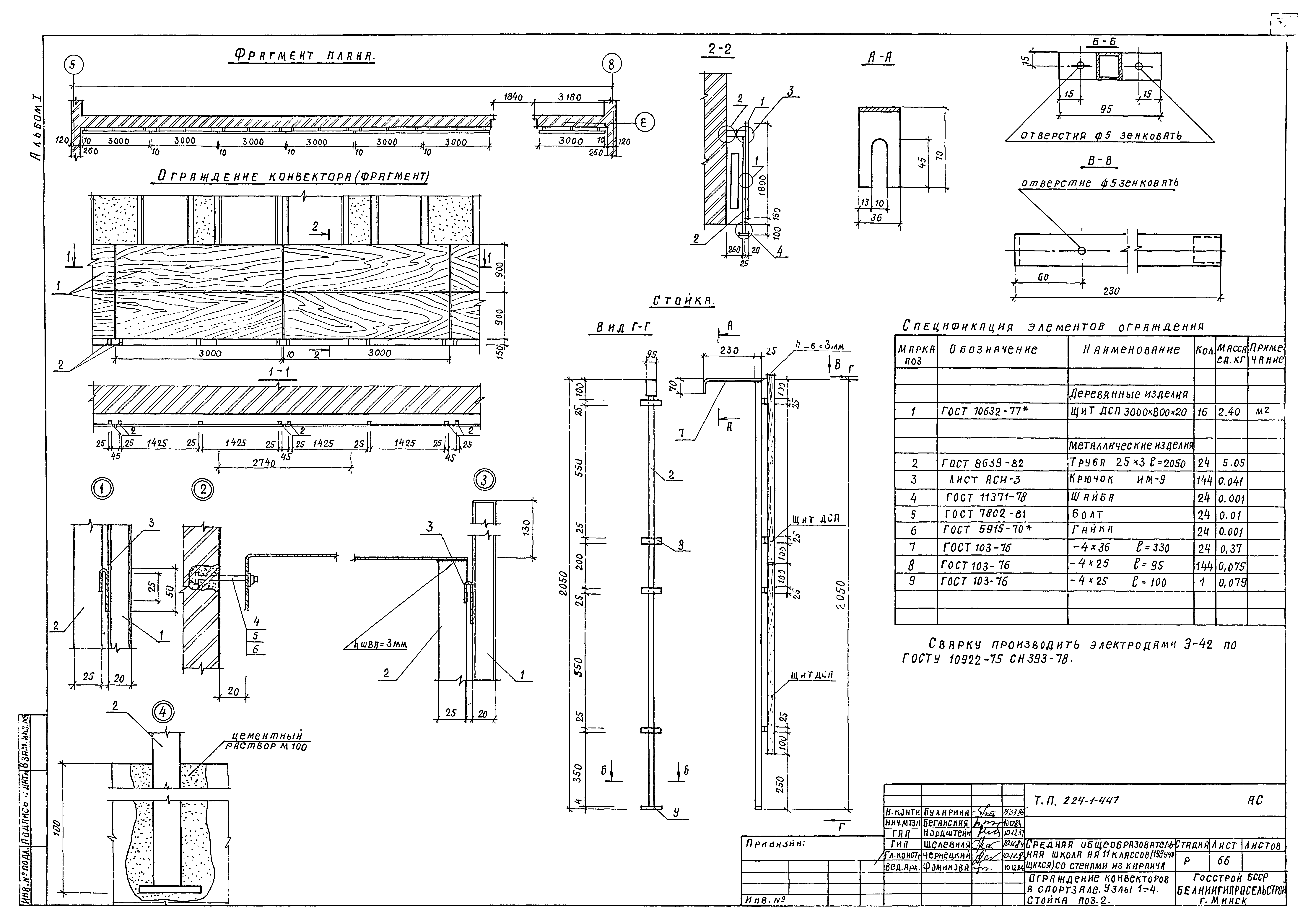
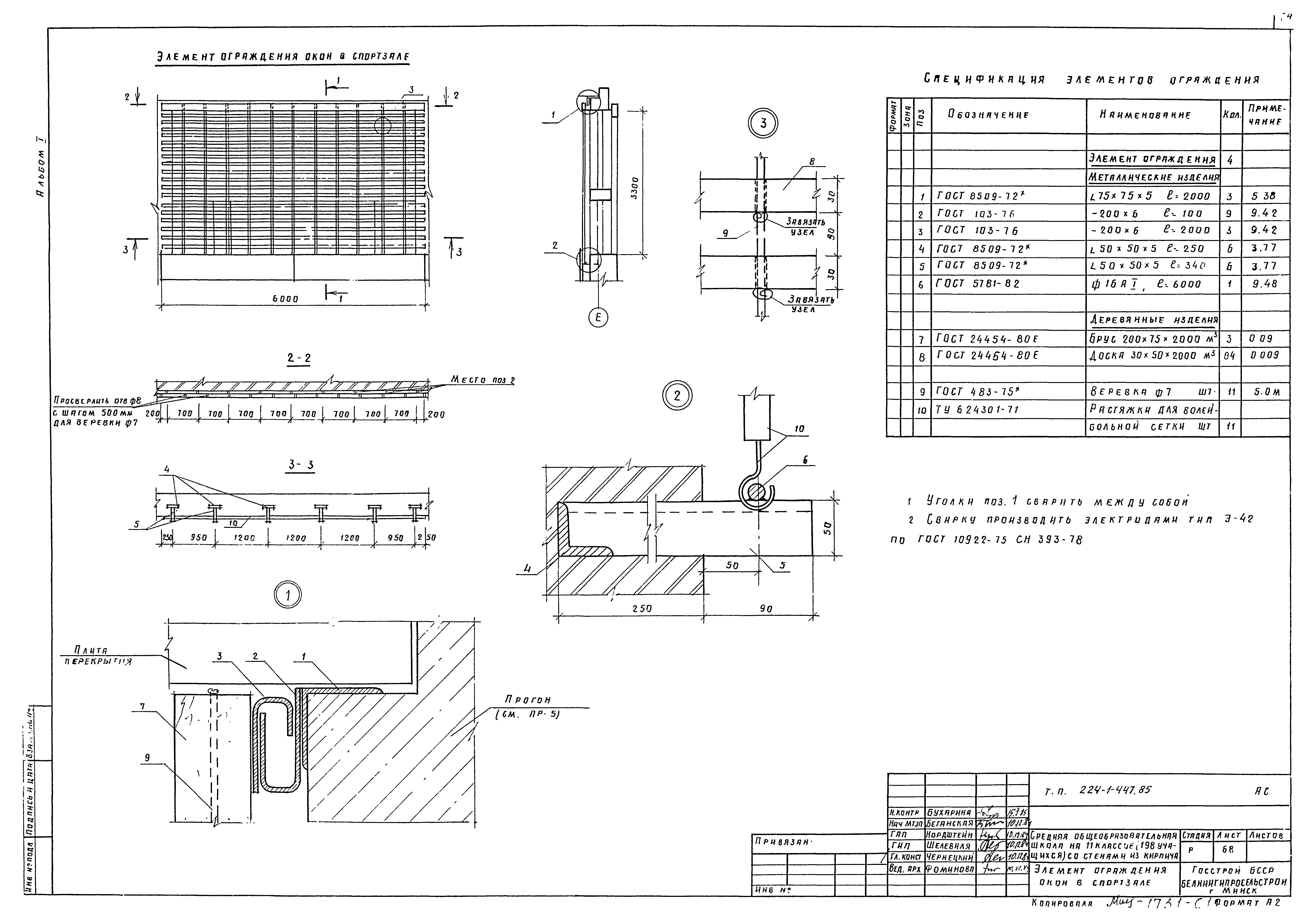
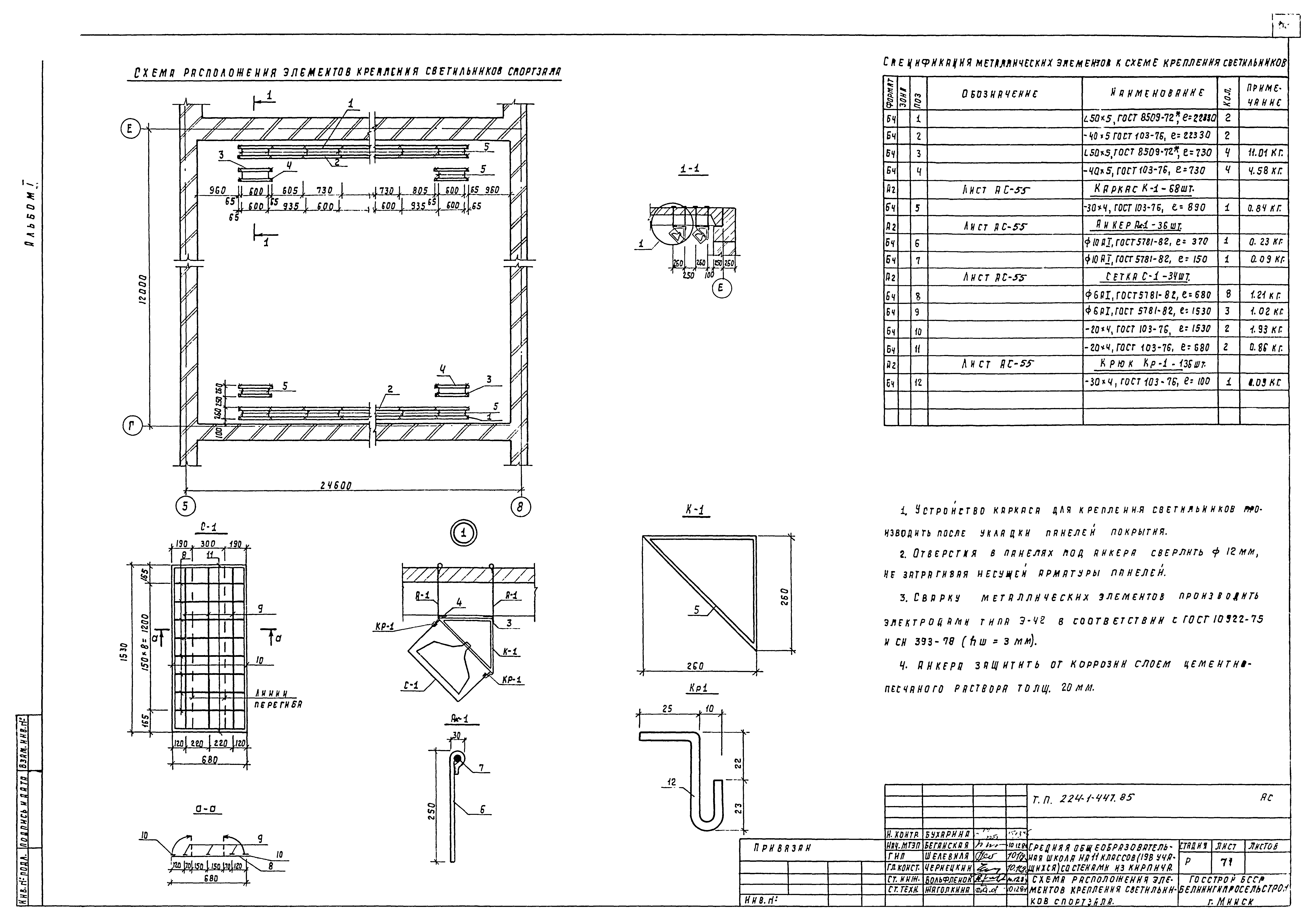
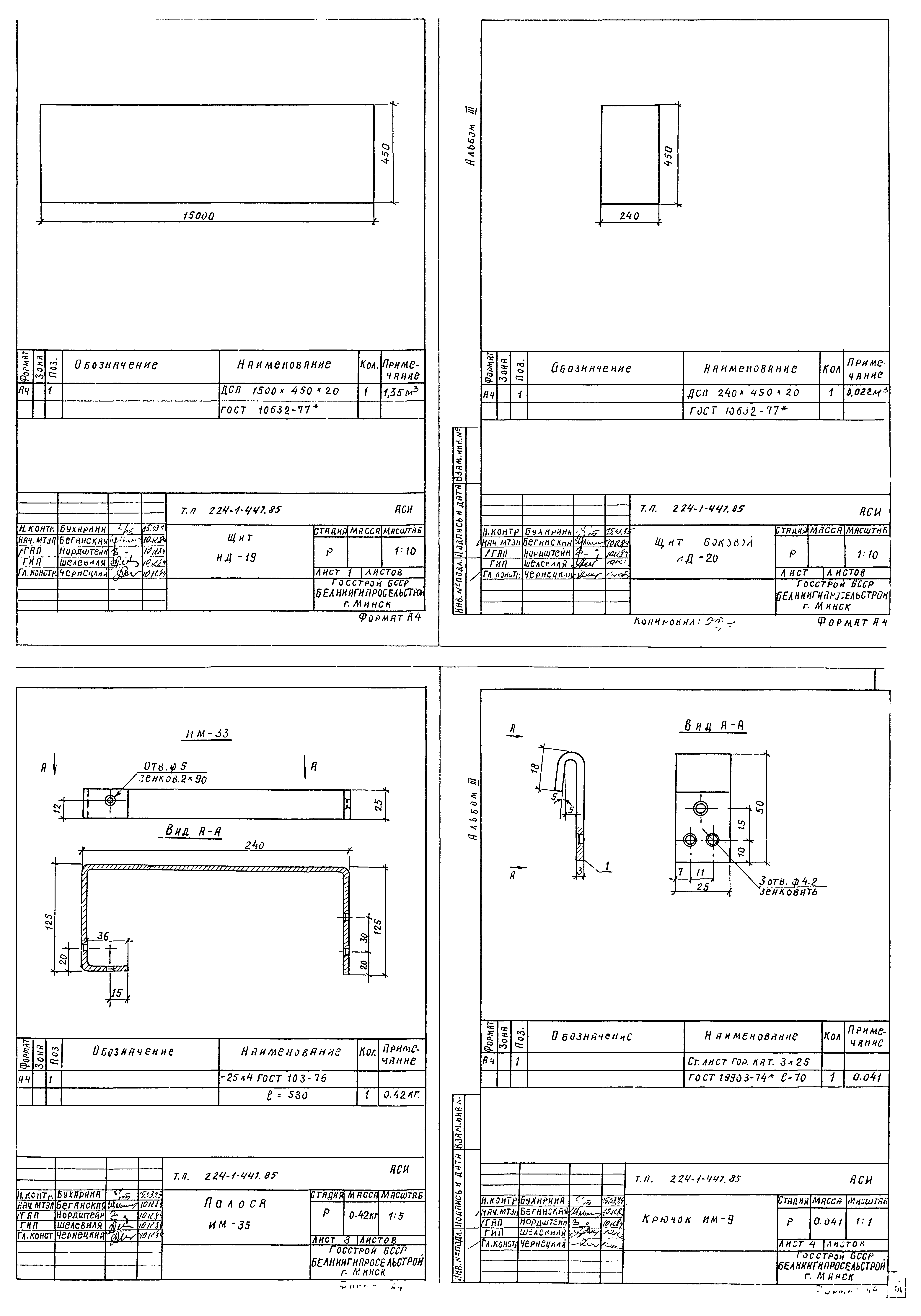
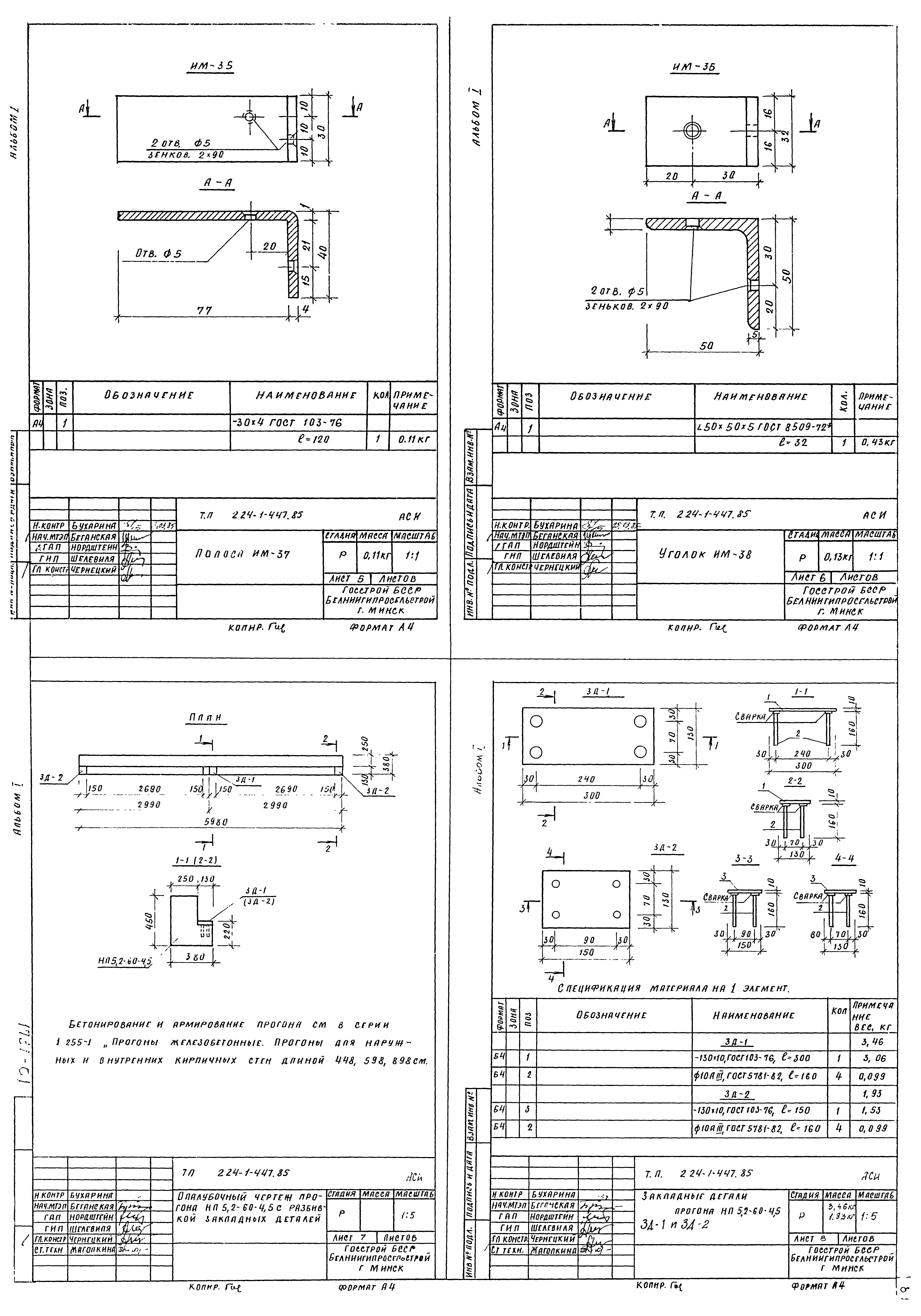
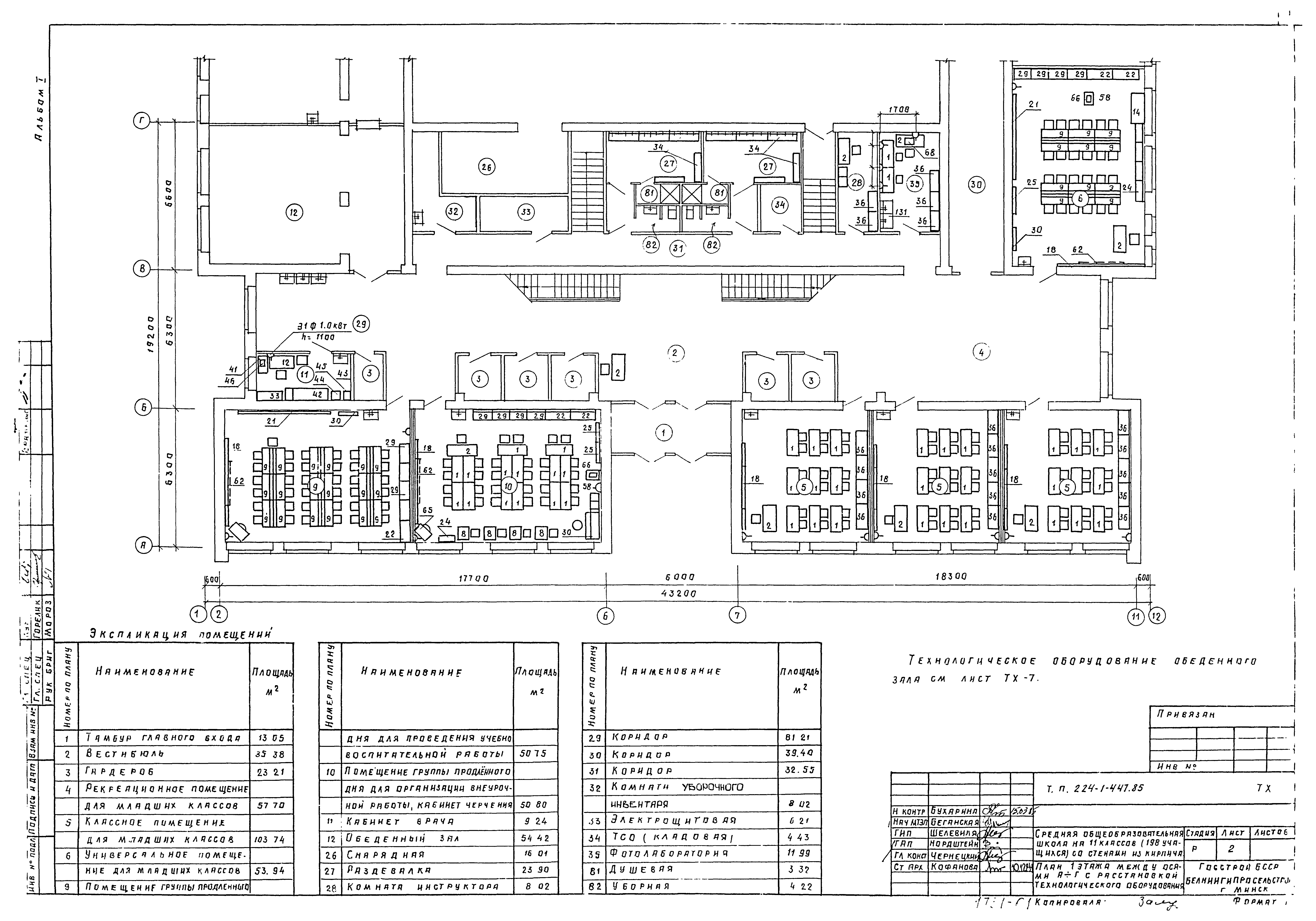
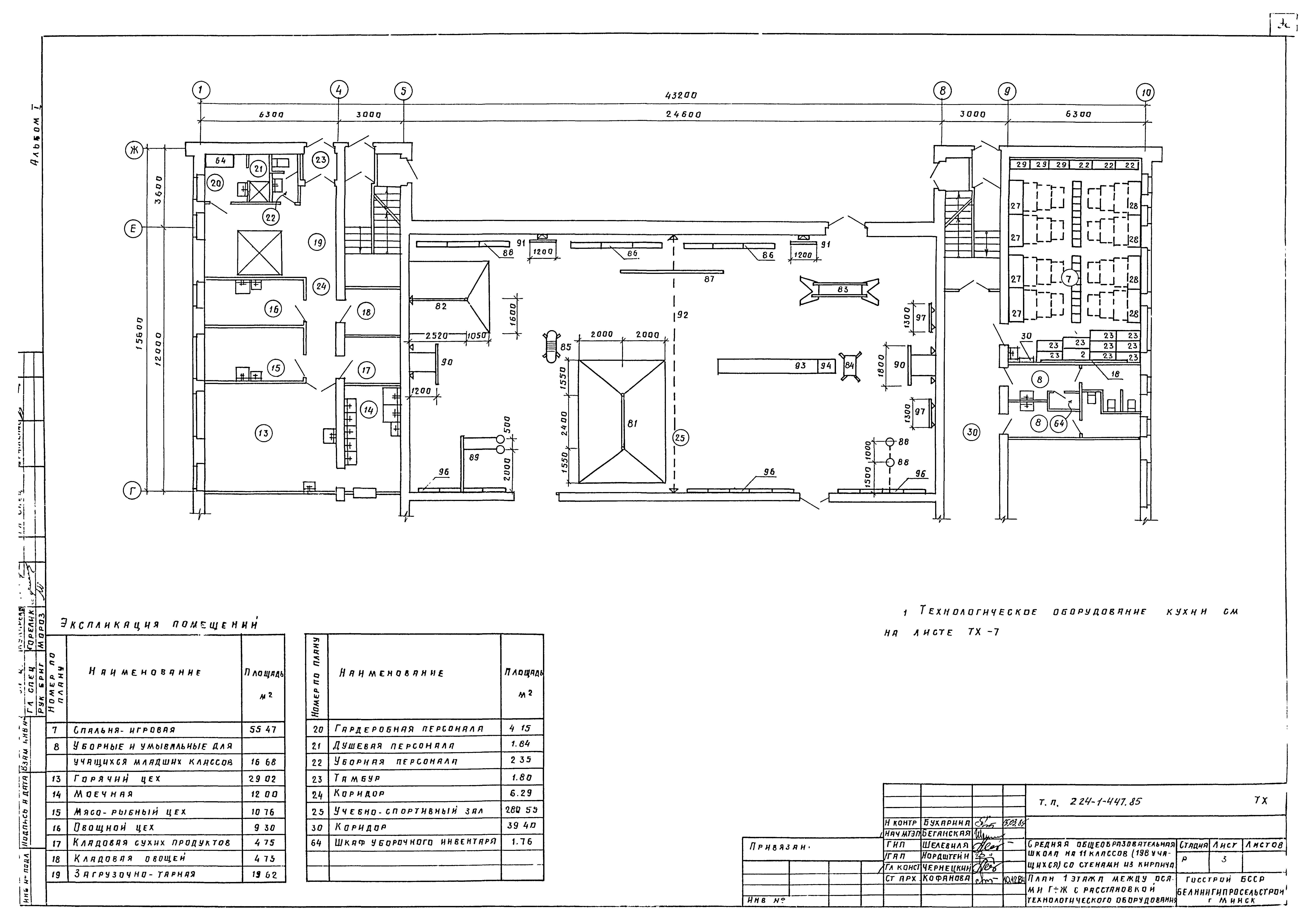
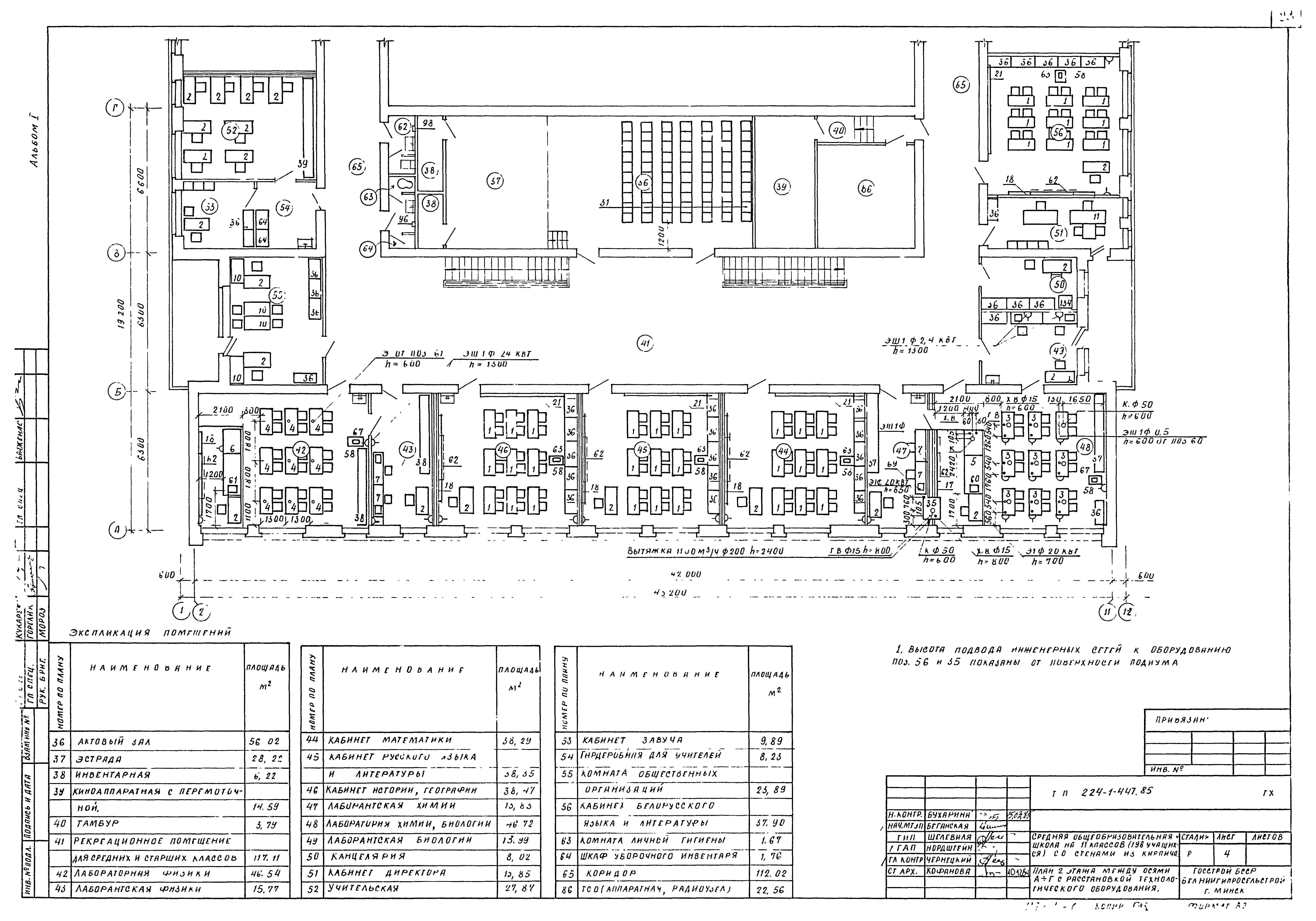
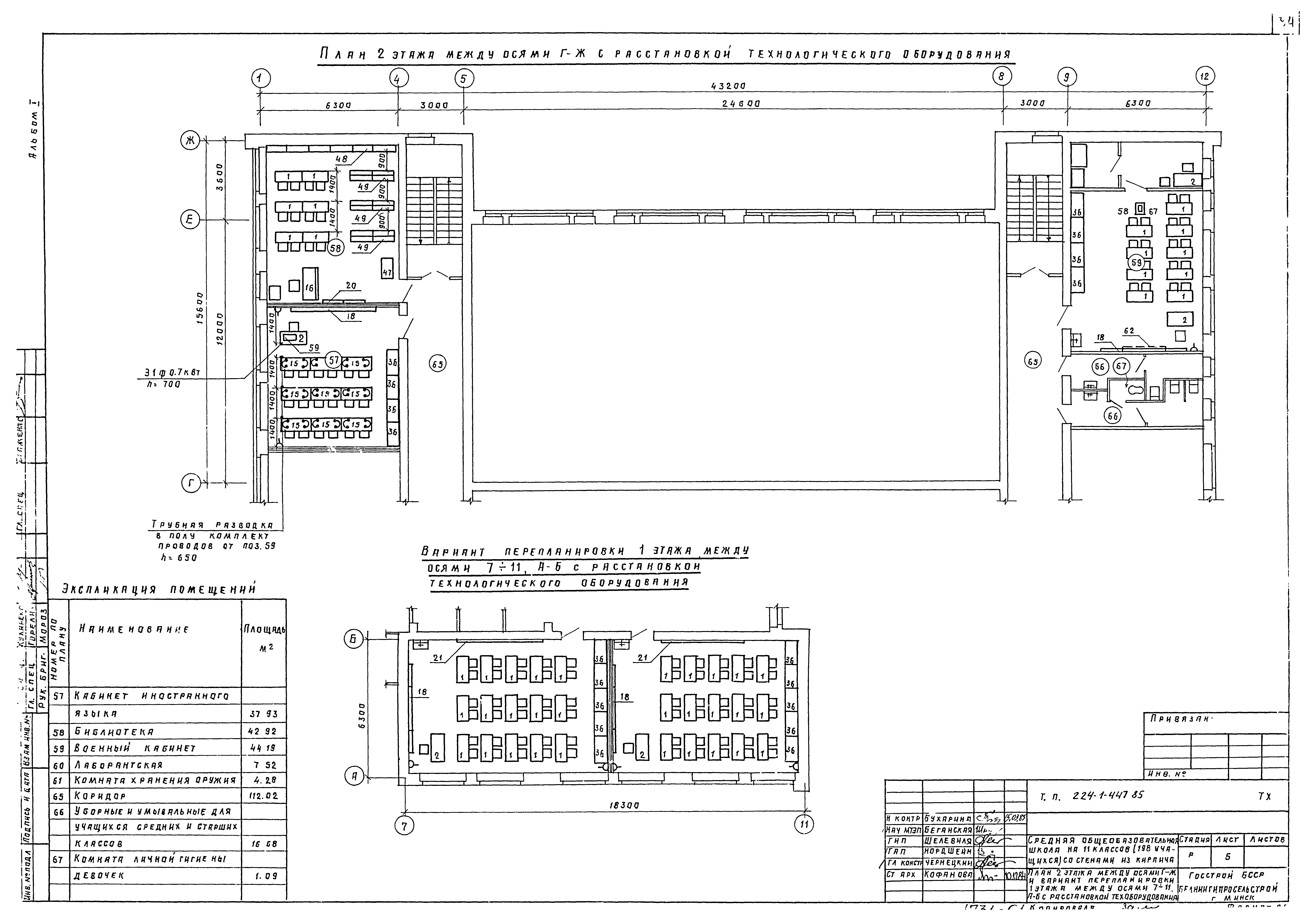
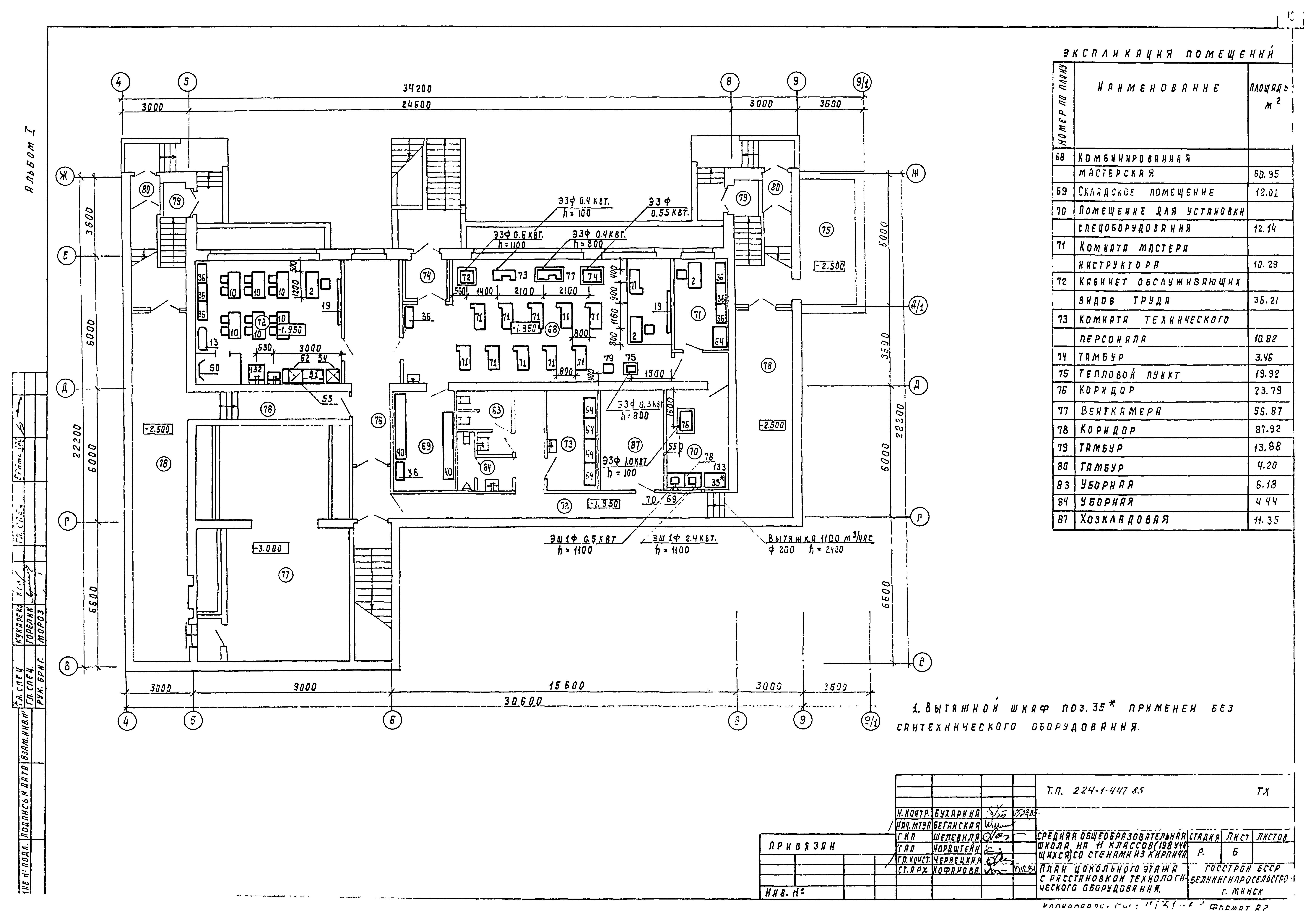
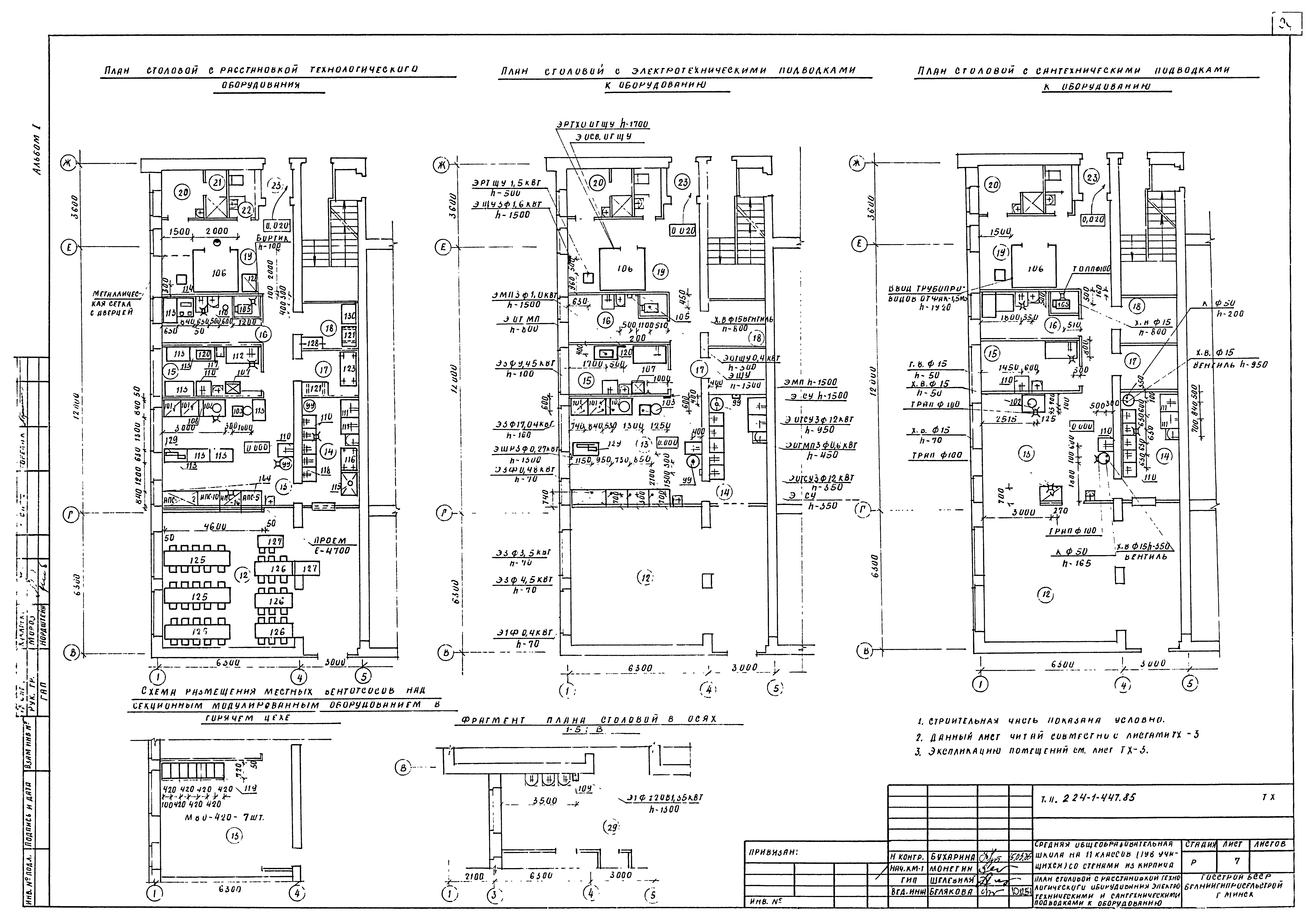
Скачать Типовой проект 224-1-447.85 Альбом I. Архитектурно-строительные и технологические решенияДата актуализации: 01.01.2021 Типовой проект 224-1-447.85
Альбом I. Архитектурно-строительные и технологические решения| Обозначение: | Типовой проект 224-1-447.85 | | Обозначение англ: | 224-1-447.85 | | Статус: | действует | | Название рус.: | Альбом I. Архитектурно-строительные и технологические решения | | Дата добавления в базу: | 01.02.2017 | | Дата актуализации: | 01.01.2021 | | Дата введения: | 28.05.1985 | | Разработан: | БелНИИгипросельстрой
| | Утверждён: | 15.03.1985 Госстрой БССР (BSSR Gosstroy 35)
| | Издан: | ЦИТП Госстроя СССР (CITP, Gosstroy (USSR) 1986 г. )
|
                                                                                                       
|