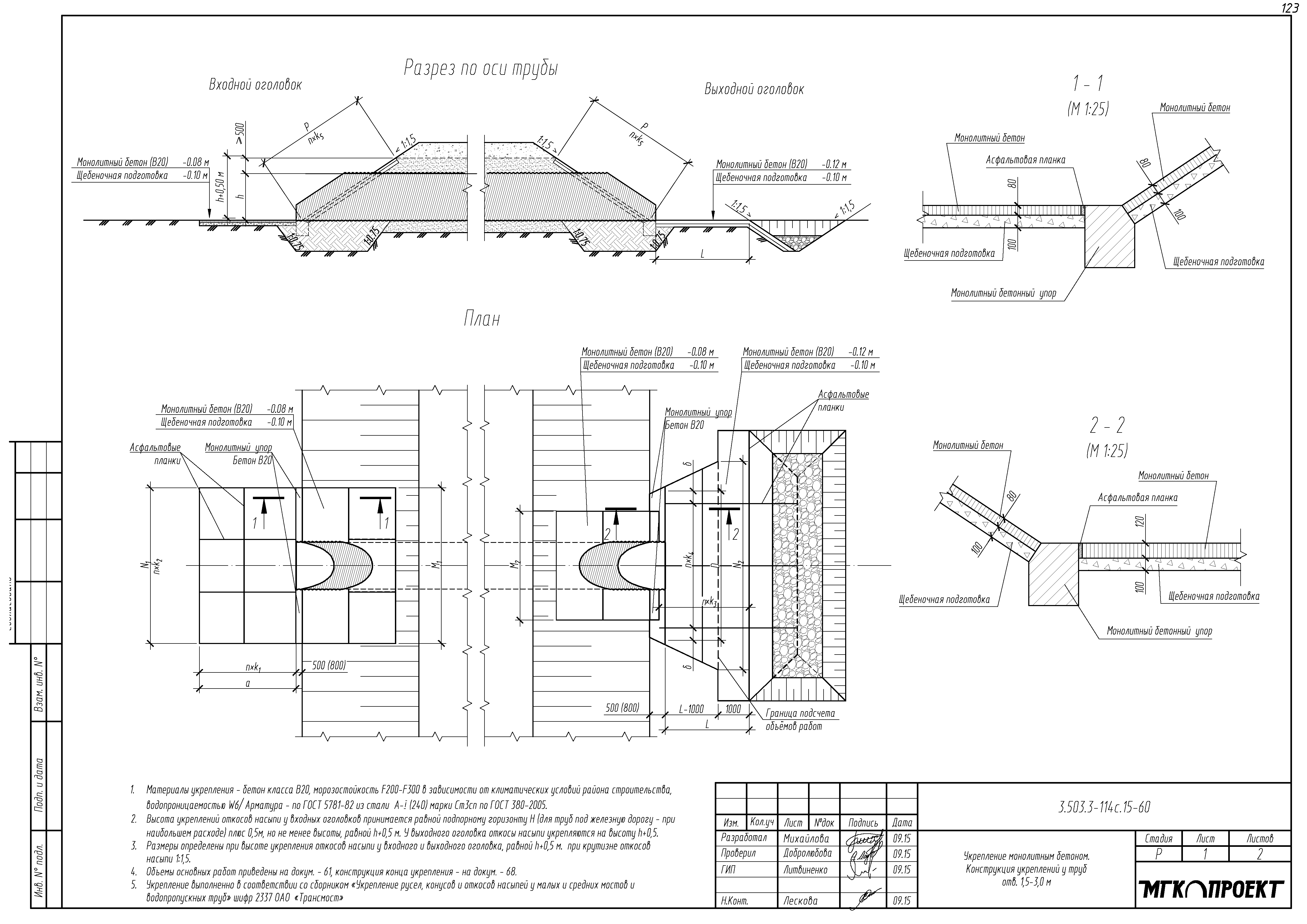
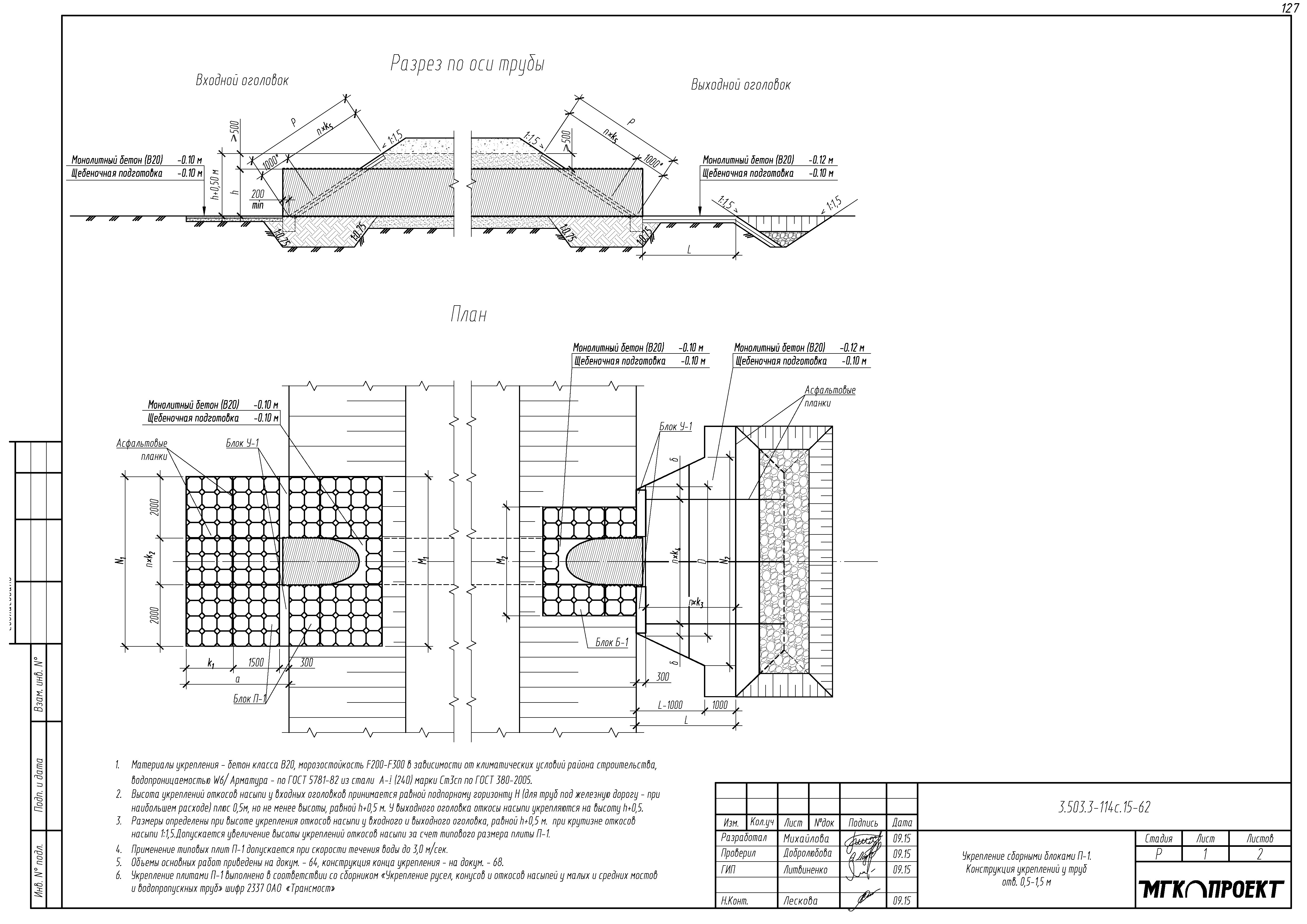
Скачать Серия 3.503.3-114с.15 Выпуск 1. Материалы для проектированияДата актуализации: 01.01.2021
|
| Обозначение: | Серия 3.503.3-114с.15 |
| Обозначение англ: | Series 3.503.3-114с.15 |
| Статус: | заменен |
| Название рус.: | Выпуск 1. Материалы для проектирования |
| Дата добавления в базу: | 01.02.2017 |
| Дата актуализации: | 01.01.2021 |
| Дата введения: | 01.09.2015 |
| Дата окончания срока действия: | 14.09.2016 |
| Разработан: | ООО МГК Проект |
| Утверждён: | 01.09.2015 ООО МГК (11) |
| Чем заменён: |
|













































































































































