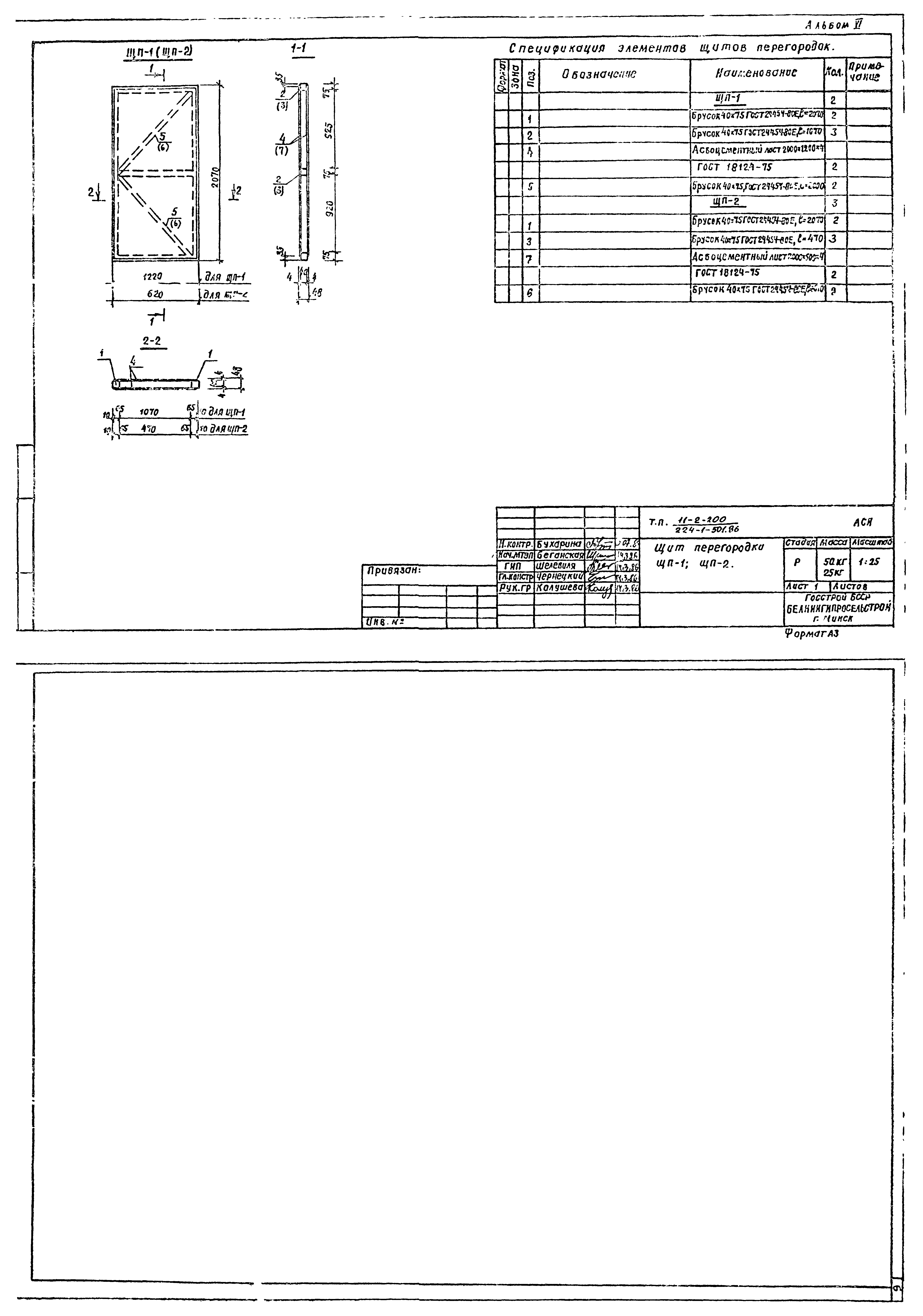
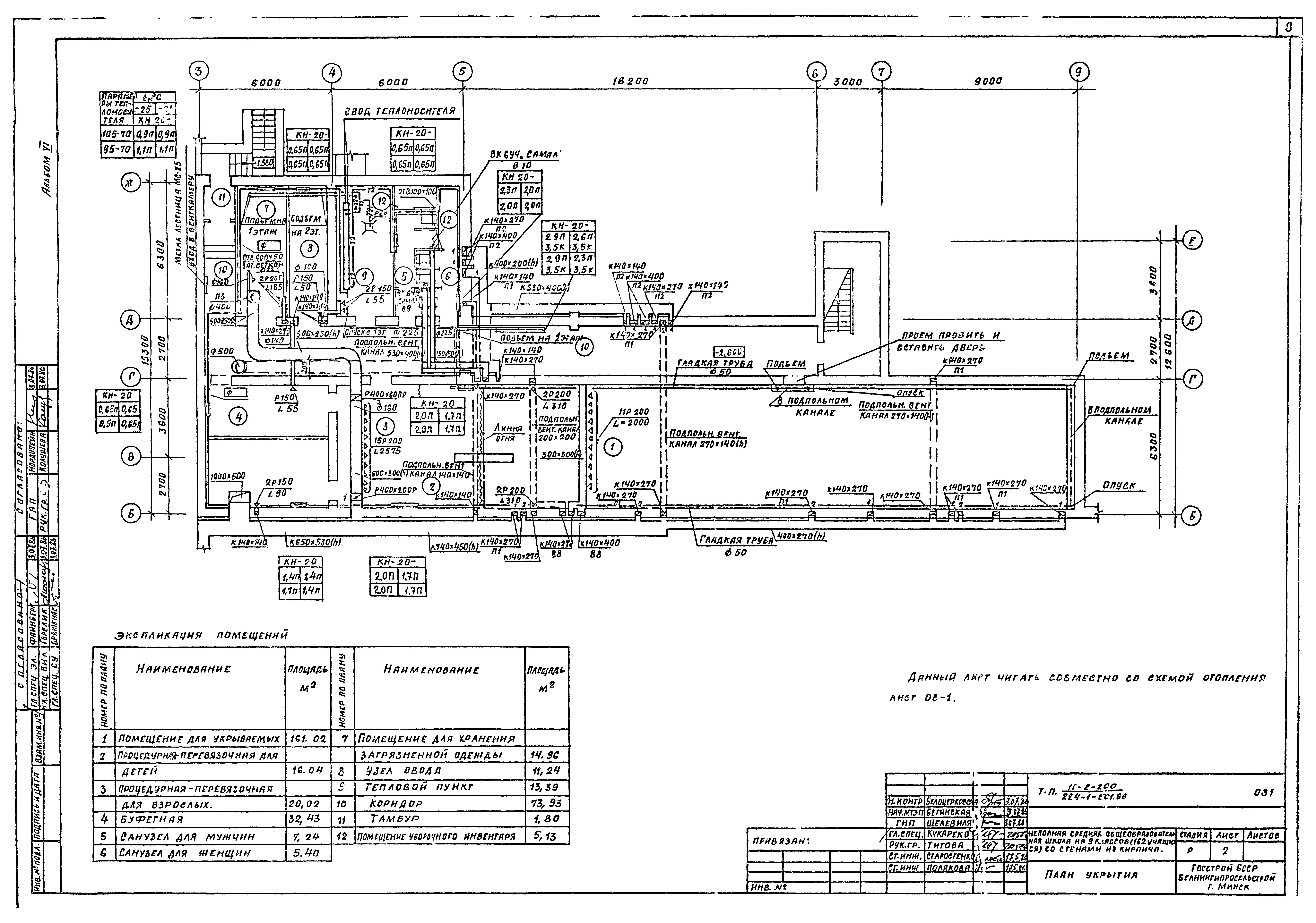
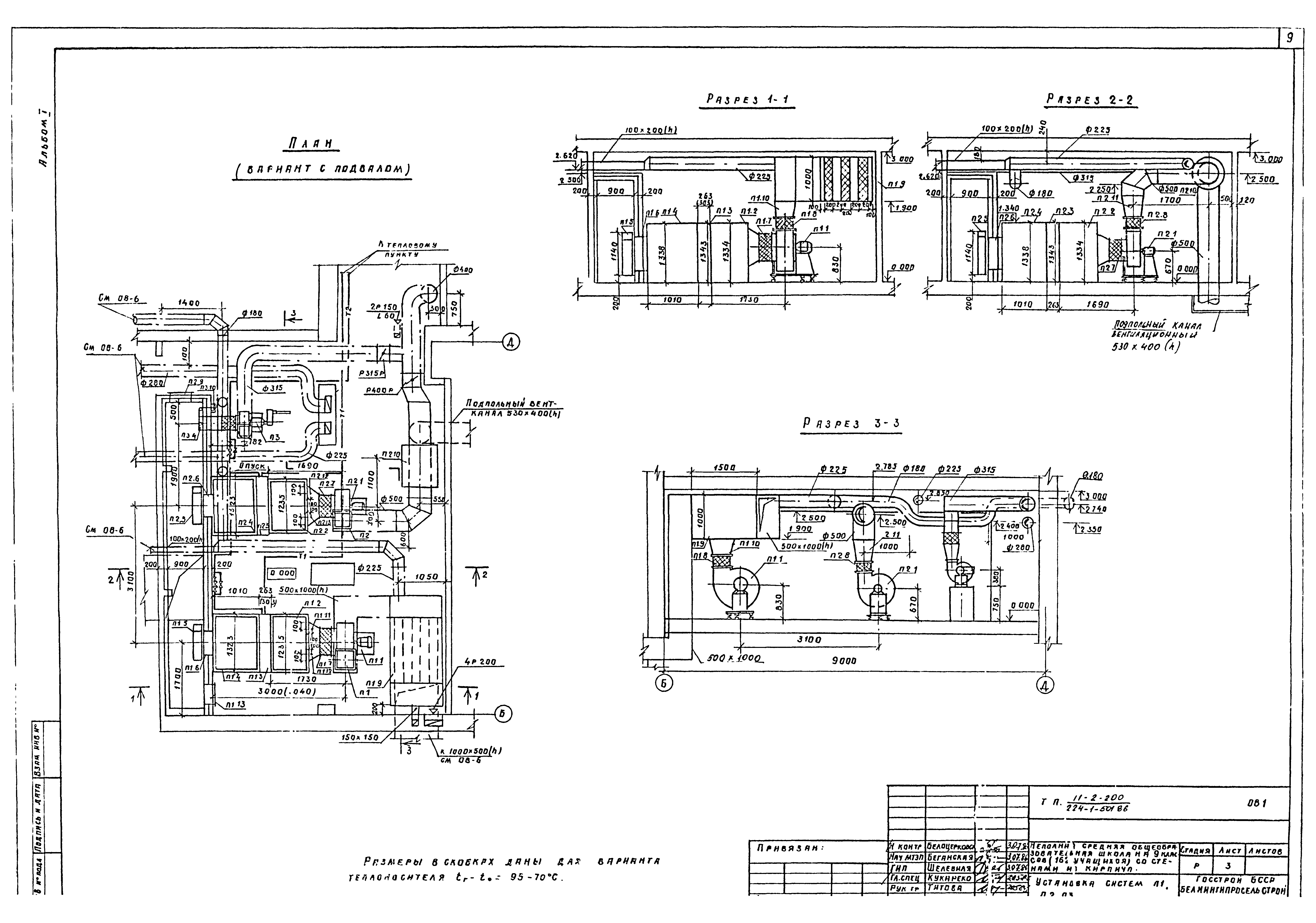
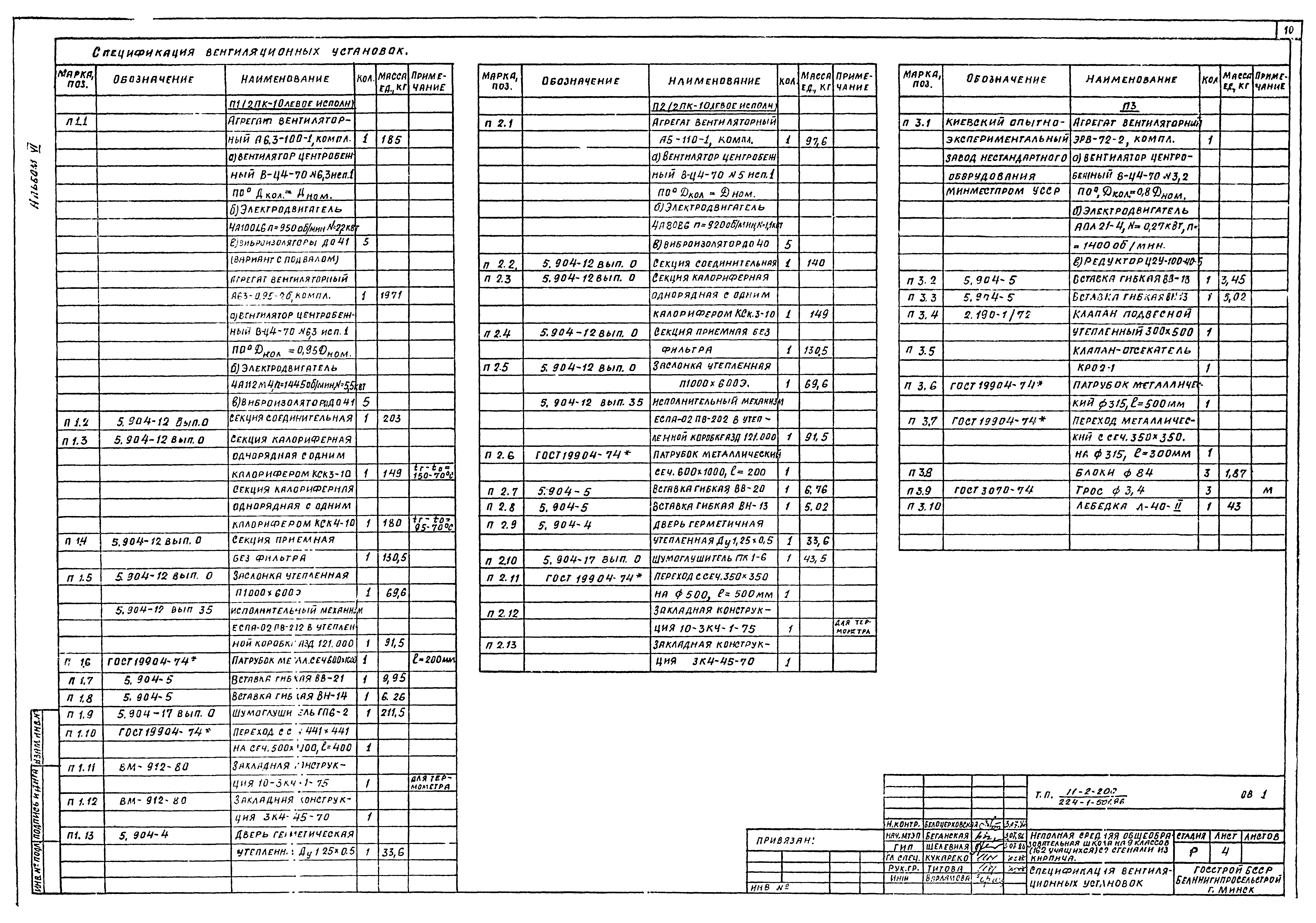
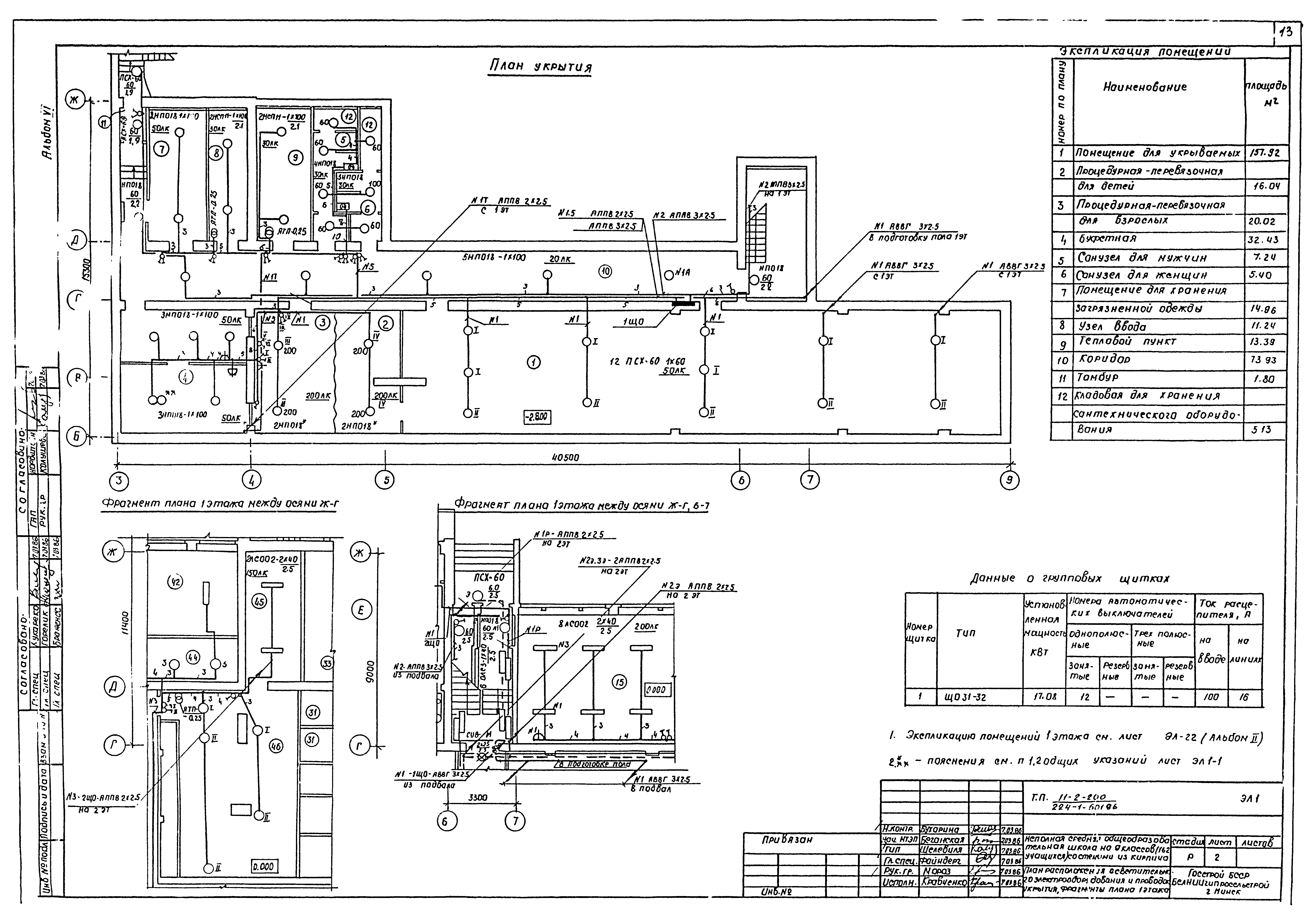
Скачать Типовой проект 224-1-501.86 Альбом VI. Проектная документация на перевод служебных помещений подвала для использования под ПРУДата актуализации: 01.01.2021 Типовой проект 224-1-501.86
Альбом VI. Проектная документация на перевод служебных помещений подвала для использования под ПРУ| Обозначение: | Типовой проект 224-1-501.86 | | Обозначение англ: | 224-1-501.86 | | Статус: | действует | | Название рус.: | Альбом VI. Проектная документация на перевод служебных помещений подвала для использования под ПРУ | | Дата добавления в базу: | 01.02.2017 | | Дата актуализации: | 01.01.2021 | | Дата введения: | 15.07.1986 | | Разработан: | БелНИИгипросельстрой
| | Утверждён: | 15.07.1986 Госстрой БССР (BSSR Gosstroy 125)
| | Издан: | ЦИТП Госстроя СССР (CITP, Gosstroy (USSR) 1987 г. )
|
              
|