Скачать ГОСТ Р 57271.6-2016 Менеджмент вспомогательных процессов в управлении недвижимостью. Часть 6. Измерение площадей и объемов в управлении недвижимостьюДата актуализации: 01.01.2021
|
| Обозначение: | ГОСТ Р 57271.6-2016 |
| Обозначение англ: | GOST R 57271.6-2016 |
| Статус: | введен впервые |
| Название рус.: | Менеджмент вспомогательных процессов в управлении недвижимостью. Часть 6. Измерение площадей и объемов в управлении недвижимостью |
| Название англ.: | Facility management. Part 6. Area and space measurement in facility management |
| Дата добавления в базу: | 01.02.2017 |
| Дата актуализации: | 01.01.2021 |
| Дата введения: | 01.12.2017 |
| Область применения: | Стандарт соответствует основным принципам планирования и проектирования, управление зонами и пространствами помещений, финансового анализа, а также бенчмаркинга в области управления недвижимостью. Стандарт распространяется на измерение площадей и объемов имеющихся в собственности или арендуемых помещений, а также зданий на стадии проектирования и разработки) Приведенными в настоящем стандарте принципами следует руководствоваться при применении международных стандартов, работе с зарубежными партнерами и анализе данных международных документов. В остальных случаях при выполнении измерений площади и объема необходимо в первую очередь руководствоваться национальными требованиями в этой области.). Стандарт обеспечивает основу для измерения площадей по внутренним и наружным размерам здания. Помимо этого в нем установлены условия и методы измерения площадей и объемов в зданиях и/или в частях зданий независимо от их функционального назначения. |
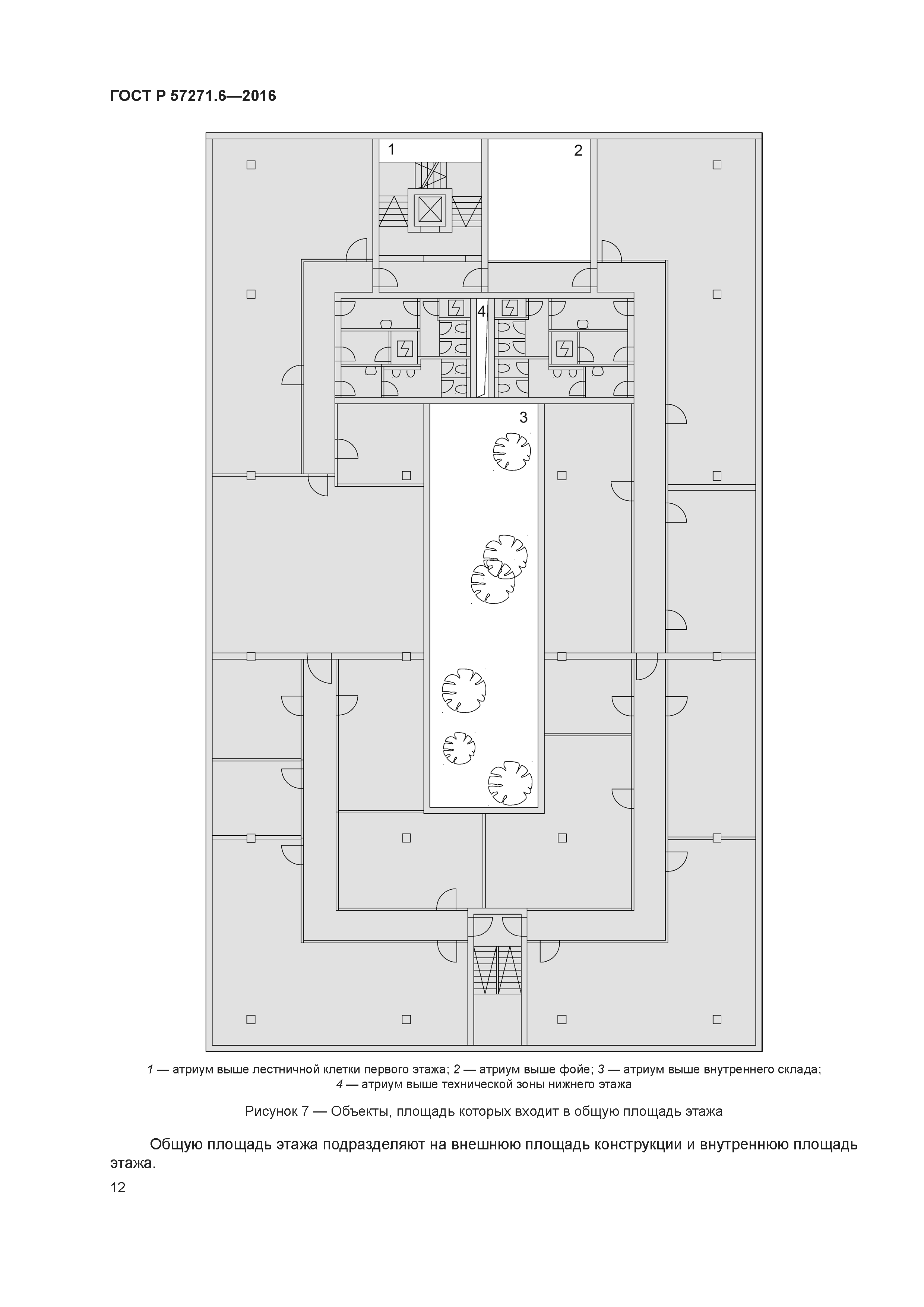
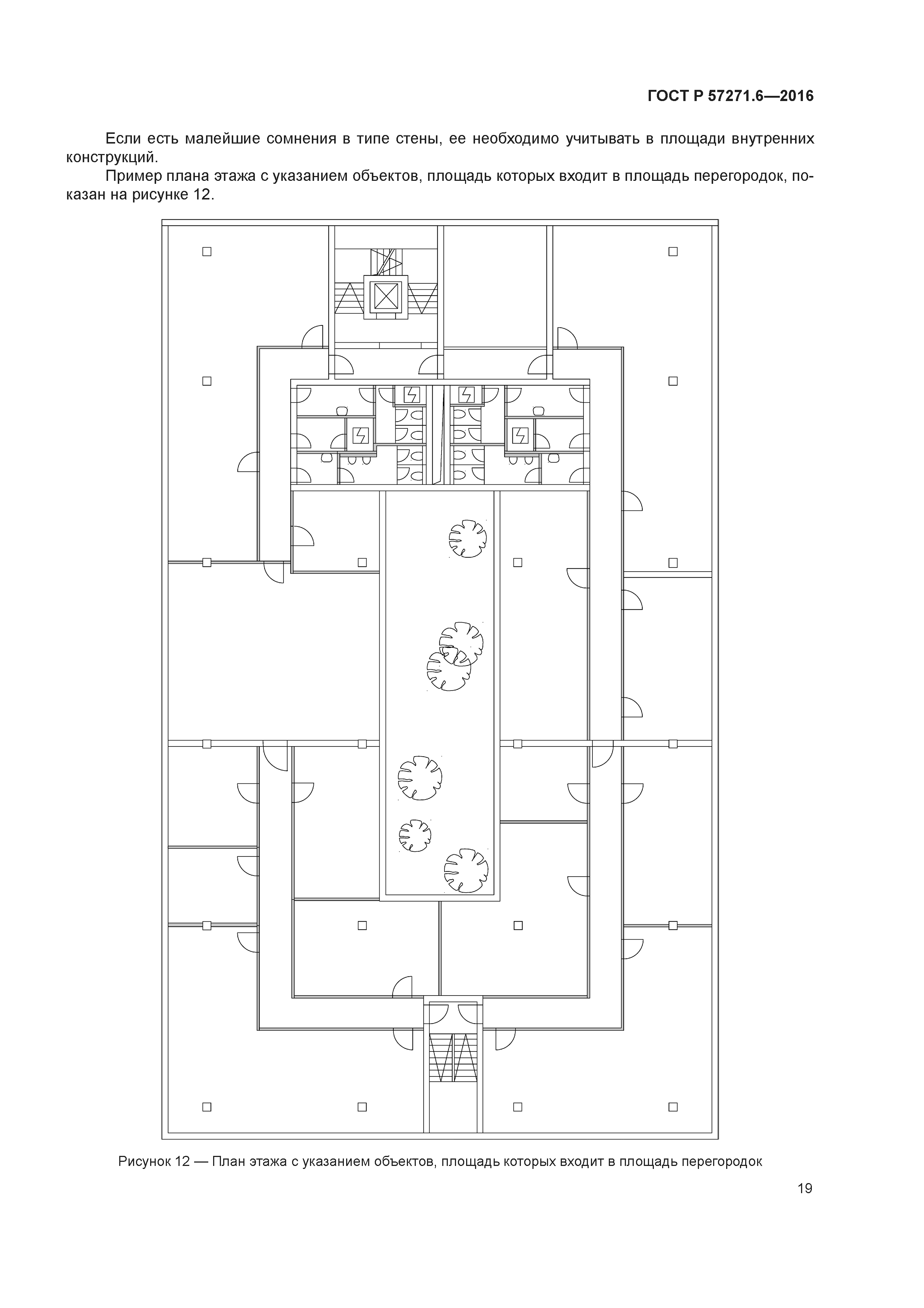
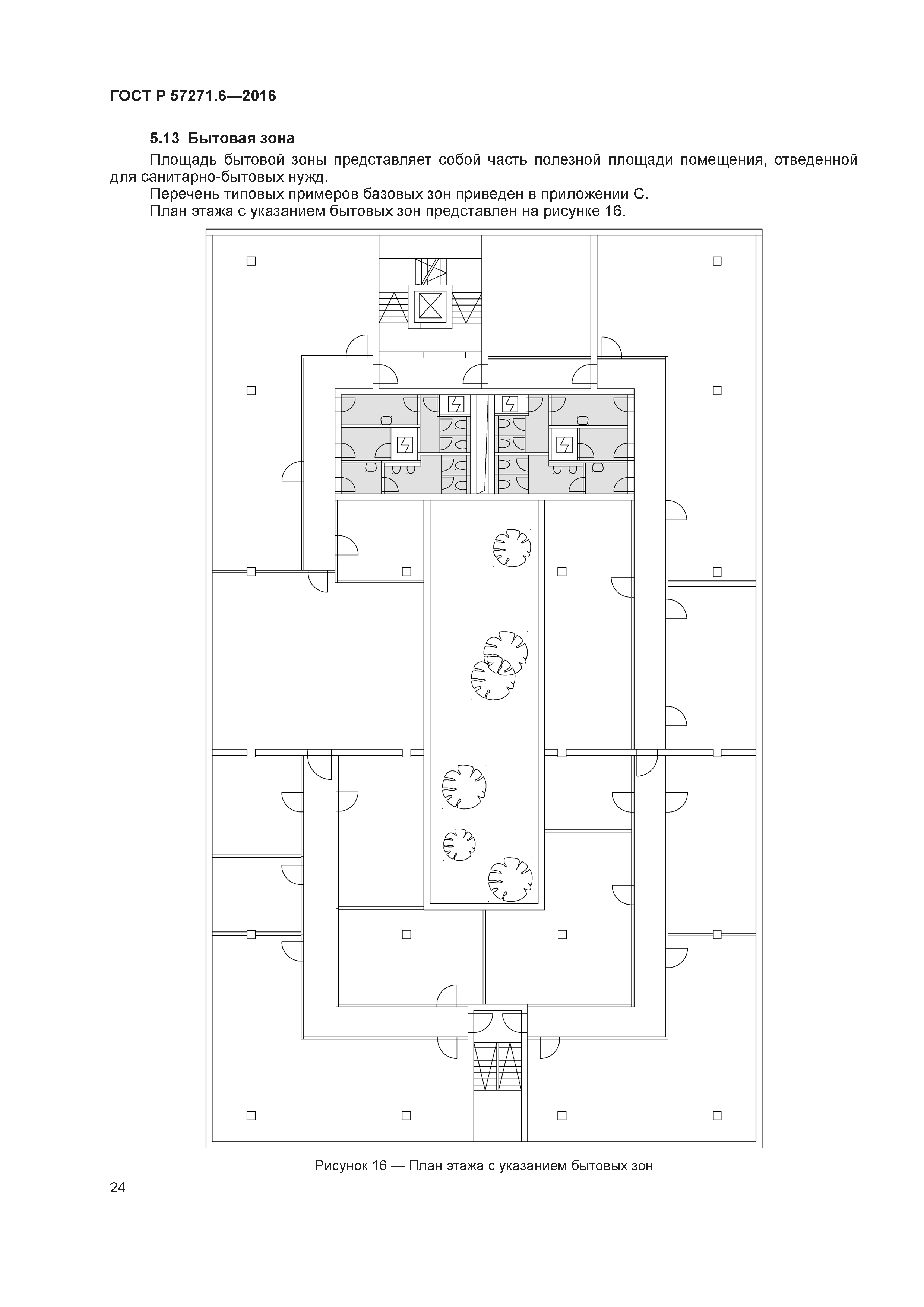
| Оглавление: | 1 Область применения 2 Нормативные ссылки 3 Термины и определения 4 Методы и единицы измерения 5 Структура измерения площадей и объемов сооружений 6 Измерения площади и объема вне здания Приложение А (обязательное) Матрица зон Приложение В (обязательное) Дополнительные примеры Приложение С (справочное) Примеры технических зон, зон перемещения людей, бытовых зон и основных зон Приложение ДА (справочное) Сведения о соответствии ссылочных европейских стандартов национальным стандартам Российской Федерации Библиография |
| Разработан: | ОАО НИЦ КД |
| Утверждён: | 30.11.2016 Росстандарт (1861-ст) |
| Издан: | Стандартинформ (2016 г. ) |
| Нормативные ссылки: |













































