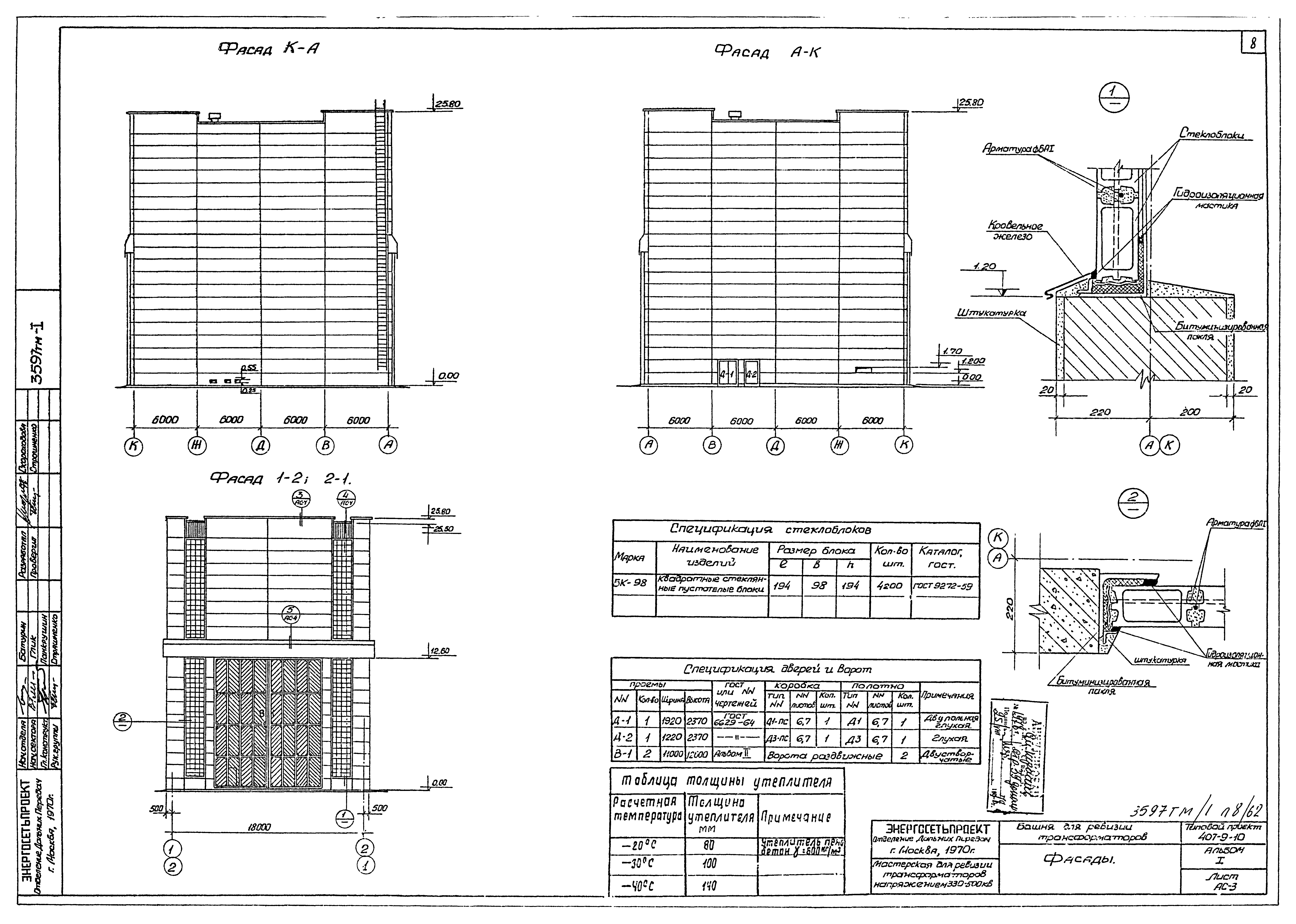
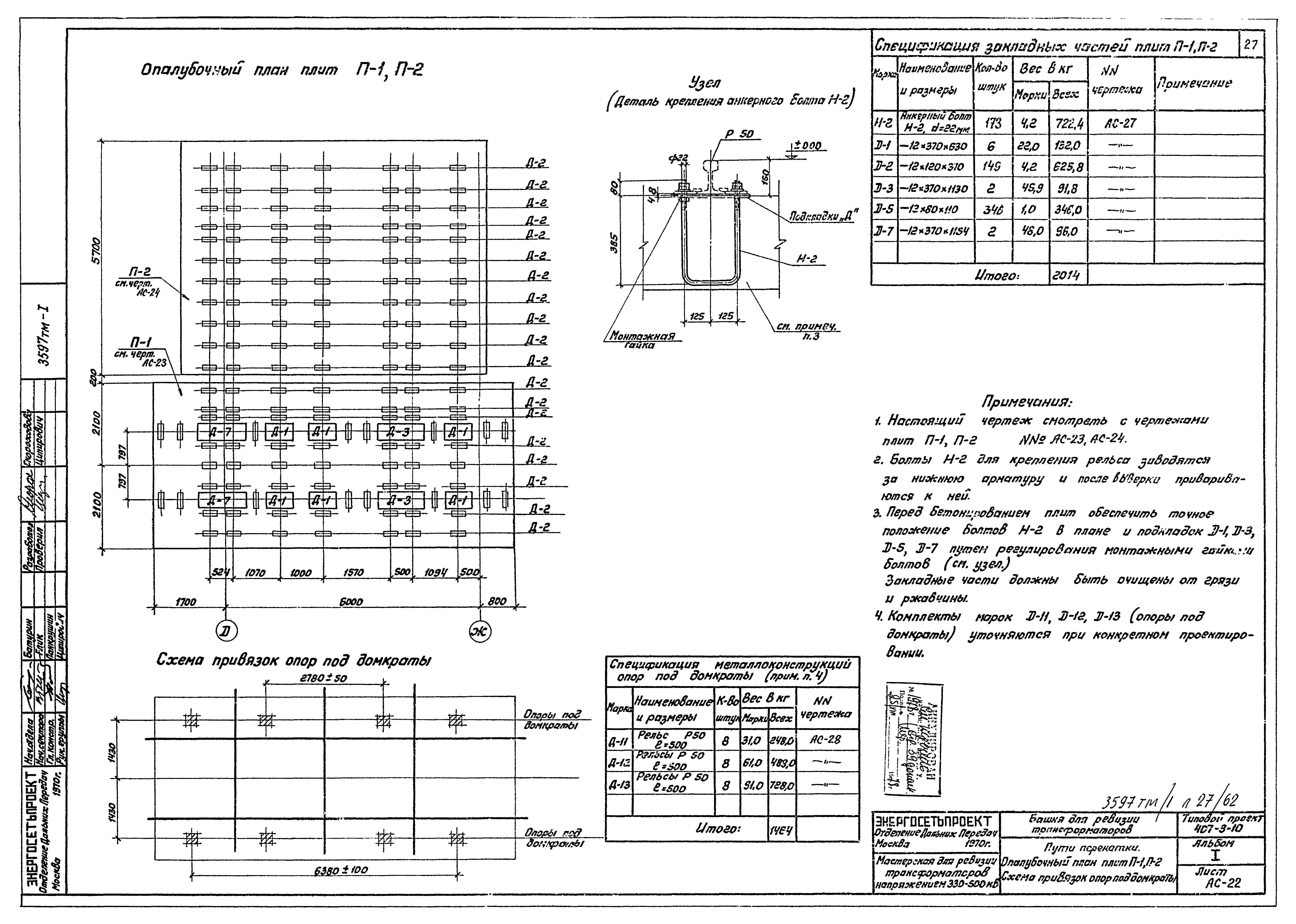
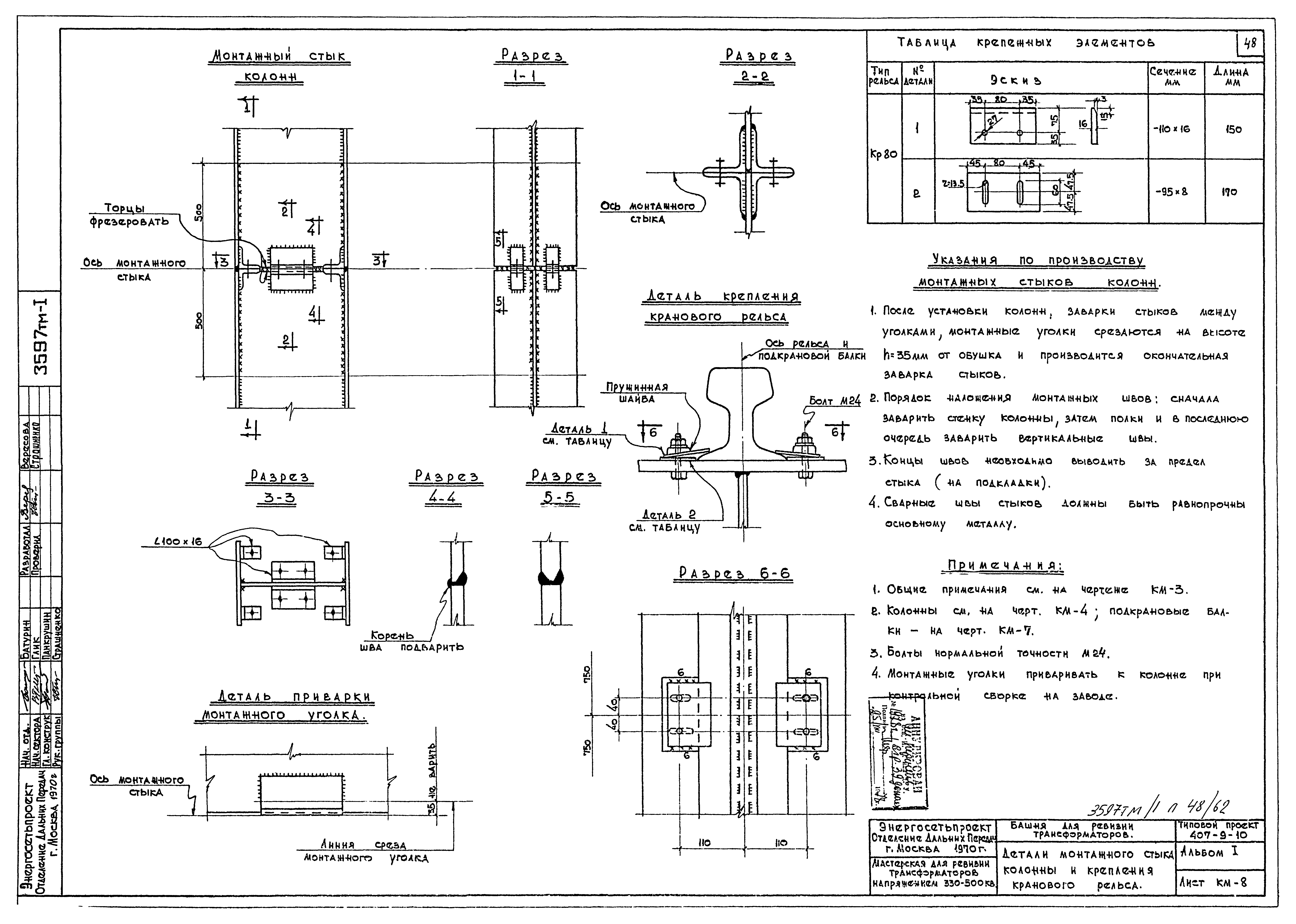
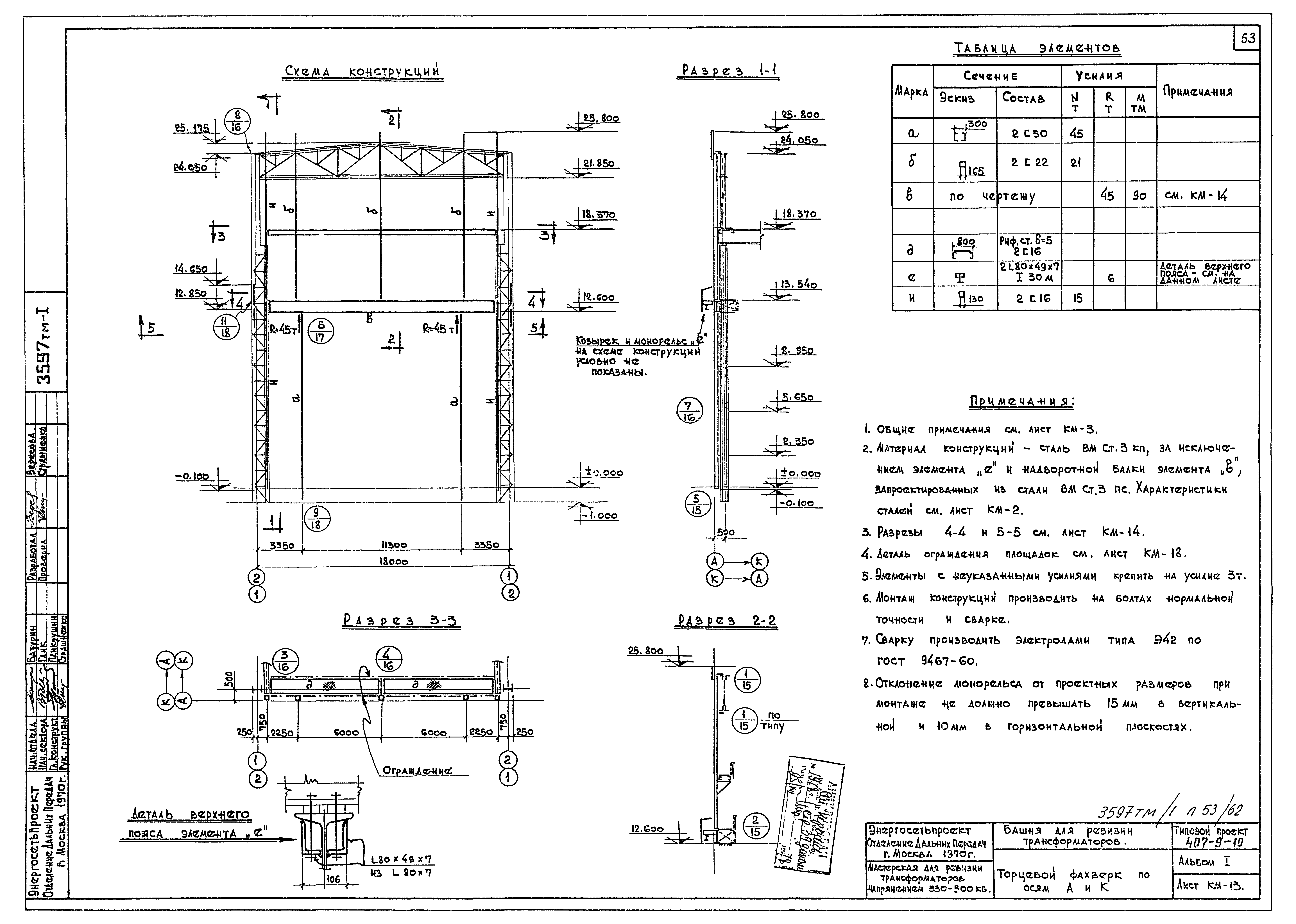
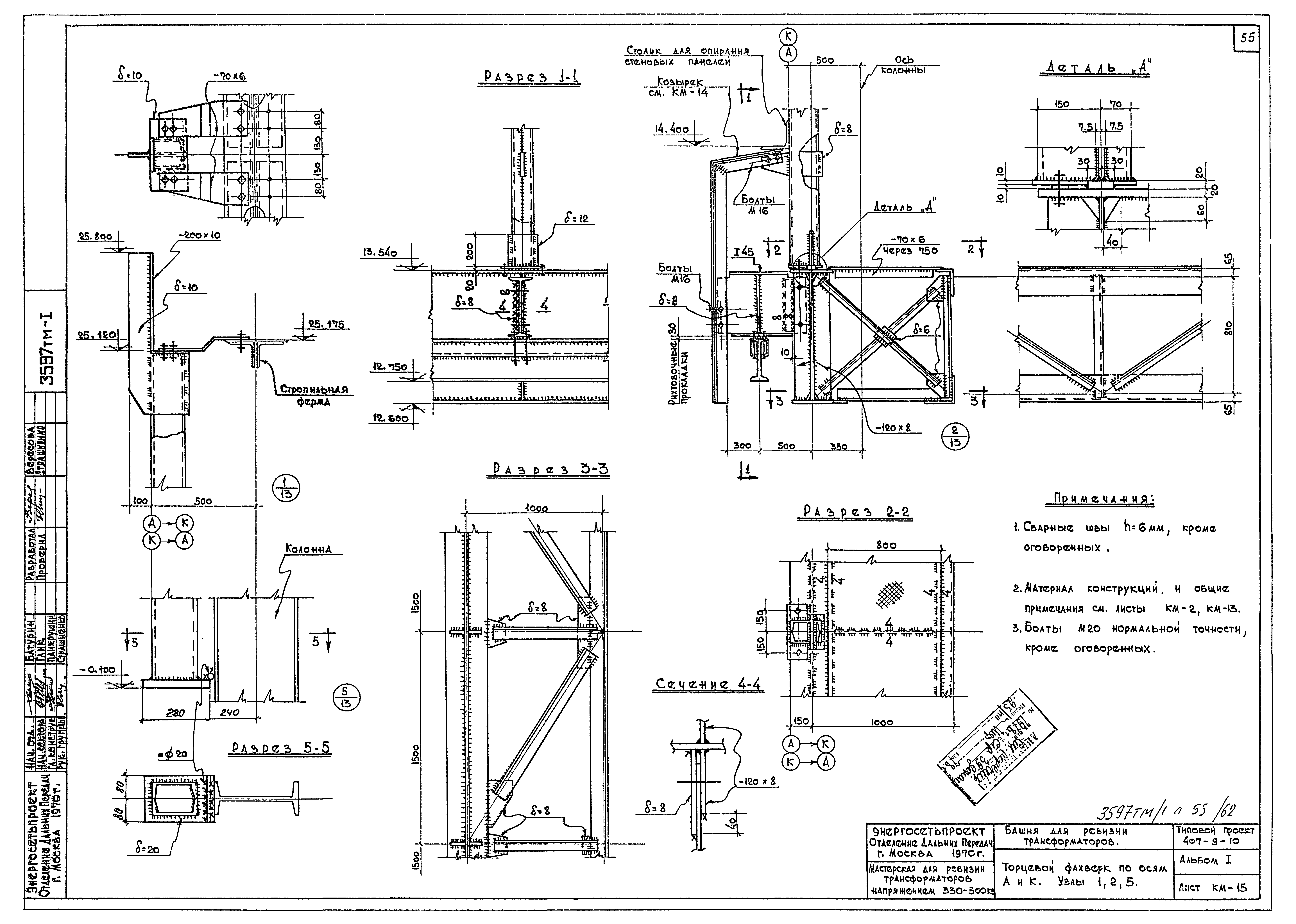
Скачать Типовой проект 407-9-10 Альбом I. Башня для ревизии трансформаторов. Архитектурно-строительная частьДата актуализации: 01.01.2021 Типовой проект 407-9-10
Альбом I. Башня для ревизии трансформаторов. Архитектурно-строительная часть| Обозначение: | Типовой проект 407-9-10 | | Обозначение англ: | 407-9-10 | | Статус: | отменен | | Название рус.: | Альбом I. Башня для ревизии трансформаторов. Архитектурно-строительная часть | | Дата добавления в базу: | 01.02.2017 | | Дата актуализации: | 01.01.2021 | | Дата введения: | 04.12.1970 | | Дата окончания срока действия: | 01.05.1978 | | Разработан: | Отделение Дальних передач института Энергосетьпроект
| | Утверждён: | 04.12.1970 Энергосетьпроект (Energosetproject 198)
|
                                                             
|