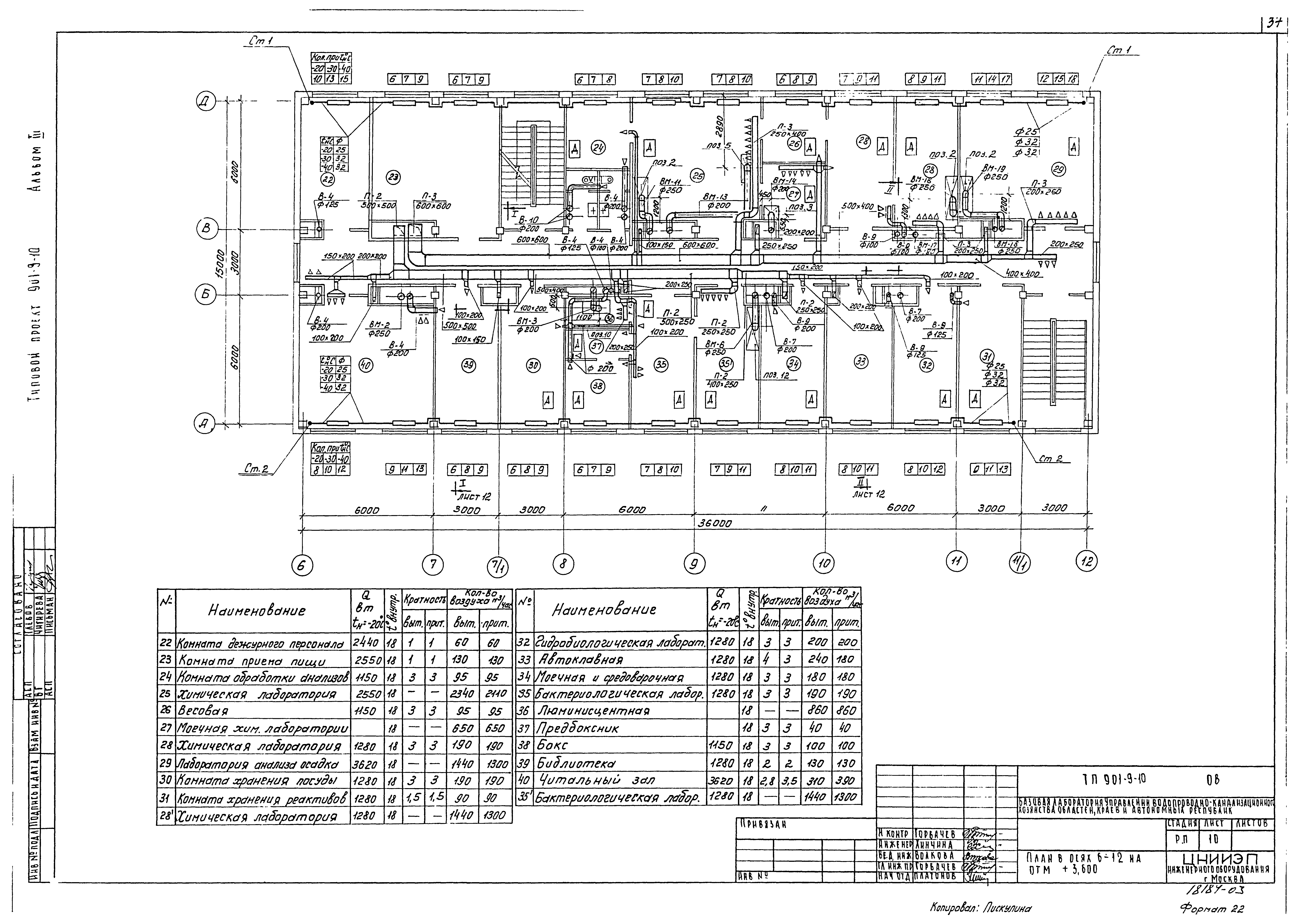
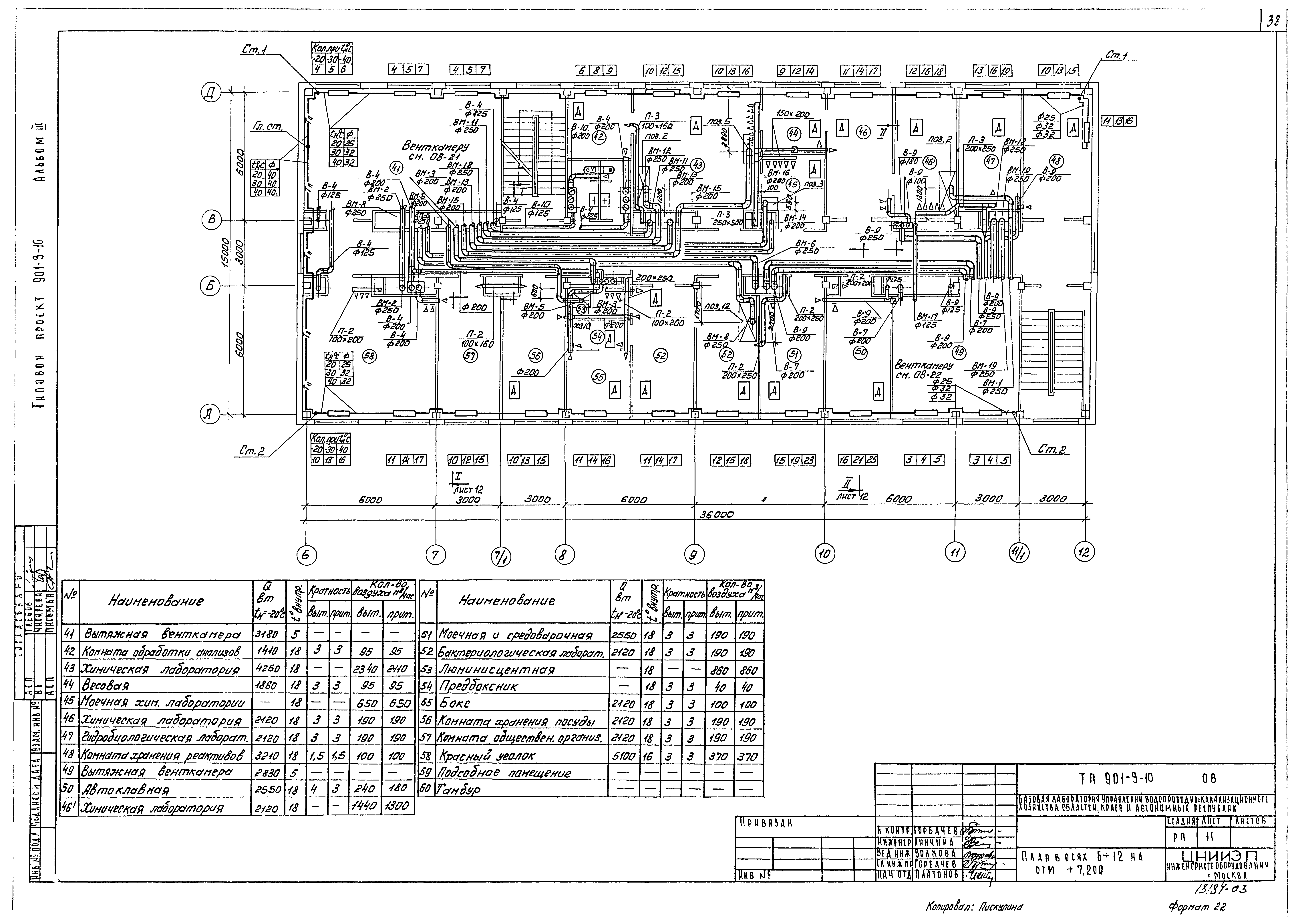
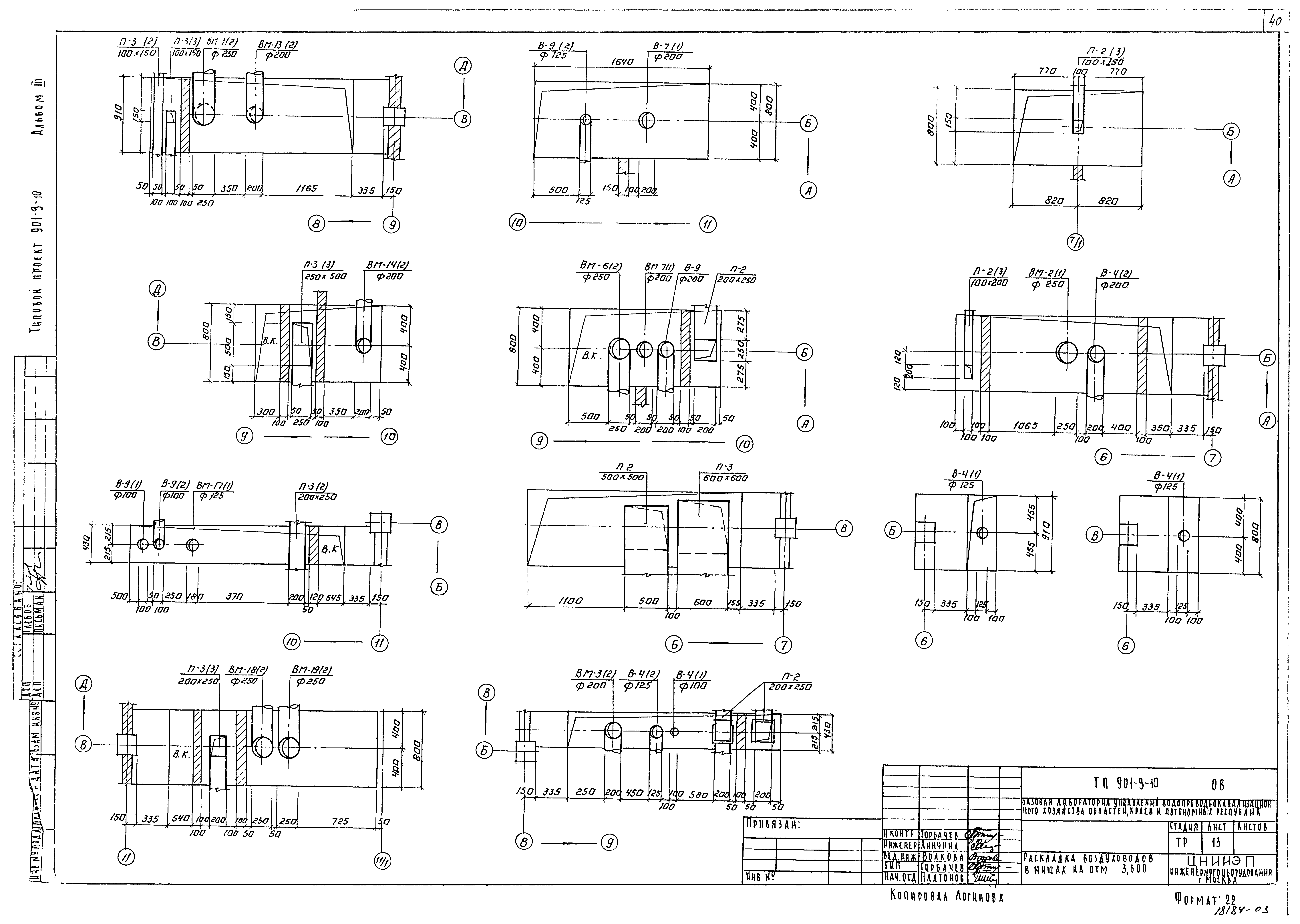
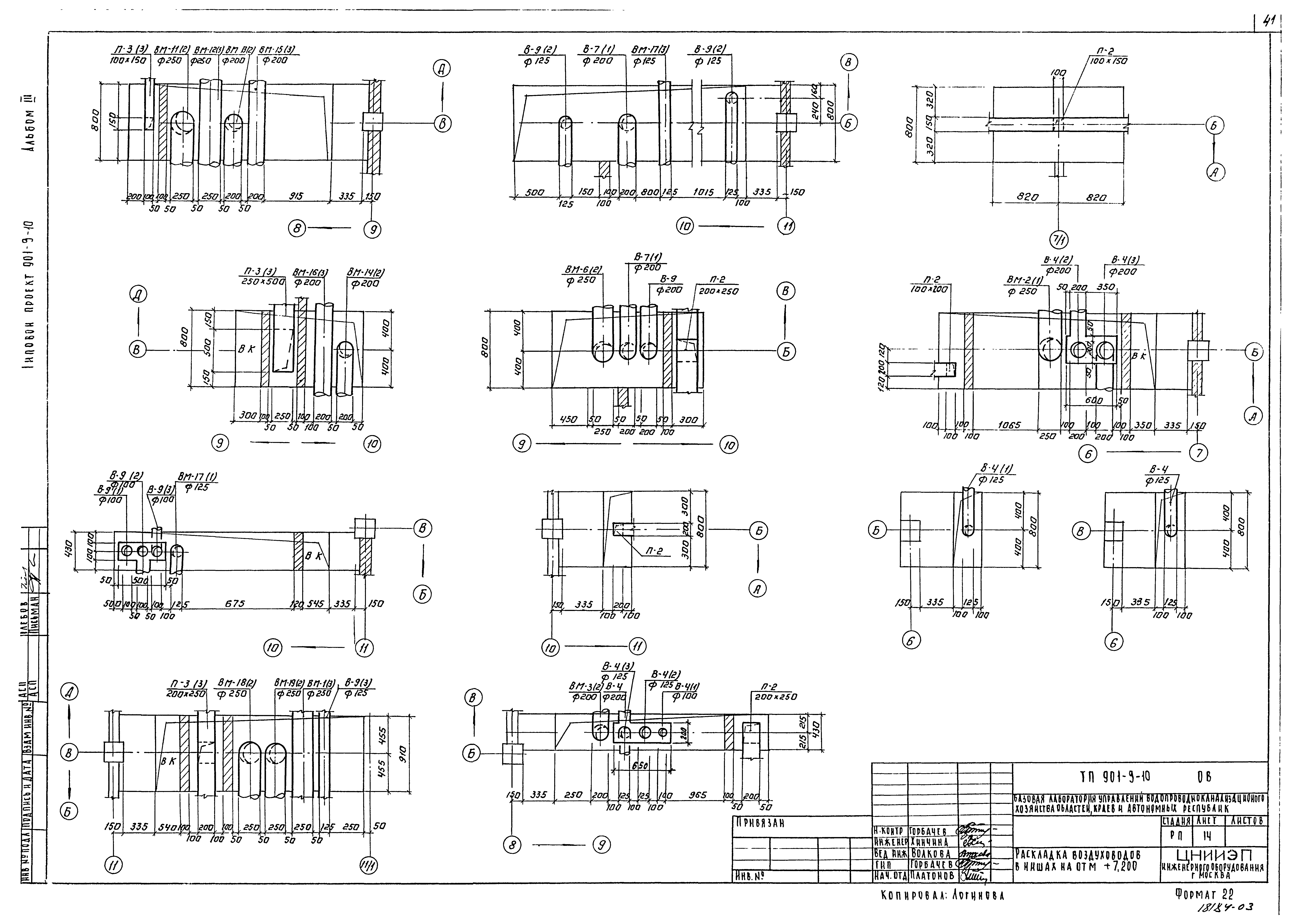
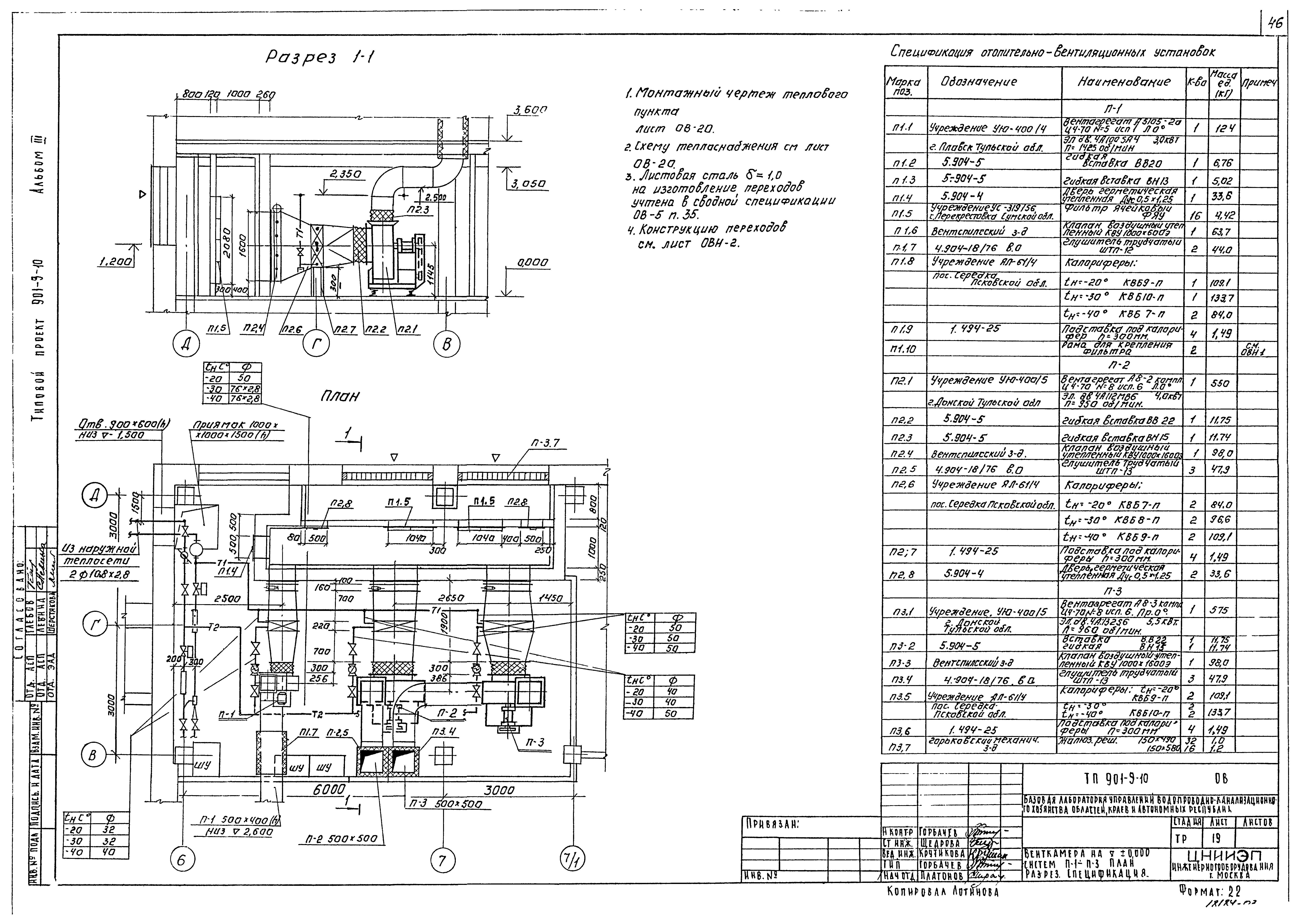
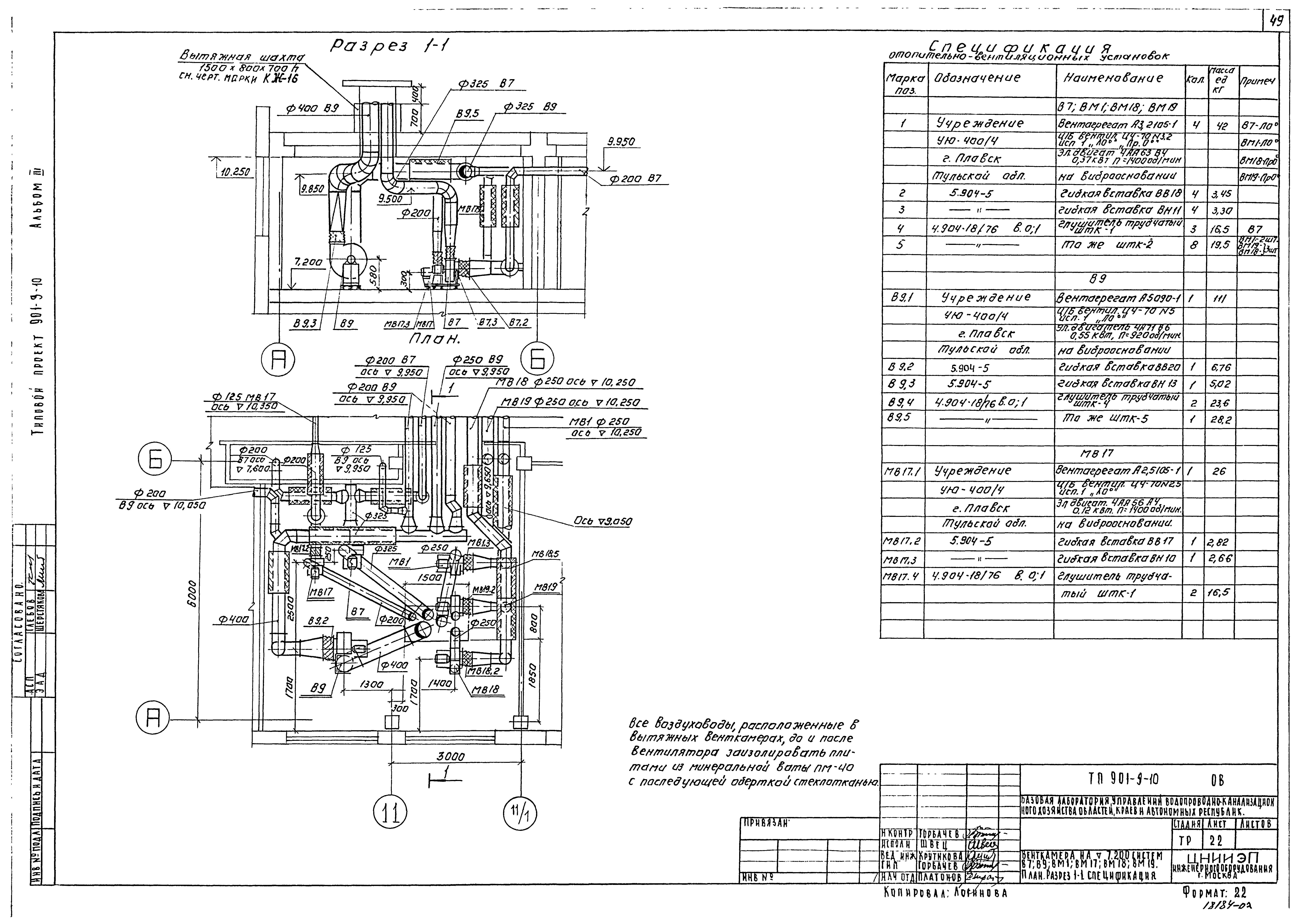
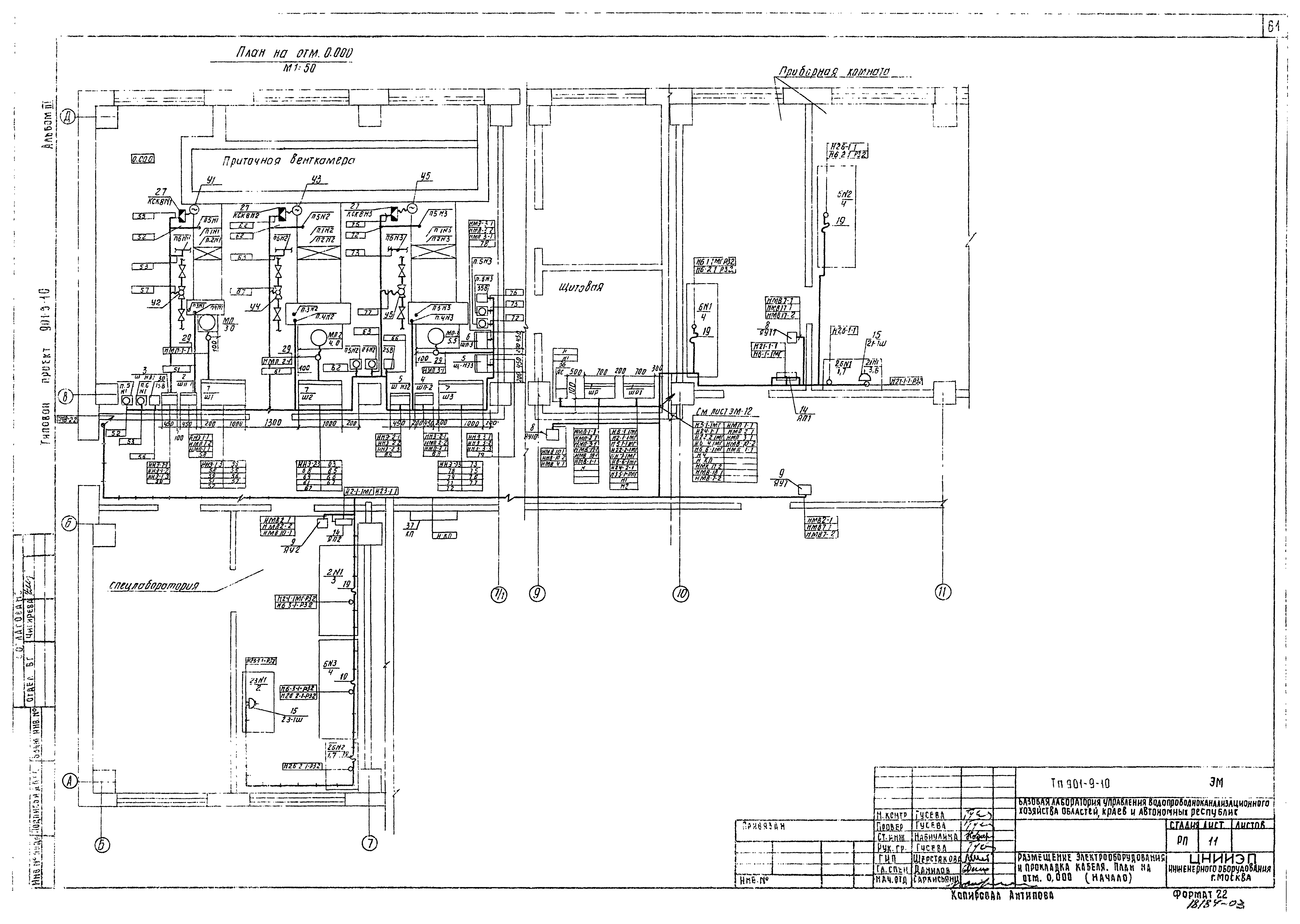
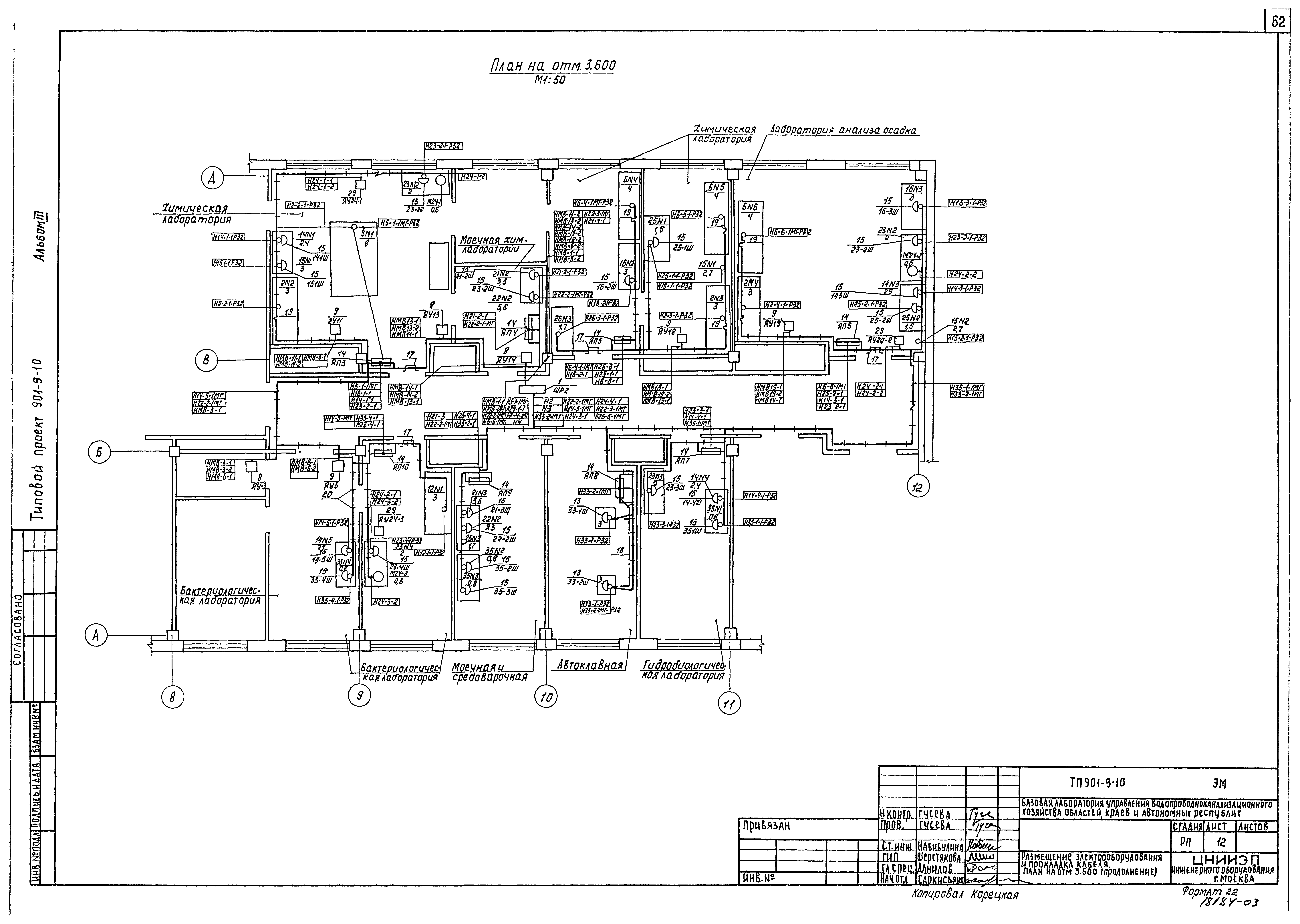
Скачать Типовой проект 901-9-10 Альбом III. Технологическая, санитарно-техническая, электротехническая части и газооборудованиеДата актуализации: 01.01.2021 Типовой проект 901-9-10
Альбом III. Технологическая, санитарно-техническая, электротехническая части и газооборудование| Обозначение: | Типовой проект 901-9-10 | | Обозначение англ: | 901-9-10 | | Статус: | отменен | | Название рус.: | Альбом III. Технологическая, санитарно-техническая, электротехническая части и газооборудование | | Дата добавления в базу: | 01.02.2017 | | Дата актуализации: | 01.01.2021 | | Дата введения: | 29.04.1982 | | Дата окончания срока действия: | 01.01.1990 | | Разработан: | ЦНИИЭП инженерного оборудования
| | Утверждён: | 24.02.1982 Госгражданстрой (Gosgrazhdanstroy 60)
|
                                                                          
|