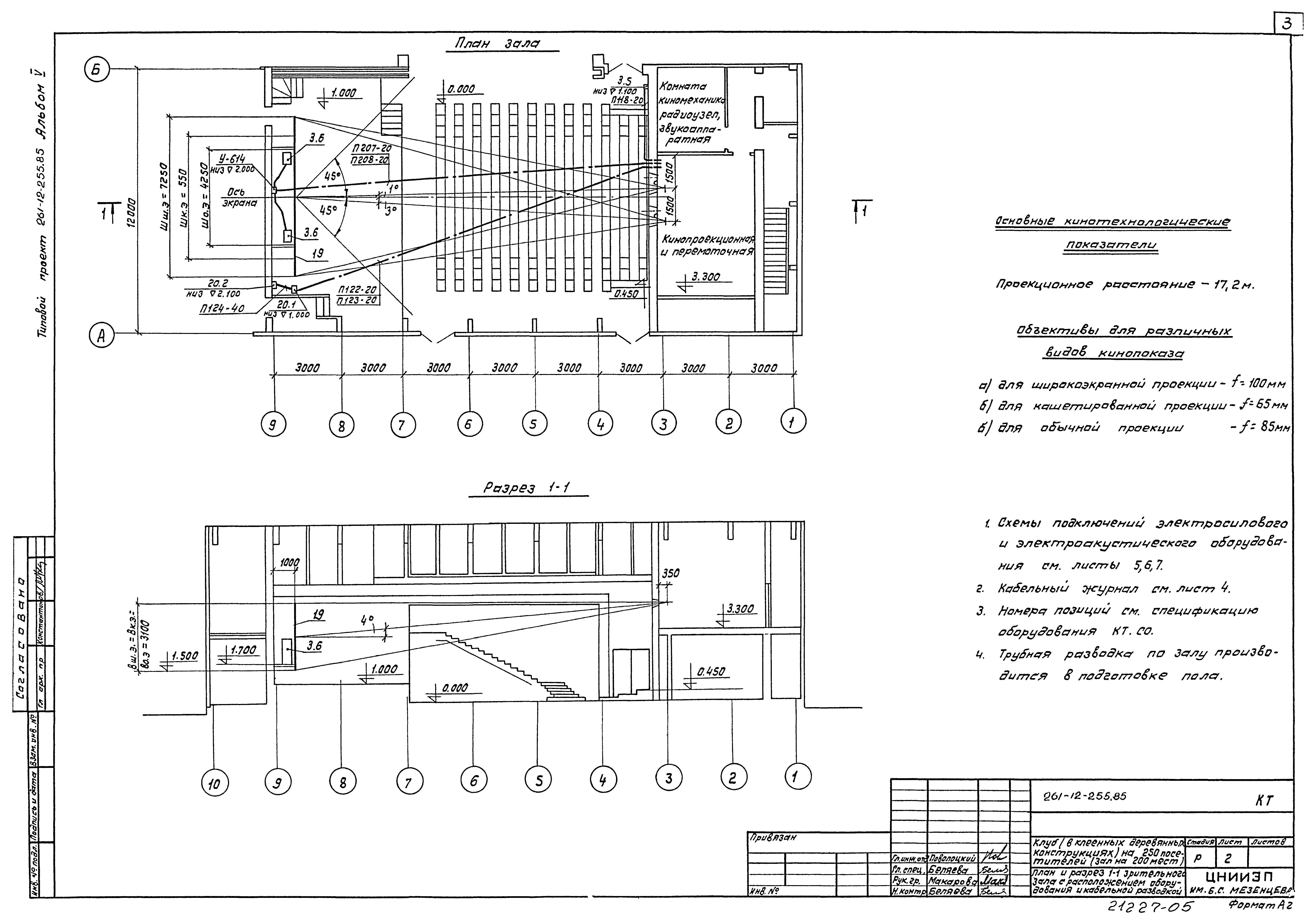
Скачать Типовой проект 261-12-255.85 Альбом V. Технологические чертежи. МеханооборудованиеДата актуализации: 01.01.2021 Типовой проект 261-12-255.85
Альбом V. Технологические чертежи. Механооборудование| Обозначение: | Типовой проект 261-12-255.85 | | Обозначение англ: | 261-12-255.85 | | Статус: | действует | | Название рус.: | Альбом V. Технологические чертежи. Механооборудование | | Дата добавления в базу: | 01.02.2017 | | Дата актуализации: | 01.01.2021 | | Дата введения: | 26.03.1986 | | Разработан: | ЦНИИЭП им. Б.С. Мезенцева Госгражданстроя
| | Утверждён: | 27.12.1984 Госгражданстрой (Gosgrazhdanstroy 407)
|
               
|