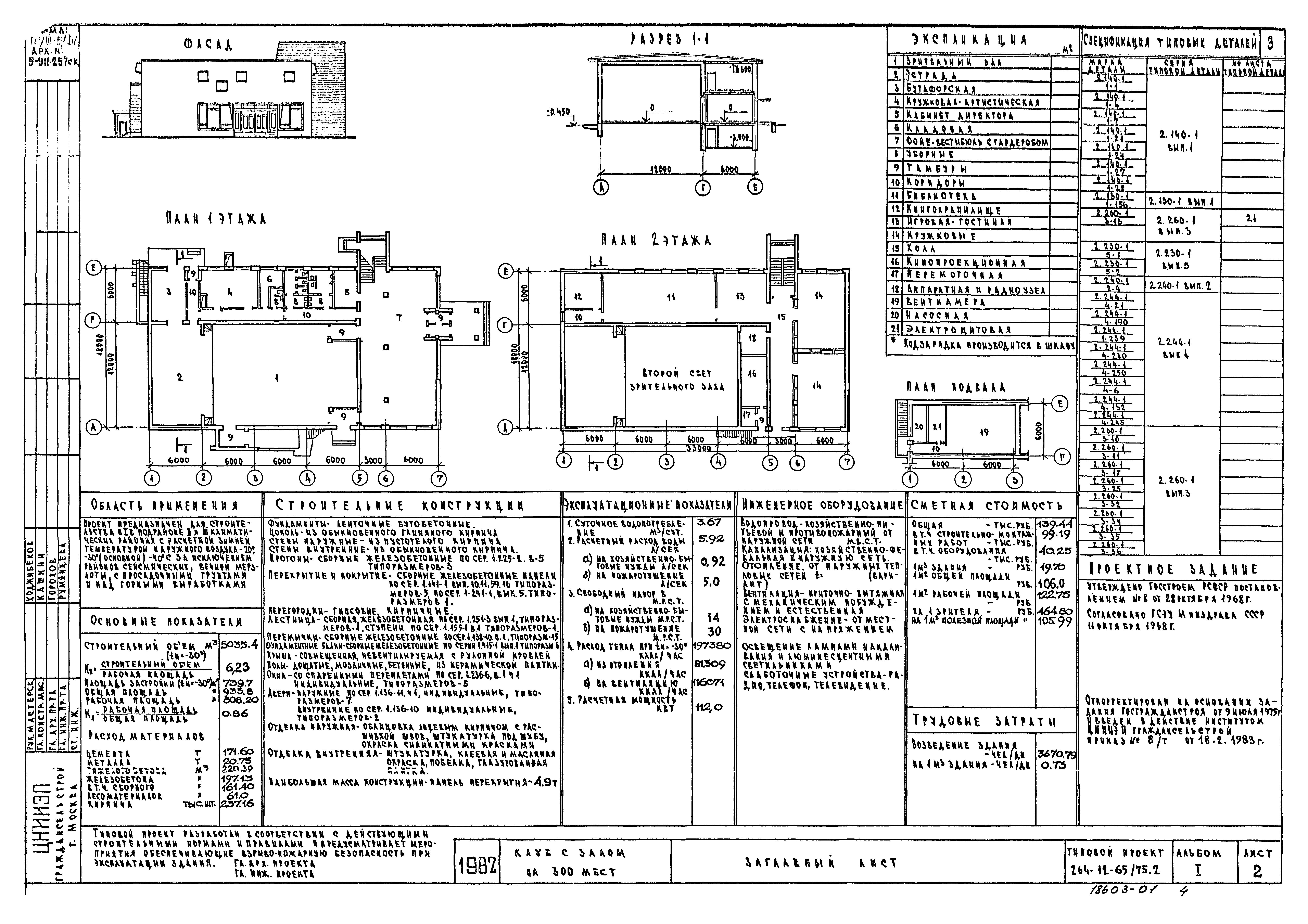
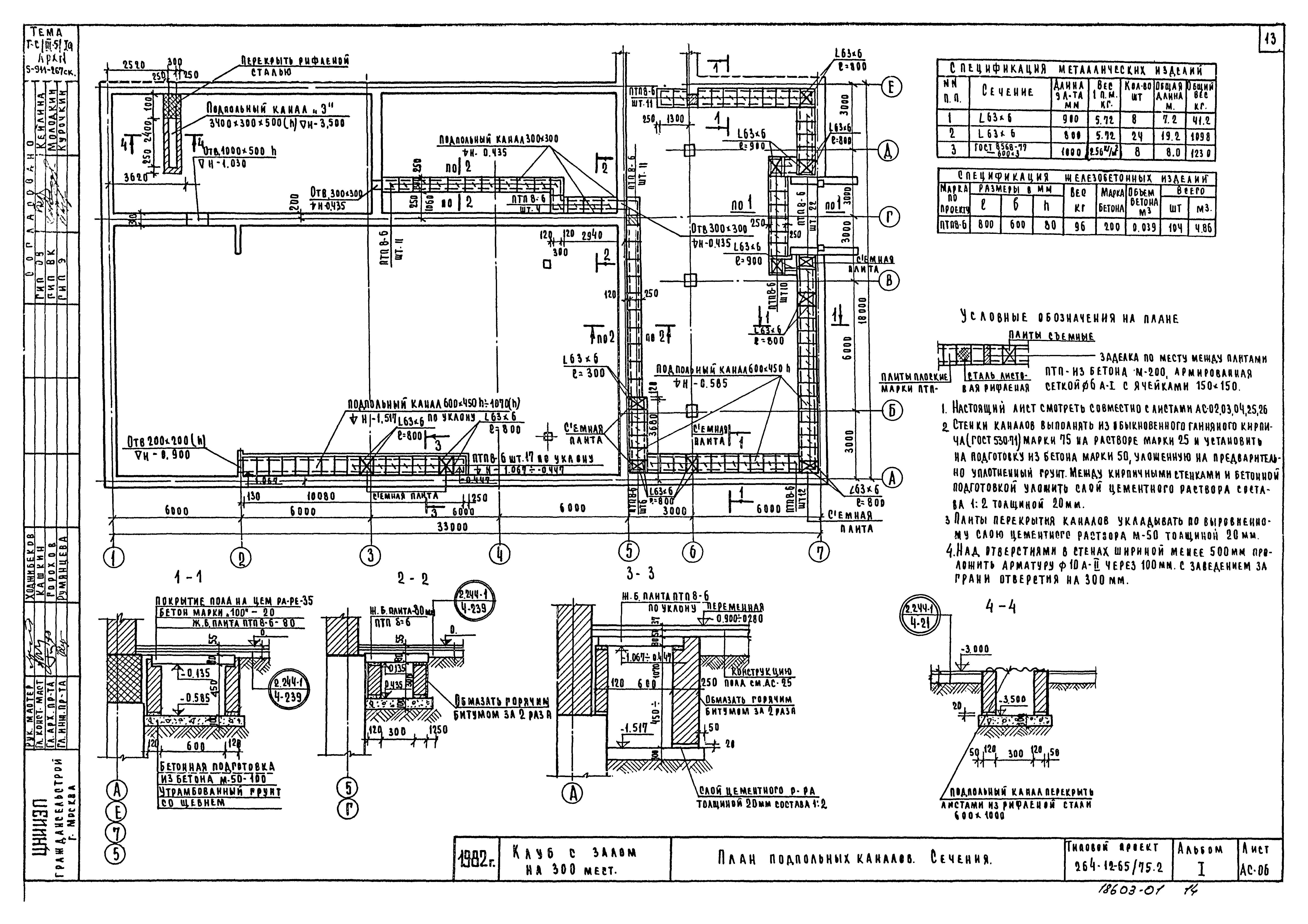
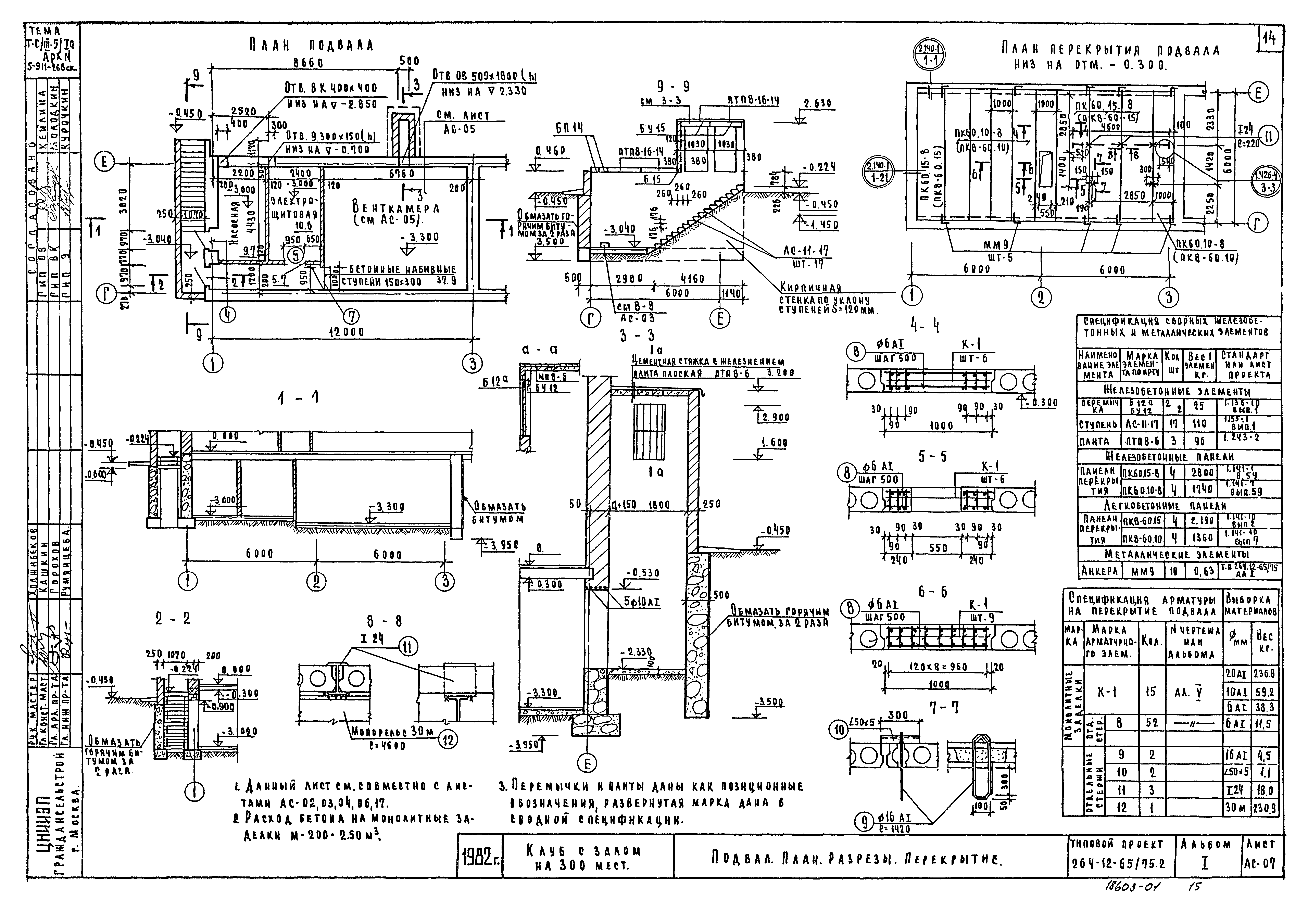
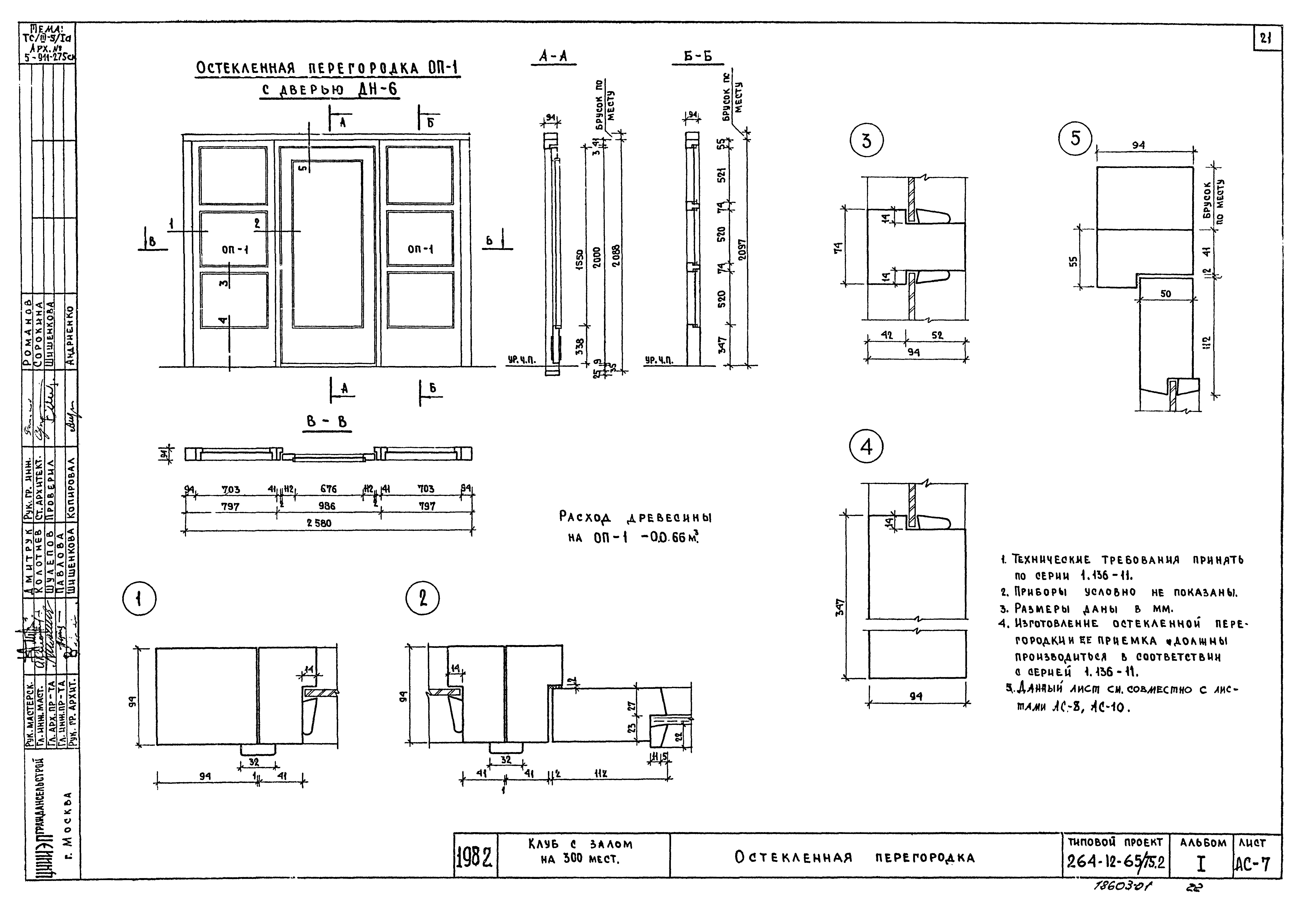
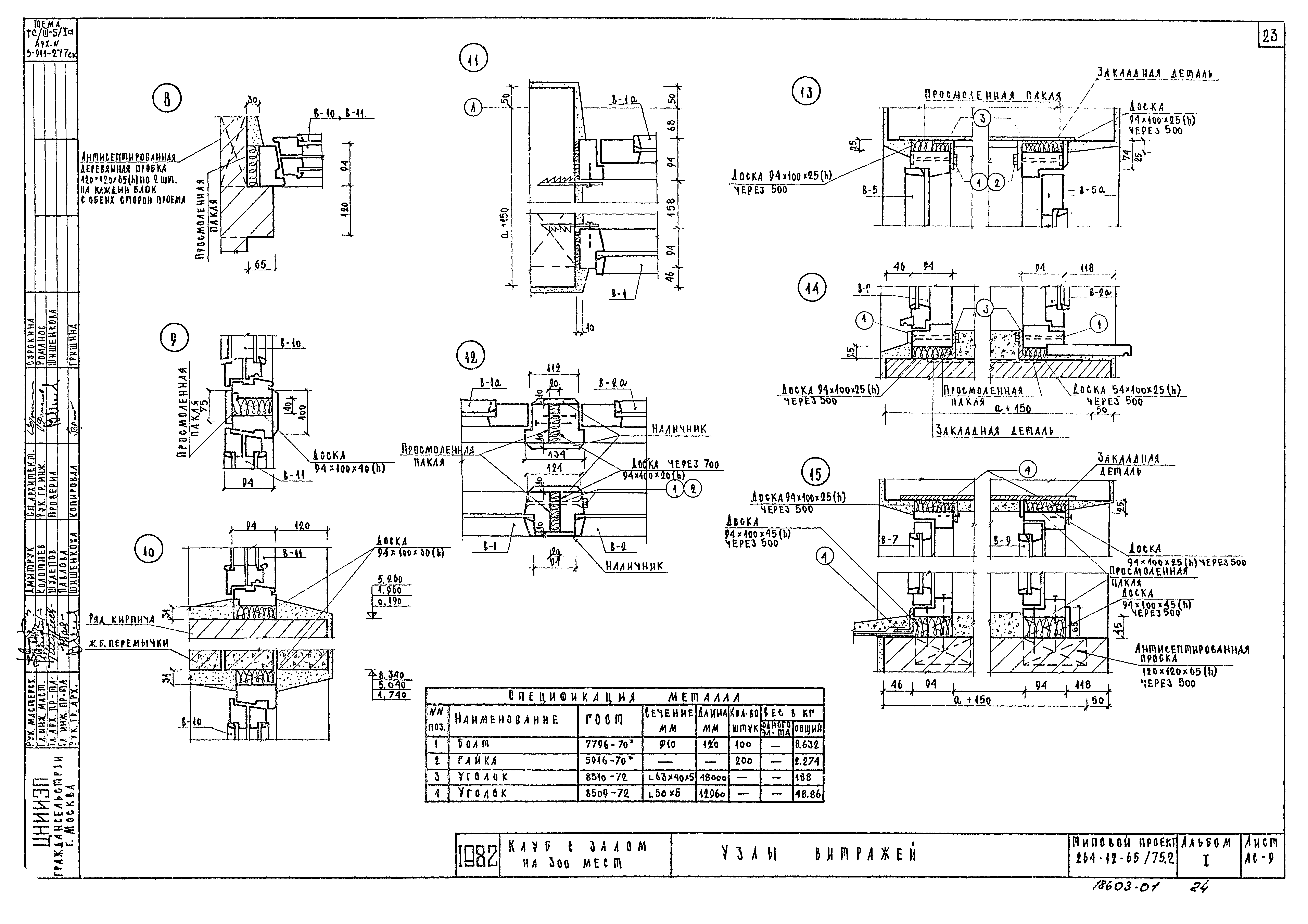
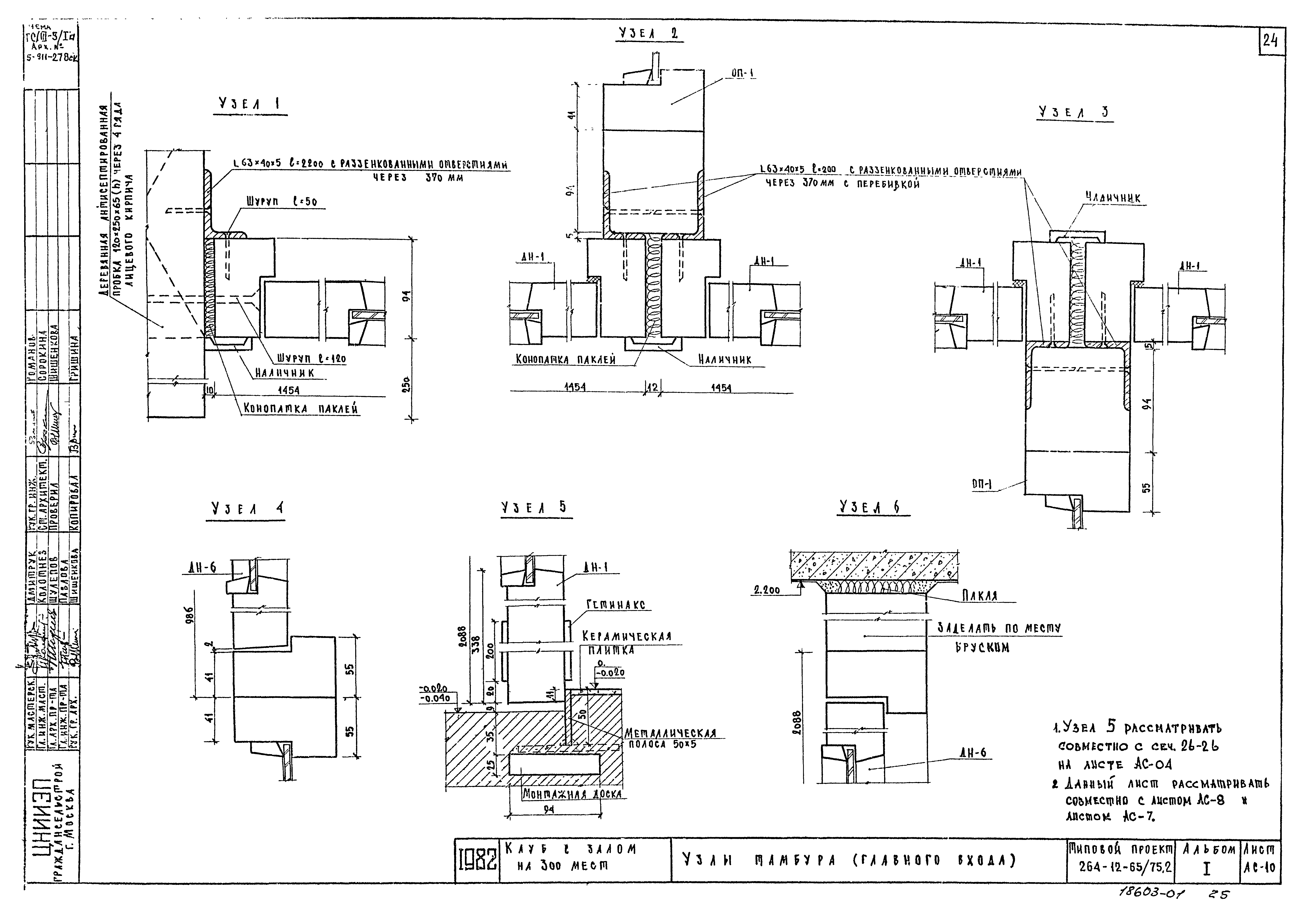
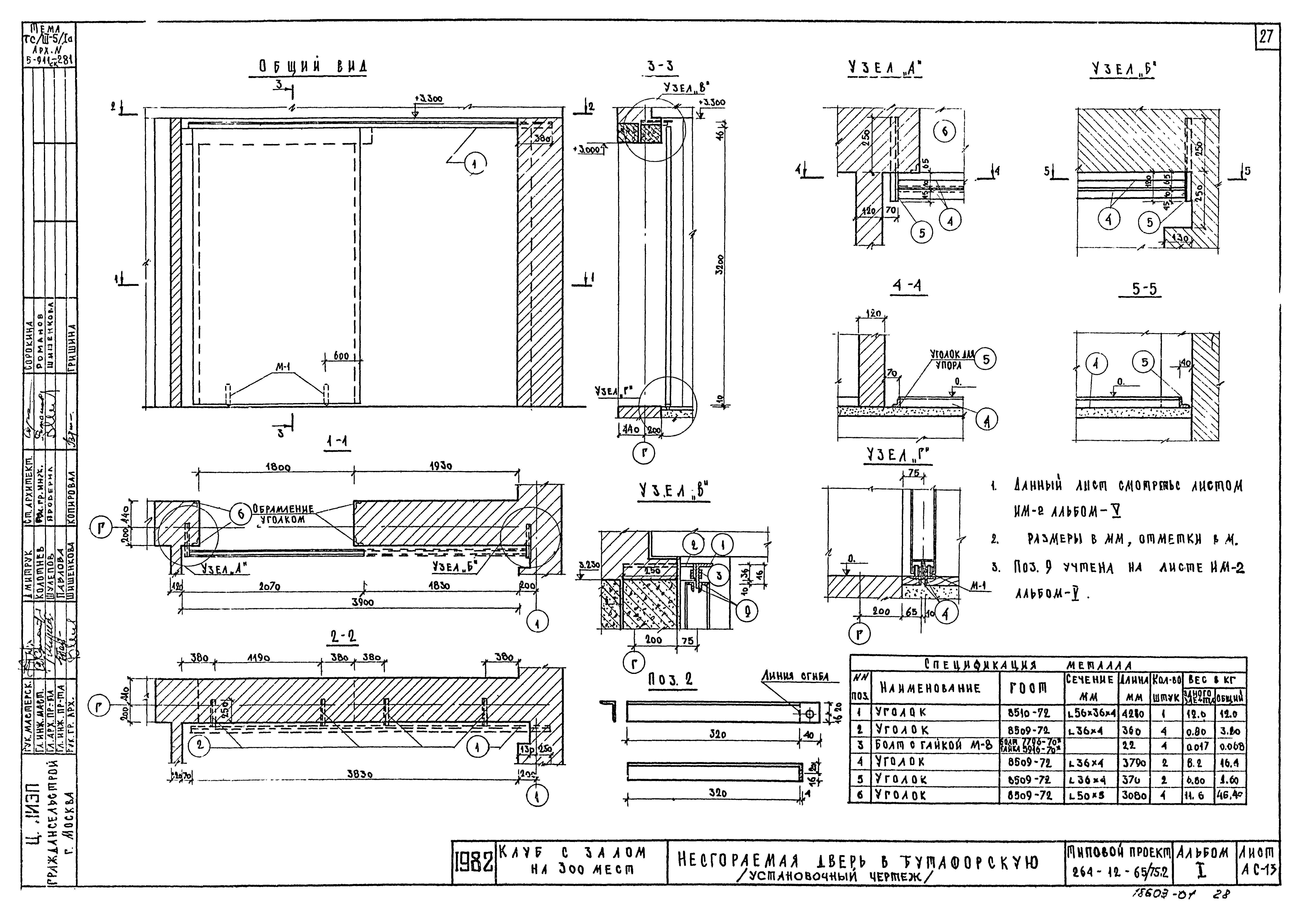
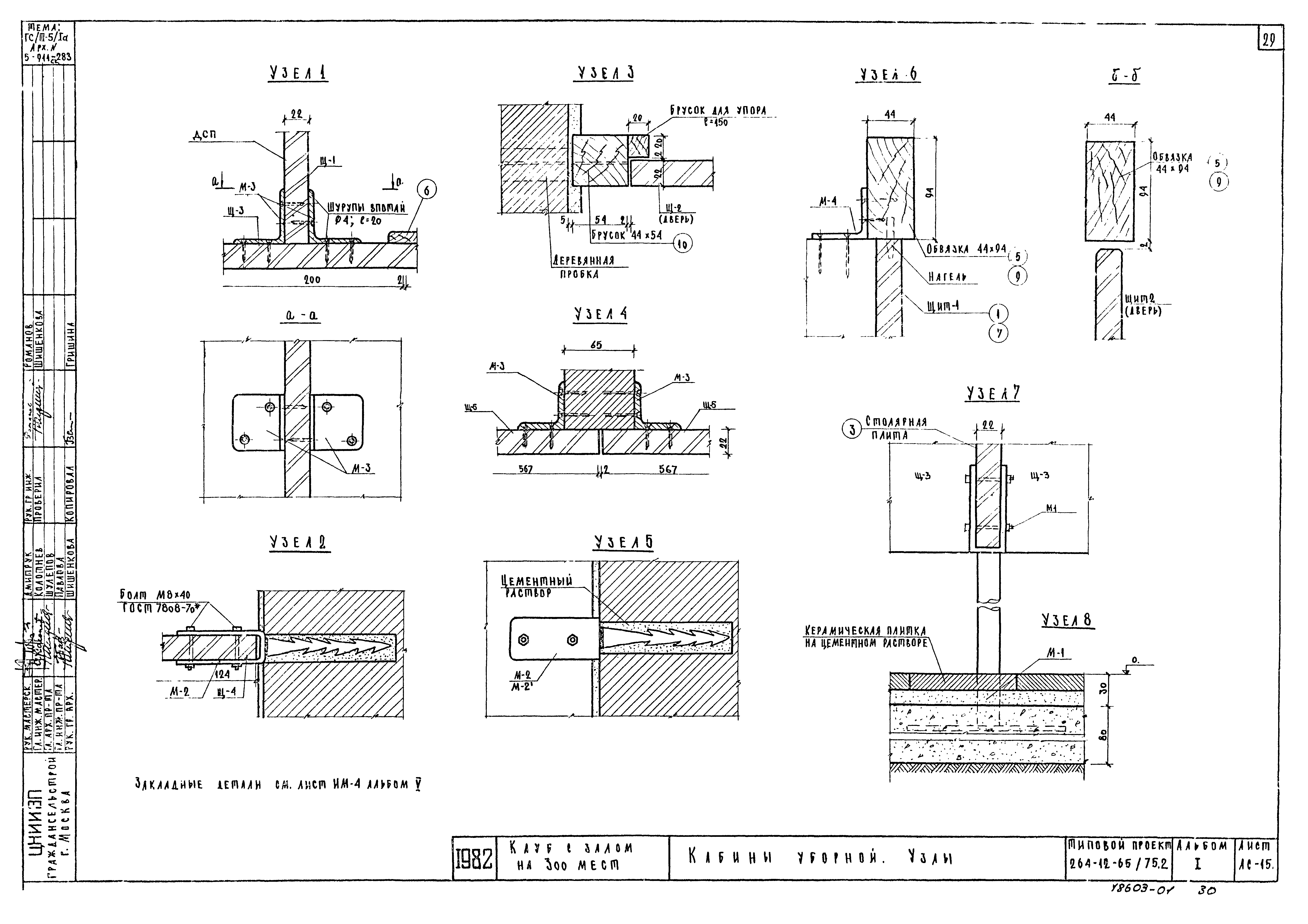
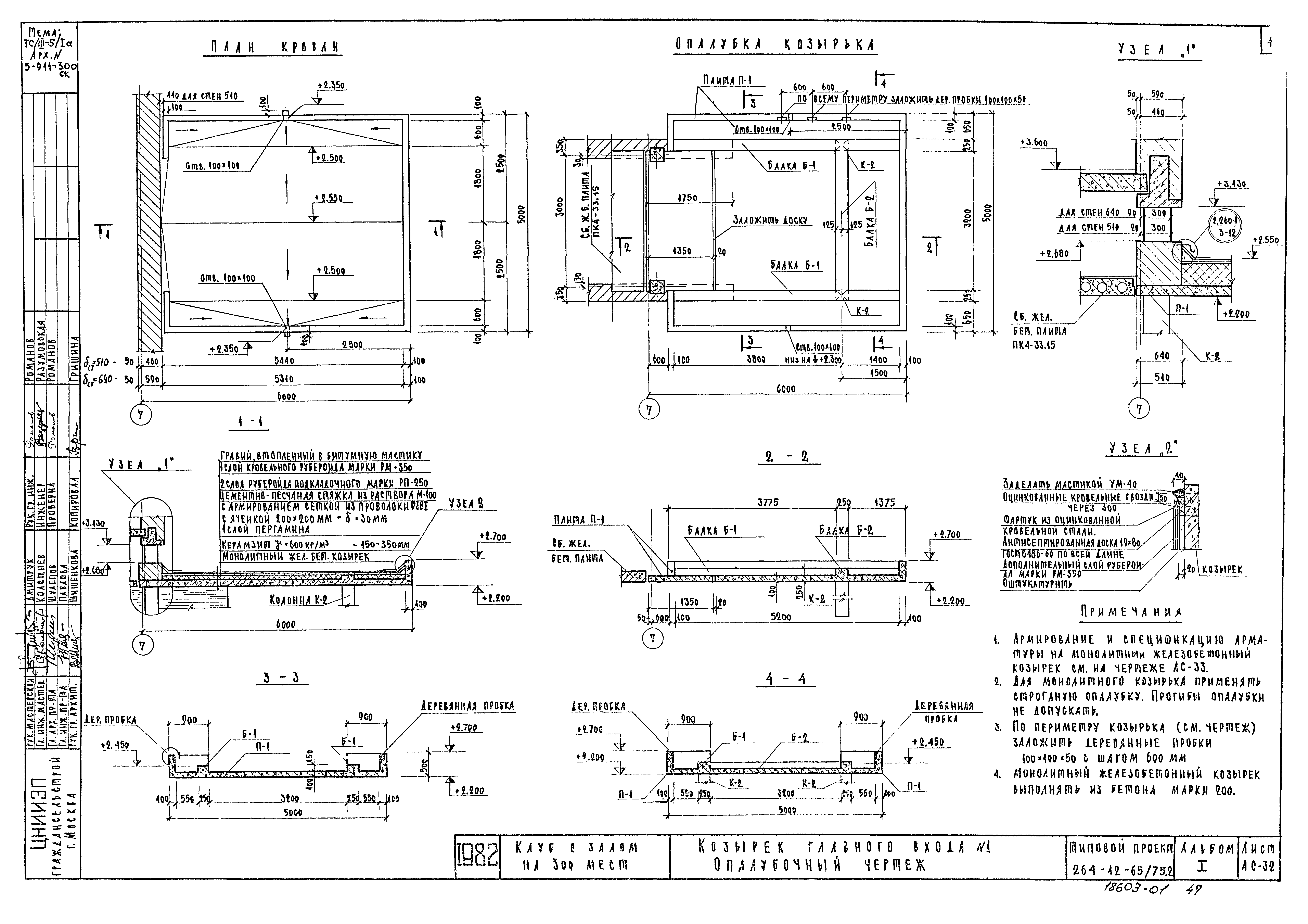
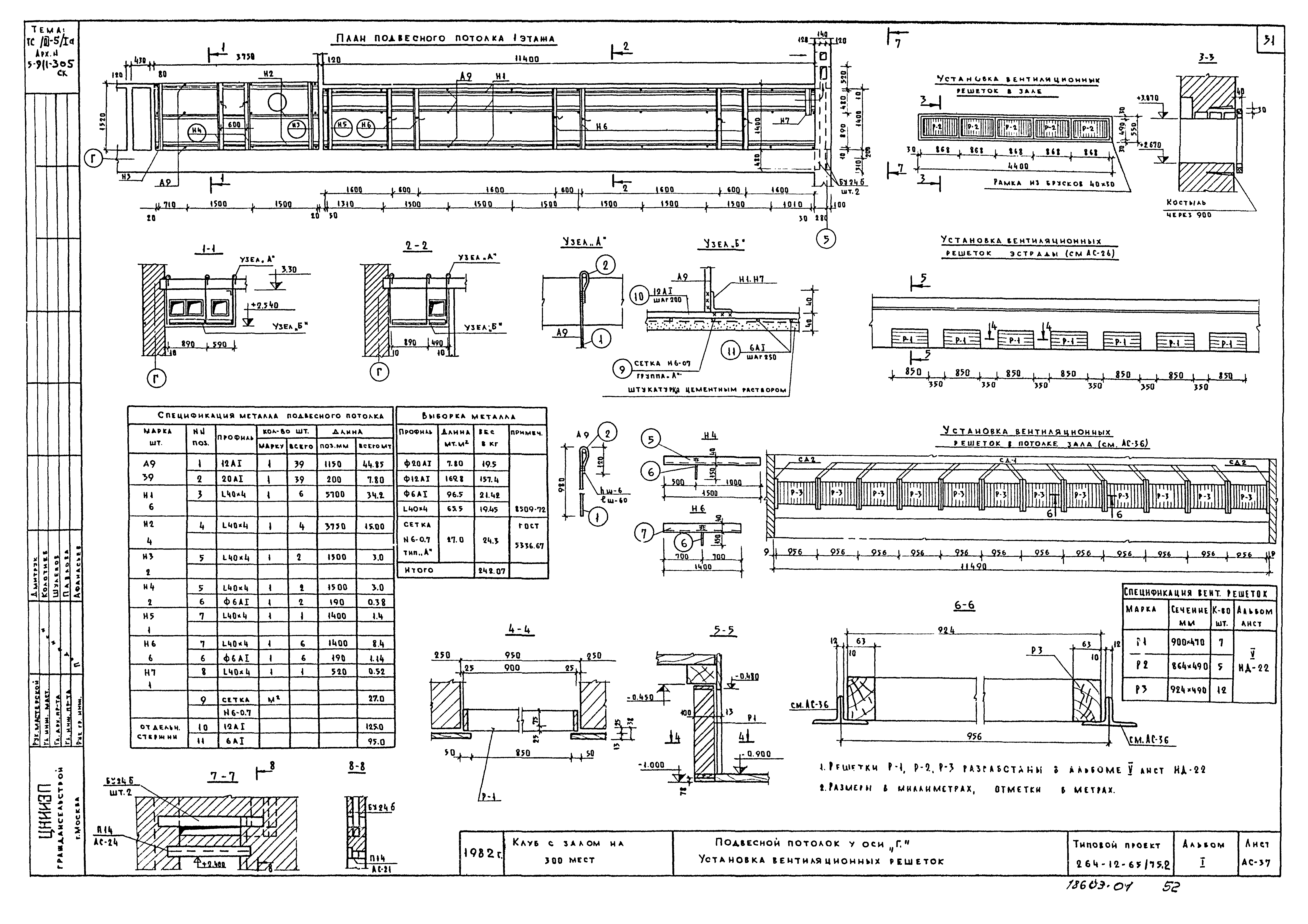
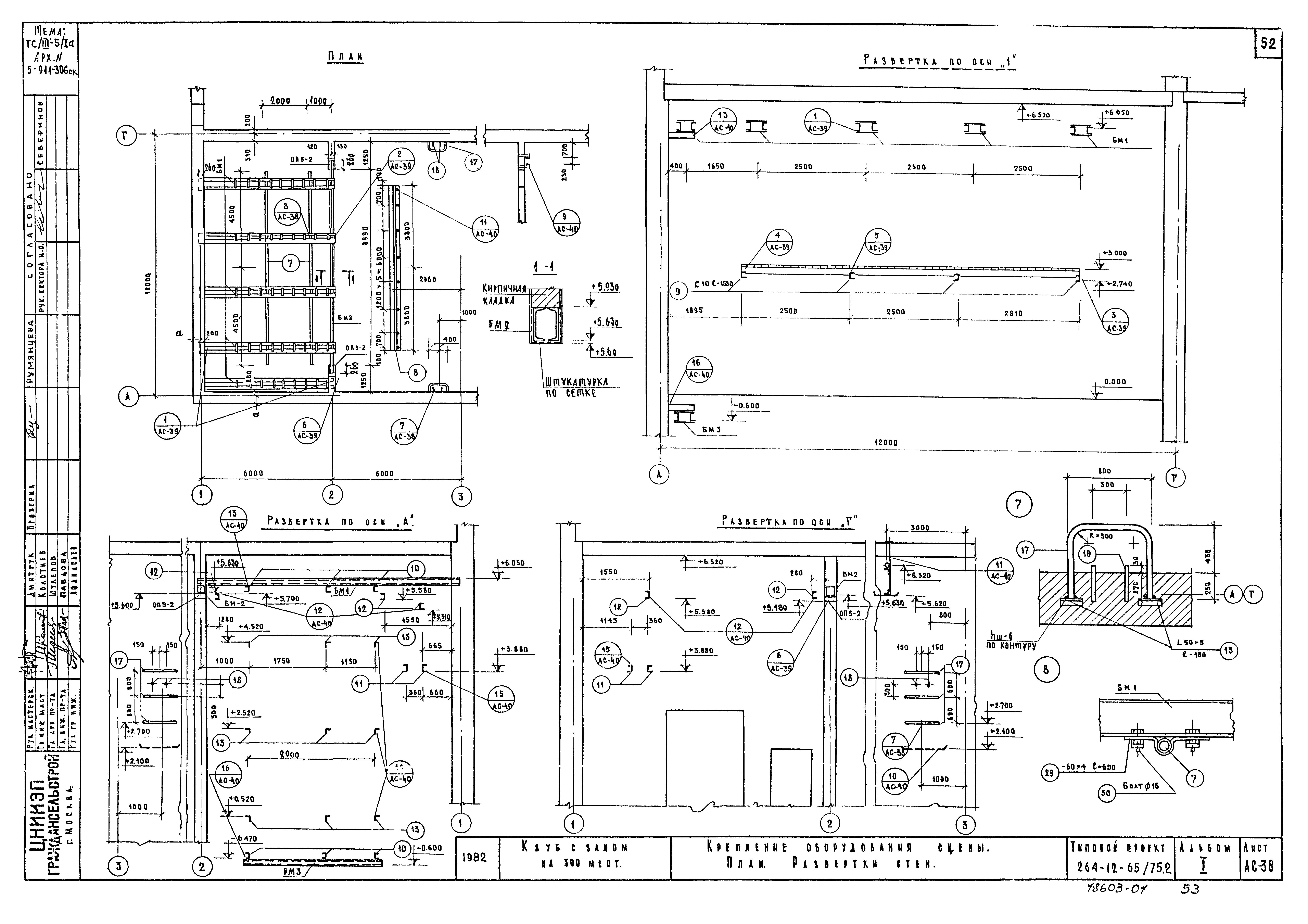
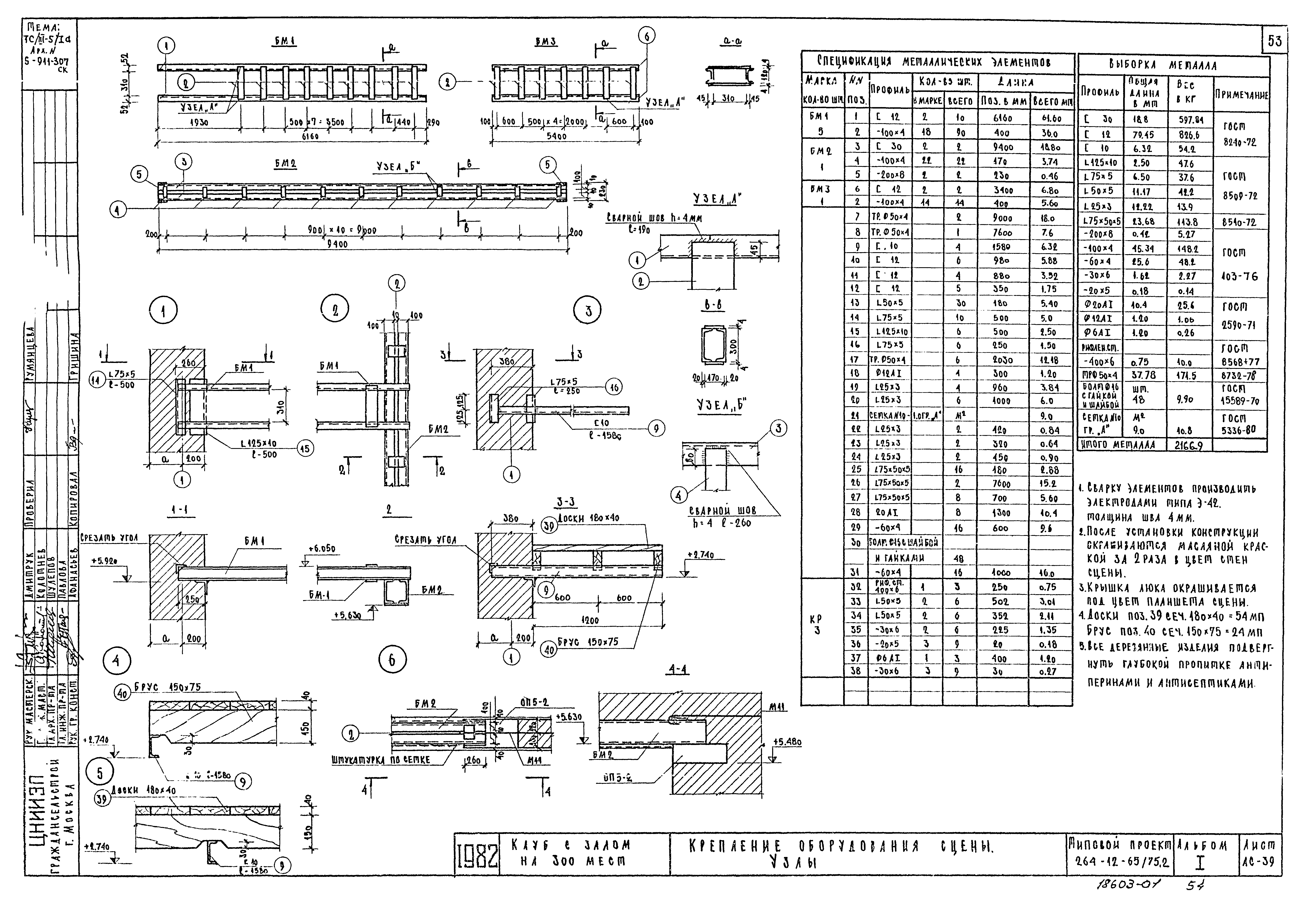
Скачать Типовой проект 264-12-65/75.2 Альбом I. Архитектурно-строительные чертежиДата актуализации: 01.01.2021
|
| Обозначение: | Типовой проект 264-12-65/75.2 |
| Обозначение англ: | 264-12-65/75.2 |
| Статус: | не действует |
| Название рус.: | Альбом I. Архитектурно-строительные чертежи |
| Дата добавления в базу: | 01.02.2017 |
| Дата актуализации: | 01.01.2021 |
| Дата введения: | 18.02.1983 |
| Дата окончания срока действия: | 01.05.1987 |
| Разработан: | ЦНИИЭП граждансельстрой |
| Утверждён: | 28.10.1968 Госстрой РСФСР (Russian Federation Gosstroy 8) |
| Заменяет собой: |
|
























































