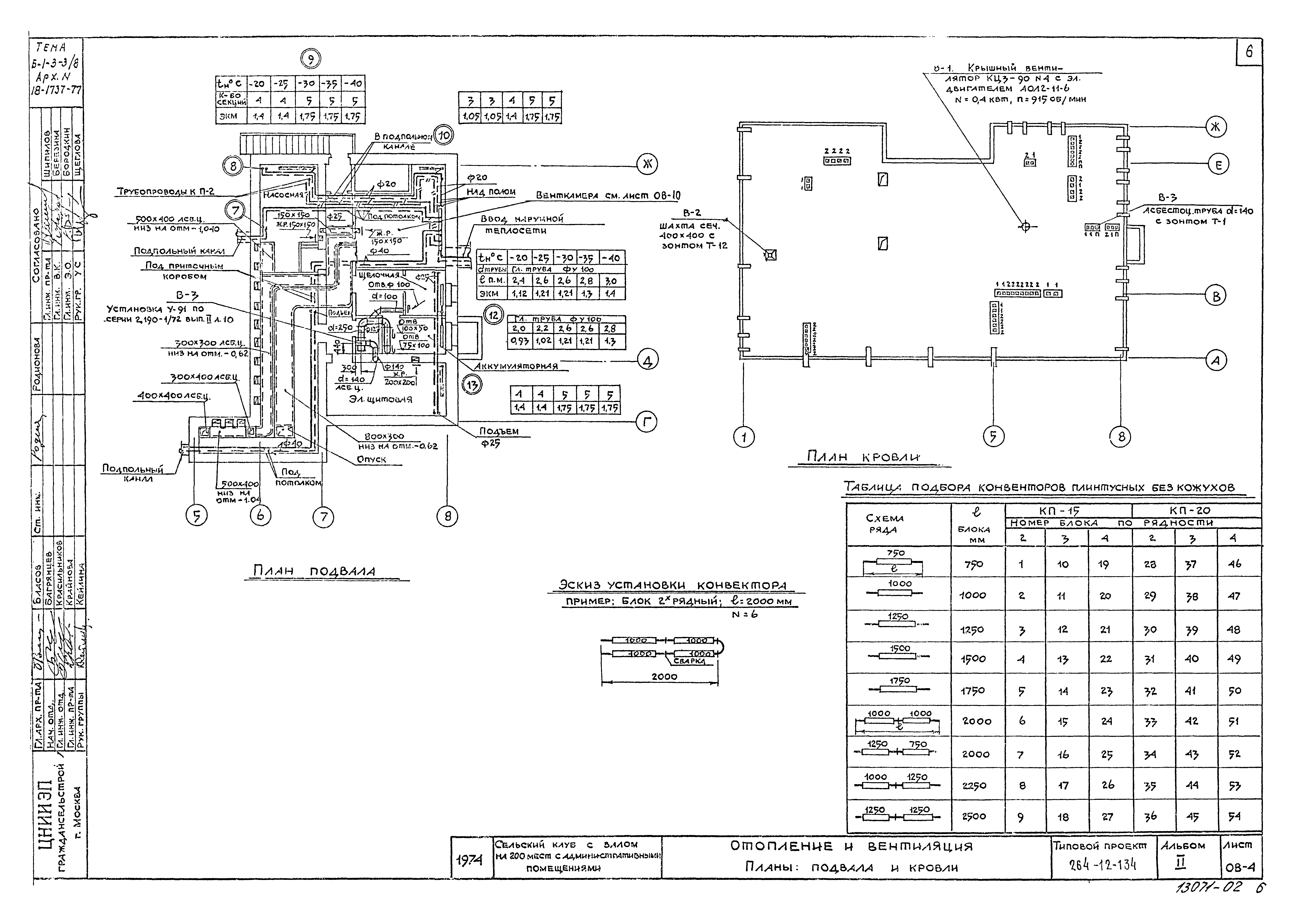
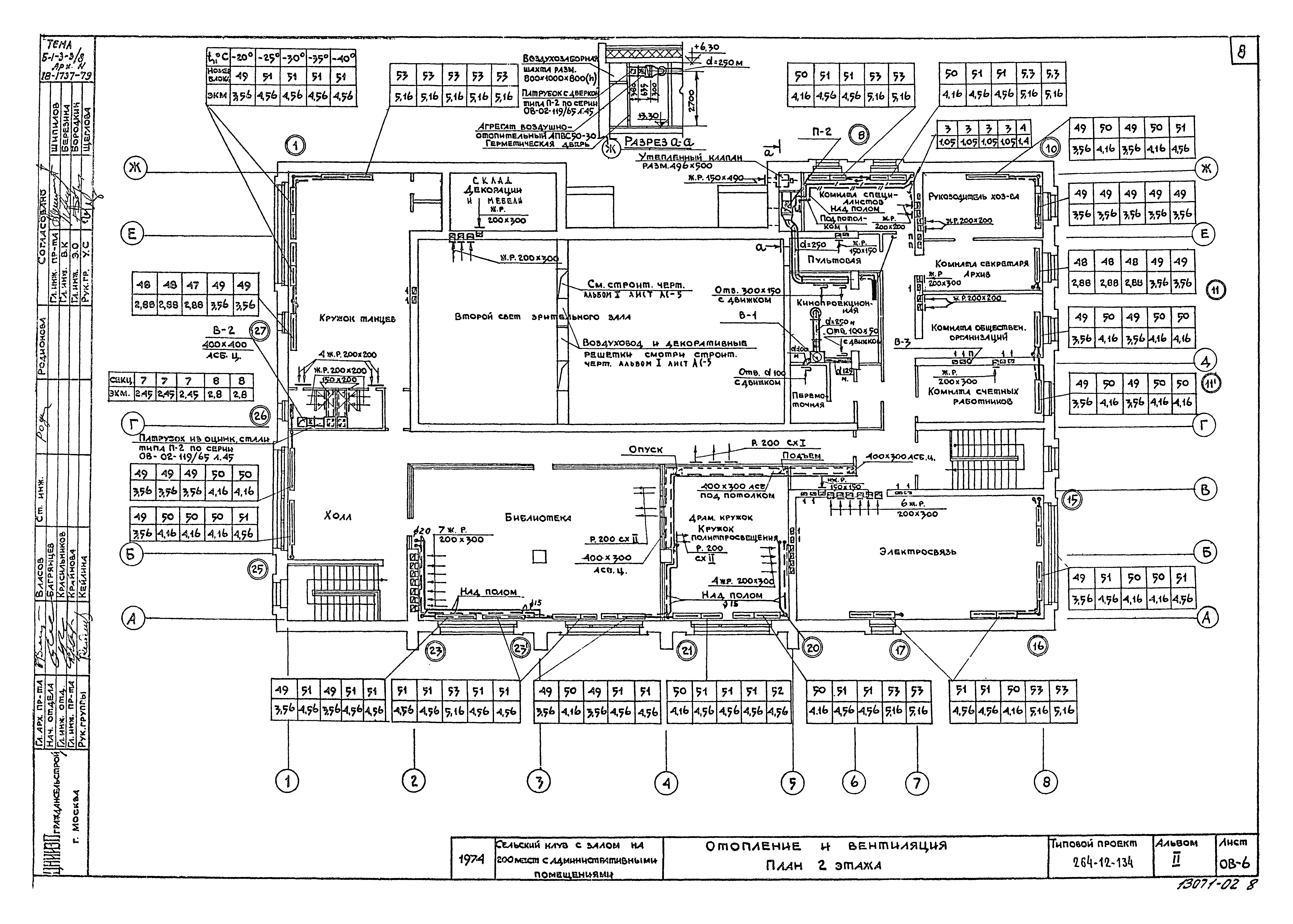
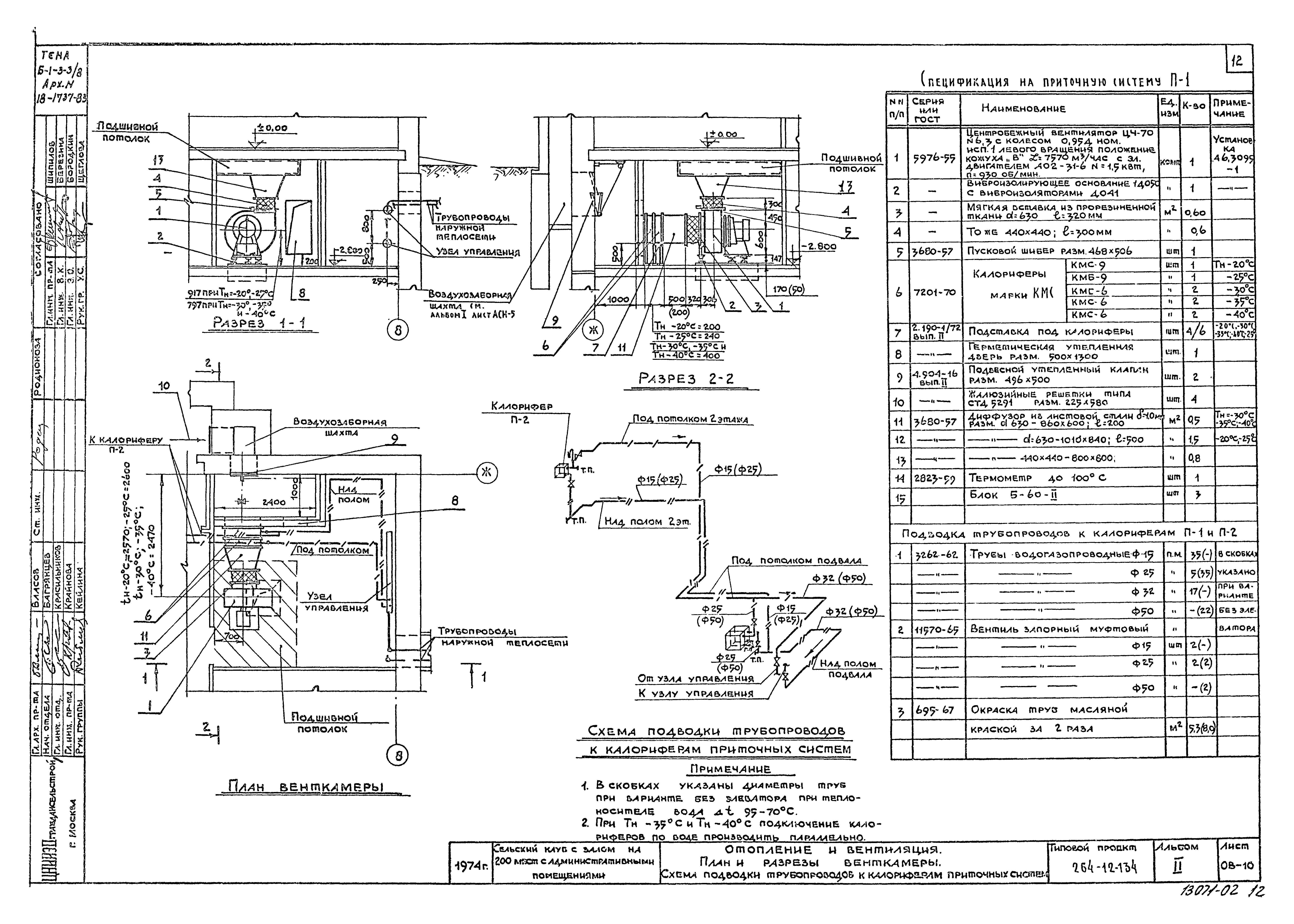
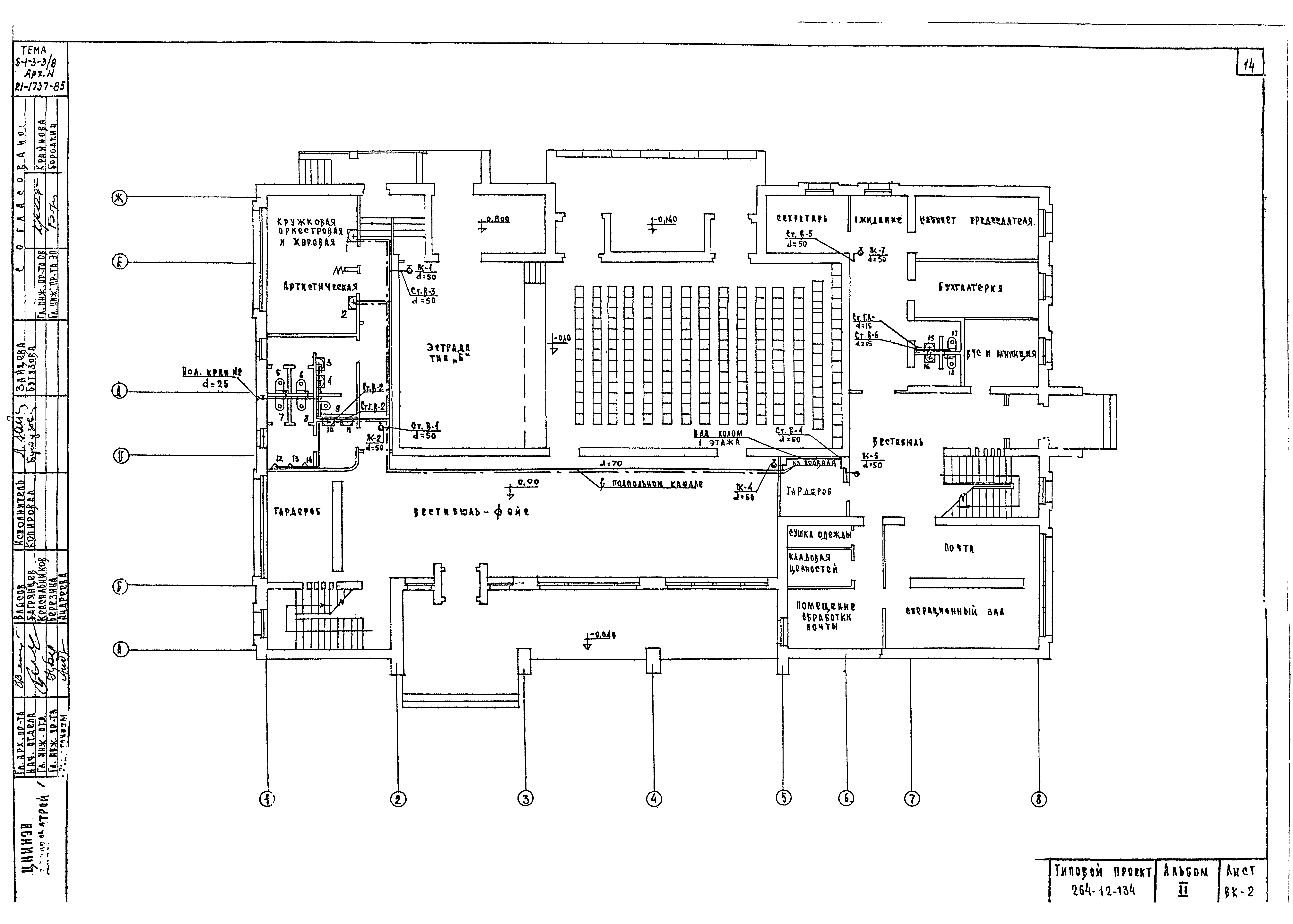
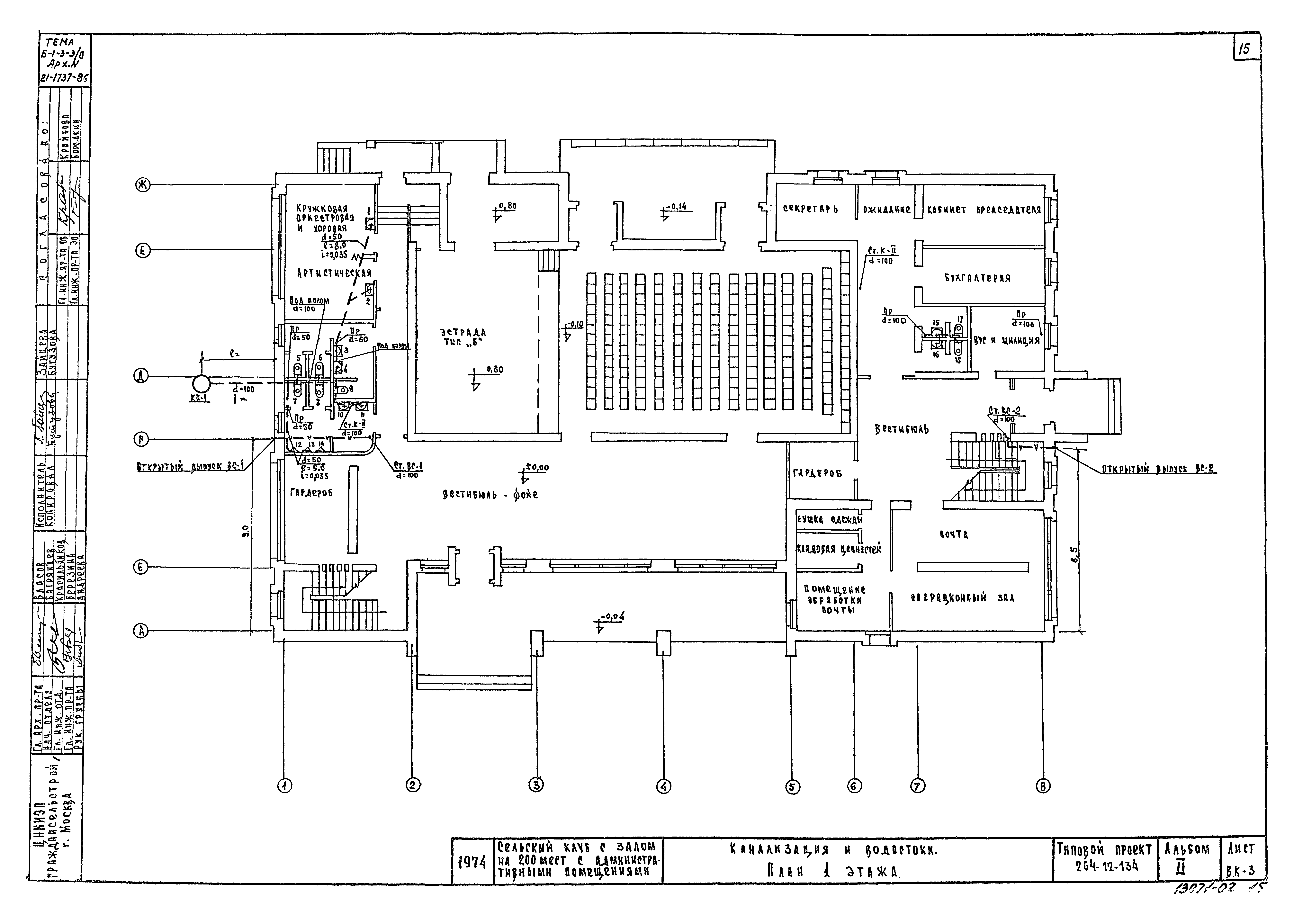
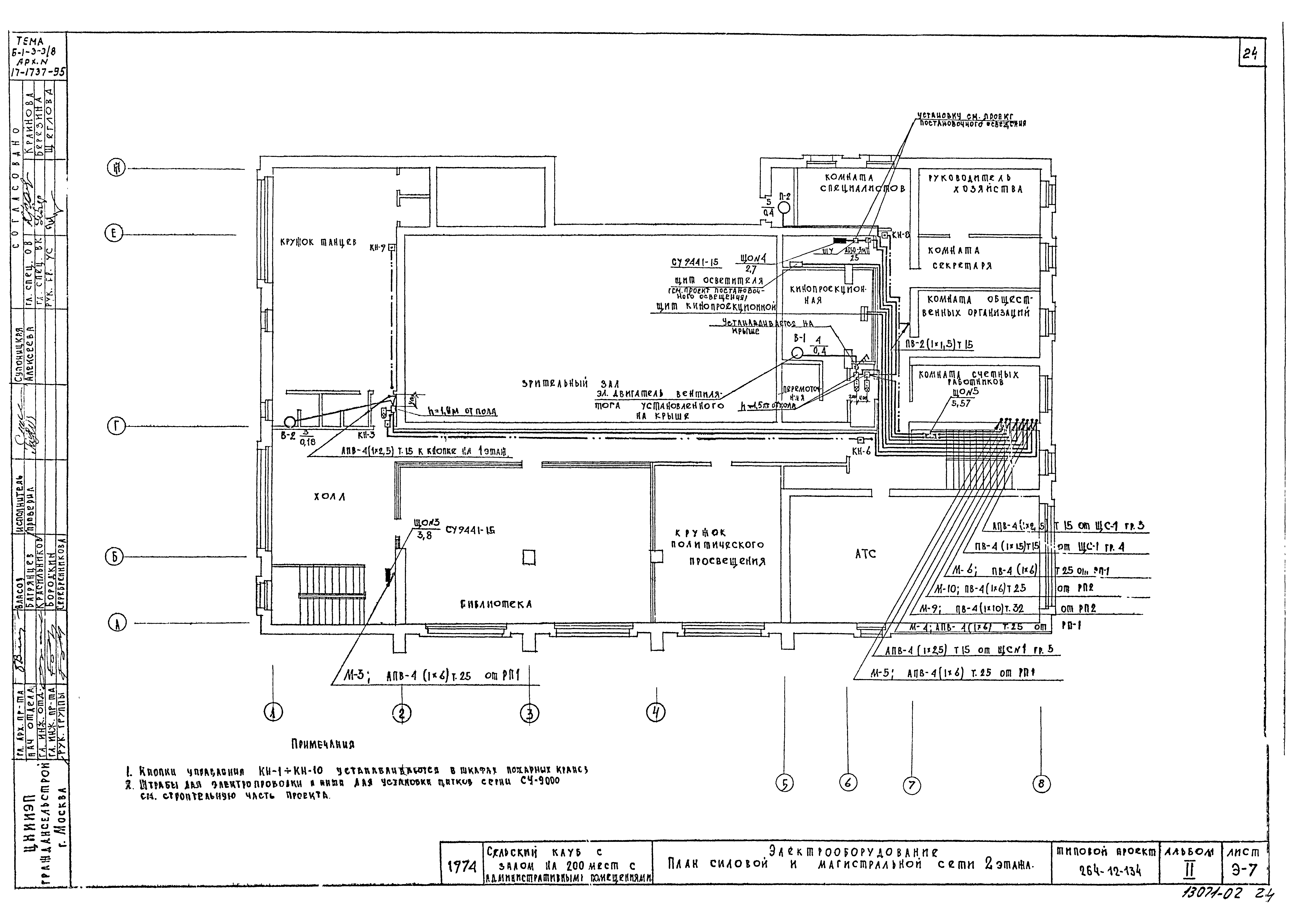
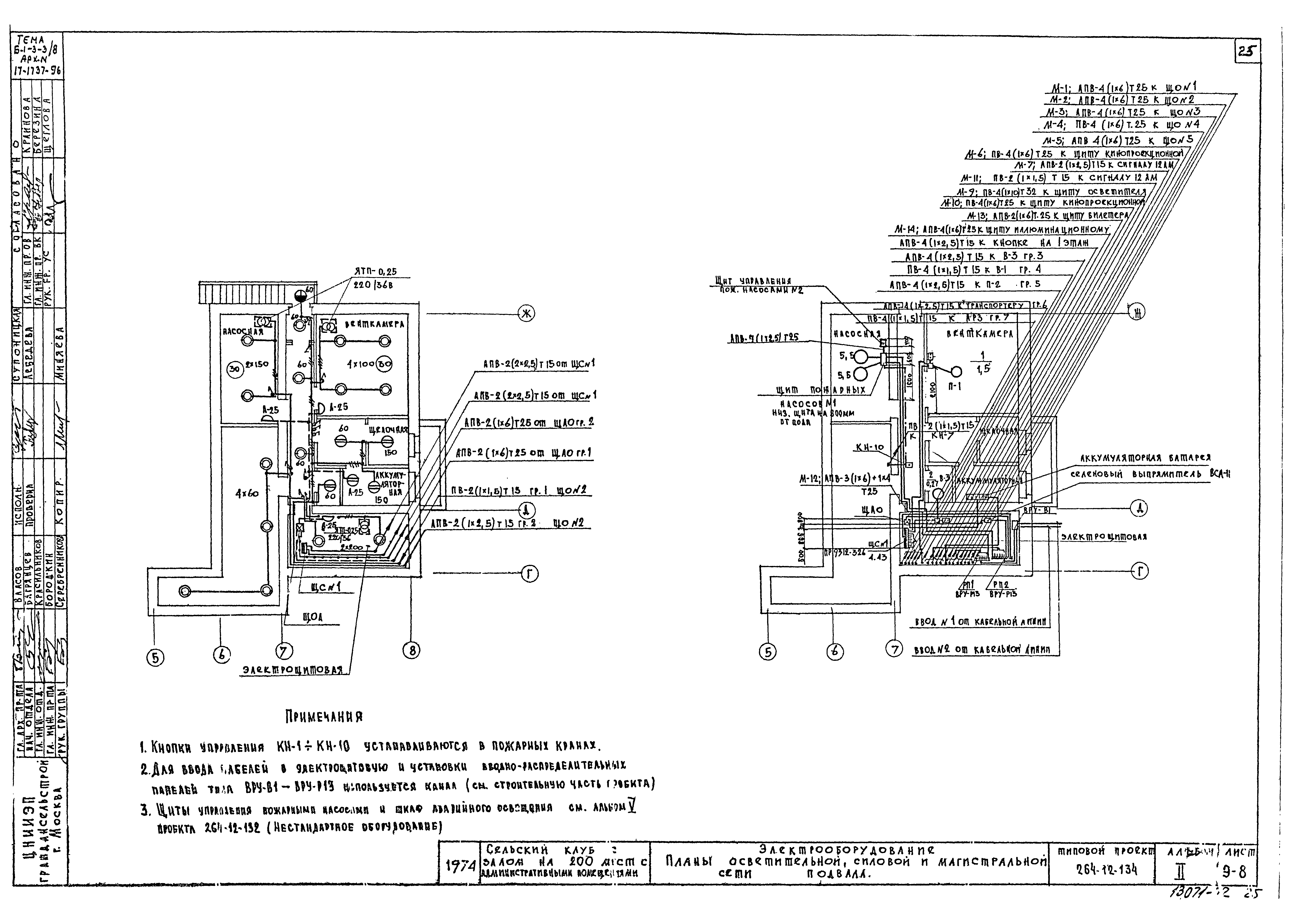
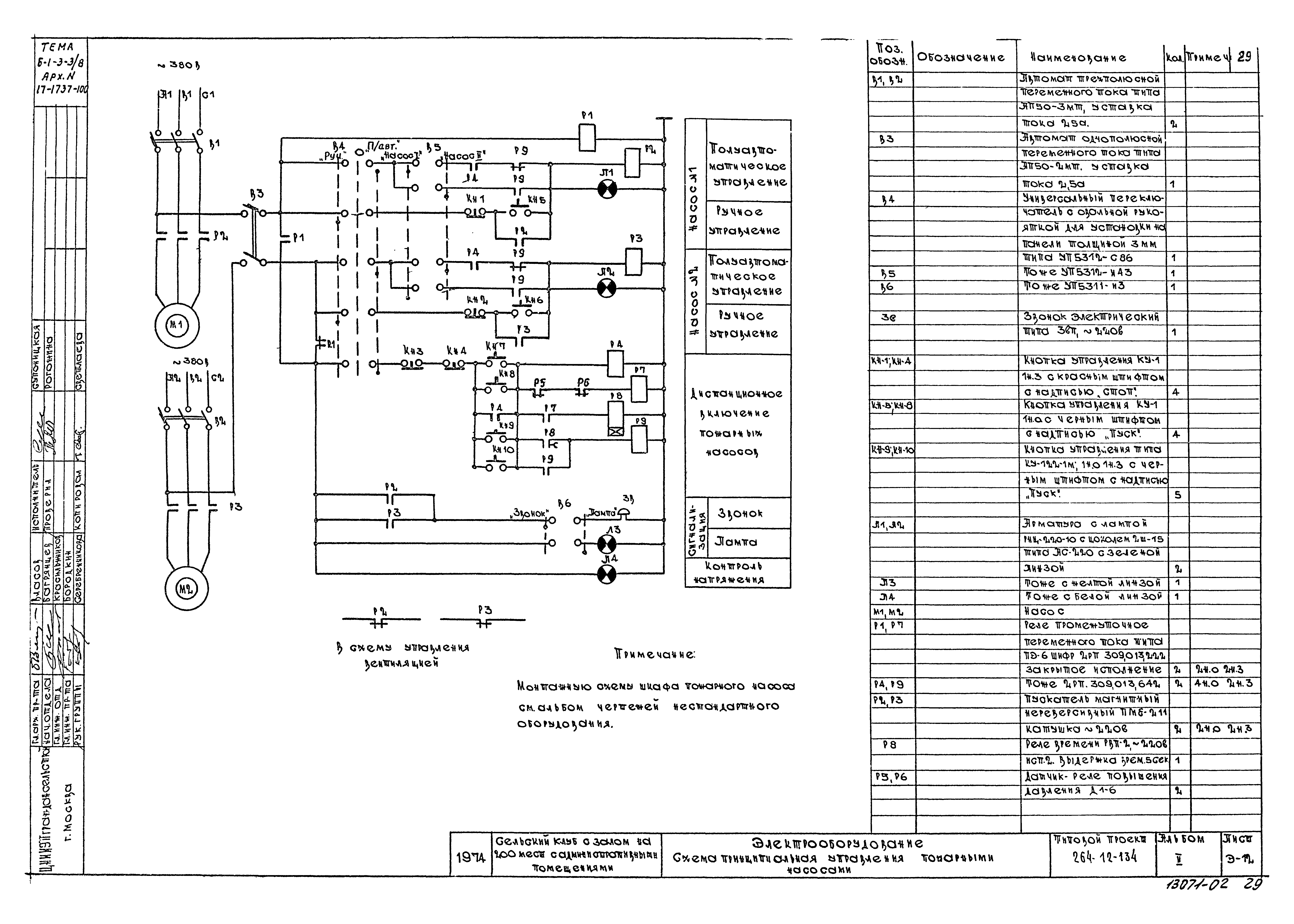
Скачать Типовой проект 264-12-134 Альбом II. Чертежи по отоплению, вентиляции, водопроводу и канализации. Электротехнические чертежи. Чертежи по связи и сигнализацииДата актуализации: 01.01.2021 Типовой проект 264-12-134
Альбом II. Чертежи по отоплению, вентиляции, водопроводу и канализации. Электротехнические чертежи. Чертежи по связи и сигнализации| Обозначение: | Типовой проект 264-12-134 | | Обозначение англ: | 264-12-134 | | Статус: | действует | | Название рус.: | Альбом II. Чертежи по отоплению, вентиляции, водопроводу и канализации. Электротехнические чертежи. Чертежи по связи и сигнализации | | Дата добавления в базу: | 01.02.2017 | | Дата актуализации: | 01.01.2021 | | Дата введения: | 14.10.1974 | | Разработан: | ЦНИИЭП граждансельстрой
| | Утверждён: | 28.12.1973 Госгражданстрой (Gosgrazhdanstroy 311)
| | Издан: | ЦИТП Госстроя СССР (CITP, Gosstroy (USSR) 1987 г. )
|
                                    
|