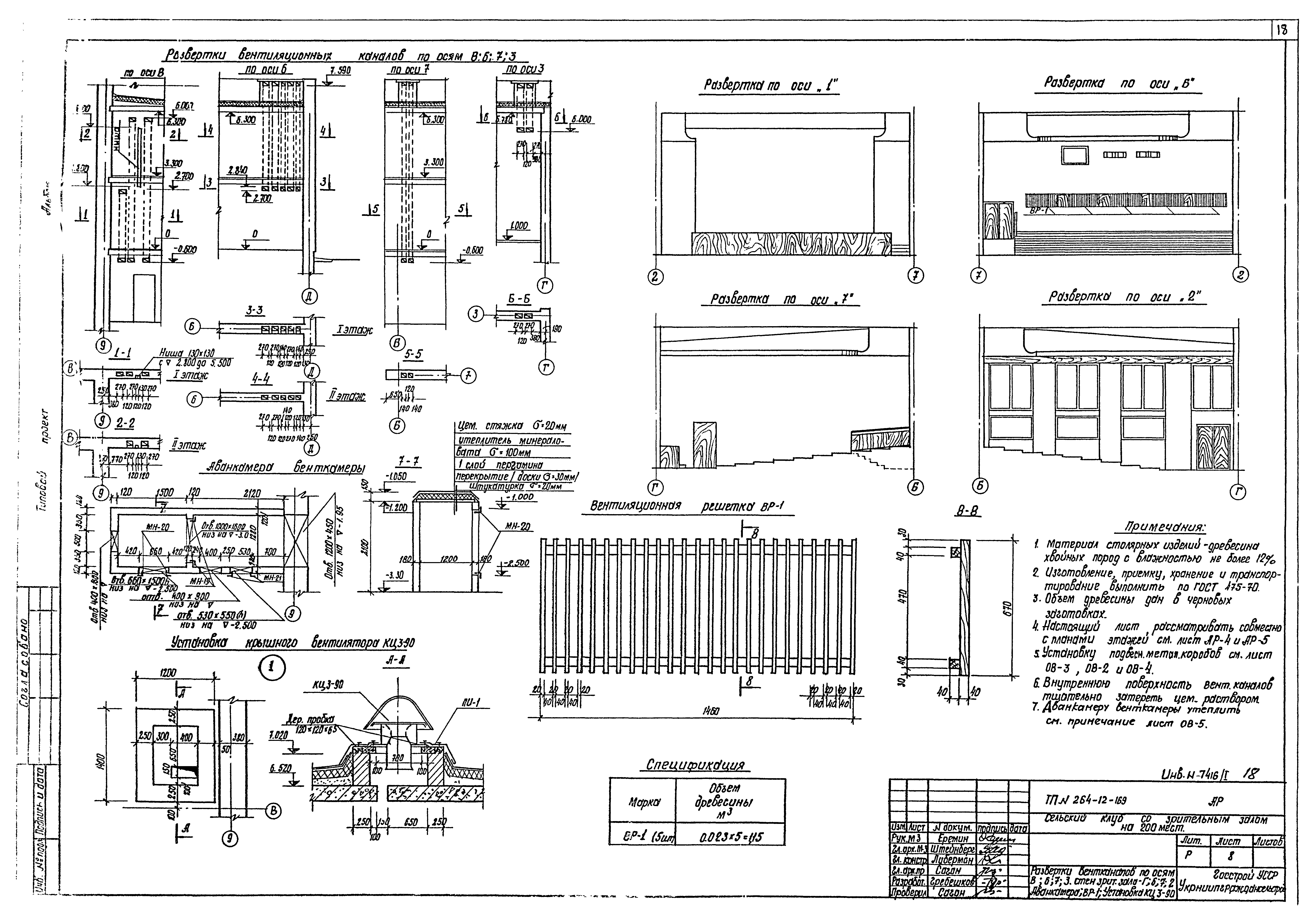
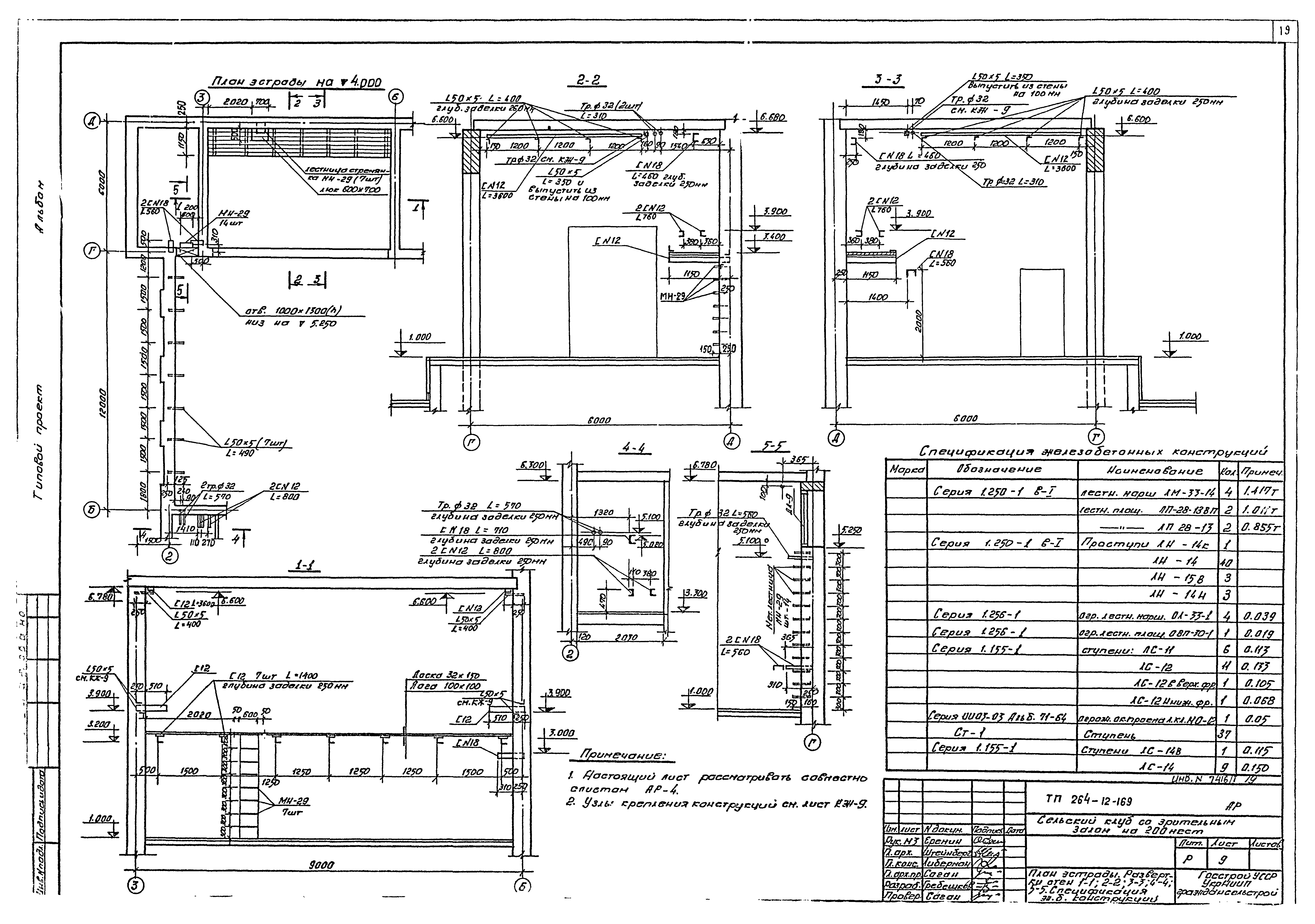
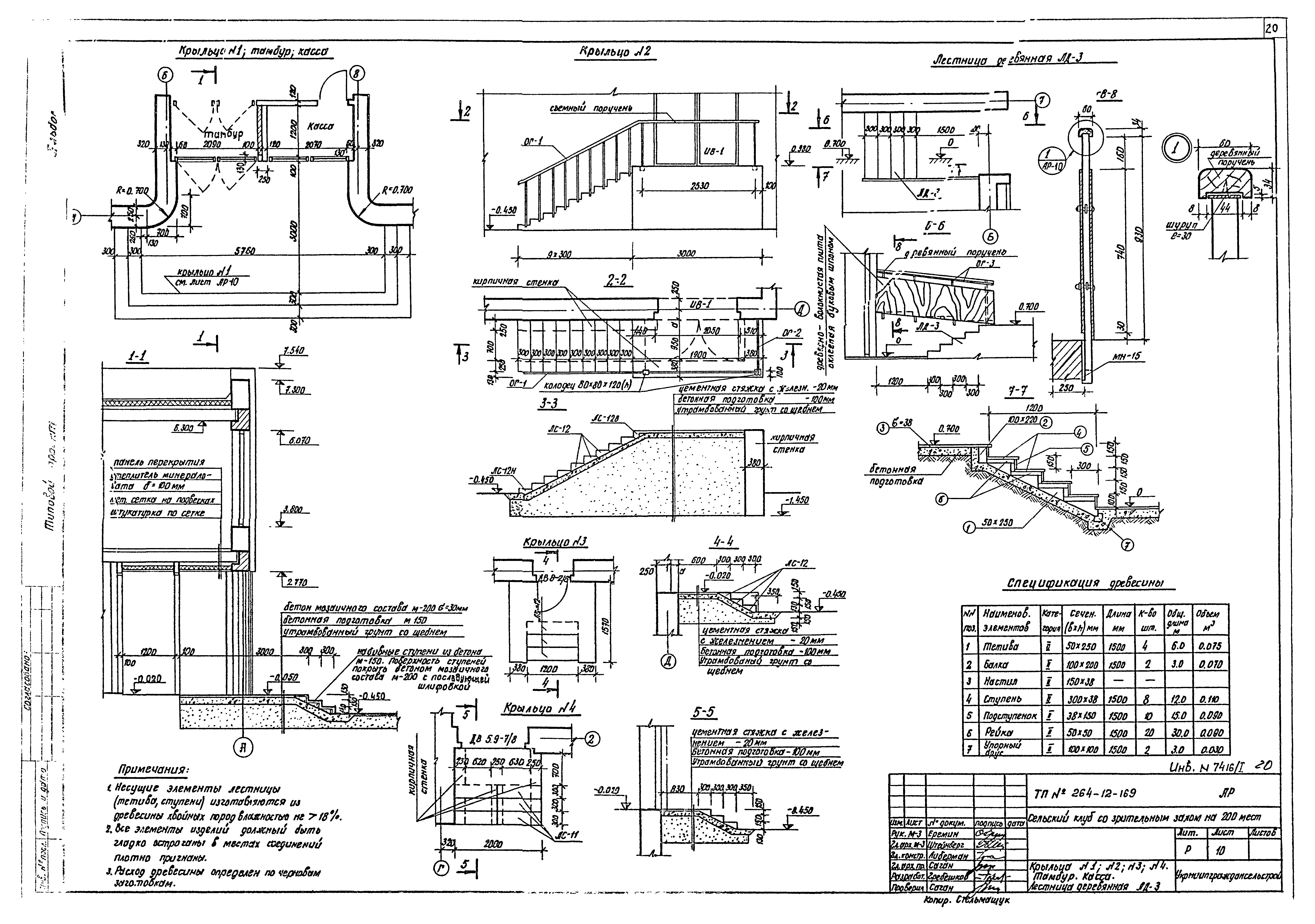
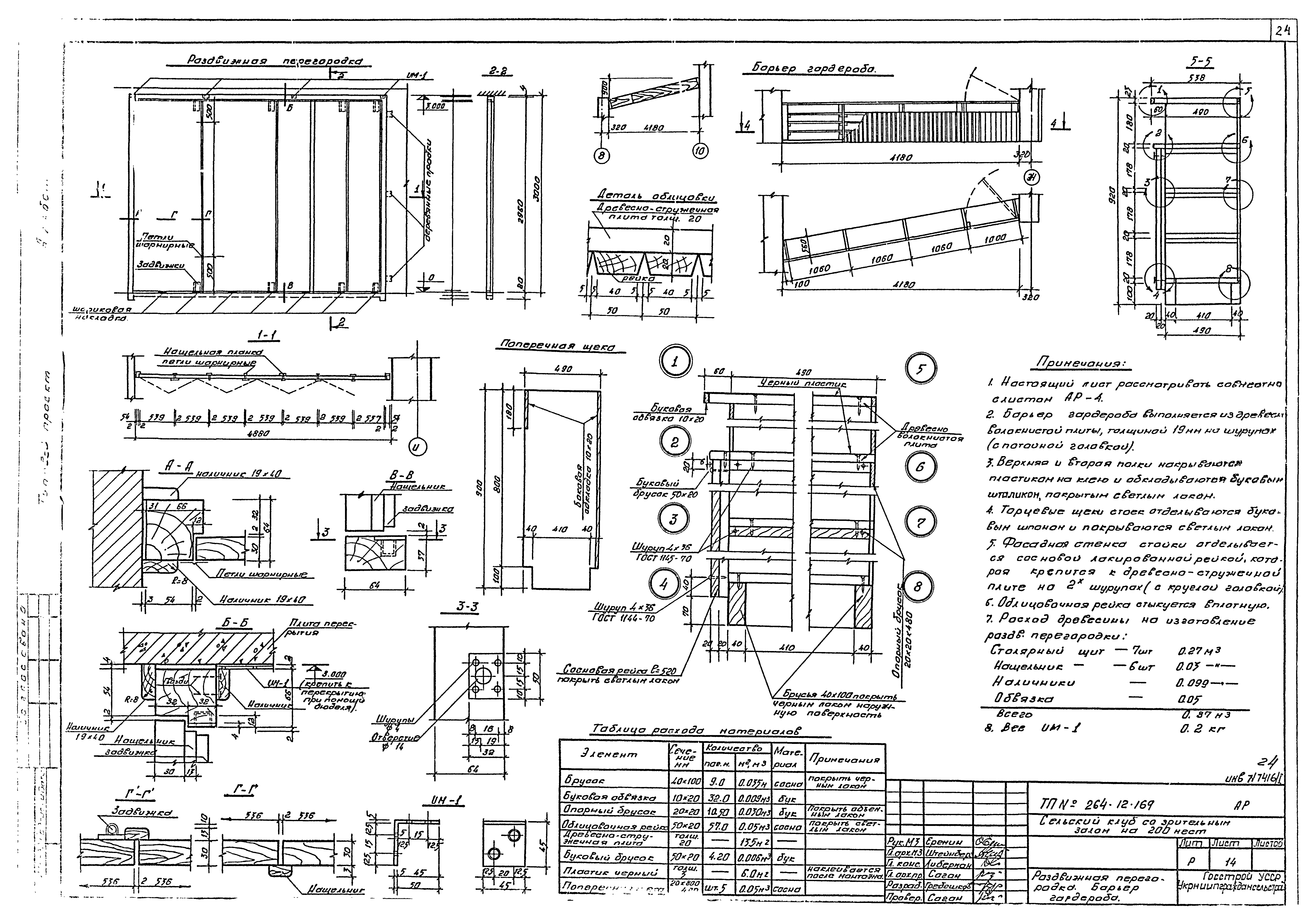
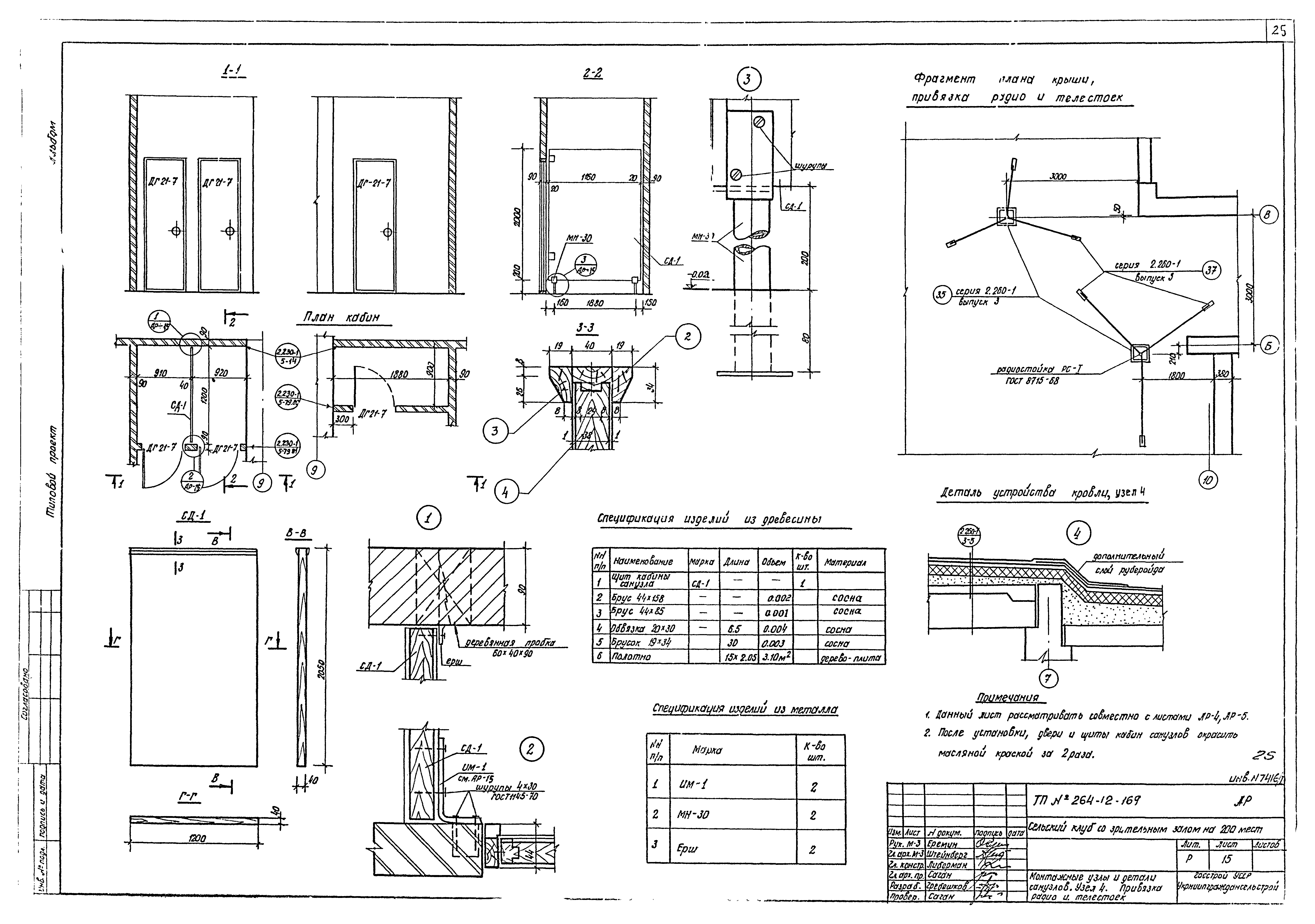
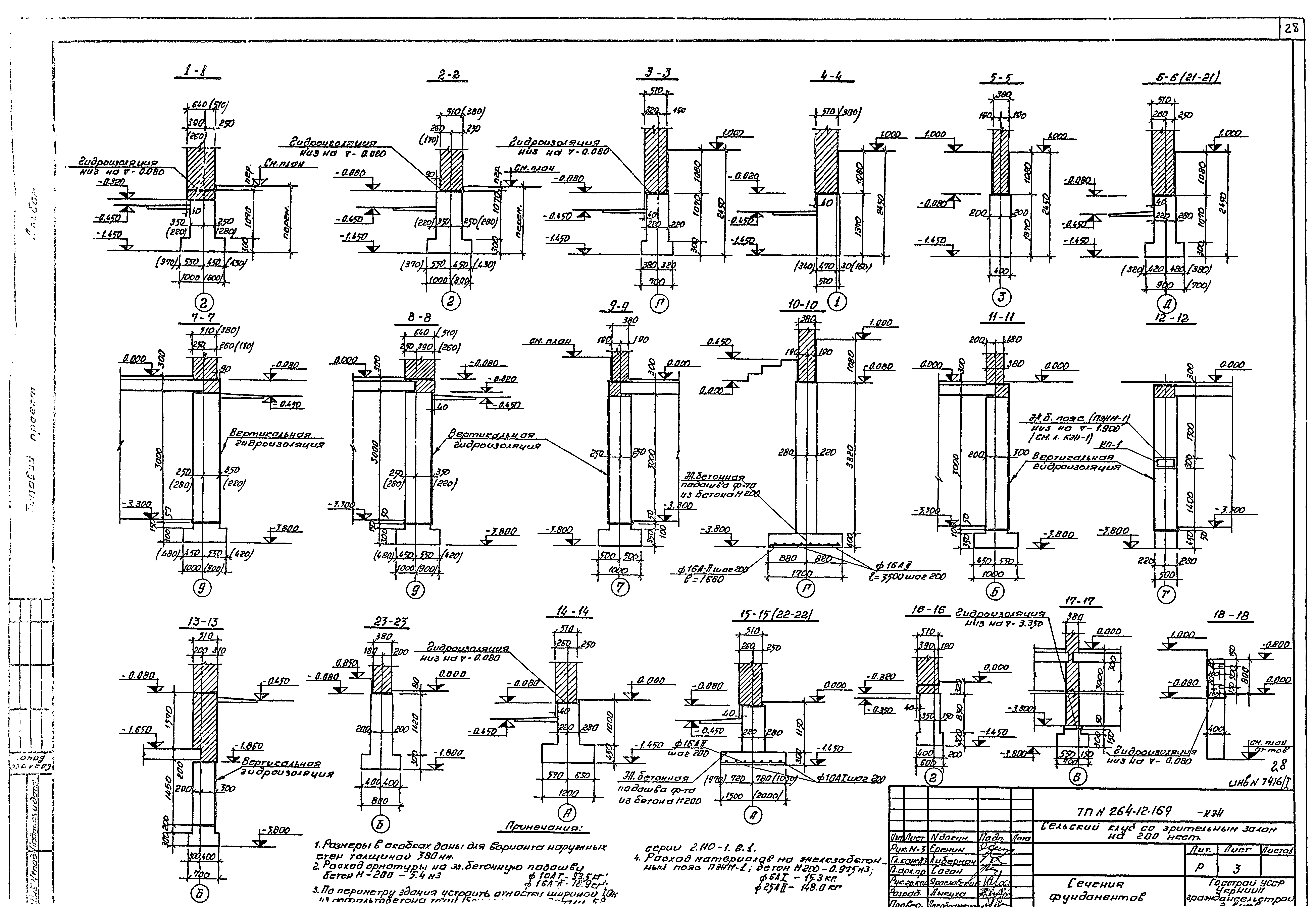
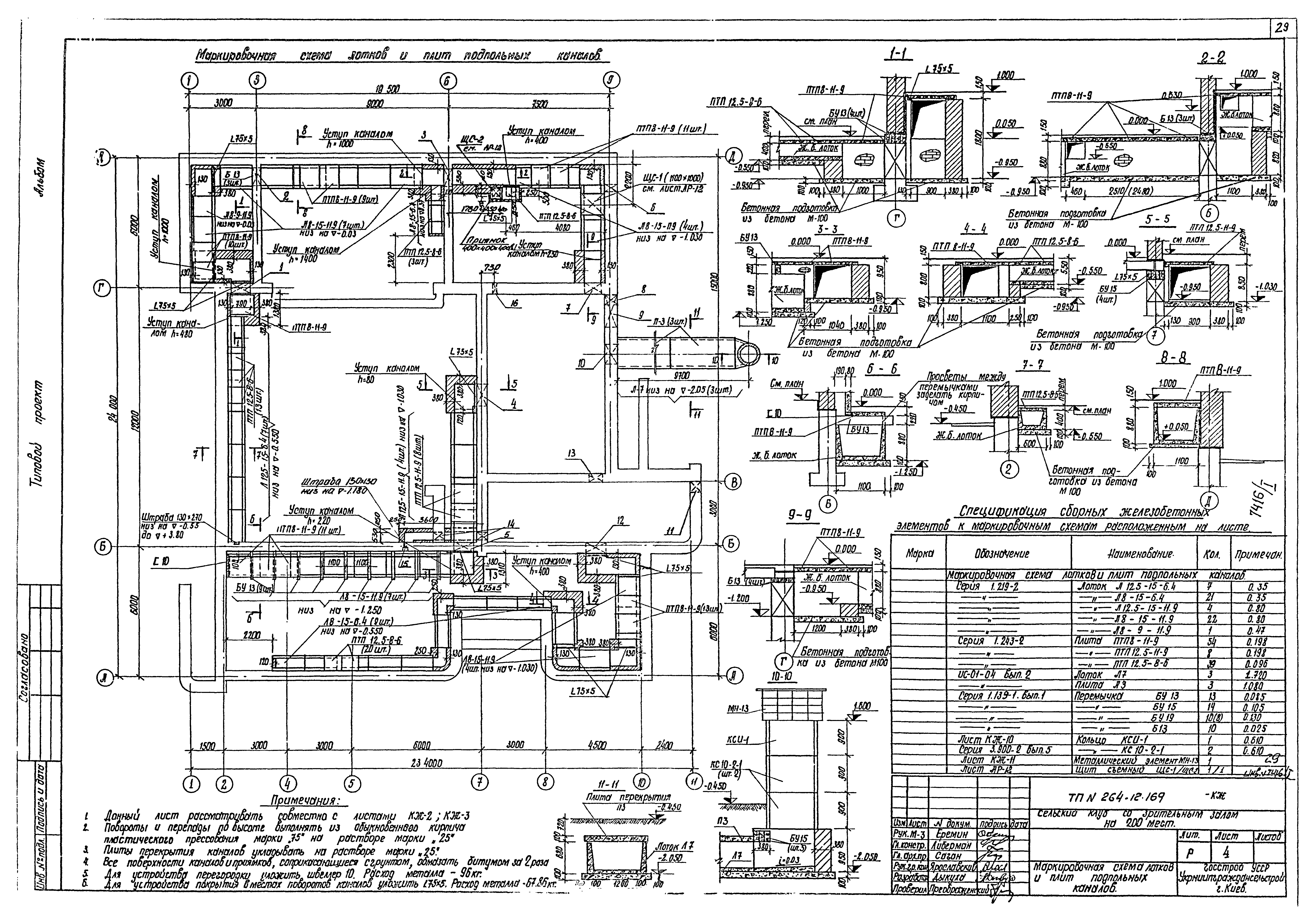
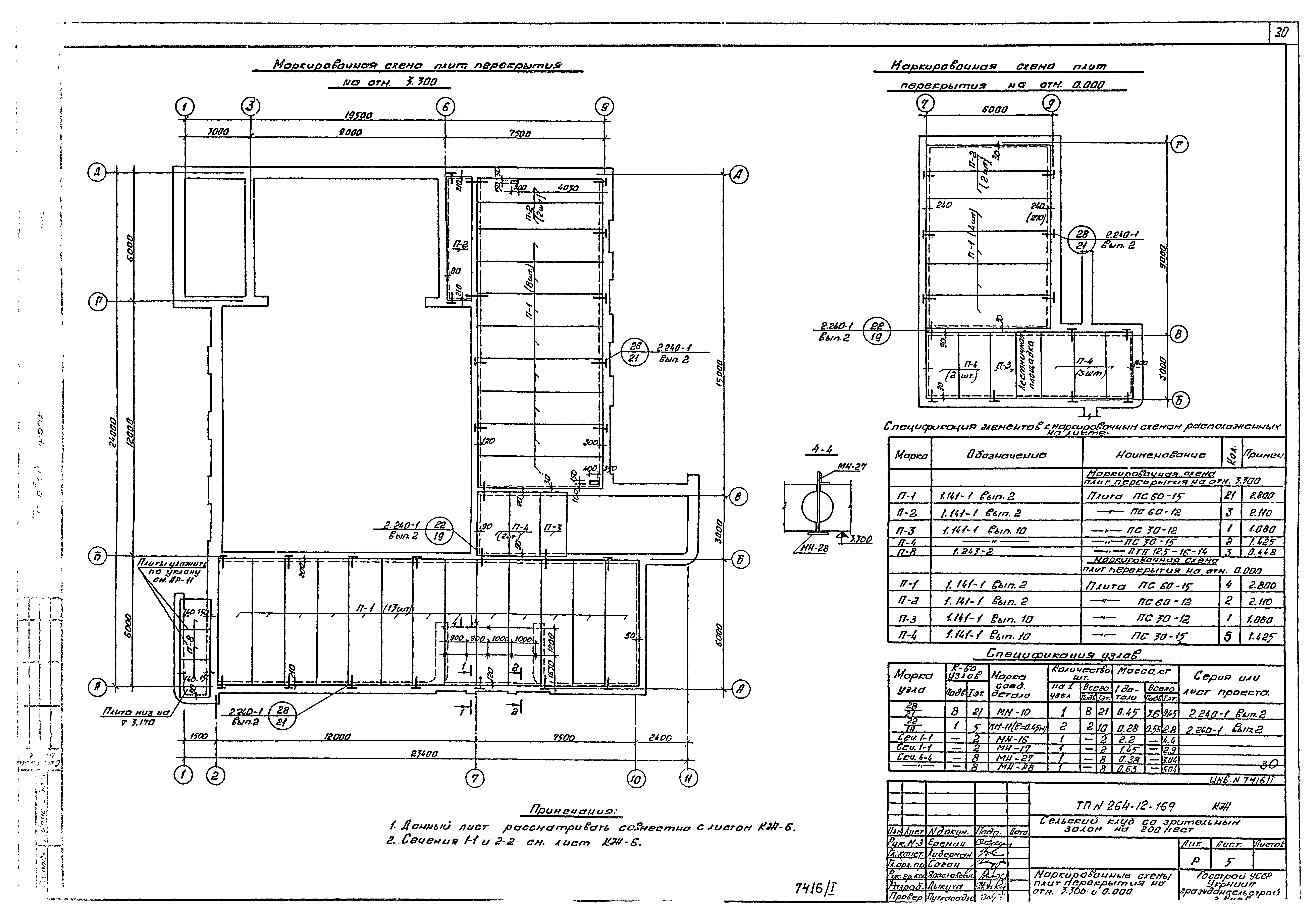
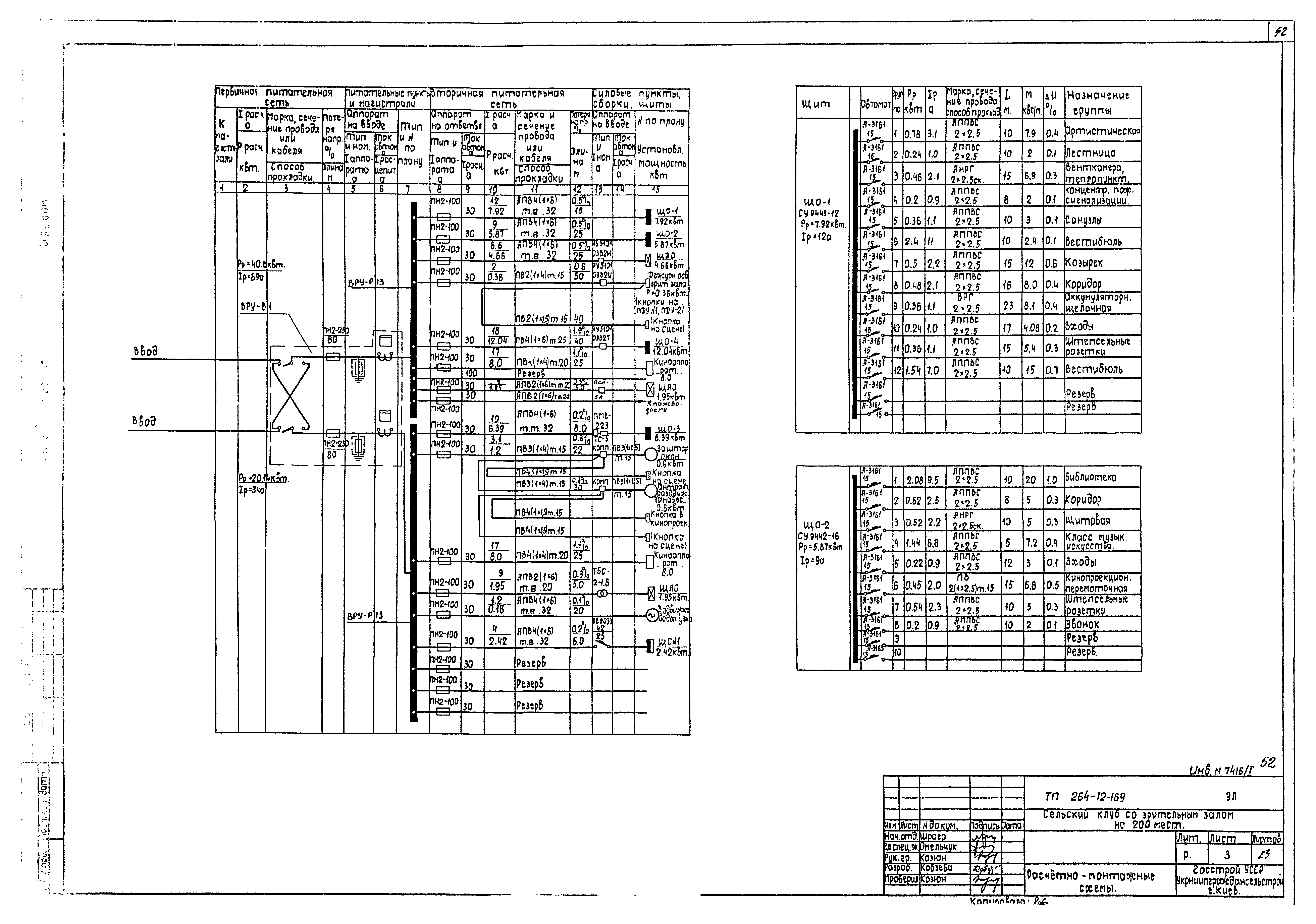
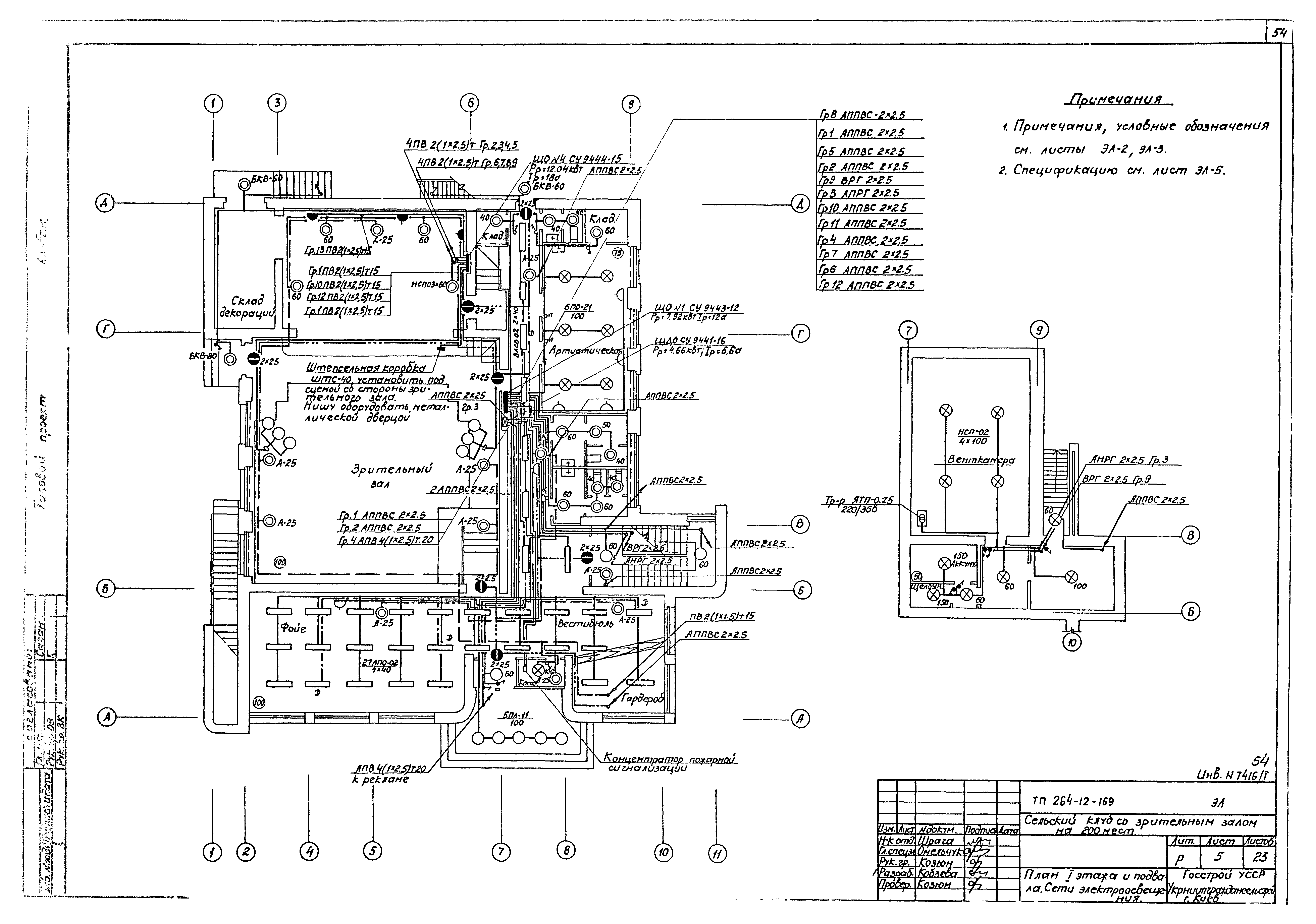
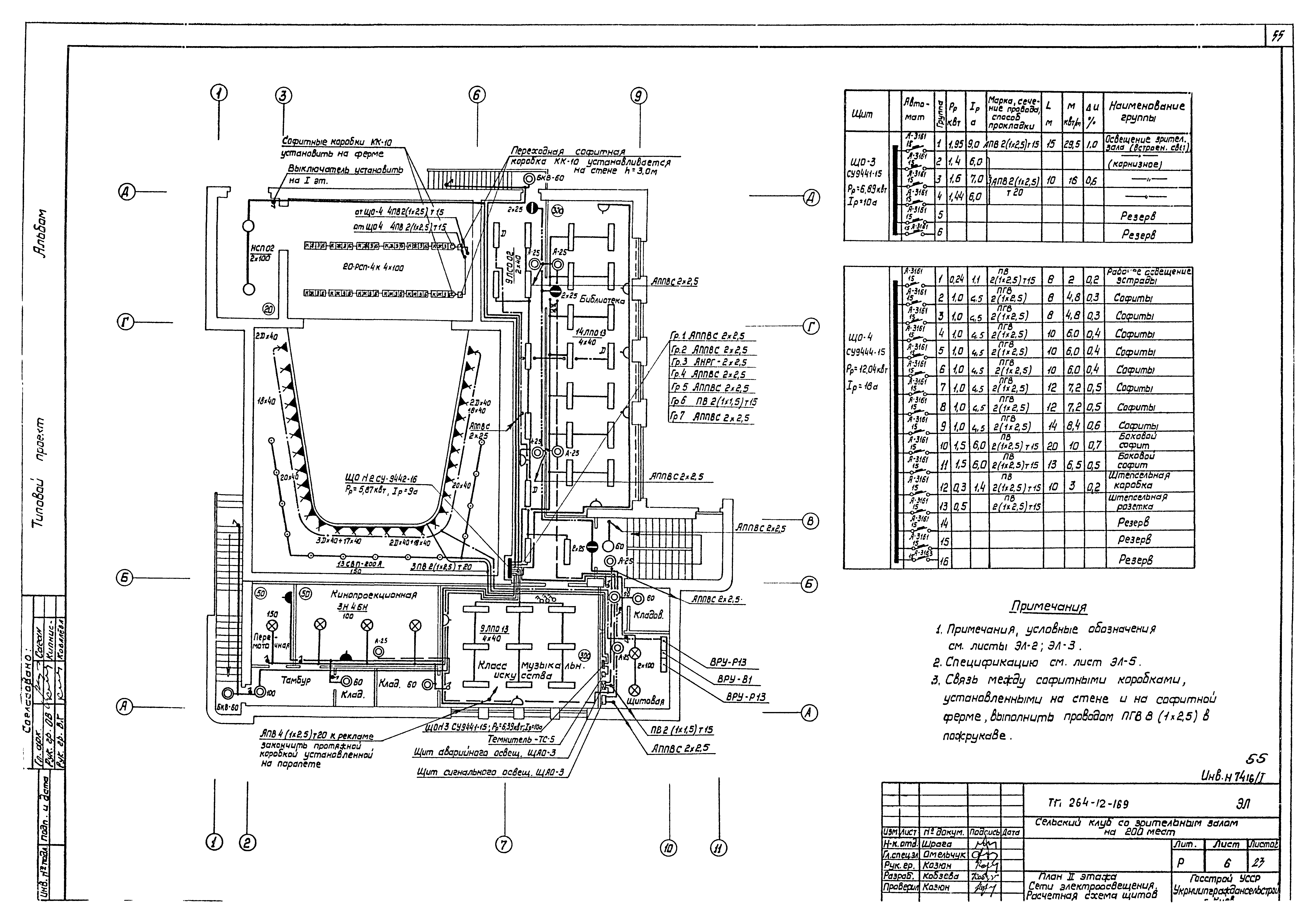
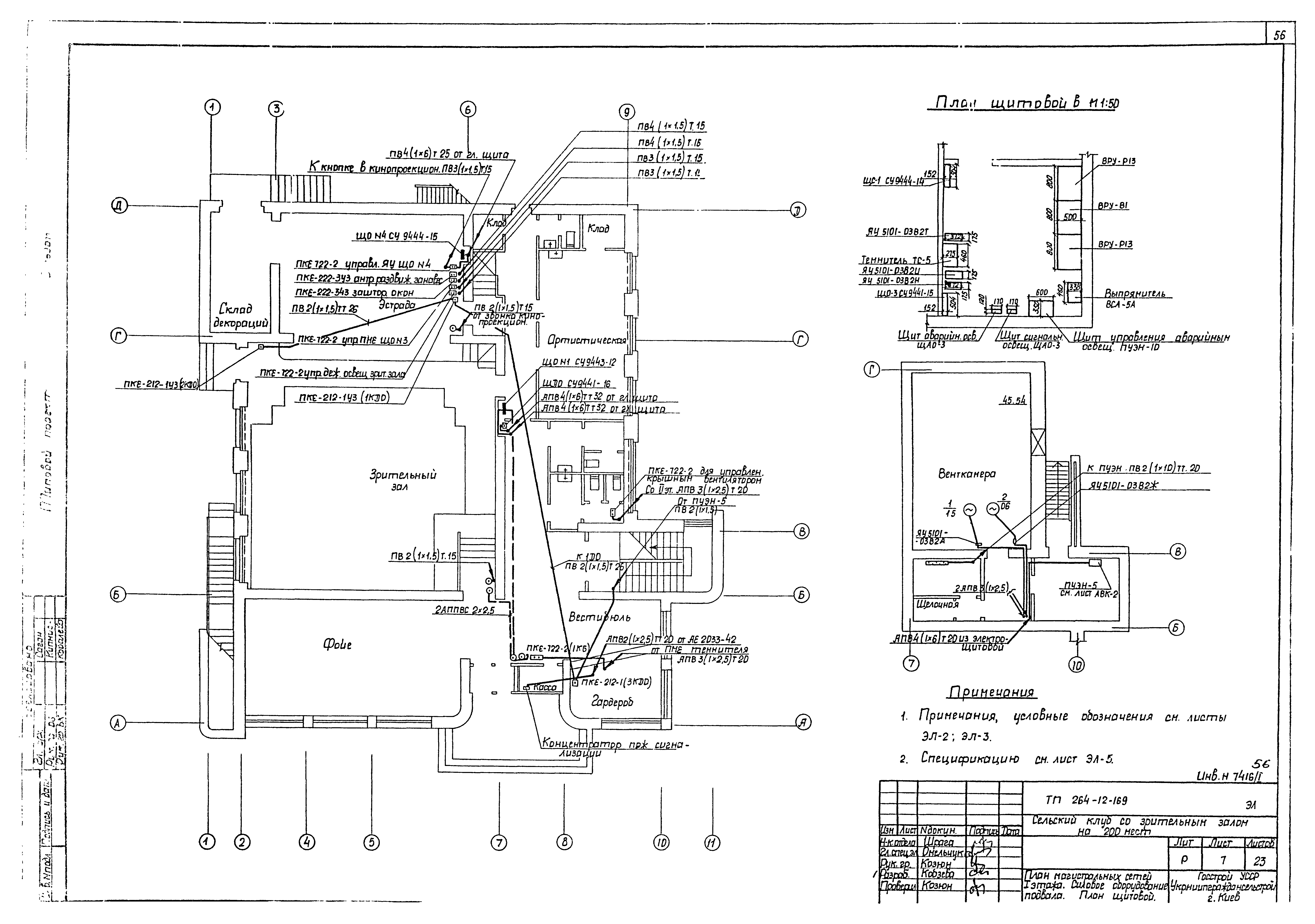
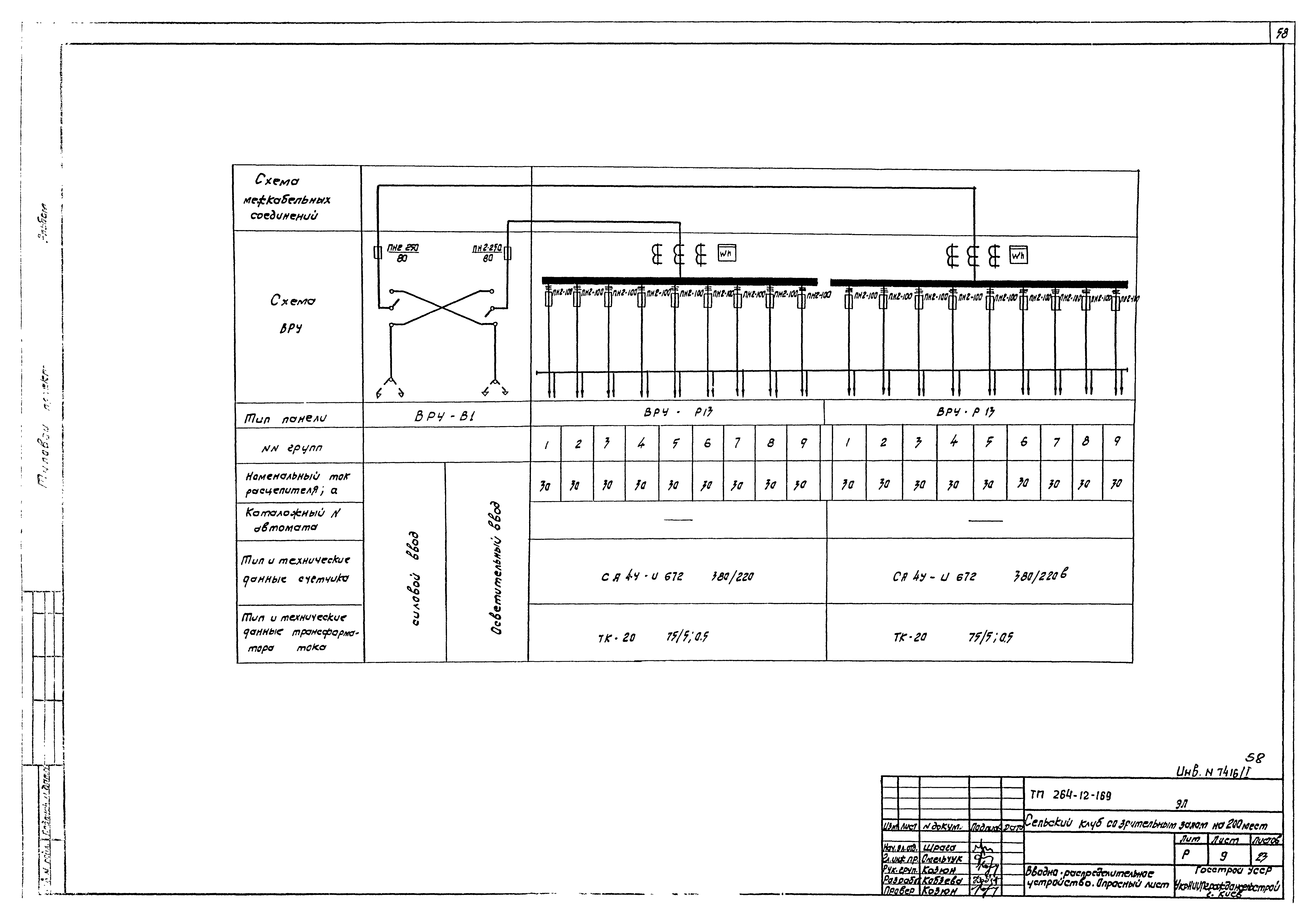
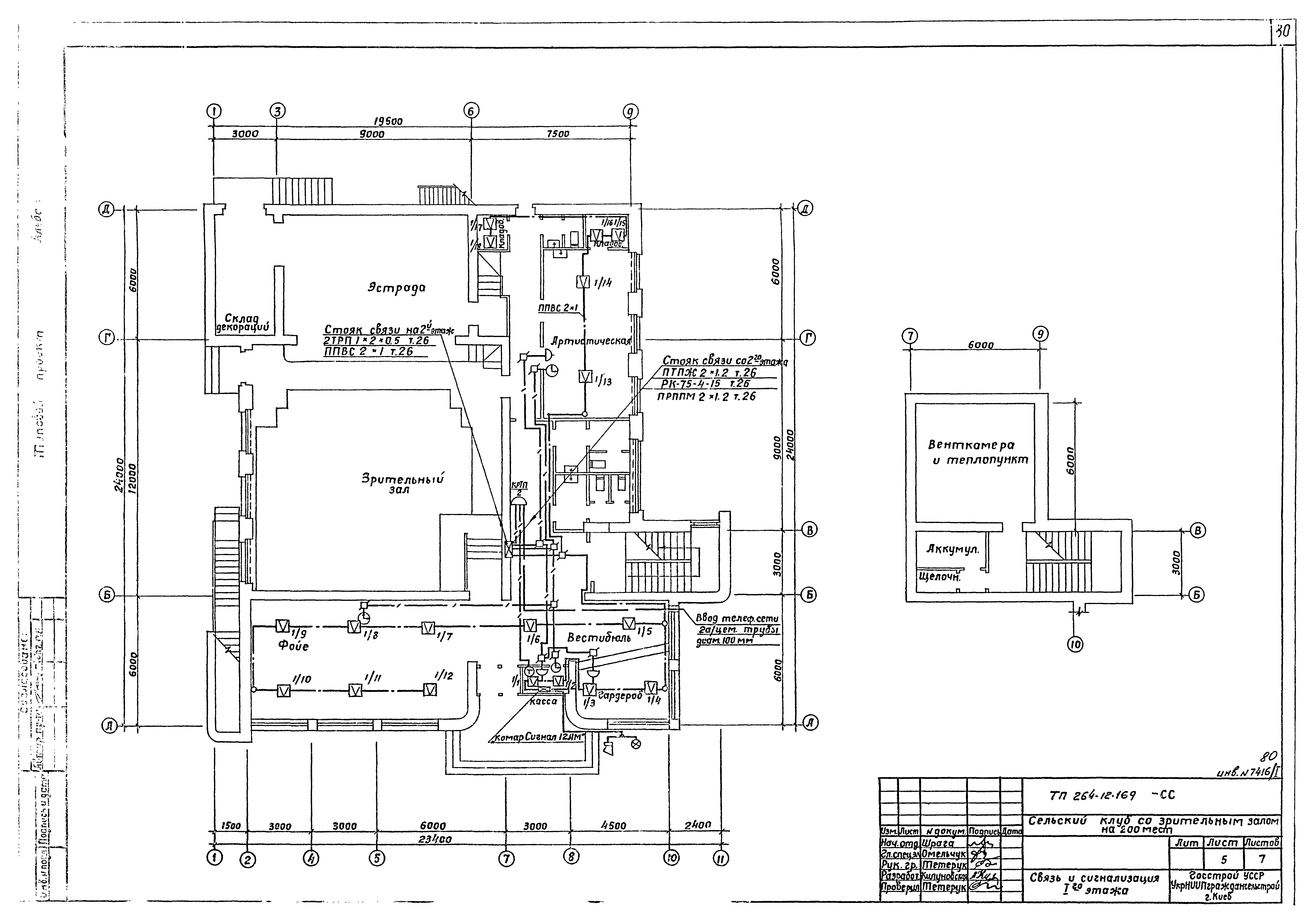
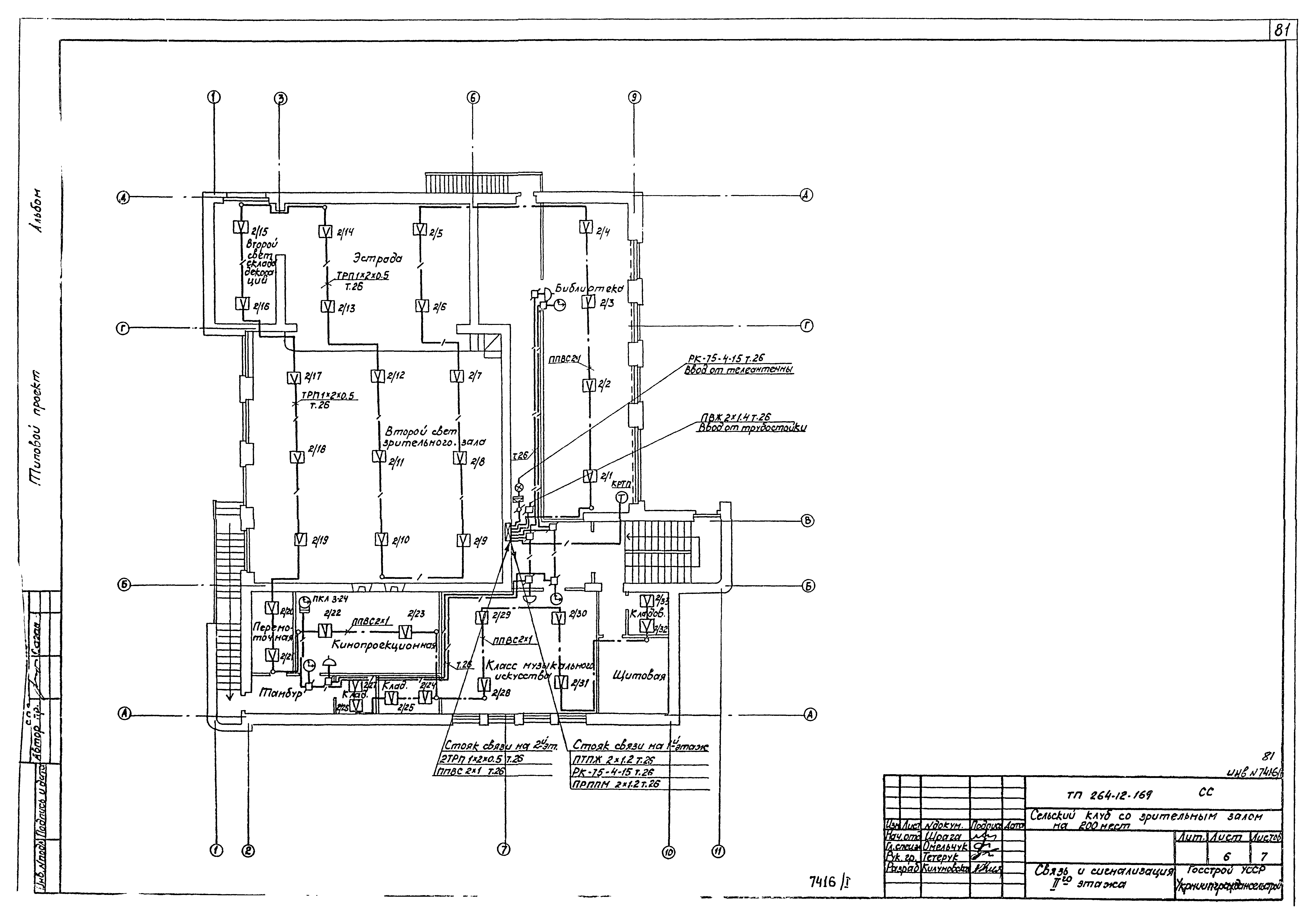
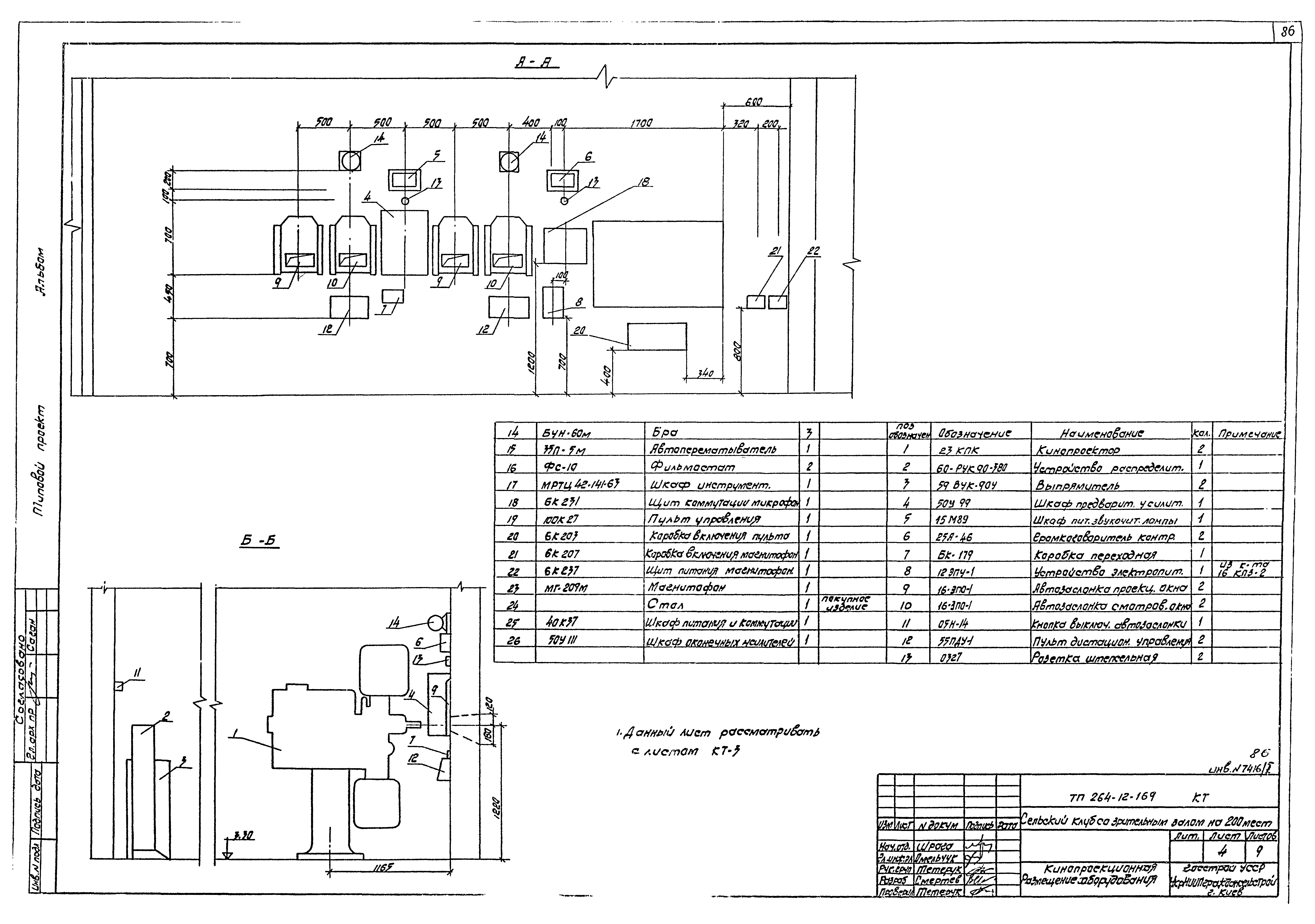
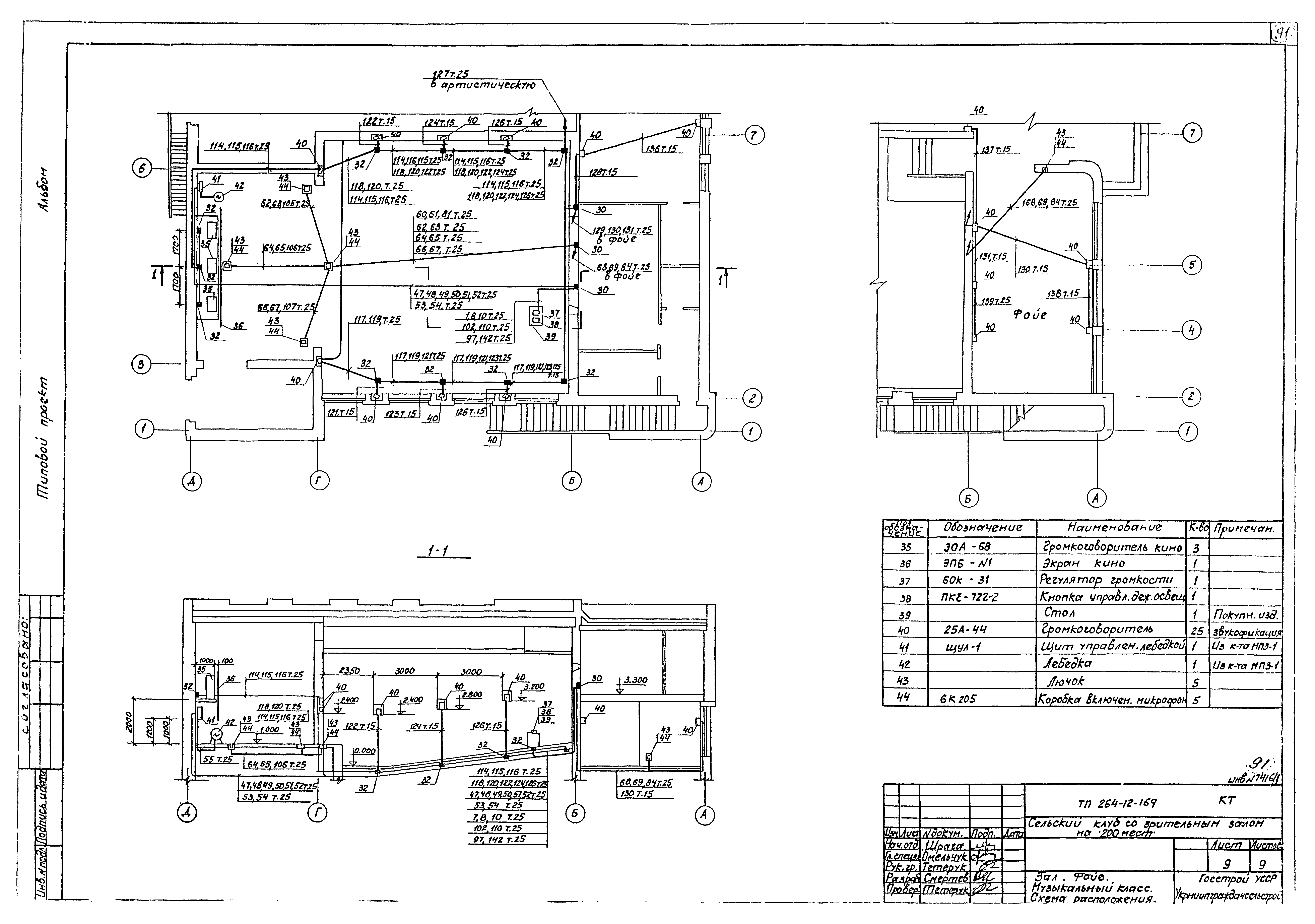
Скачать Типовой проект 264-12-169 Альбом I. Общая пояснительная записка. Архитектурно-строительные, санитарно-технические чертежи, электротехнические чертежиДата актуализации: 01.01.2021 Типовой проект 264-12-169
Альбом I. Общая пояснительная записка. Архитектурно-строительные, санитарно-технические чертежи, электротехнические чертежи| Обозначение: | Типовой проект 264-12-169 | | Обозначение англ: | 264-12-169 | | Статус: | действует | | Название рус.: | Альбом I. Общая пояснительная записка. Архитектурно-строительные, санитарно-технические чертежи, электротехнические чертежи | | Дата добавления в базу: | 01.02.2017 | | Дата актуализации: | 01.01.2021 | | Дата введения: | 14.09.1978 | | Разработан: | УкрНИИПграждансельстроя
| | Утверждён: | 11.08.1976 Госстрой УССР (UkrSSR Gosstroy 79)
| | Издан: | ЦИТП Госстроя СССР (CITP, Gosstroy (USSR) 1985 г. )
|
                                                                                           
|