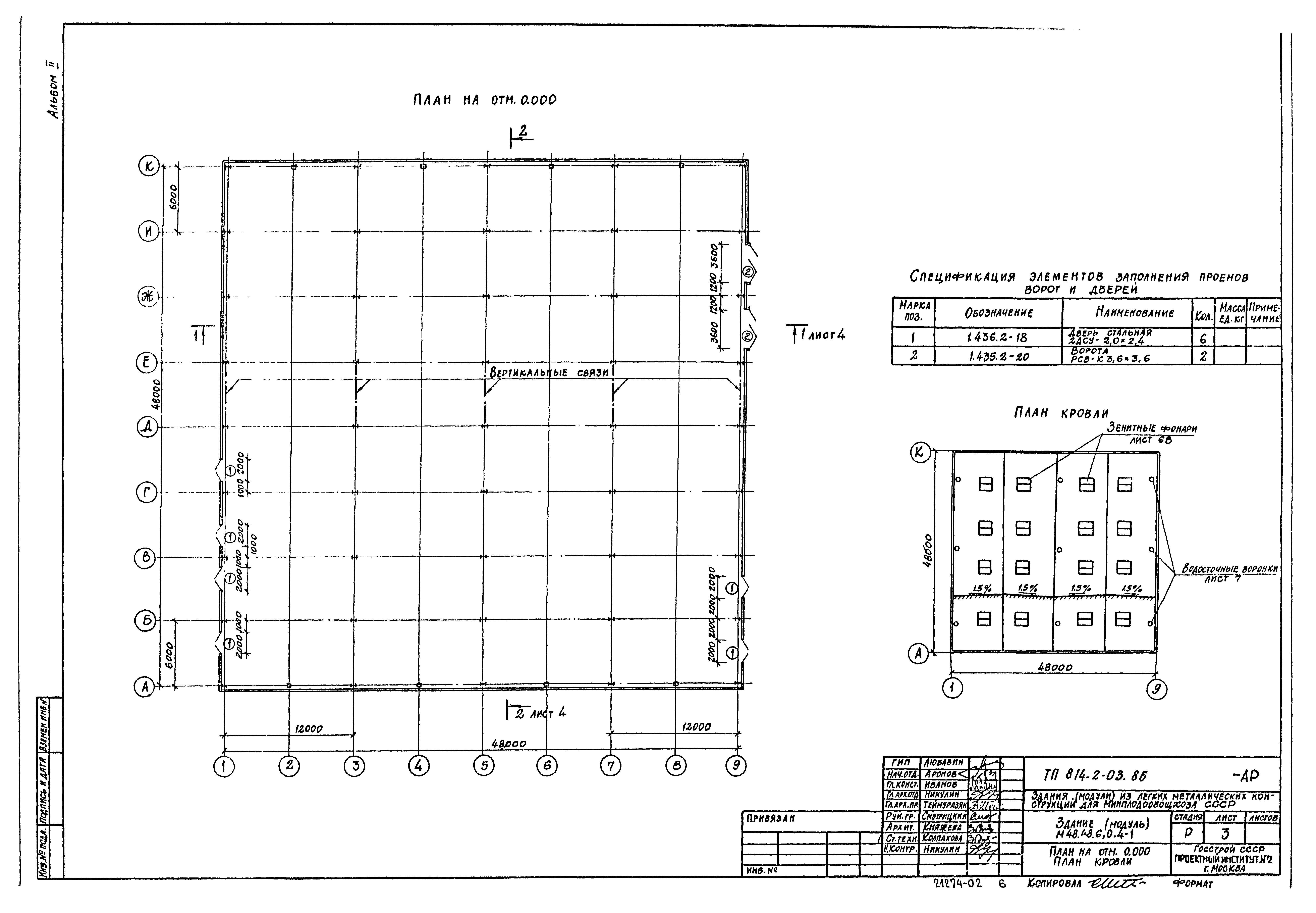
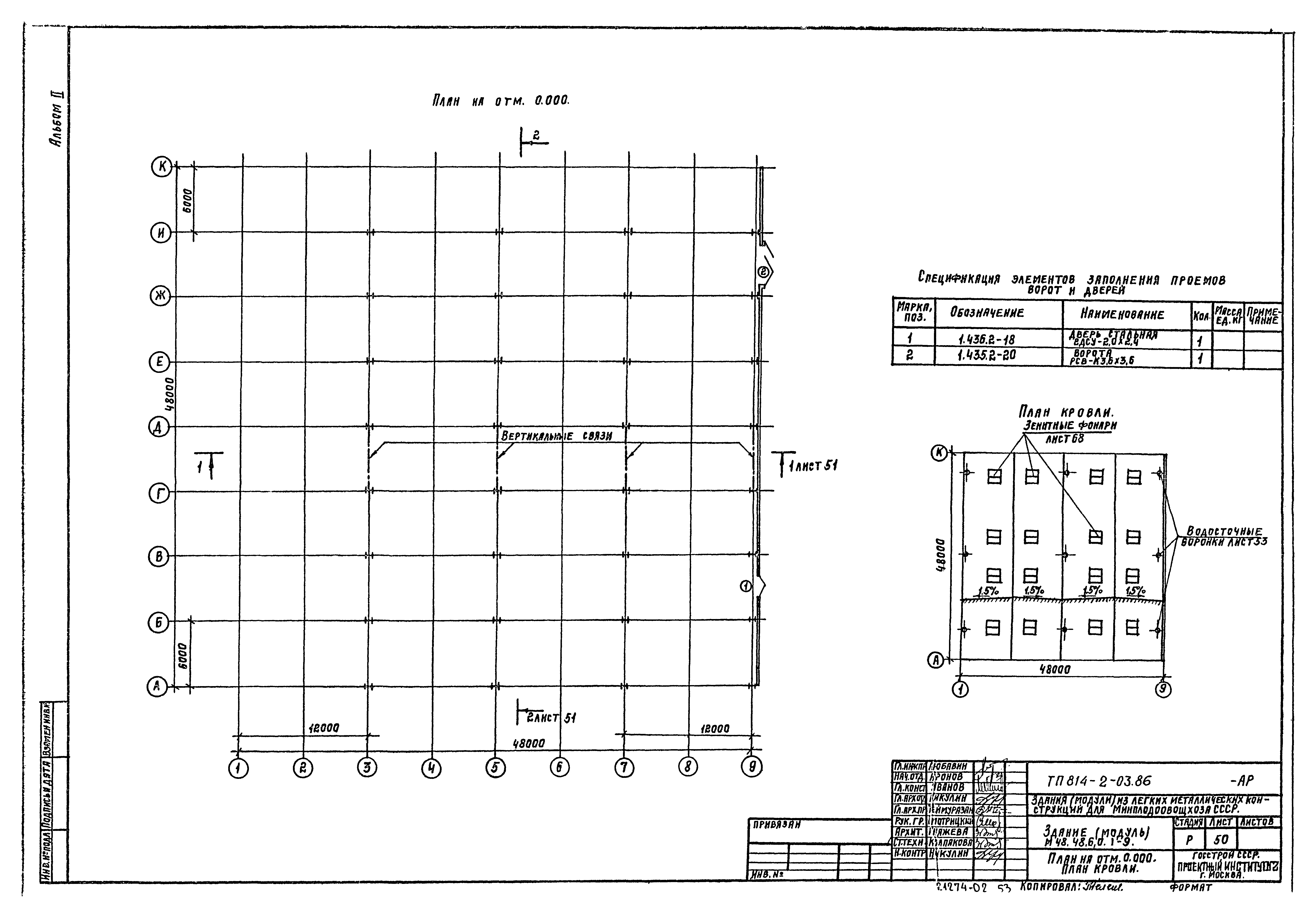
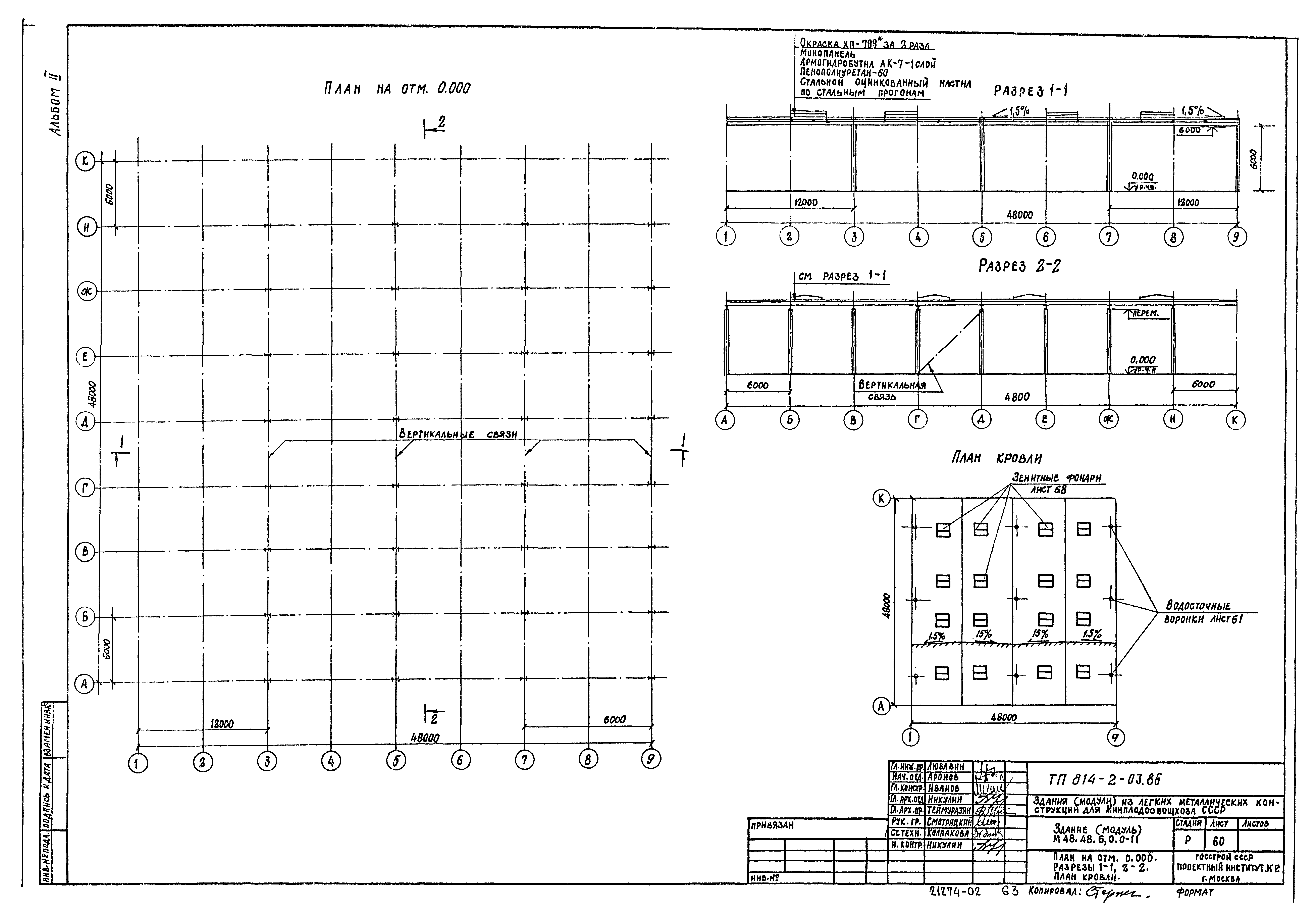
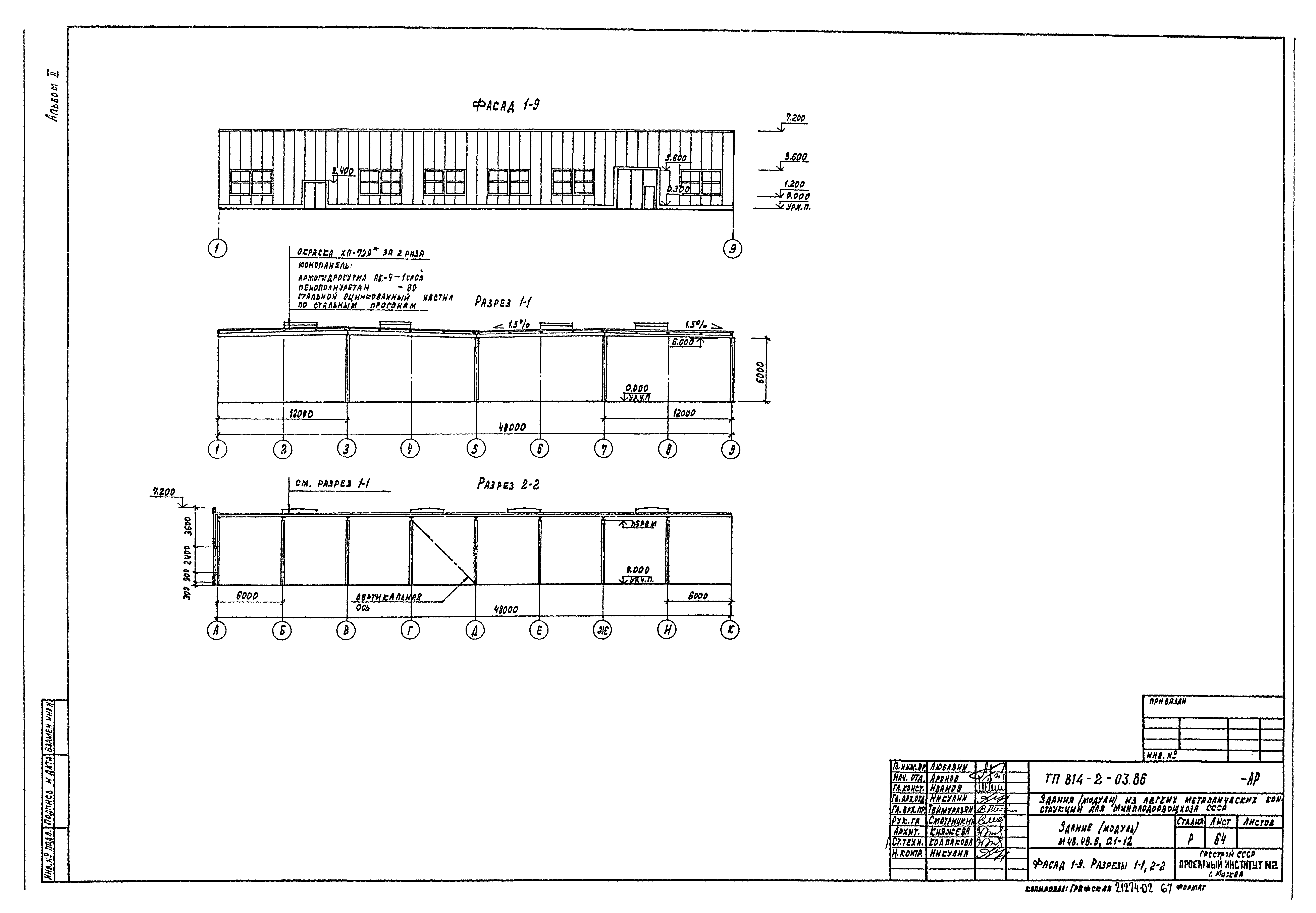
Скачать Типовые проектные решения 814-2-03.86 Альбом II. Архитектурные решенияДата актуализации: 01.01.2021
|
| Обозначение: | Типовые проектные решения 814-2-03.86 |
| Обозначение англ: | 814-2-03.86 |
| Статус: | справочные материалы, мп, тпр |
| Название рус.: | Альбом II. Архитектурные решения |
| Дата добавления в базу: | 01.02.2017 |
| Дата актуализации: | 01.01.2021 |
| Дата окончания срока действия: | 18.06.1985 |
| Разработан: | ЦНИИпромзданий Проектный институт № 2 Госстроя СССР |
| Утверждён: | 23.05.1985 Минплодоовощхоз СССР (03-32-57/3265) |
| Издан: | ЦИТП Госстроя СССР (CITP, Gosstroy (USSR) 1987 г. ) |











































































