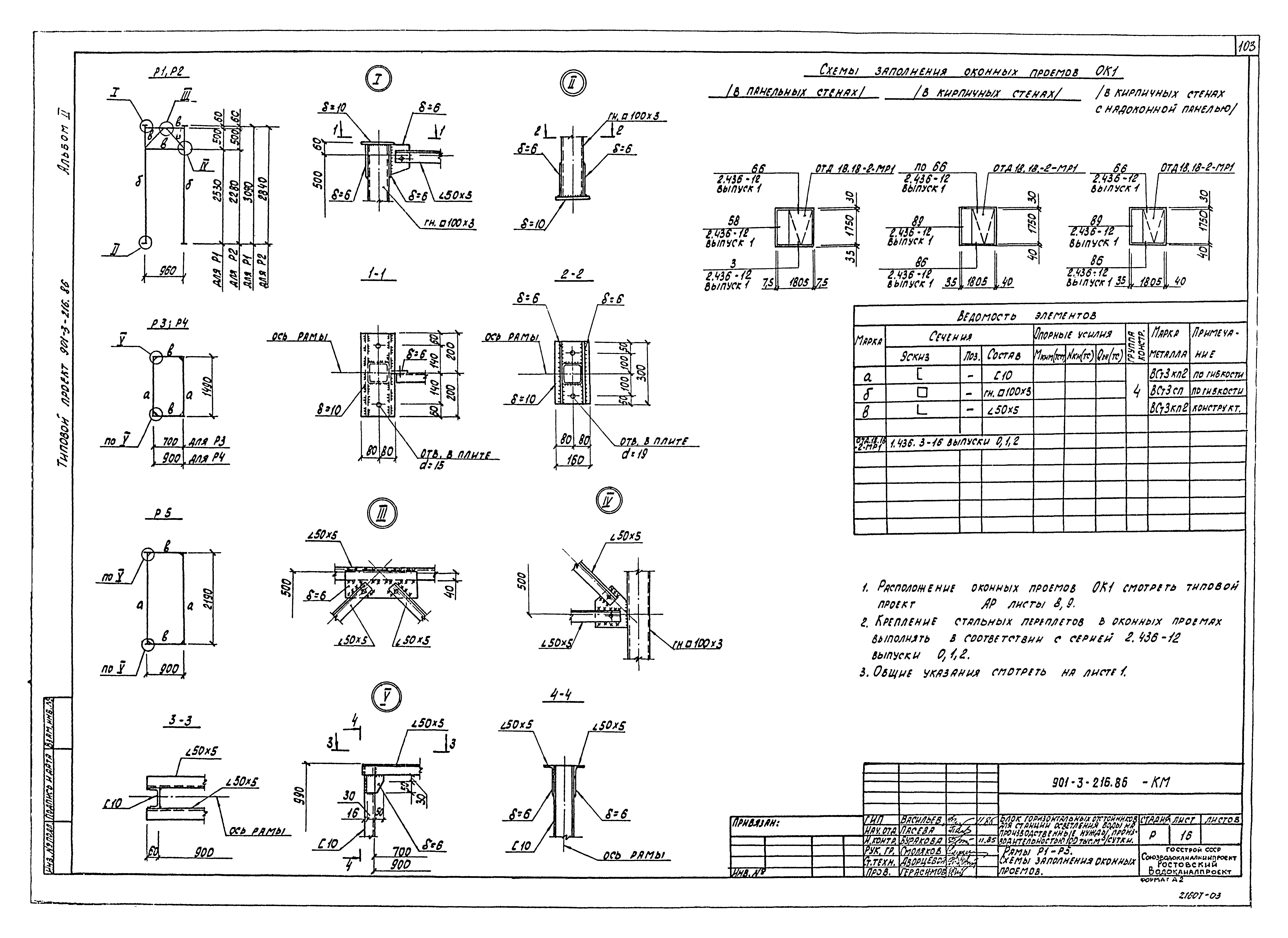
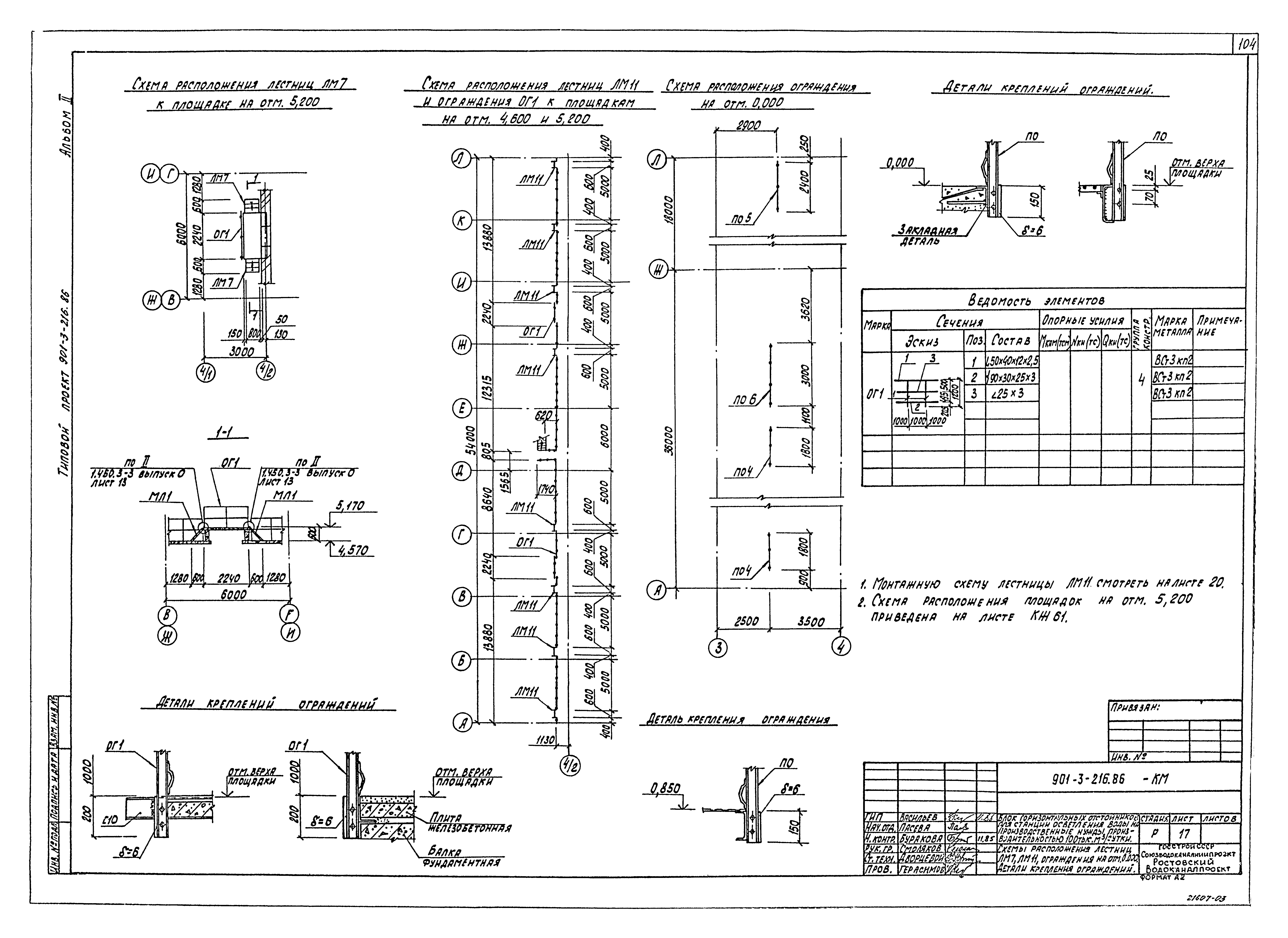
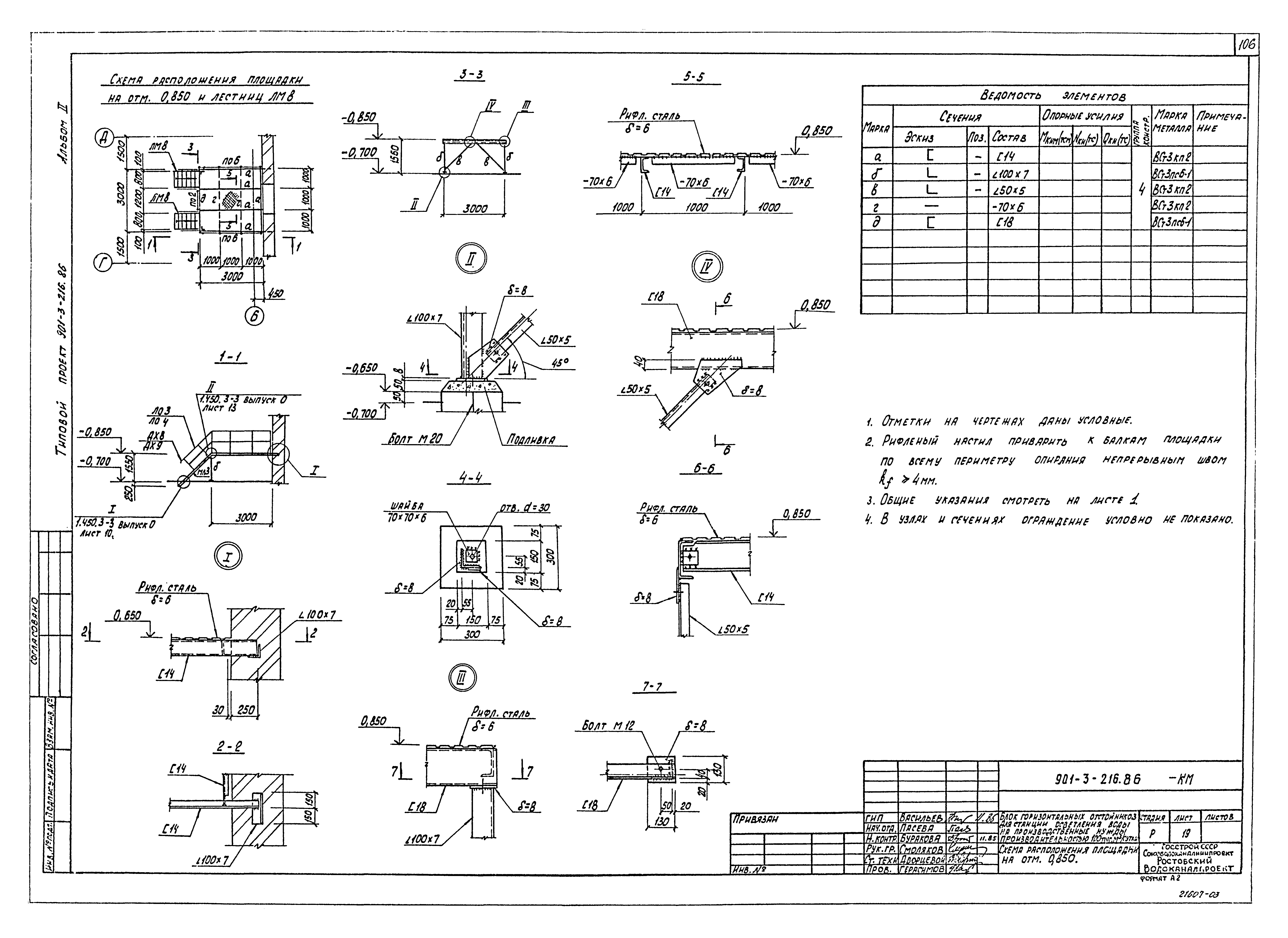
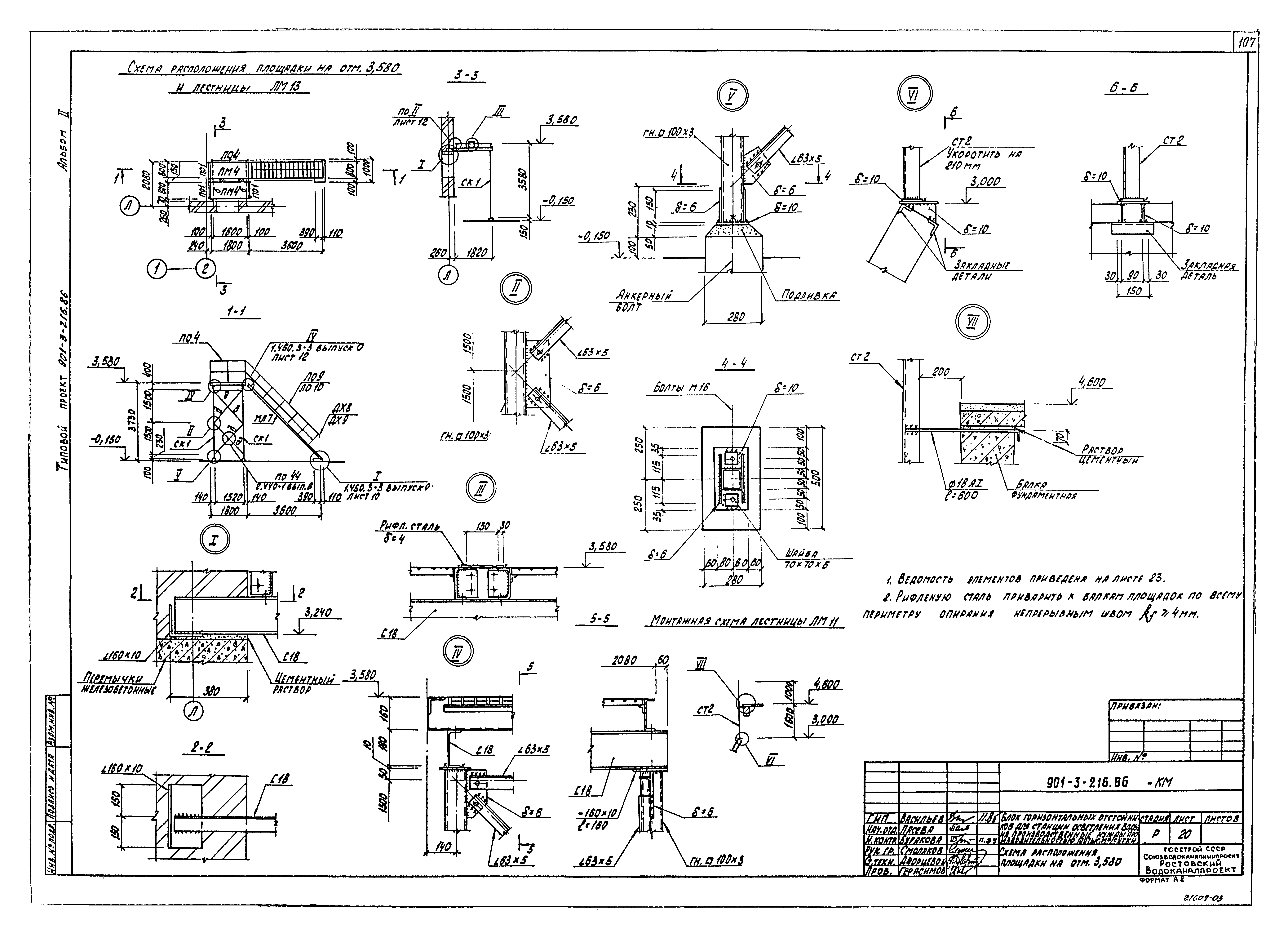
Скачать Типовой проект 901-3-216.86 Альбом II. Часть 2. Архитектурно-строительные решенияДата актуализации: 01.01.2021
|
| Обозначение: | Типовой проект 901-3-216.86 |
| Обозначение англ: | 901-3-216.86 |
| Статус: | не действует |
| Название рус.: | Альбом II. Часть 2. Архитектурно-строительные решения |
| Дата добавления в базу: | 01.02.2017 |
| Дата актуализации: | 01.01.2021 |
| Дата введения: | 17.03.1986 |
| Дата окончания срока действия: | 01.12.1994 |
| Разработан: | Союзводоканалпроект Ростовский Водоканалпроект |
| Утверждён: | 29.12.1985 Главстройпроект Госстроя СССР (19/5-3567) |
| Издан: | ЦИТП Госстроя СССР (CITP, Gosstroy (USSR) 1987 г. ) |
| Заменяет собой: |
|
| Нормативные ссылки: |

























