Скачать Серия 1.460-4 Выпуск 3. Покрытия пролетами 18; 24; 30 и 36 м для зданий с расчетной сейсмичностью 7, 8 и 9 баллов, возводимых в районах с температурами минус 40 градусов Цельсия и выше. Чертежи КМДата актуализации: 01.01.2021 Серия 1.460-4
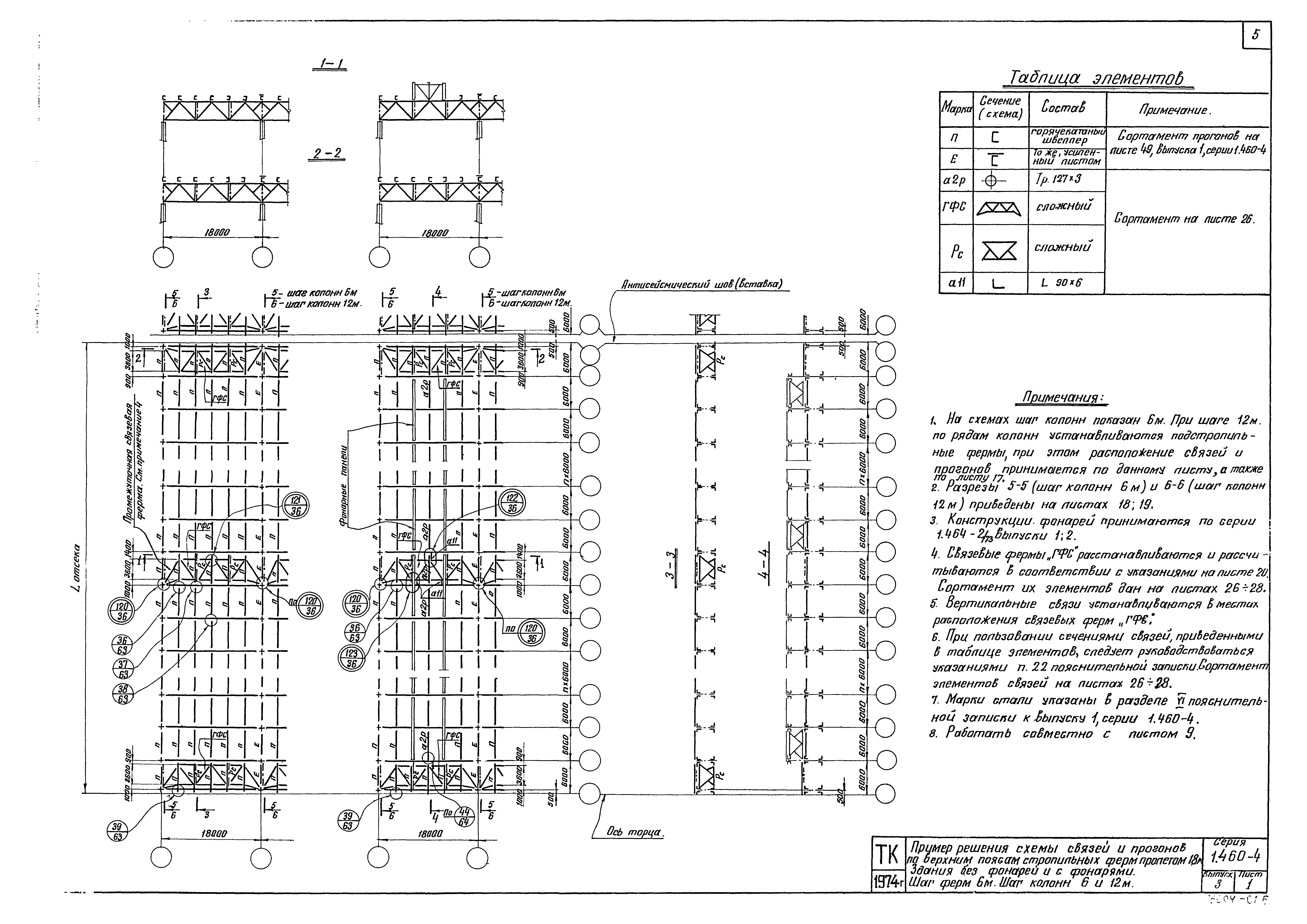
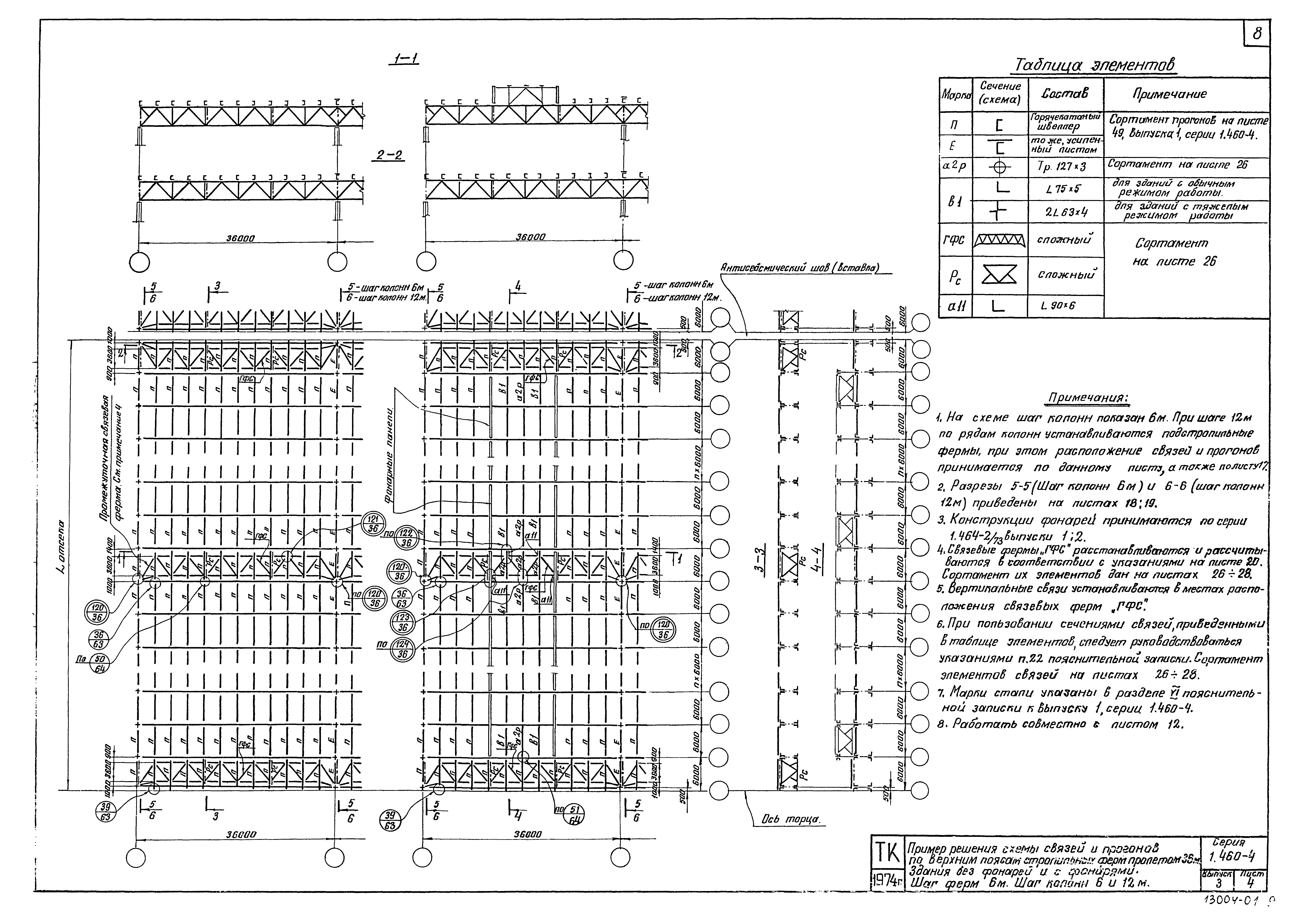
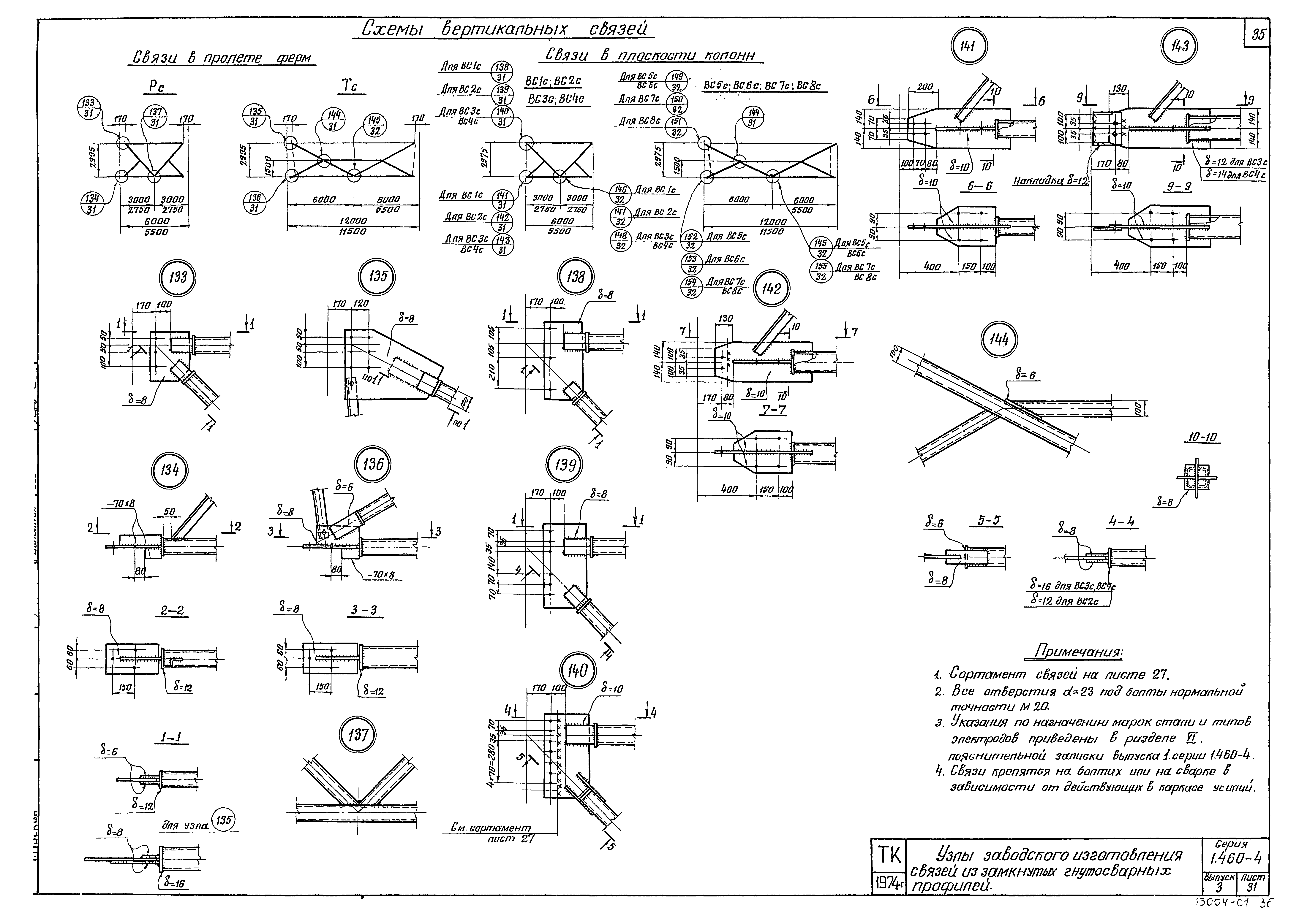
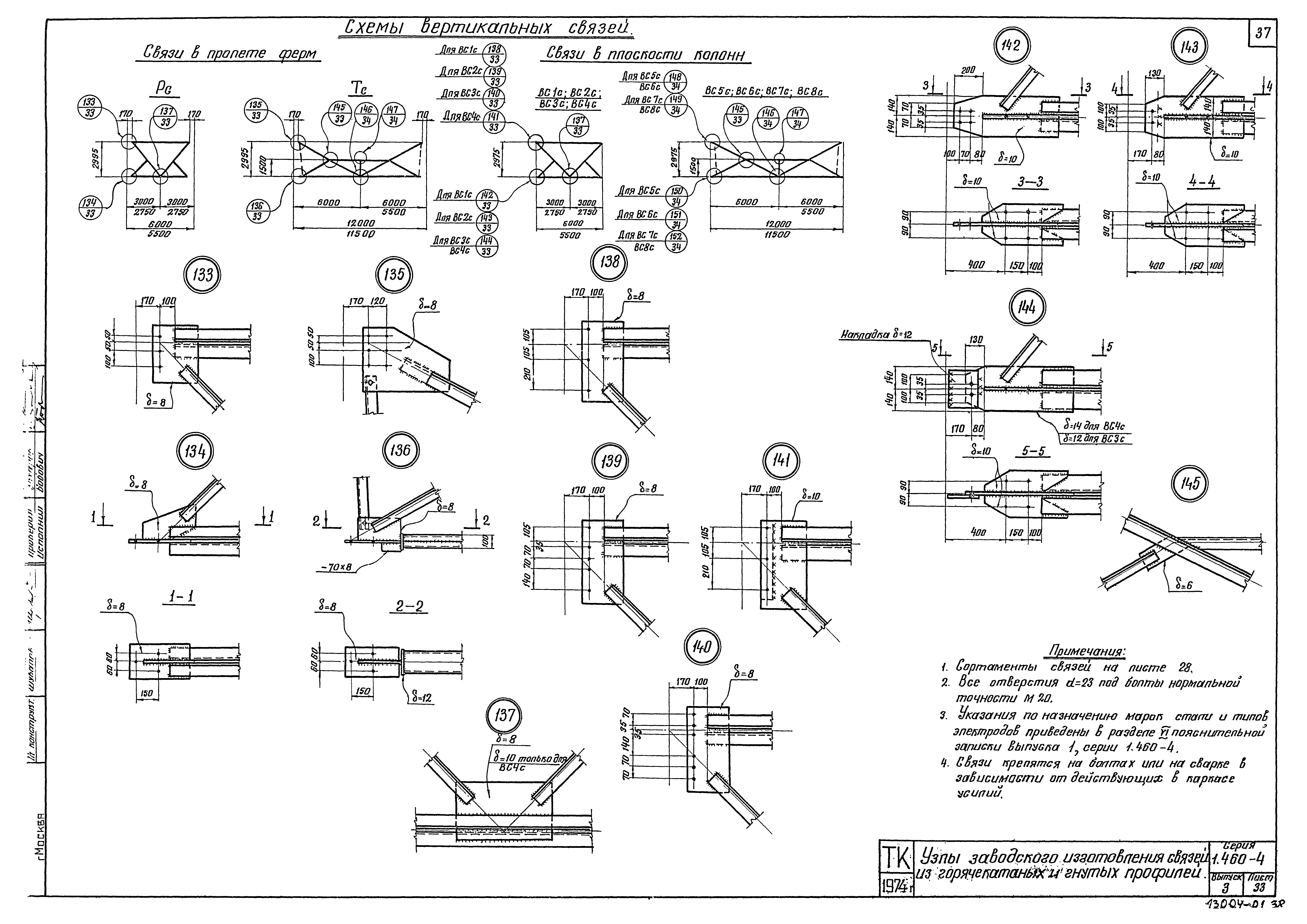
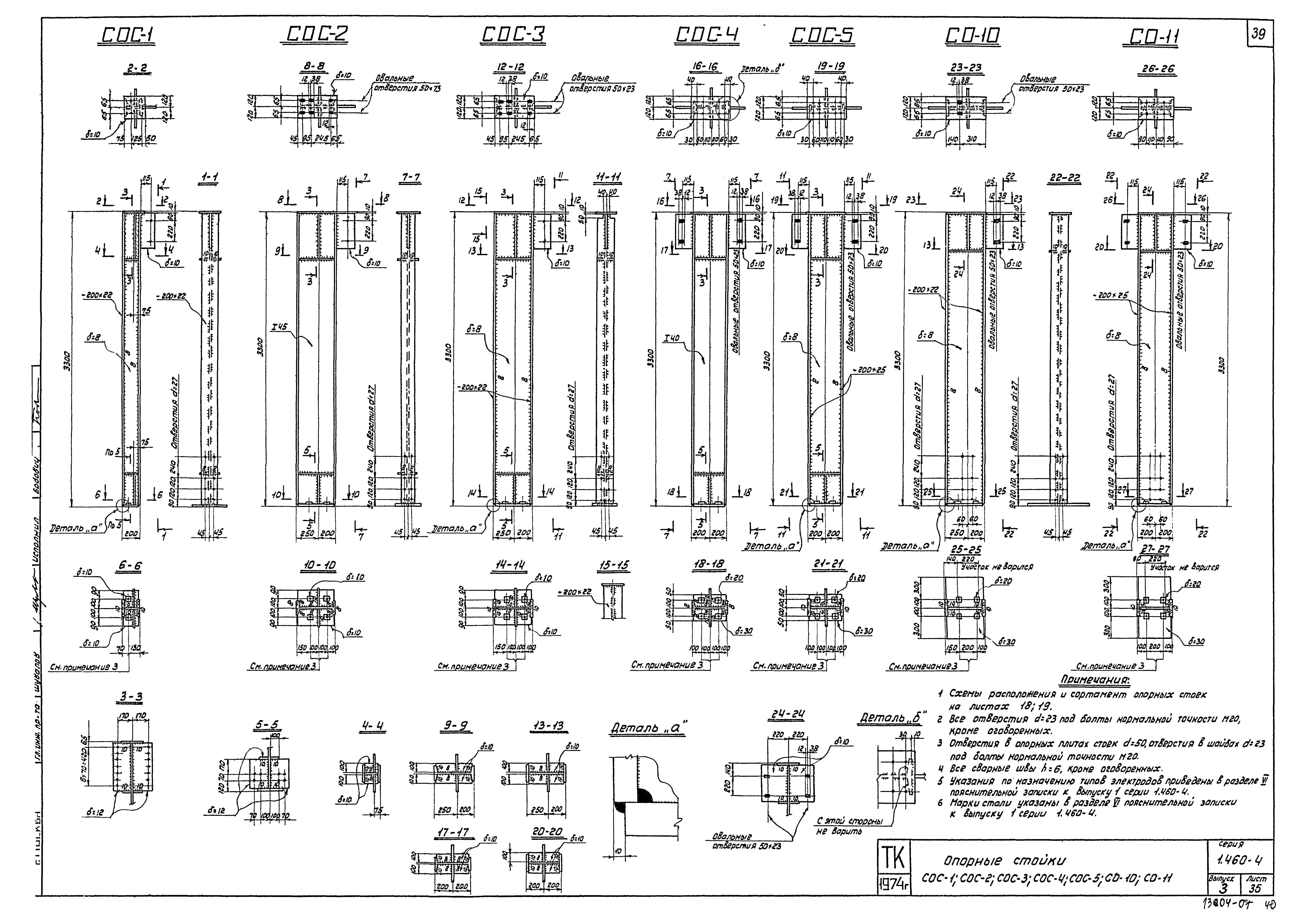
Выпуск 3. Покрытия пролетами 18; 24; 30 и 36 м для зданий с расчетной сейсмичностью 7, 8 и 9 баллов, возводимых в районах с температурами минус 40 градусов Цельсия и выше. Чертежи КМ| Обозначение: | Серия 1.460-4 | | Обозначение англ: | Series 1.460-4 | | Статус: | заменен | | Название рус.: | Выпуск 3. Покрытия пролетами 18; 24; 30 и 36 м для зданий с расчетной сейсмичностью 7, 8 и 9 баллов, возводимых в районах с температурами минус 40 градусов Цельсия и выше. Чертежи КМ | | Дата добавления в базу: | 05.05.2017 | | Дата актуализации: | 01.01.2021 | | Дата введения: | 01.09.1974 | | Дата окончания срока действия: | 01.04.1981 | | Область применения: | Настоящий выпуск является дополнением к выпуску 1 серии 1.460-4 и содержит материалы, необходимые при применении конструкций покрытий, разработанных в выпуске 1, в зданиях с расчетной сейсмичностью 7, 8 и 9 баллов | | Разработан: | ЦНИИпроектстальконструкция
| | Утверждён: | 02.07.1974 Госстрой СССР (Государственный комитет Совета Министров СССР по делам строительства) (USSR Gosstroy 137)
| | Чем заменён: | |
                                              
|