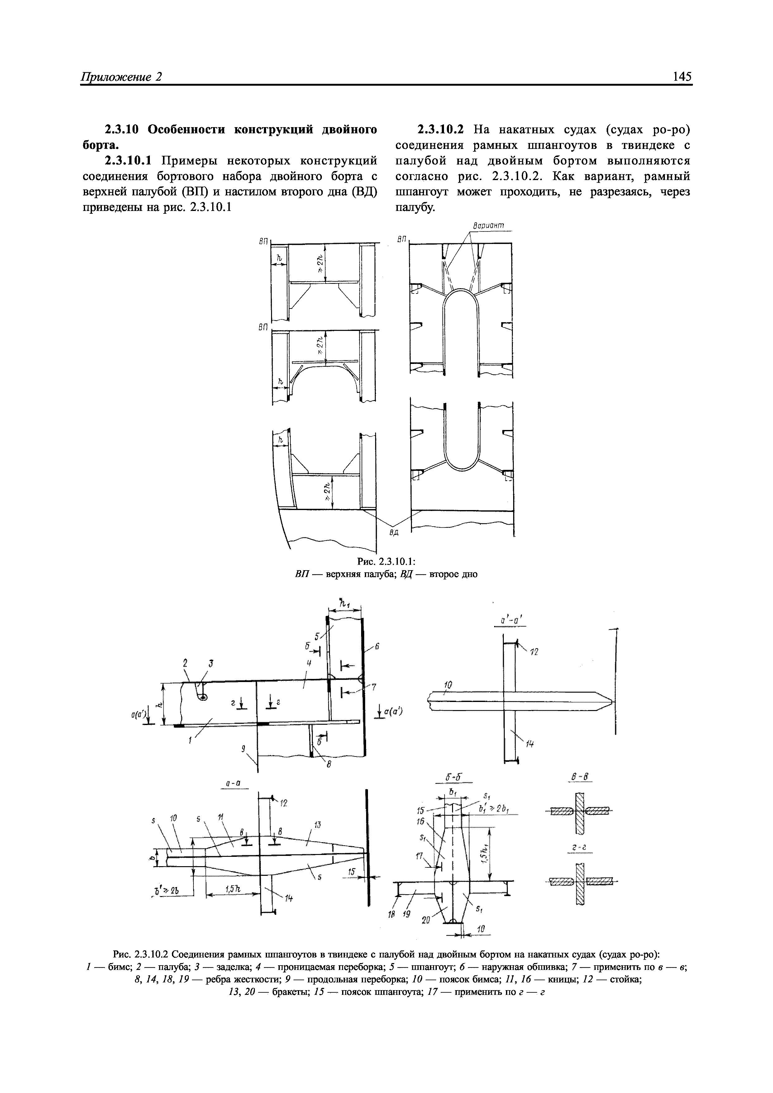
Скачать НД 2-039901-005 Приложения к методическим рекомендациям по техническому наблюдению за ремонтом морских судовДата актуализации: 01.01.2021
|
| Обозначение: | НД 2-039901-005 |
| Обозначение англ: | ND 2-039901-005 |
| Статус: | заменен |
| Название рус.: | Приложения к методическим рекомендациям по техническому наблюдению за ремонтом морских судов |
| Дата добавления в базу: | 05.05.2017 |
| Дата актуализации: | 01.01.2021 |
| Дата введения: | 01.07.2016 |
| Дата окончания срока действия: | 01.04.2018 |
| Область применения: | Приложения являются частью Методических рекомендаций по техническому наблюдению за ремонтом морских судов и предназначены для инспекторского состава, судоремонтных предприятий, экипажей судов и судовладельцев в качестве рекомендаций по проведению освидетельствований и испытаний отдельных объектов технического наблюдения регистра при их ремонте, оформлению отчетных документов Регистра по результатам освидетельствований, инструкций по определению технического состояния, проведению замеров толщин и т.п., техническому наблюдению за ремонтом. |
| Оглавление: | Приложение 1. Типовые способы ремонта корпусных конструкций морских судов Приложение 2. Рекомендации по конструктивному оформлению элементов и узлов корпусных конструкций морских судов Приложение 3. Правка корпусных конструкций Приложение 4. Сборка корпусных конструкций под сварку Приложение 5. Техническое наблюдение за восстановлением корродированных сварных швов наплавкой |
| Разработан: | Российский морской регистр судоходства |
| Утверждён: | 30.06.2016 Российский морской регистр судоходства |
| Издан: | Российский морской регистр судоходства (2016 г. ) |
| Заменяет собой: |





























































































































































































































