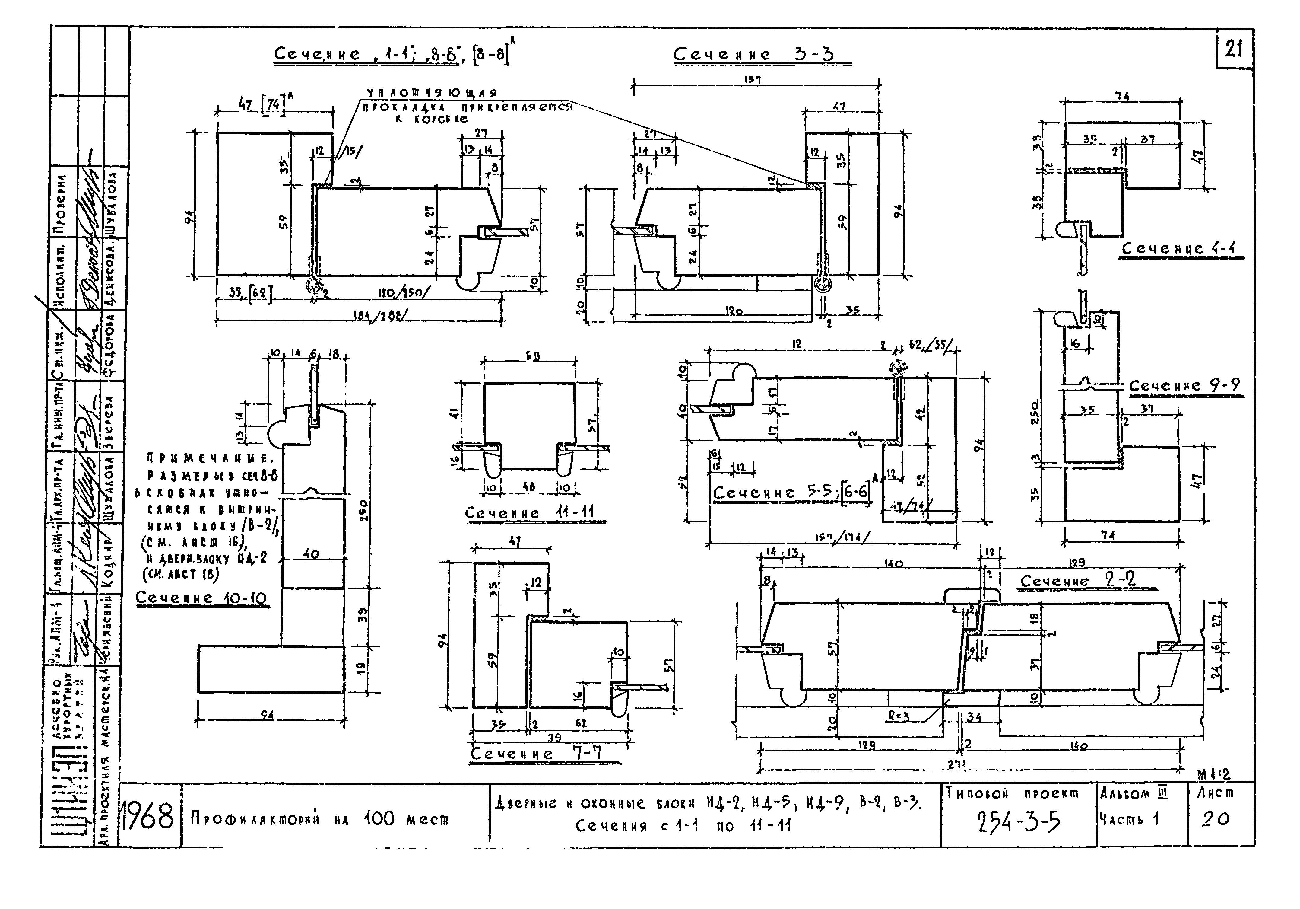
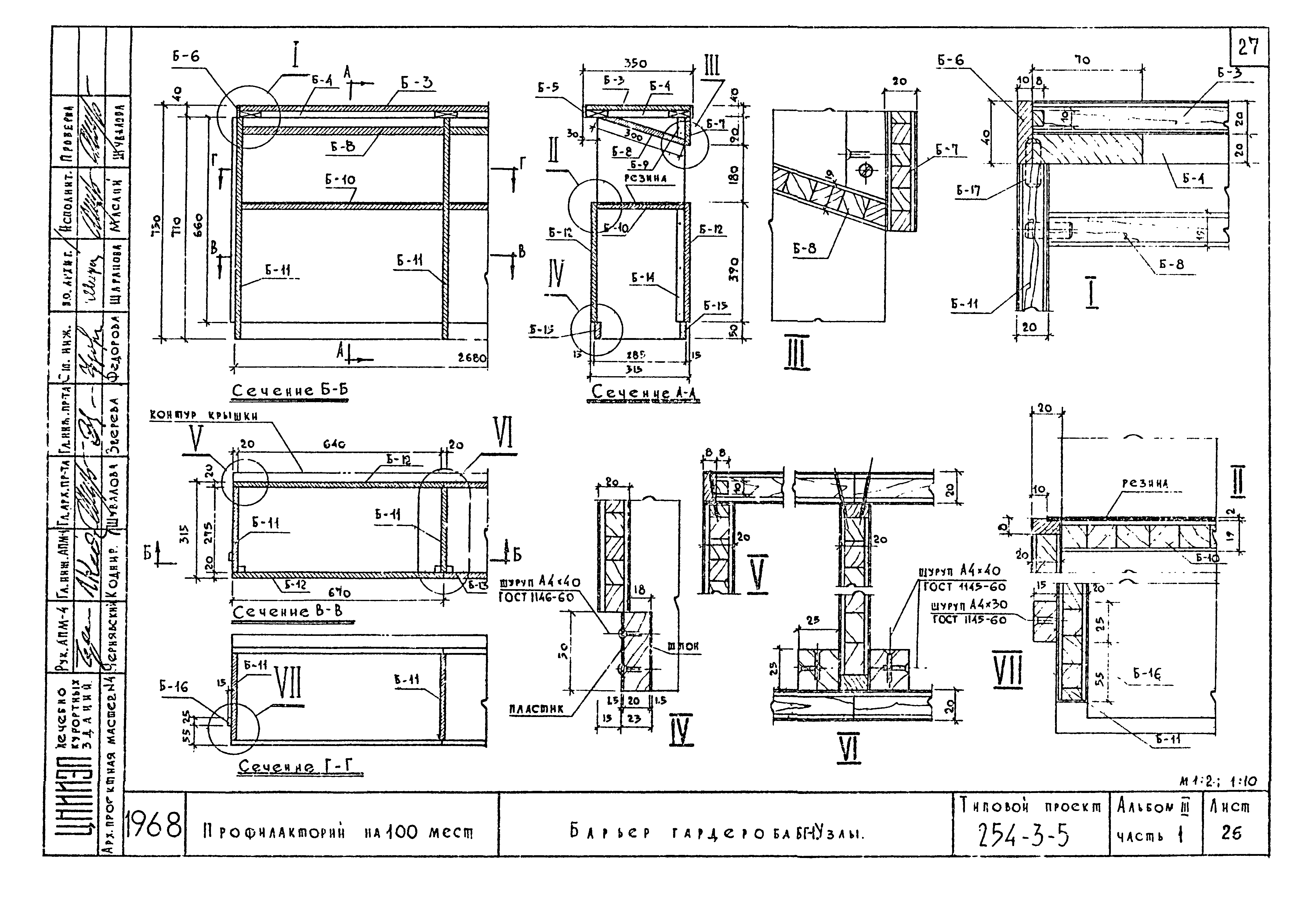
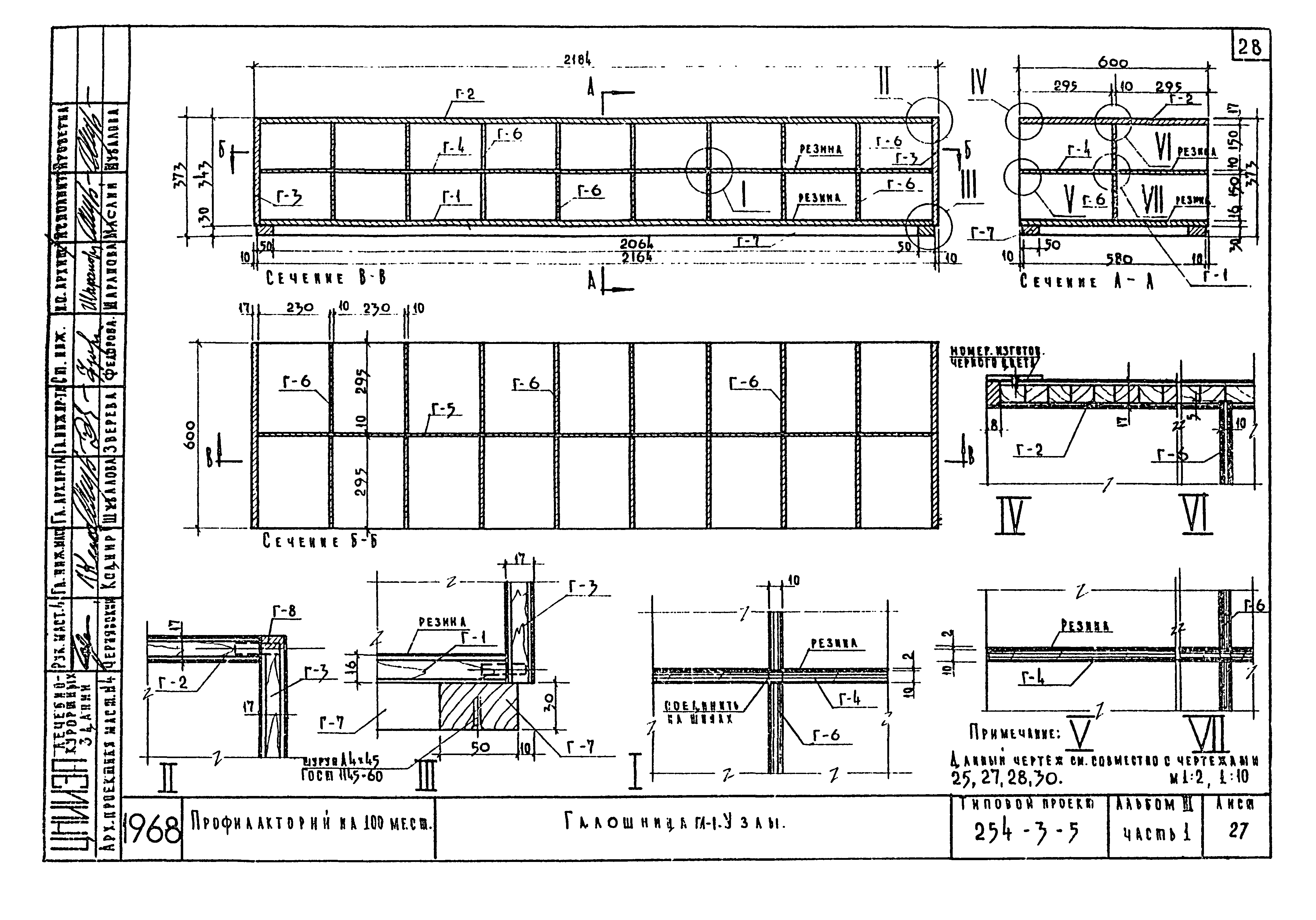
Скачать Типовой проект 254-3-5 Альбом III. Изделия заводского изготовленияДата актуализации: 01.01.2021 Типовой проект 254-3-5
Альбом III. Изделия заводского изготовления| Обозначение: | Типовой проект 254-3-5 | | Обозначение англ: | 254-3-5 | | Статус: | действует | | Название рус.: | Альбом III. Изделия заводского изготовления | | Дата добавления в базу: | 05.05.2017 | | Дата актуализации: | 01.01.2021 | | Дата введения: | 18.10.1968 | | Разработан: | ЦНИИЭП лечебно-курортных зданий
| | Утверждён: | 18.10.1968 ЦНИИЭП лечебно-курортных зданий Госгражданстроя (245)
| | Издан: | ЦИТП Госстроя СССР (CITP, Gosstroy (USSR) 1978 г. )
|
                                          
|