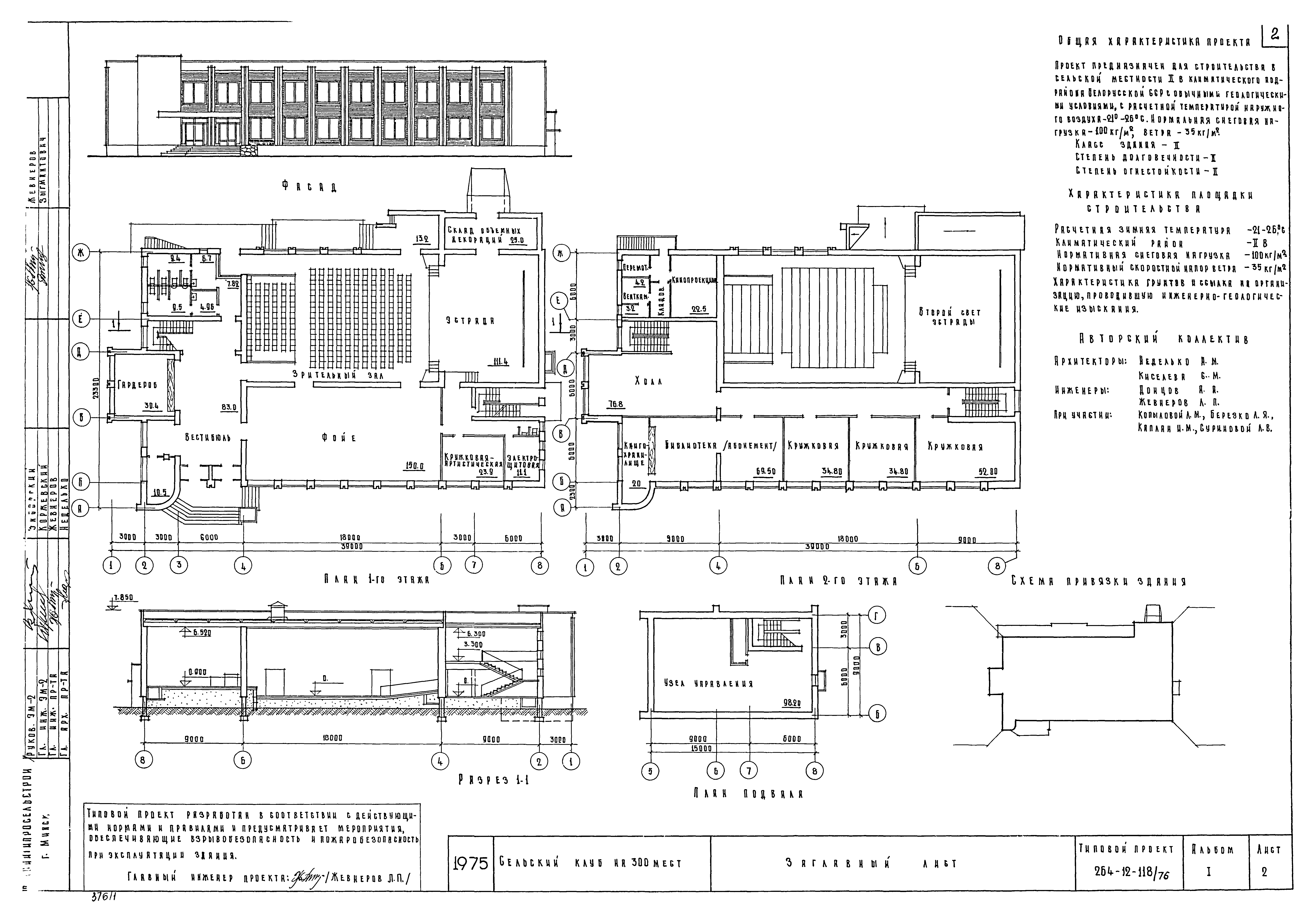
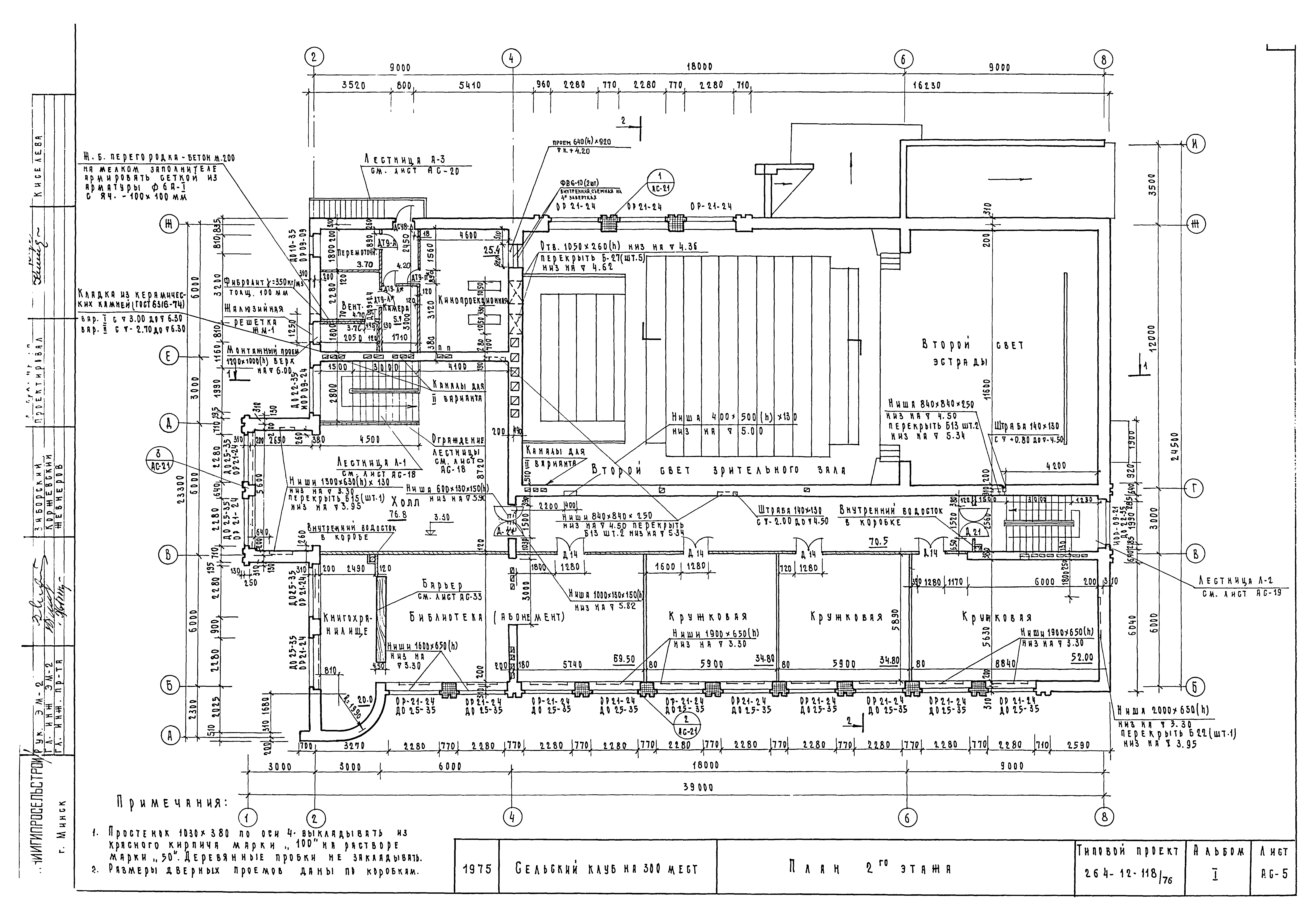
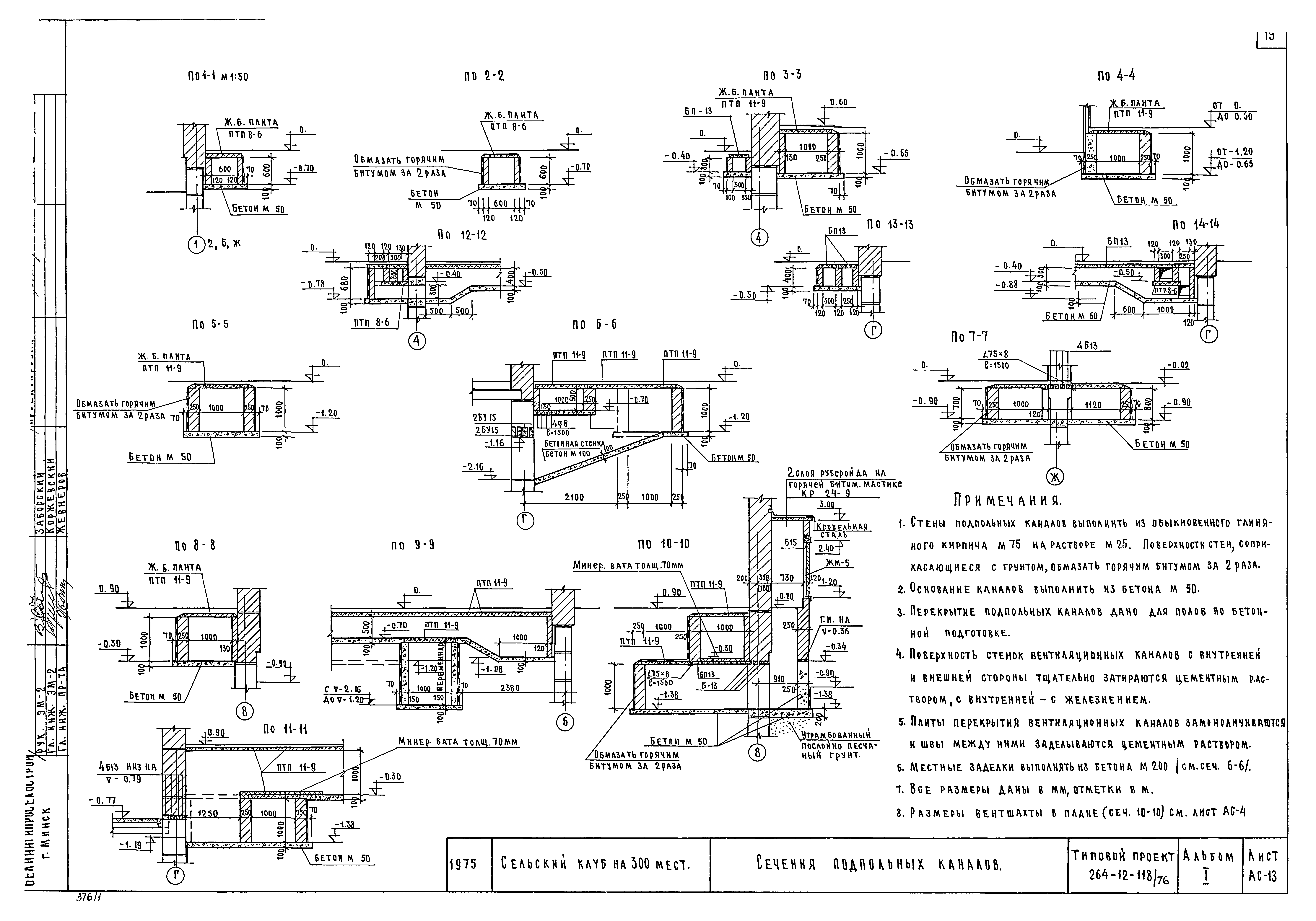
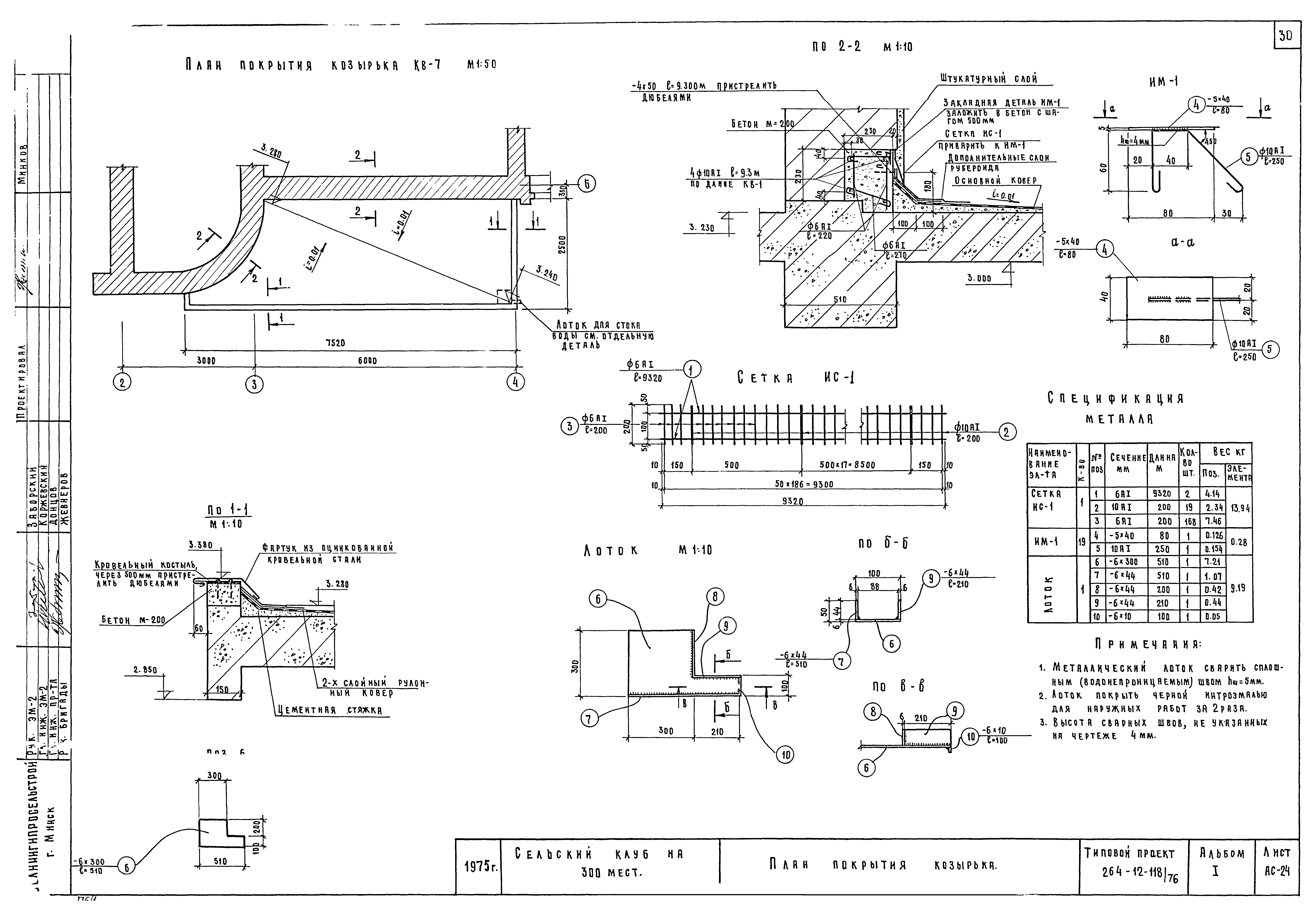
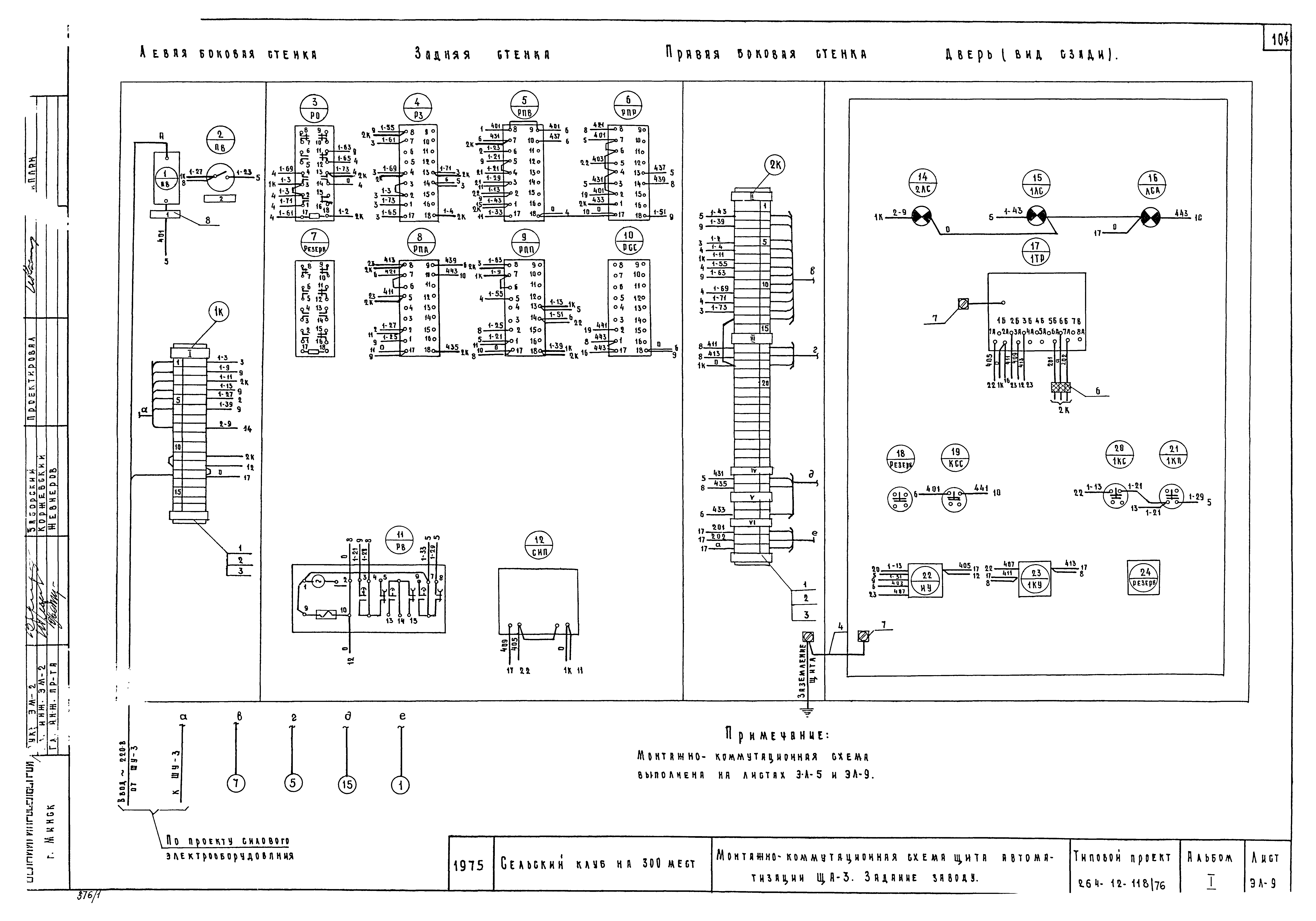
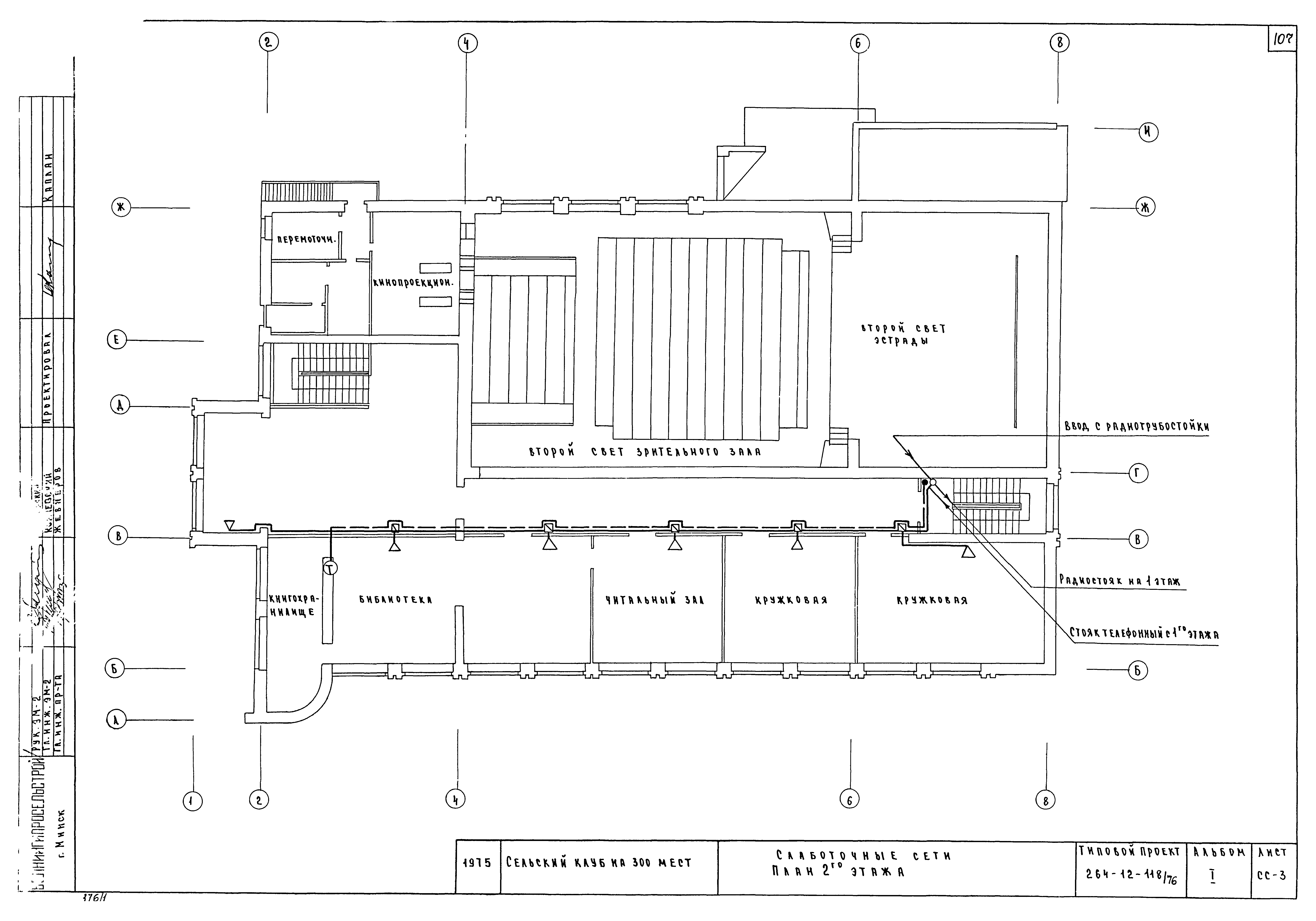
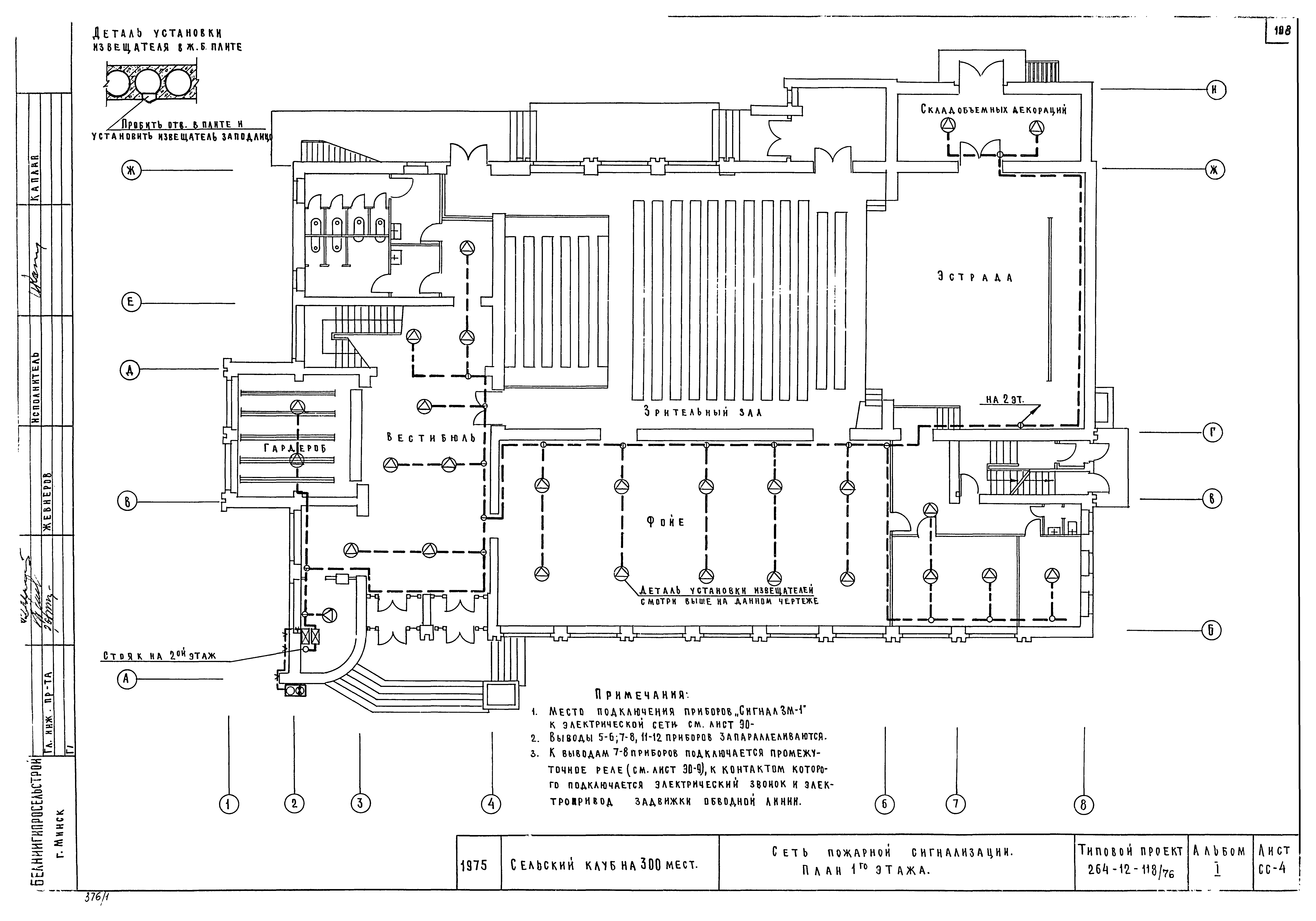
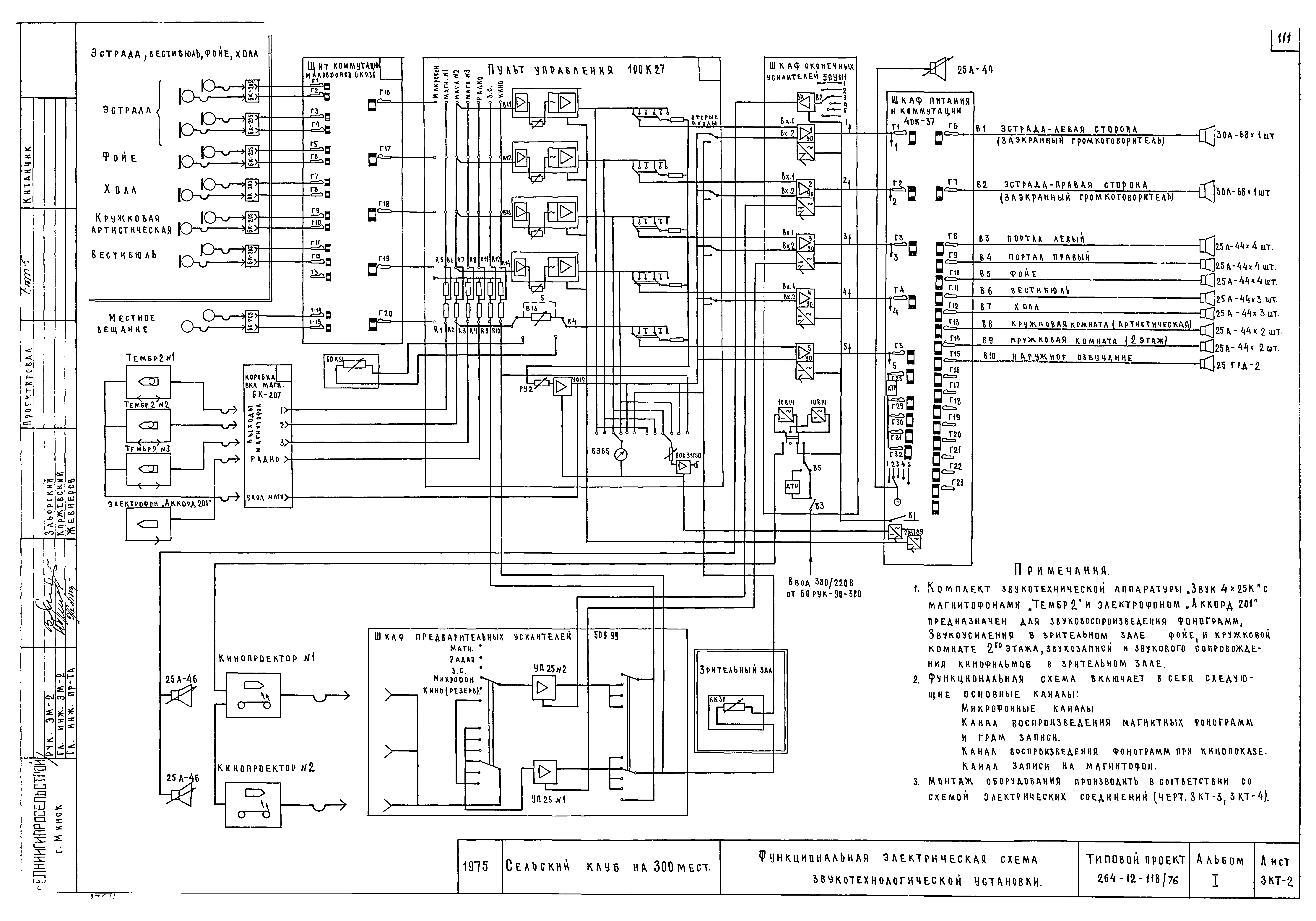
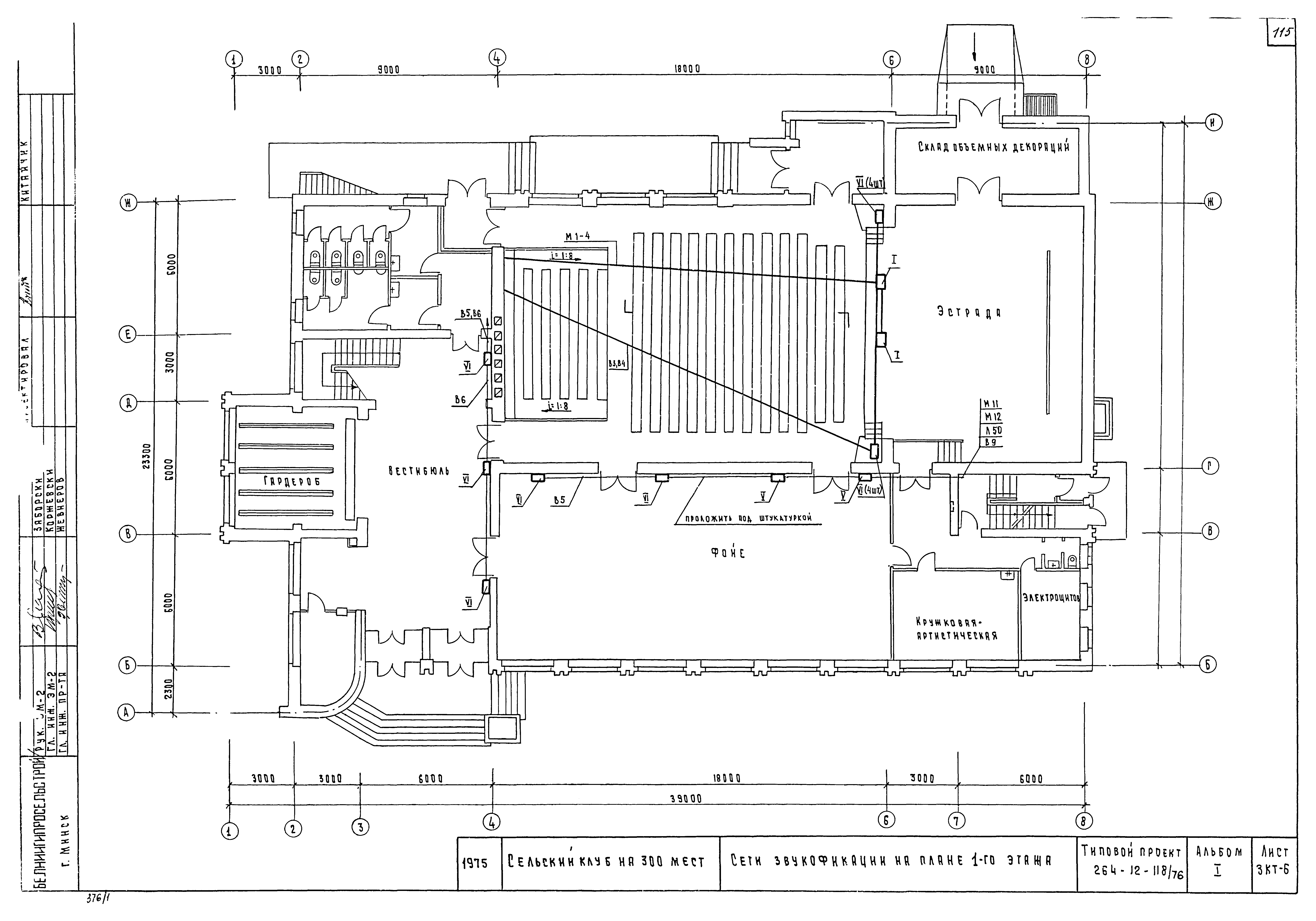
Скачать Типовой проект 264-12-118/76 Альбом I. Архитектурно-строительная, санитарно-техническая и электротехническая части. КинотехнологияДата актуализации: 01.01.2021 Типовой проект 264-12-118/76
Альбом I. Архитектурно-строительная, санитарно-техническая и электротехническая части. Кинотехнология| Обозначение: | Типовой проект 264-12-118/76 | | Обозначение англ: | 264-12-118/76 | | Статус: | действует | | Название рус.: | Альбом I. Архитектурно-строительная, санитарно-техническая и электротехническая части. Кинотехнология | | Дата добавления в базу: | 05.05.2017 | | Дата актуализации: | 01.01.2021 | | Дата введения: | 08.10.1976 | | Разработан: | БелНИИгипросельстрой
| | Утверждён: | 23.03.1976 Госстрой БССР (BSSR Gosstroy 29)
| | Издан: | ЦИТП Госстроя СССР (CITP, Gosstroy (USSR) 1981 г. )
|
                                                                                                                           
|