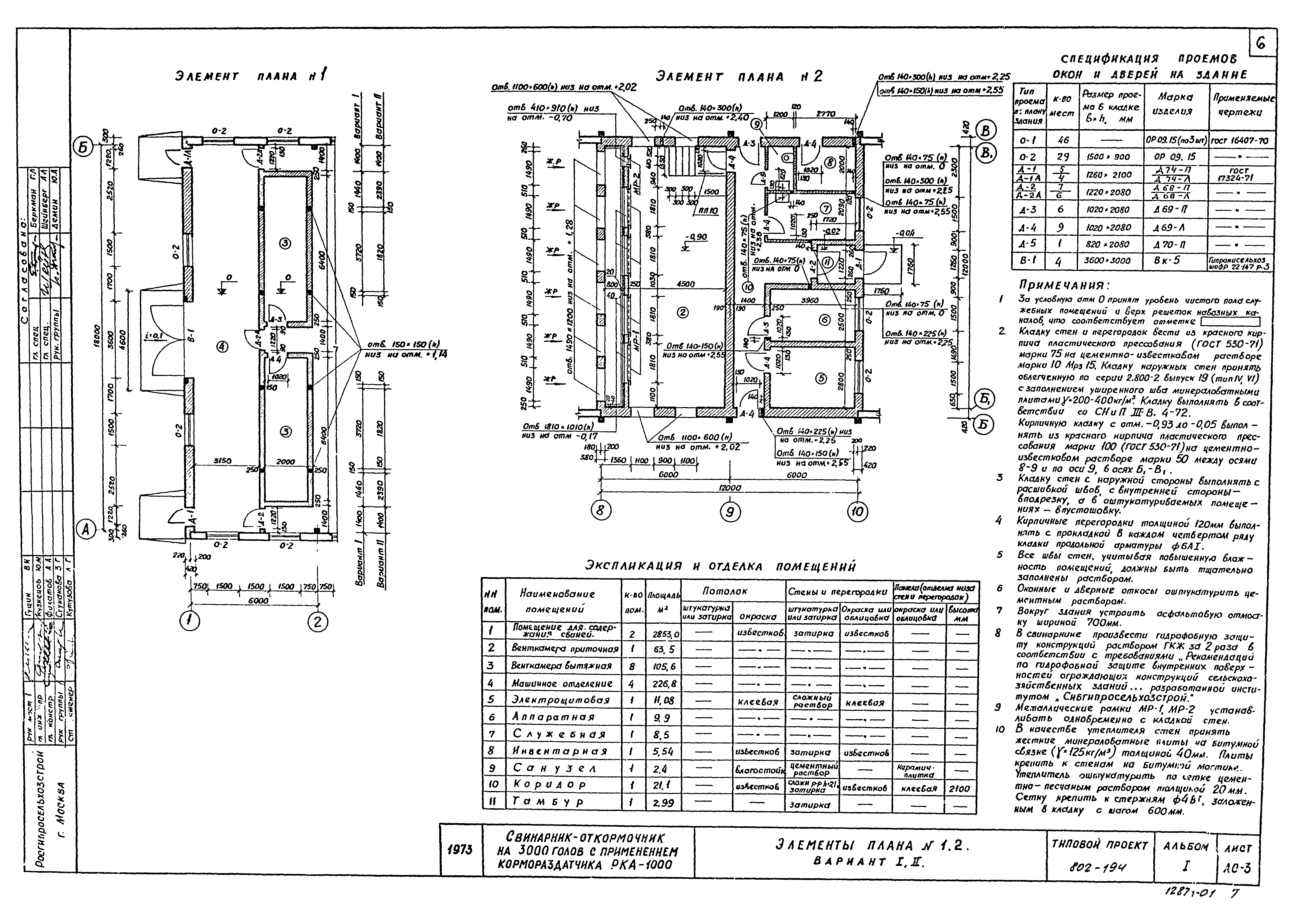
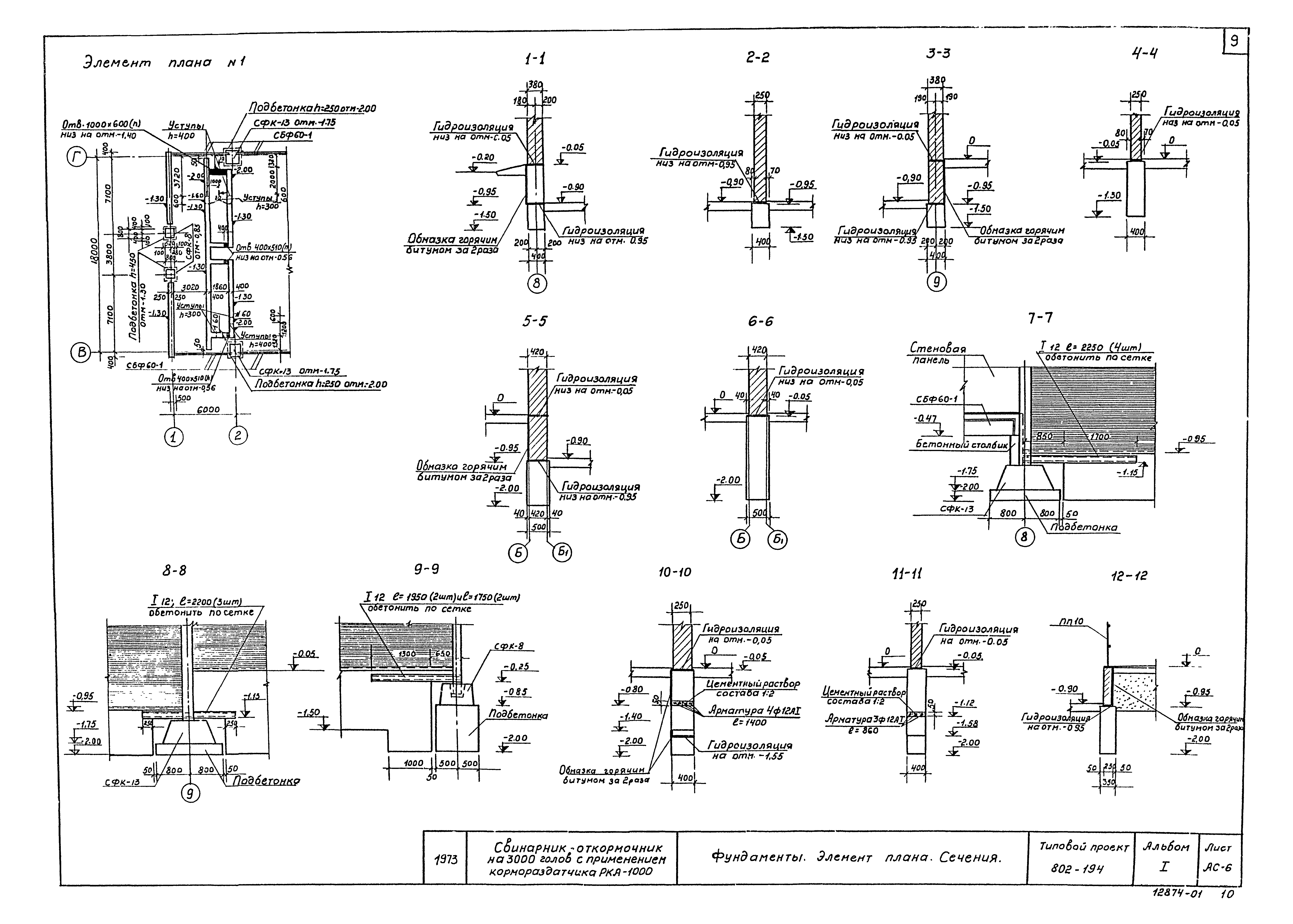
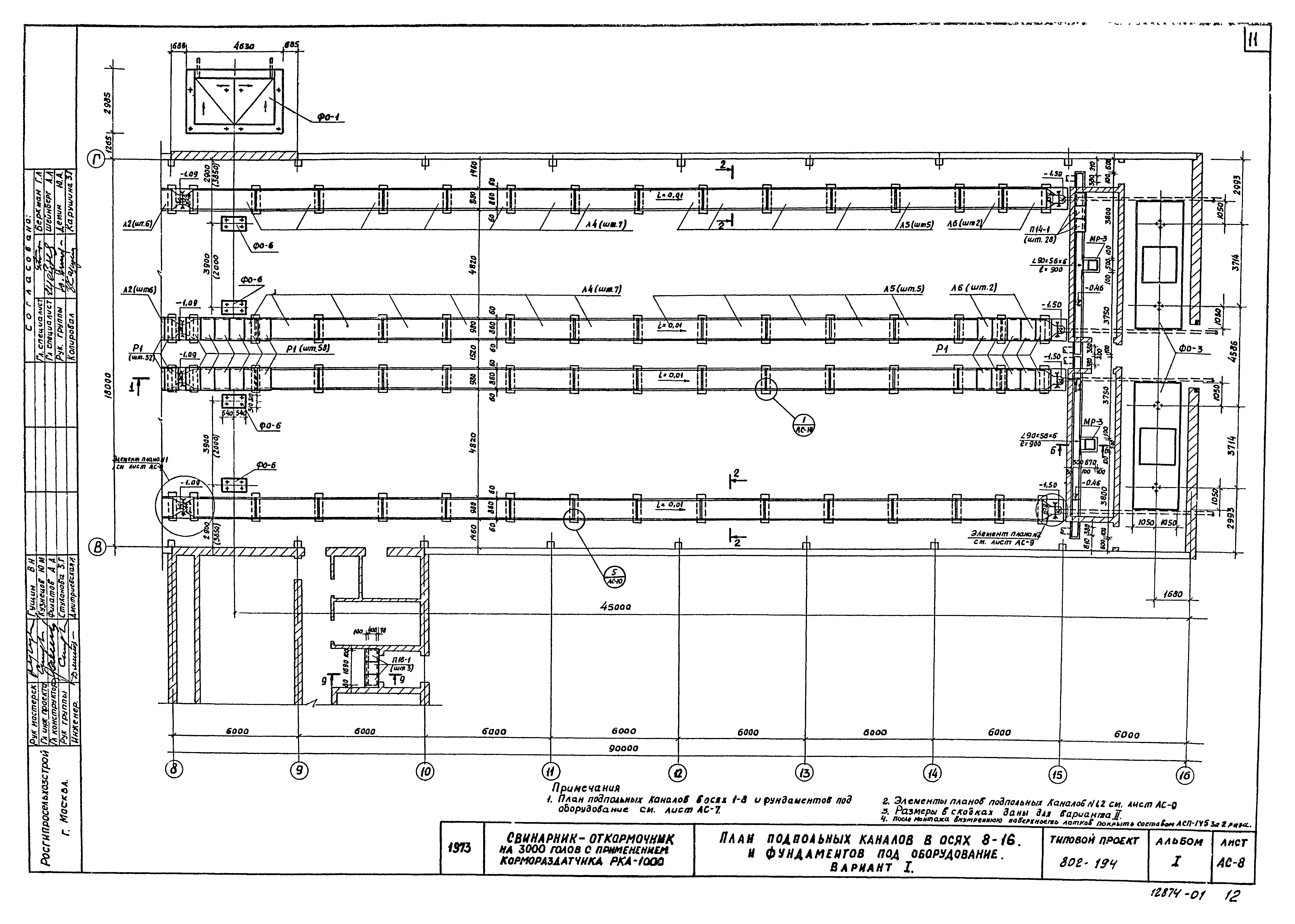
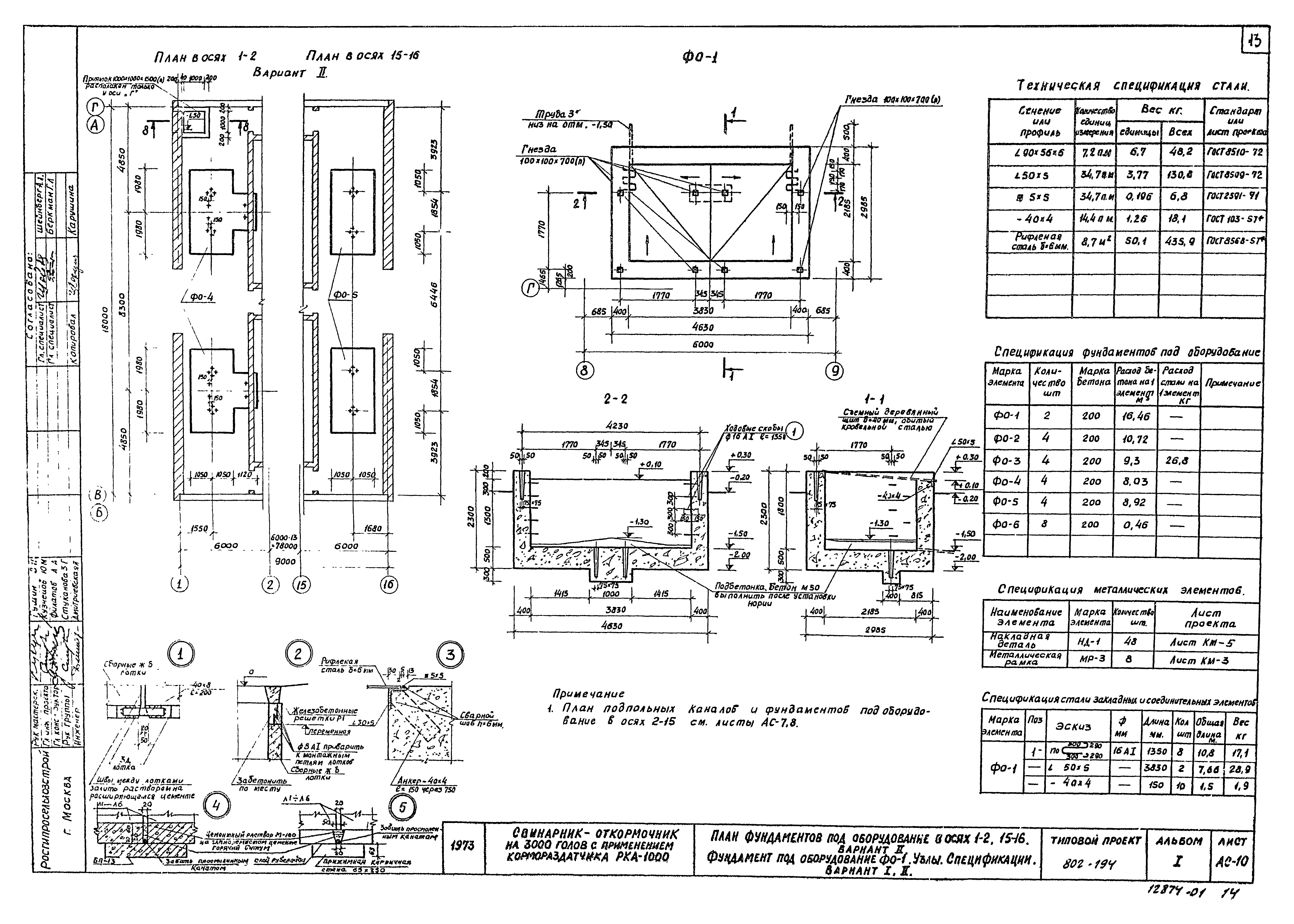
Скачать Типовой проект 802-194 Альбом 1. Архитектурно-строительная частьДата актуализации: 01.01.2021
|
| Обозначение: | Типовой проект 802-194 |
| Обозначение англ: | 802-194 |
| Статус: | действует |
| Название рус.: | Альбом 1. Архитектурно-строительная часть |
| Дата добавления в базу: | 05.05.2017 |
| Дата актуализации: | 01.01.2021 |
| Дата введения: | 20.03.1975 |
| Разработан: | Росгипросельхозстрой |
| Издан: | ЦИТП Госстроя СССР (CITP, Gosstroy (USSR) 1975 г. ) |































