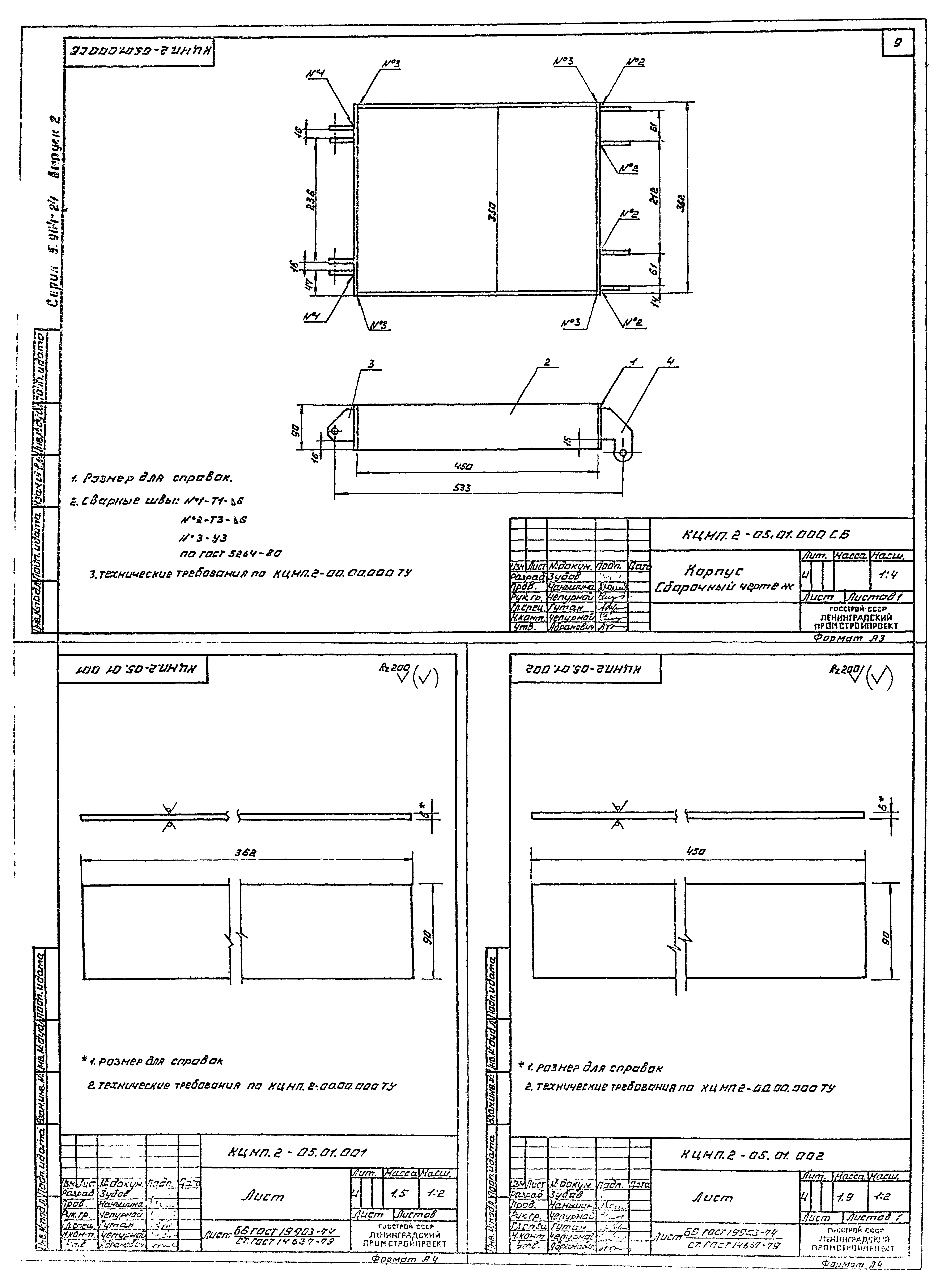
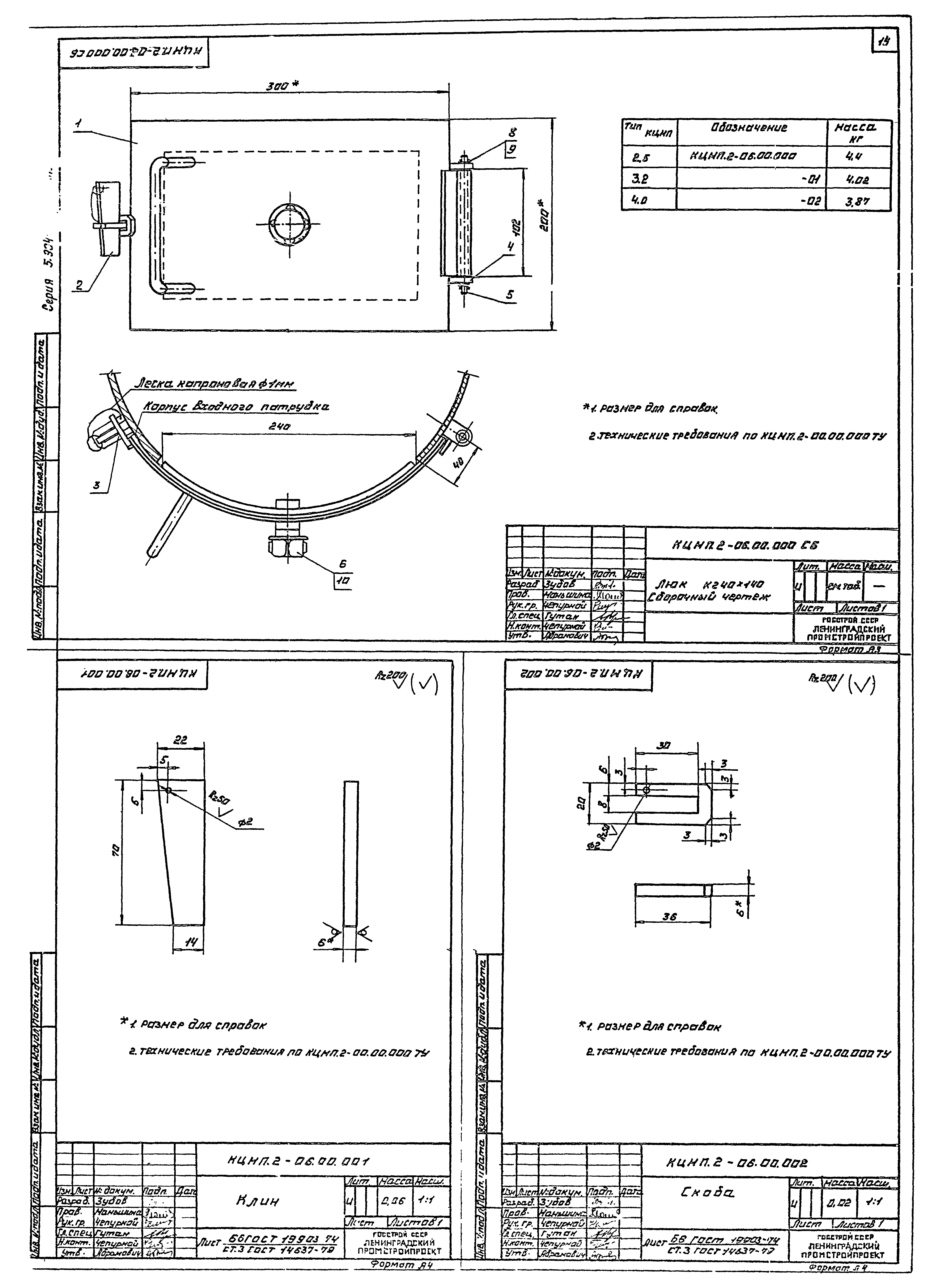
Скачать Серия 5.904-24 Выпуск 2. Детали общего применения КЦМП-2,5; 3,2; 4,0. Рабочие чертежиДата актуализации: 01.01.2021 Серия 5.904-24
Выпуск 2. Детали общего применения КЦМП-2,5; 3,2; 4,0. Рабочие чертежи| Обозначение: | Серия 5.904-24 | | Обозначение англ: | Series 5.904-24 | | Статус: | действует | | Название рус.: | Выпуск 2. Детали общего применения КЦМП-2,5; 3,2; 4,0. Рабочие чертежи | | Дата добавления в базу: | 05.05.2017 | | Дата актуализации: | 01.01.2021 | | Дата введения: | 20.06.1984 | | Разработан: | ГПИ Ленпромстройпроект
| | Утверждён: | 20.06.1984 Главпромстройпроект Госстроя СССР (20)
|
                     
|