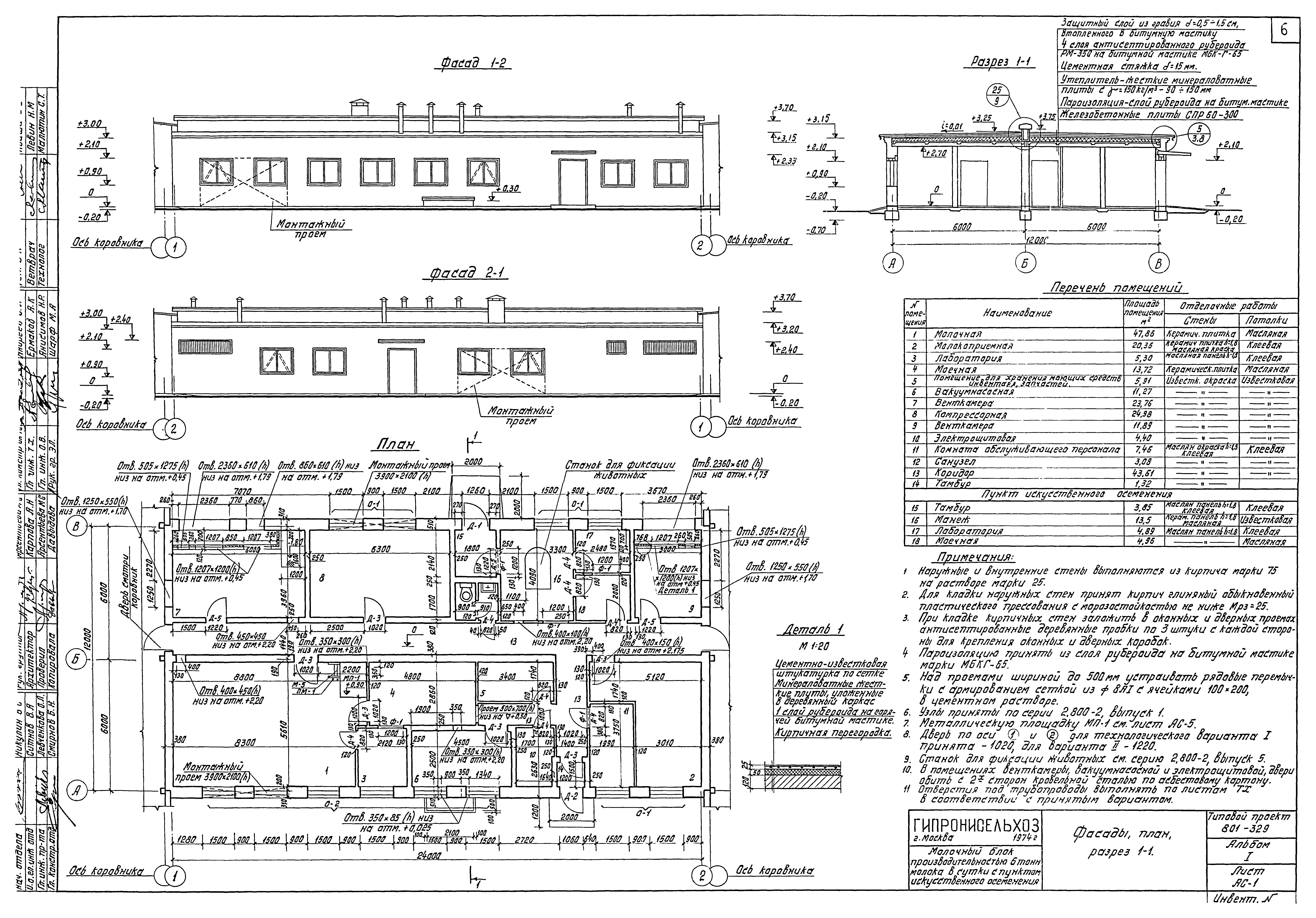
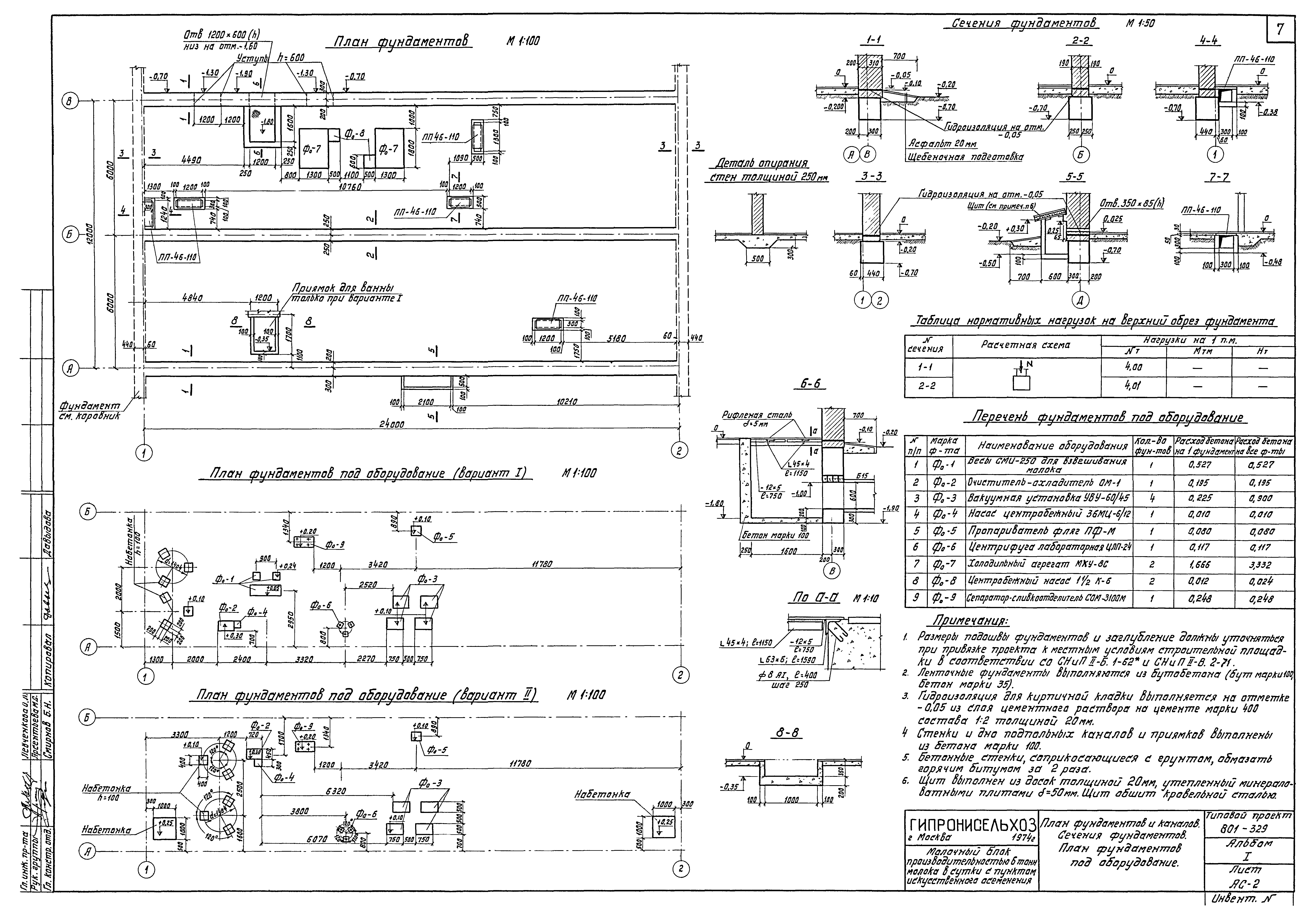
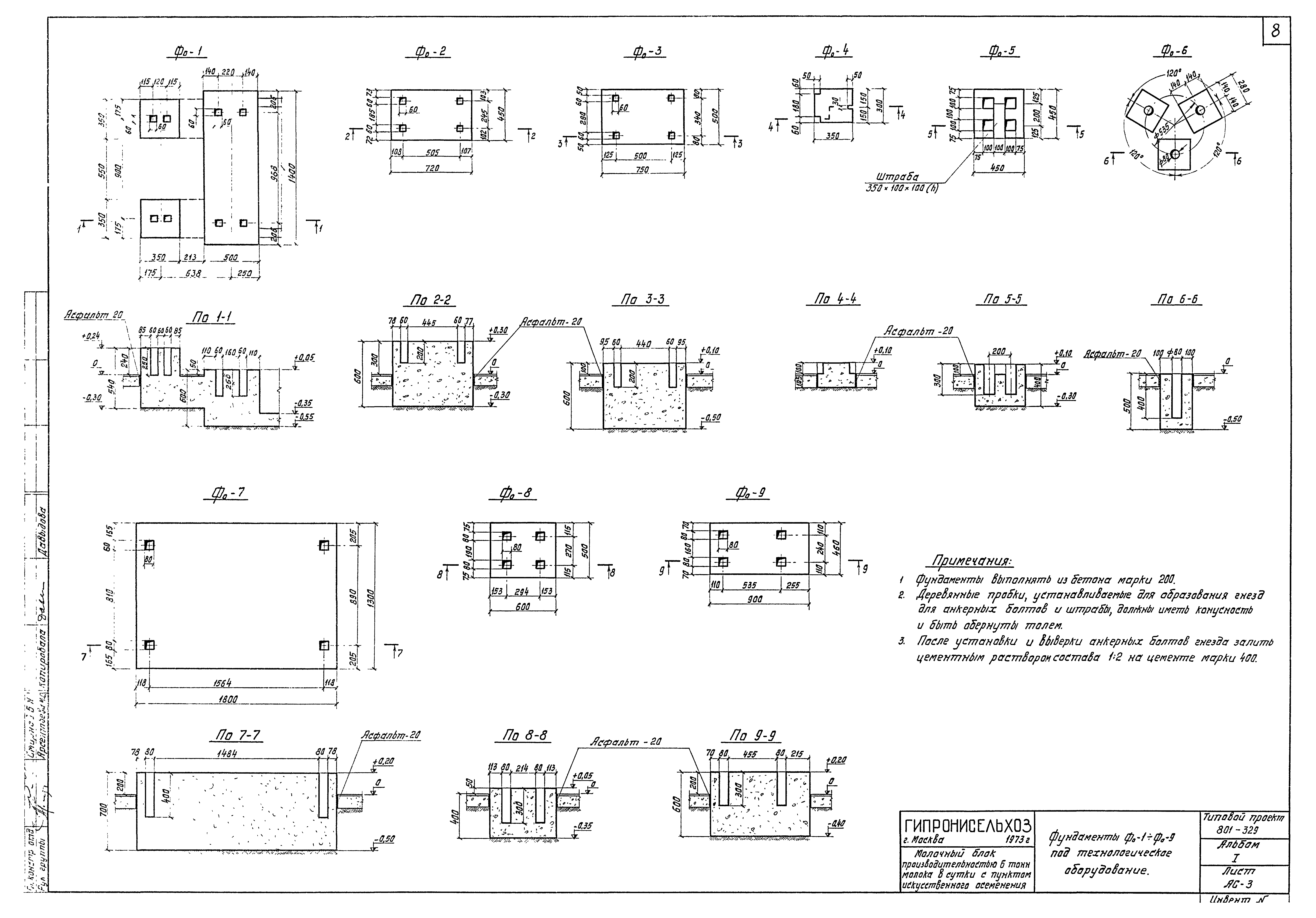
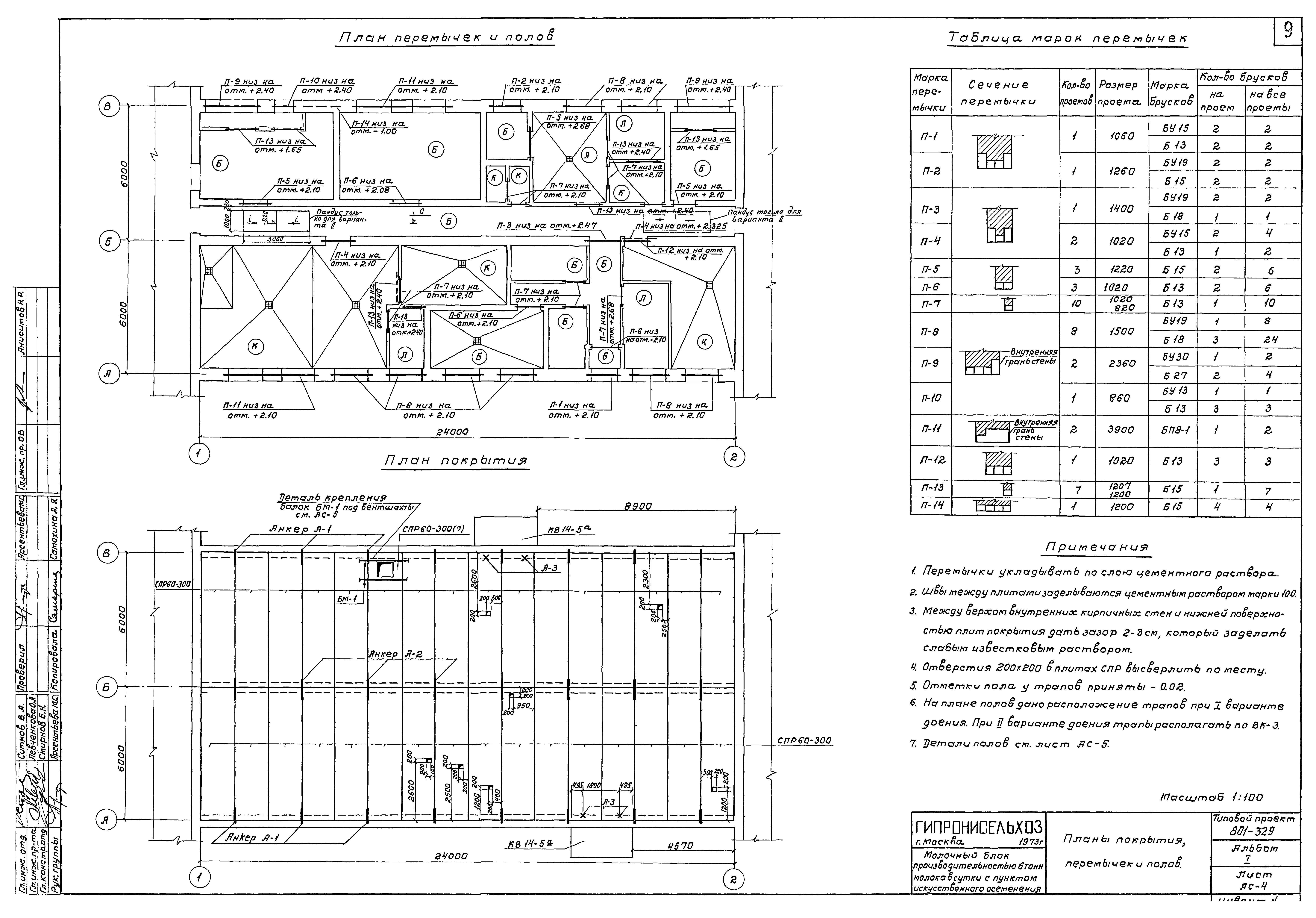
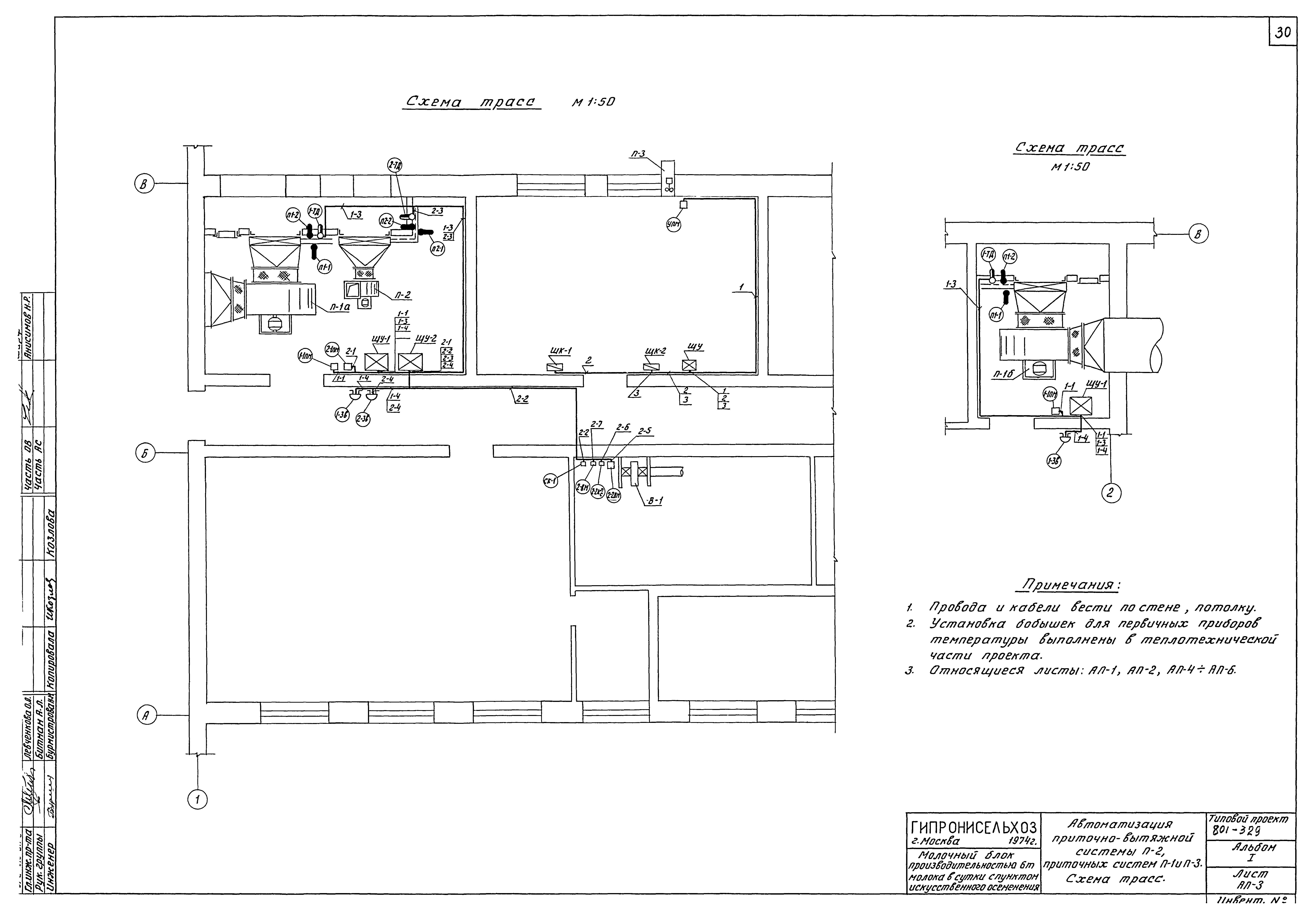
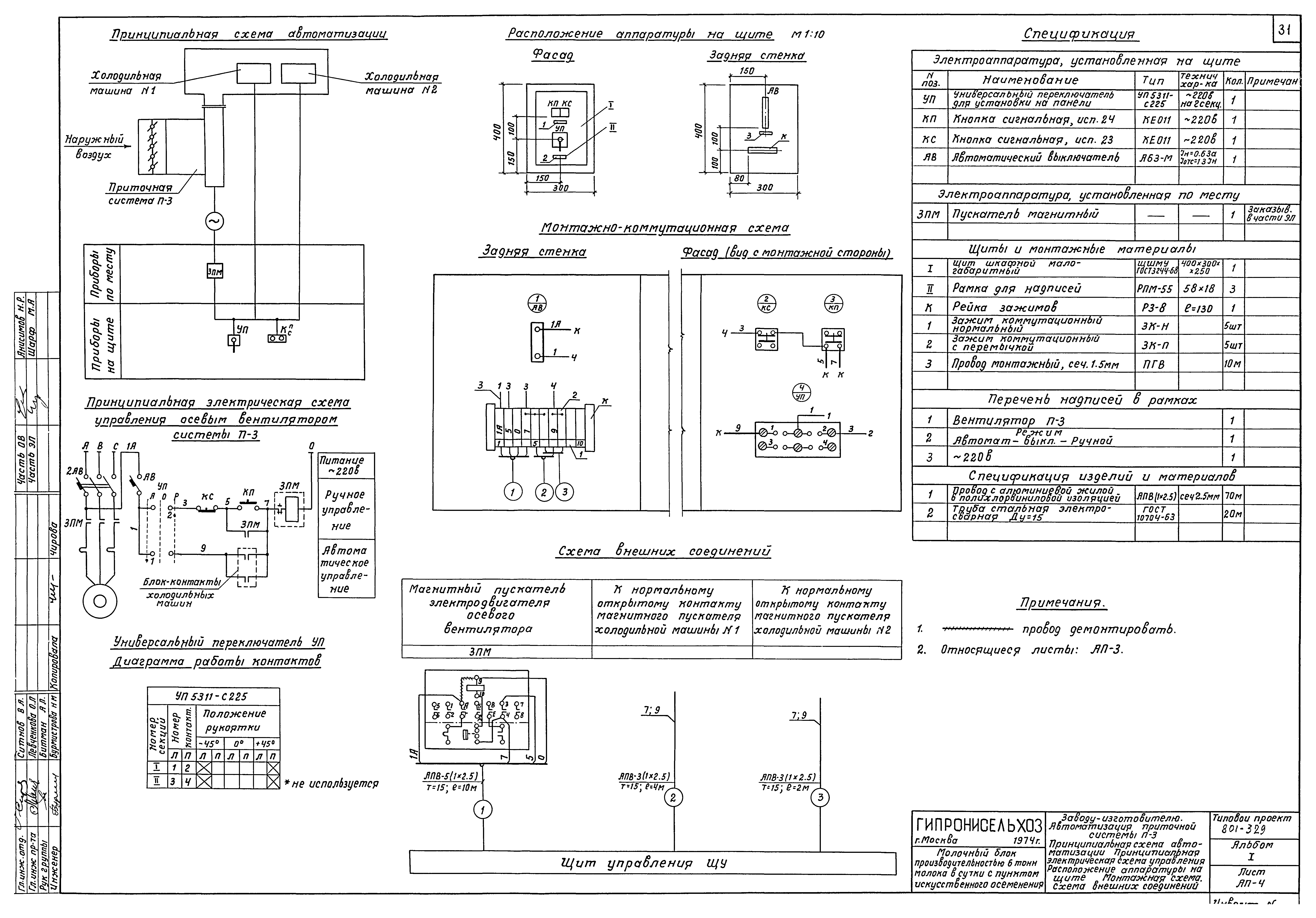
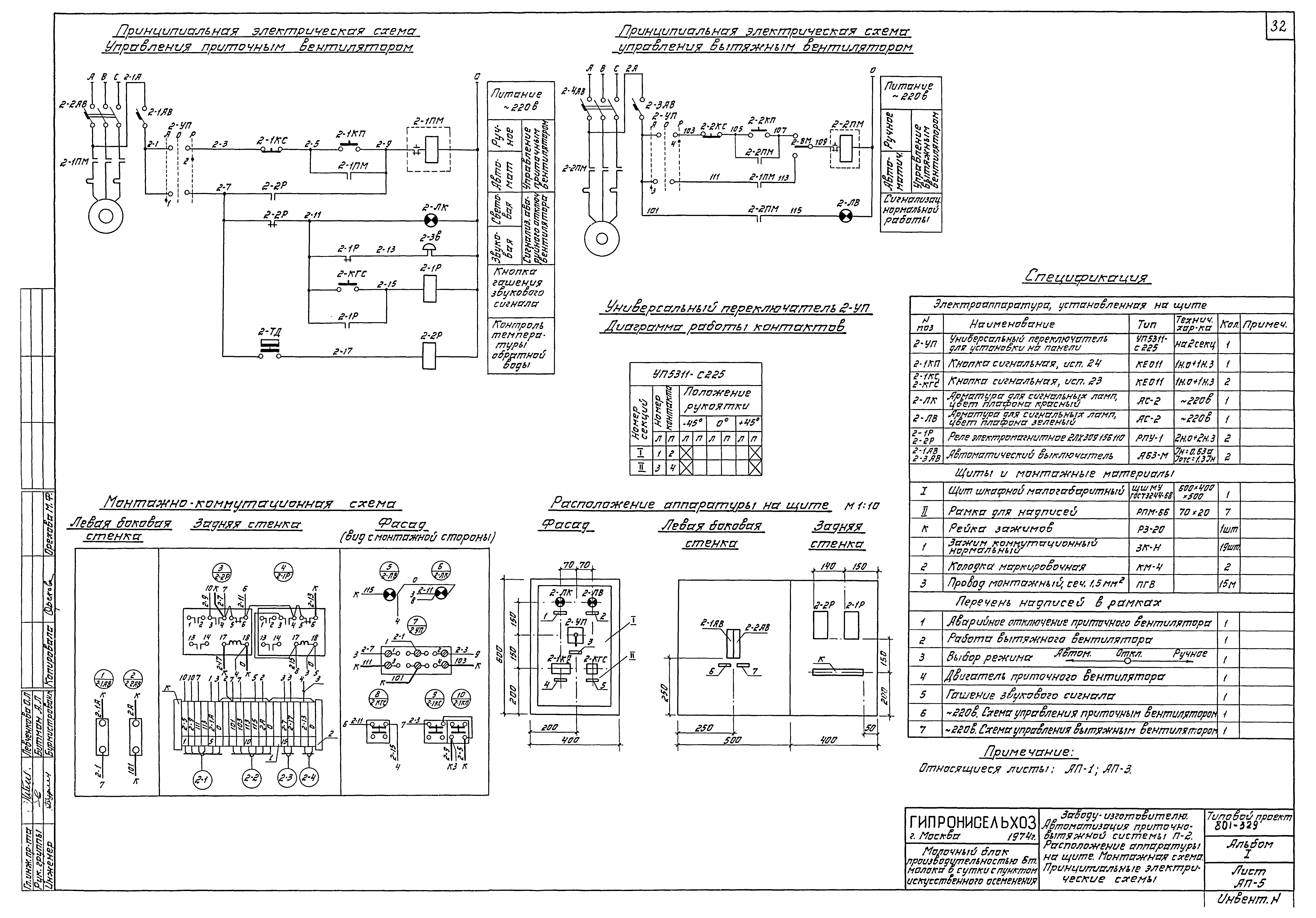
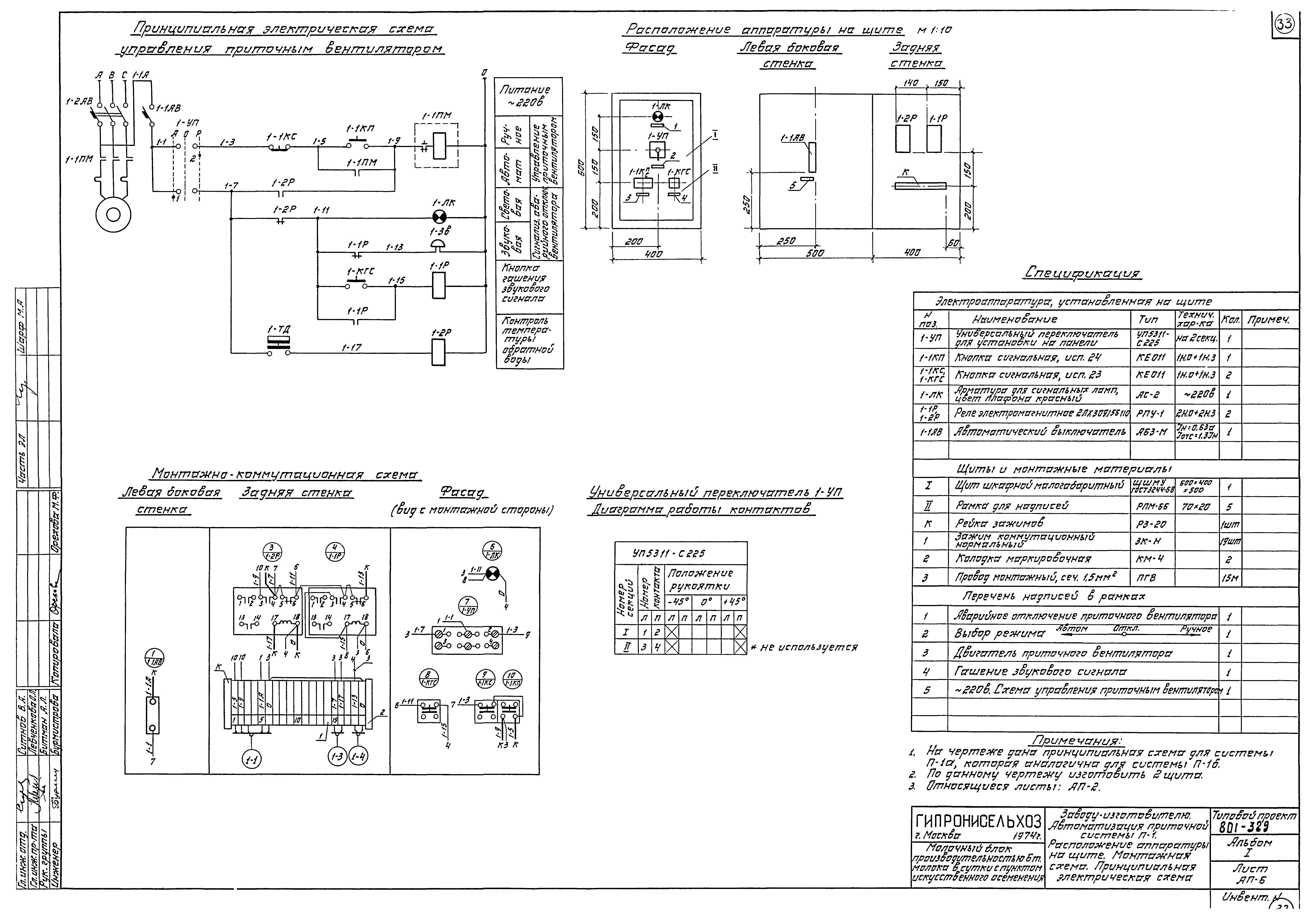
Скачать Типовой проект 801-329 Альбом I. Архитектурно-строительная, технологическая, сантехническая и электротехническая частиДата актуализации: 01.01.2021 Типовой проект 801-329
Альбом I. Архитектурно-строительная, технологическая, сантехническая и электротехническая части| Обозначение: | Типовой проект 801-329 | | Обозначение англ: | 801-329 | | Статус: | действует | | Название рус.: | Альбом I. Архитектурно-строительная, технологическая, сантехническая и электротехническая части | | Дата добавления в базу: | 05.05.2017 | | Дата актуализации: | 01.01.2021 | | Дата введения: | 30.03.1974 | | Разработан: | ГипроНИсельхоз (Институт Гипронисельхоз )
| | Утверждён: | 30.03.1974 Главсельстройпроект Минсельхоза СССР (Glavselstroyproject, USSR Minselkhoz )
| | Издан: | ЦИТП Госстроя СССР (CITP, Gosstroy (USSR) 1978 г. )
| | Заменяет собой: | |
                                
|