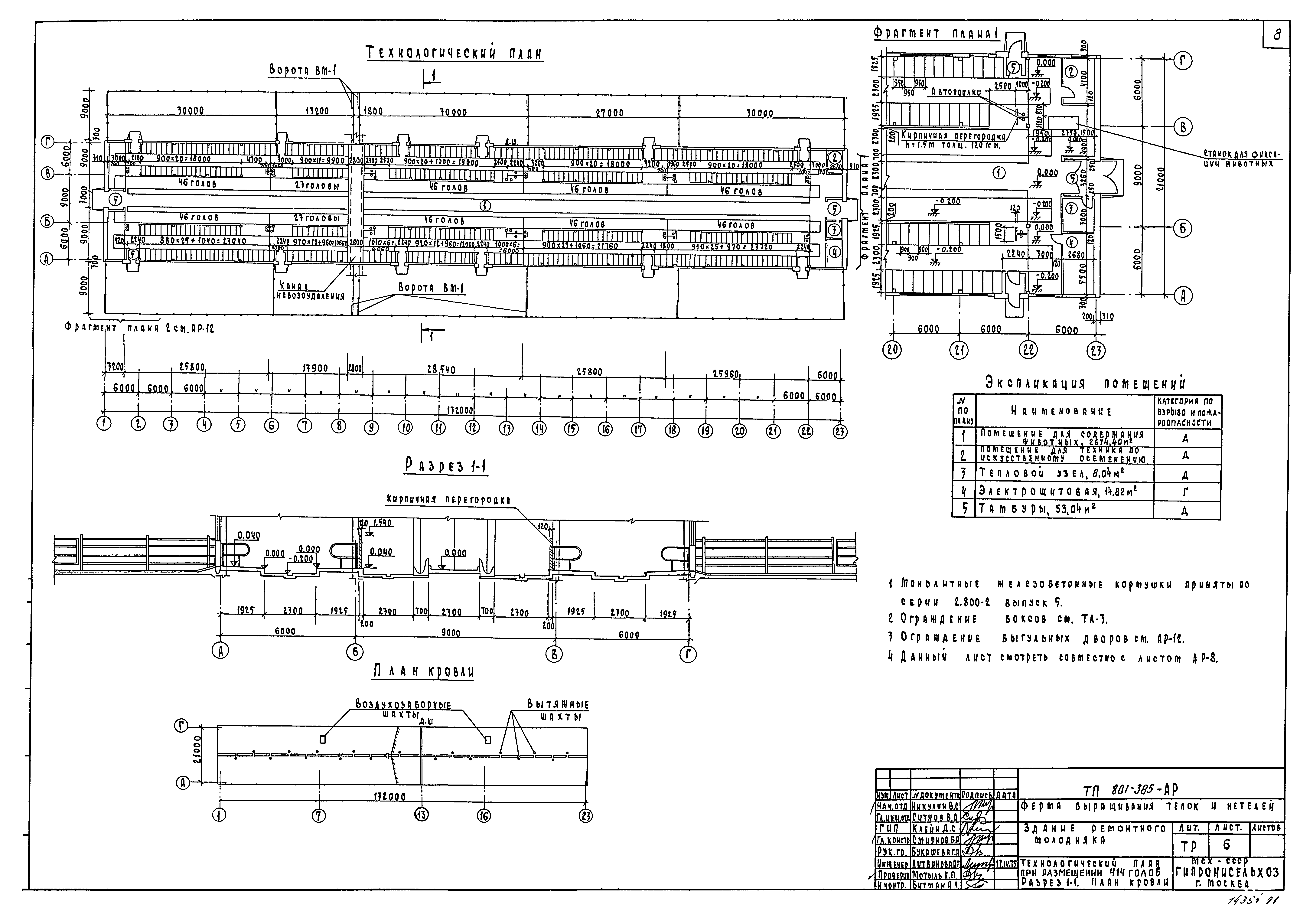
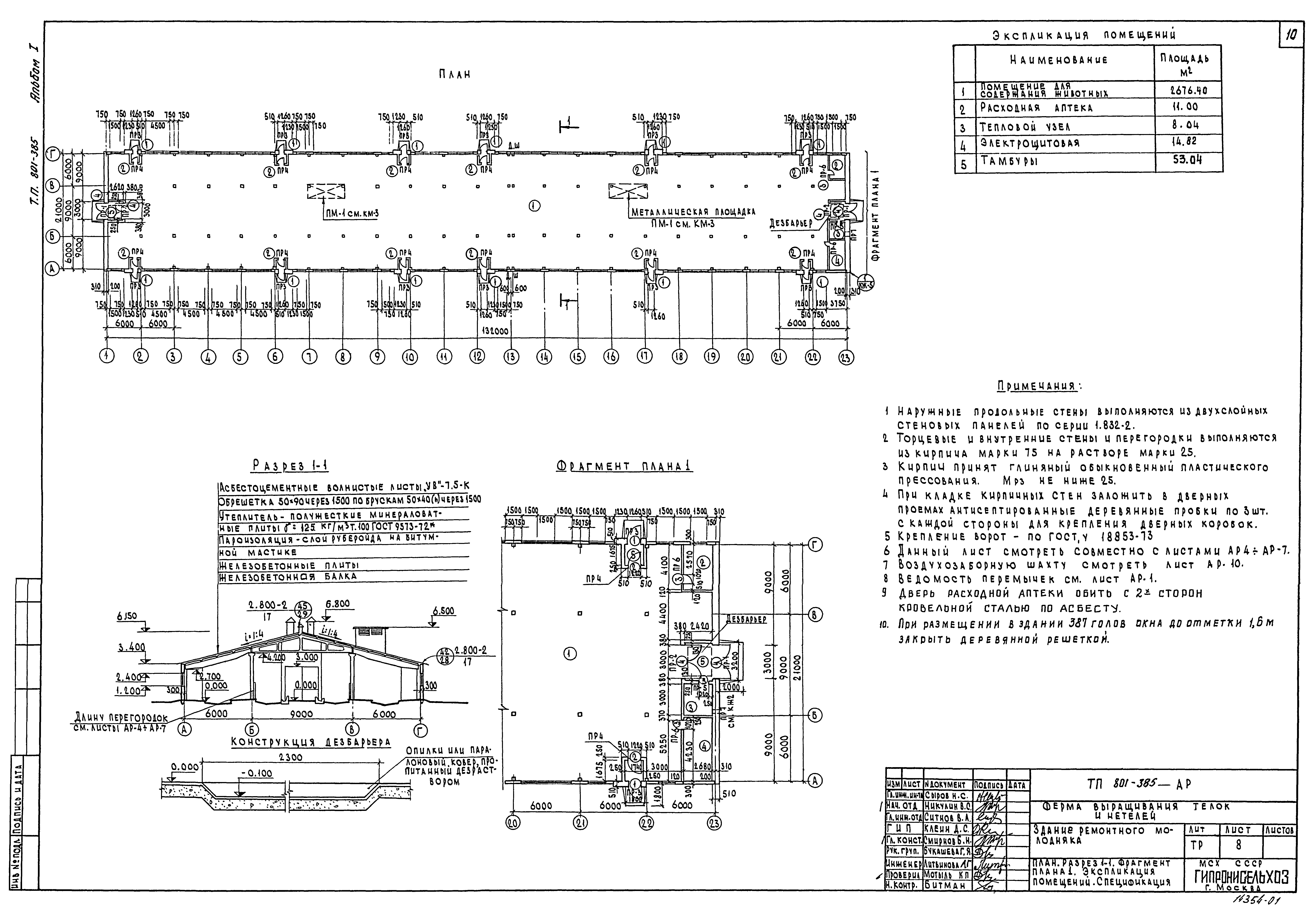
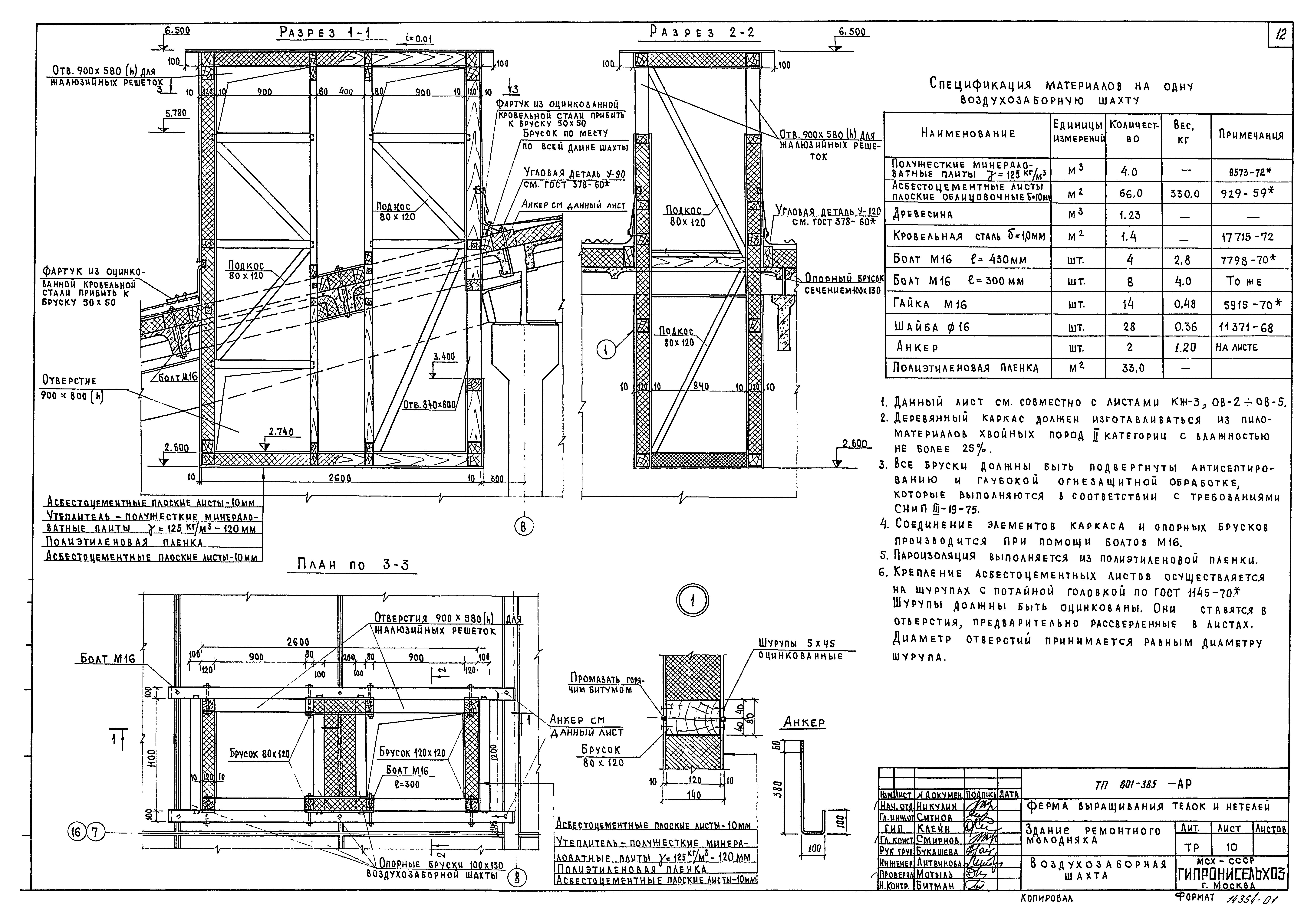
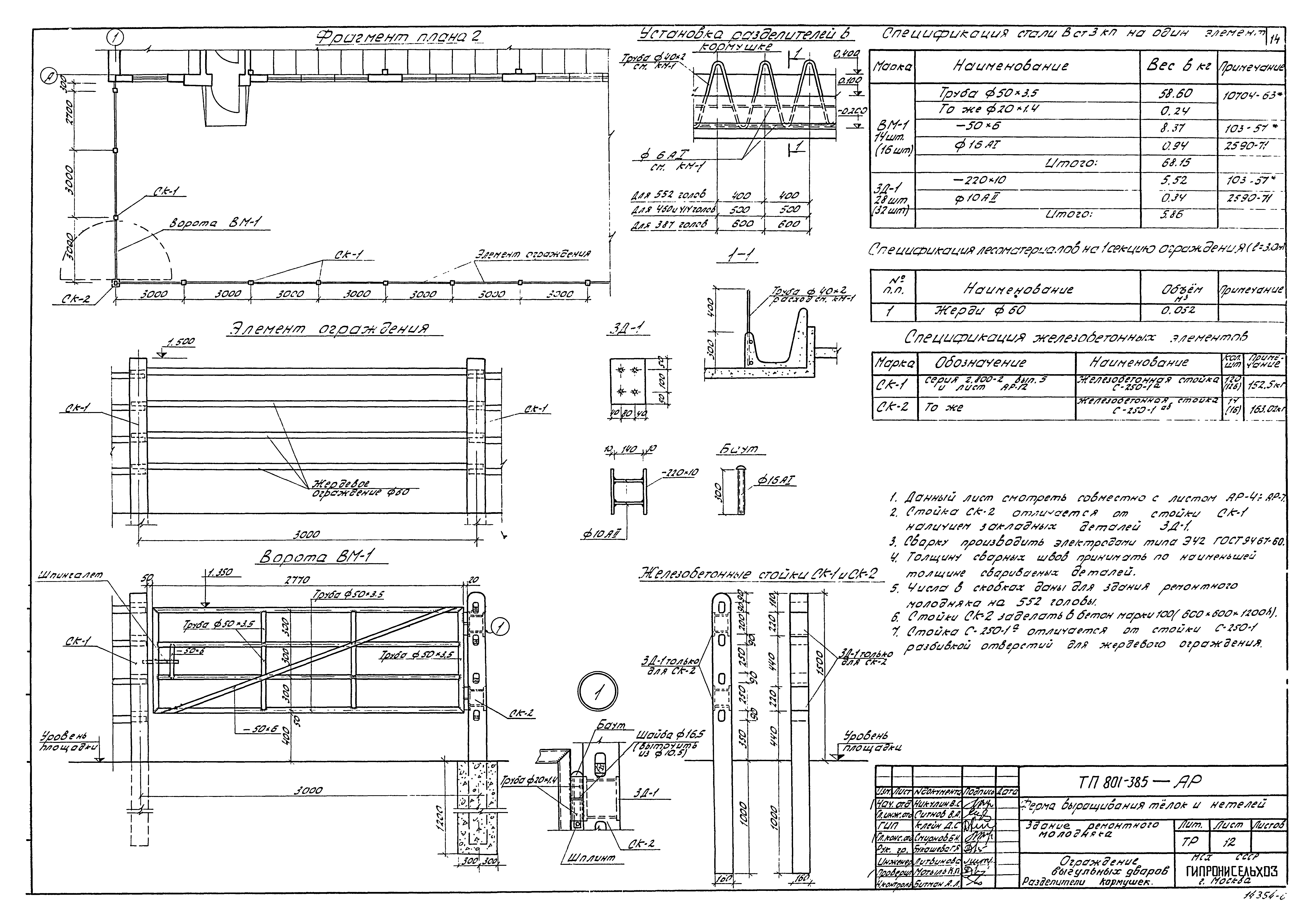
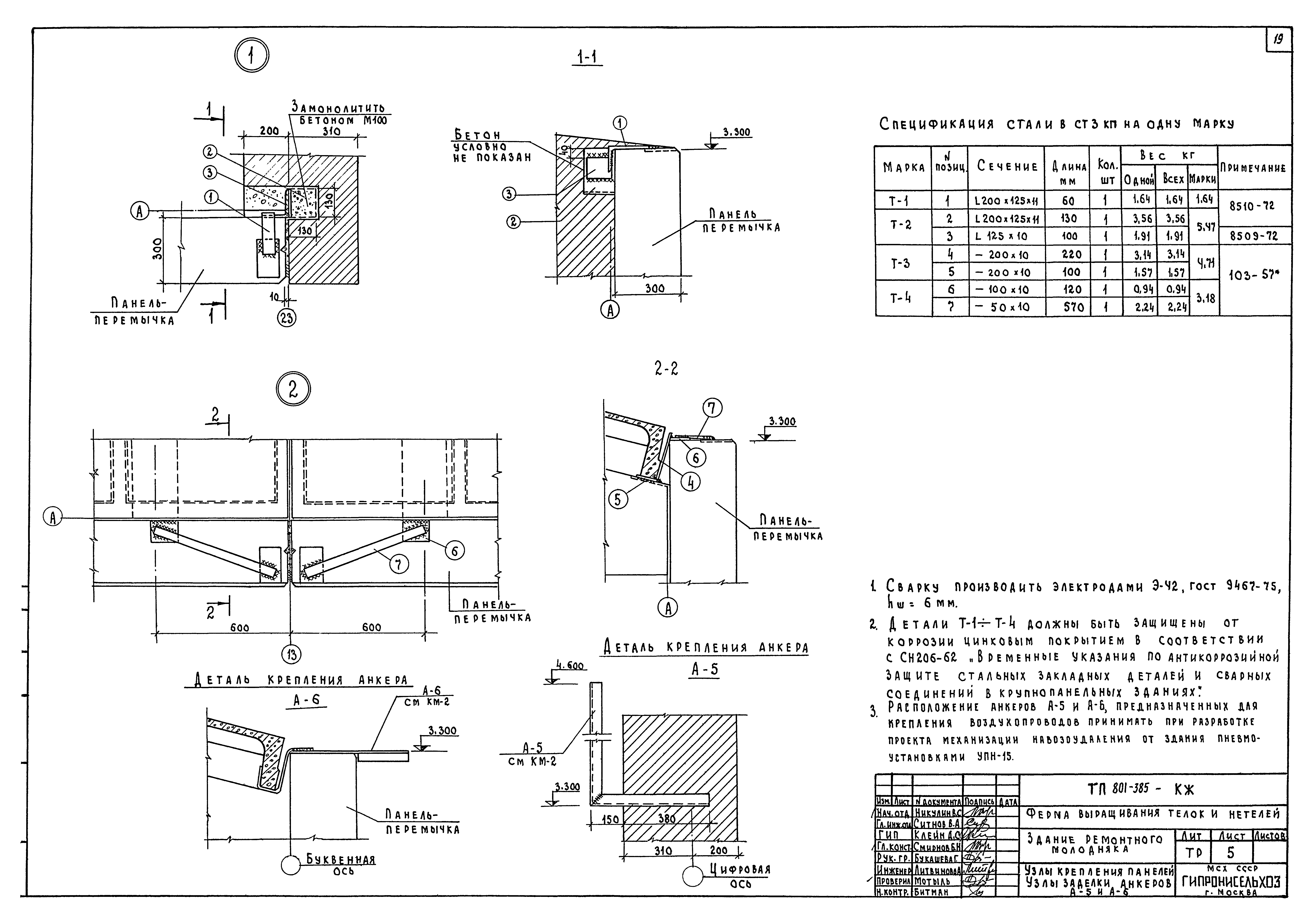
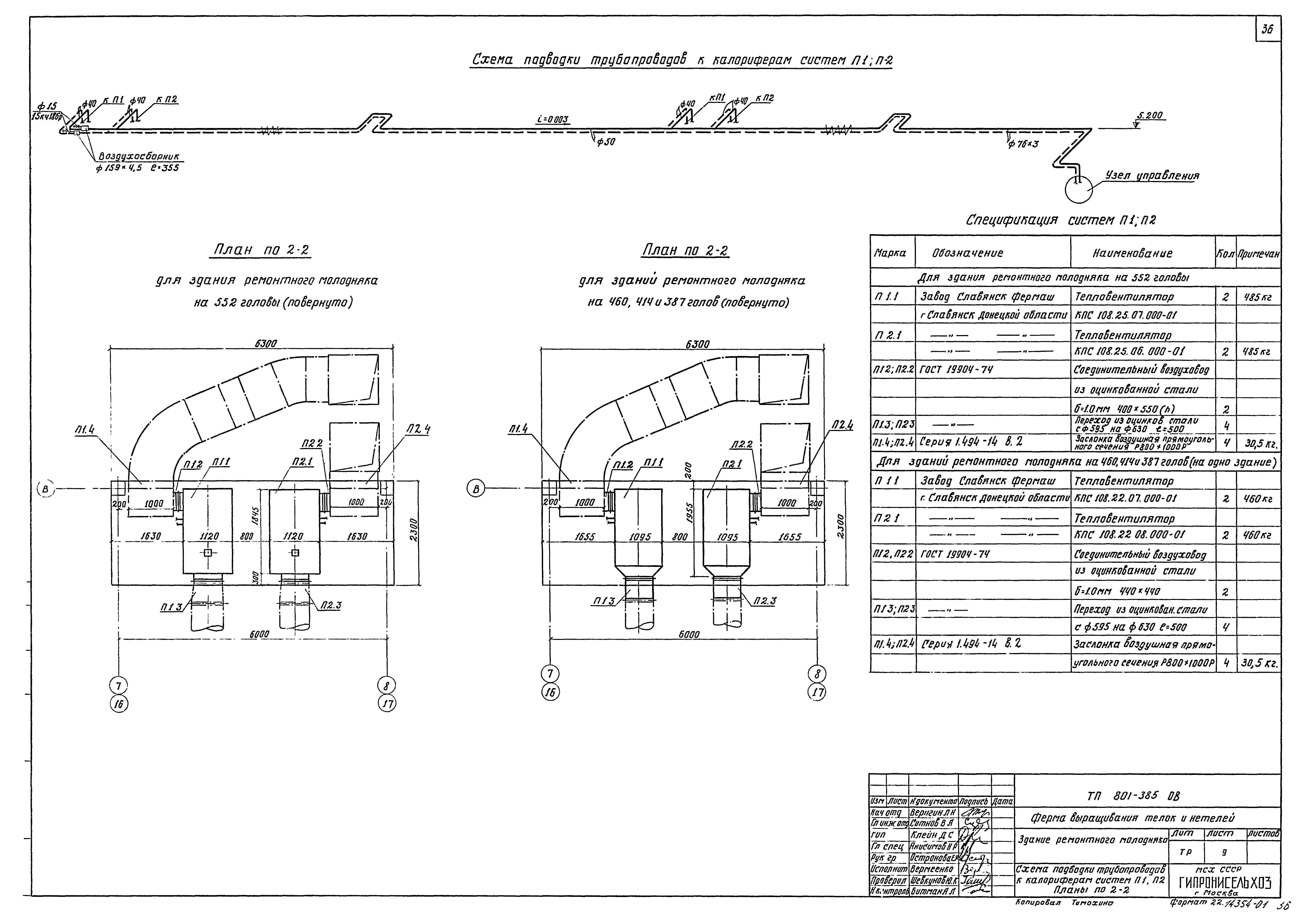
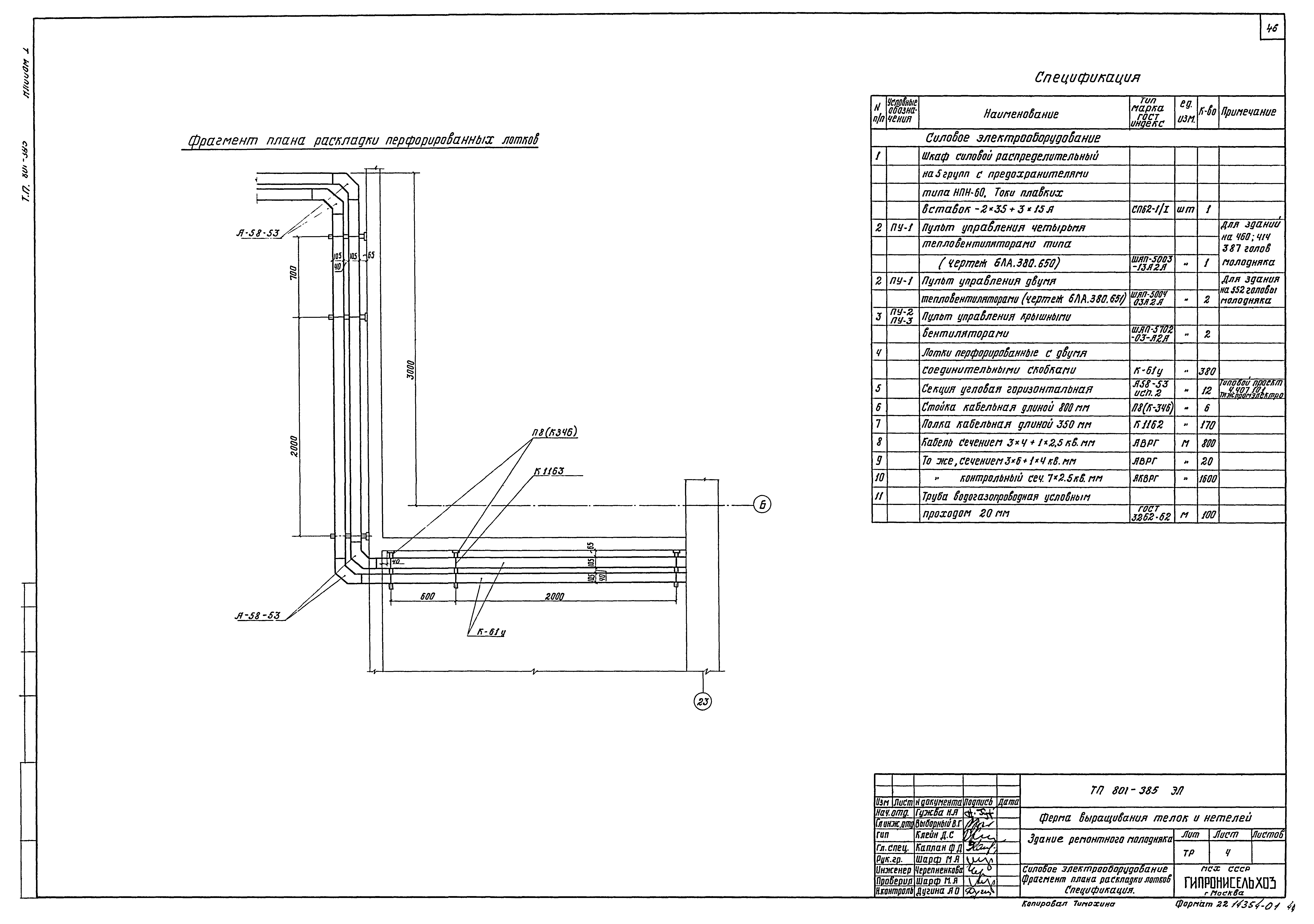
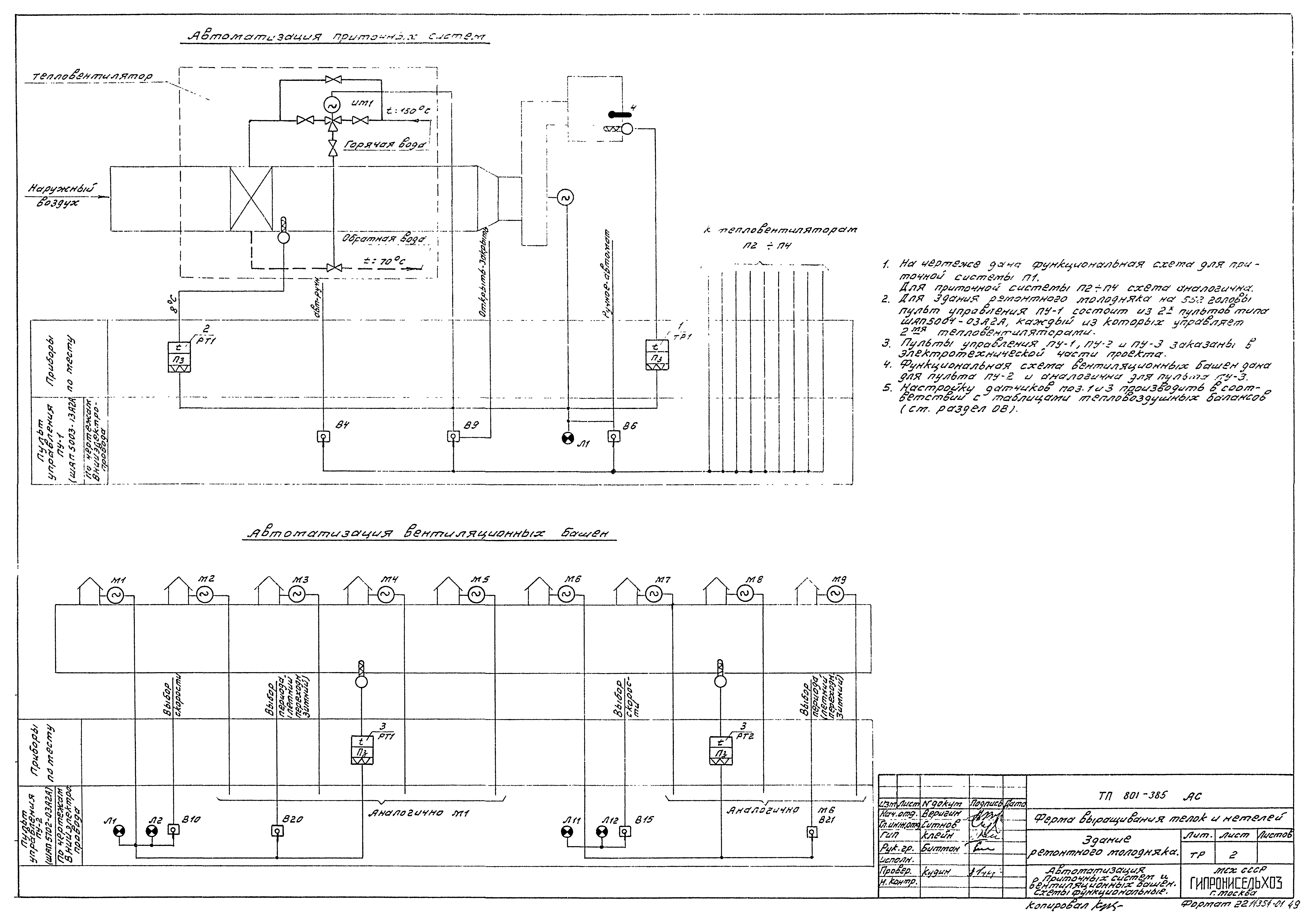
Скачать Типовой проект 801-385 Альбом I. Архитектурно-строительные, технологические, санитарно-технические, электротехнические чертежиДата актуализации: 01.01.2021 Типовой проект 801-385
Альбом I. Архитектурно-строительные, технологические, санитарно-технические, электротехнические чертежи| Обозначение: | Типовой проект 801-385 | | Обозначение англ: | 801-385 | | Статус: | действует | | Название рус.: | Альбом I. Архитектурно-строительные, технологические, санитарно-технические, электротехнические чертежи | | Дата добавления в базу: | 05.05.2017 | | Дата актуализации: | 01.01.2021 | | Дата введения: | 30.12.1976 | | Разработан: | Гипронисельхоз Минсельхоза СССР
| | Утверждён: | 12.03.1976 Минсельхоз СССР (USSR Minselkhoz )
| | Издан: | ЦИТП Госстроя СССР (CITP, Gosstroy (USSR) 1977 г. )
|
                                                   
|