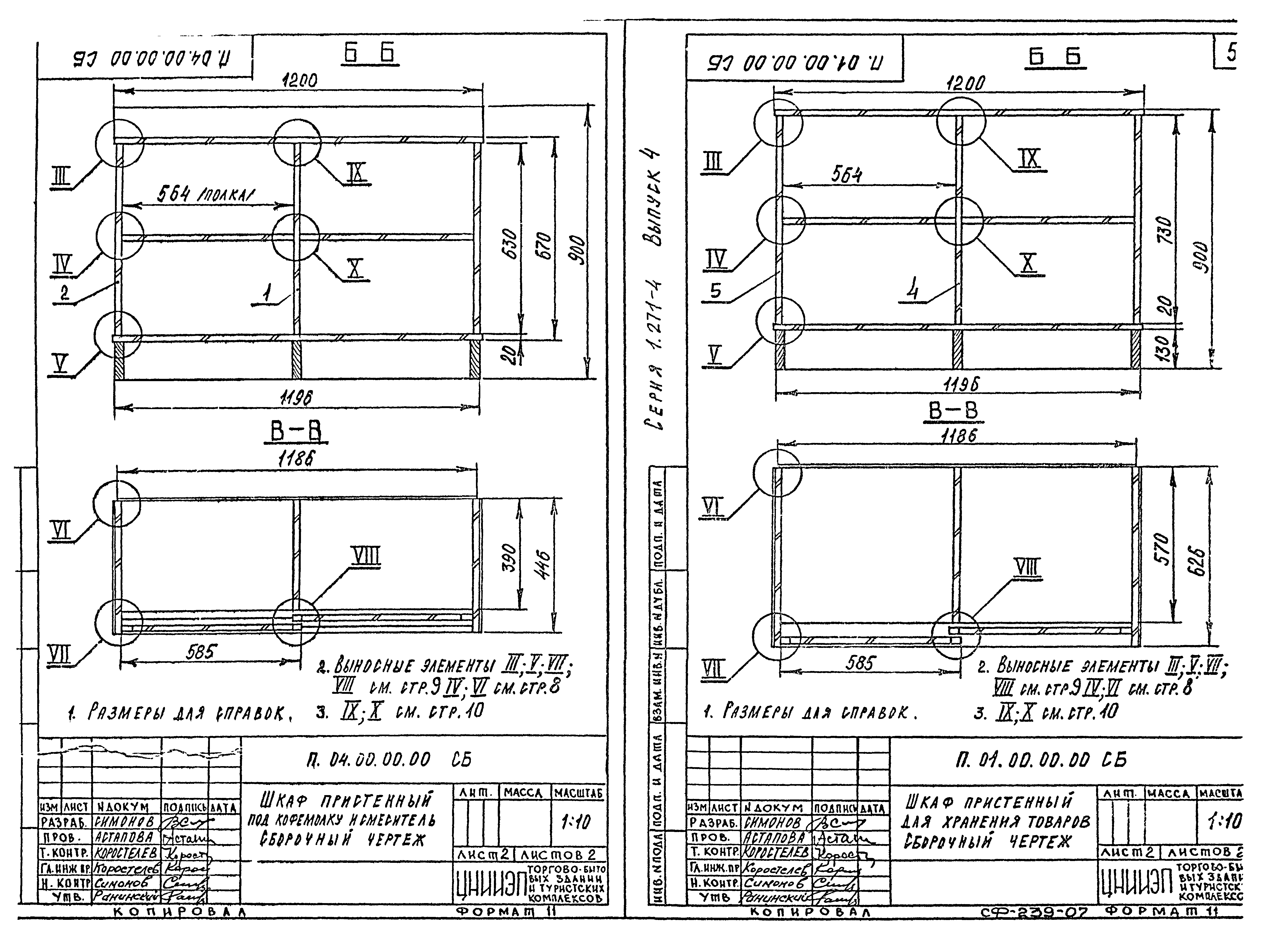
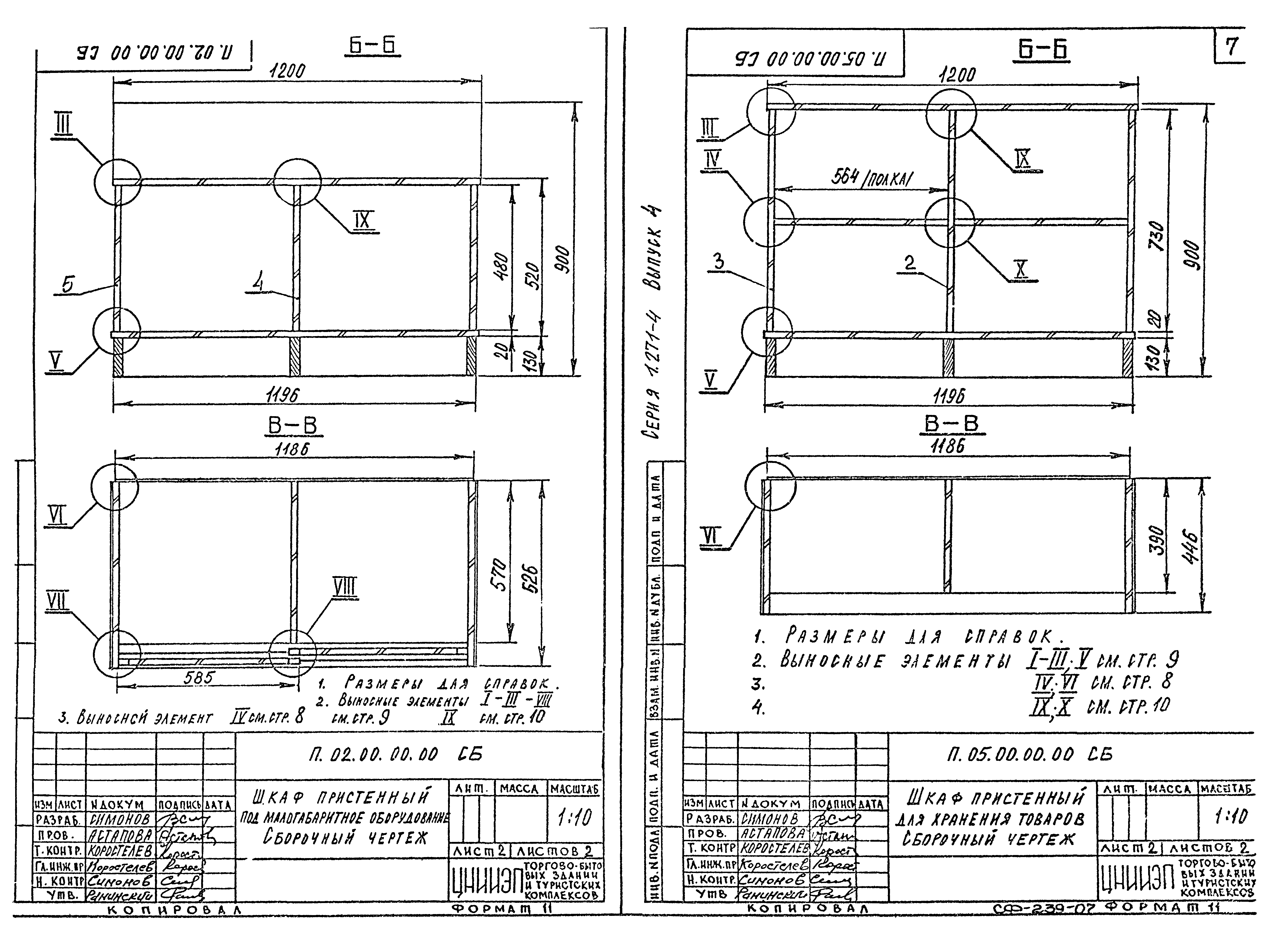
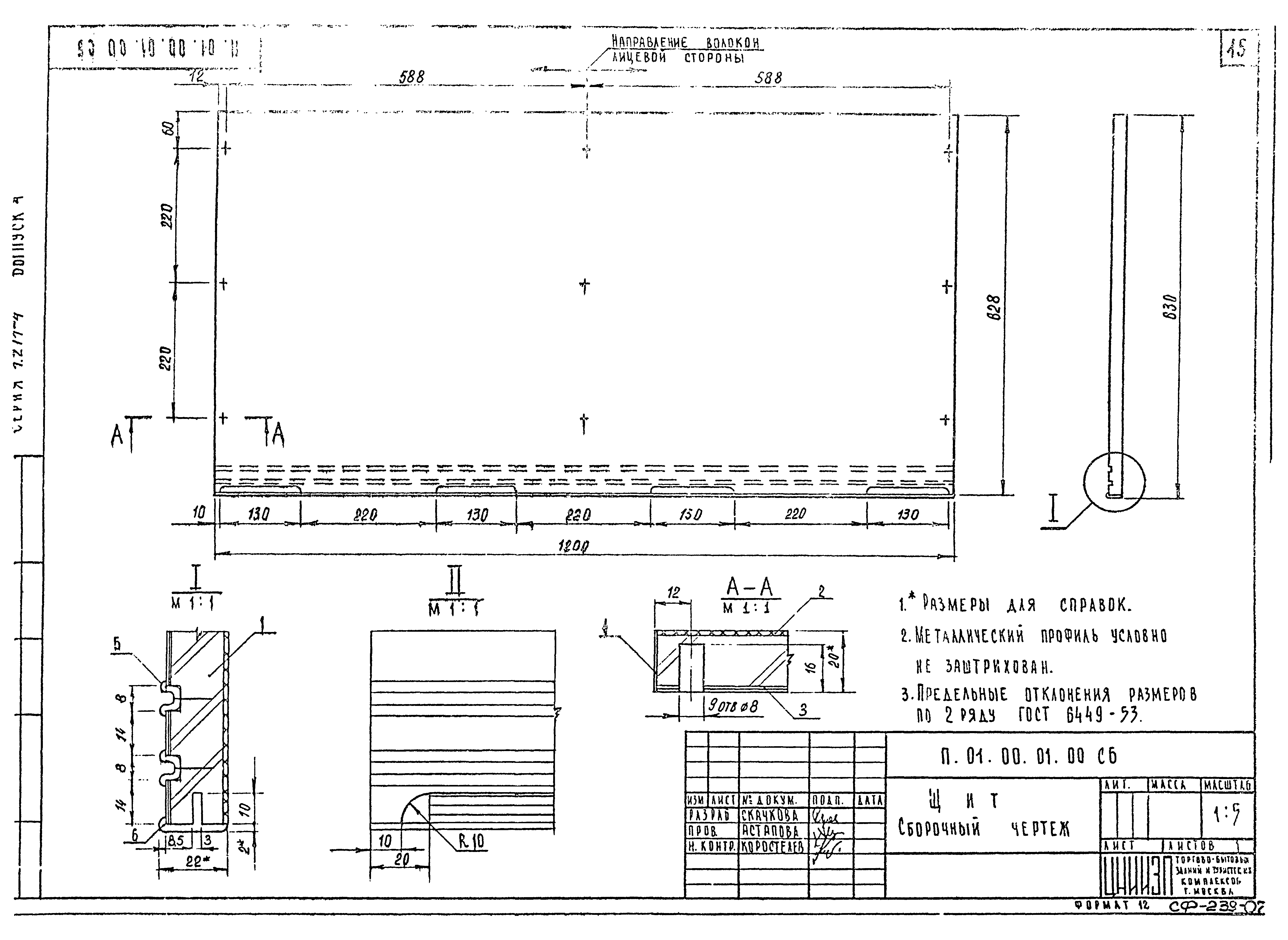
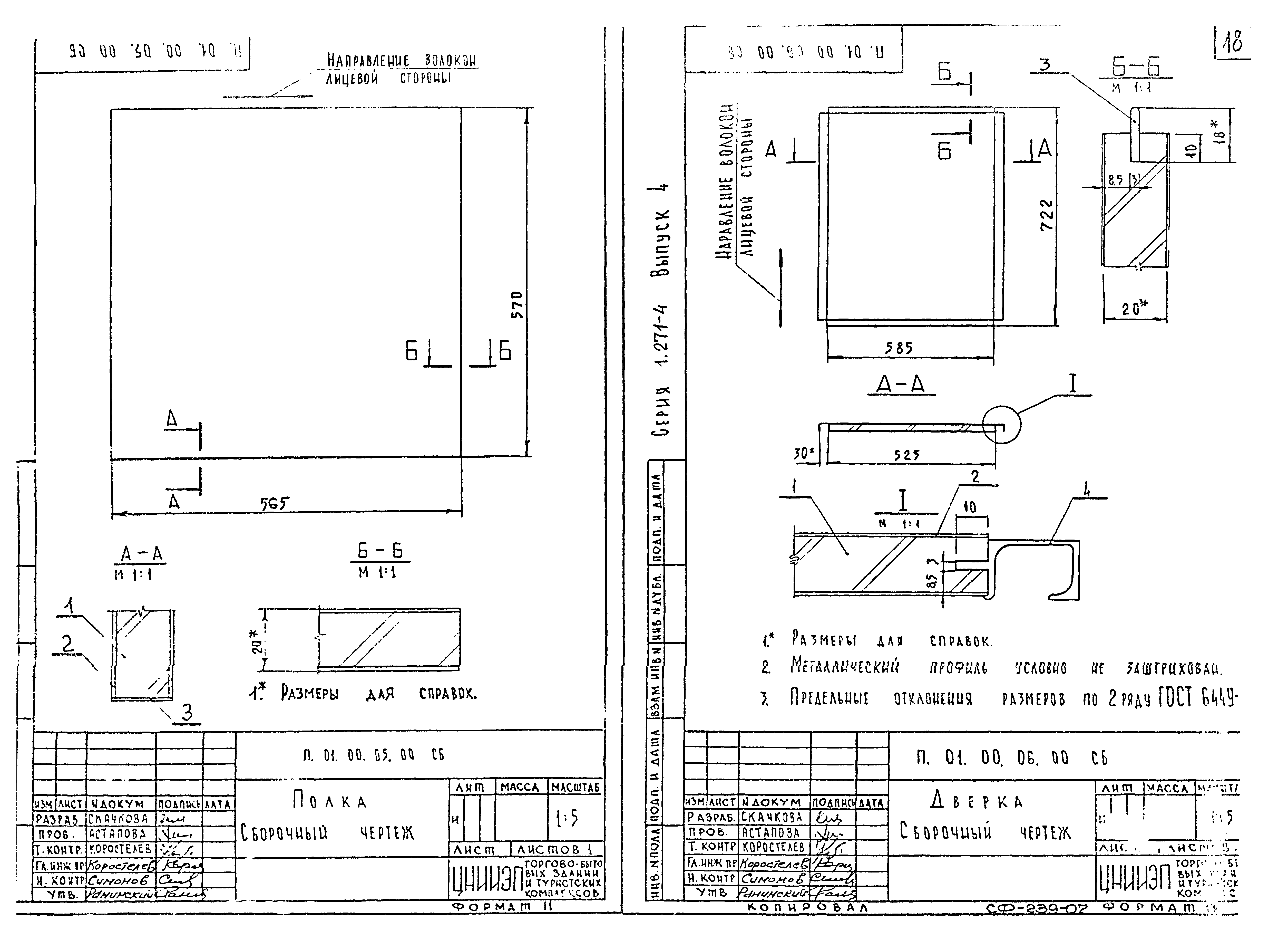
Скачать Серия 1.271-4 Выпуск 4. Пристенное оборудование для баров, кафетериев, буфетов. Сборочные. СпецификацииДата актуализации: 01.01.2021 Серия 1.271-4
Выпуск 4. Пристенное оборудование для баров, кафетериев, буфетов. Сборочные. Спецификации| Обозначение: | Серия 1.271-4 | | Обозначение англ: | Series 1.271-4 | | Статус: | отменен | | Название рус.: | Выпуск 4. Пристенное оборудование для баров, кафетериев, буфетов. Сборочные. Спецификации | | Дата добавления в базу: | 05.05.2017 | | Дата актуализации: | 01.01.2021 | | Дата введения: | 09.08.1976 | | Дата окончания срока действия: | 01.10.2000 | | Разработан: | ЦНИИЭП торгово-бытовых зданий и торговых комплексов
| | Утверждён: | 15.07.1976 Госгражданстрой (Gosgrazhdanstroy 4-2206)
| | Издан: | ЦИТП Госстроя СССР (CITP, Gosstroy (USSR) 1977 г. )
| | Заменяет собой: | |
                                           
|