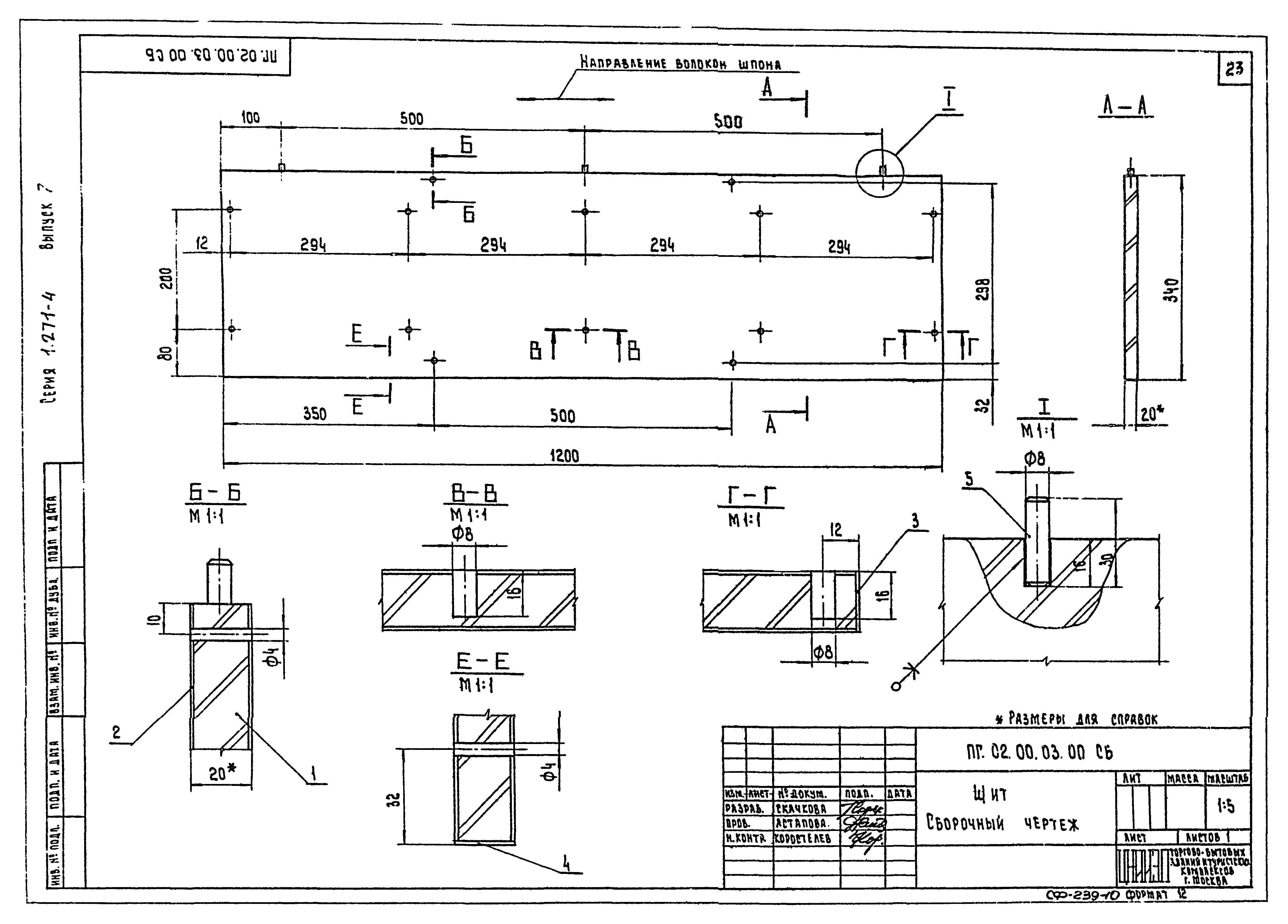
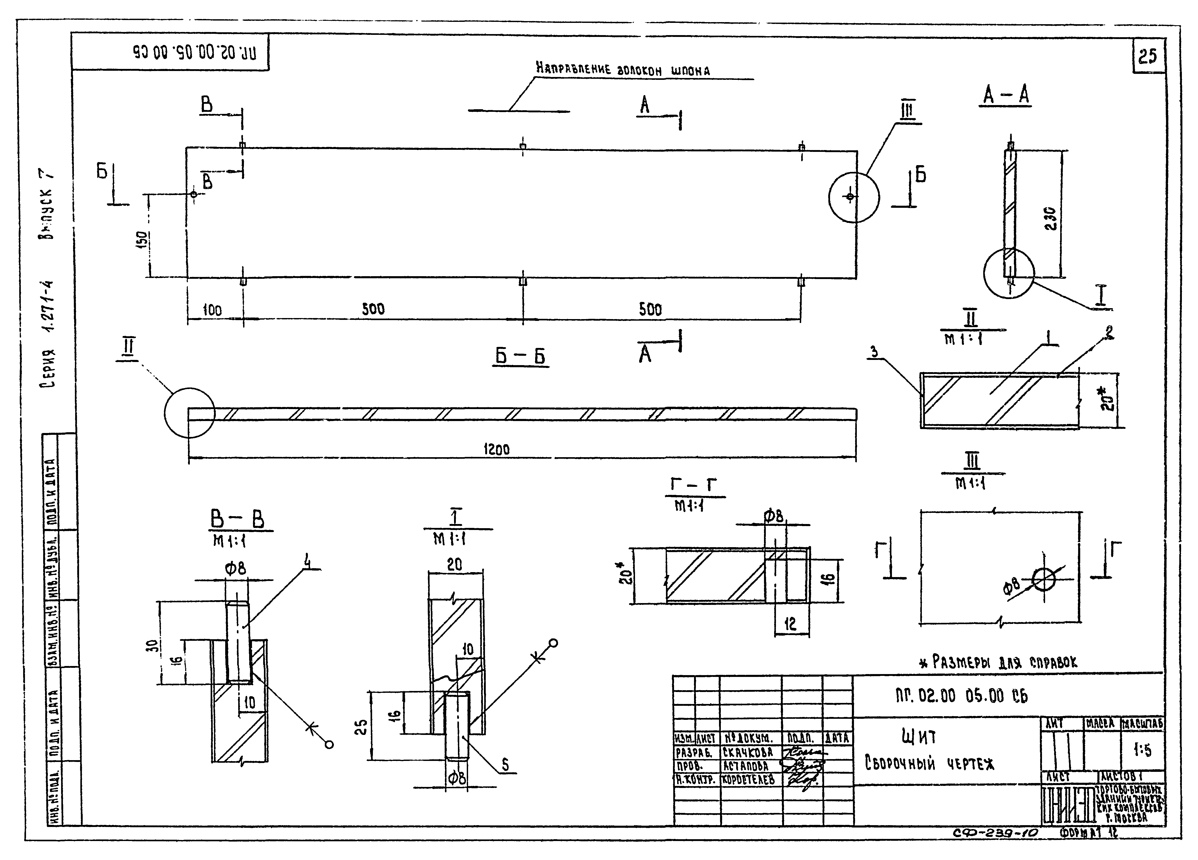
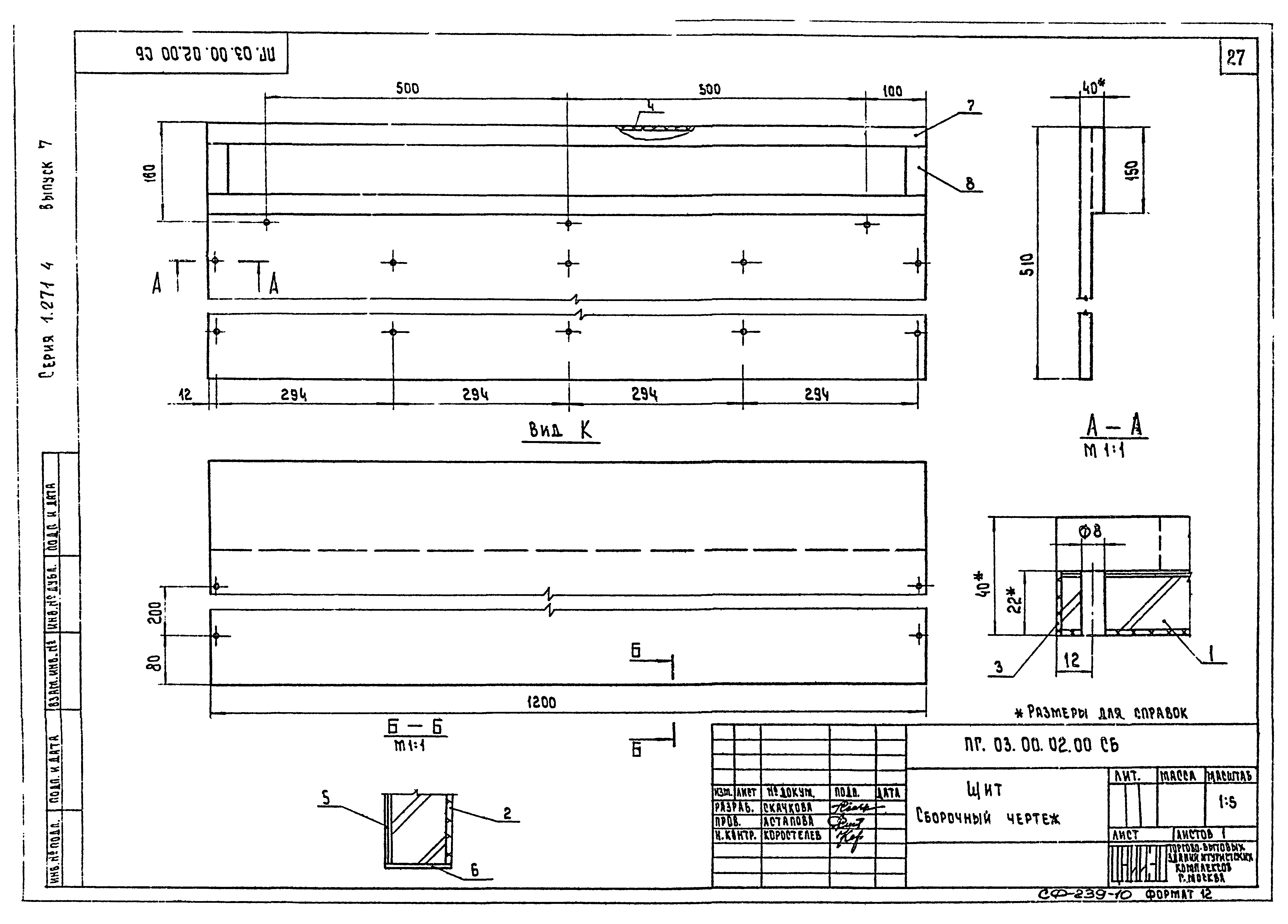
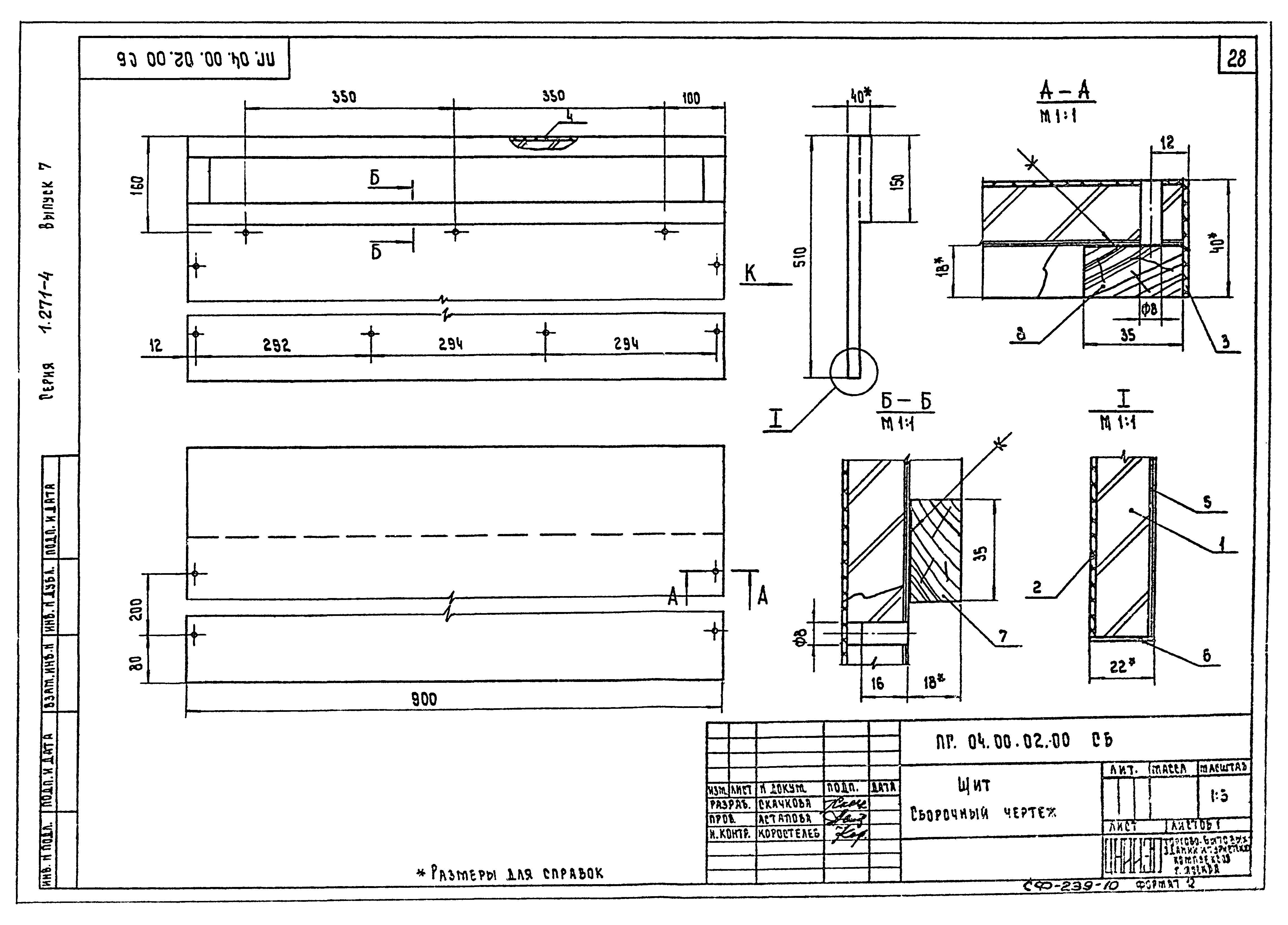
Скачать Серия 1.271-4 Выпуск 7. Прилавки для гардеробов. Сборочные. СпецификацииДата актуализации: 01.01.2021
|
| Обозначение: | Серия 1.271-4 |
| Обозначение англ: | Series 1.271-4 |
| Статус: | отменен |
| Название рус.: | Выпуск 7. Прилавки для гардеробов. Сборочные. Спецификации |
| Дата добавления в базу: | 05.05.2017 |
| Дата актуализации: | 01.01.2021 |
| Дата введения: | 09.08.1976 |
| Дата окончания срока действия: | 01.10.2000 |
| Разработан: | ЦНИИЭП торгово-бытовых зданий и торговых комплексов |
| Утверждён: | 15.07.1976 Госгражданстрой (Gosgrazhdanstroy 4-2206) |
| Издан: | ЦИТП Госстроя СССР (CITP, Gosstroy (USSR) 1977 г. ) |
| Заменяет собой: |
|









































