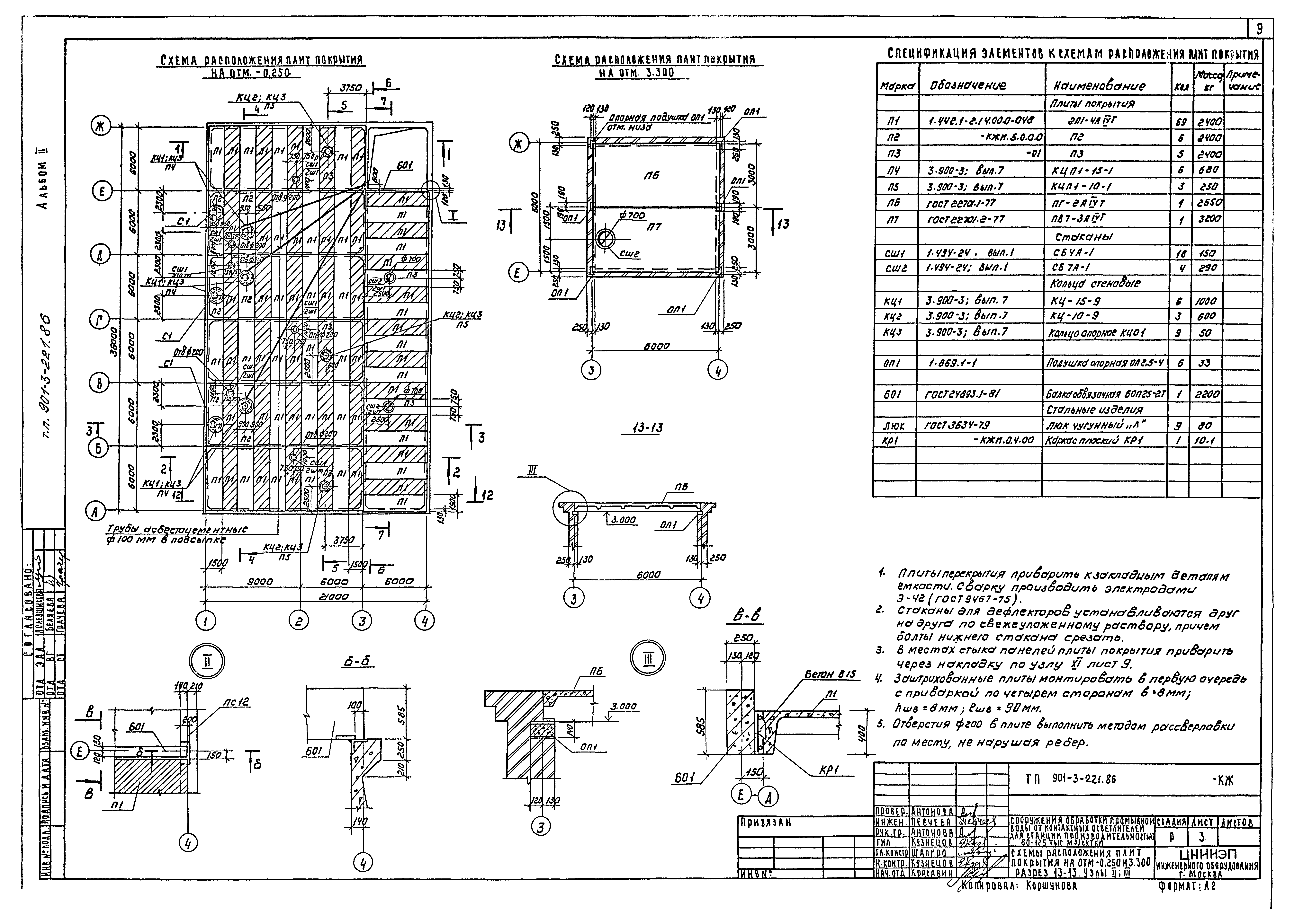
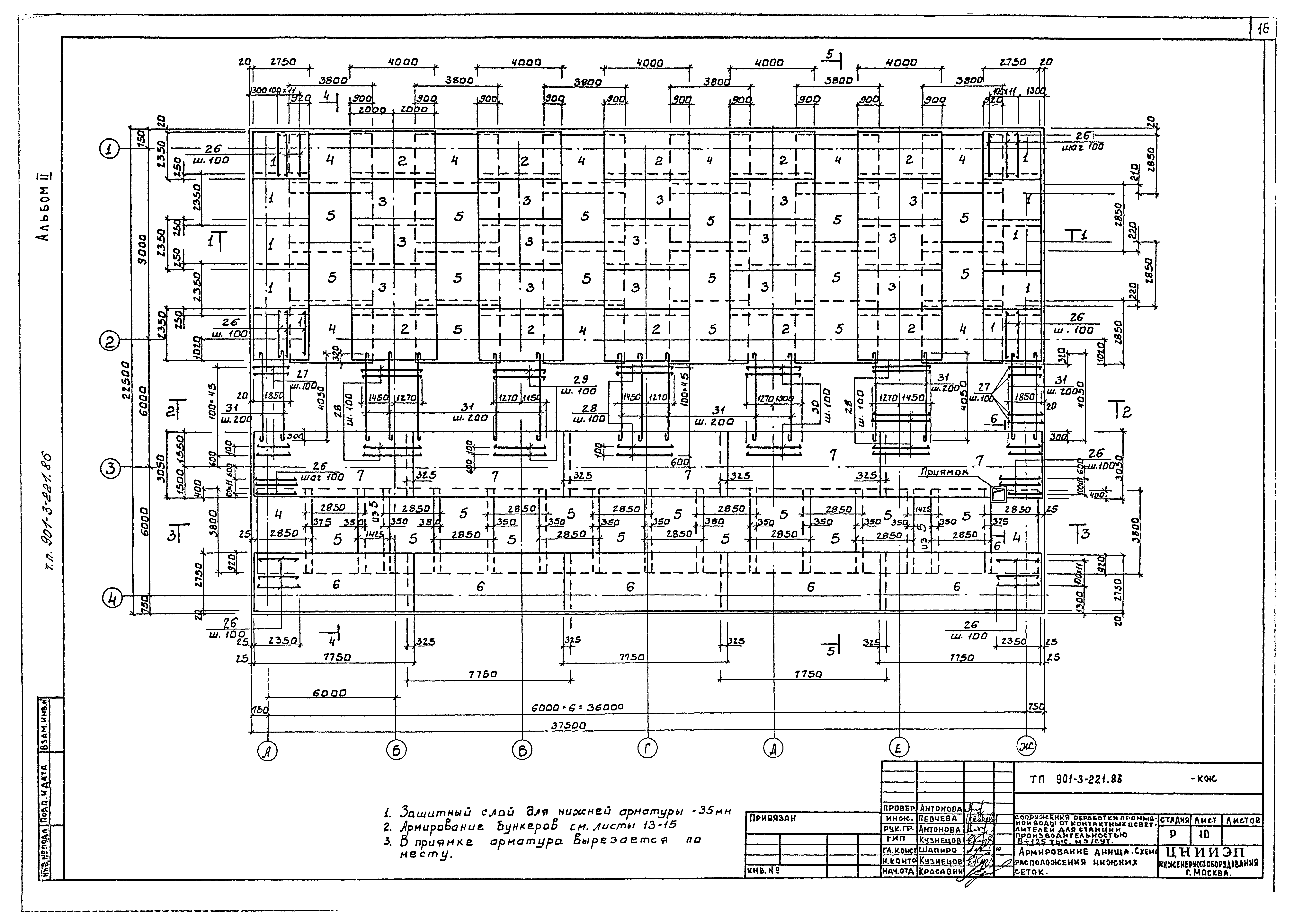
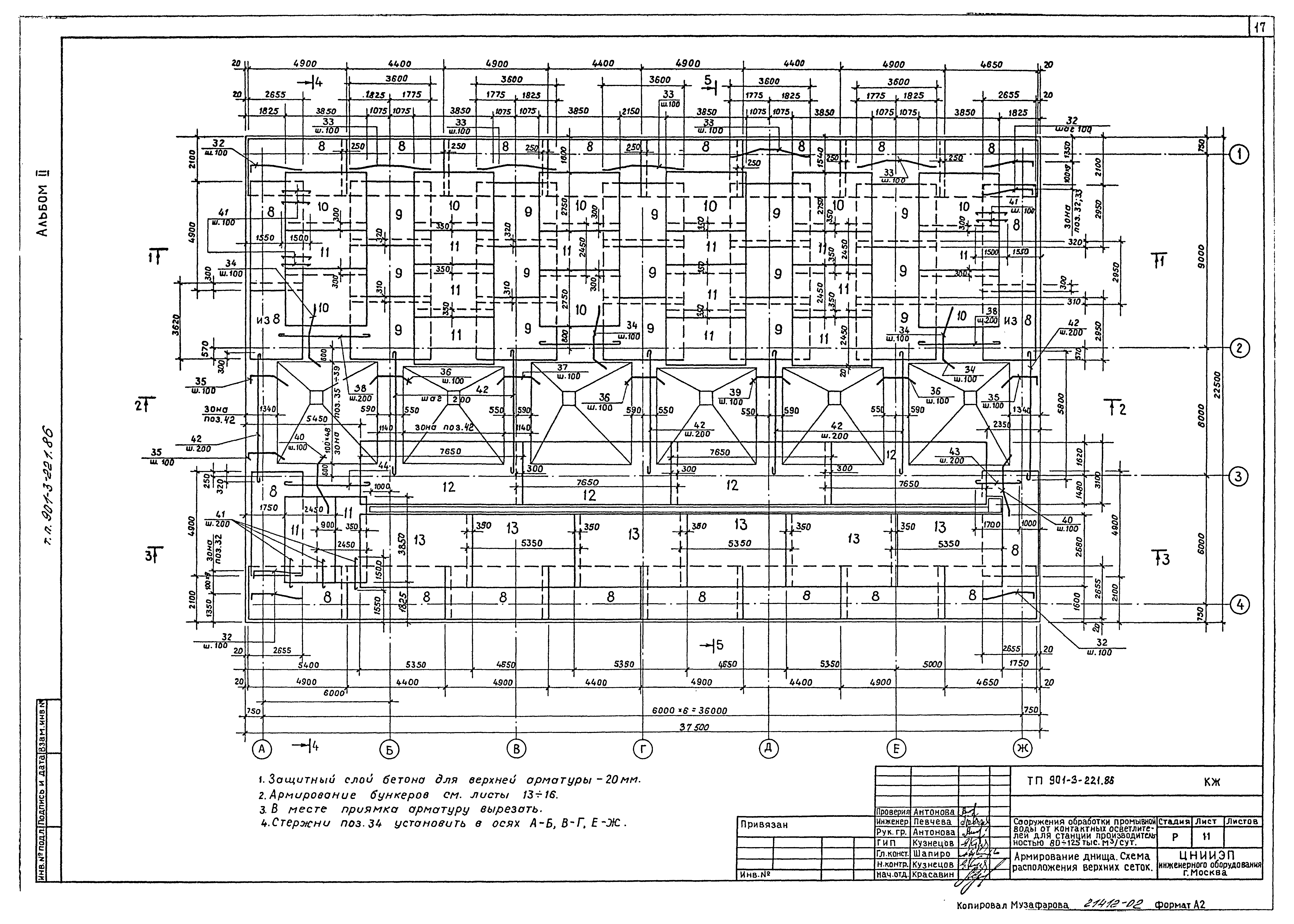
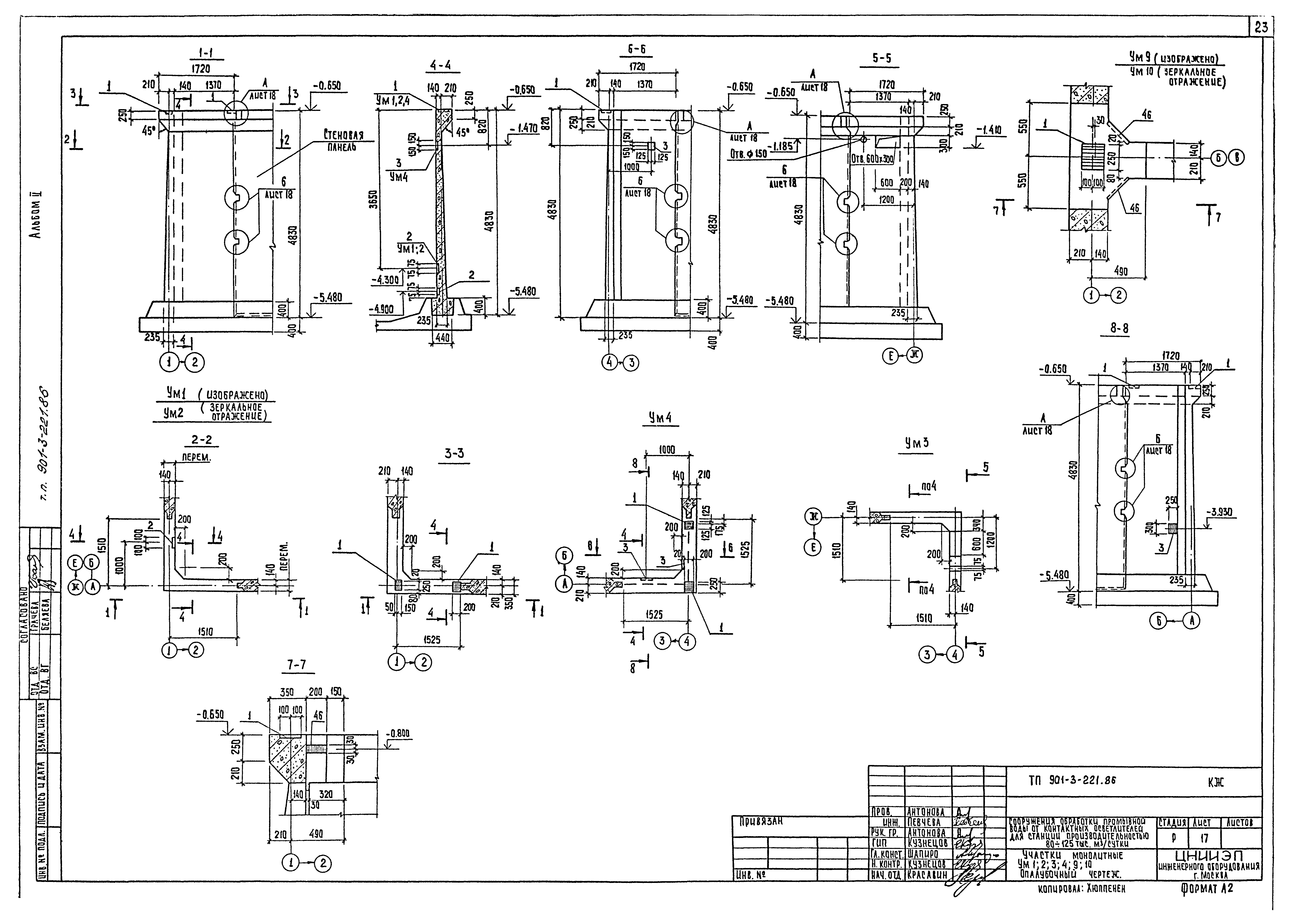
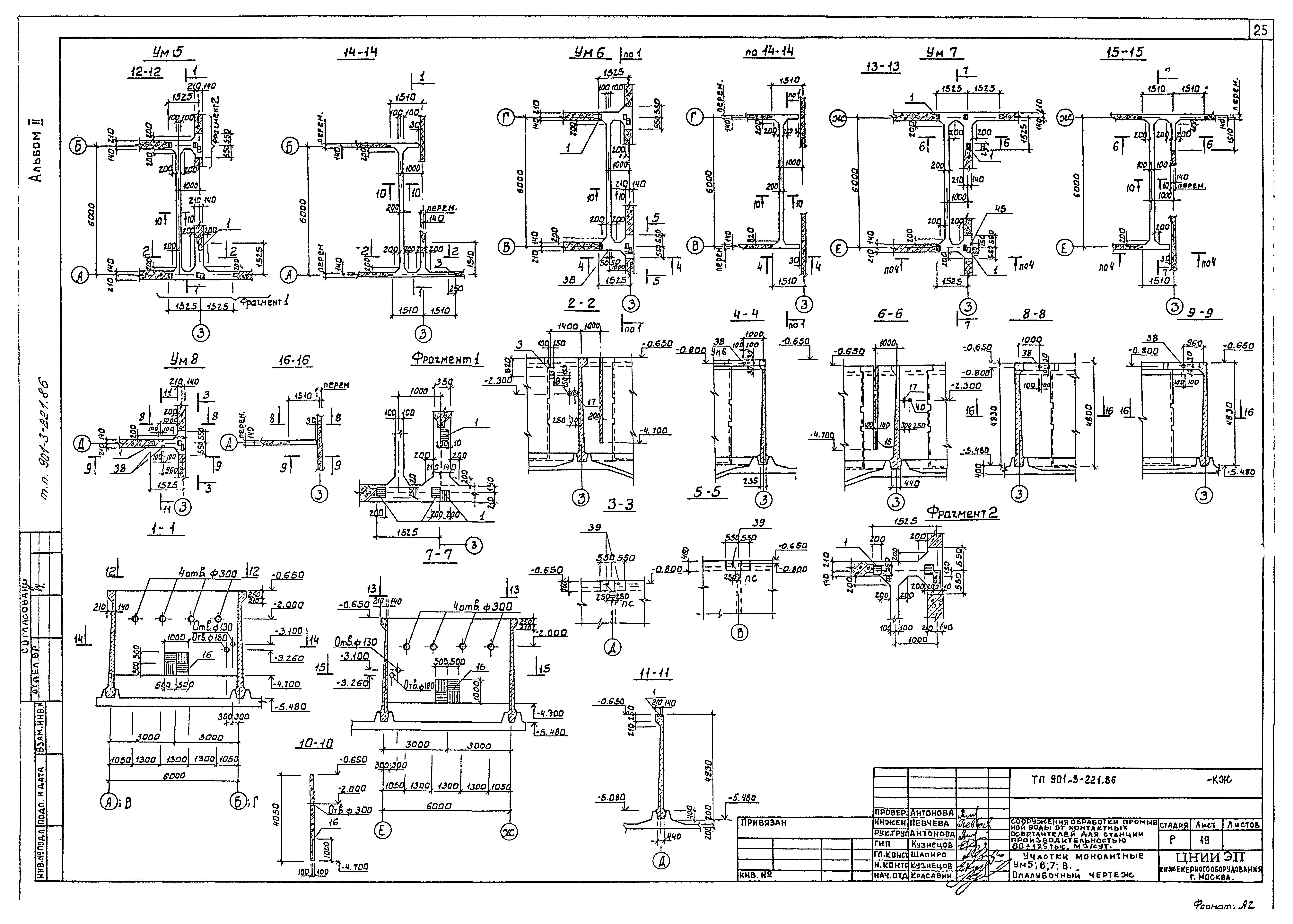
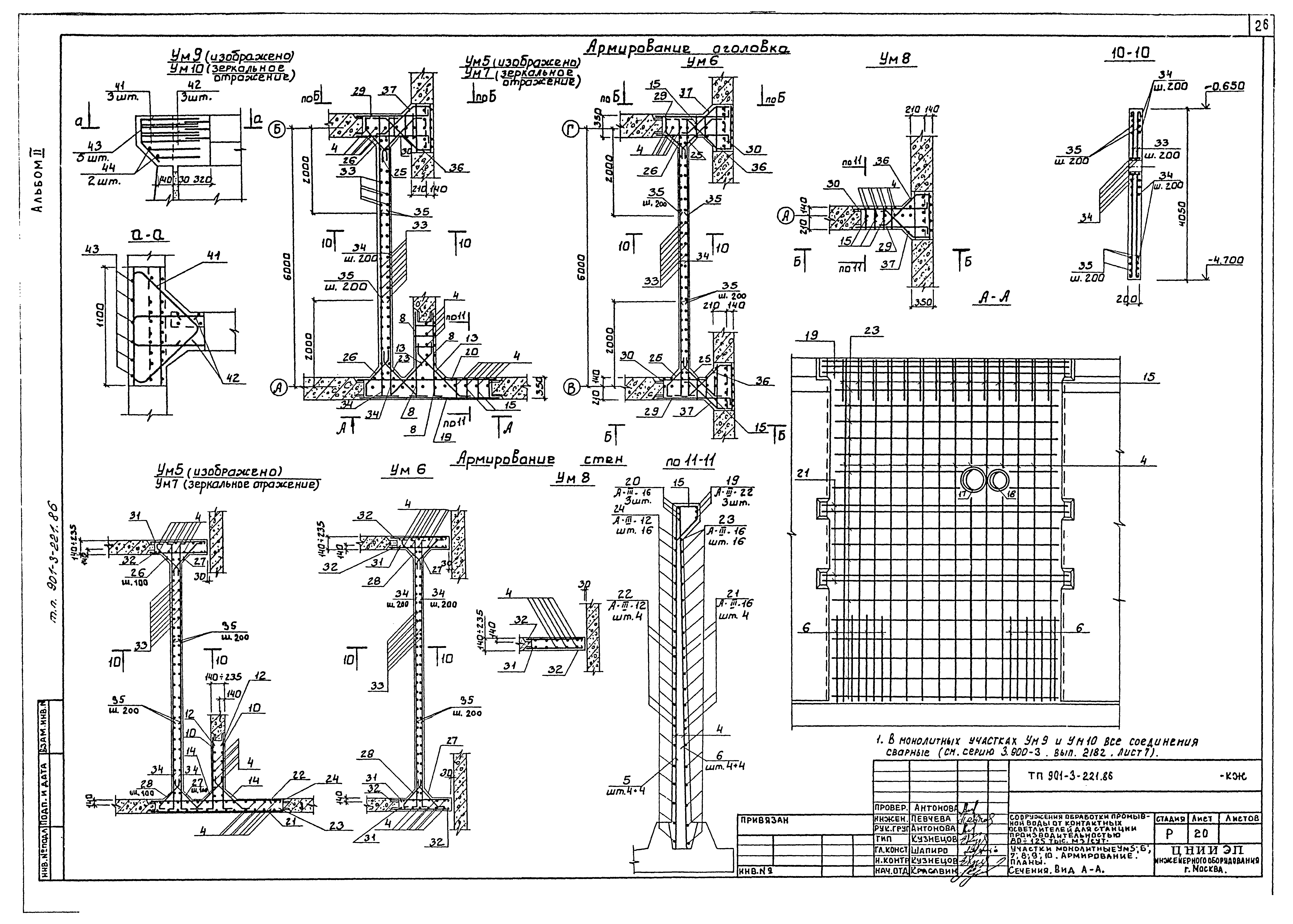
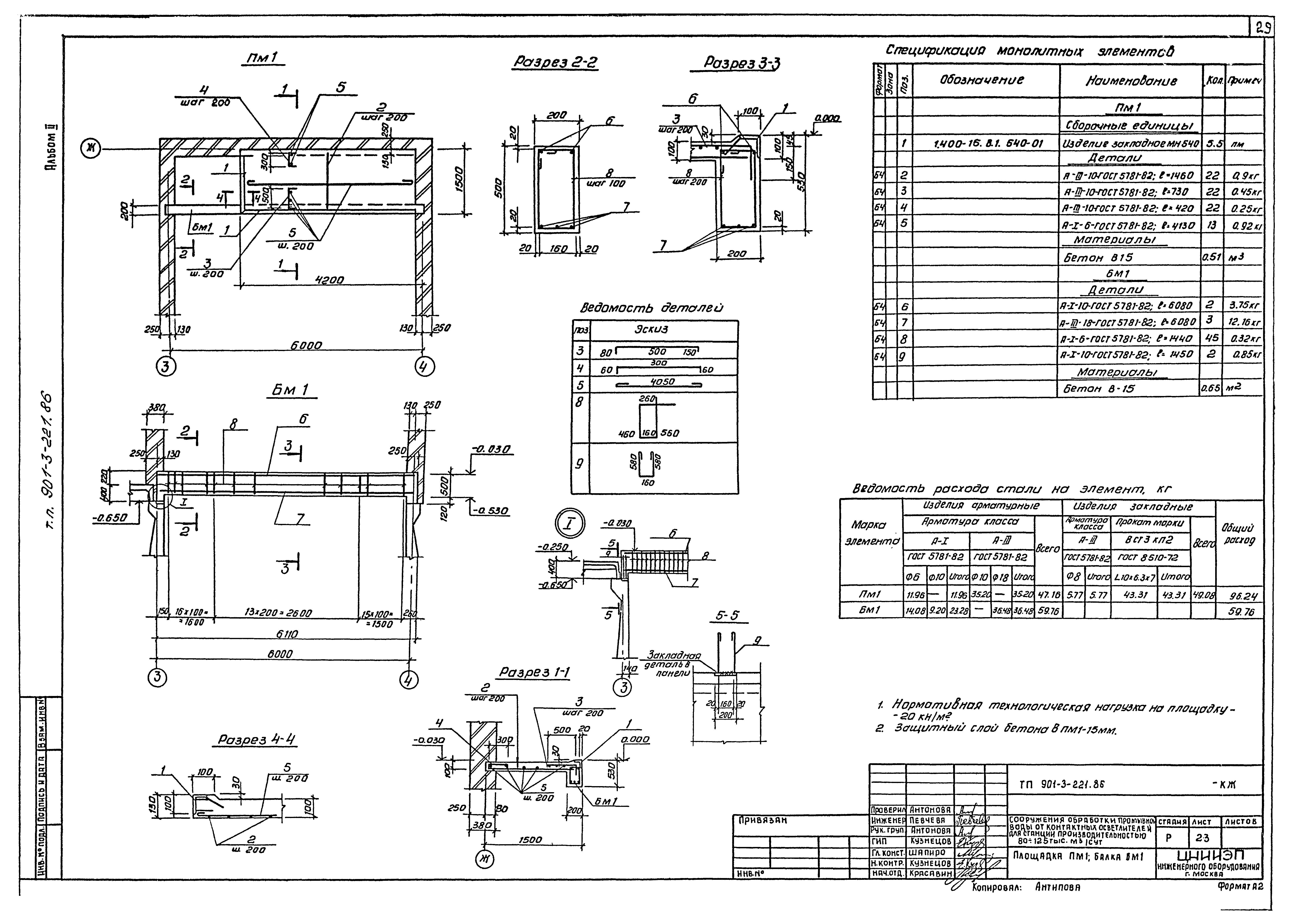
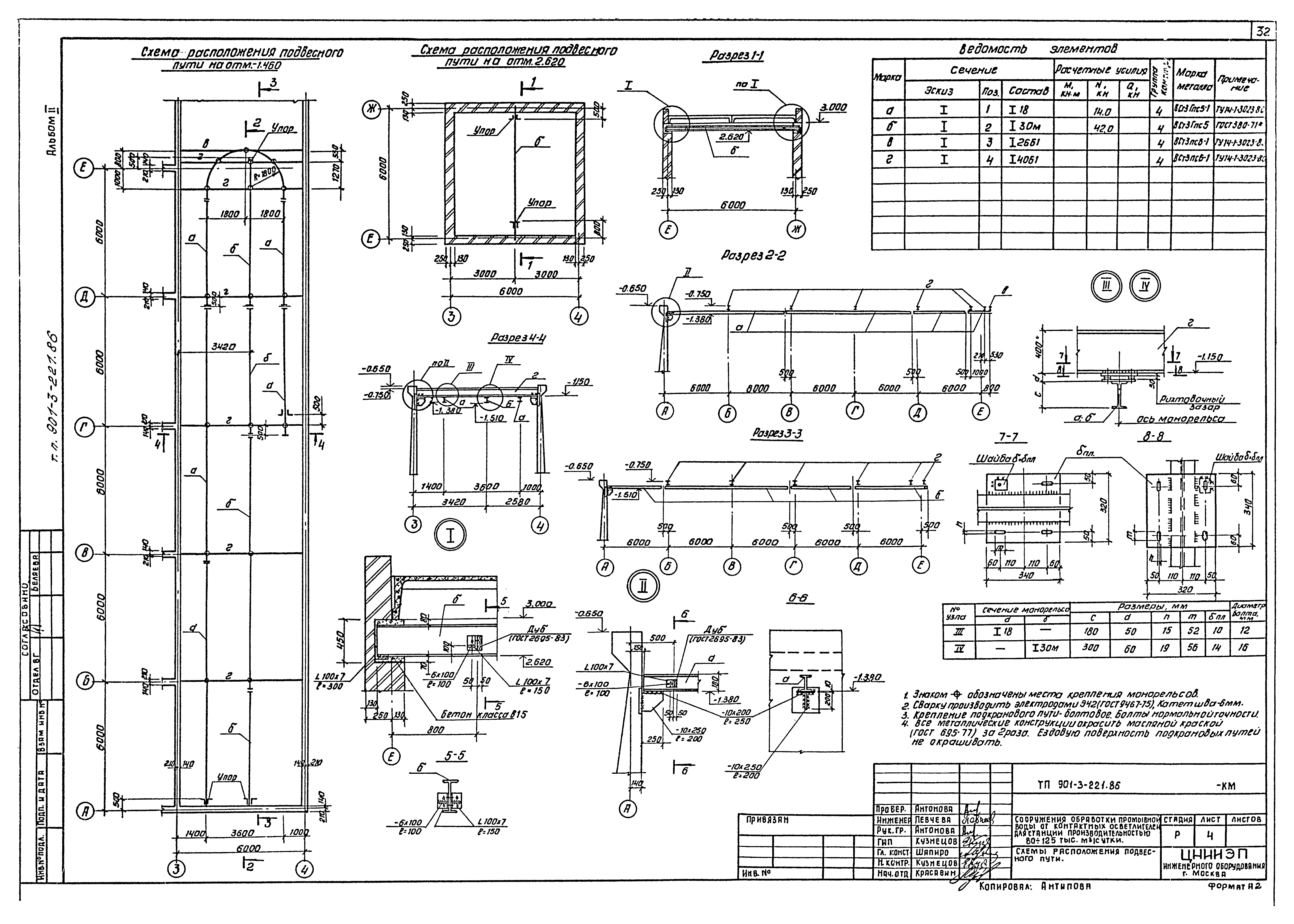
Скачать Типовой проект 901-3-221.86 Альбом II. Архитектурно-строительные решения, технологическая, сантехническая, электротехническая частиДата актуализации: 01.01.2021 Типовой проект 901-3-221.86
Альбом II. Архитектурно-строительные решения, технологическая, сантехническая, электротехническая части| Обозначение: | Типовой проект 901-3-221.86 | | Обозначение англ: | 901-3-221.86 | | Статус: | не определен законодательством | | Название рус.: | Альбом II. Архитектурно-строительные решения, технологическая, сантехническая, электротехническая части | | Дата добавления в базу: | 05.05.2017 | | Дата актуализации: | 01.01.2021 | | Дата введения: | 26.03.1986 | | Дата окончания срока действия: | 30.06.2003 | | Разработан: | ЦНИИЭП
| | Утверждён: | 06.05.1980 Госгражданстрой (Gosgrazhdanstroy 120)
| | Издан: | ЦИТП Госстроя СССР (CITP, Gosstroy (USSR) 1986 г. )
|
                                                                
|