Скачать А 994-668 Р Альбом деталей и элементов герметических зданий и сооружений угольных шахтДата актуализации: 01.01.2021
|
| Обозначение: | А 994-668 Р |
| Обозначение англ: | А 994-668 Р |
| Статус: | справочные материалы, мп, тпр |
| Название рус.: | Альбом деталей и элементов герметических зданий и сооружений угольных шахт |
| Дата добавления в базу: | 05.05.2017 |
| Дата актуализации: | 01.01.2021 |
| Область применения: | В альбоме приведены схемы герметизации надшахтных зданий и вентиляционных сооружений надземных комплексов угольных шахт, а также схемы герметизации устьев вентиляционных стволов и шурфов с негерметическими надшахтными зданиями; приведены конструкции герметических надшахтных зданий и вентиляционных сооружений; даны рекомендации по производству работ при строительстве новых шахт и восстановлении нарушенной герметичности на действующих шахтах. Альбом предназначен для инженерно-технических работников эксплуатационных шахт, проектных, шахтостроительных и научно-исследовательских организаций, а также может быть полезным пособием для студентов горных вузов и учащихся техникумов |
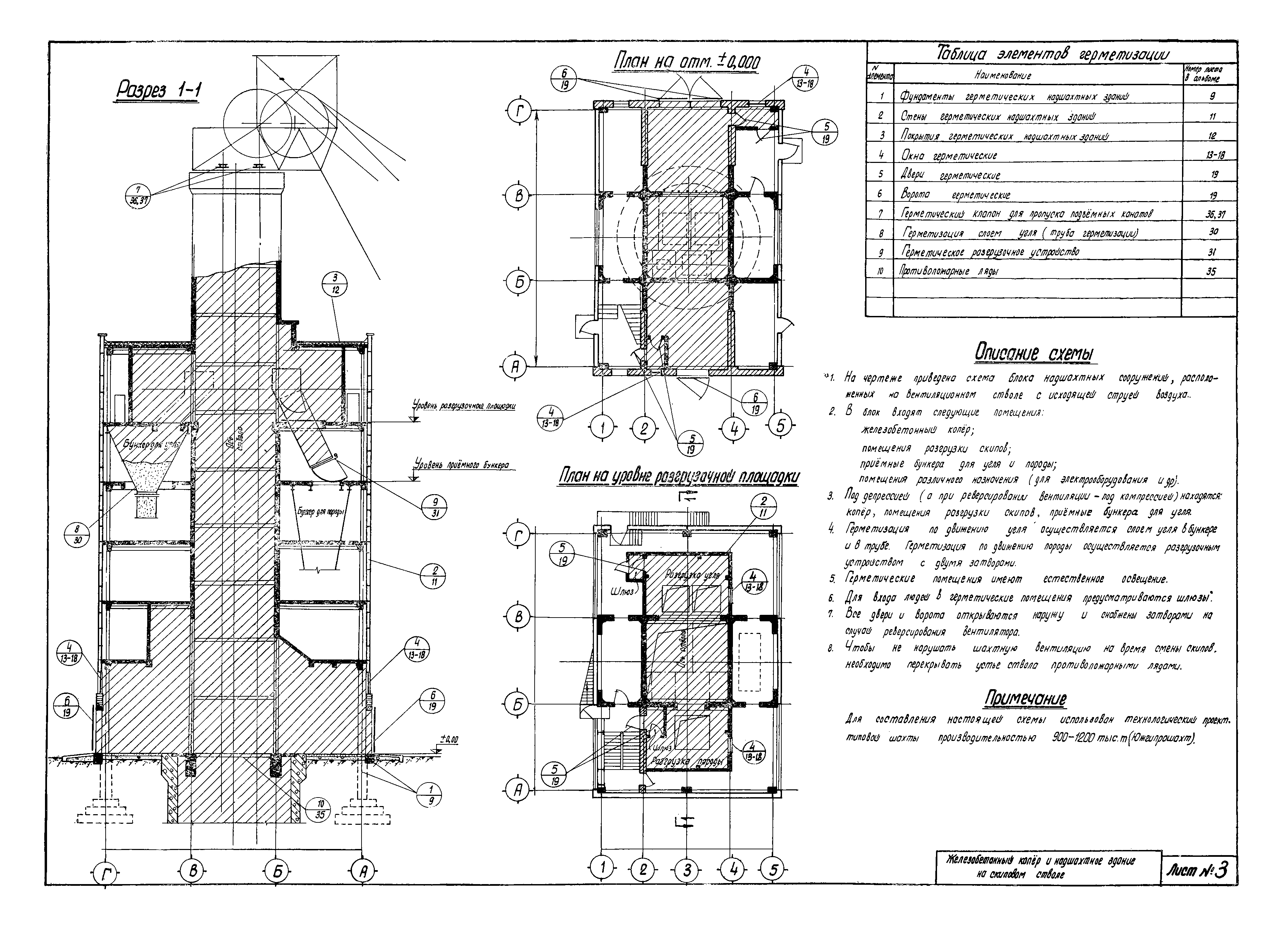
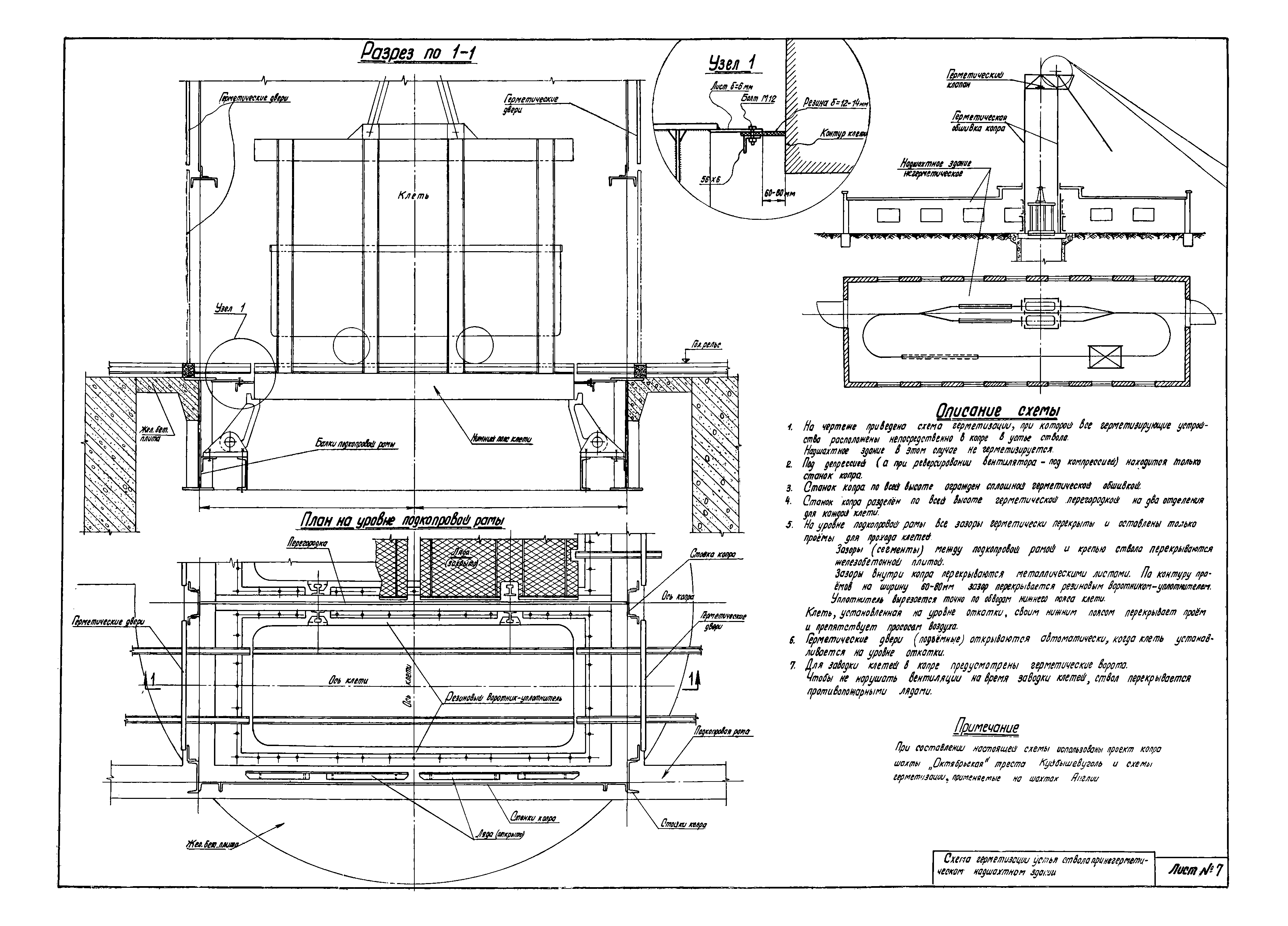
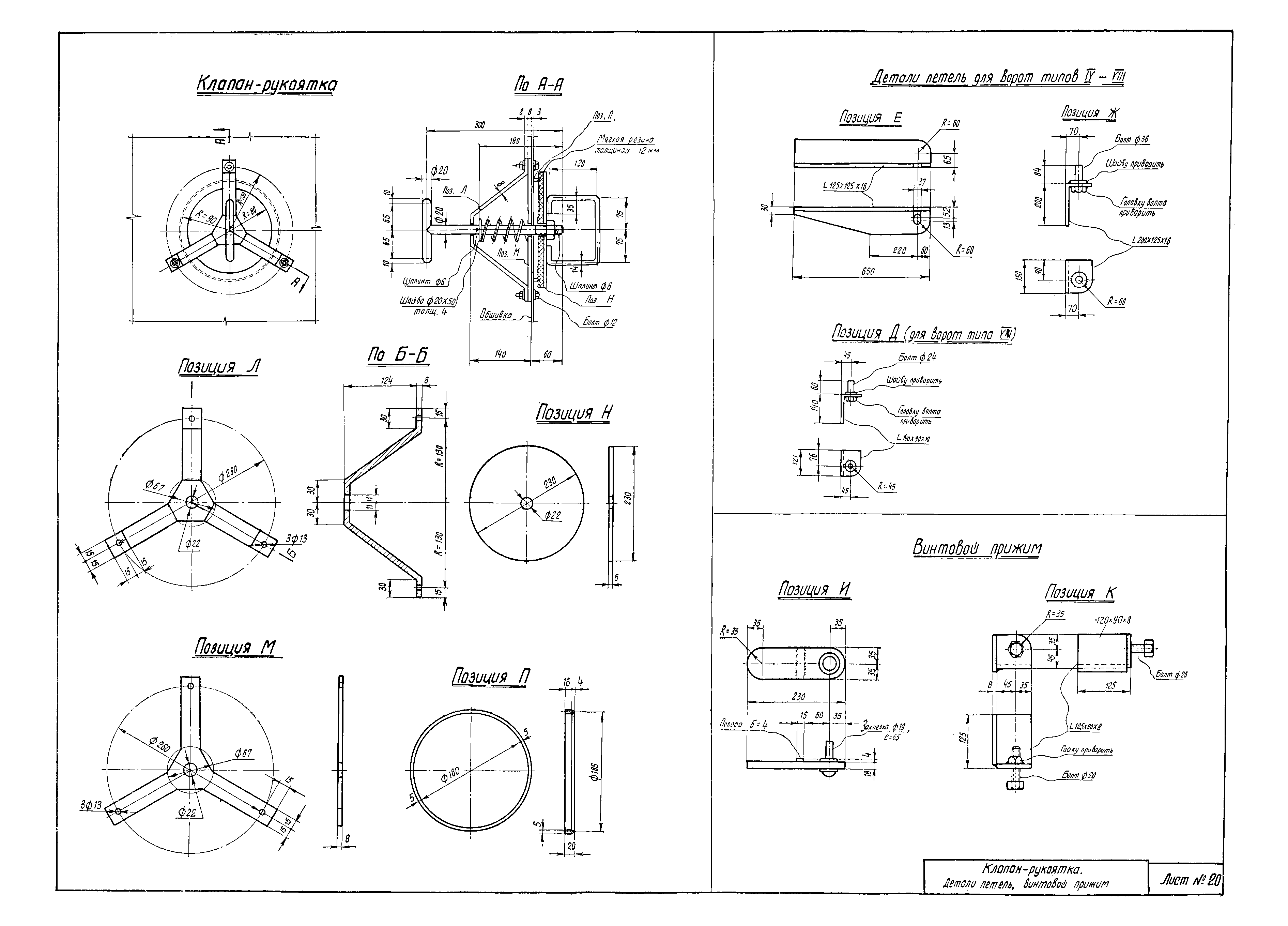
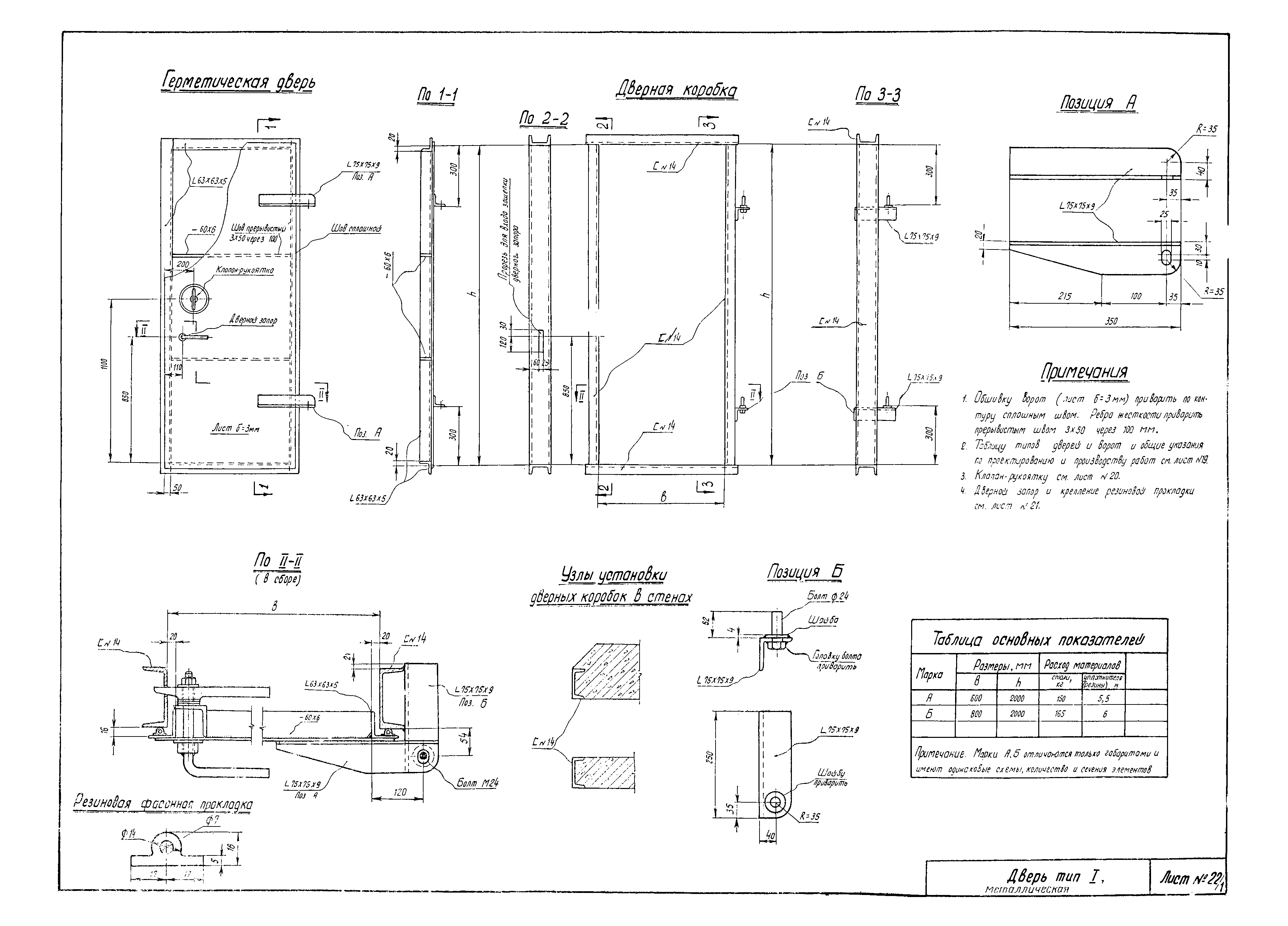
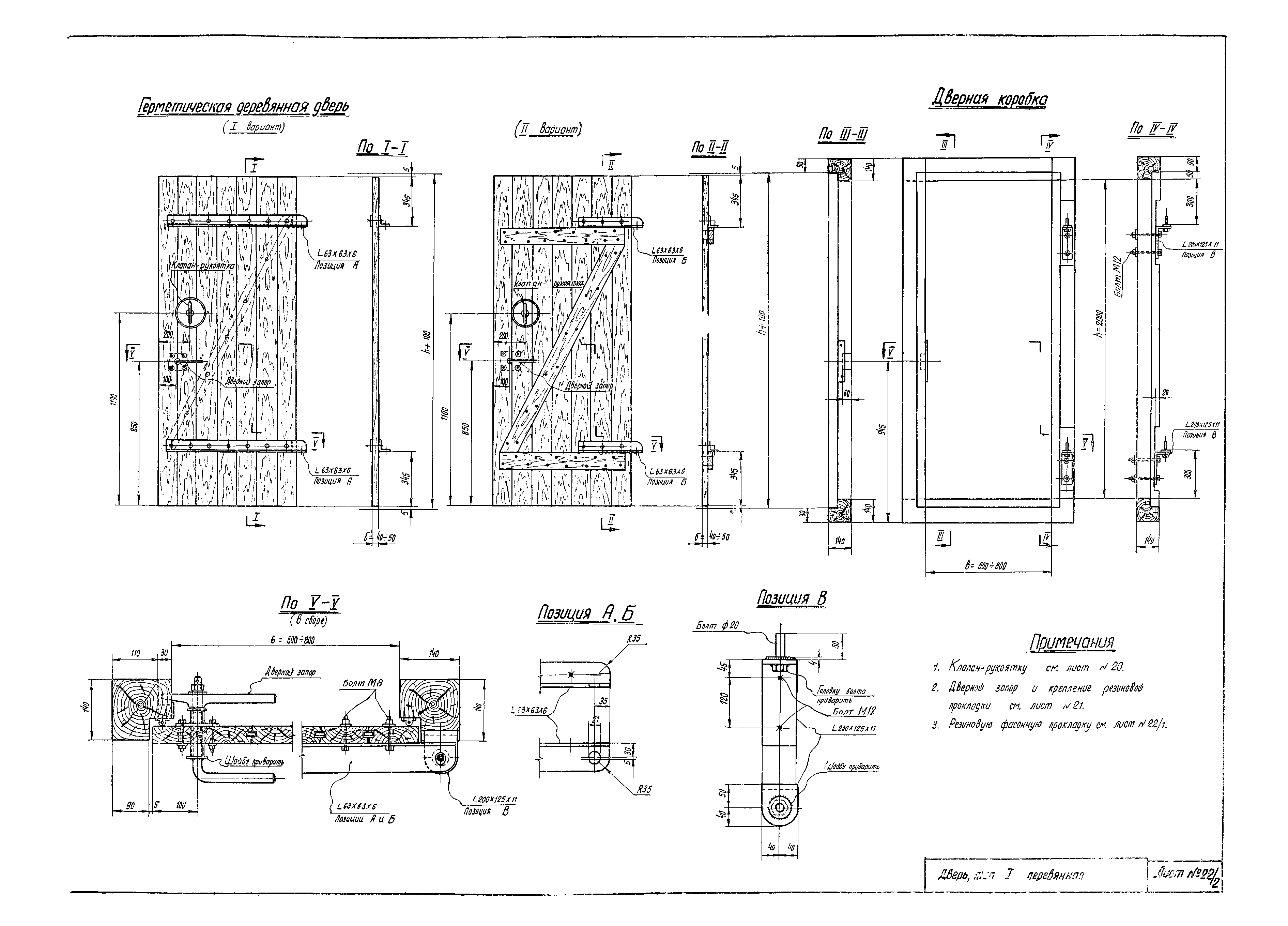
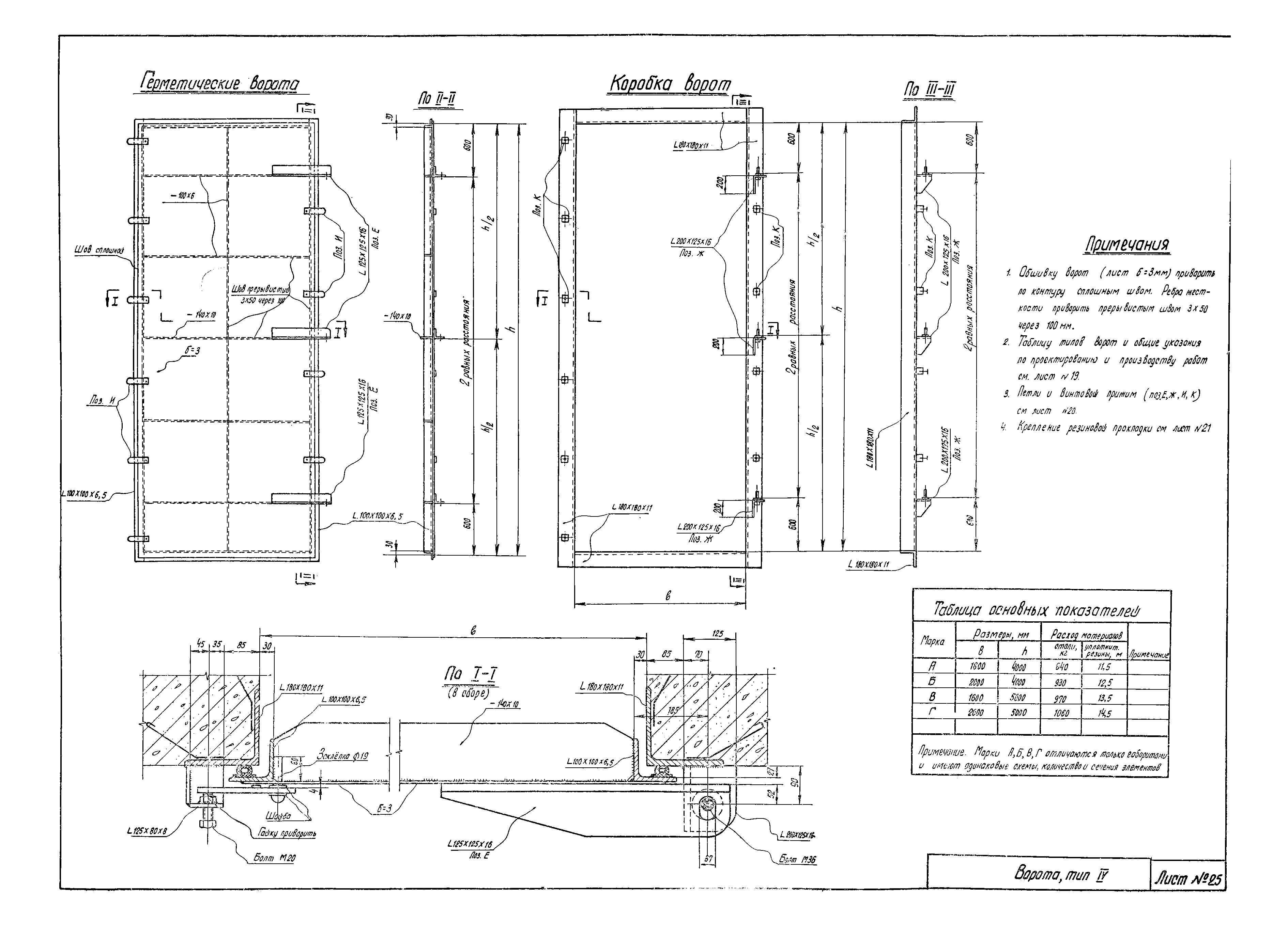
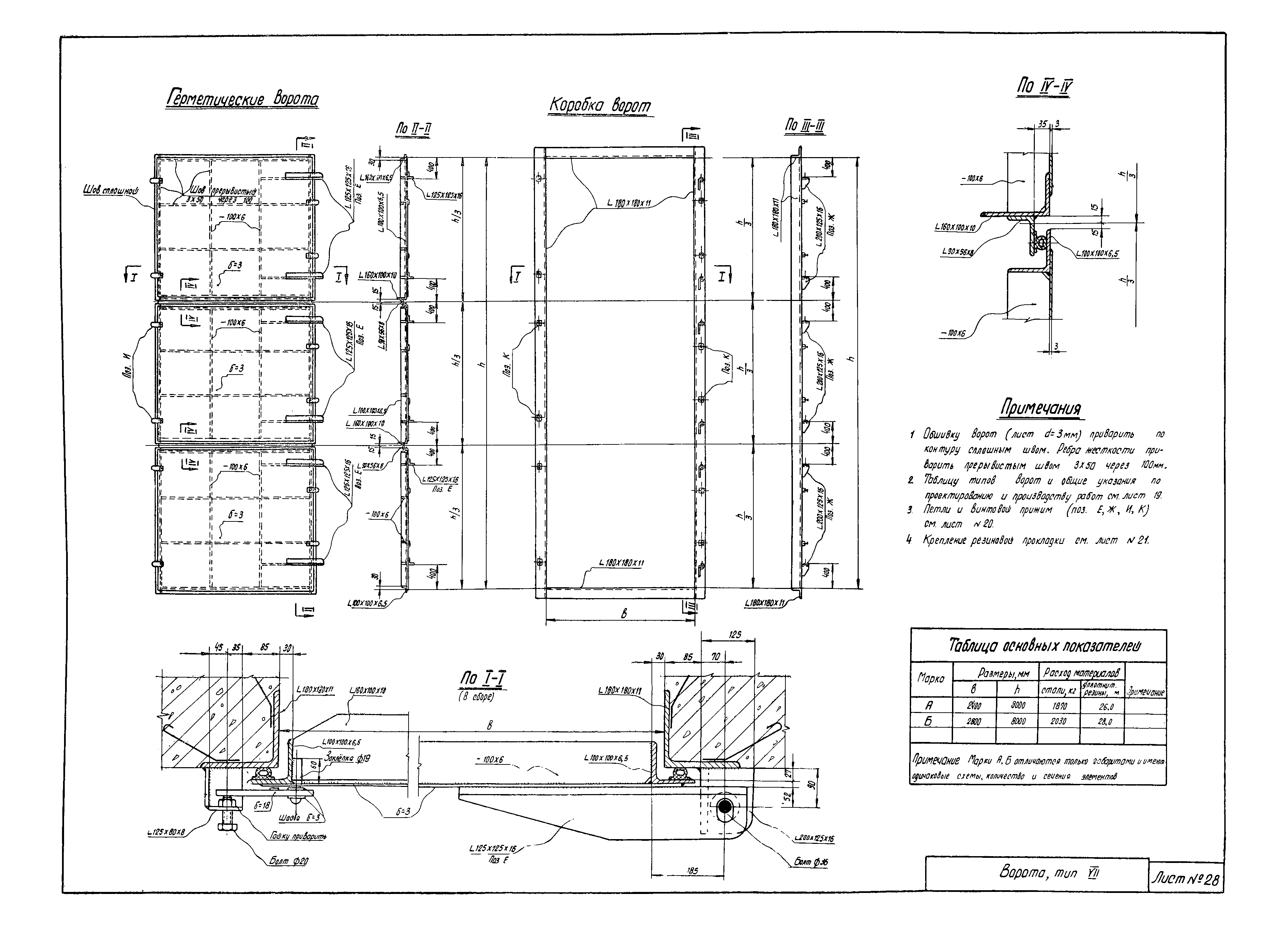
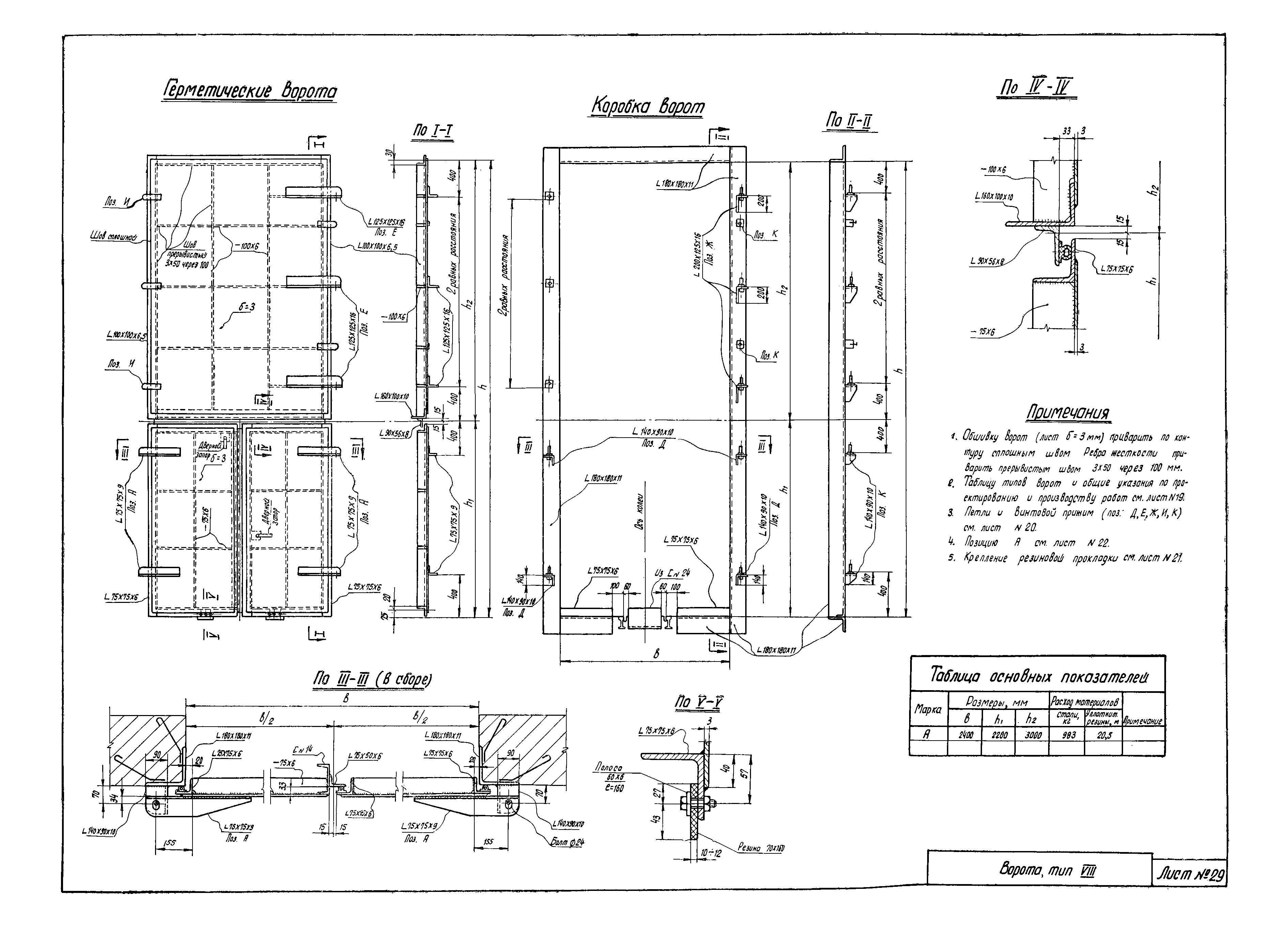
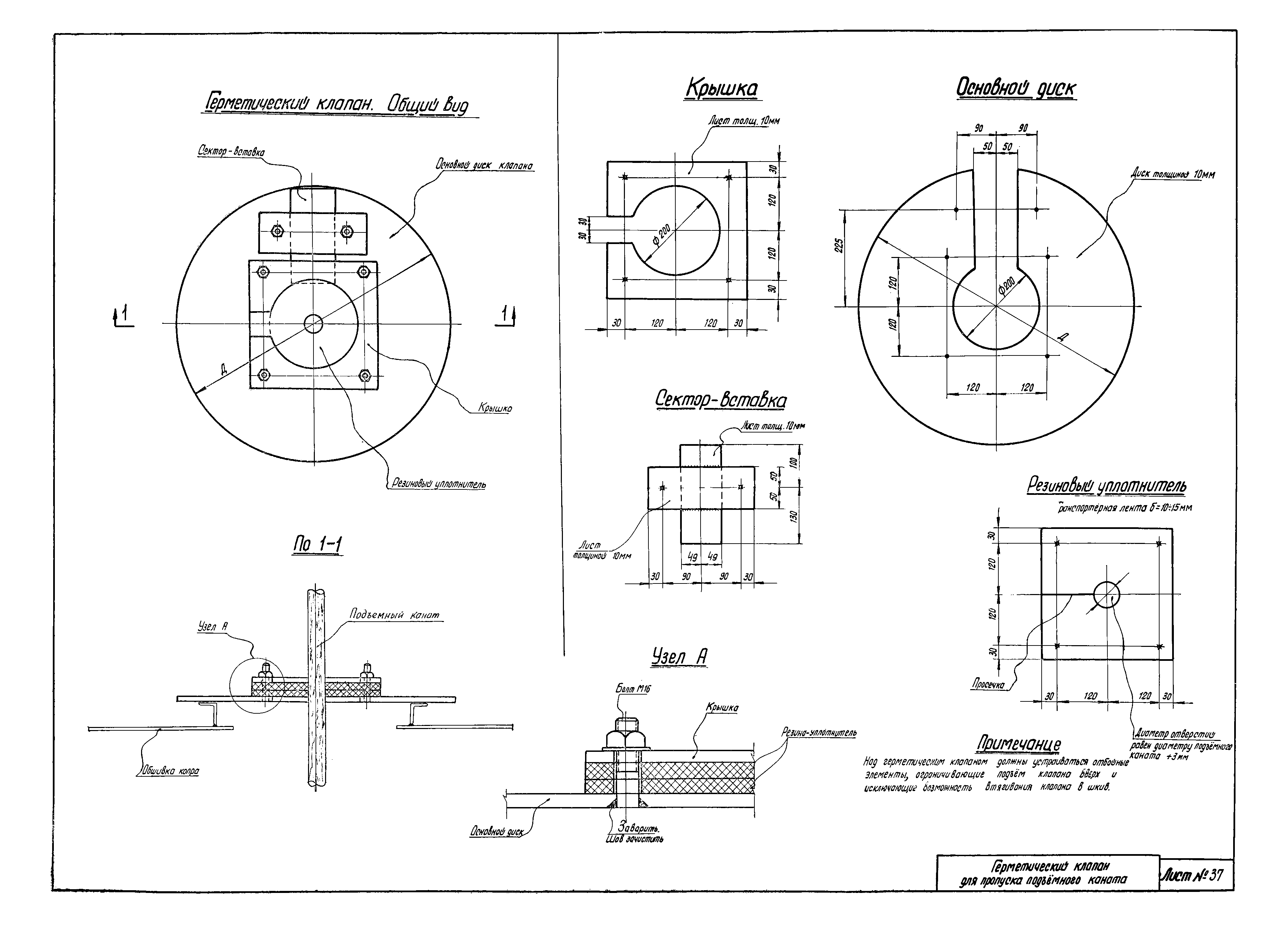
| Оглавление: | Предисловие Введение Раздел 1. Схемы герметизации зданий и сооружений на вентиляционных стволах Блок сооружений на скиповом стволе Железобетонный копер и надшахтное здание на скиповом стволе Копер многоканатного подъема Надшахтные здания вентиляционных шурфов Надшахтное здание на клетевом стволе Схемы герметизации устья ствола при негерметическом надшахтном здании Раздел II. Фундаменты, стены и покрытия герметических зданий Фундаменты герметических зданий Указания по проектированию и производству работ Детали Стены герметических зданий. Указания по проектированию и производству работ Покрытия герметических зданий. Детали покрытий и указания проектированию и производству работ Раздел III. Окна герметические Окна на стеклоблоков Схемы окон и указания Детали Окна с металлическими переплетами Установка стекла на резиновом уплотнителе Установка стекла на замазке Окна с деревянными переплетами Схема окон и указания Детали Раздел IV. Двери и ворота герметические Таблица типов ворот и общие указания Клапан-рукоятка, детали петель, винтовой прижим дверной запор, крепление резинового уплотнителя Дверной запор, крепление резинового уплотнителя Дверь, тип I металлическая Дверь, тип I деревянная Ворота, тип II Ворота, тип III Ворота, тип IV Ворота, тип V Ворота, тип VI Ворота, тип VII Ворота, тип VIII Раздел V. Герметизация технологического оборудования Герметизация слоем угля м пропуск труб через покрытия Герметические разгрузочные устройства Обшивка копров и сопряжение обшивки с крышей надшахтного здания Раздел VI. Герметизация копров Узел сопряжения обшивки копра с покрытием надшахтного здания (вариант с деревянными брусьями) Сопряжение обшивки копра с помещением разгрузки Герметизация на уровне подкопровой рамы и противопожарные ляды Герметический клапан для пропуска подъемного каната Герметический клапан для пропуска подъемного каната (вариант) Герметический клапан для многоканатного подъхема Раздел VII. Каналы главного проветривания Принципиальная схема вспомогательных устройств вентиляционной установки Схема установки и узлы герметизации ляд Поперечные сечения каналов Входной шлюз и замерная станция Дверь входного шлюза и замерной станции |
| Разработан: | Донецкий Промстройниипроект Проектный институт ДонГИПРОШАХТ |
| Утверждён: | Госстрой СССР |
| Издан: | Издательство Недра (1964 г. ) |
| Нормативные ссылки: |

























































