Скачать Руководство по военным низководным мостам

Дата актуализации: 01.01.2021

Руководство по военным низководным мостам

Статус:истек срок действия
Название рус.:Руководство по военным низководным мостам
Название англ.:Guidelines for the Use of Expanded-Clay Lightweight Concrete In Road and Highway Bridges
Дата добавления в базу:01.01.2018
Дата актуализации:01.01.2021
Область применения:Руководство по военным низководным мостам содержит указания по строительству низководных и подводных мостов и путепроводов на жестких опорах, возводимых из местных материалов
Оглавление:Глава 1. Общие положения
Глава 2. Инженерная разведка района постройки моста
Глава 3. Конструкции деревянных пролетных строений низководных мостов
   1. Блочные пролетные строения
      Пролетные строения из колейных блоков
      Пролетные строения из блоков прогонов и щитов проезжей части
         а) Блоки простых прогонов
         б) Блоки сложных прогонов
         в) Блоки составных прогонов
   2. Пролетные строения из отдельных элементов с простыми и сложными прогонами
      Проезжая часть
      Простые прогоны
      Сложные прогоны
Глава 4. Конструкции металлических пролетных строений низководных мостов
   1. Блочные пролетные строения
      Блоки из четырех прогонов
      Блоки из двух прогонов
      Проезжая часть
   2. Пролетные строения из отдельных элементов
      Несущая конструкция с простыми прогонами и пакетами
      Несущая конструкция с составными прогонами
      Проезжая часть
Глава 5. Промежуточные опоры низководных мостов
   1. Свайные опоры
   2. Рамные деревянные опоры
   3. Клеточные опоры
   4. Обеспечение продольной устойчивости моста
Глава 6. Береговые опоры и сопряжение моста с берегами
Глава 7. Изготовление и транспортировка мостовых конструкций
   1. Общие положения
   2. Изготовление конструкций низководных деревянных мостов
      Лесозаготовительные работы
      Лесопильные работы
      Работы по изготовлению деревянных мостовых конструкций
      Изготовление колейных блоков
      Сборка блоков прогонов
      Изготовление конструкций пролетного строения из блоков прогонов и щитов проезжей части
      Особенности сборки блоков сложных прогонов
      Изготовление составных прогонов на стальных цилиндрических нагелях и сборка блоков из двух прогонов
      Изготовление свай
      Изготовление насадок и лежней опор
     Изготовление элементов и сборка рамных опор
      Особенности изготовления элементов мостовых конструкций при постройке мостов из отдельных элементов
   3. Изготовление конструкций металлических мостов
      Общие положения
      Изготовление металлических элементов
      Изготовление элементов проезжей части
      Изготовление блоков прогонов
      Изготовление пролетных строений из отдельных элементов
   4. Транспортировка мостовых конструкций
Глава 8. Постройка низководных мостов
   1. Общие положения
   2. Разбивка оси моста и осей опор
   3. Средства механизации работ при постройке мостов
   4. Глубина забивки свай в опорах
   5. Организация в производство работ при постройке низководных мостов
      Общие положения
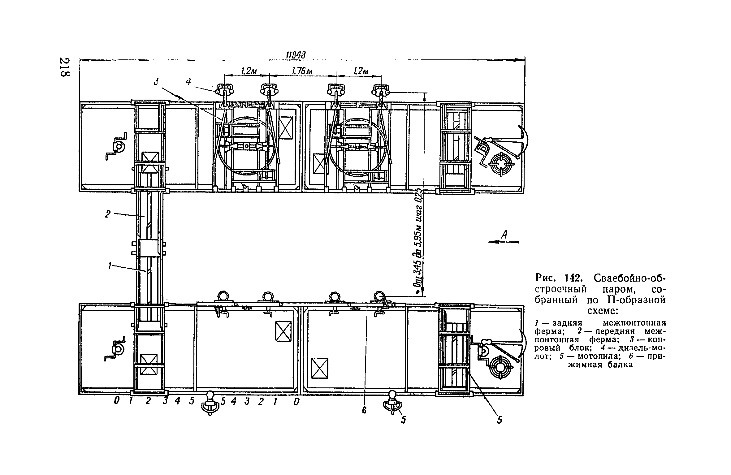
      Постройка мостов на свайных опорах при помощи комплекта мостостроительных средств КМС
      Постройка мостов на свайных опорах при помощи дизель-молотов ДМ-150 с одностреловыми копрами ОСК и дизель-молотов ДБ-45 с приспособлениями ПУС-1 для установки свай
      Постройка мостов на рамных опорах при помощи паромов с домкратами из комплекта КМС
      Устройство береговых опор и сопряжений моста с берегами
      Постройка мостов из отдельных элементов
      Особенности постройки двухпутных мостов на свайных опорах
      Особенности постройки мостов на свайных опорах с увеличенными пролетами
Глава 9. Подводные мосты
   1. Общие положения
   2. Особенности конструкции промежуточных опор
   3. Береговые опоры и сопряжение подводного моста с берегами
   4. Особенности конструкции пролетных строений подводных мостов
   5. Особенности постройки подводных мостов на свайных опорах
   6. Особенности постройки подводных мостов на рамных опорах
   7. Особенности постройки подводных мостов с металлическими прогонами
Глава 10. Особенности конструкции и постройки мостов в особых условиях
   1. Зимние мосты
   2. Комбинированные мосты
   3. Мосты через водные преграды с большими скоростями течения и каменистым дном
      Общие положения
      Промежуточные опоры
      Особенности постройки мостов на реках с большими скоростями течения
   4. Мосты через каналы и неширокие преграды
Глава 11. Путепроводы
Глава 12. Эксплуатация и содержание мостов
   1. Приемка мостов
   2. Правила движения по мостам
   3. Эксплуатация мостов
   4. Устранение поврежденных элементов моста
   5. Подготовка мостов к пропуску ледохода и паводка
   6. Пропуск ледохода и паводка
   7. Охрана моста
Глава 13. Определение грузоподъемности мостов
   1. Общие положения
   2. Обследование моста
   3. Определение грузоподъемности стальных и деревянных мостов
Глава 14. Расчет низководных мостов
   1. Основные положения
   2. Расчет настила и поперечин
   3. Расчет прогонов
   4. Расчет опор
      Определение давлений
      Подбор сечений сваи и стойки
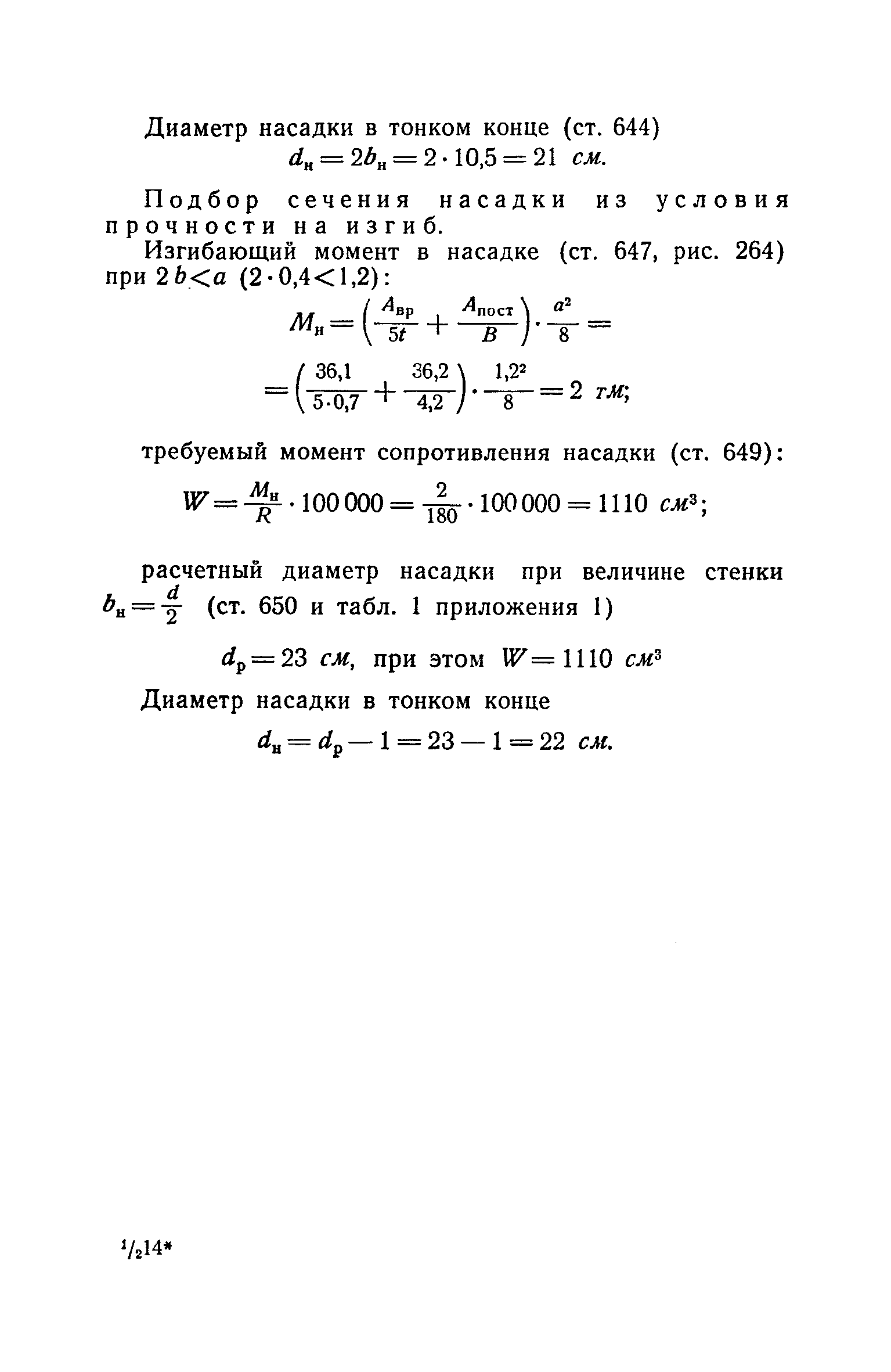
      Подбор сечений насадки и лежня
       Расчет подкладок под лежнем рамной опоры или под береговым лежнем
   5. Пример расчета низководного моста на свайных опорах
Приложение 1. Данные о лесоматериале
Приложение 2. Данные о металлических прокатных балках и рельсах
Приложение 3. Данные о составных прогонах из прокатных двутавров и рельсов
Приложение 4. Данные о поковках н гвоздях
Приложение 5. Данные о канатах и тросах
Приложение 6. Определение прочности древесины хвойных пород огнестрельным способом
Приложение 7. Карточка инженерной разведки района постройки моста
Приложение 8. Данные о средствах инженерной разведки
Приложение 9. Разведка лесного массива
Приложение 10. Полевой проект низководного моста на свайных опорах
Приложение 11. Спецификация элементов и конструкций моста
Приложение 12. Схема пункта заготовки мостовых конструкций и график работ
Приложение 13. Тактико-техническая характеристика мостостроительных средств
Приложение 14. Данные об аппаратах для сварки и резки металла
Приложение 15. Данные об автомобильных кранах
Приложение 16. Данные о транспортных средствах
Приложение 17. Расход леса и металла на 1 пог м деревянного пролетного строения моста
Приложение 18. Ориентировочные нормы на постройку низководных мостов
Утверждён:05.11.1964 Врио Начальника инженерных войск МО
Издан: Военное издательство Министерства обороны СССР (1965 г. )
Заменяет собой:
  • «Наставление для инженерных войск "Низководные мосты"» (1955 год)