Скачать Типовой проект 901-3-246.88 Альбом II. Архитектурные решения. Конструкции железобетонные и металлические. Технологическая и санитарно-техническая части. Электротехническая часть. Автоматизация

Дата актуализации: 01.01.2021

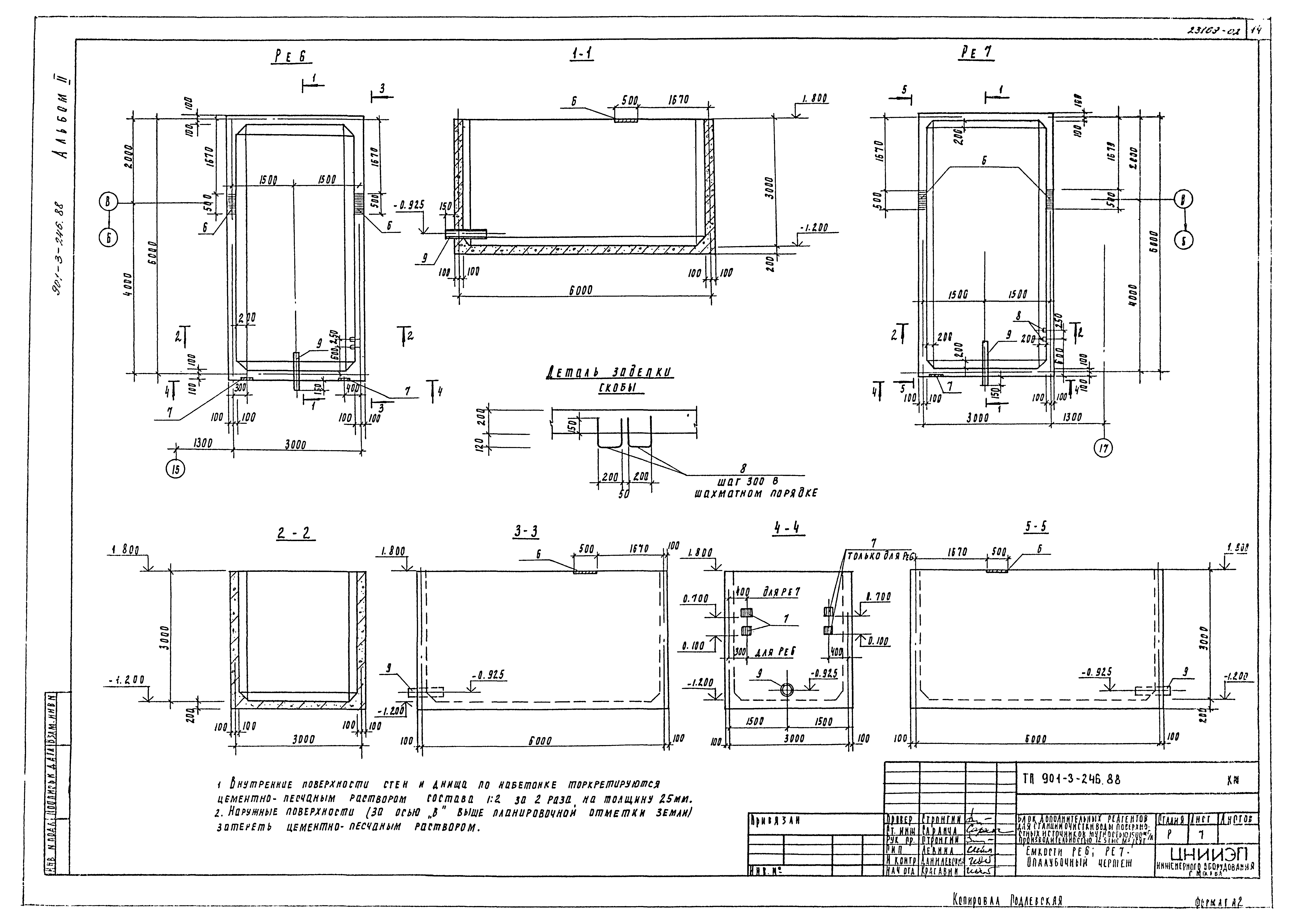
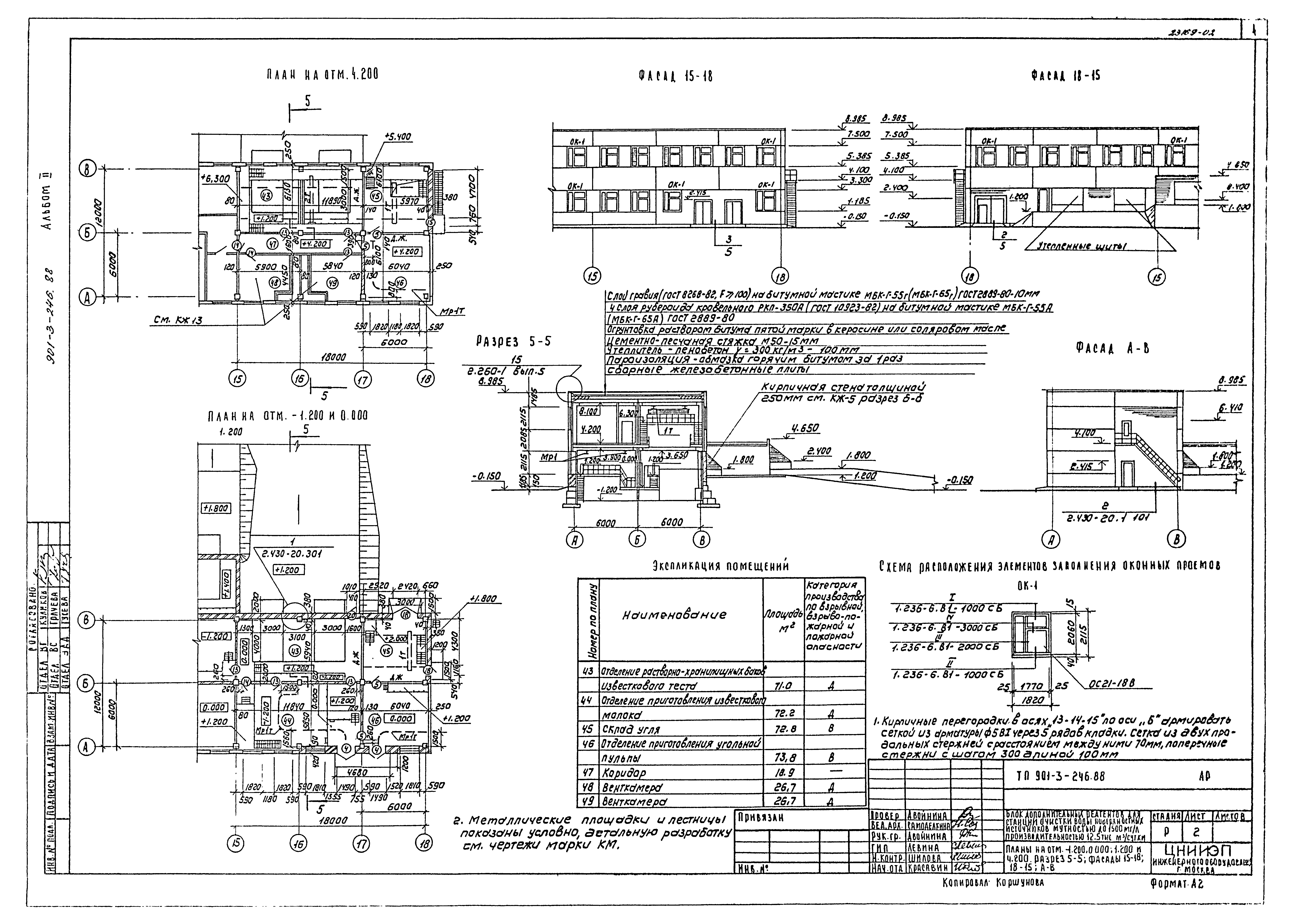
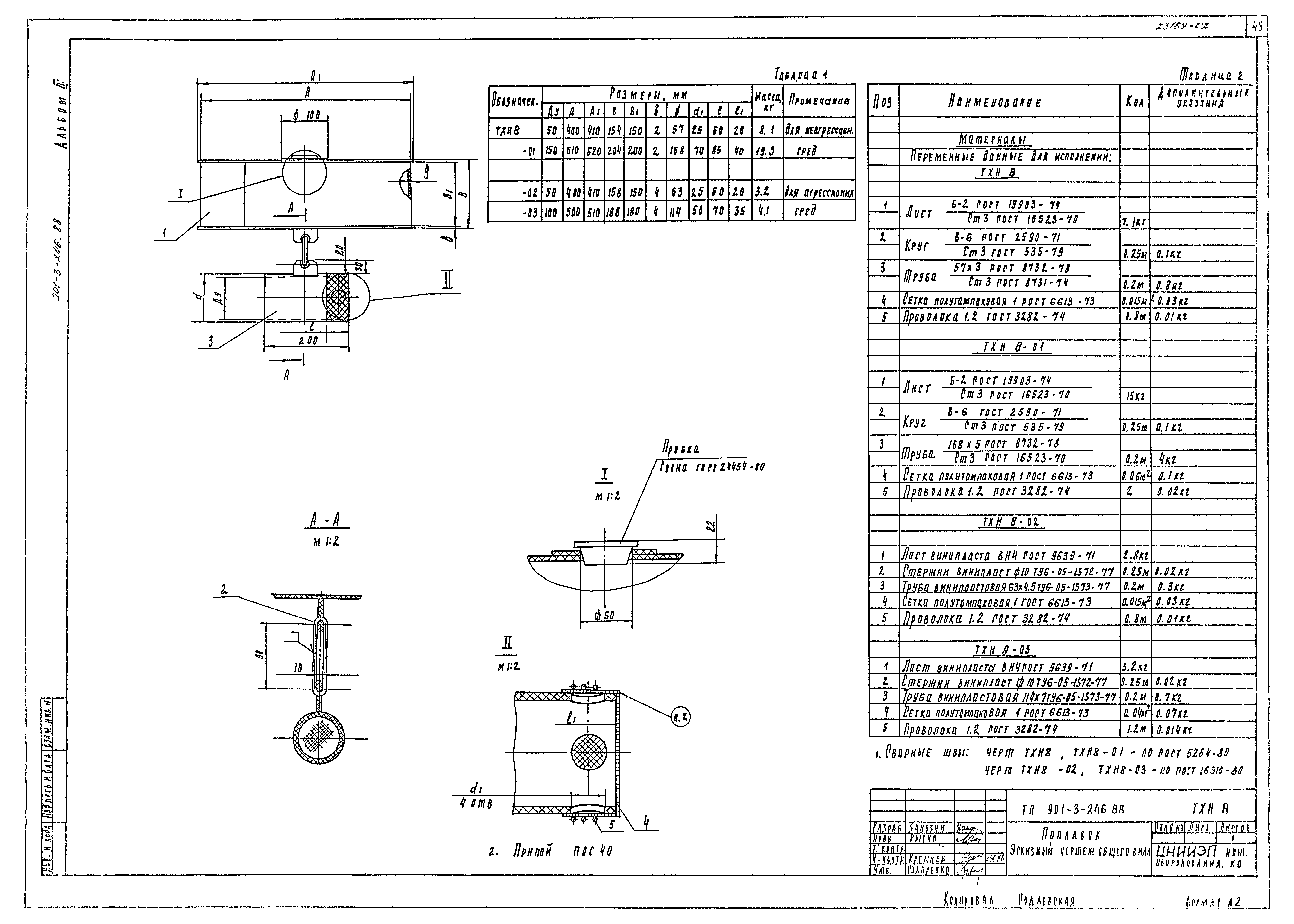
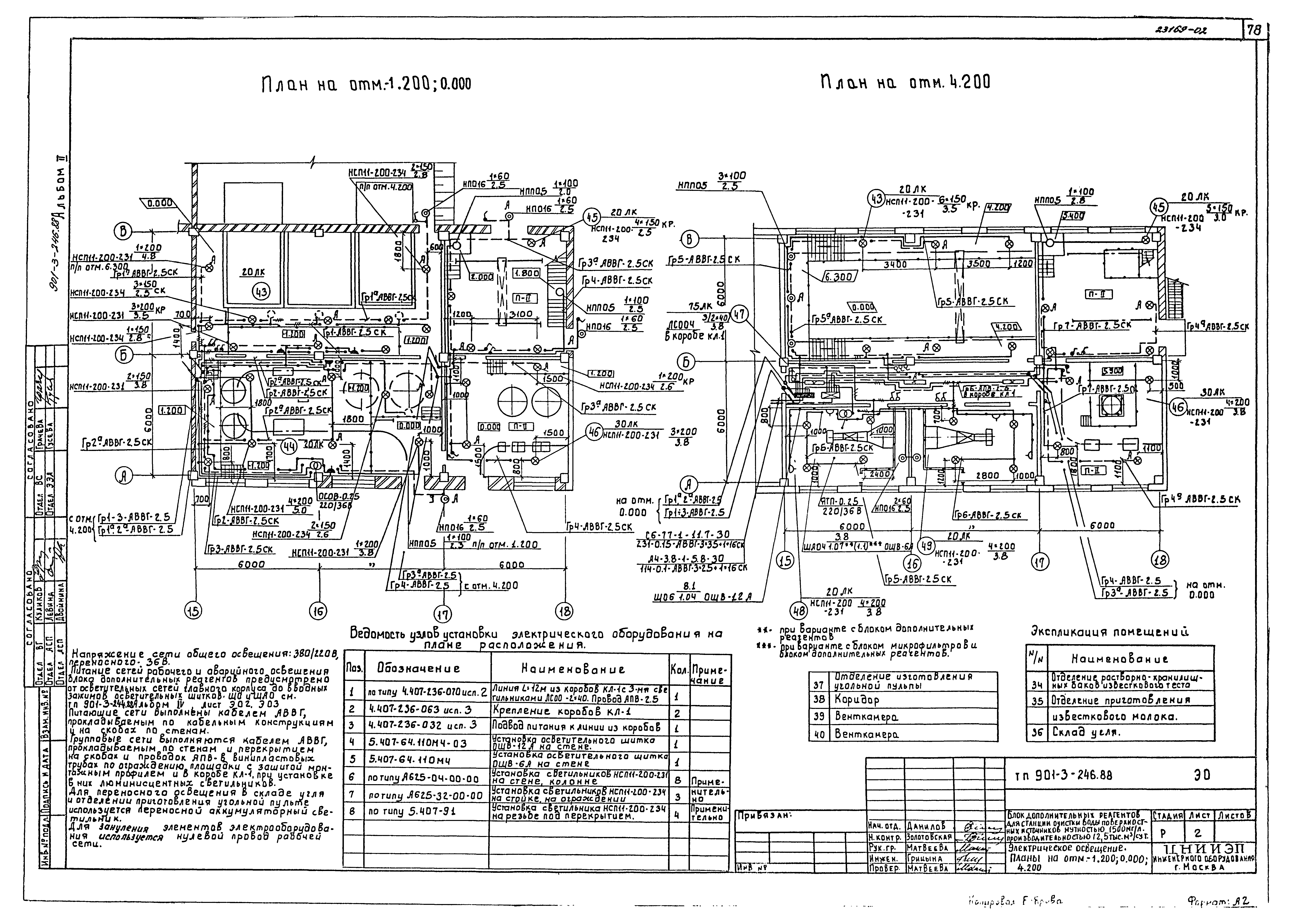
Типовой проект 901-3-246.88

Альбом II. Архитектурные решения. Конструкции железобетонные и металлические. Технологическая и санитарно-техническая части. Электротехническая часть. Автоматизация

Обозначение: Типовой проект 901-3-246.88
Обозначение англ: 901-3-246.88
Статус:не определен законодательством
Название рус.:Альбом II. Архитектурные решения. Конструкции железобетонные и металлические. Технологическая и санитарно-техническая части. Электротехническая часть. Автоматизация
Дата добавления в базу:05.05.2017
Дата актуализации:01.01.2021
Дата введения:13.04.1988
Дата окончания срока действия:30.06.2003
Разработан: ЦНИИЭП инженерного оборудования
Утверждён:29.07.1986 Госгражданстрой (Gosgrazhdanstroy 242)
Издан: ЦИТП Госстроя СССР (CITP, Gosstroy (USSR) 1989 г. )
Заменяет собой:
  • Типовой проект 901-3-114
Нормативные ссылки:
Типовой проект 901-3-246.88Типовой проект 901-3-246.88Типовой проект 901-3-246.88Типовой проект 901-3-246.88Типовой проект 901-3-246.88Типовой проект 901-3-246.88Типовой проект 901-3-246.88Типовой проект 901-3-246.88Типовой проект 901-3-246.88Типовой проект 901-3-246.88Типовой проект 901-3-246.88Типовой проект 901-3-246.88Типовой проект 901-3-246.88Типовой проект 901-3-246.88Типовой проект 901-3-246.88Типовой проект 901-3-246.88Типовой проект 901-3-246.88Типовой проект 901-3-246.88Типовой проект 901-3-246.88Типовой проект 901-3-246.88Типовой проект 901-3-246.88Типовой проект 901-3-246.88Типовой проект 901-3-246.88Типовой проект 901-3-246.88Типовой проект 901-3-246.88Типовой проект 901-3-246.88Типовой проект 901-3-246.88Типовой проект 901-3-246.88Типовой проект 901-3-246.88Типовой проект 901-3-246.88Типовой проект 901-3-246.88Типовой проект 901-3-246.88Типовой проект 901-3-246.88Типовой проект 901-3-246.88Типовой проект 901-3-246.88Типовой проект 901-3-246.88Типовой проект 901-3-246.88Типовой проект 901-3-246.88Типовой проект 901-3-246.88Типовой проект 901-3-246.88Типовой проект 901-3-246.88Типовой проект 901-3-246.88Типовой проект 901-3-246.88Типовой проект 901-3-246.88Типовой проект 901-3-246.88Типовой проект 901-3-246.88Типовой проект 901-3-246.88Типовой проект 901-3-246.88Типовой проект 901-3-246.88Типовой проект 901-3-246.88Типовой проект 901-3-246.88Типовой проект 901-3-246.88Типовой проект 901-3-246.88Типовой проект 901-3-246.88Типовой проект 901-3-246.88Типовой проект 901-3-246.88Типовой проект 901-3-246.88Типовой проект 901-3-246.88Типовой проект 901-3-246.88Типовой проект 901-3-246.88Типовой проект 901-3-246.88Типовой проект 901-3-246.88Типовой проект 901-3-246.88Типовой проект 901-3-246.88Типовой проект 901-3-246.88Типовой проект 901-3-246.88Типовой проект 901-3-246.88Типовой проект 901-3-246.88Типовой проект 901-3-246.88Типовой проект 901-3-246.88Типовой проект 901-3-246.88Типовой проект 901-3-246.88Типовой проект 901-3-246.88Типовой проект 901-3-246.88Типовой проект 901-3-246.88Типовой проект 901-3-246.88Типовой проект 901-3-246.88Типовой проект 901-3-246.88Типовой проект 901-3-246.88Типовой проект 901-3-246.88Типовой проект 901-3-246.88Типовой проект 901-3-246.88