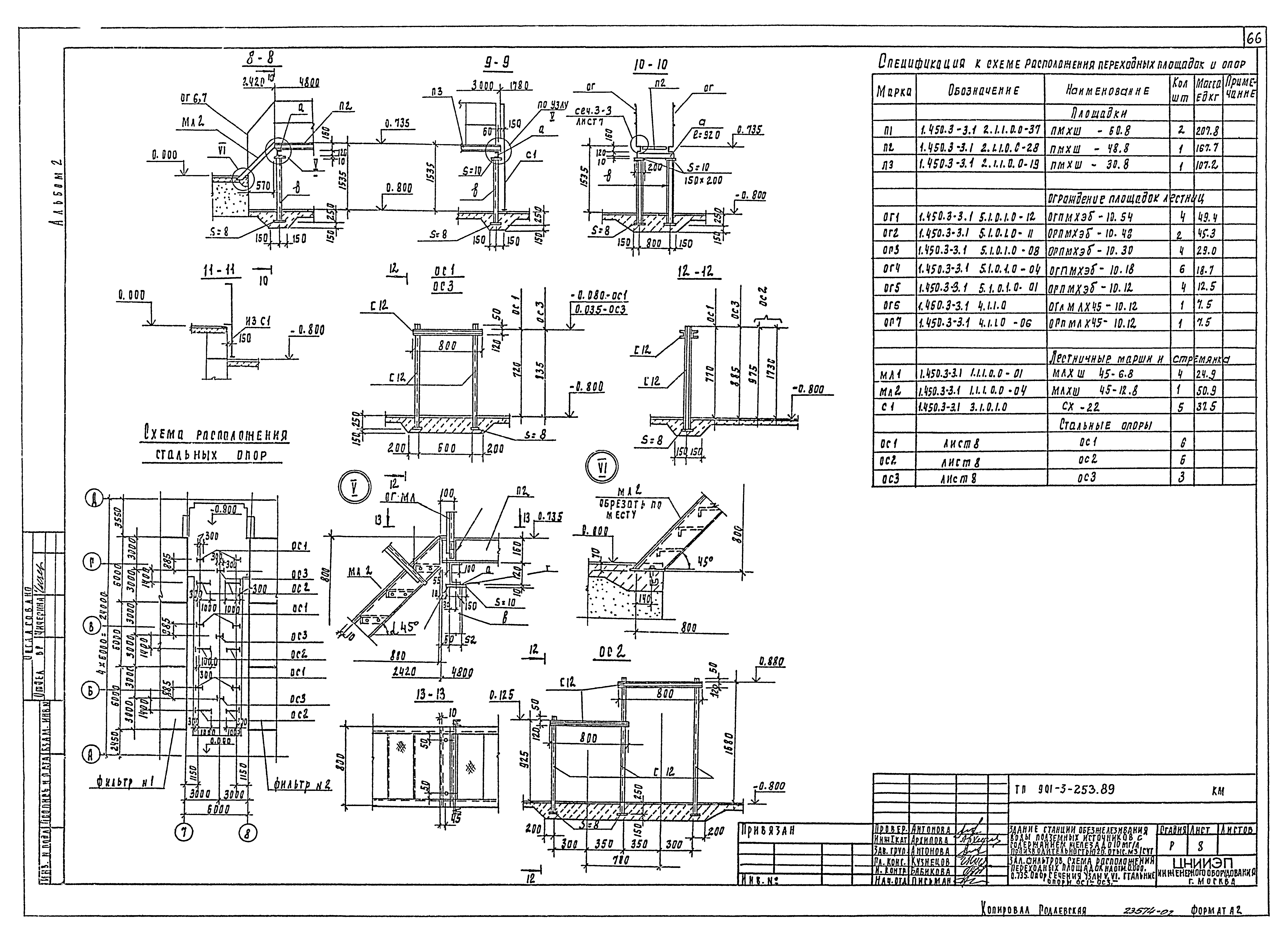
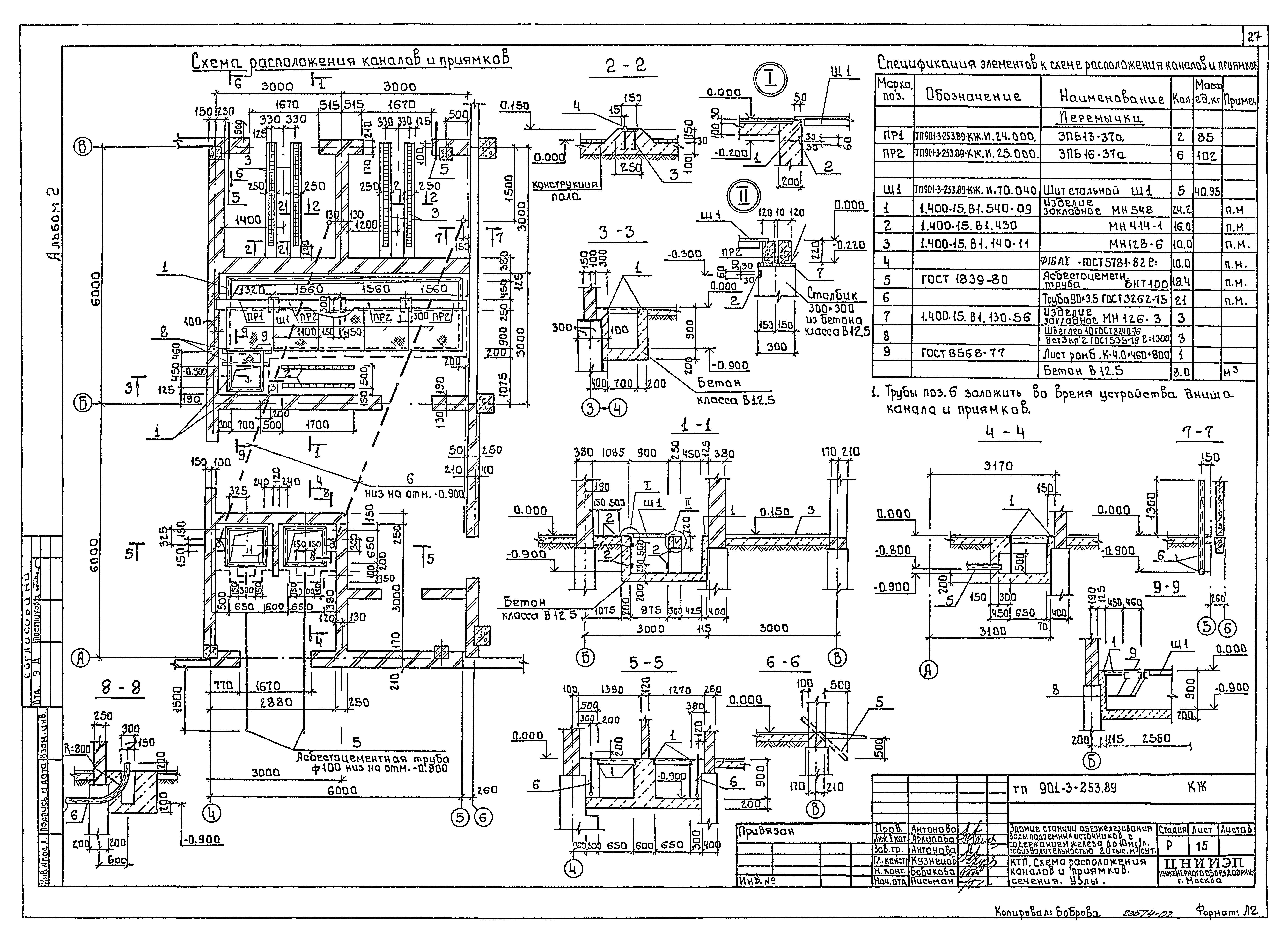
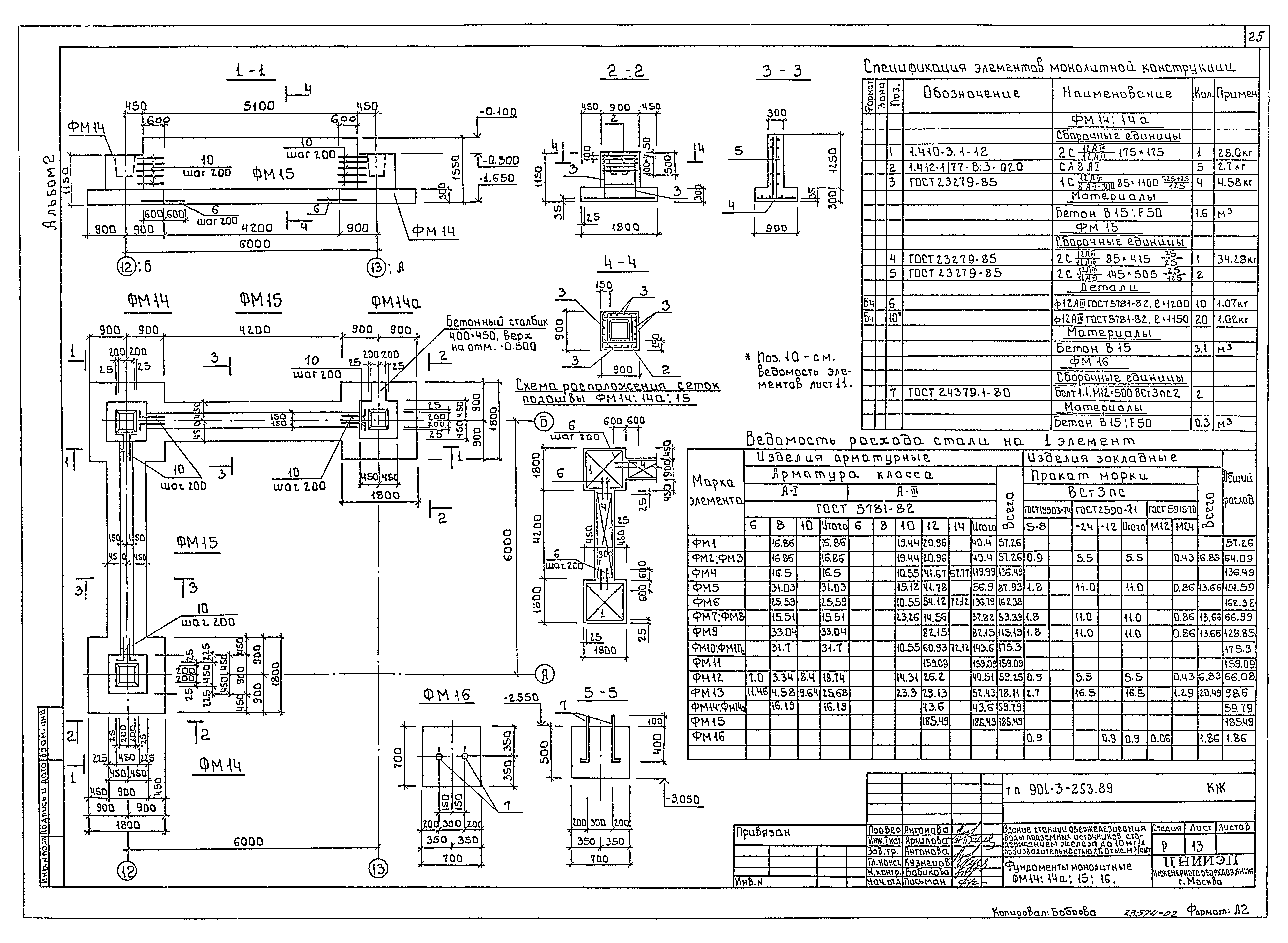
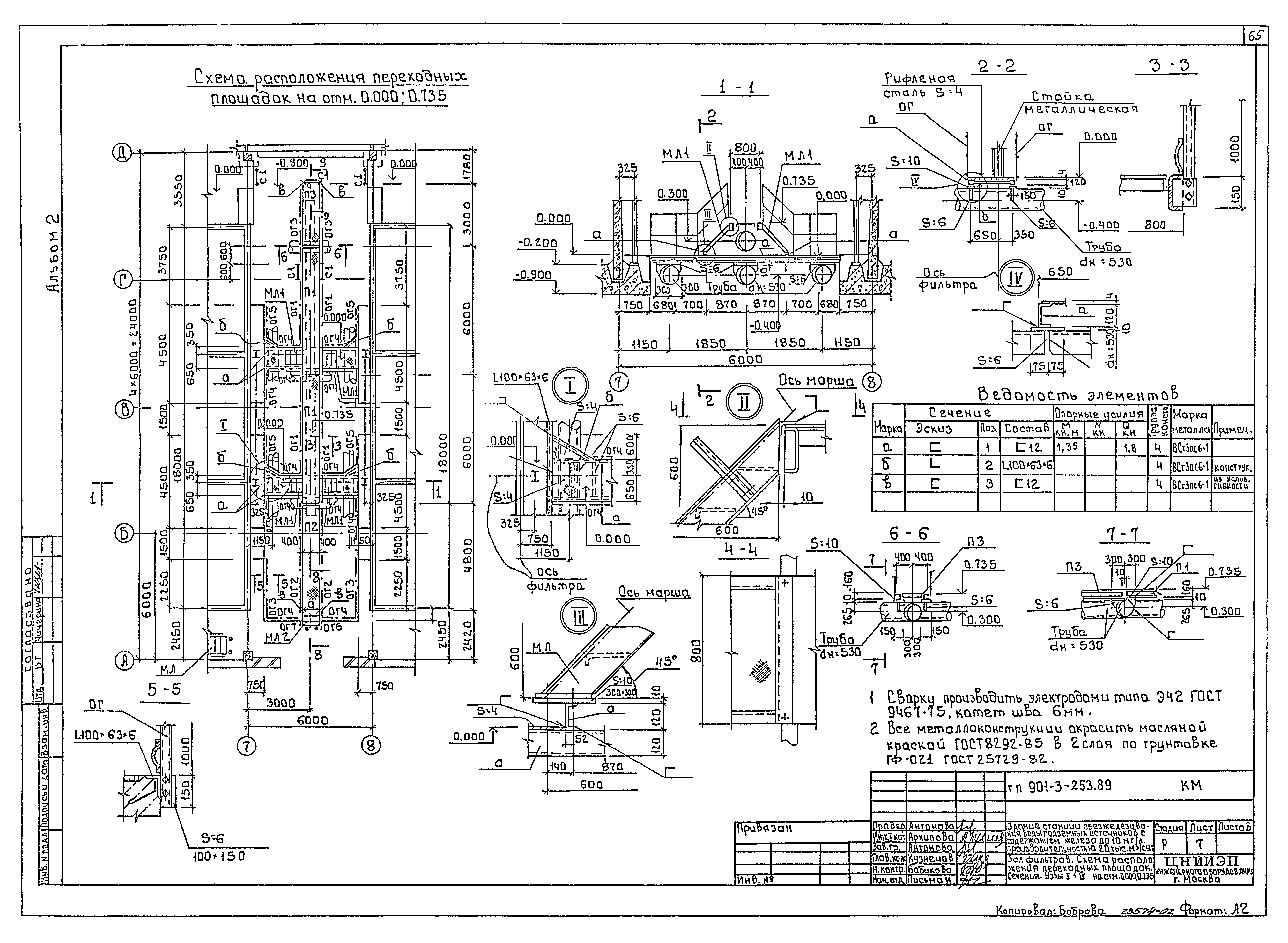
Скачать Типовой проект 901-3-253.89 Альбом 2. Архитектурные решения. Конструкции железобетонные. Конструкции металлические. Организация строительства

Дата актуализации: 01.01.2021

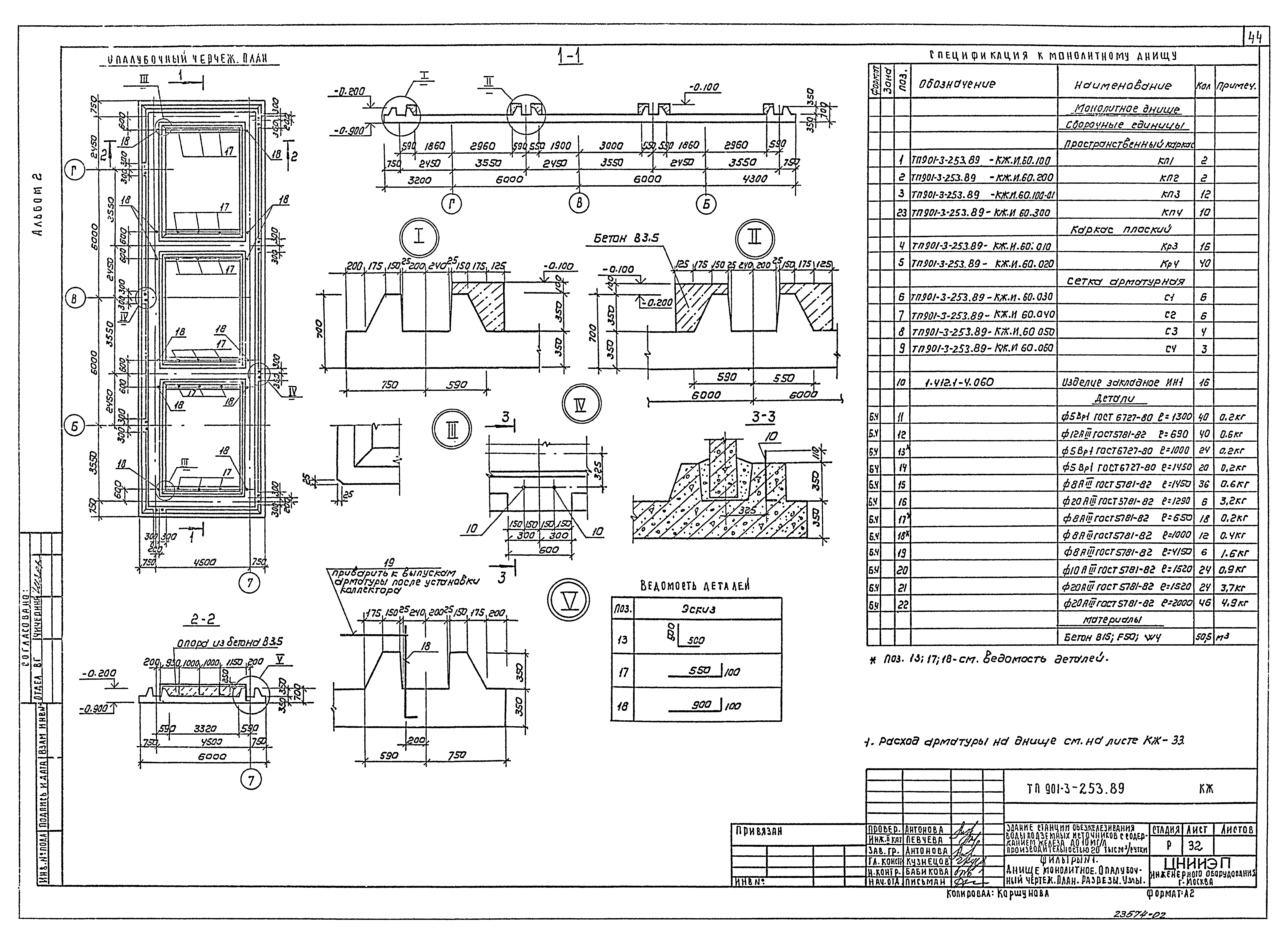
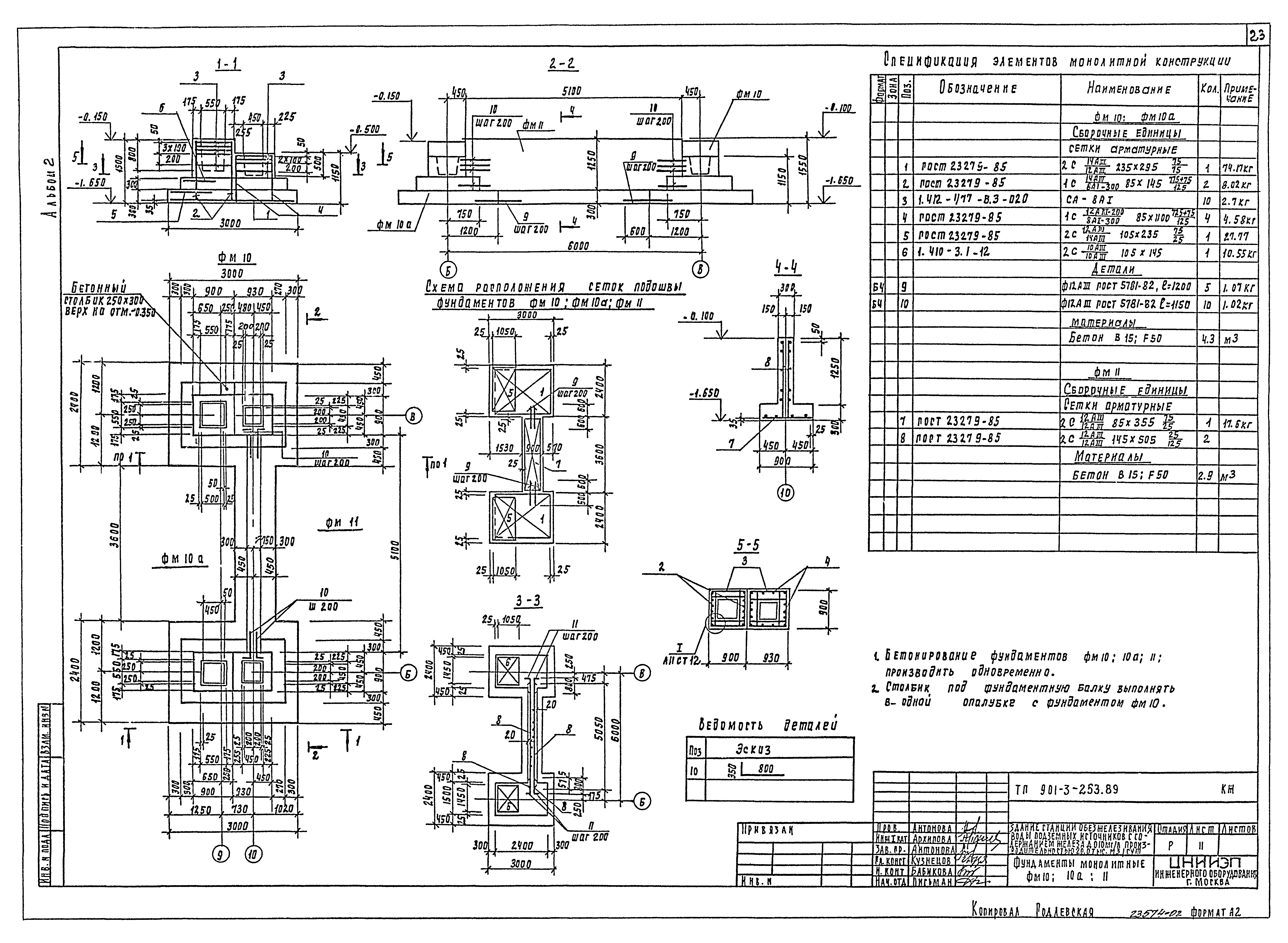
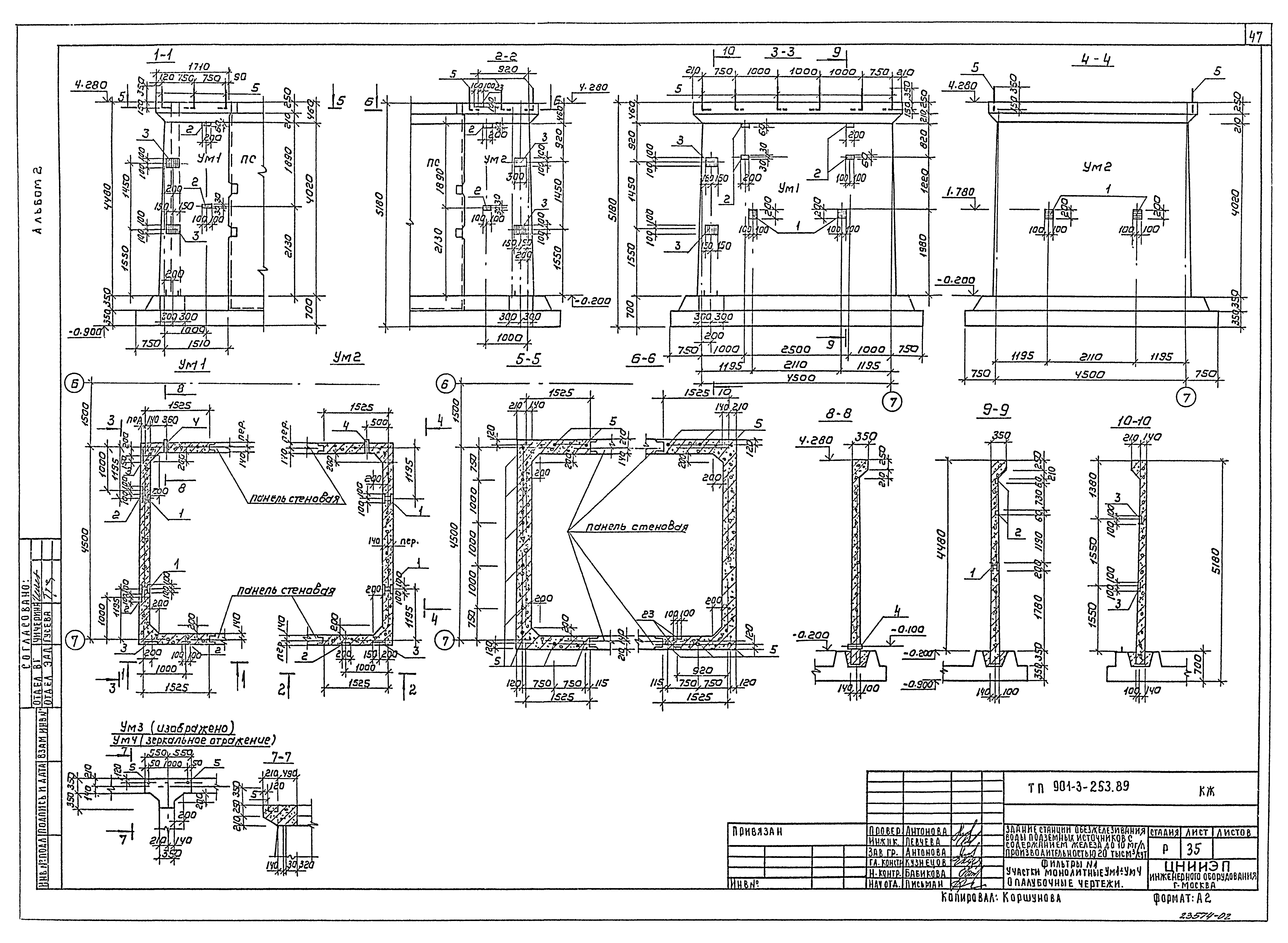
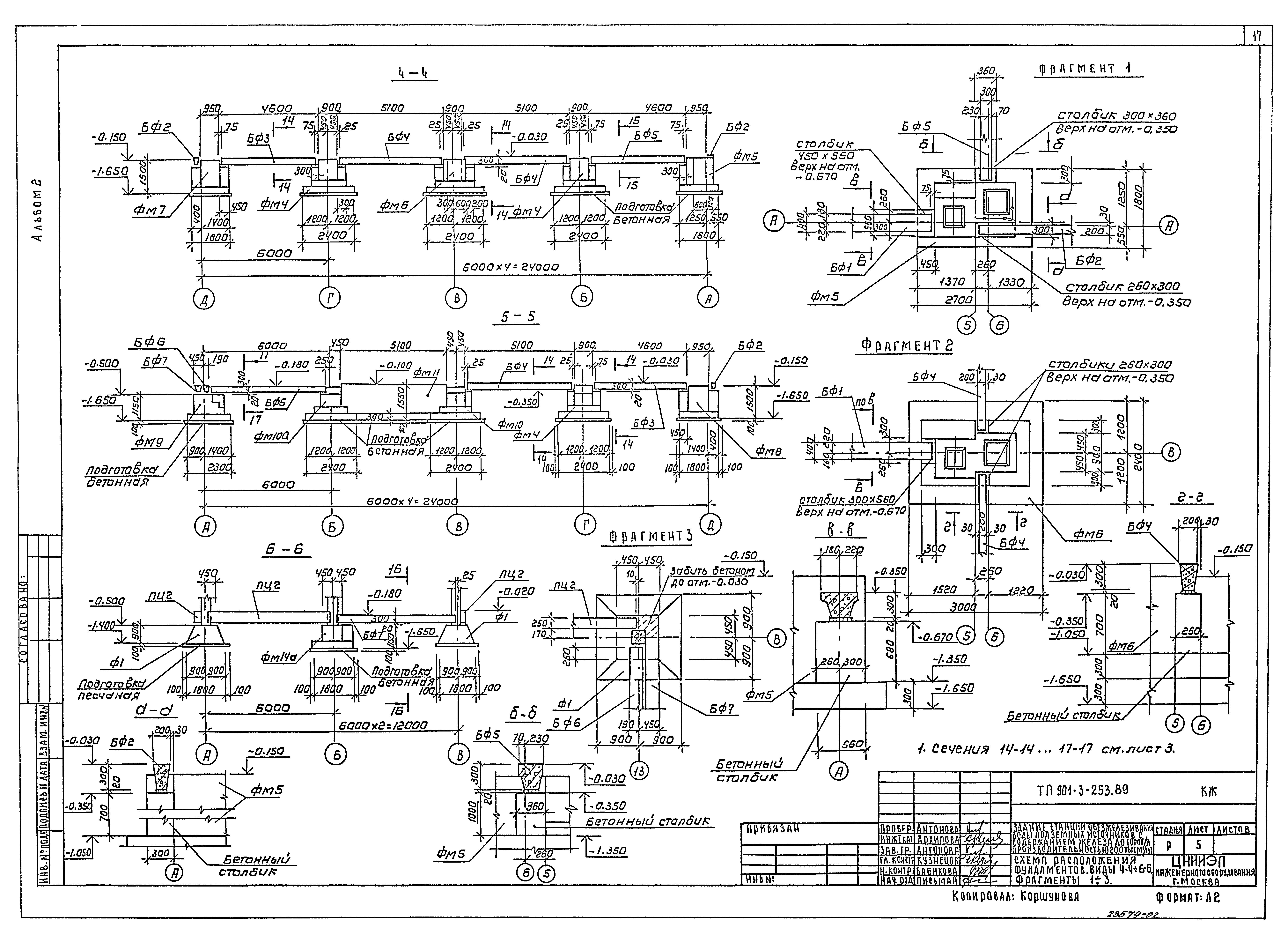
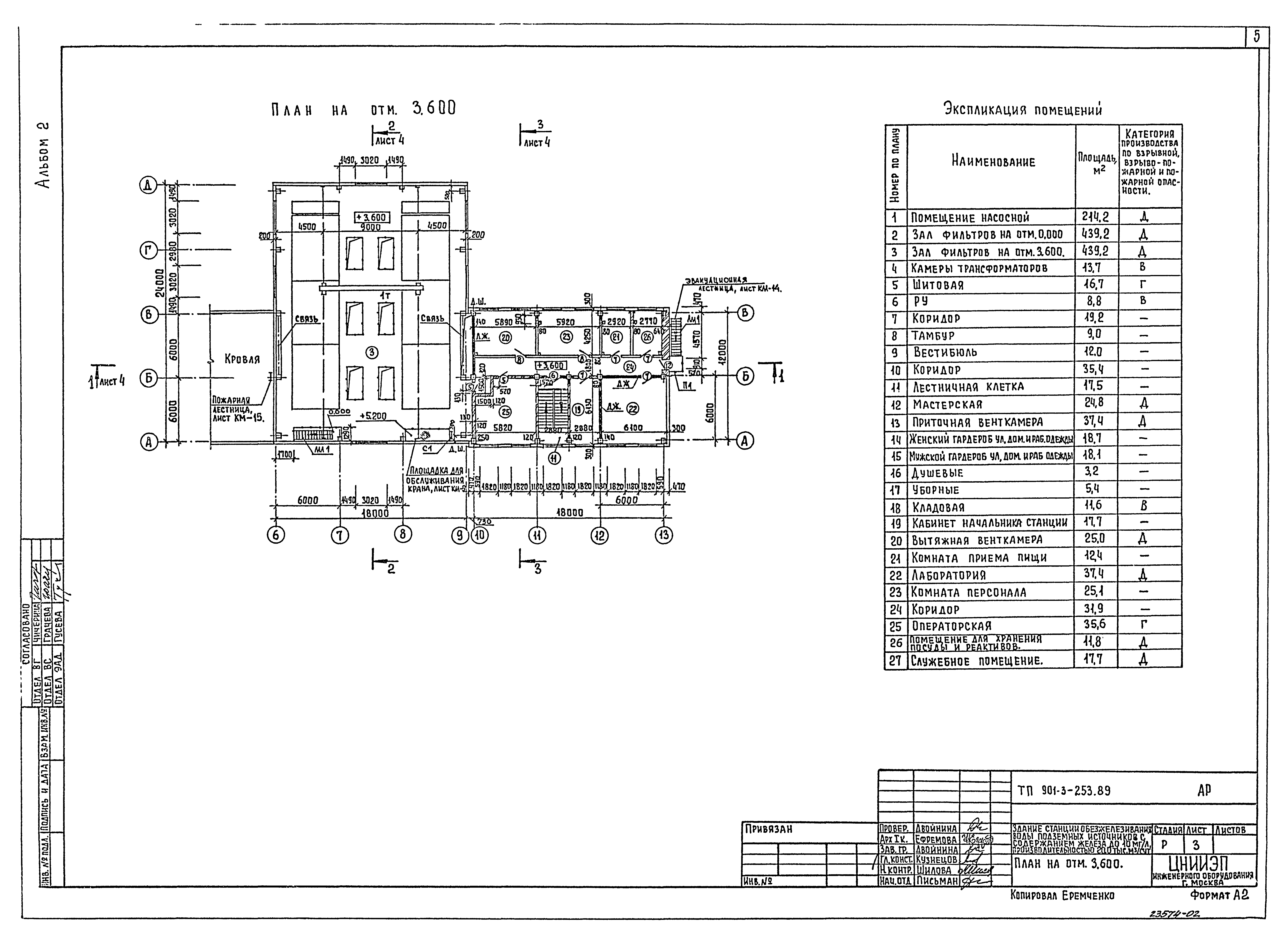
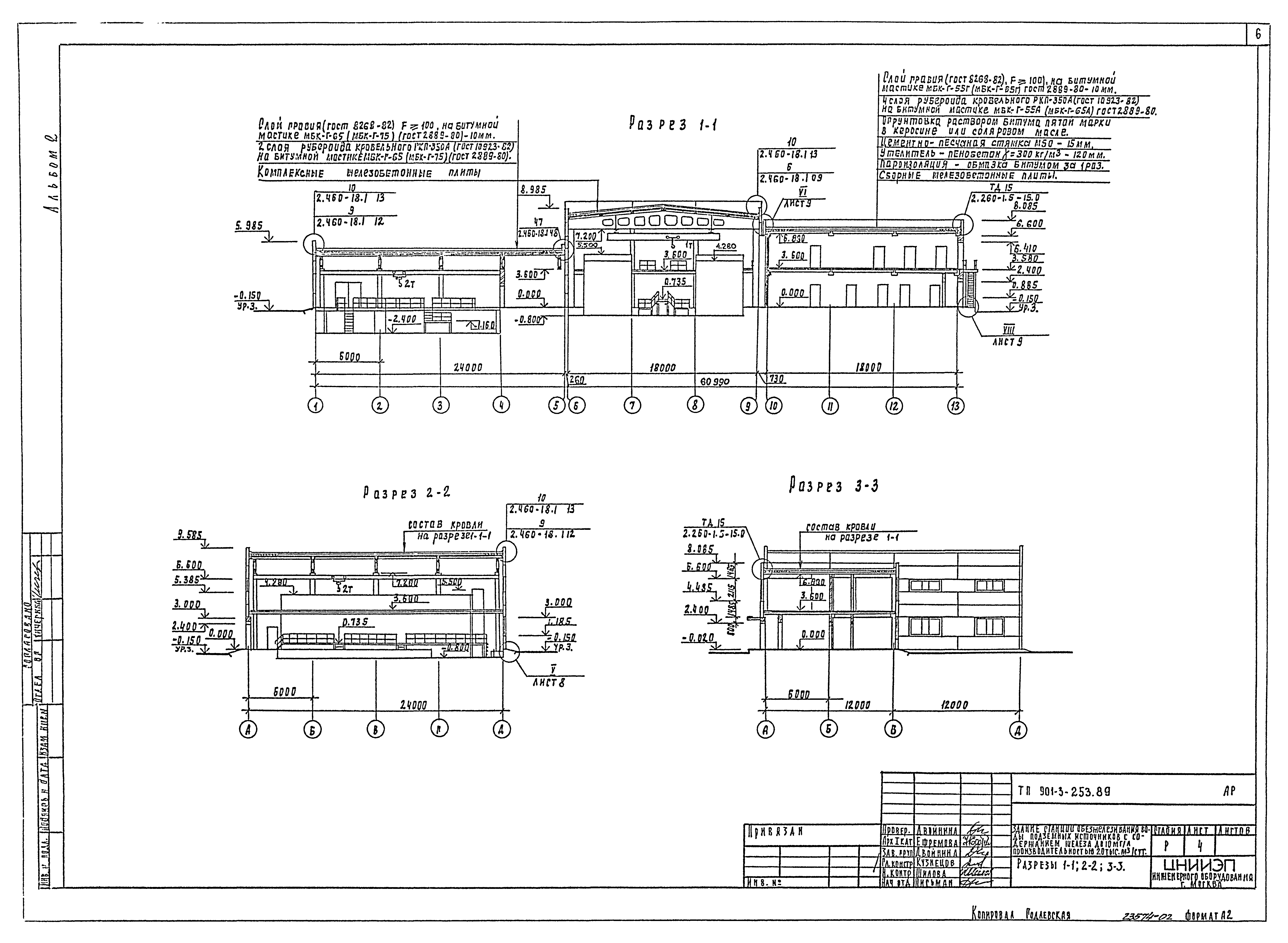
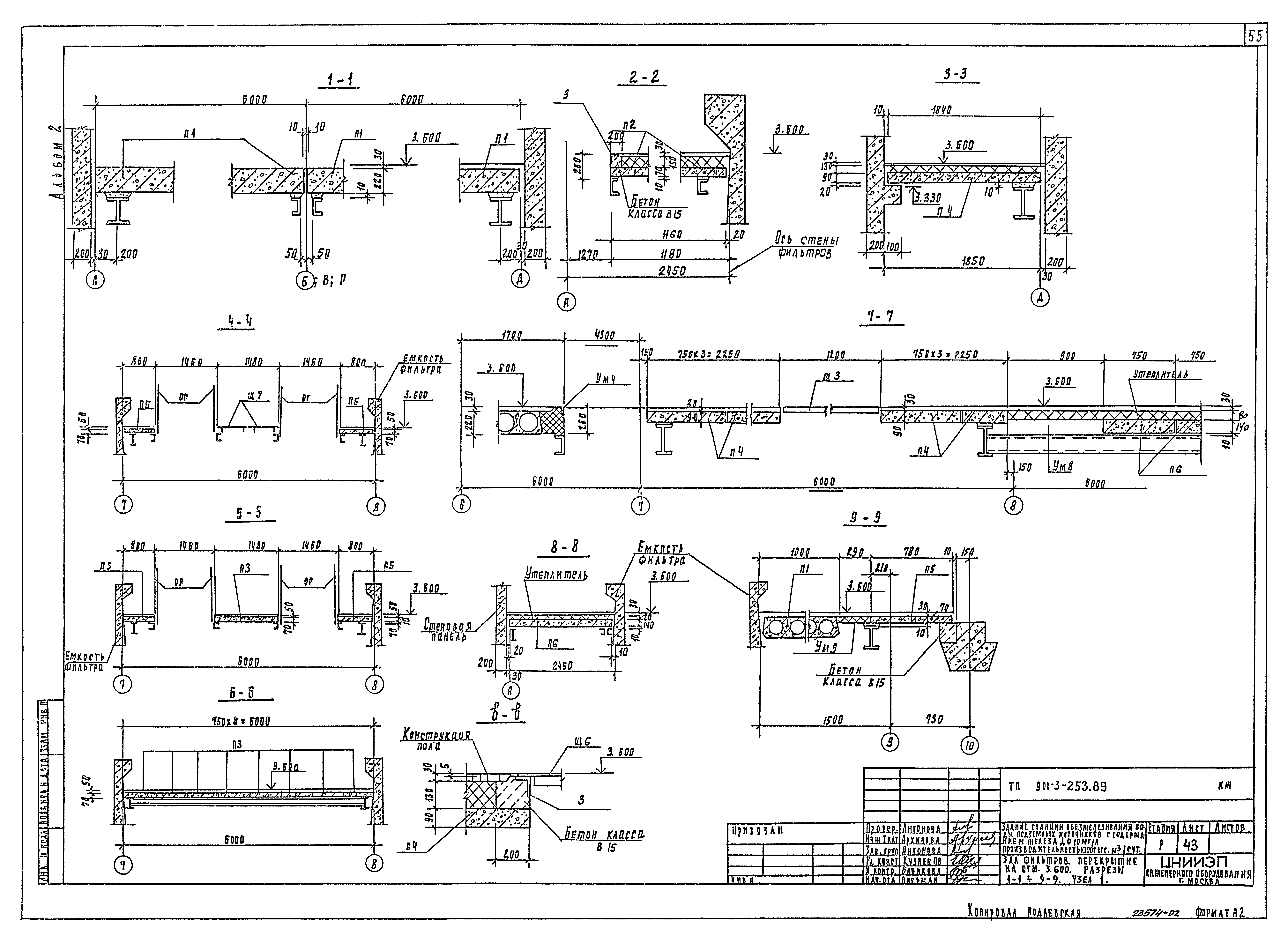
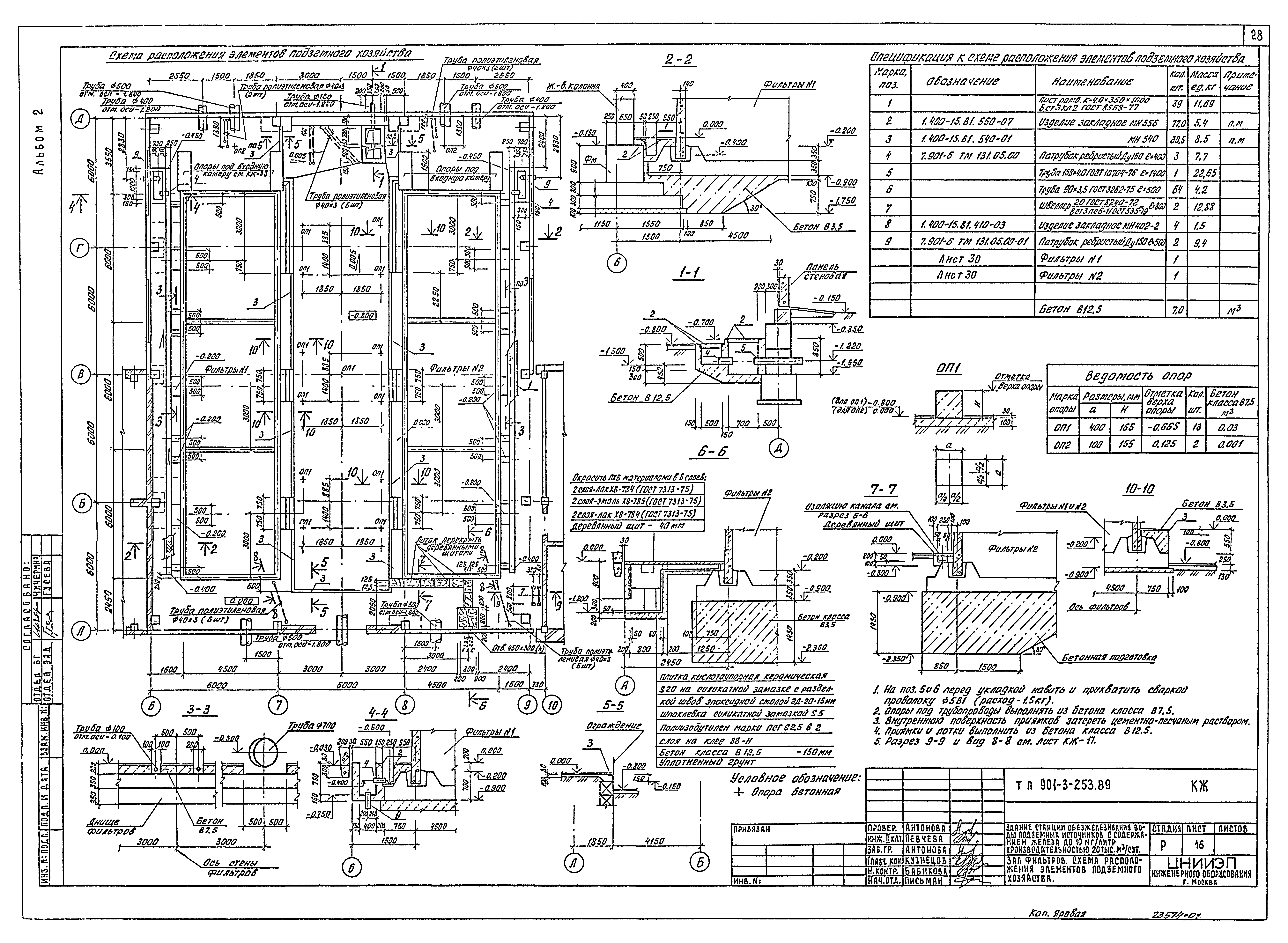
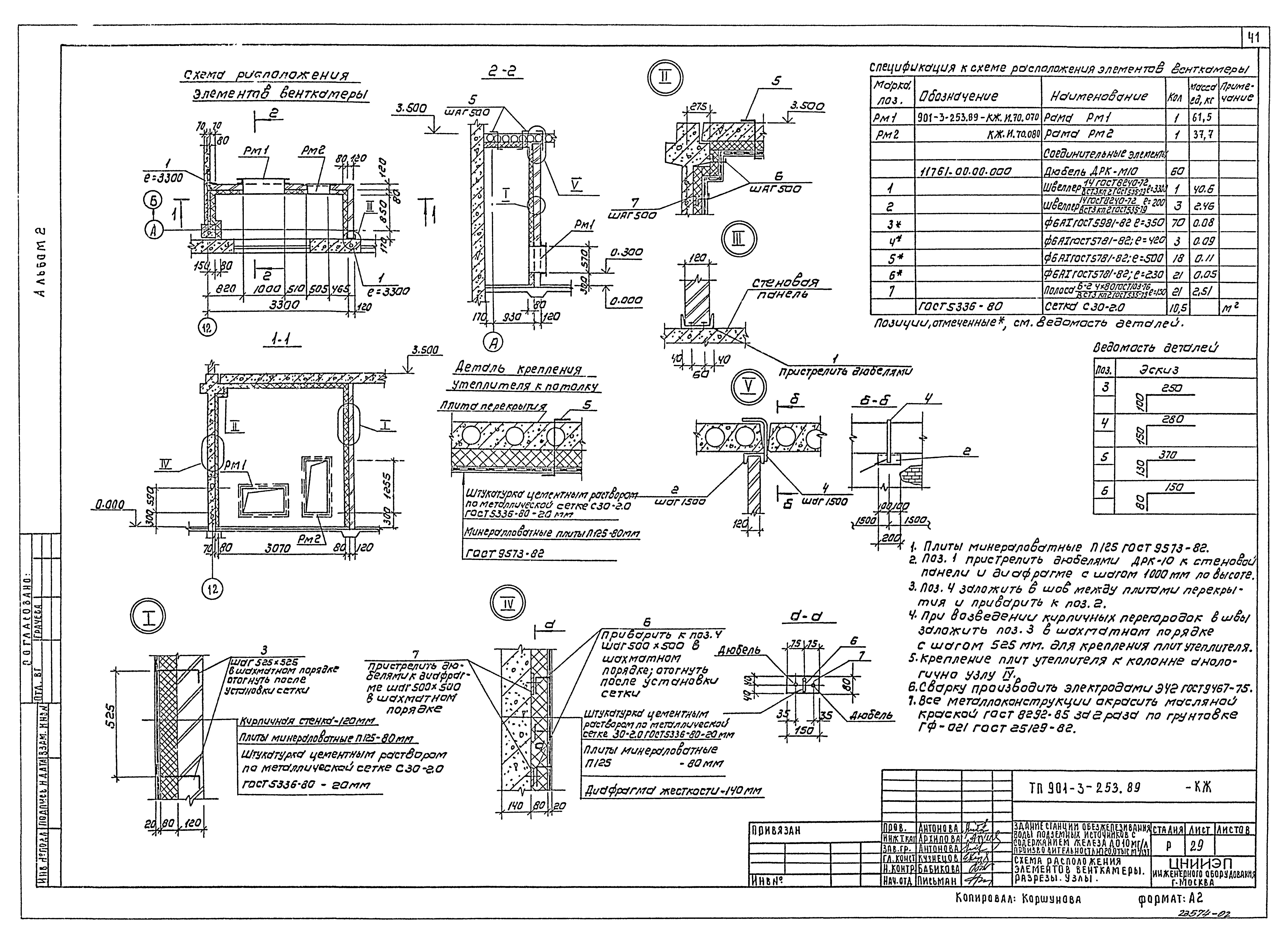
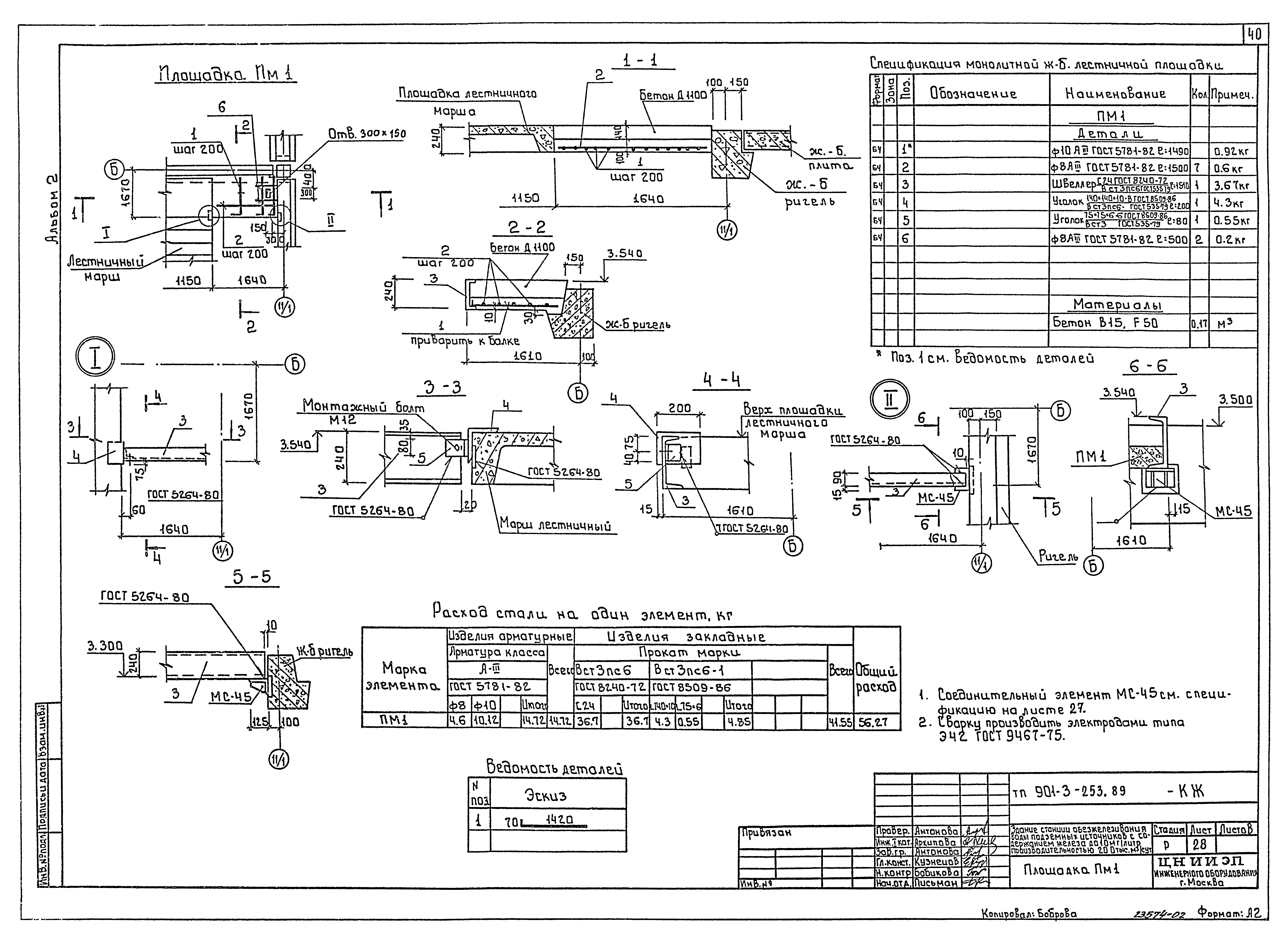
Типовой проект 901-3-253.89

Альбом 2. Архитектурные решения. Конструкции железобетонные. Конструкции металлические. Организация строительства

Обозначение: Типовой проект 901-3-253.89
Обозначение англ: 901-3-253.89
Статус:не определен законодательством
Название рус.:Альбом 2. Архитектурные решения. Конструкции железобетонные. Конструкции металлические. Организация строительства
Дата добавления в базу:01.01.2018
Дата актуализации:01.01.2021
Дата введения:27.12.1988
Дата окончания срока действия:30.06.2003
Разработан: ЦНИИЭП
Утверждён:18.11.1985 Госгражданстрой (Gosgrazhdanstroy 346)
Издан: ЦИТП Госстроя СССР (CITP, Gosstroy (USSR) 1989 г. )
Заменяет собой:
  • Типовой проект 901-3-117
Нормативные ссылки:
Типовой проект 901-3-253.89Типовой проект 901-3-253.89Типовой проект 901-3-253.89Типовой проект 901-3-253.89Типовой проект 901-3-253.89Типовой проект 901-3-253.89Типовой проект 901-3-253.89Типовой проект 901-3-253.89Типовой проект 901-3-253.89Типовой проект 901-3-253.89Типовой проект 901-3-253.89Типовой проект 901-3-253.89Типовой проект 901-3-253.89Типовой проект 901-3-253.89Типовой проект 901-3-253.89Типовой проект 901-3-253.89Типовой проект 901-3-253.89Типовой проект 901-3-253.89Типовой проект 901-3-253.89Типовой проект 901-3-253.89Типовой проект 901-3-253.89Типовой проект 901-3-253.89Типовой проект 901-3-253.89Типовой проект 901-3-253.89Типовой проект 901-3-253.89Типовой проект 901-3-253.89Типовой проект 901-3-253.89Типовой проект 901-3-253.89Типовой проект 901-3-253.89Типовой проект 901-3-253.89Типовой проект 901-3-253.89Типовой проект 901-3-253.89Типовой проект 901-3-253.89Типовой проект 901-3-253.89Типовой проект 901-3-253.89Типовой проект 901-3-253.89Типовой проект 901-3-253.89Типовой проект 901-3-253.89Типовой проект 901-3-253.89Типовой проект 901-3-253.89Типовой проект 901-3-253.89Типовой проект 901-3-253.89Типовой проект 901-3-253.89Типовой проект 901-3-253.89Типовой проект 901-3-253.89Типовой проект 901-3-253.89Типовой проект 901-3-253.89Типовой проект 901-3-253.89Типовой проект 901-3-253.89Типовой проект 901-3-253.89Типовой проект 901-3-253.89Типовой проект 901-3-253.89Типовой проект 901-3-253.89Типовой проект 901-3-253.89Типовой проект 901-3-253.89Типовой проект 901-3-253.89Типовой проект 901-3-253.89Типовой проект 901-3-253.89Типовой проект 901-3-253.89Типовой проект 901-3-253.89Типовой проект 901-3-253.89Типовой проект 901-3-253.89Типовой проект 901-3-253.89Типовой проект 901-3-253.89Типовой проект 901-3-253.89Типовой проект 901-3-253.89Типовой проект 901-3-253.89Типовой проект 901-3-253.89Типовой проект 901-3-253.89Типовой проект 901-3-253.89Типовой проект 901-3-253.89Типовой проект 901-3-253.89Типовой проект 901-3-253.89Типовой проект 901-3-253.89Типовой проект 901-3-253.89Типовой проект 901-3-253.89Типовой проект 901-3-253.89