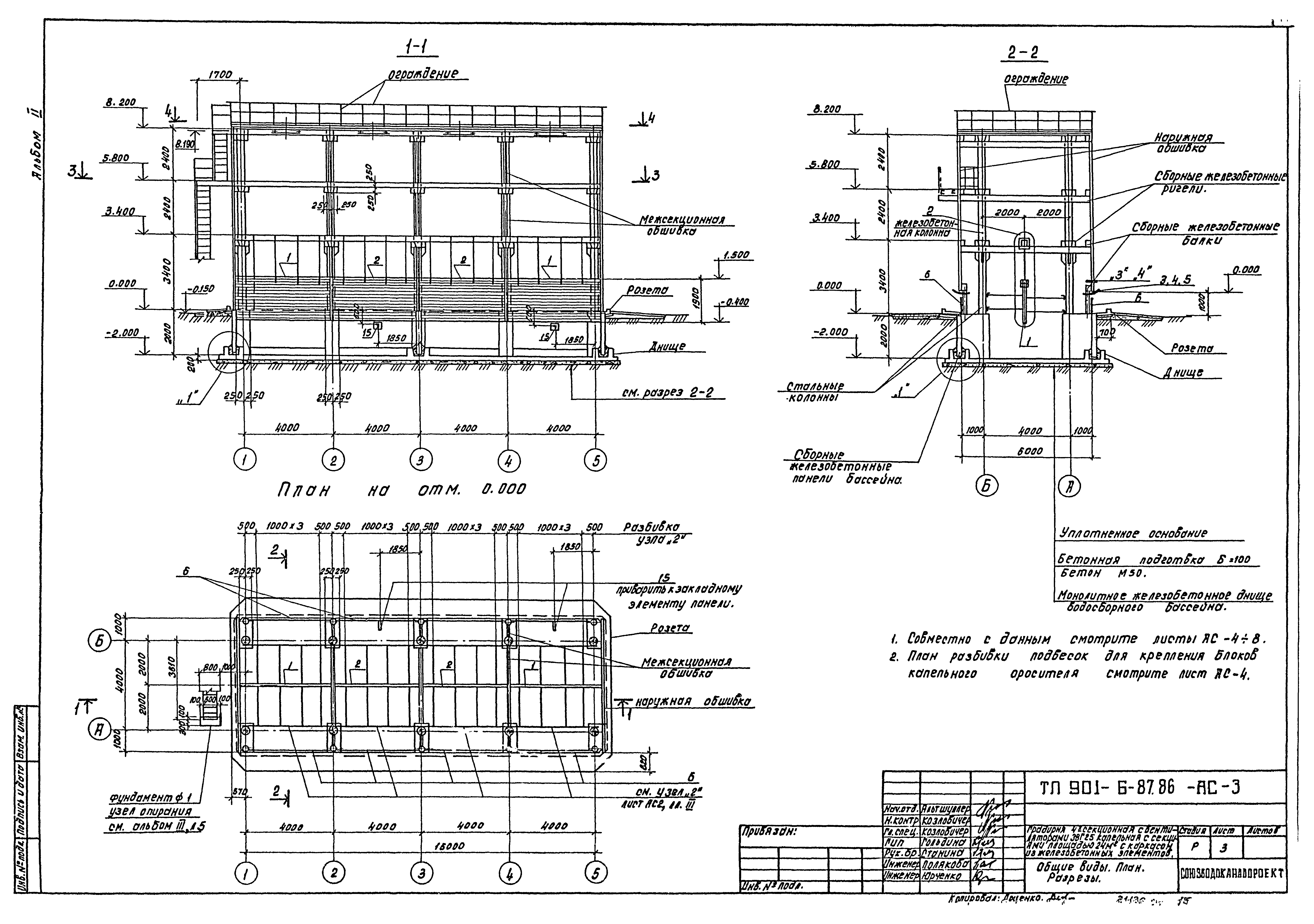
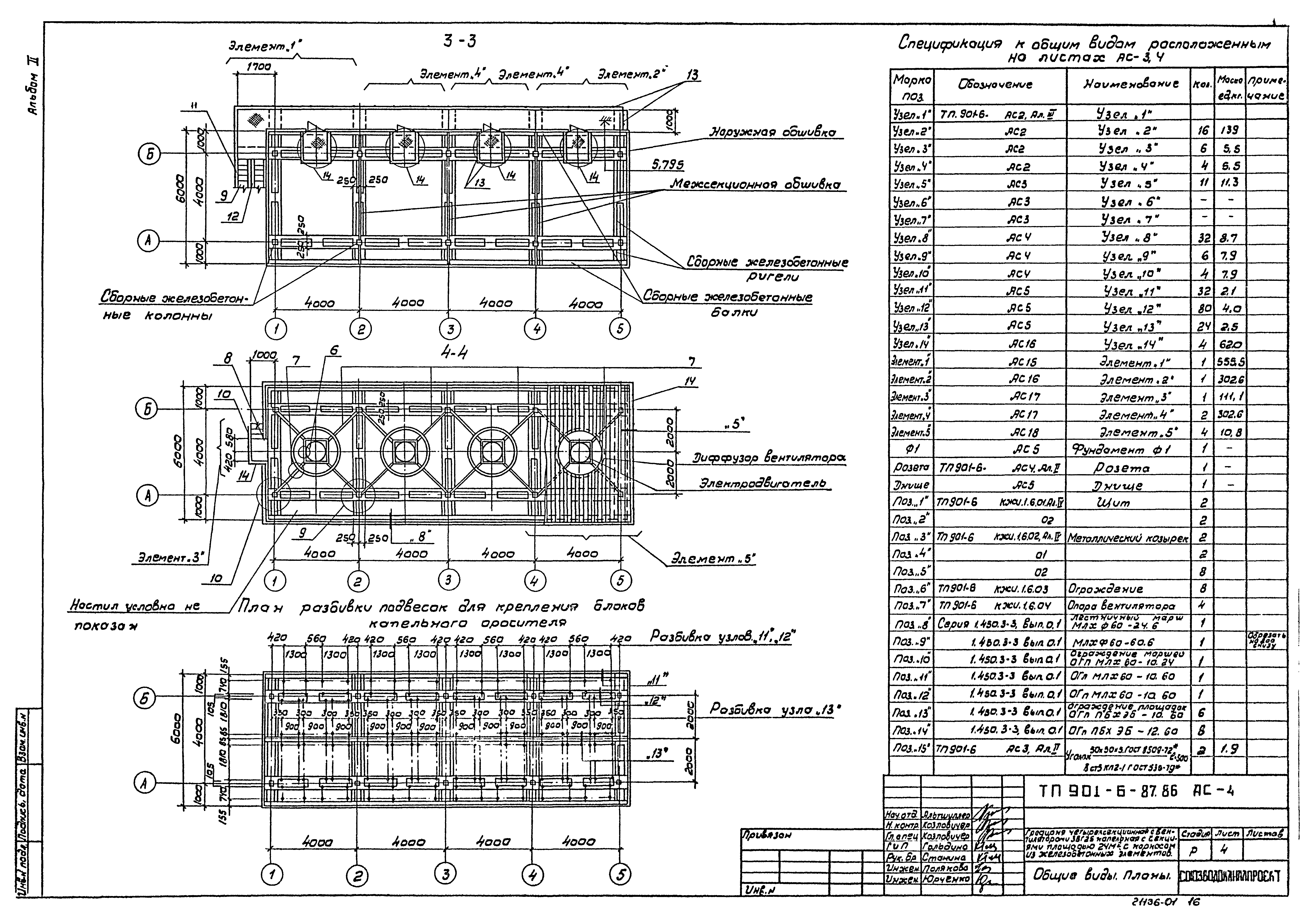
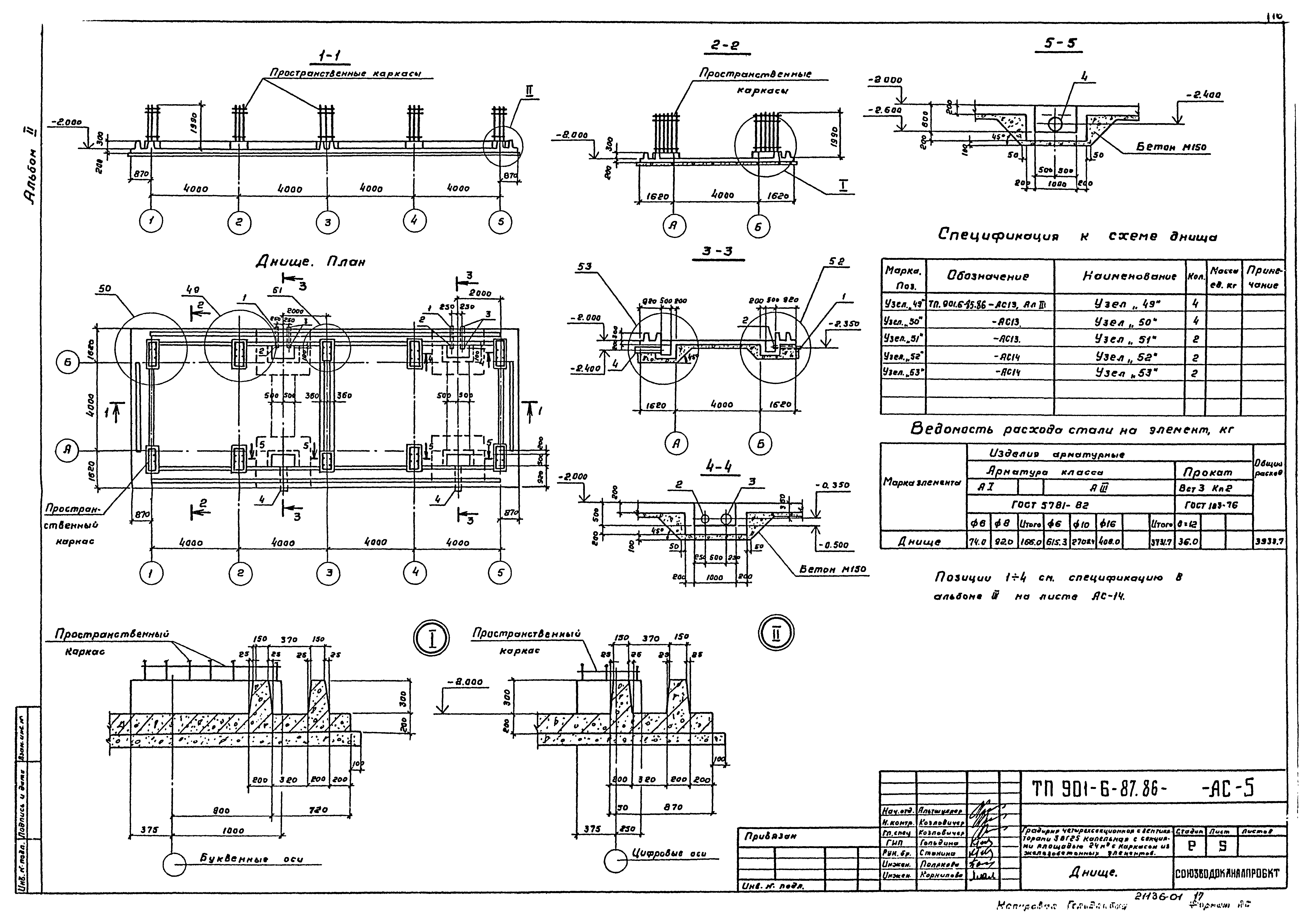
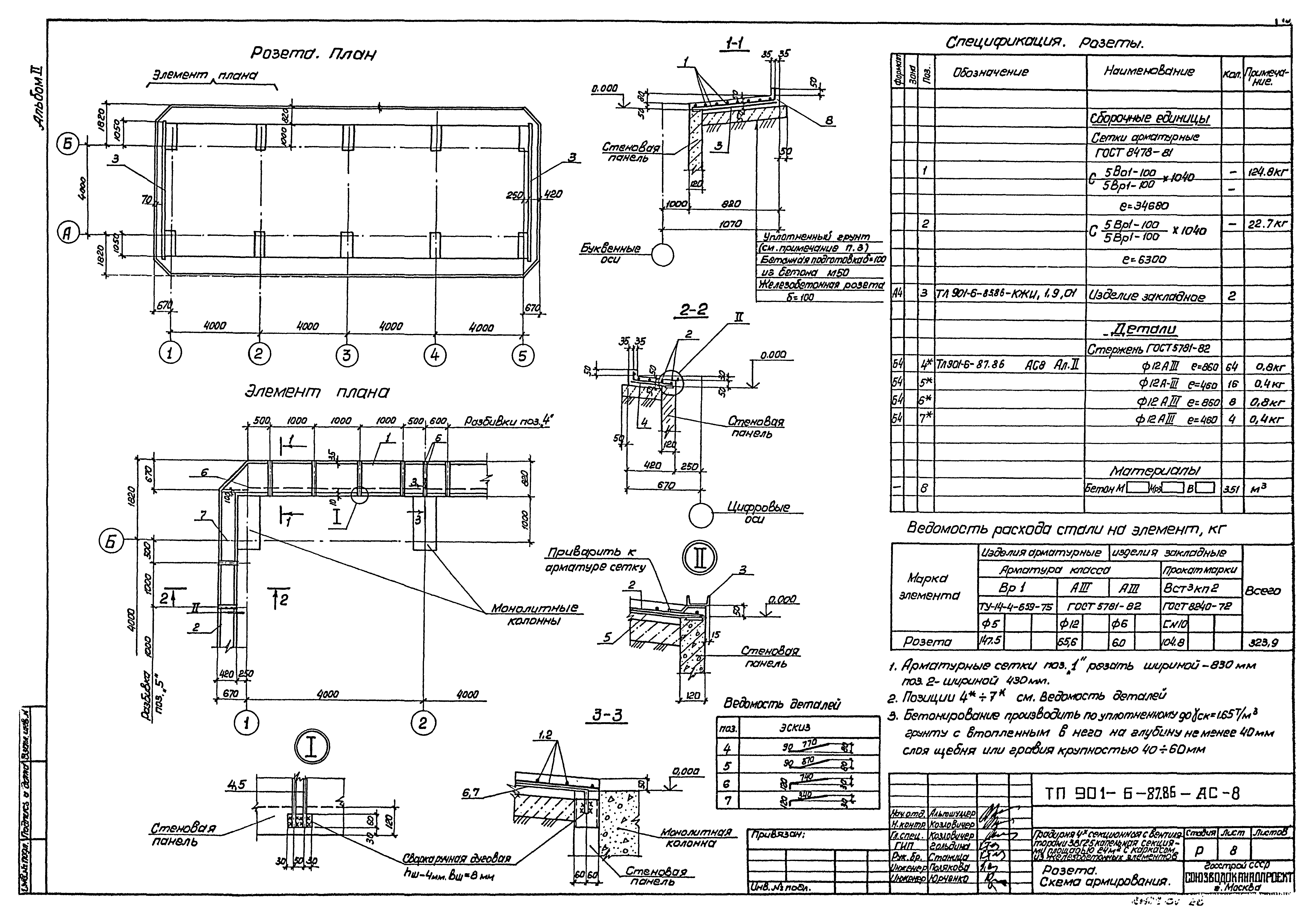
Скачать Типовой проект 901-6-87.86 Альбом II. Технологические, архитектурно-строительные и электротехнические чертежи. Спецификации оборудованияДата актуализации: 01.01.2021 Типовой проект 901-6-87.86
Альбом II. Технологические, архитектурно-строительные и электротехнические чертежи. Спецификации оборудования| Обозначение: | Типовой проект 901-6-87.86 | | Обозначение англ: | 901-6-87.86 | | Статус: | отменен | | Название рус.: | Альбом II. Технологические, архитектурно-строительные и электротехнические чертежи. Спецификации оборудования | | Дата добавления в базу: | 01.01.2018 | | Дата актуализации: | 01.01.2021 | | Дата введения: | 22.08.1985 | | Дата окончания срока действия: | 01.01.1991 | | Разработан: | Союзводоканалпроект
| | Утверждён: | 03.12.1984 Госстрой СССР (37)
| | Издан: | ЦИТП Госстроя СССР (CITP, Gosstroy (USSR) 1986 г. )
| | Заменяет собой: | | | Нормативные ссылки: | |
                                  
|