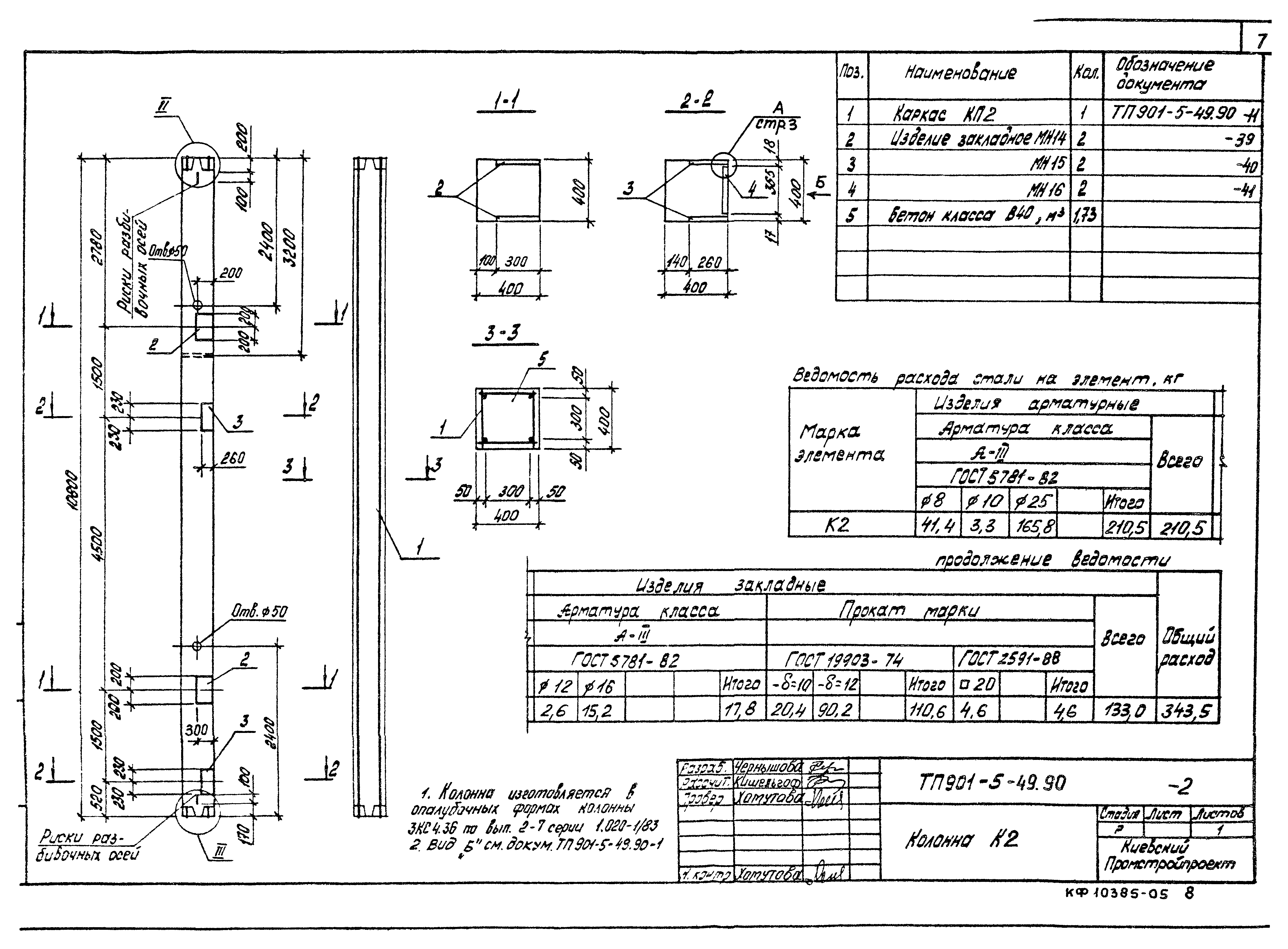
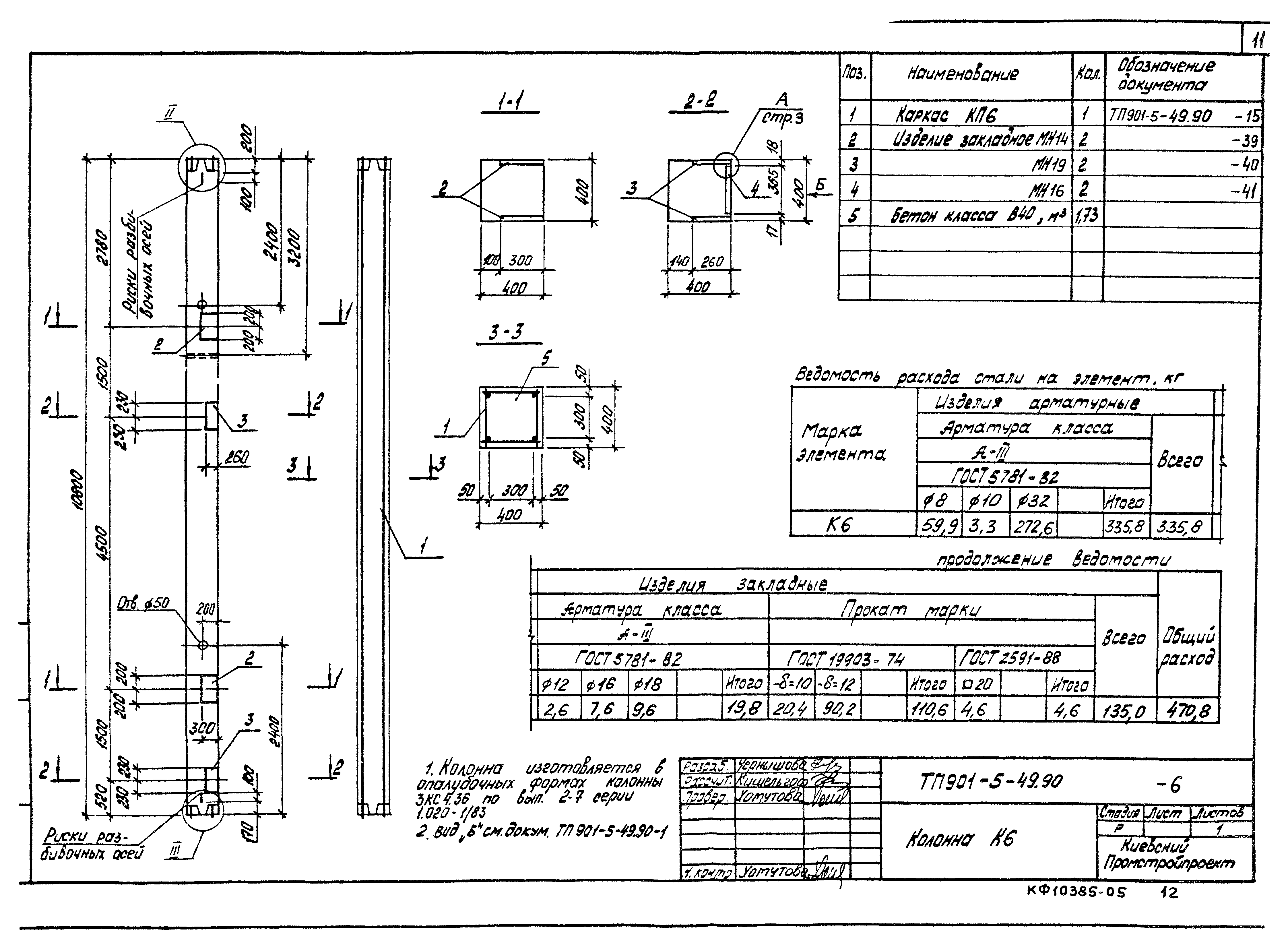
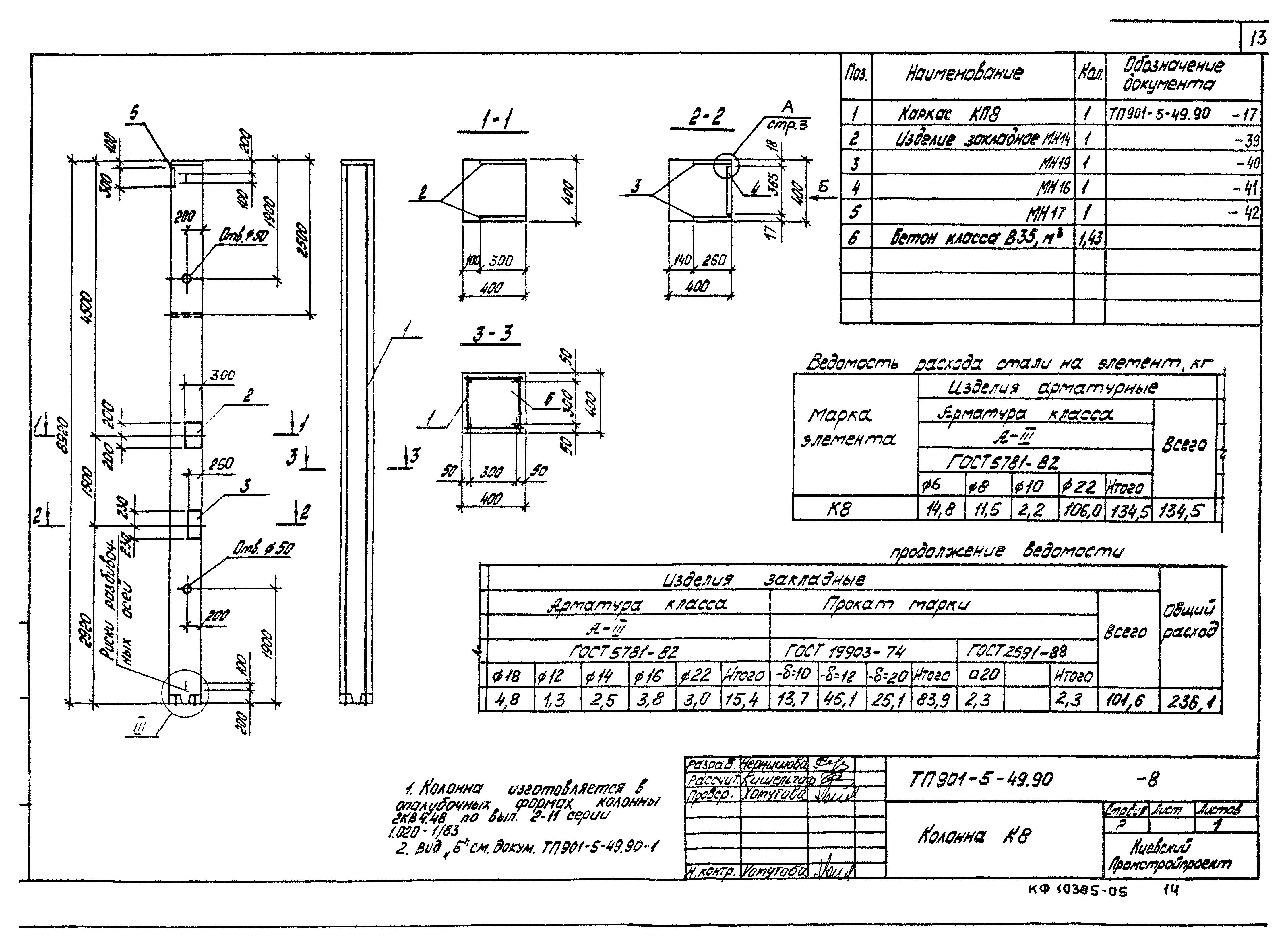
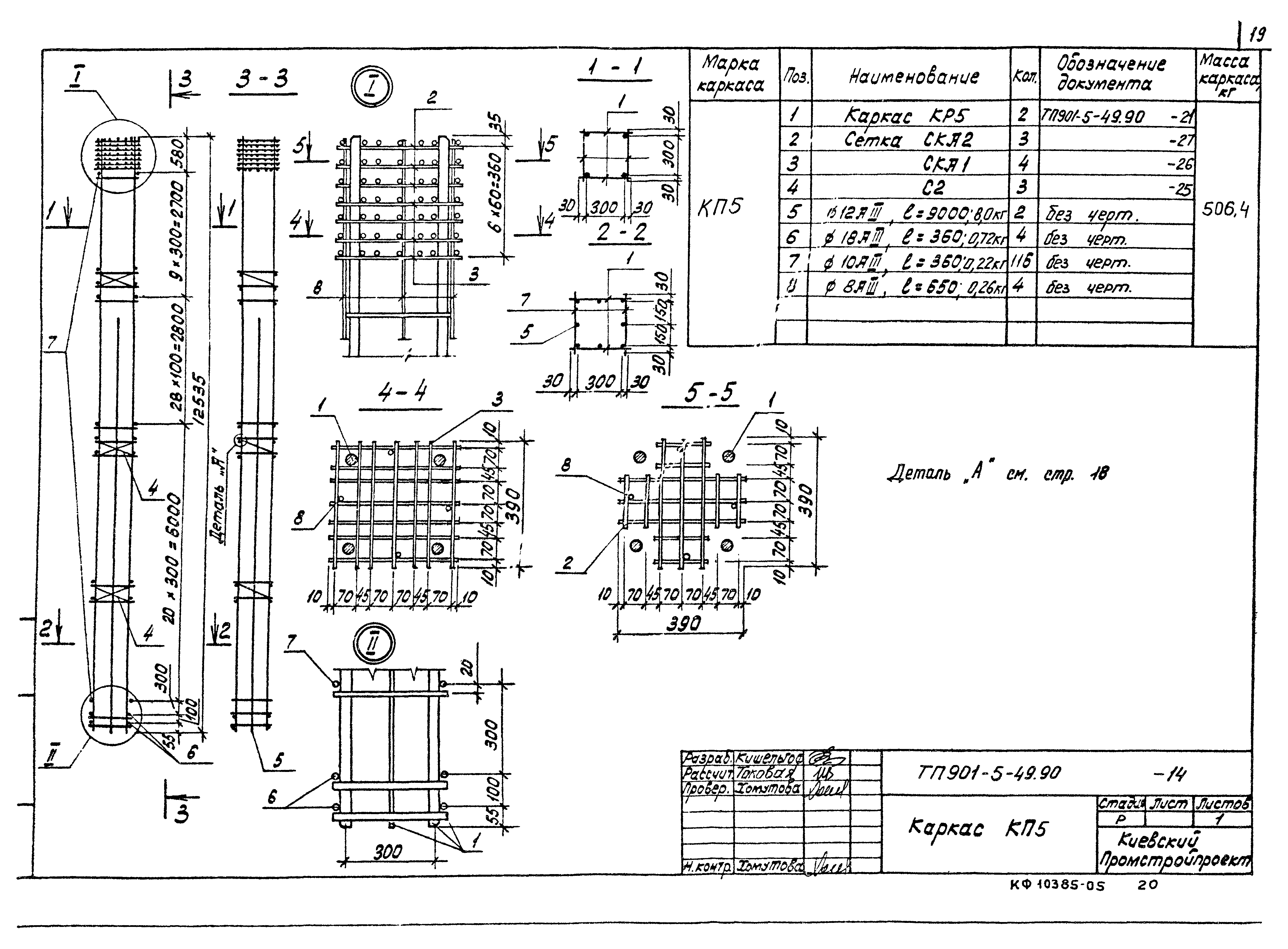
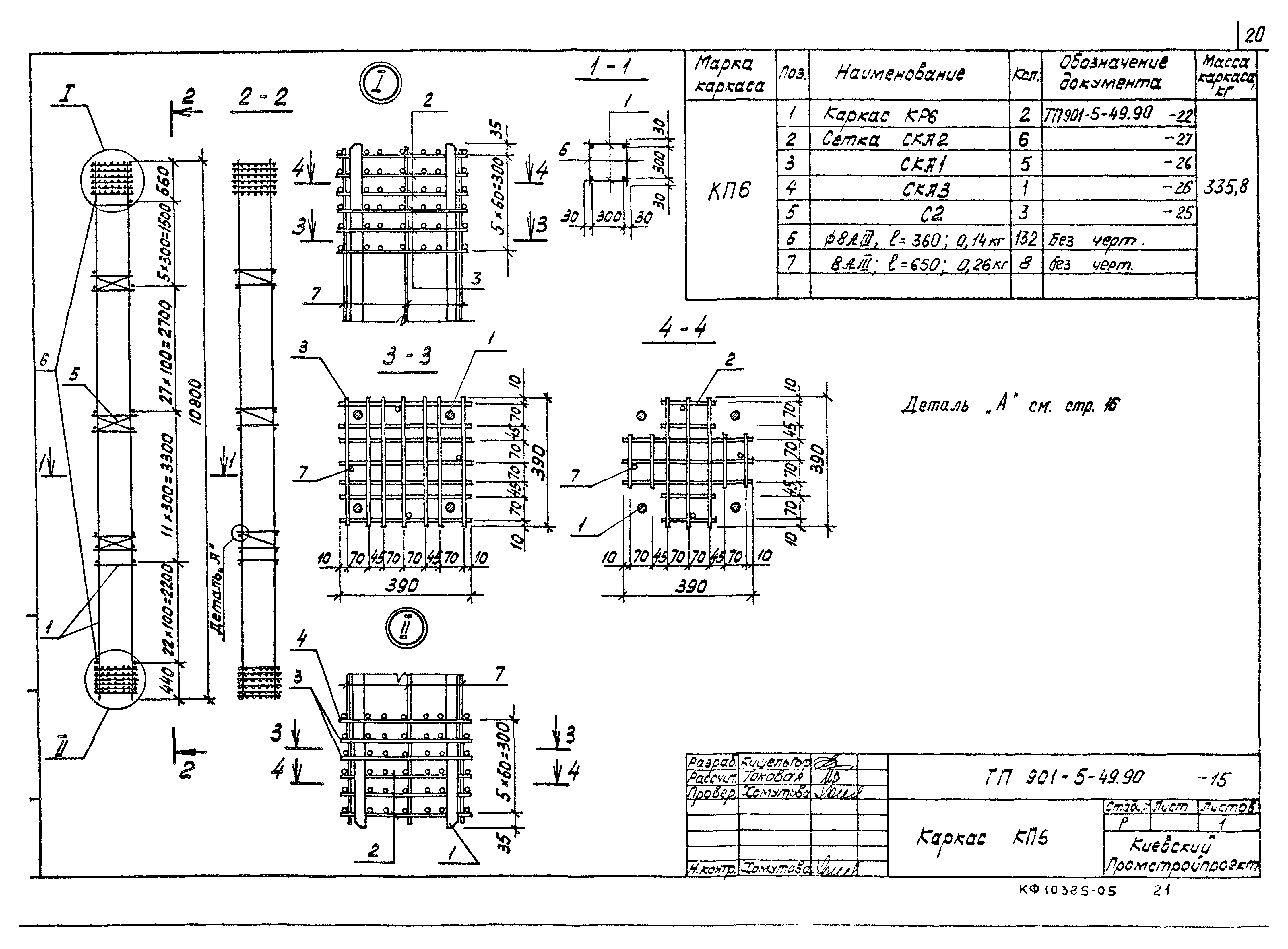
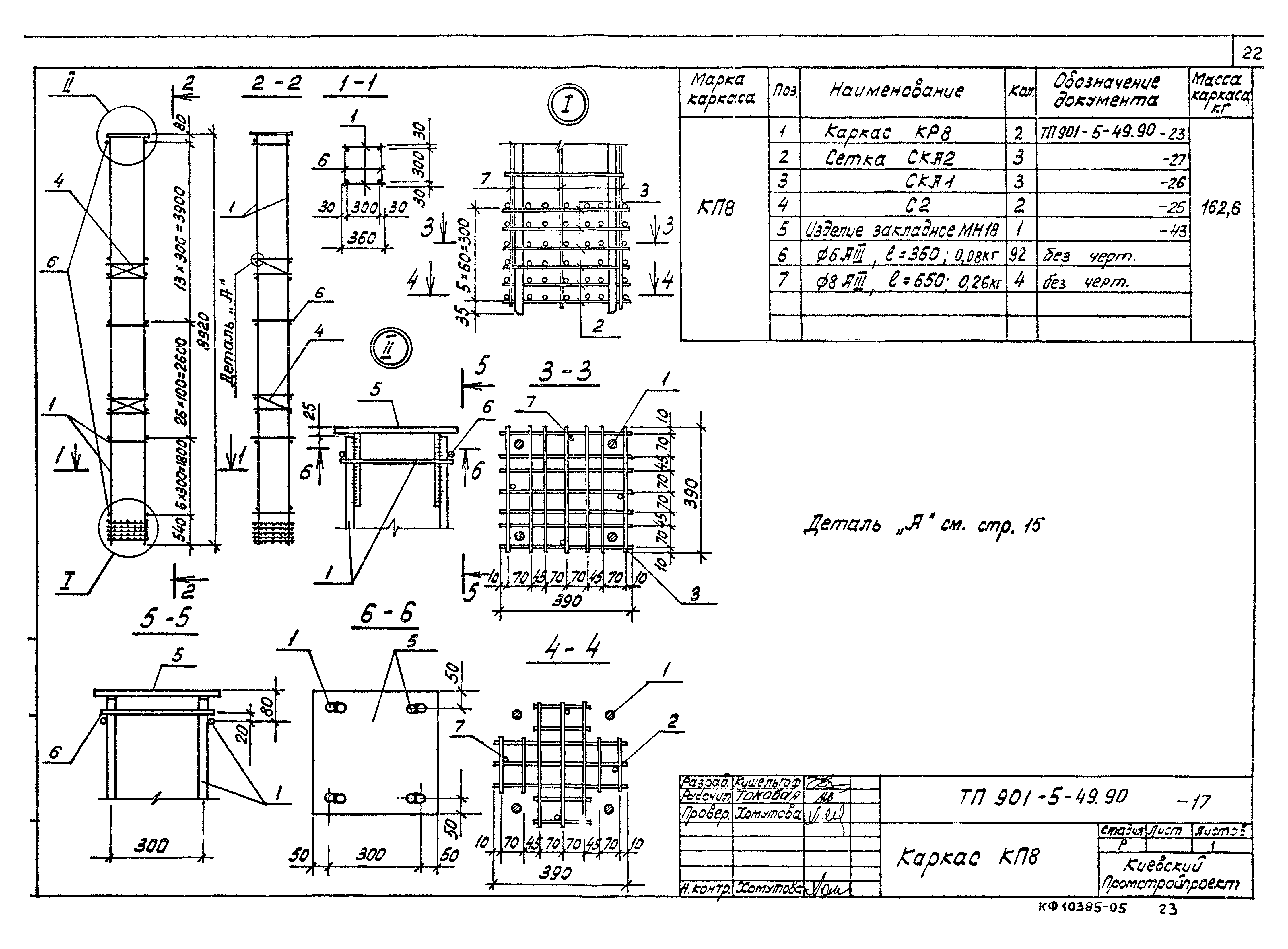
Скачать Типовой проект 901-5-49.90 Альбом 5. Конструкции железобетонные сборные. Арматурные и закладные изделияДата актуализации: 01.01.2021
|
| Обозначение: | Типовой проект 901-5-49.90 |
| Обозначение англ: | 901-5-49.90 |
| Статус: | не определен законодательством |
| Название рус.: | Альбом 5. Конструкции железобетонные сборные. Арматурные и закладные изделия |
| Дата добавления в базу: | 01.01.2018 |
| Дата актуализации: | 01.01.2021 |
| Дата введения: | 01.04.1991 |
| Дата окончания срока действия: | 30.06.2003 |
| Разработан: | ГПИ Укрводоканалпроект |
| Утверждён: | 28.08.1990 Госстрой СССР (11) |
| Издан: | ЦИТП Госстроя СССР (CITP, Gosstroy (USSR) 1991 г. ) |







































