Скачать Типовые проектные решения 901-3-0271.89 Альбом 2. Архитектурно-строительные решения (рекомендации). Технология производства. Внутренние водопровод и канализация. Отопление и вентиляция

Дата актуализации: 01.01.2021

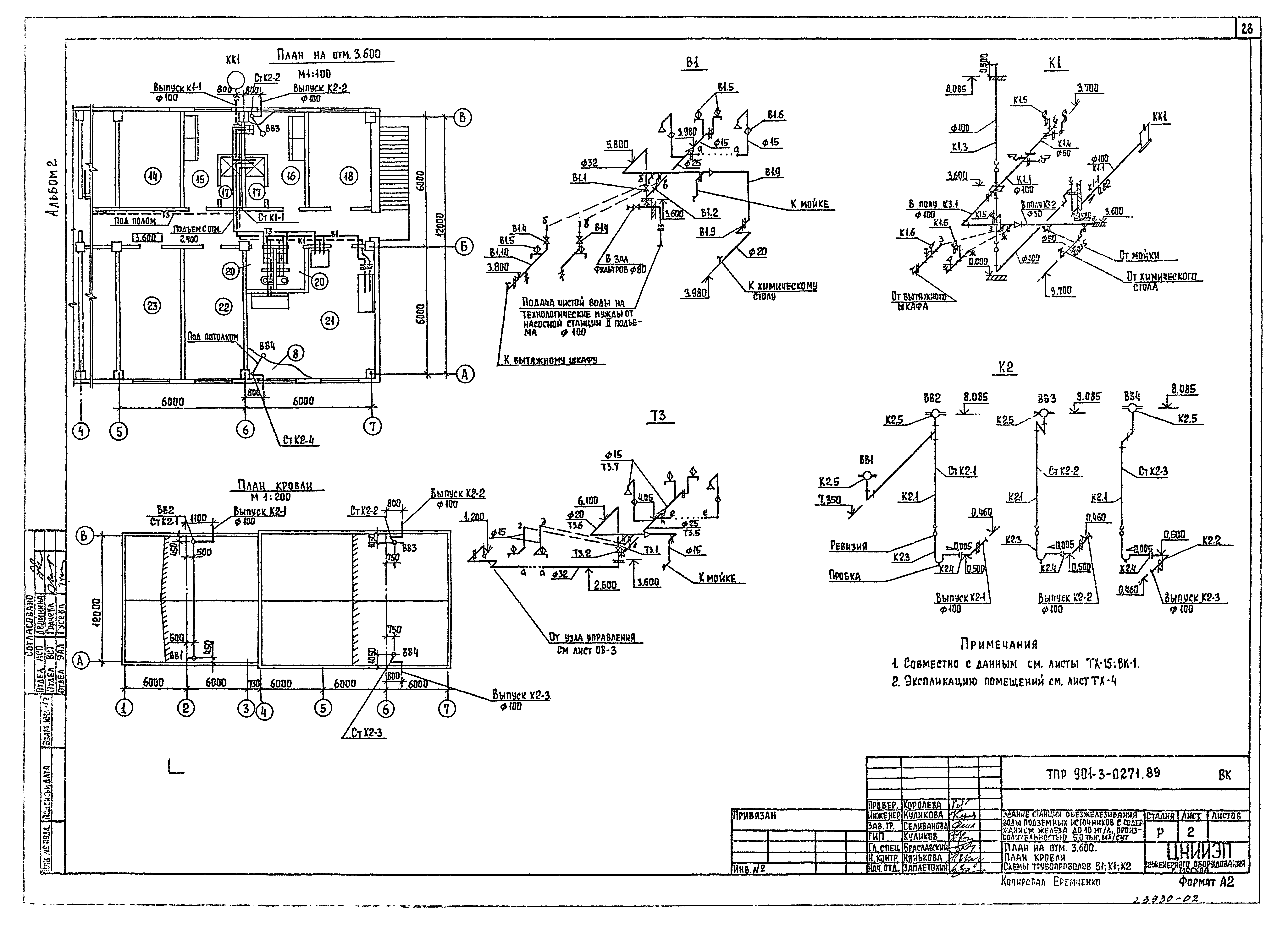
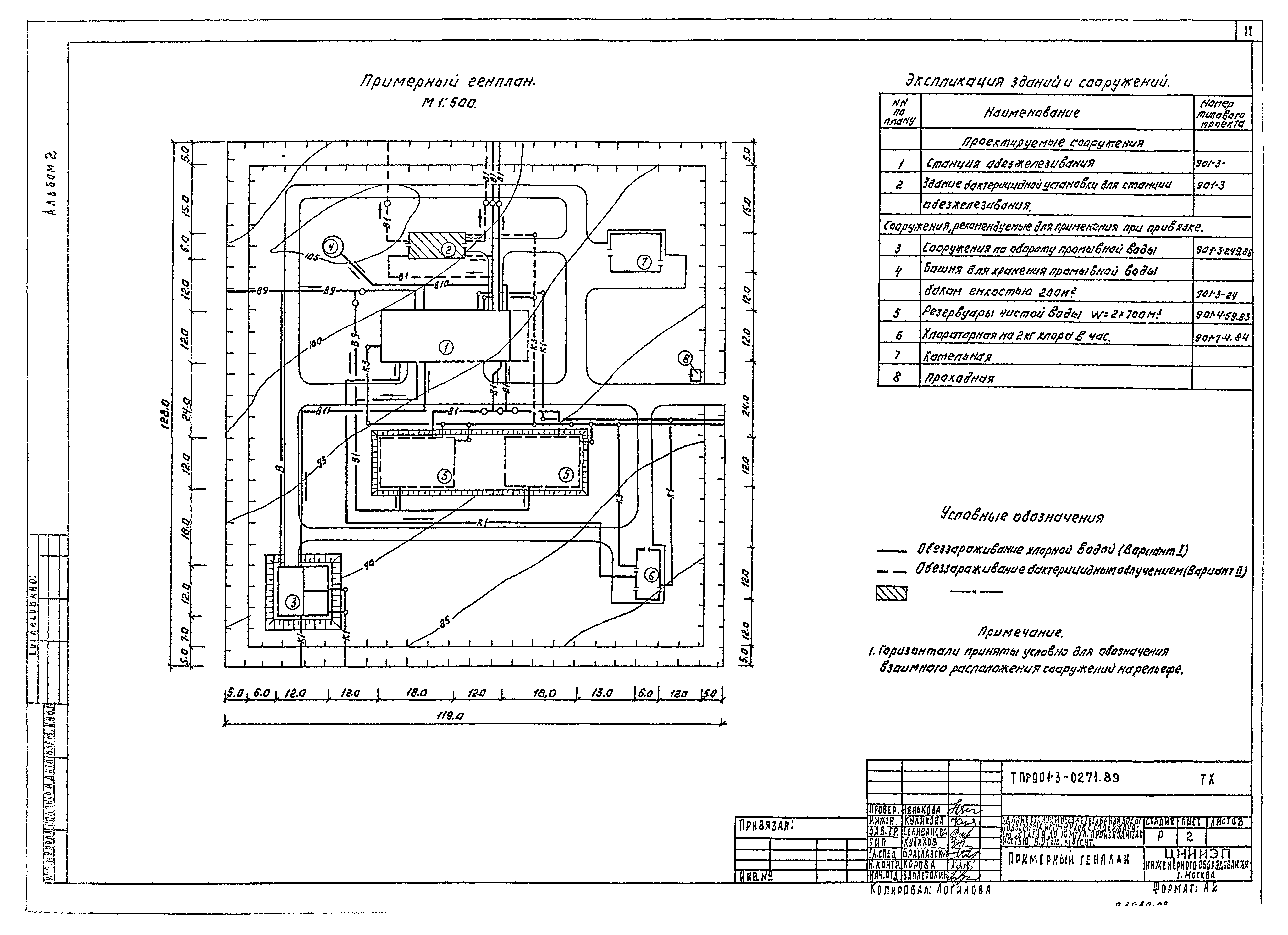
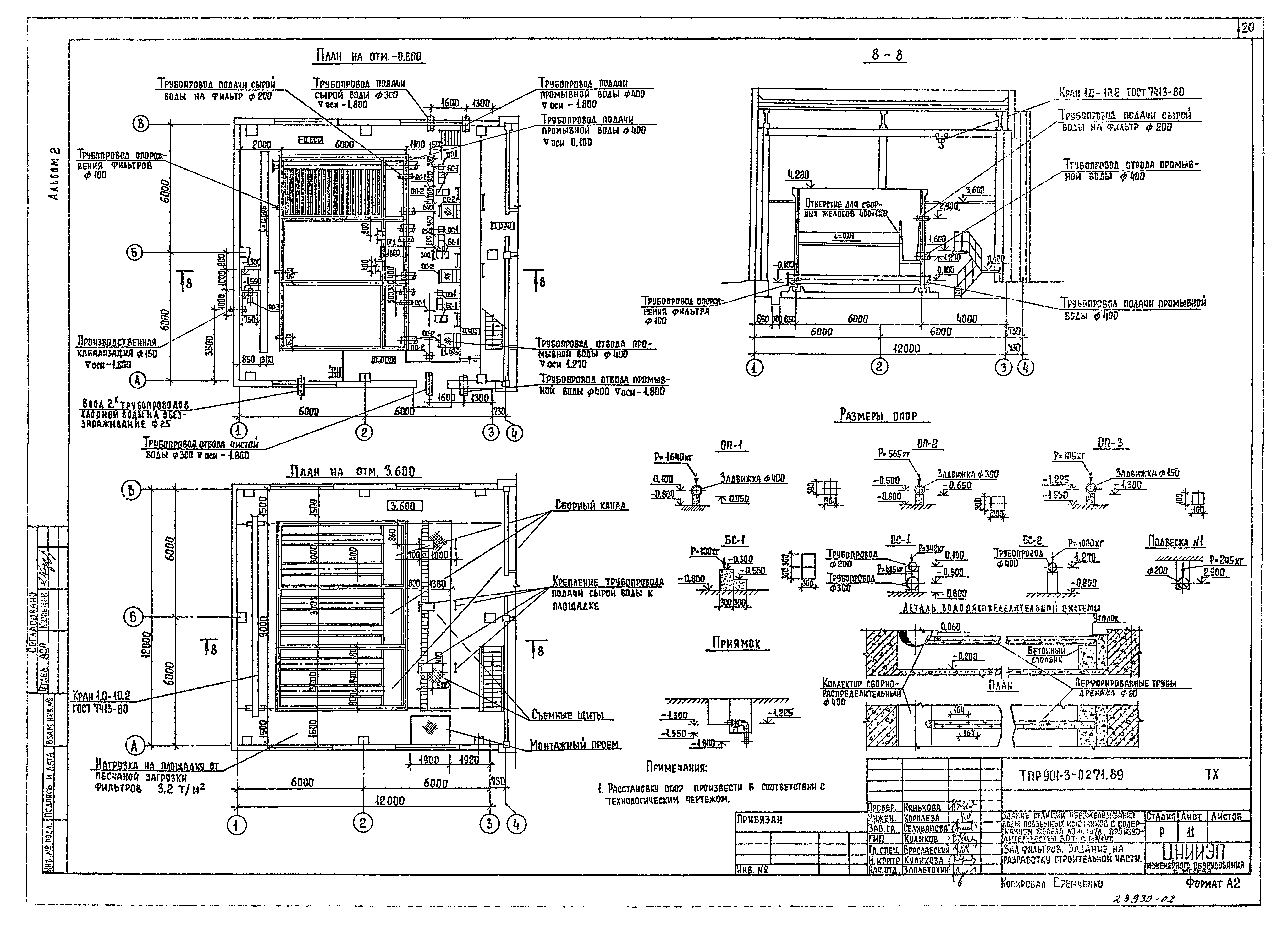
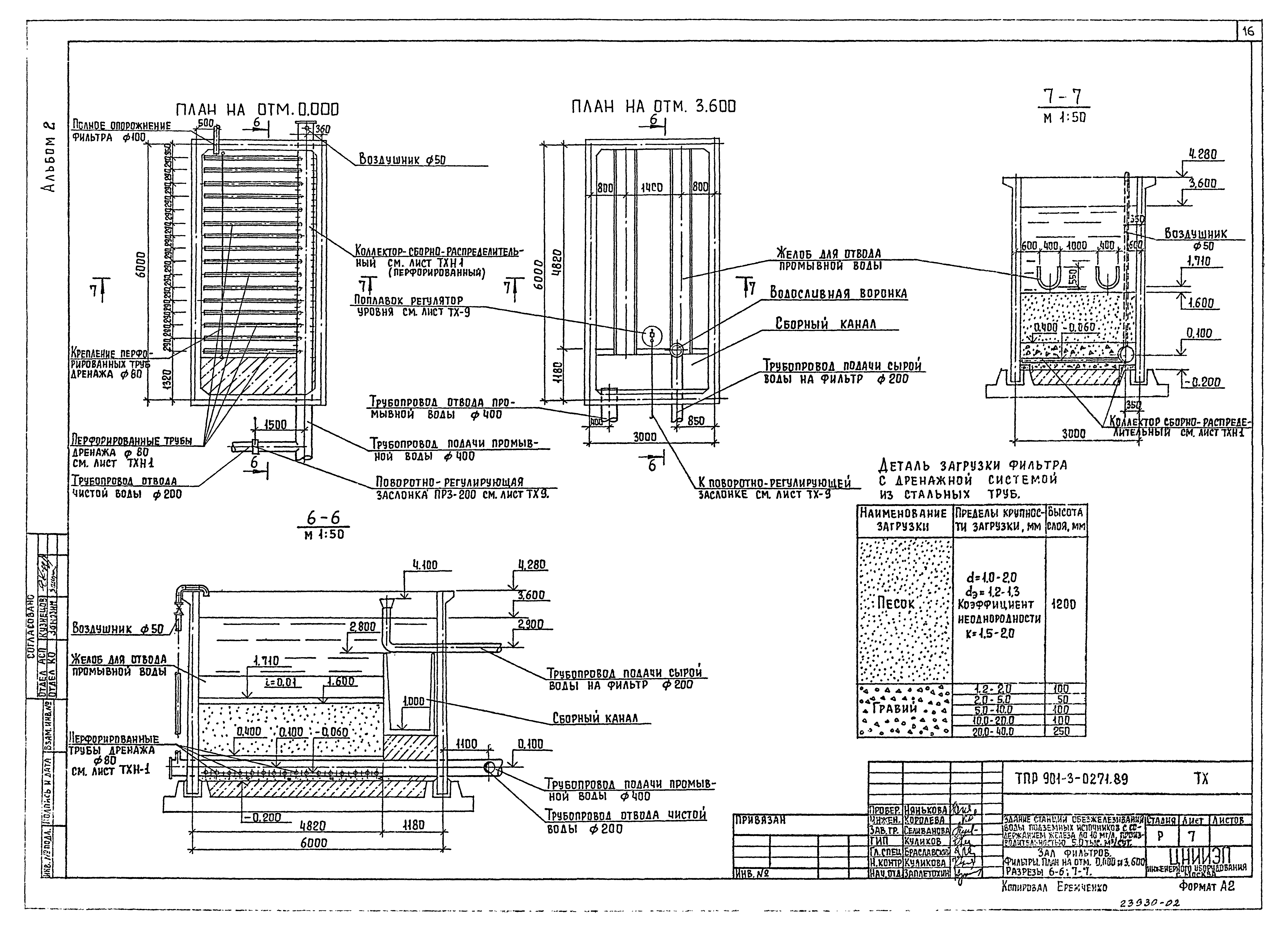
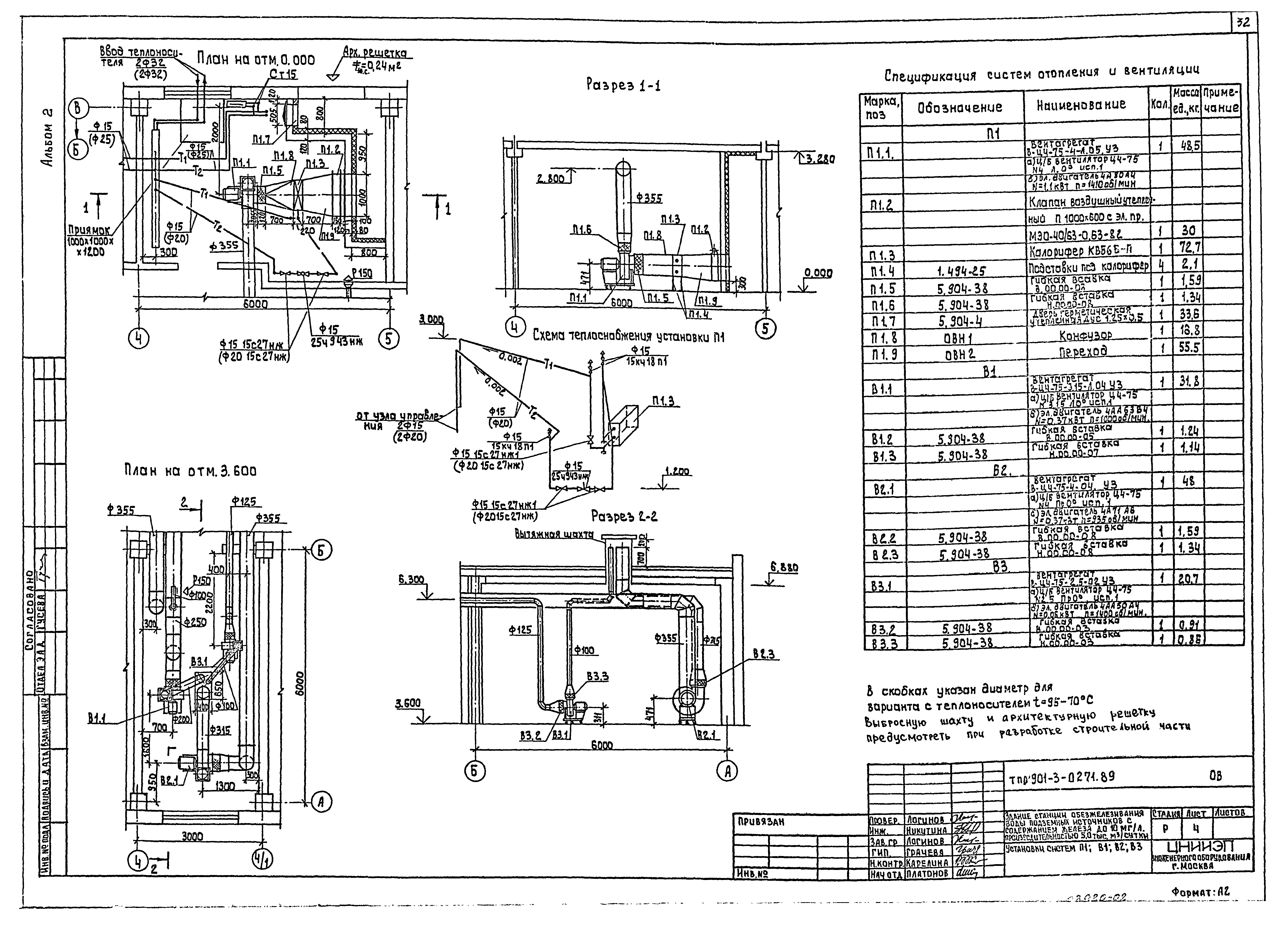
Типовые проектные решения 901-3-0271.89

Альбом 2. Архитектурно-строительные решения (рекомендации). Технология производства. Внутренние водопровод и канализация. Отопление и вентиляция

Обозначение: Типовые проектные решения 901-3-0271.89
Обозначение англ: 901-3-0271.89
Статус:справочные материалы, мп, тпр
Название рус.:Альбом 2. Архитектурно-строительные решения (рекомендации). Технология производства. Внутренние водопровод и канализация. Отопление и вентиляция
Дата добавления в базу:01.01.2018
Дата актуализации:01.01.2021
Дата введения:09.06.1989
Разработан: ЦНИИЭП инженерного оборудования
Утверждён:18.11.1985 Госгражданстрой (Gosgrazhdanstroy 346)
Издан: ЦИТП Госстроя СССР (CITP, Gosstroy (USSR) 1990 г. )
Заменяет собой:
  • Типовой проект 901-3-106
Нормативные ссылки:
Типовые проектные решения 901-3-0271.89Типовые проектные решения 901-3-0271.89Типовые проектные решения 901-3-0271.89Типовые проектные решения 901-3-0271.89Типовые проектные решения 901-3-0271.89Типовые проектные решения 901-3-0271.89Типовые проектные решения 901-3-0271.89Типовые проектные решения 901-3-0271.89Типовые проектные решения 901-3-0271.89Типовые проектные решения 901-3-0271.89Типовые проектные решения 901-3-0271.89Типовые проектные решения 901-3-0271.89Типовые проектные решения 901-3-0271.89Типовые проектные решения 901-3-0271.89Типовые проектные решения 901-3-0271.89Типовые проектные решения 901-3-0271.89Типовые проектные решения 901-3-0271.89Типовые проектные решения 901-3-0271.89Типовые проектные решения 901-3-0271.89Типовые проектные решения 901-3-0271.89Типовые проектные решения 901-3-0271.89Типовые проектные решения 901-3-0271.89Типовые проектные решения 901-3-0271.89Типовые проектные решения 901-3-0271.89Типовые проектные решения 901-3-0271.89Типовые проектные решения 901-3-0271.89Типовые проектные решения 901-3-0271.89Типовые проектные решения 901-3-0271.89Типовые проектные решения 901-3-0271.89Типовые проектные решения 901-3-0271.89Типовые проектные решения 901-3-0271.89Типовые проектные решения 901-3-0271.89Типовые проектные решения 901-3-0271.89Типовые проектные решения 901-3-0271.89Типовые проектные решения 901-3-0271.89