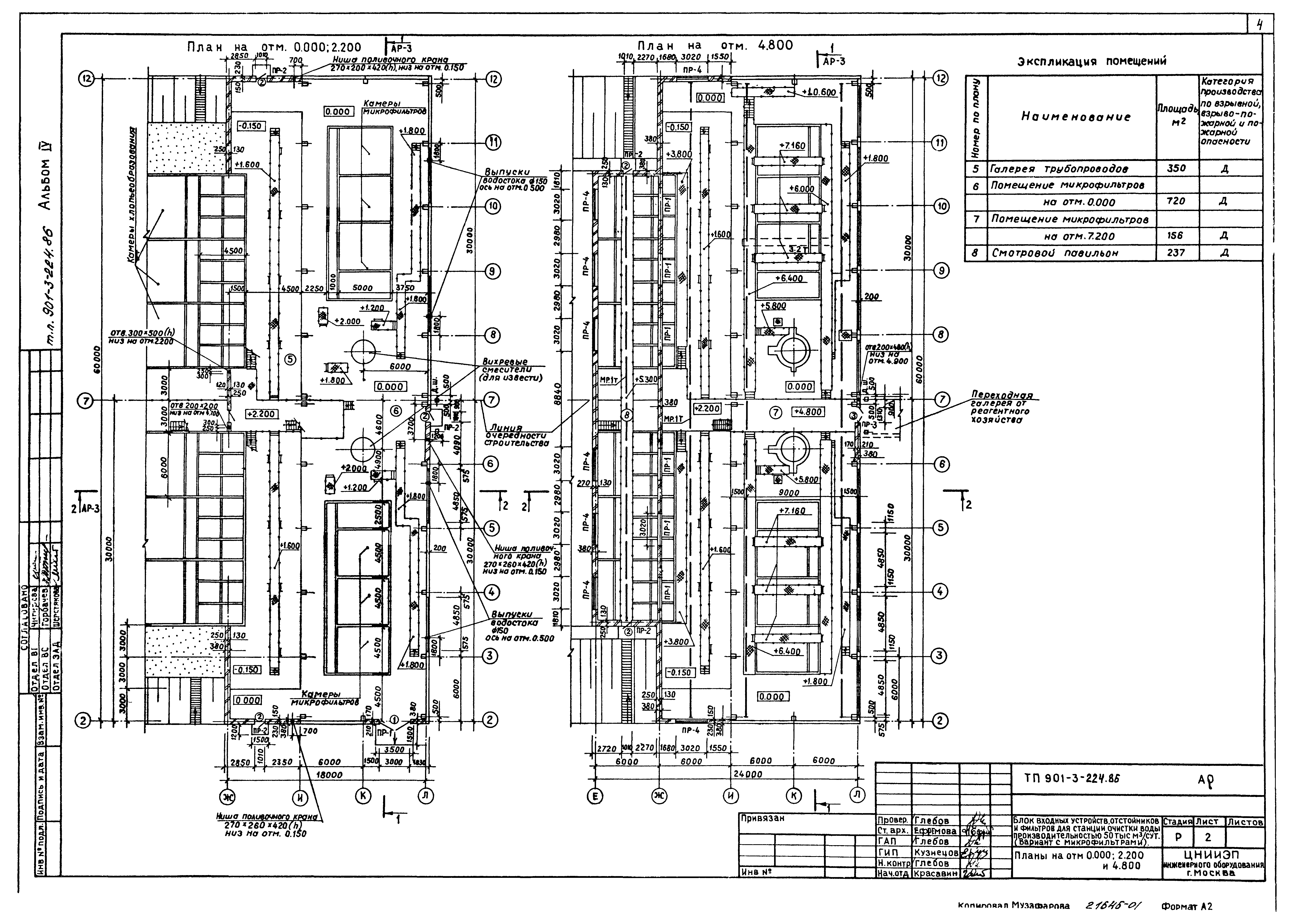
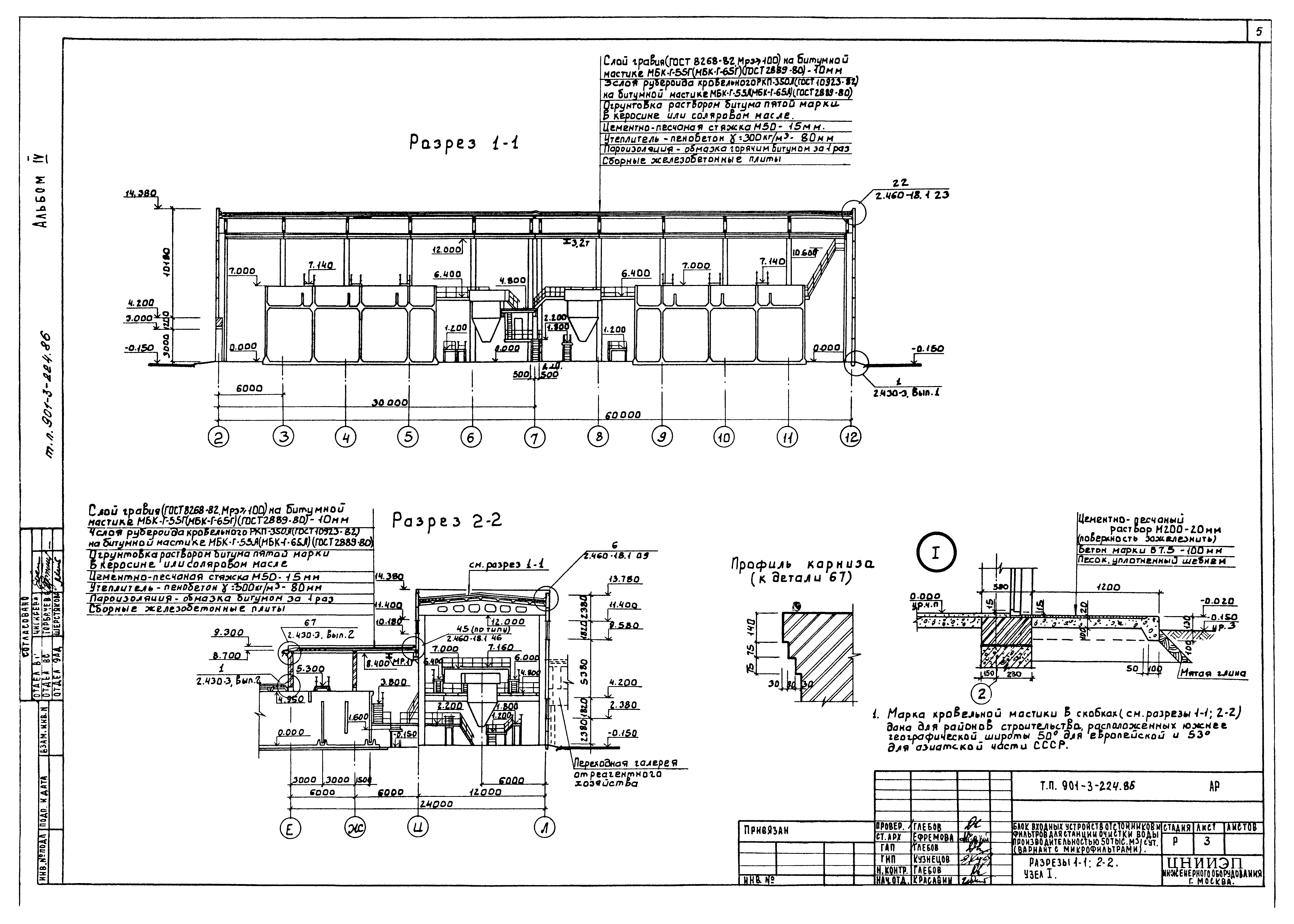
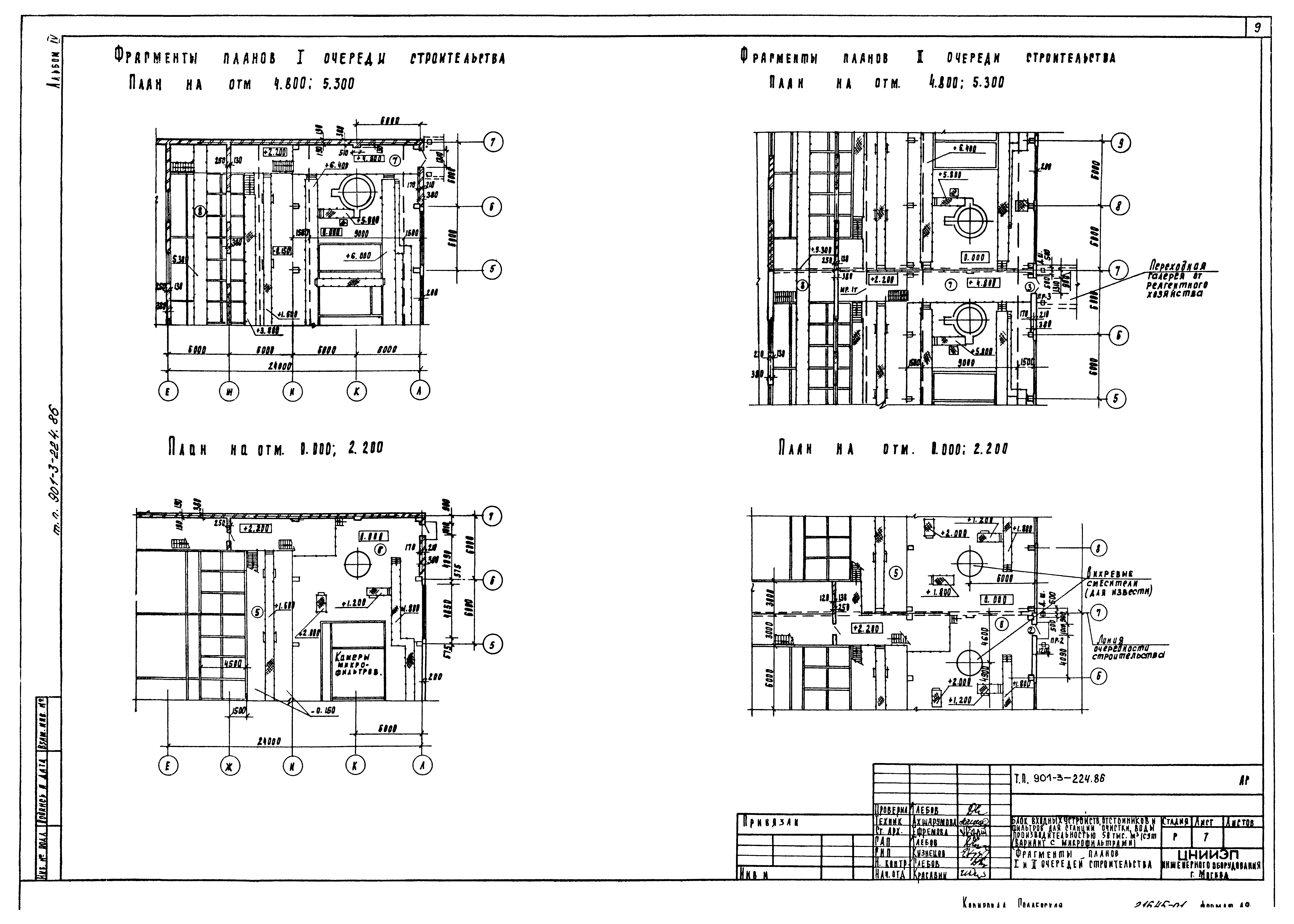
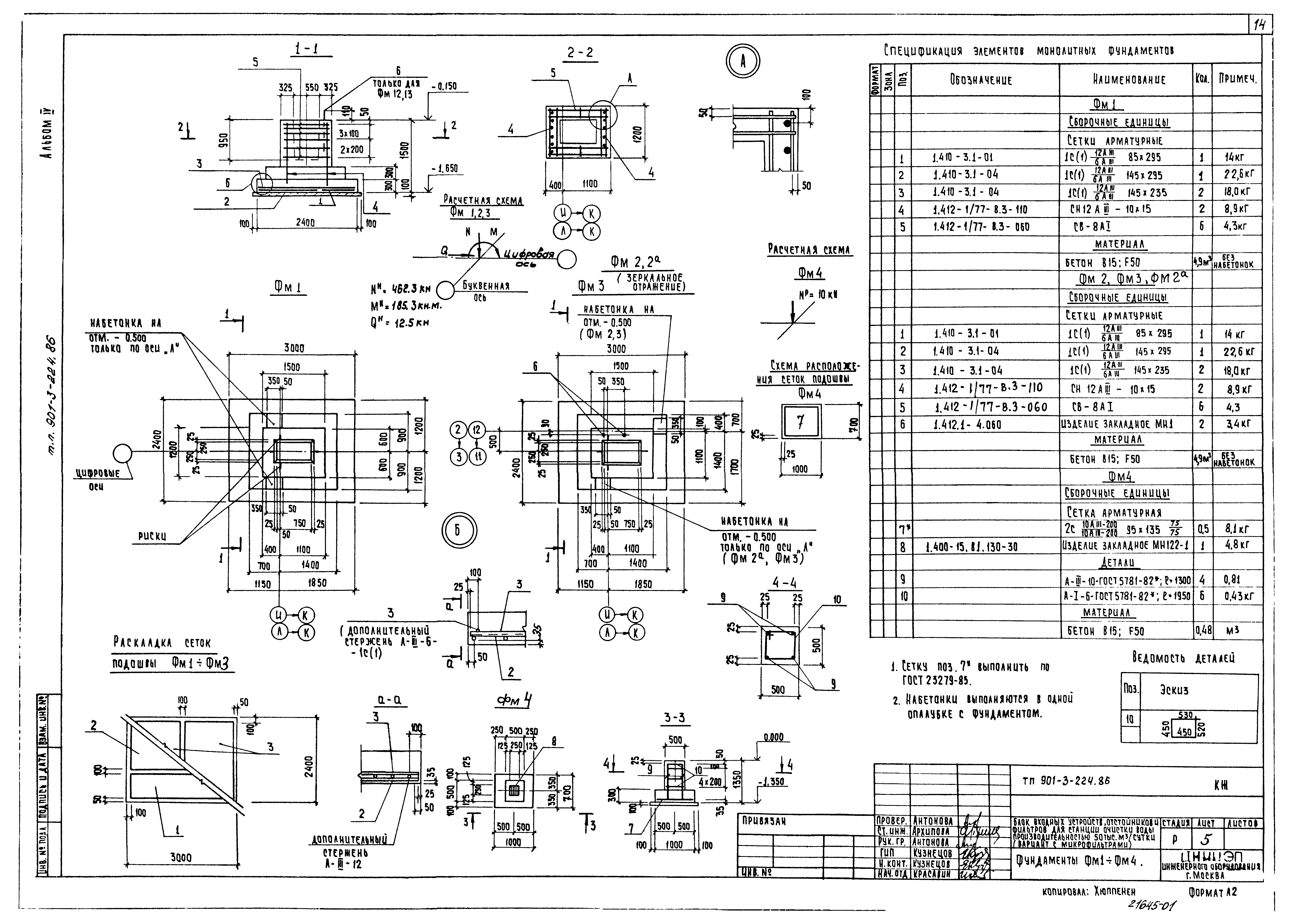
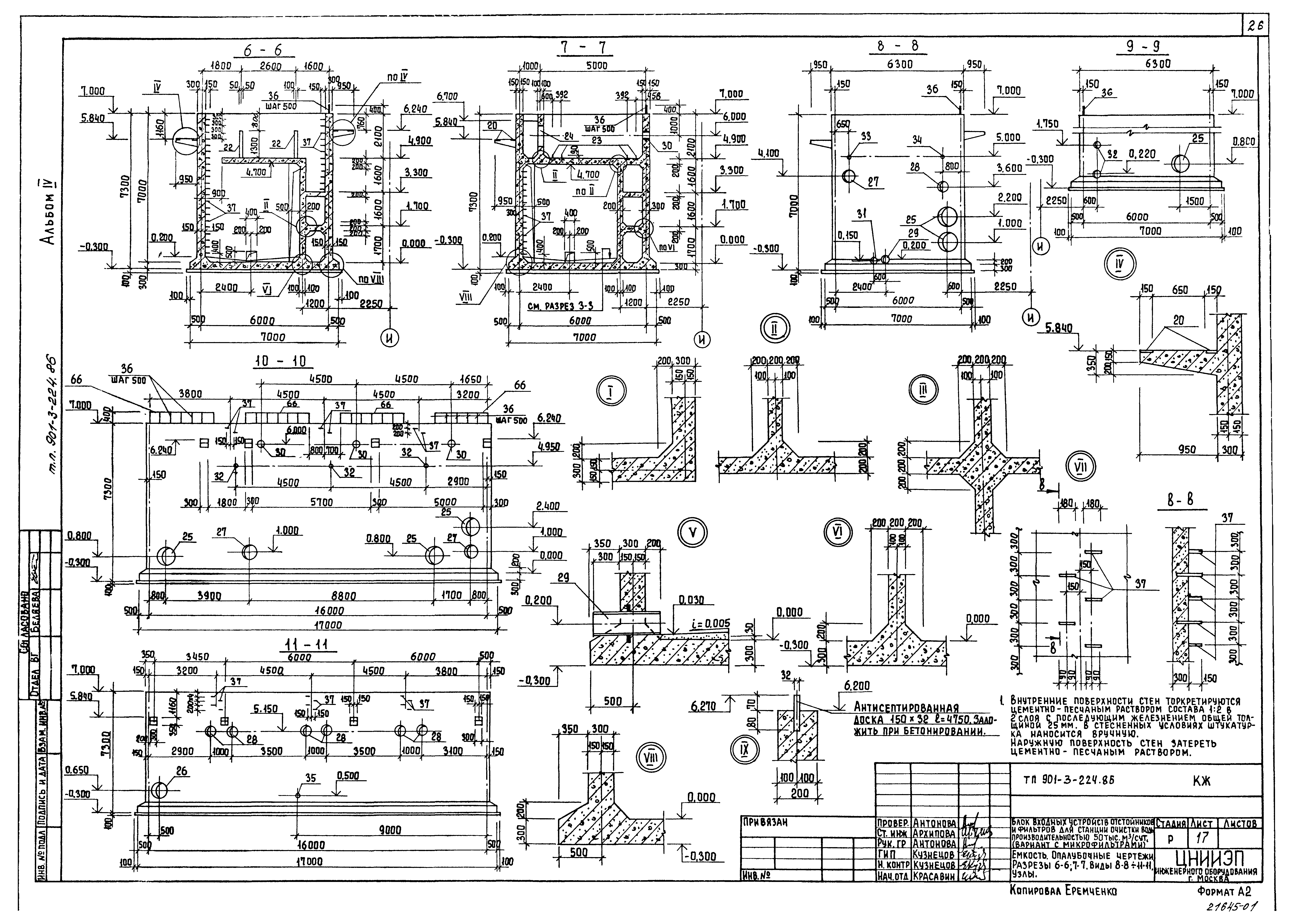
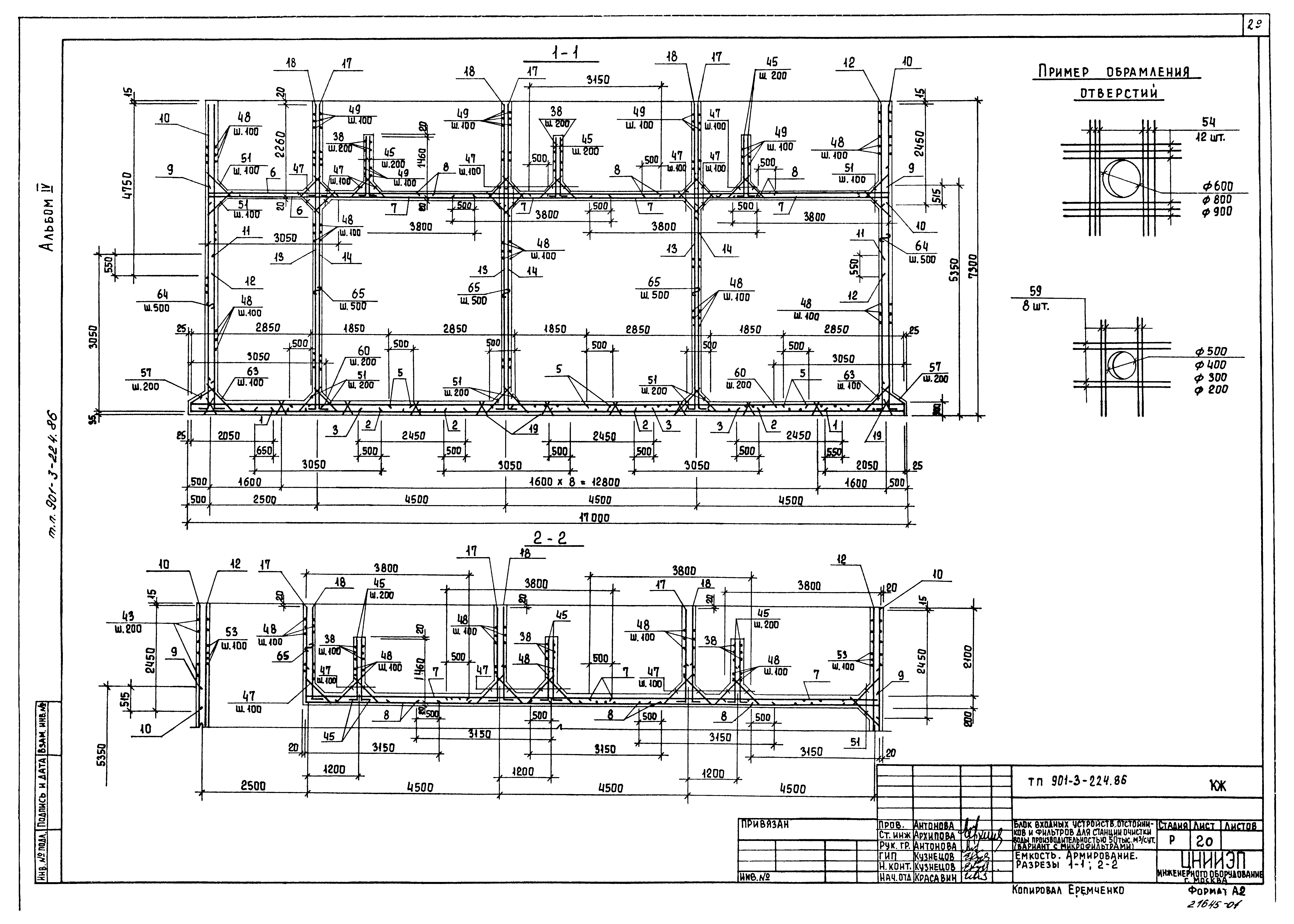
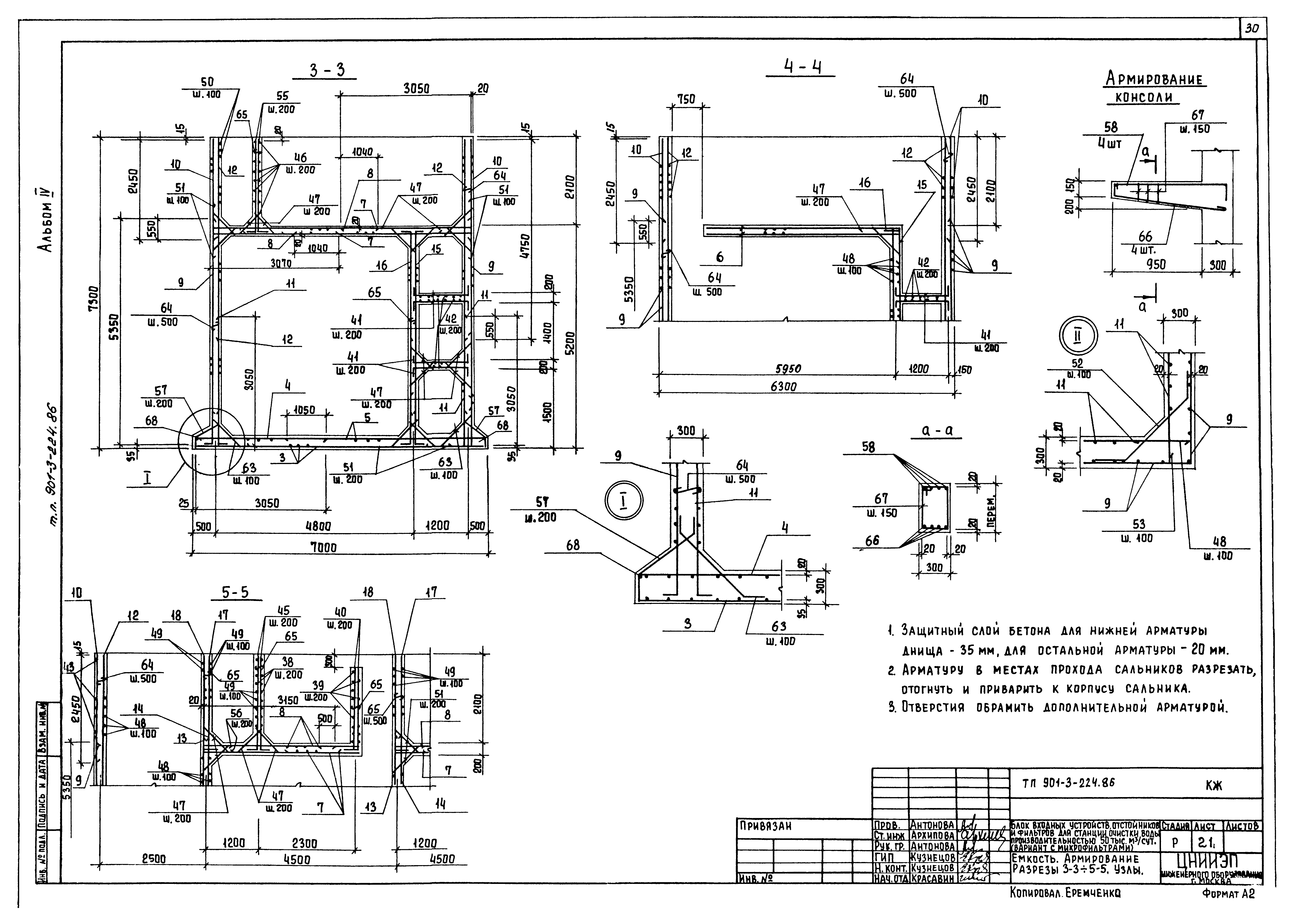
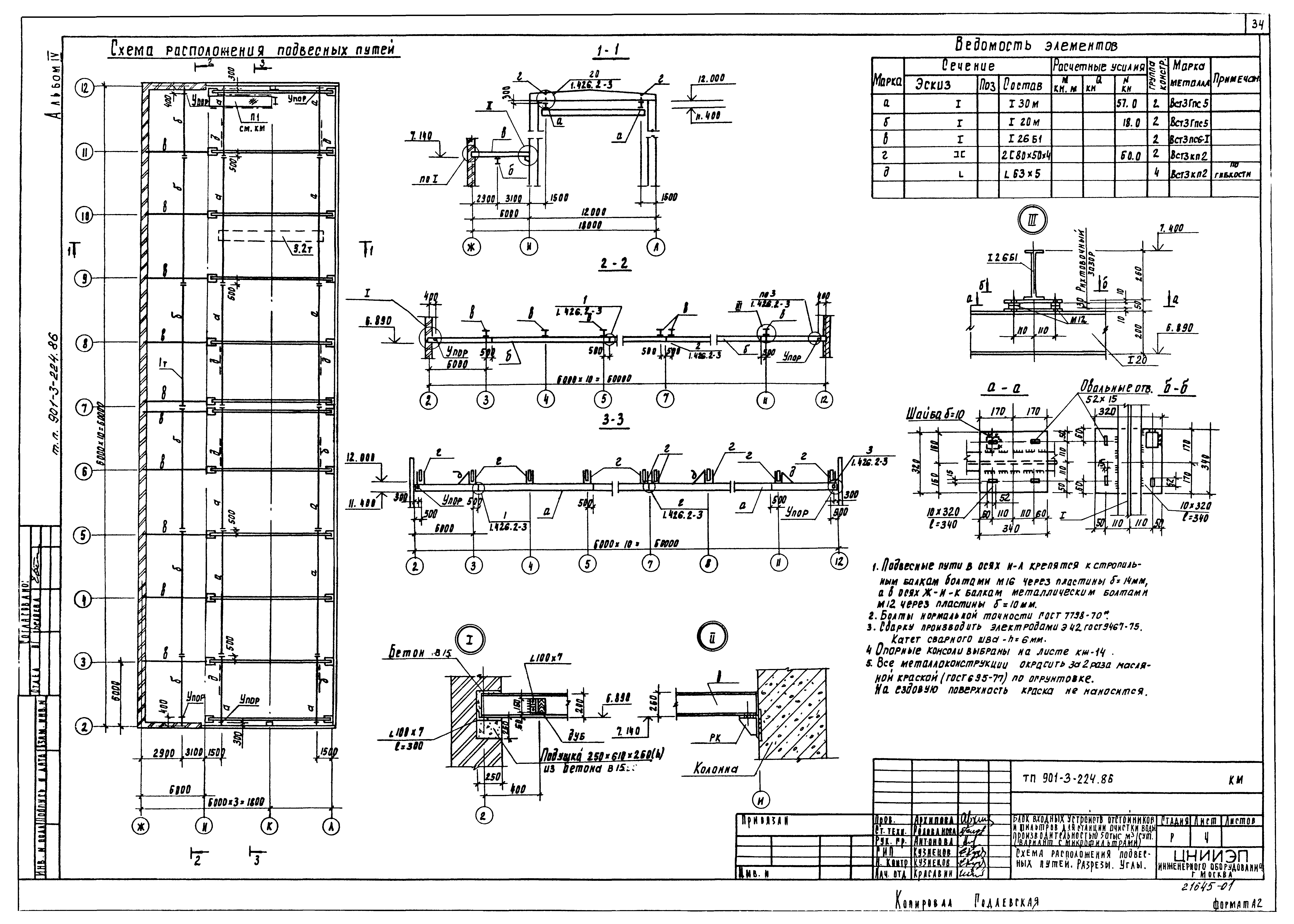
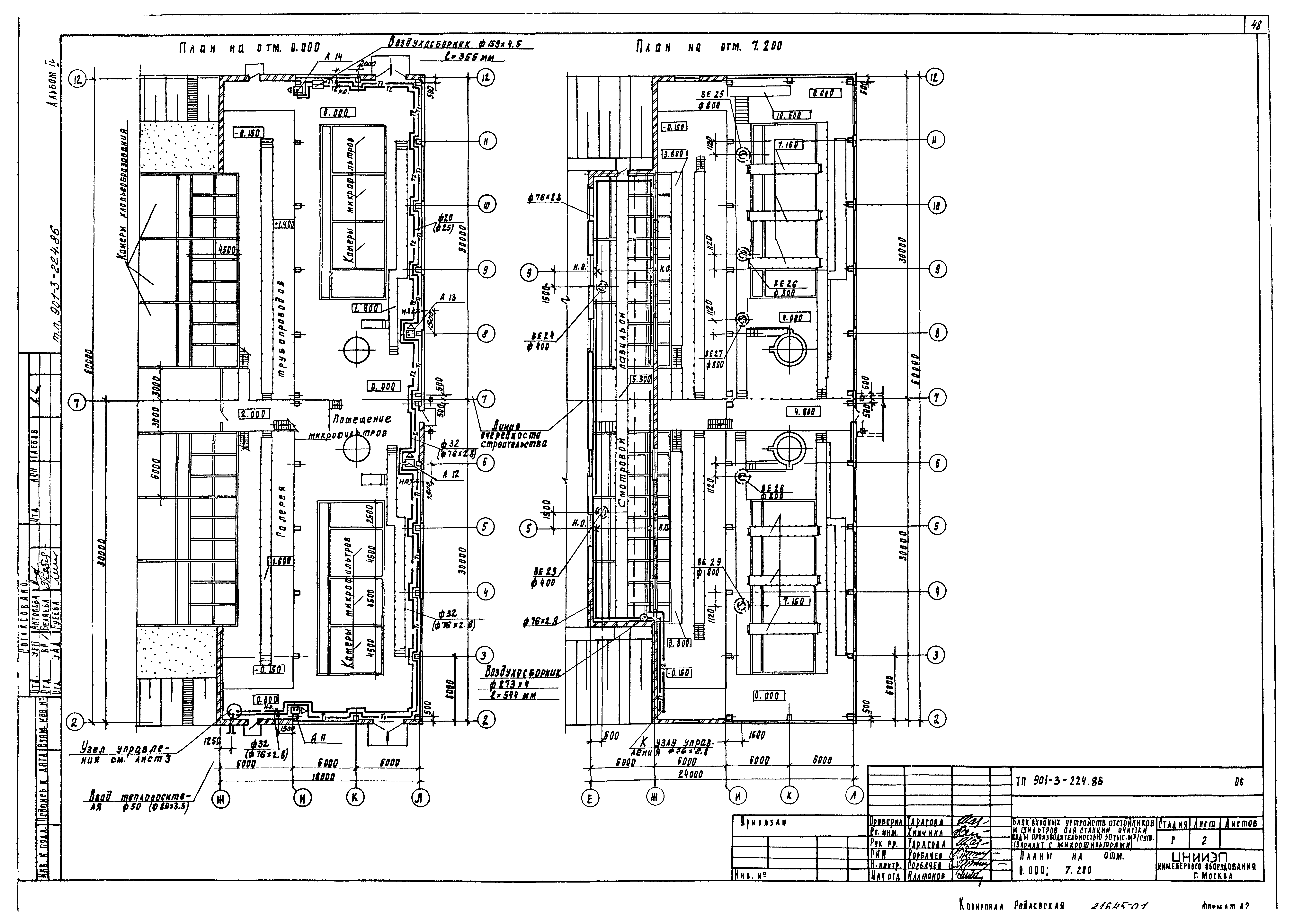
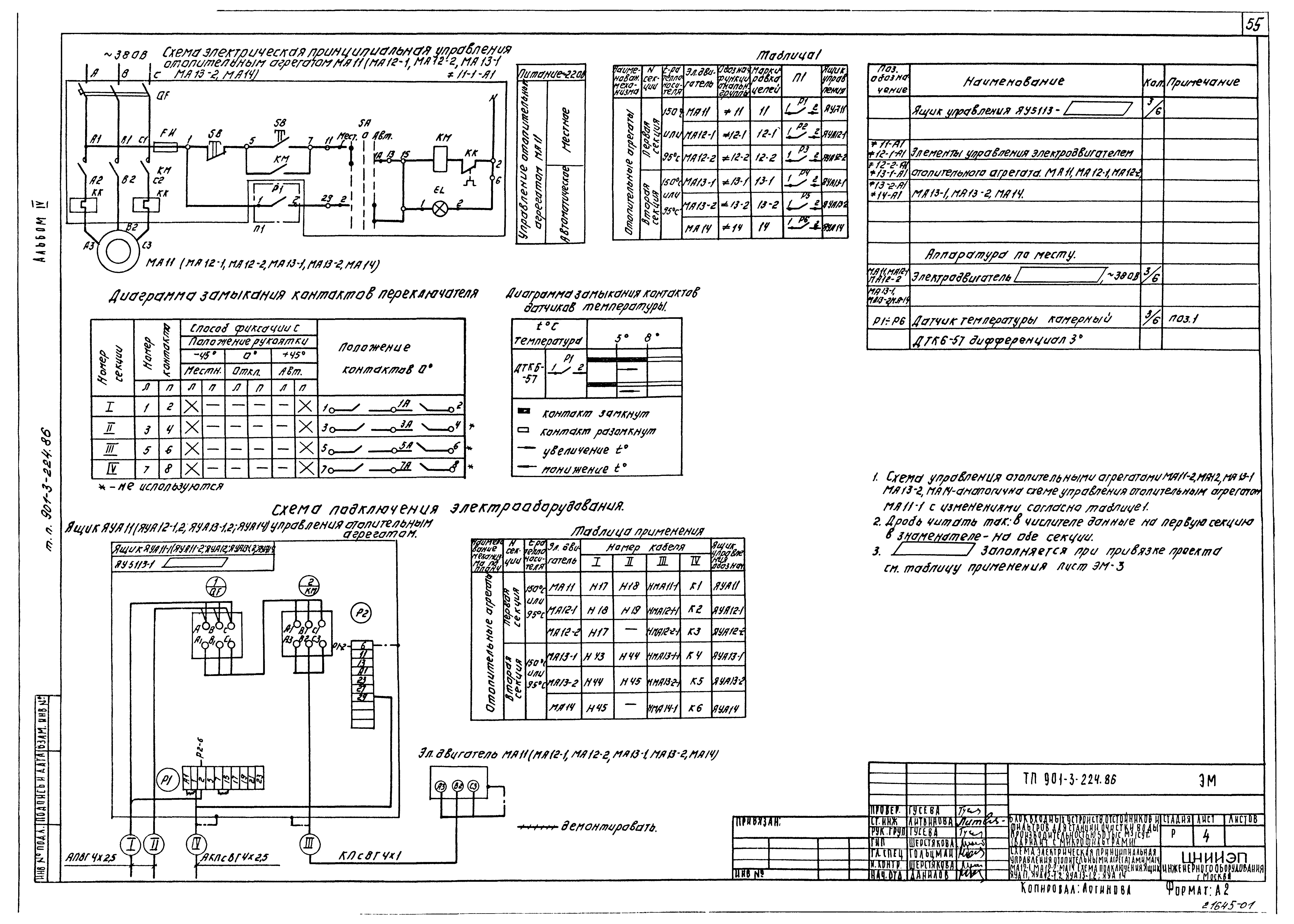
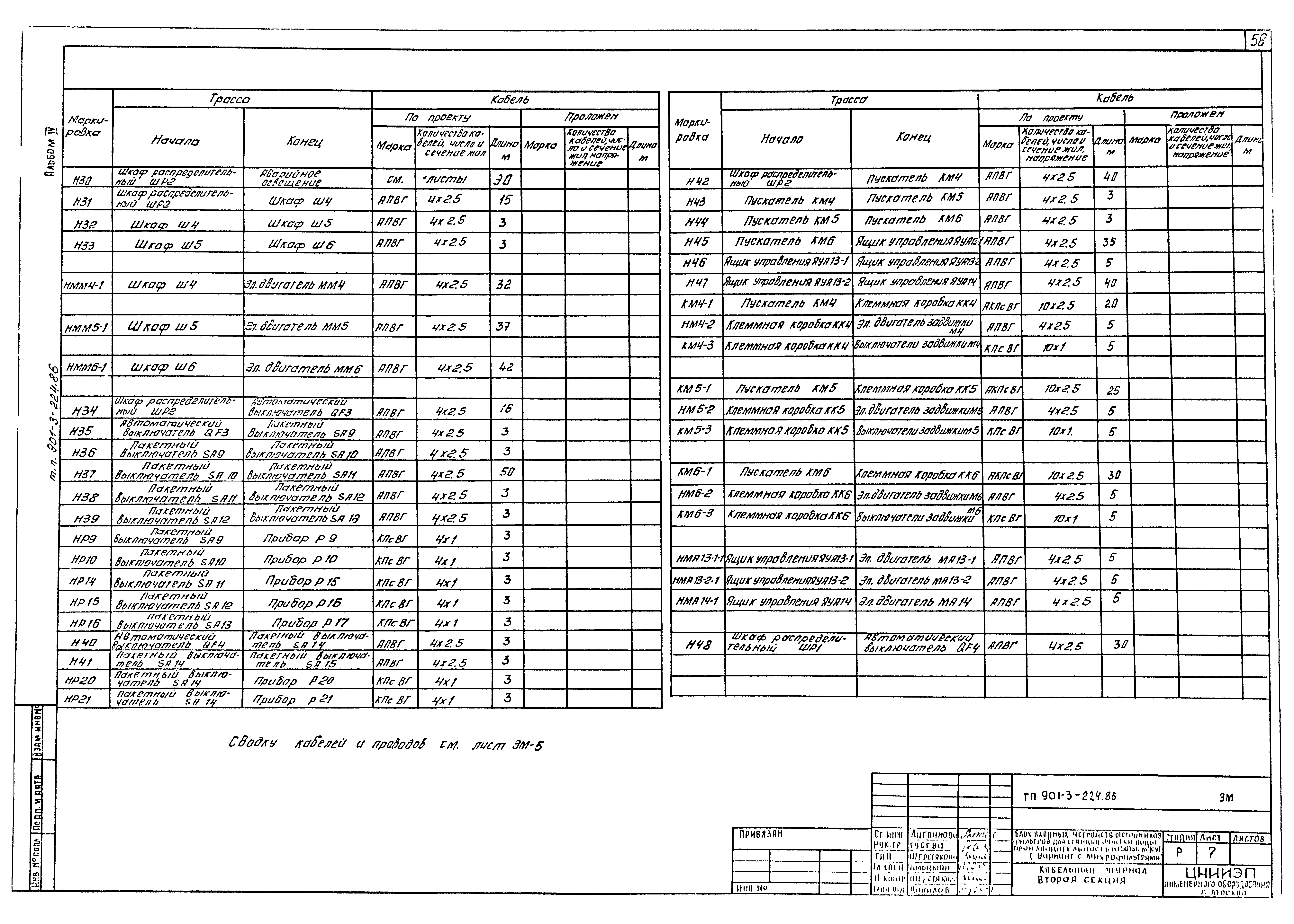
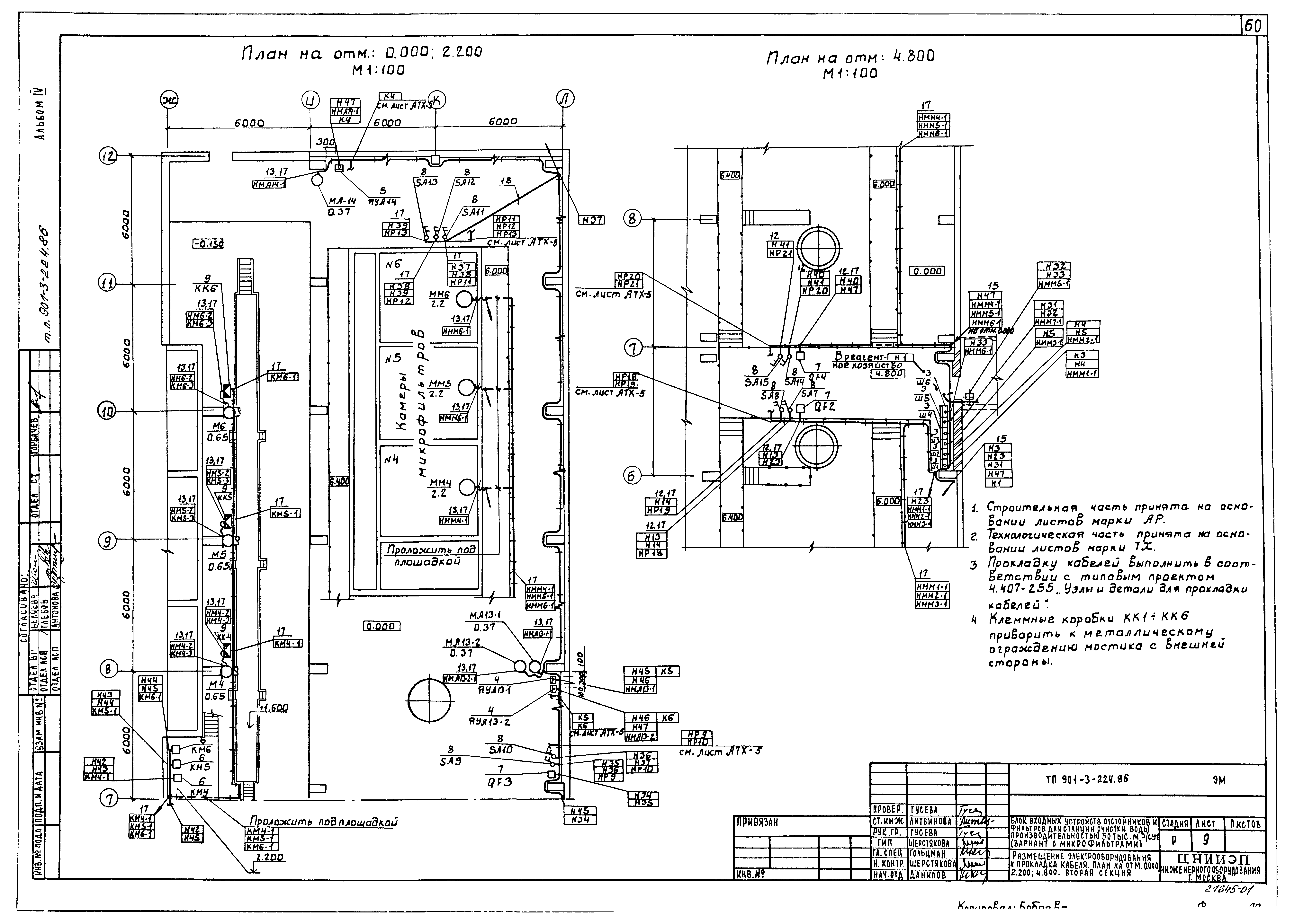
Скачать Типовой проект 901-3-224.86 Альбом IV. Микрофильтры. Архитектурно-строительная, технологическая, санитарно-техническая и электротехническая частиДата актуализации: 01.01.2021 Типовой проект 901-3-224.86
Альбом IV. Микрофильтры. Архитектурно-строительная, технологическая, санитарно-техническая и электротехническая части| Обозначение: | Типовой проект 901-3-224.86 | | Обозначение англ: | 901-3-224.86 | | Статус: | не определен законодательством | | Название рус.: | Альбом IV. Микрофильтры. Архитектурно-строительная, технологическая, санитарно-техническая и электротехническая части | | Дата добавления в базу: | 01.01.2018 | | Дата актуализации: | 01.01.2021 | | Дата введения: | 30.06.1986 | | Дата окончания срока действия: | 30.06.2003 | | Разработан: | ЦНИИЭП инженерного оборудования
| | Утверждён: | 13.02.1985 Госгражданстрой (Gosgrazhdanstroy 43)
|
                                                                    
|