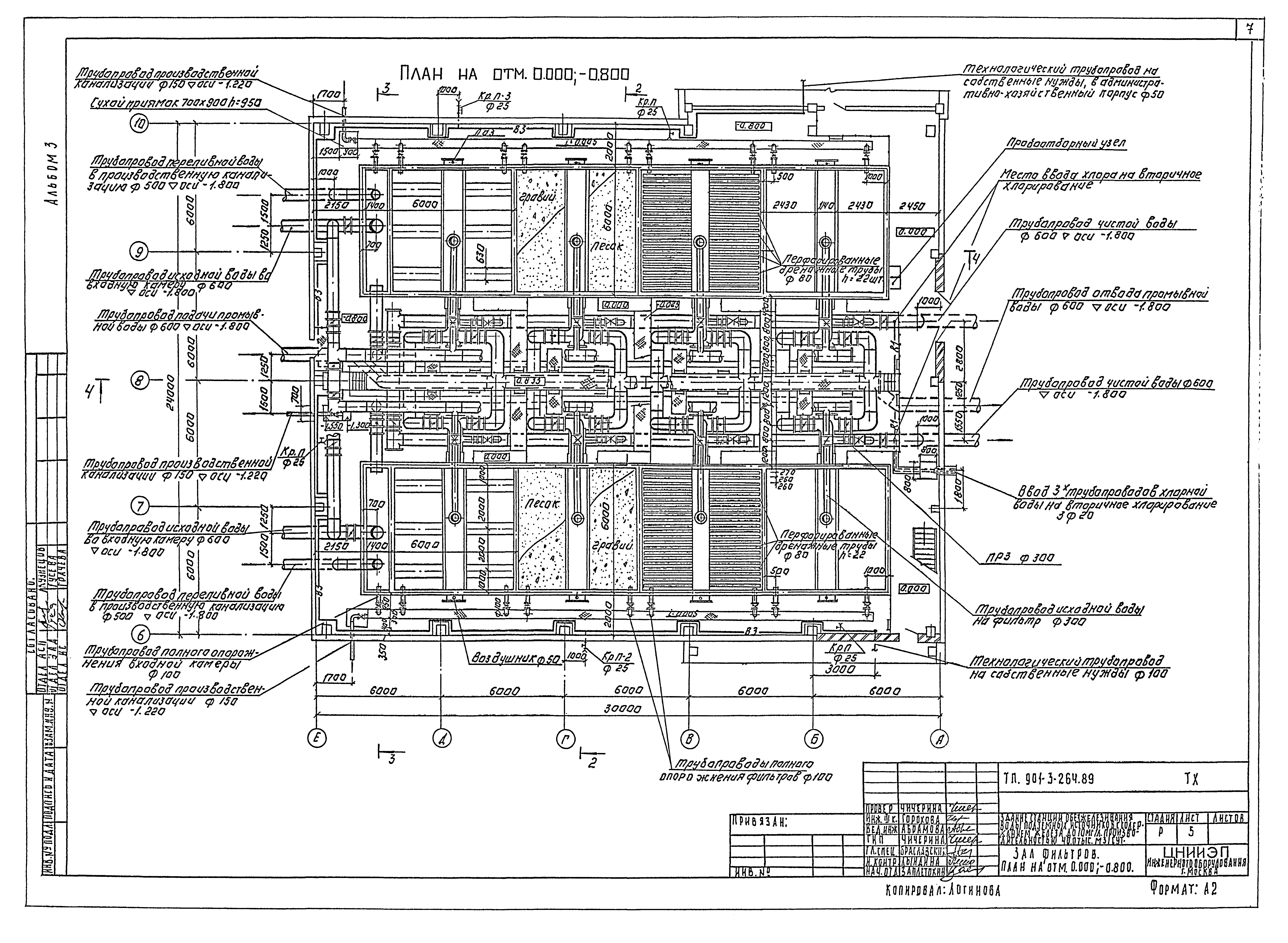
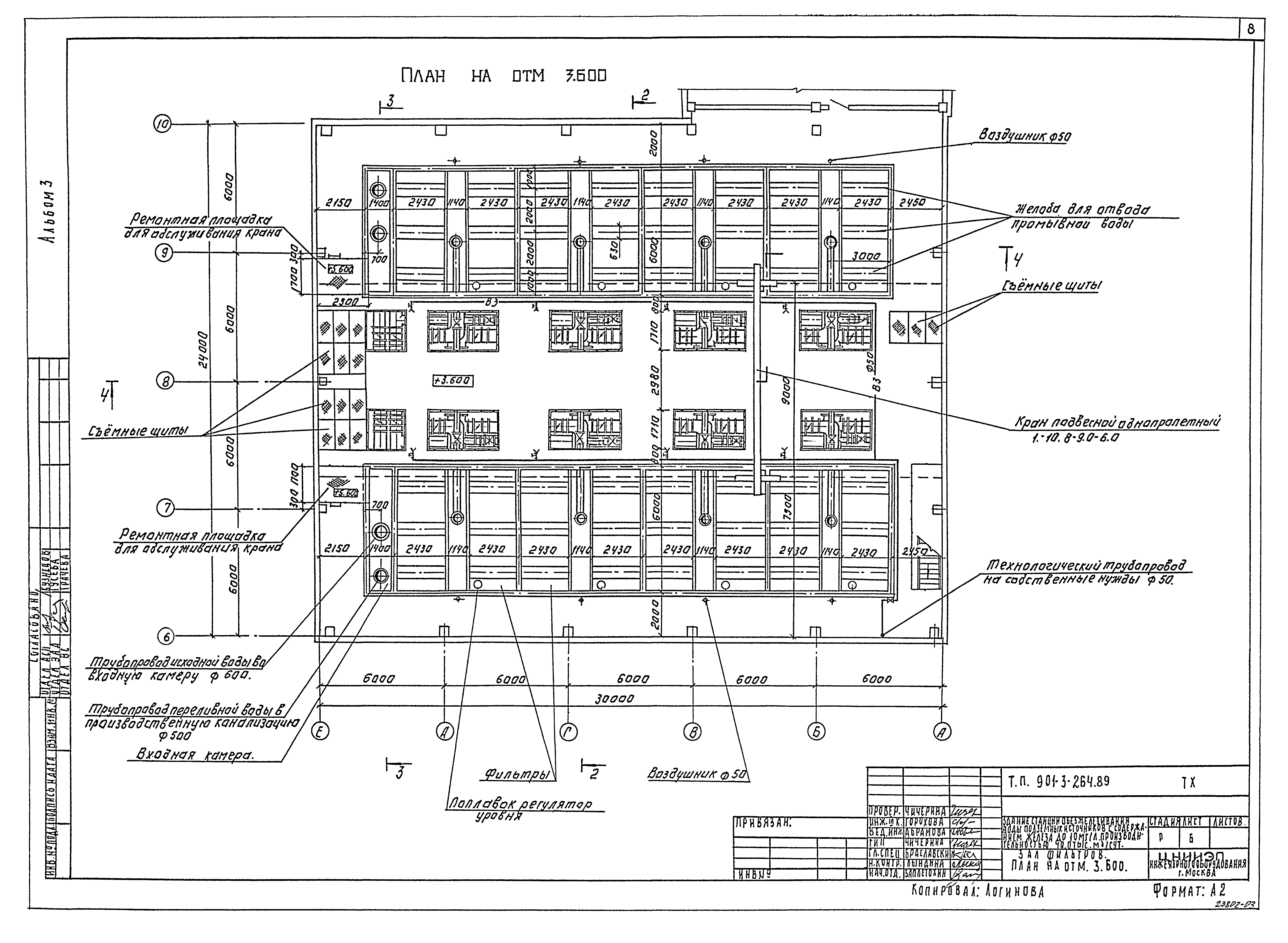
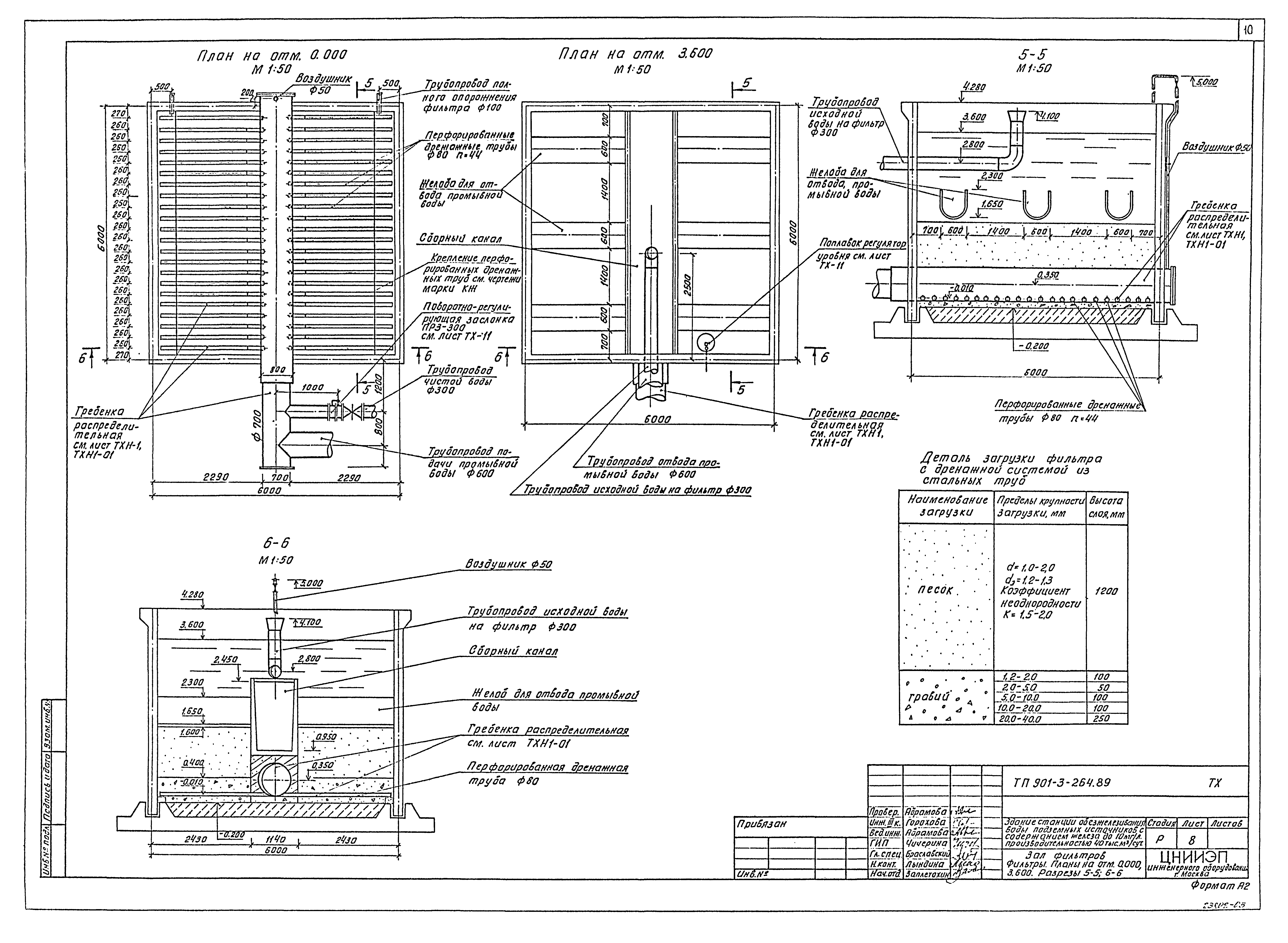
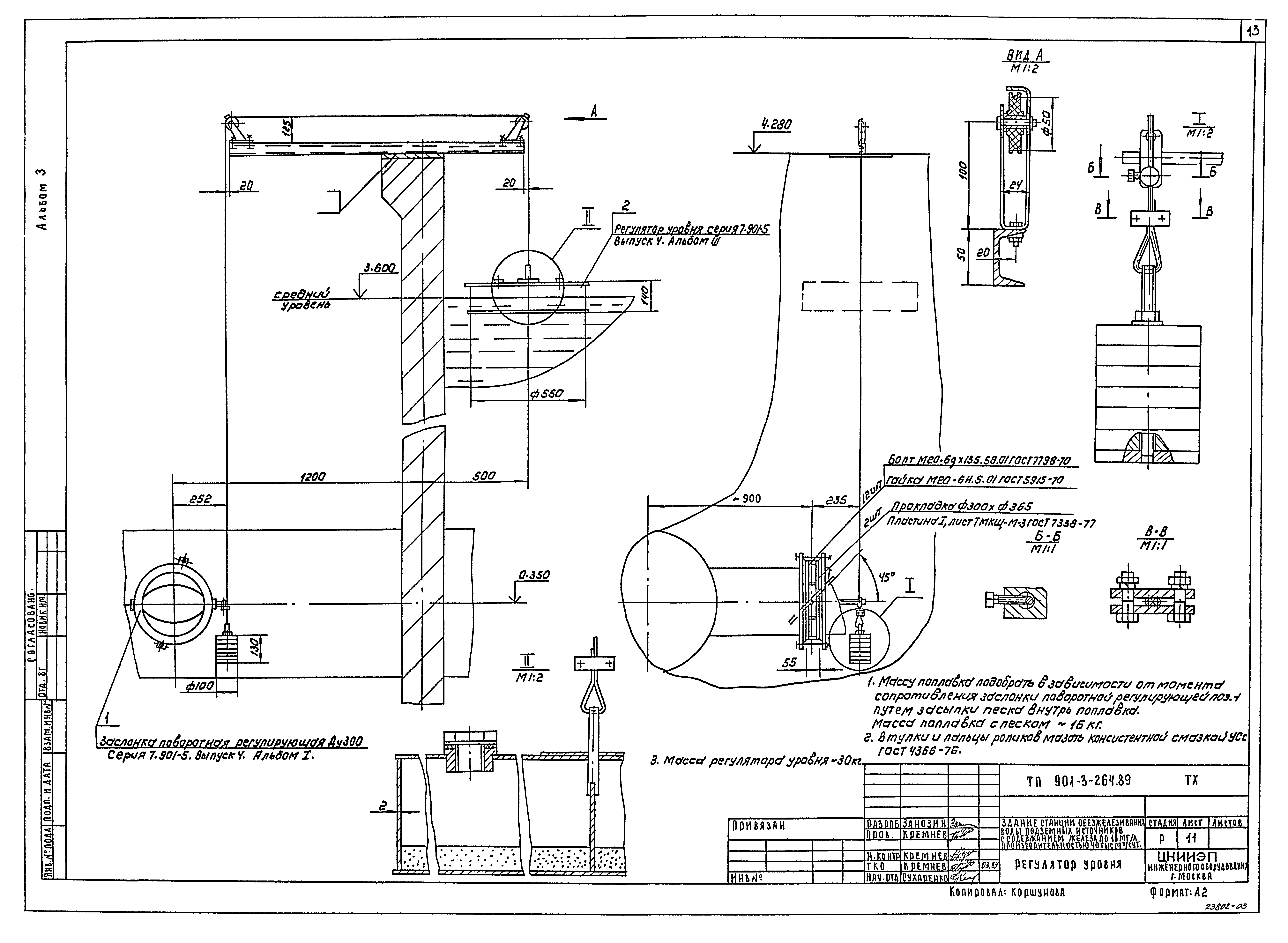
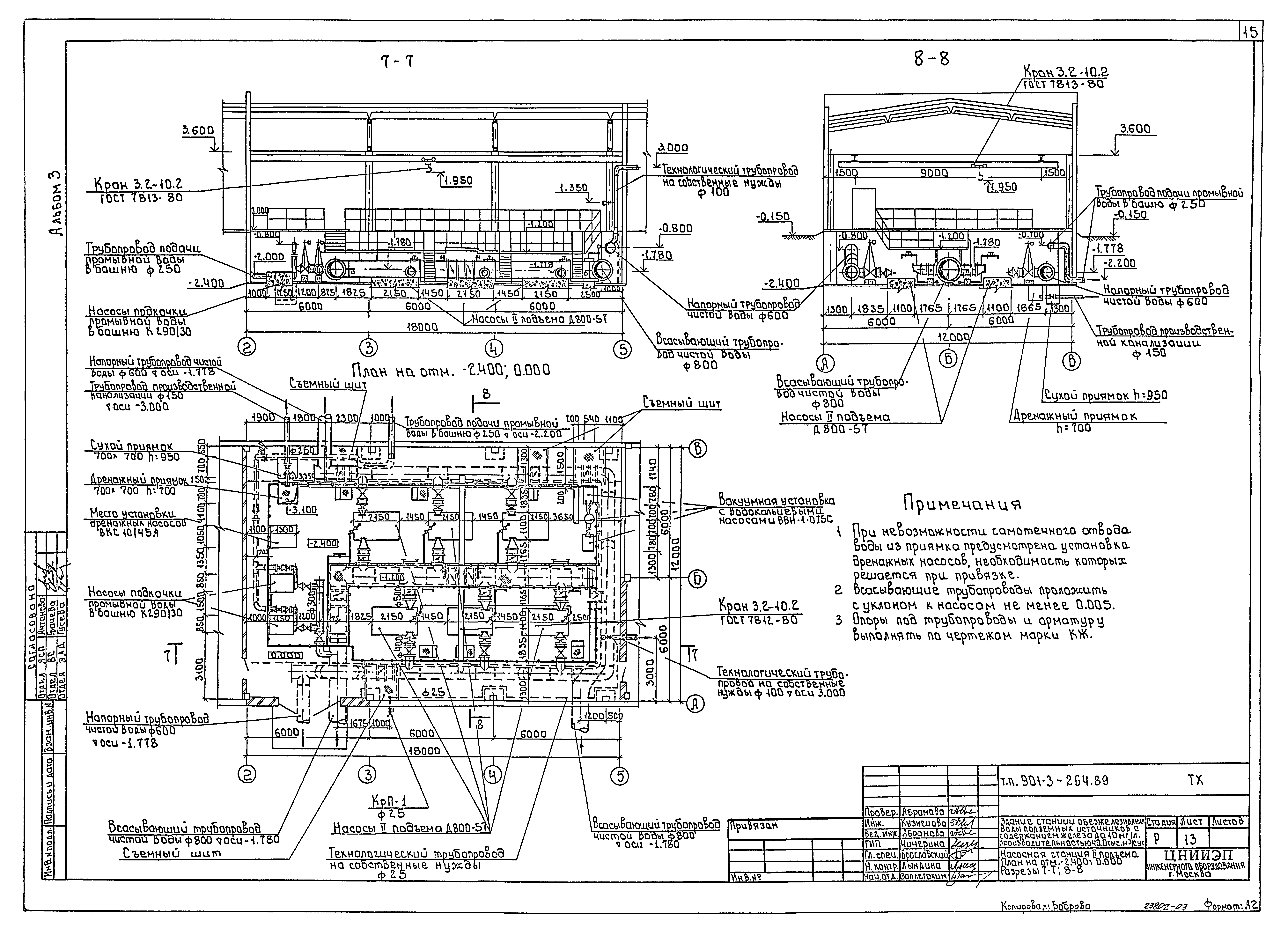
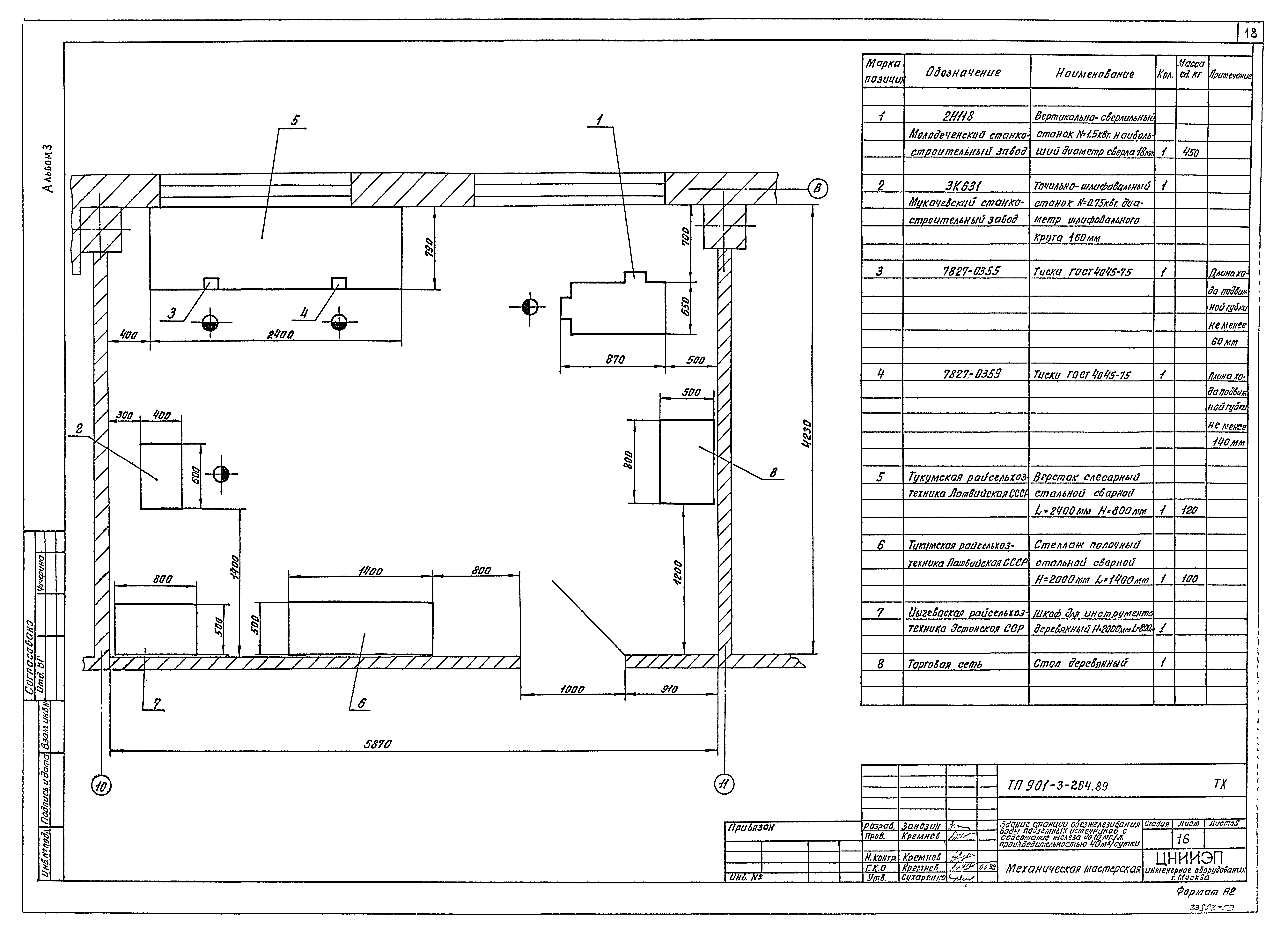
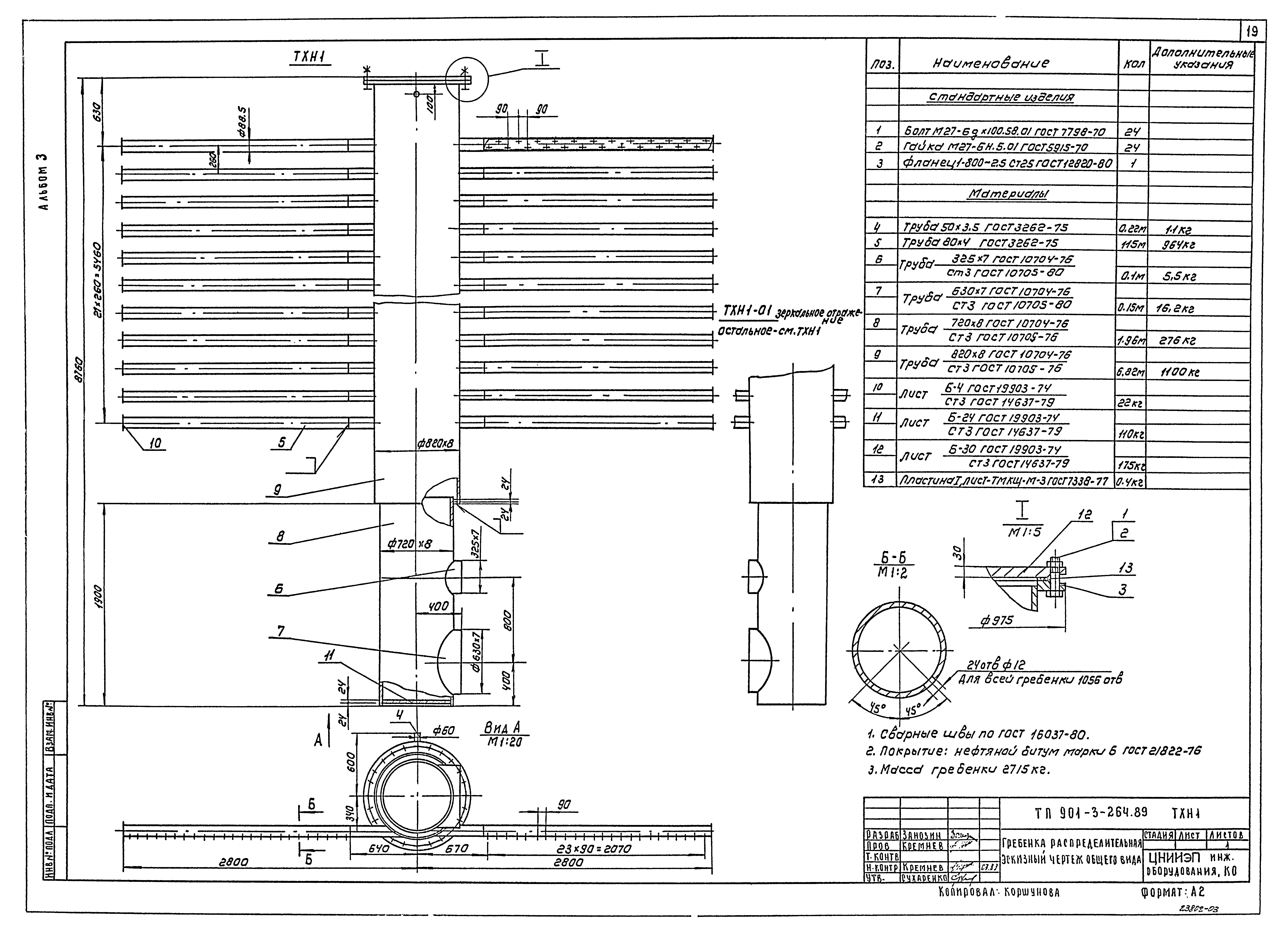
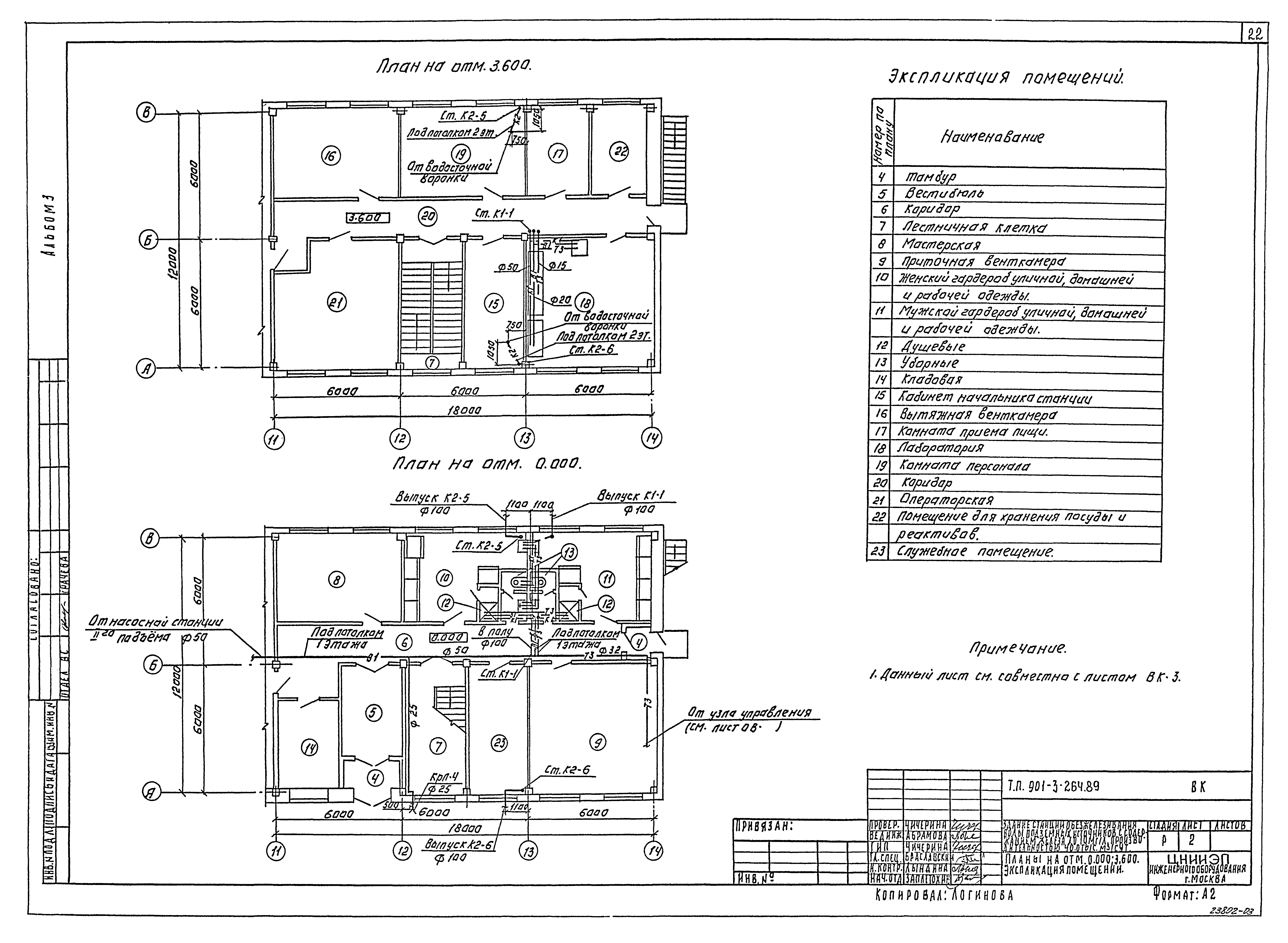
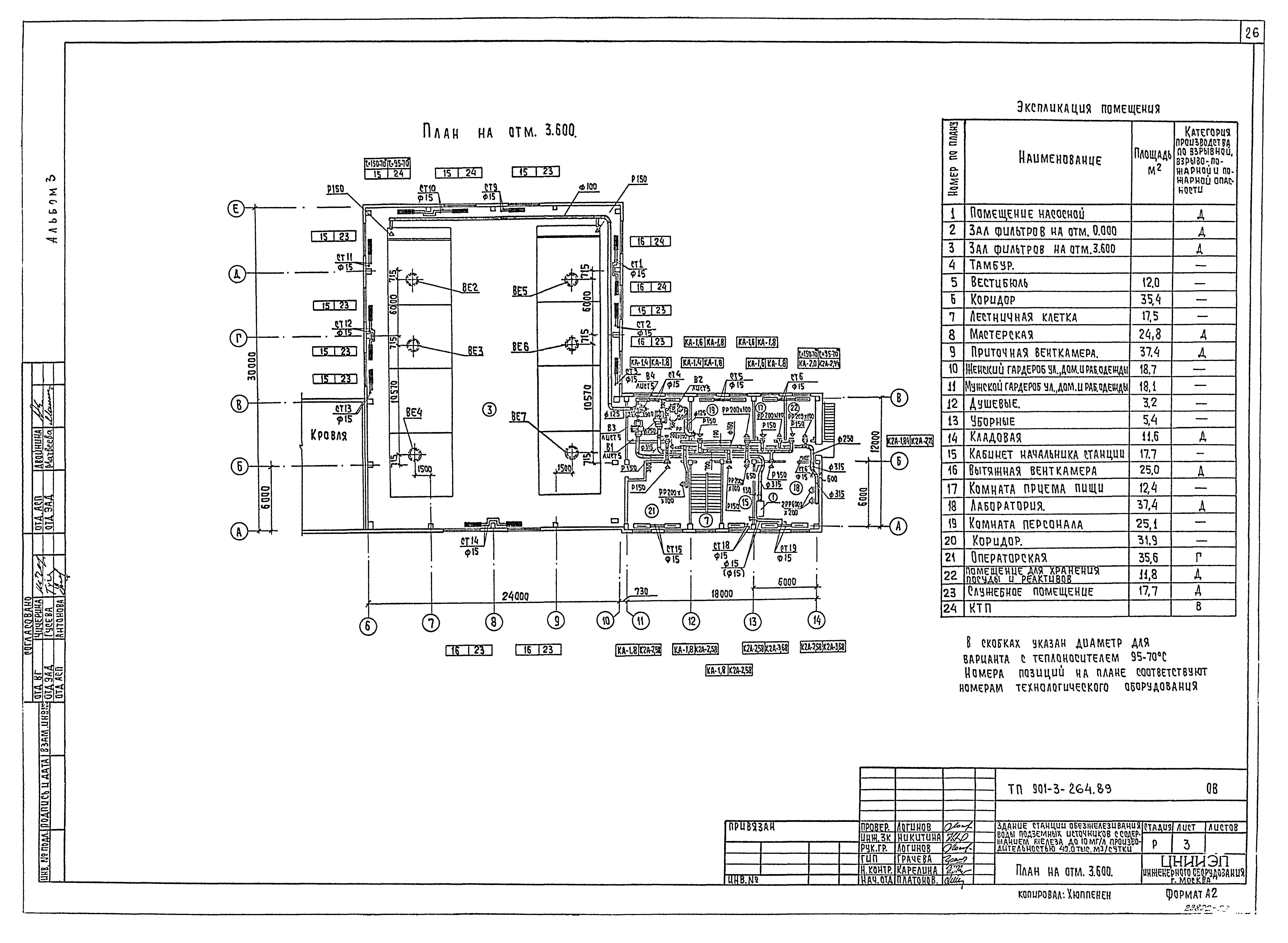
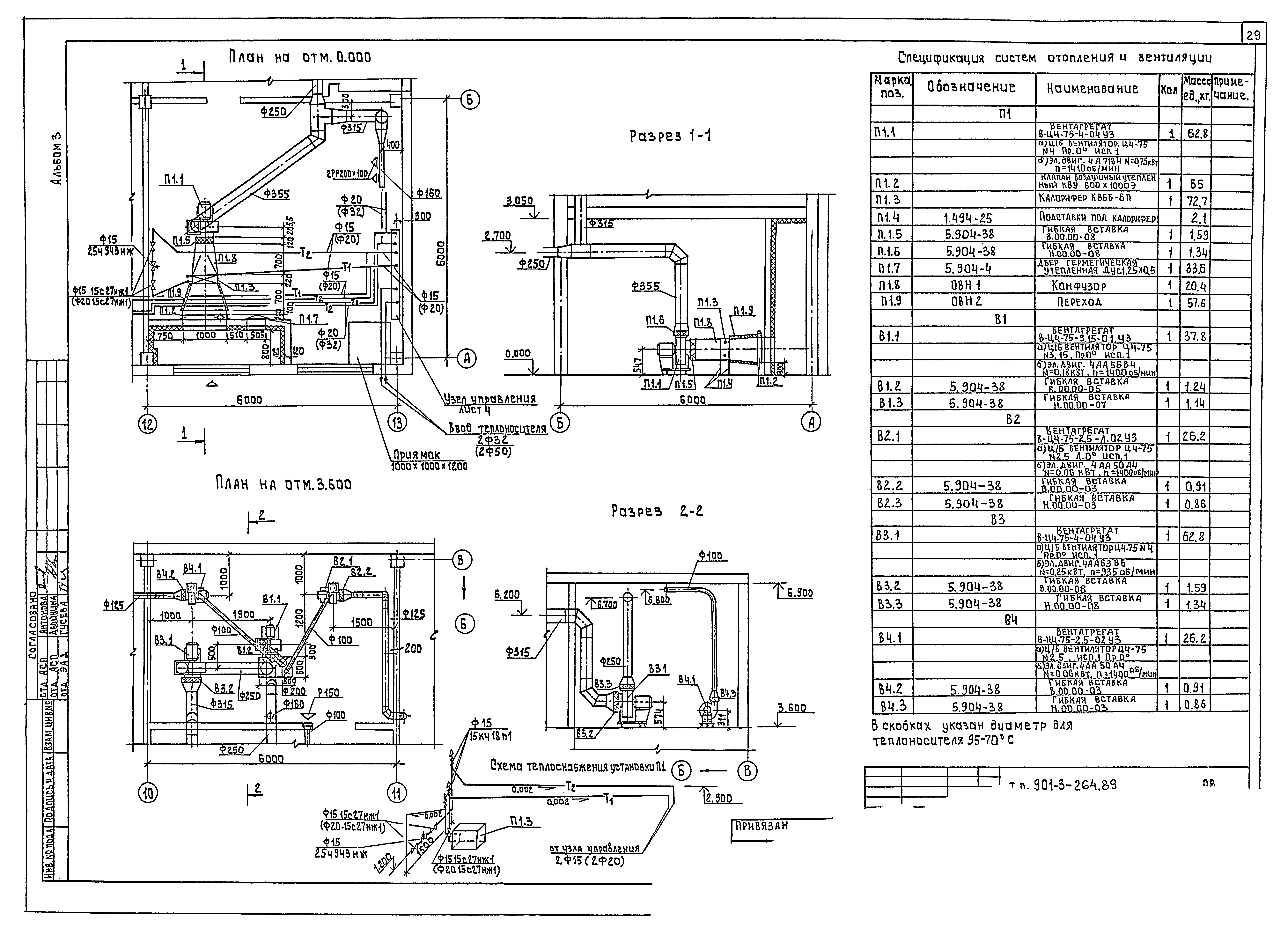
Скачать Типовой проект 901-3-264.89 Альбом 3. Технология производства. Внутренние водопровод и канализация. Отопление и вентиляцияДата актуализации: 01.01.2021
|
| Обозначение: | Типовой проект 901-3-264.89 |
| Обозначение англ: | 901-3-264.89 |
| Статус: | не определен законодательством |
| Название рус.: | Альбом 3. Технология производства. Внутренние водопровод и канализация. Отопление и вентиляция |
| Дата добавления в базу: | 01.01.2018 |
| Дата актуализации: | 01.01.2021 |
| Дата введения: | 09.03.1989 |
| Дата окончания срока действия: | 30.06.2003 |
| Разработан: | ЦНИИЭП инженерного оборудования |
| Утверждён: | 18.11.1985 Госгражданстрой (Gosgrazhdanstroy 346) |
| Заменяет собой: | |
| Нормативные ссылки: |






























